Скачать Типовой проект 705-4-77с Альбом I. Стальные конструкции. Пояснительная записка. ЧертежиДата актуализации: 01.01.2021
|
| Обозначение: | Типовой проект 705-4-77с |
| Обозначение англ: | 705-4-77с |
| Статус: | действует |
| Название рус.: | Альбом I. Стальные конструкции. Пояснительная записка. Чертежи |
| Дата добавления в базу: | 01.09.2013 |
| Дата актуализации: | 01.01.2021 |
| Дата введения: | 01.03.1979 |
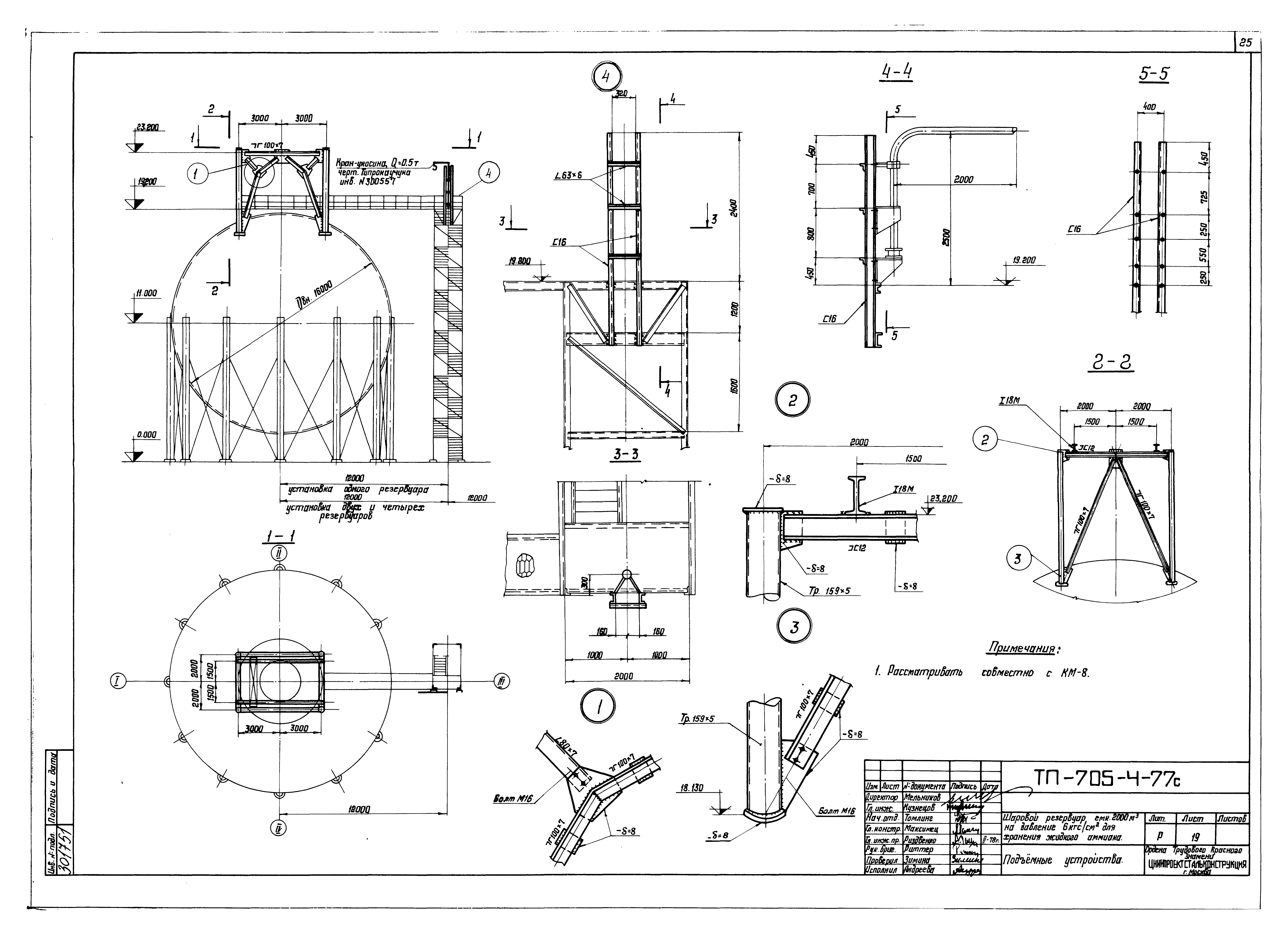
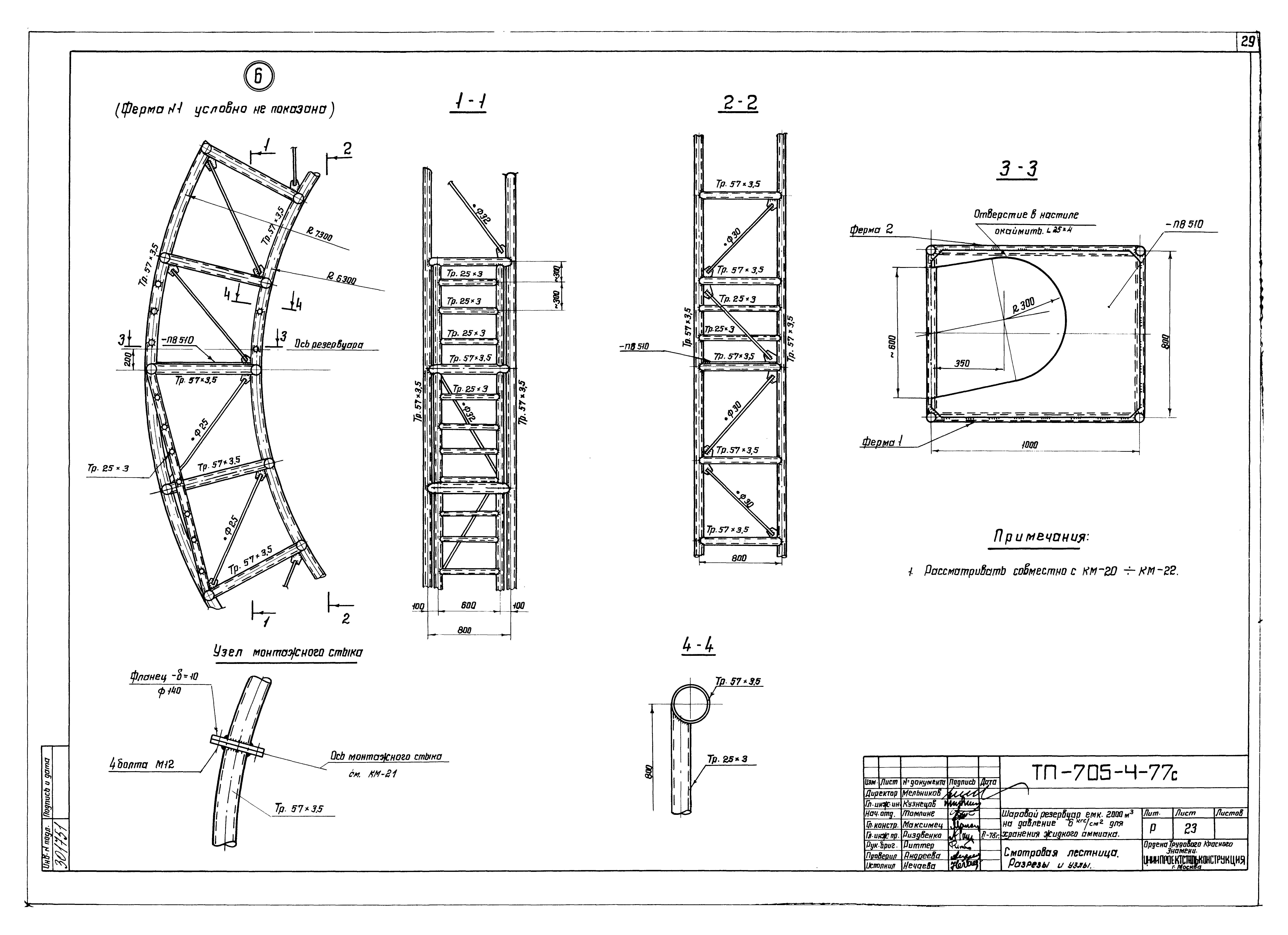
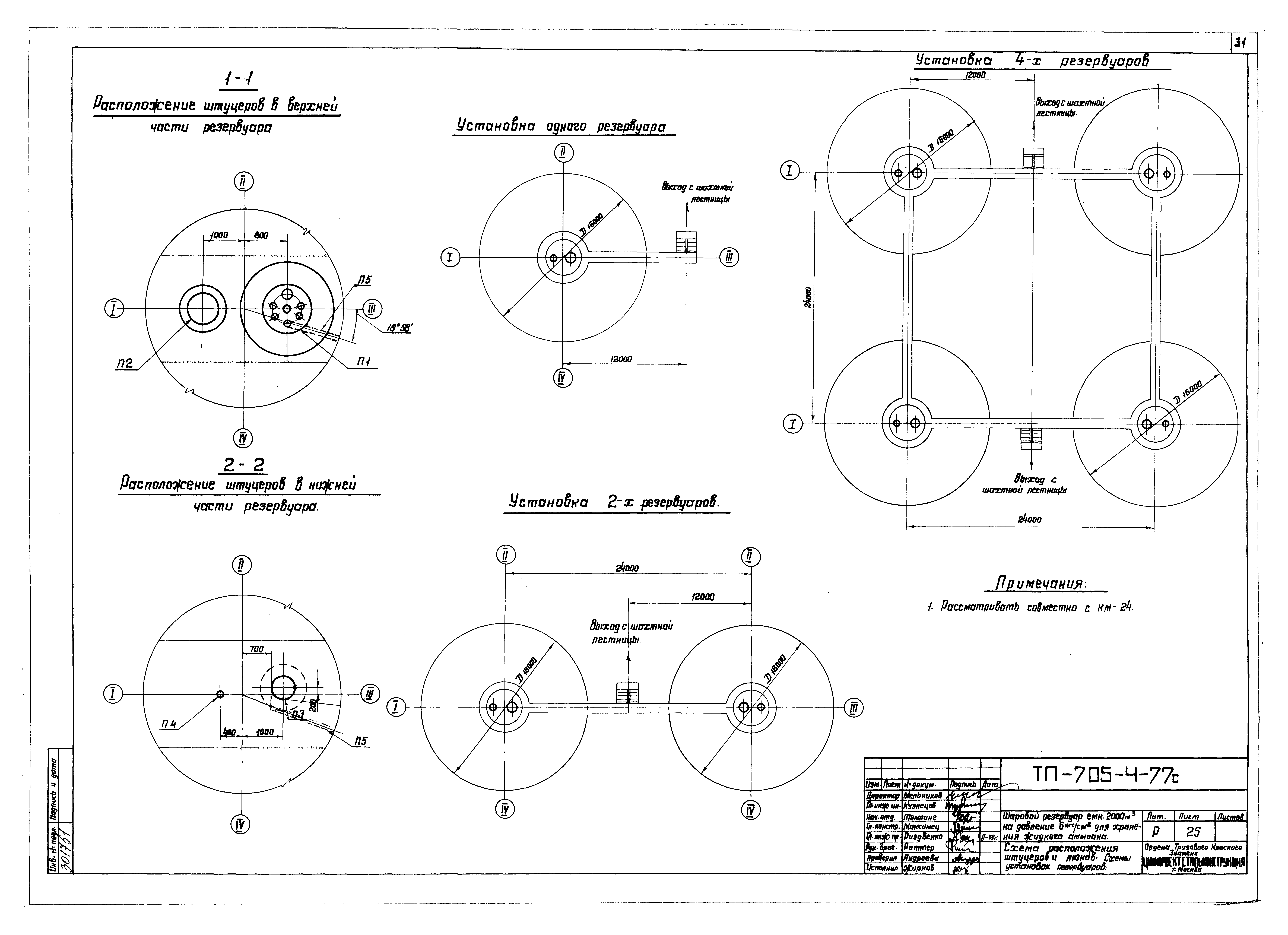
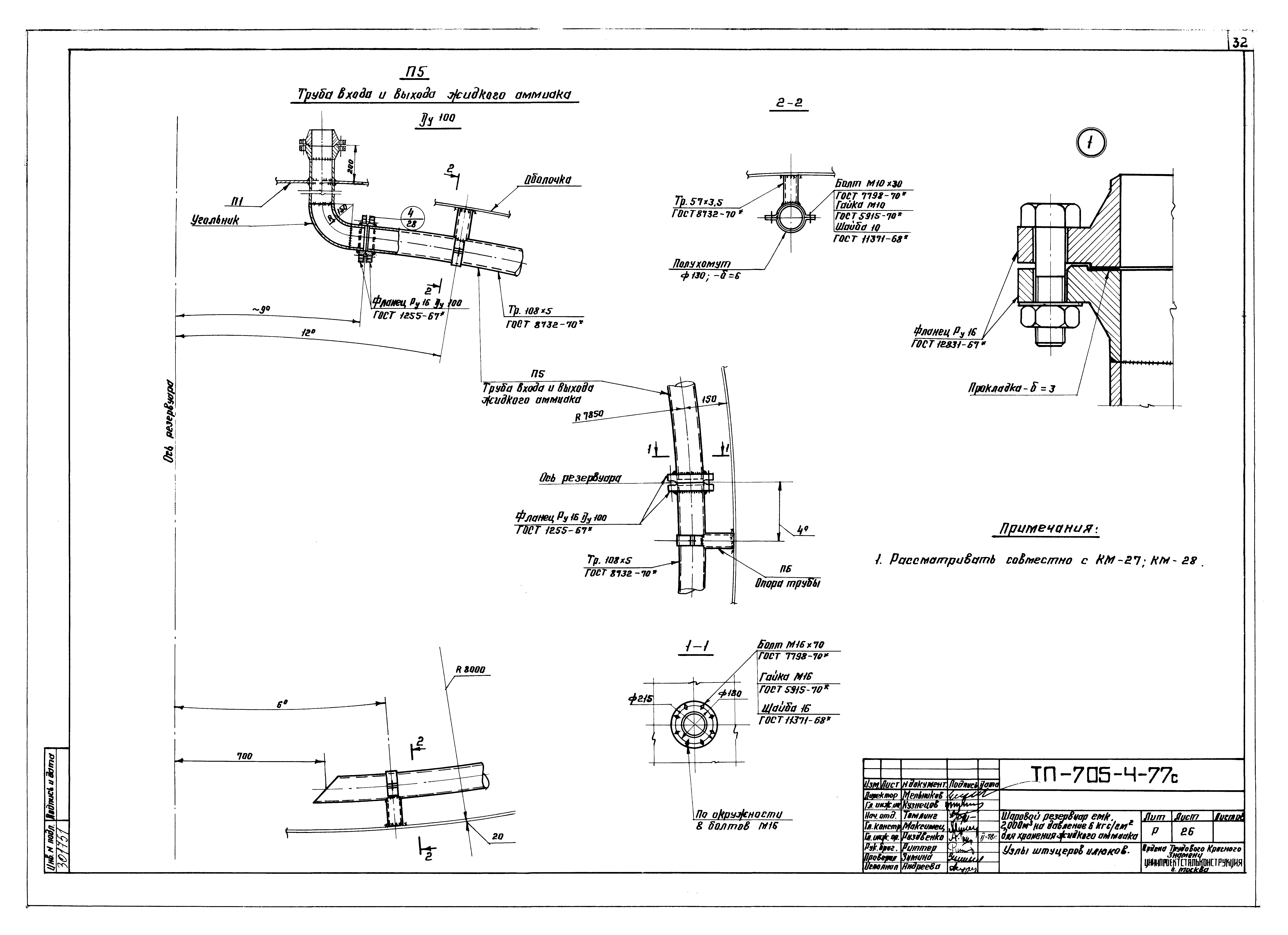
| Оглавление: | Содержание альбома Пояснительная записка Расчет конструкций Техническая спецификация стали. Установка одного резервуара Техническая спецификация стали. Установка двух резервуаров Техническая спецификация стали. Установка четырех резервуаров Общий вид. Установка одного резервуара Общий вид. Установка двух резервуаров Общий вид. Установка четырех резервуаров Раскрой оболочки Опоры резервуара и узлы Шахтная лестница. Общий вид Шахтная лестница. Схема каркаса Шахтная лестница. Узлы Шахтная лестница. Марши и площадки Шахтная лестница. Детали узлов Кольцевая и переходная площадки. Установка одного и двух резервуаров Кольцевая и переходная площадки. Установка четырех резервуаров Подъемные устройства Смотровая лестница. Общий вид Смотровая лестница. Разрезы и узлы Схема расположения штуцеров и люков. Экспликация штуцеров и люков Схема расположения штуцеров и люков. Схемы установок резервуаров Узлы штуцеров и люков План анкерных болтов и нагрузки на фундамент План анкерных болтов и нагрузки на фундамент. Таблица нагрузок План анкерных болтов и нагрузки на фундамент Опоры резервуара и узлы. Сейсмика |
| Разработан: | ЦНИИпроектстальконструкция |
| Утверждён: | 27.12.1978 Минхимпром (16-4-47/1370) |






































