Скачать Типовой проект 707-1-8 Альбом II. Стальные конструкции и антикоррозийная защитаДата актуализации: 01.01.2021
|
| Обозначение: | Типовой проект 707-1-8 |
| Обозначение англ: | 707-1-8 |
| Статус: | действует |
| Название рус.: | Альбом II. Стальные конструкции и антикоррозийная защита |
| Дата добавления в базу: | 01.09.2013 |
| Дата актуализации: | 01.01.2021 |
| Дата введения: | 28.10.1976 |
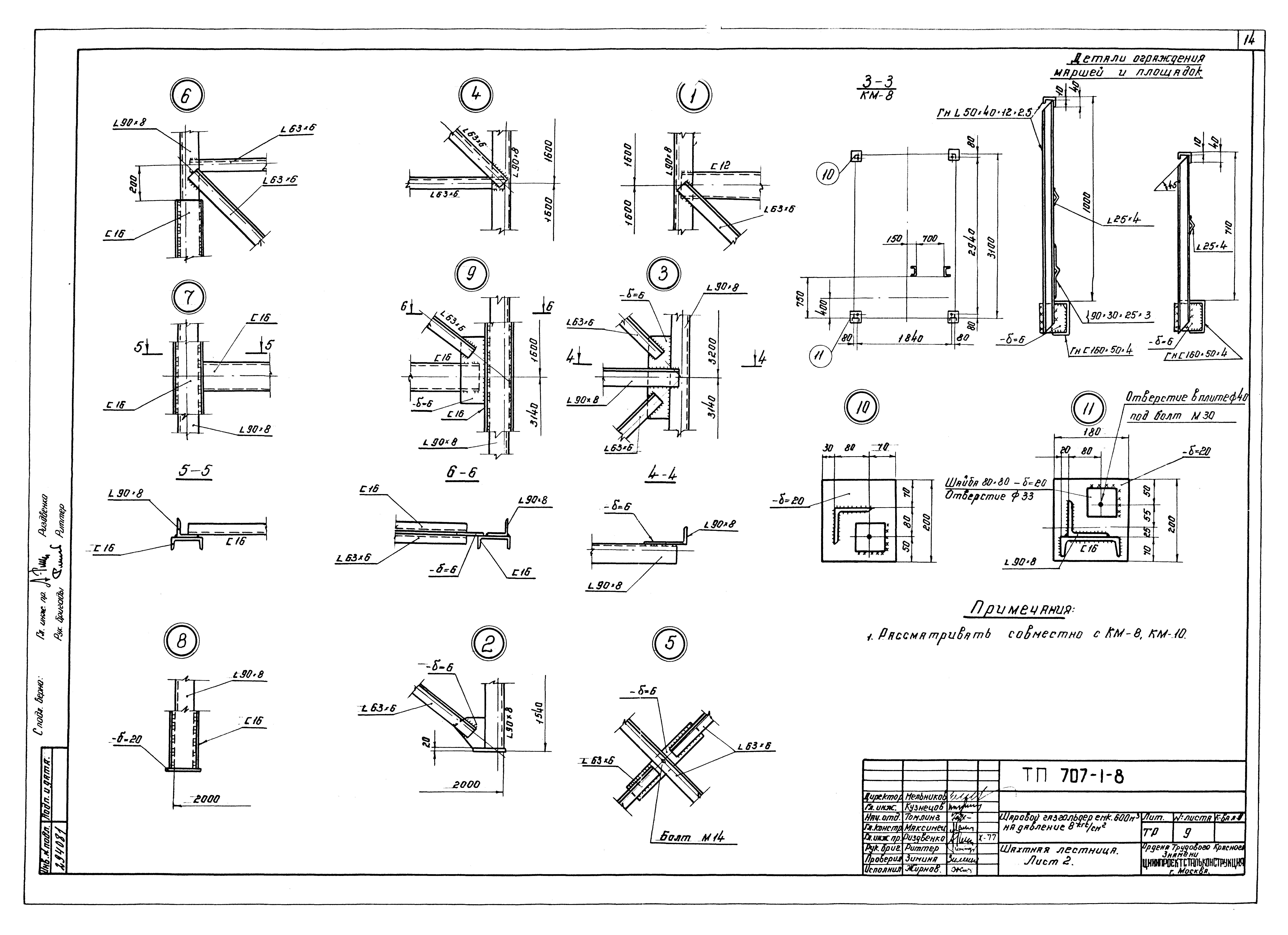
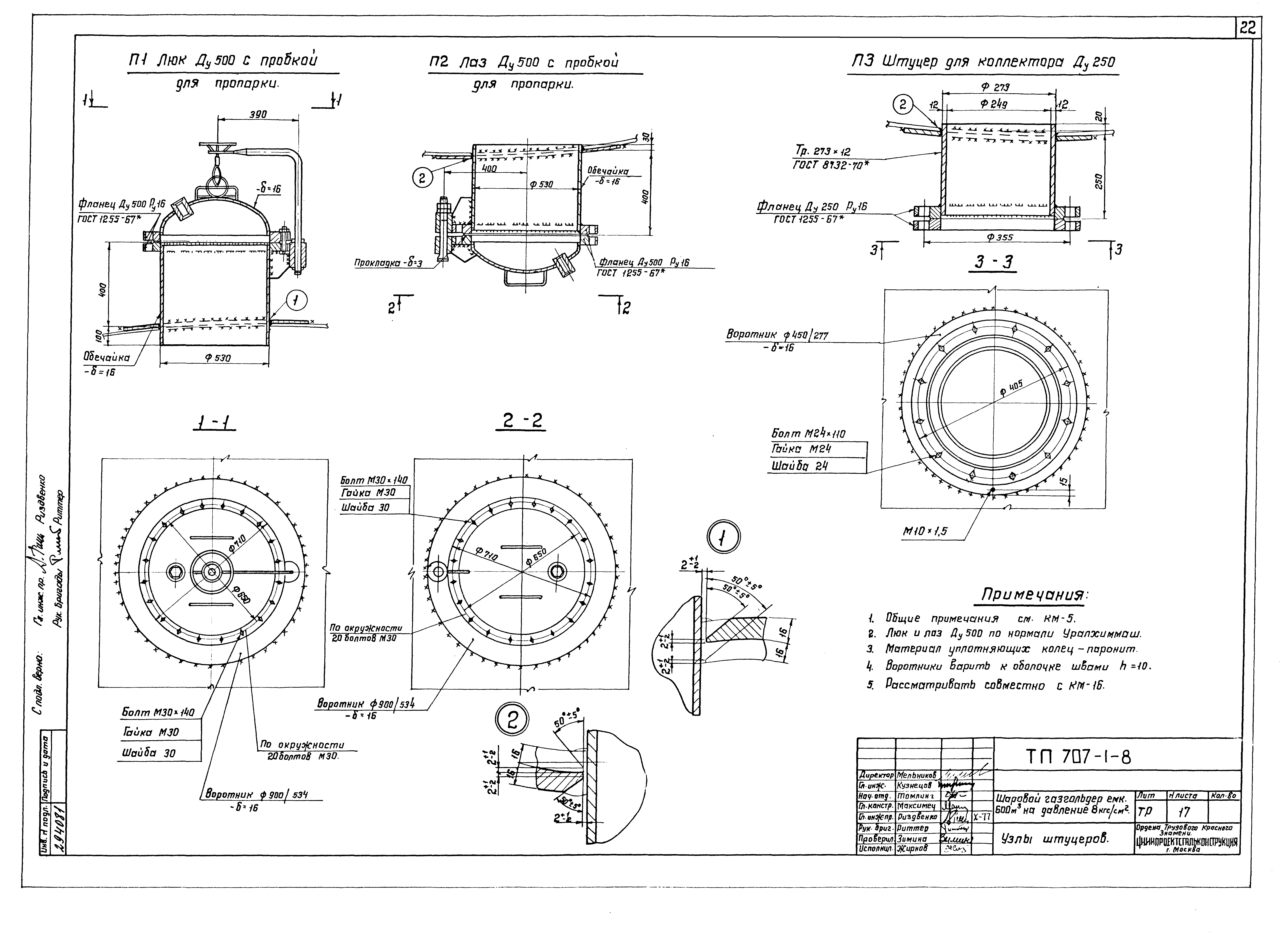
| Оглавление: | Содержание альбома Пояснительная записка Расчеты Техническая спецификация стали Общий вид газгольдера Раскрой оболочки Опоры газгольдера и узлы Шахтная лестница Переходная площадка Смотровая лестница Схема расположения штуцеров и люков Узлы штуцеров План анкерных болтов и нагрузки на фундамент Антикоррозийная защита |
| Разработан: | ЦНИИпроектстальконструкция |
| Утверждён: | 28.10.1976 Госстрой СССР (Государственный комитет Совета Министров СССР по делам строительства) (USSR Gosstroy 179) |




























