Скачать Типовой проект 503-1-47.86 Альбом I. Общая пояснительная записка. Технология производства. Архитектурные решения. Конструкции железобетонные. Конструкции металлическиеДата актуализации: 01.01.2021
|
| Обозначение: | Типовой проект 503-1-47.86 |
| Обозначение англ: | 503-1-47.86 |
| Статус: | не определен законодательством |
| Название рус.: | Альбом I. Общая пояснительная записка. Технология производства. Архитектурные решения. Конструкции железобетонные. Конструкции металлические |
| Дата добавления в базу: | 01.09.2013 |
| Дата актуализации: | 01.01.2021 |
| Дата введения: | 15.04.1986 |
| Дата окончания срока действия: | 30.06.2003 |
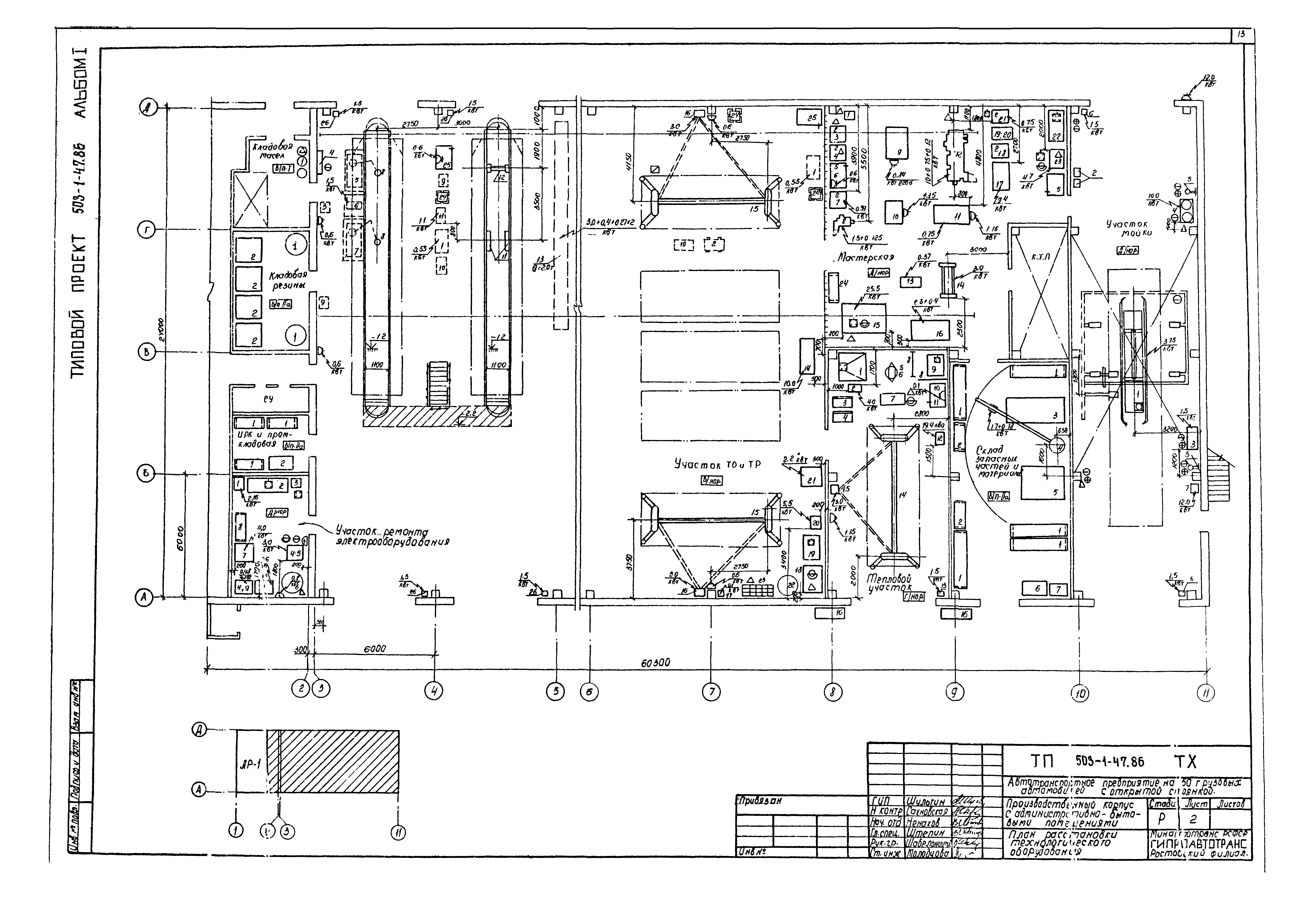
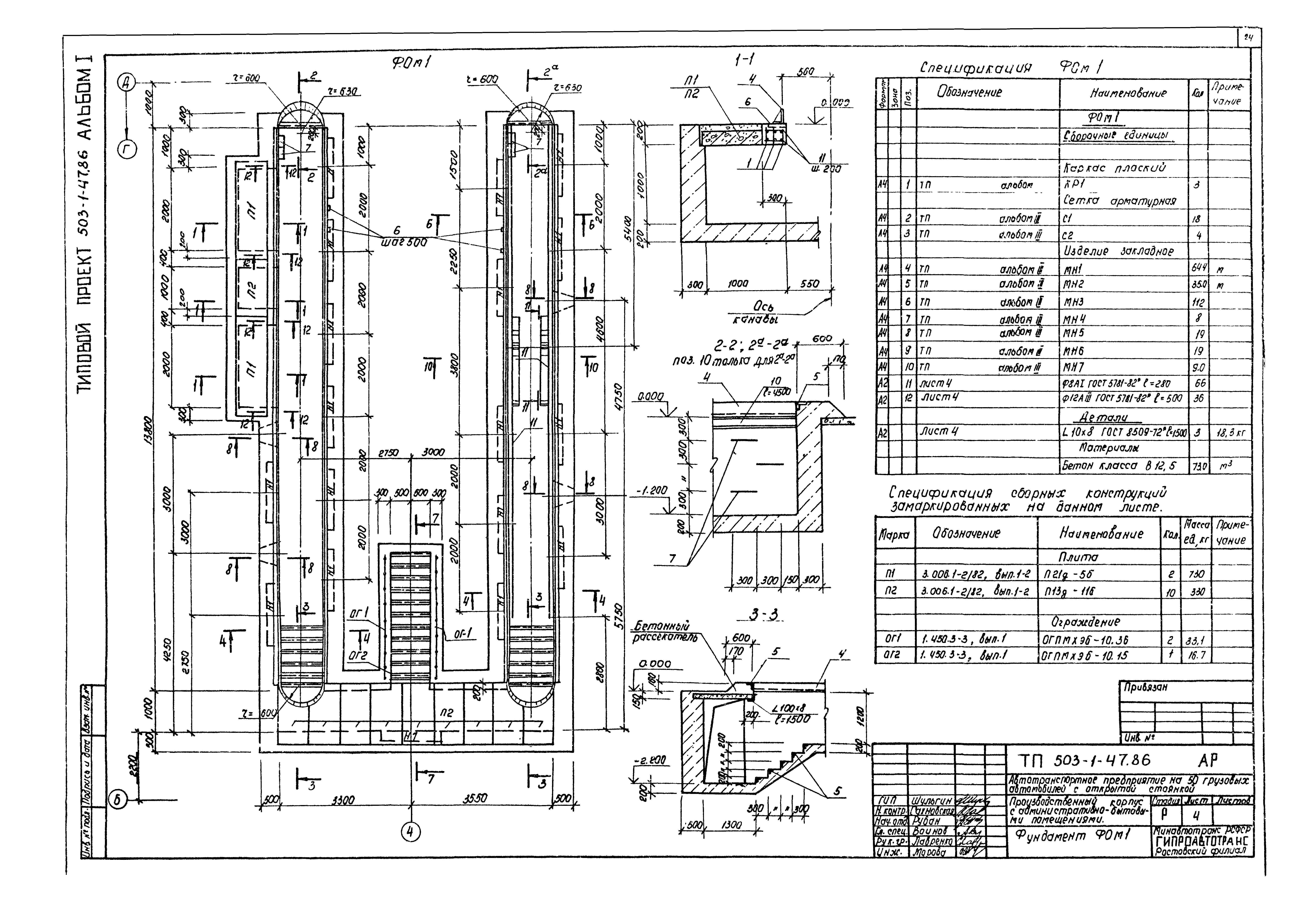
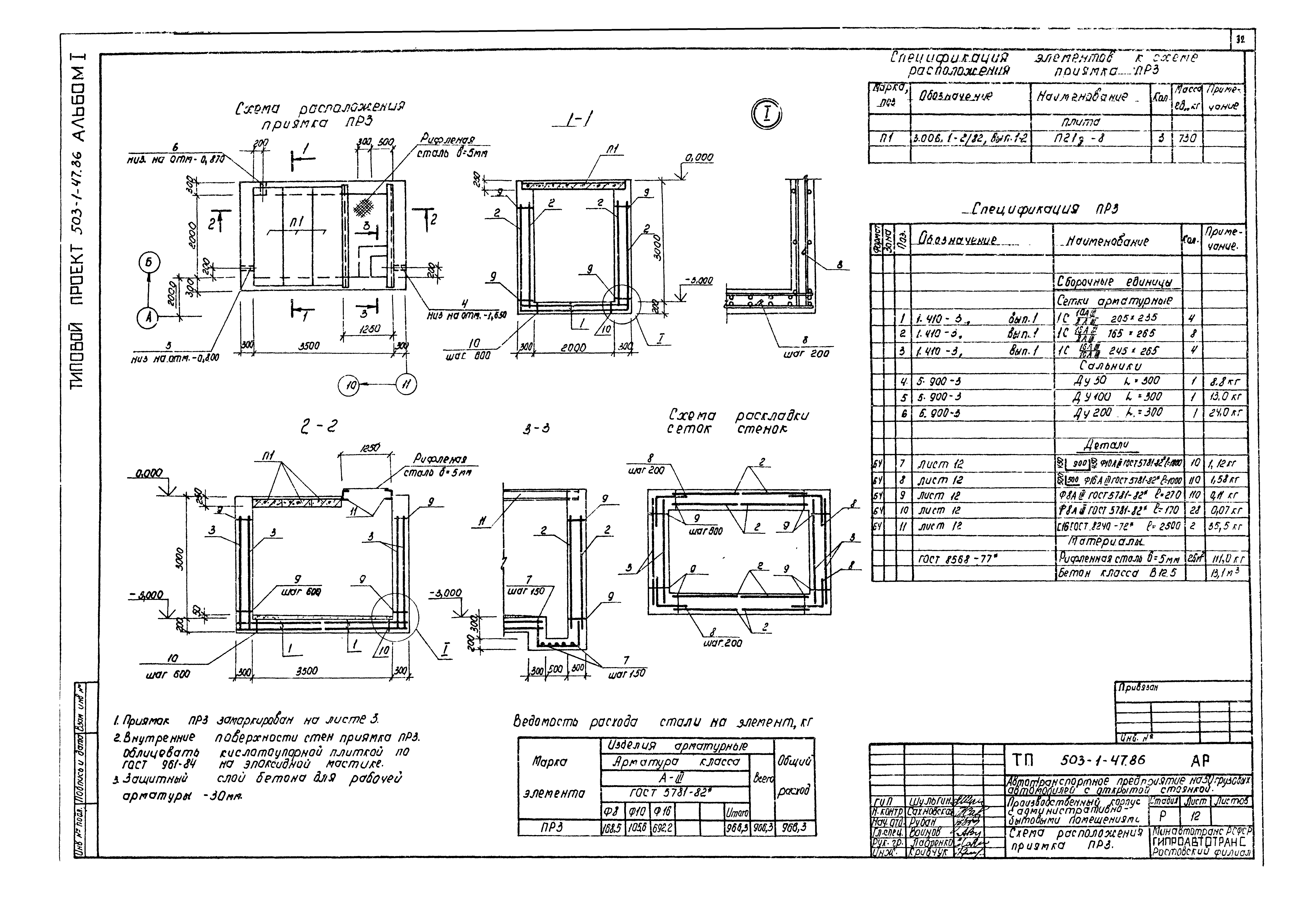
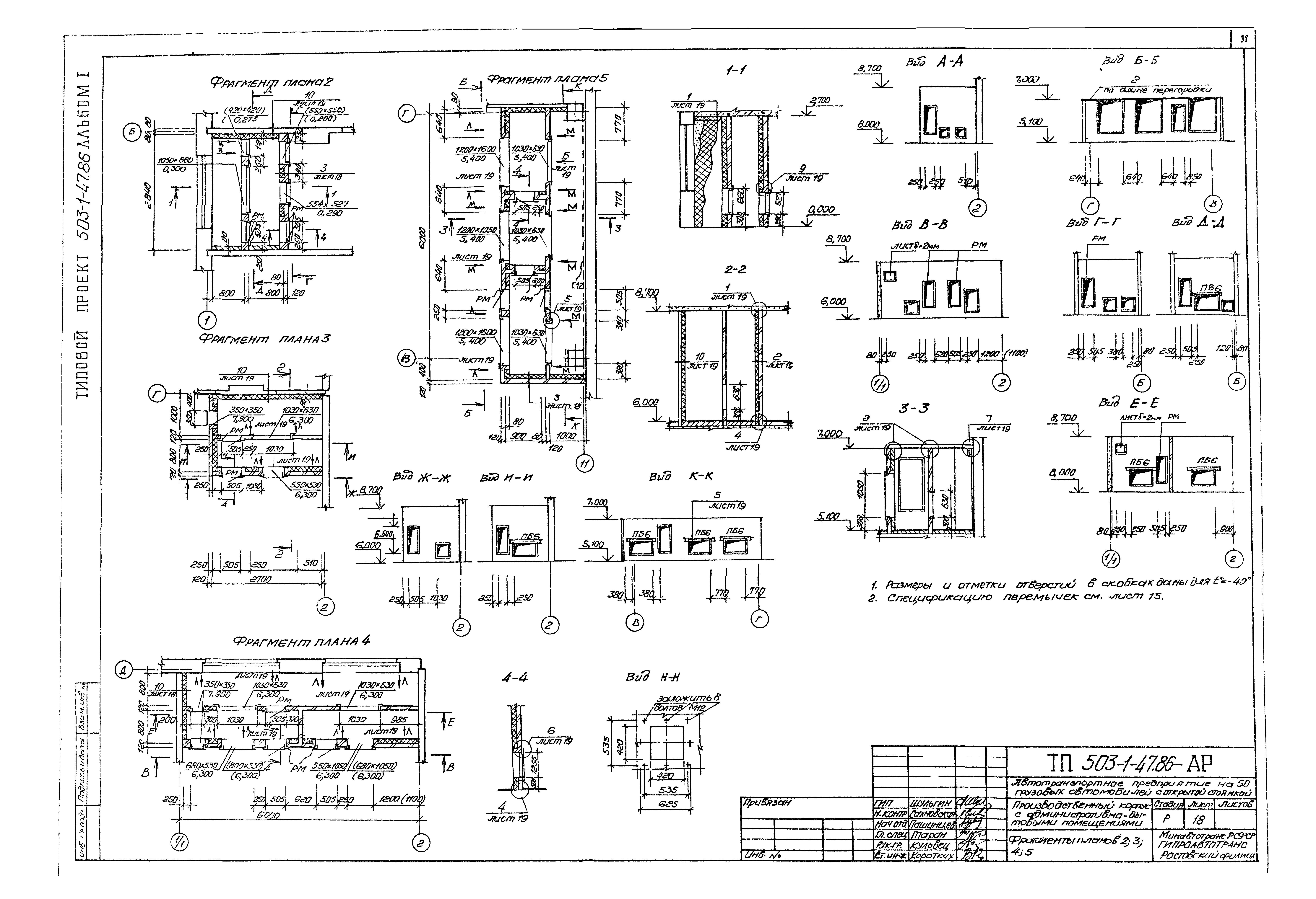
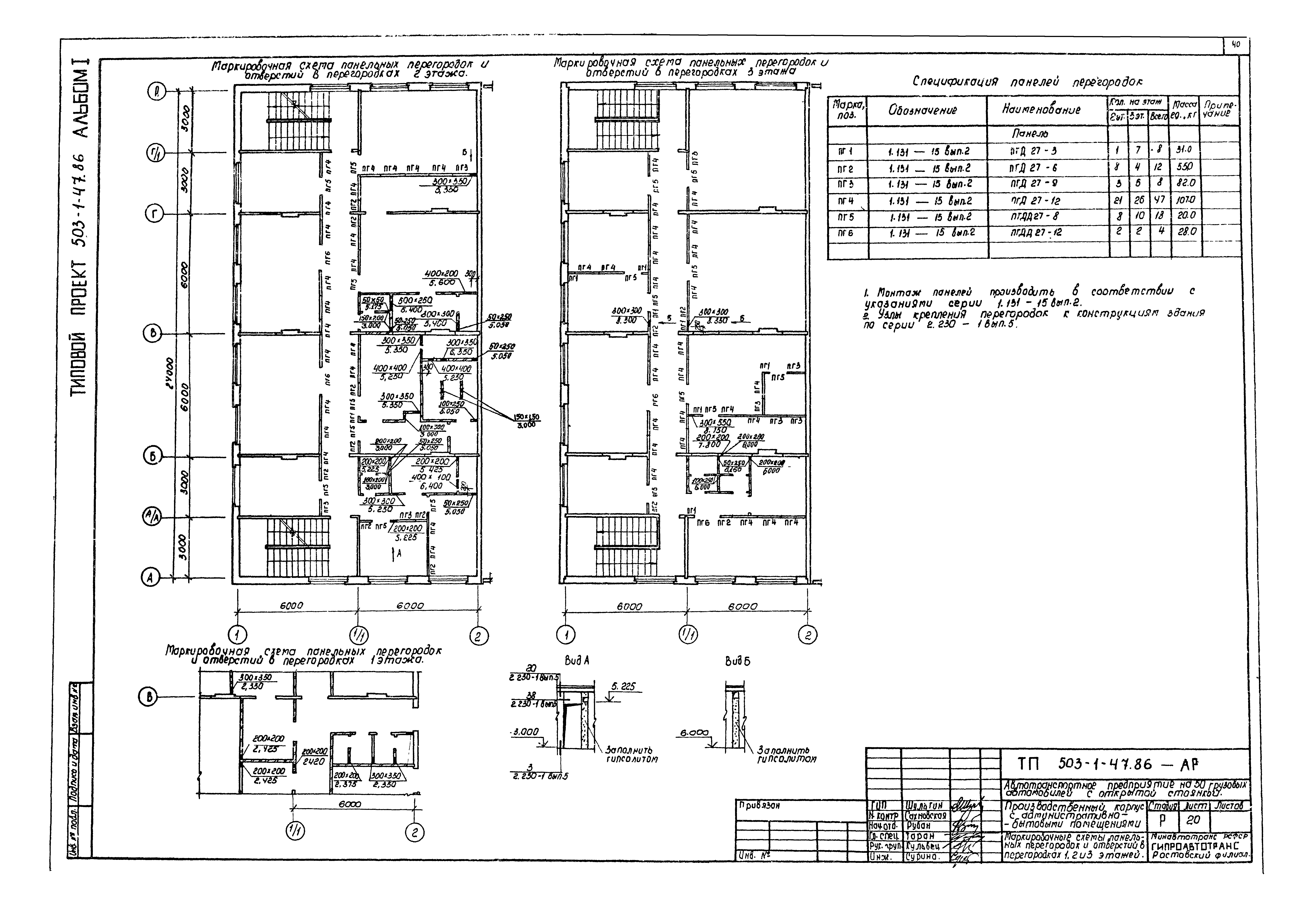
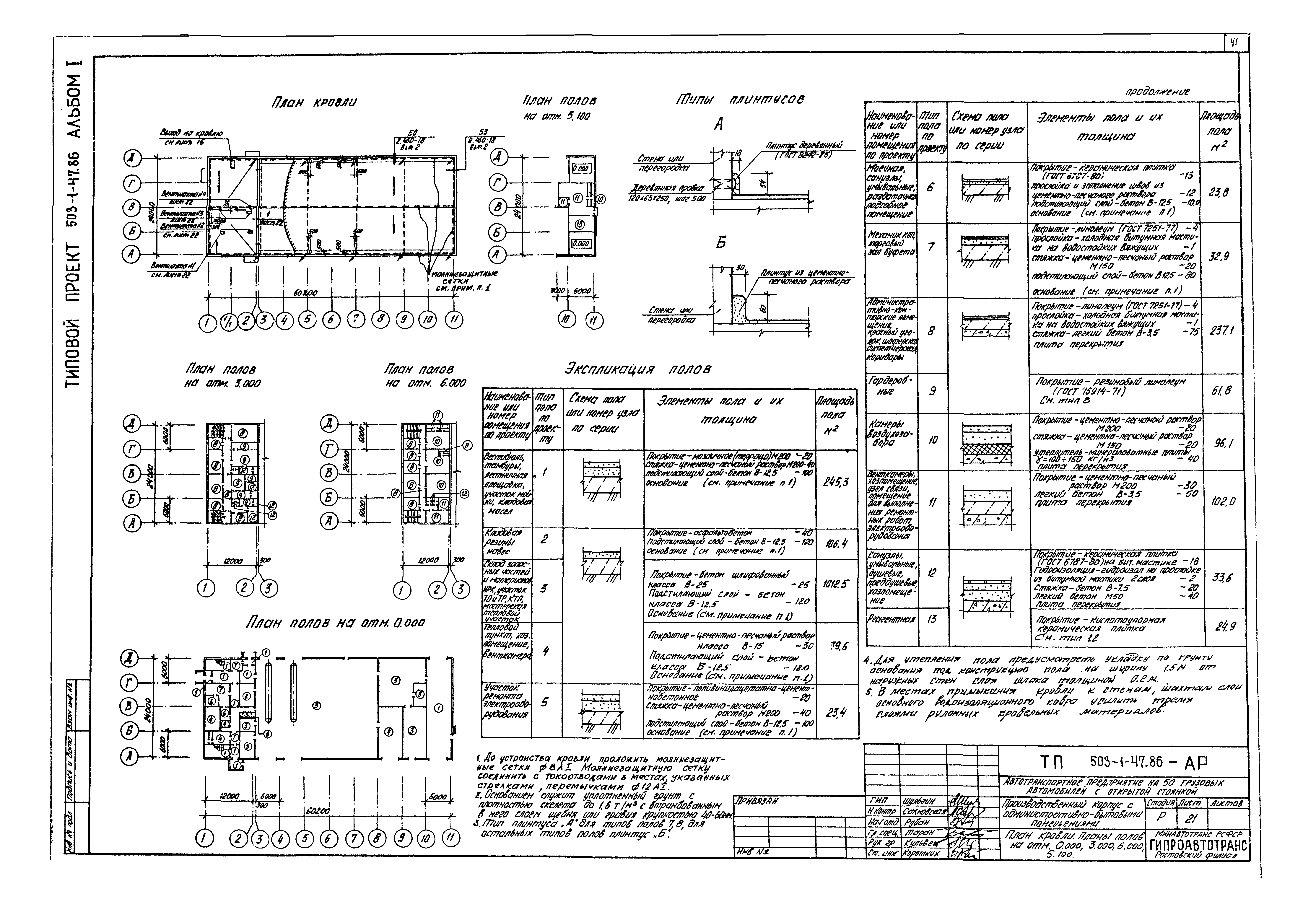
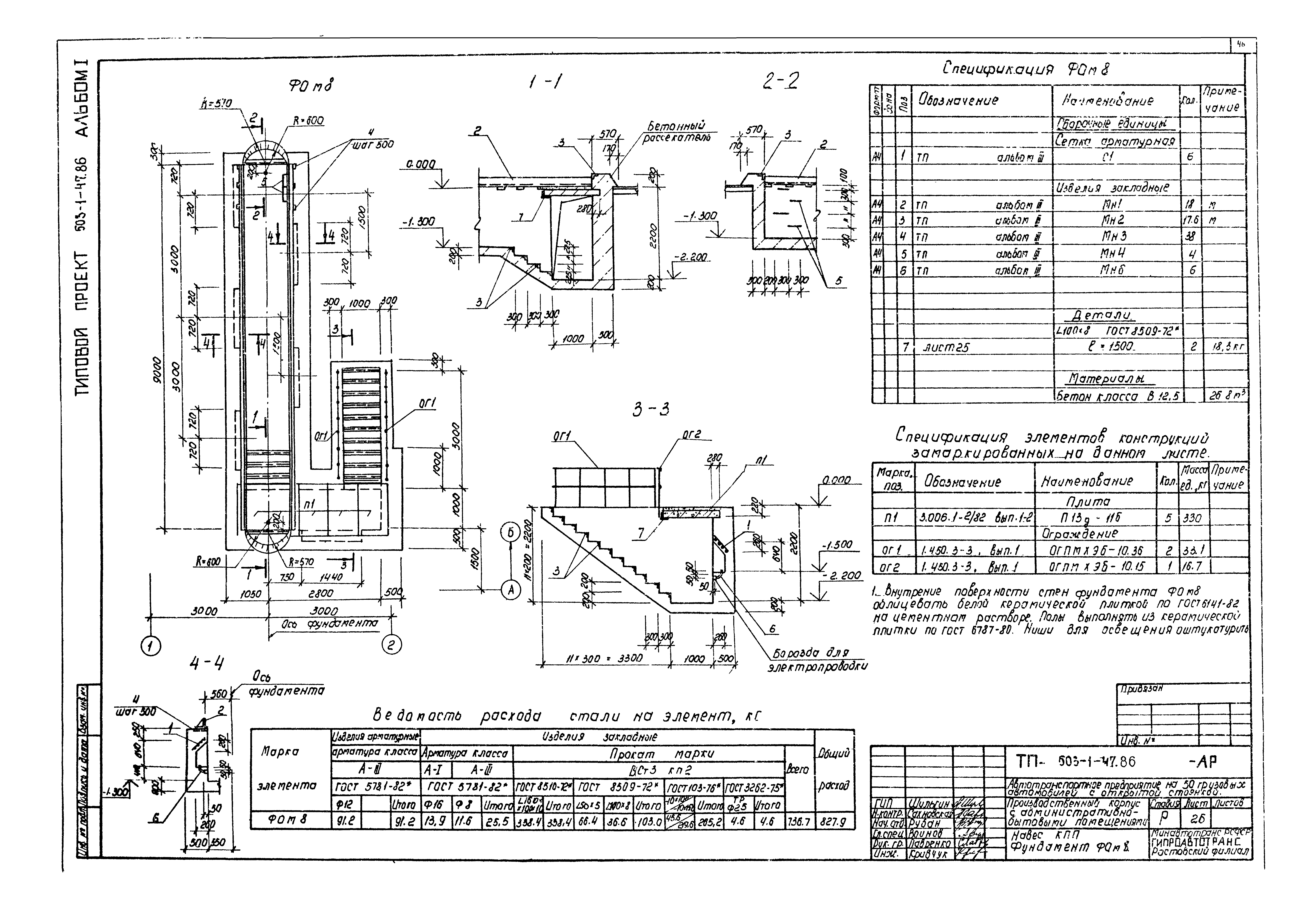
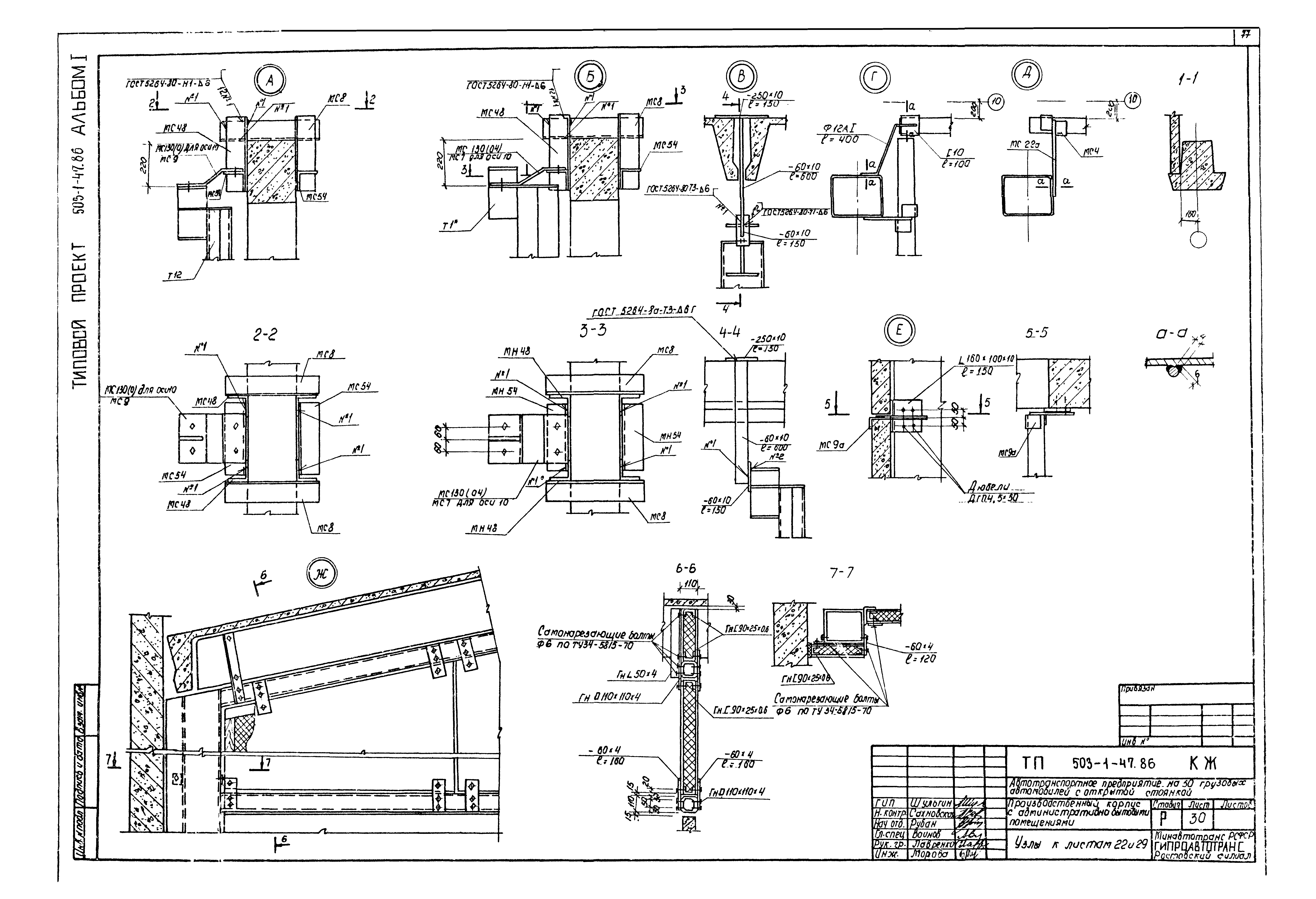
| Оглавление: | Содержание альбома Пояснительная записка Схема генерального плана Чертежи основного комплекта марки ТХ Общие данные План расстановки технологического оборудования Экспликация технологического оборудования План и схема разводки системы трубопроводов сжатого воздуха План и схема разводки системы маслопроводов Навес КПП. Ворота распашные 4000х2000. Общий вид Чертежи основного комплекта марки АР Общие данные Схема расположения каналов, приямков и фундаментов под оборудование Фундамент ФОМ1 Сечения 4-4 - 12-12 Фундаменты ФОМ2 - ФОМ5; ФОМ7 Фундамент ФОМ6 Каналы КЛ1, КЛ2 Каналы КЛ4, КЛ6, КЛ3, КЛ4 Схема расположения приямков КТП Схема расположения приямка ПР2 Схема расположения приямка ПР3 План на отм. 0.000 Фрагмент плана на отм. 0.000. План на отм. 3.000 План на отм. 6.000. Сечения План на отм. 5.100. Разрез 1-1 Фасады 1 - 11; А - Д; 11 - 1; Д - А. Разрез 2-2 Венткамеры. Фрагменты планов 2, 3, 4, 5 Венткамеры. Узлы 1 - 12 Маркировочные схемы панельных перегородок и отверстий в перегородках 1, 2 и 3 этажей План кровли. Планы полов на отм. 0.000; 3.000; 6.000; 5.100 Вентшахты №1 - 14. Сечения. Узлы Сетчатая перегородка. Перегородки душевых. Барьер. Виды А, Б Узлы 1 - 13 Навес над КПП. План, фасад, разрез. Схема раскладки АЦВ листов на кровле Навес КПП. Фундамент ФОМ8 Буфет на 12 посадочных мест. План на отм. 0.000 с расстановкой оборудования и подводом коммуникаций Чертежи основного комплекта марки КЖ Общие данные Схема расположения фундаментов между осями 1 - 2 Схема расположения фундаментов между осями 2 - 11 Сечения 1-1 - 6-6. Узлы I - III Схема расположения подбетонок в осях 3 - 11 Фундаменты ФМ1, ФМ2 Фундаменты ФМ3 - ФМ5 Фундаменты ФМ6, ФМ7 Фундаменты ФМ8, ФМ9 Фундаменты ФМ10, ФМ11 Схемы расположения наружных и внутренних стеновых панелей на отм. 0.000; 3.000 Схемы расположения наружных, внутренних, парапетных стеновых панелей на отм. 6.000; 9.000; 10.500 Сечения 3-3 - 9-9. Узел 1 Узел I Узлы II - IV Спецификация элементов к схемам расположения на листах 12, 13 Схемы расположения плит перекрытия на отм. 3.000; 6.000 Схема расположения плит покрытия Схема расположения лестниц Схемы расположения колонн, ригелей и ферм Сечения 3-3 - 8-8. Узлы 1, 2, 3, 4 Спецификация элементов к схемам расположения конструкций на листе 21 Схемы расположения плит покрытия и перекрытия на отм. 5.100 Спецификация элементов к схемам расположения конструкций на листе 24 Схема расположения панелей стен, стоек, насадок торцового фахверка по осям А, Д, 11 Спецификация элементов к схемам расположения панелей на листе 26 Схемы расположения панелей перегородок Узлы к листам 22 и 29 Спецификация элементов к схемам расположения перегородок на листе 29 Навес КПП. Схема расположения фундаментов, колонн, ригелей Очистные сооружения производственных стоков Камера с фильтром Чертежи основного комплекта марки КМ Общие данные Техническая спецификация металла Схема расположения путей подвесного крана Схема расположения лестницы ЛМ1 Схема расположения площадки МП1 Навес КПП. Схема расположения прогонов. Стойка С1 Монтажные схемы окон |
| Разработан: | Гипроавтотранс |
| Утверждён: | 15.04.1986 Минавтотранс РСФСР (Russian Federation Minavtotrans 9) |

























































































