Скачать Типовой проект 704-4-33.85 Альбом I. Технологические решения. Архитектурно-строительные решения. Отопление и вентиляция. Водопровод и канализация. Электротехнические решения. Связь и сигнализацияДата актуализации: 01.01.2021
|
| Обозначение: | Типовой проект 704-4-33.85 |
| Обозначение англ: | 704-4-33.85 |
| Статус: | не определен законодательством |
| Название рус.: | Альбом I. Технологические решения. Архитектурно-строительные решения. Отопление и вентиляция. Водопровод и канализация. Электротехнические решения. Связь и сигнализация |
| Дата добавления в базу: | 01.09.2013 |
| Дата актуализации: | 01.01.2021 |
| Дата введения: | 17.12.1984 |
| Дата окончания срока действия: | 30.06.2003 |
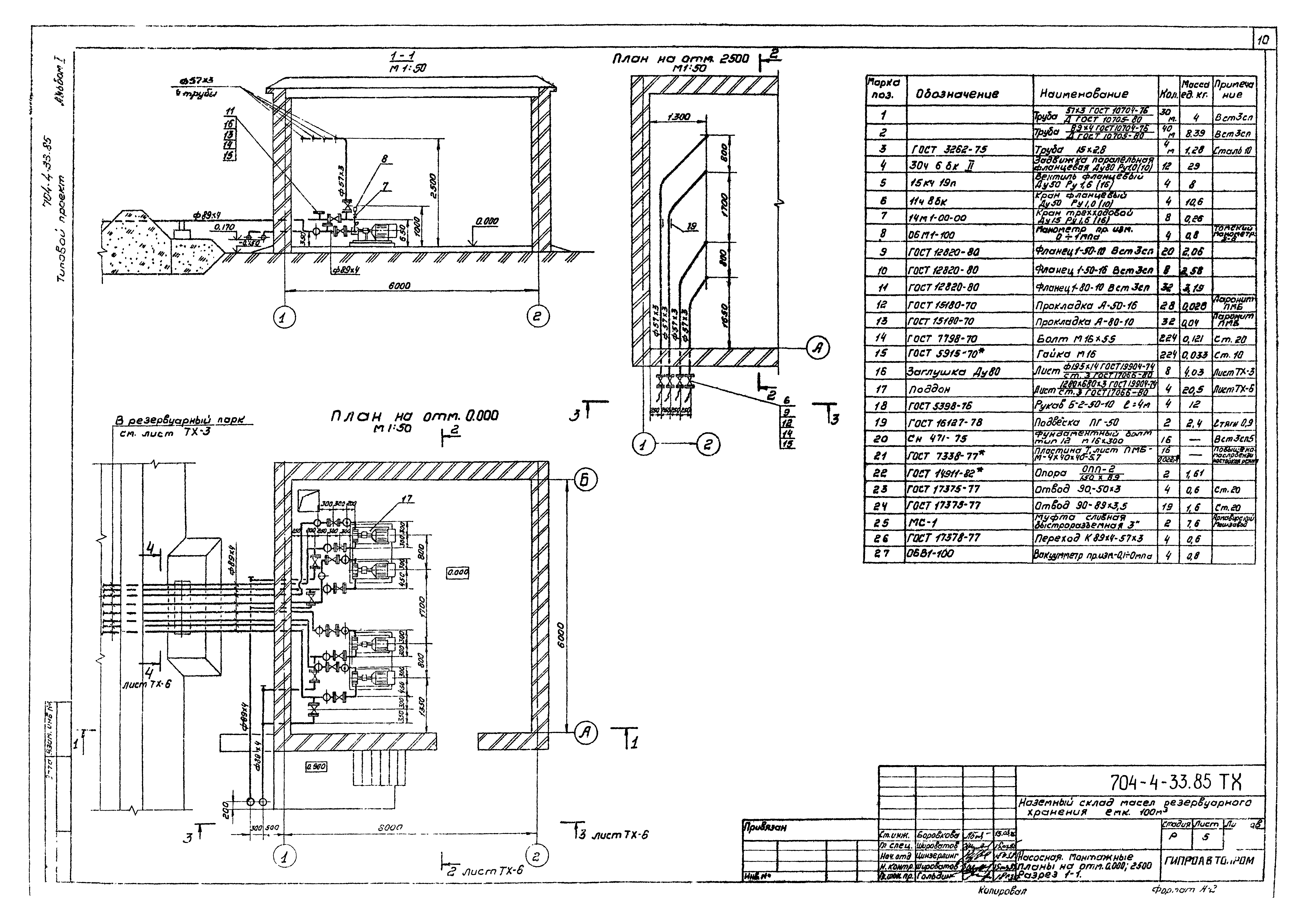
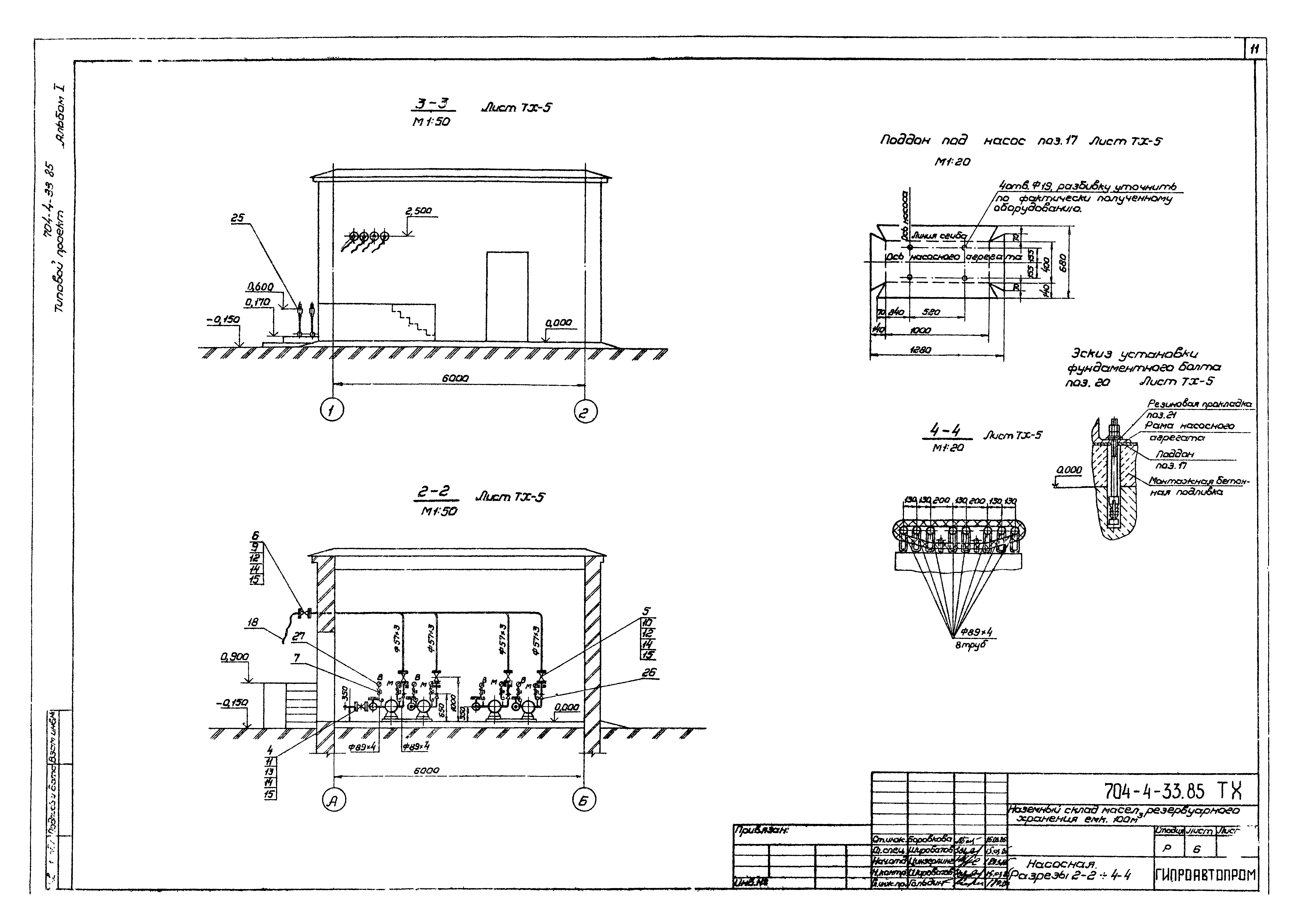
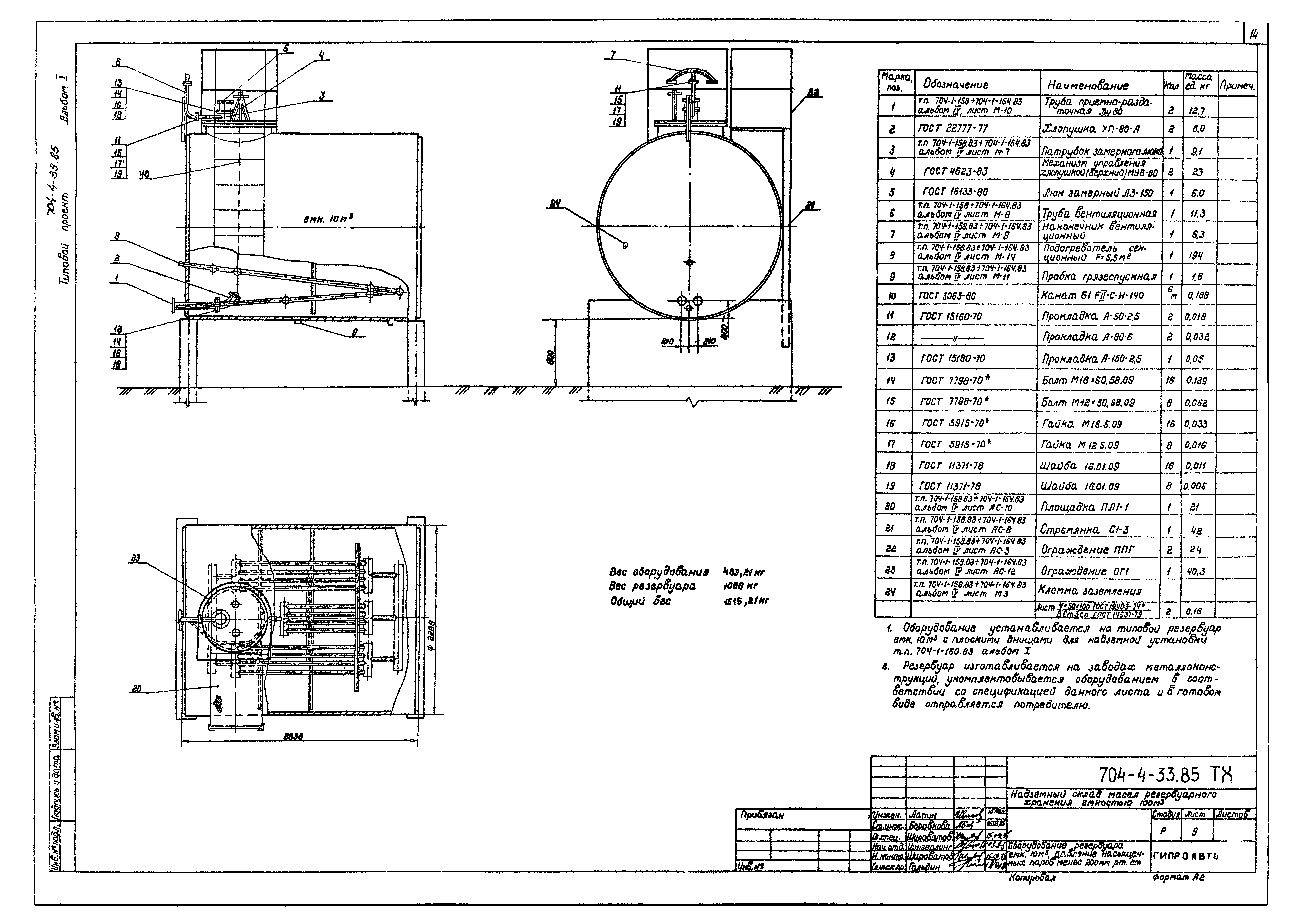
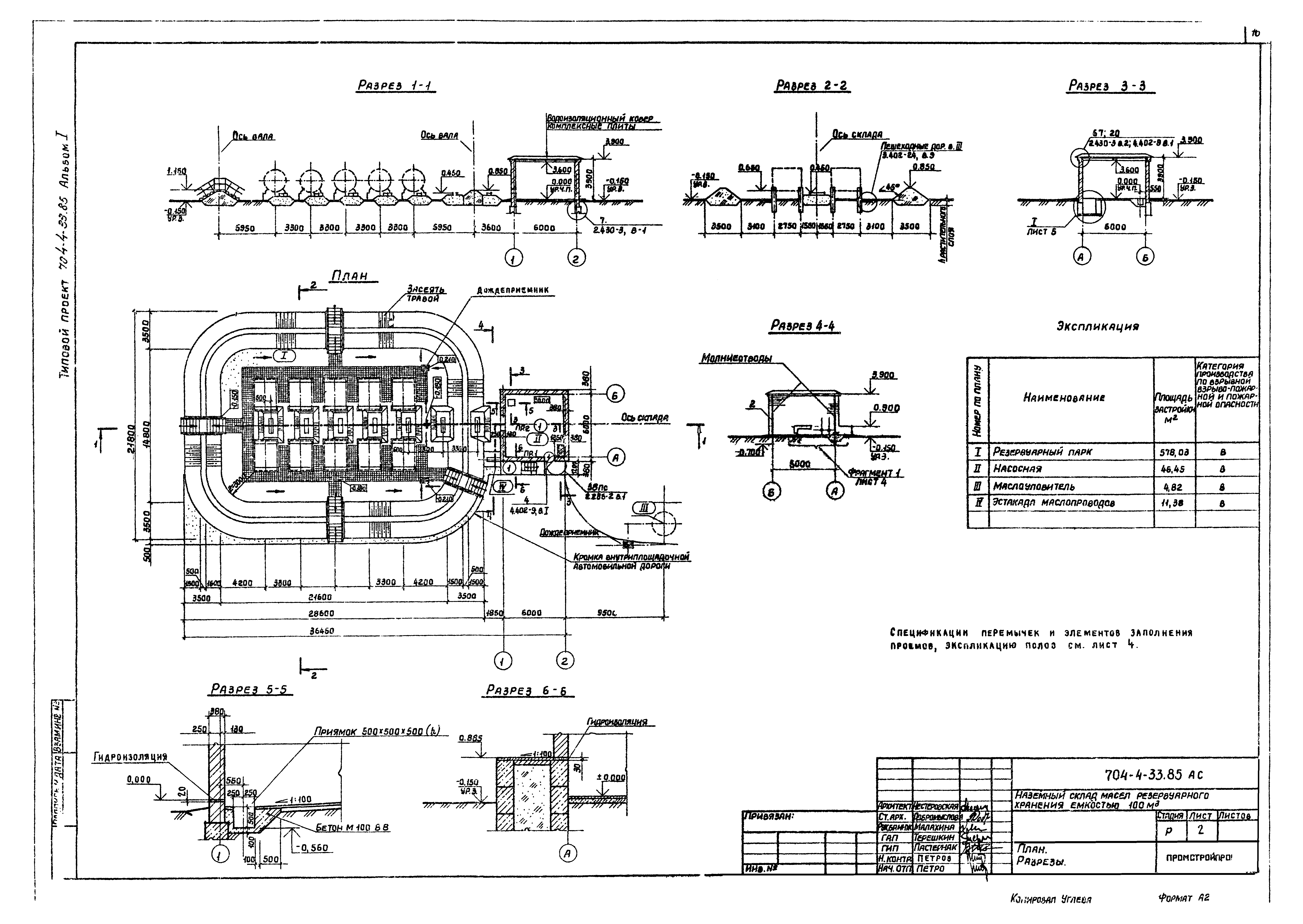
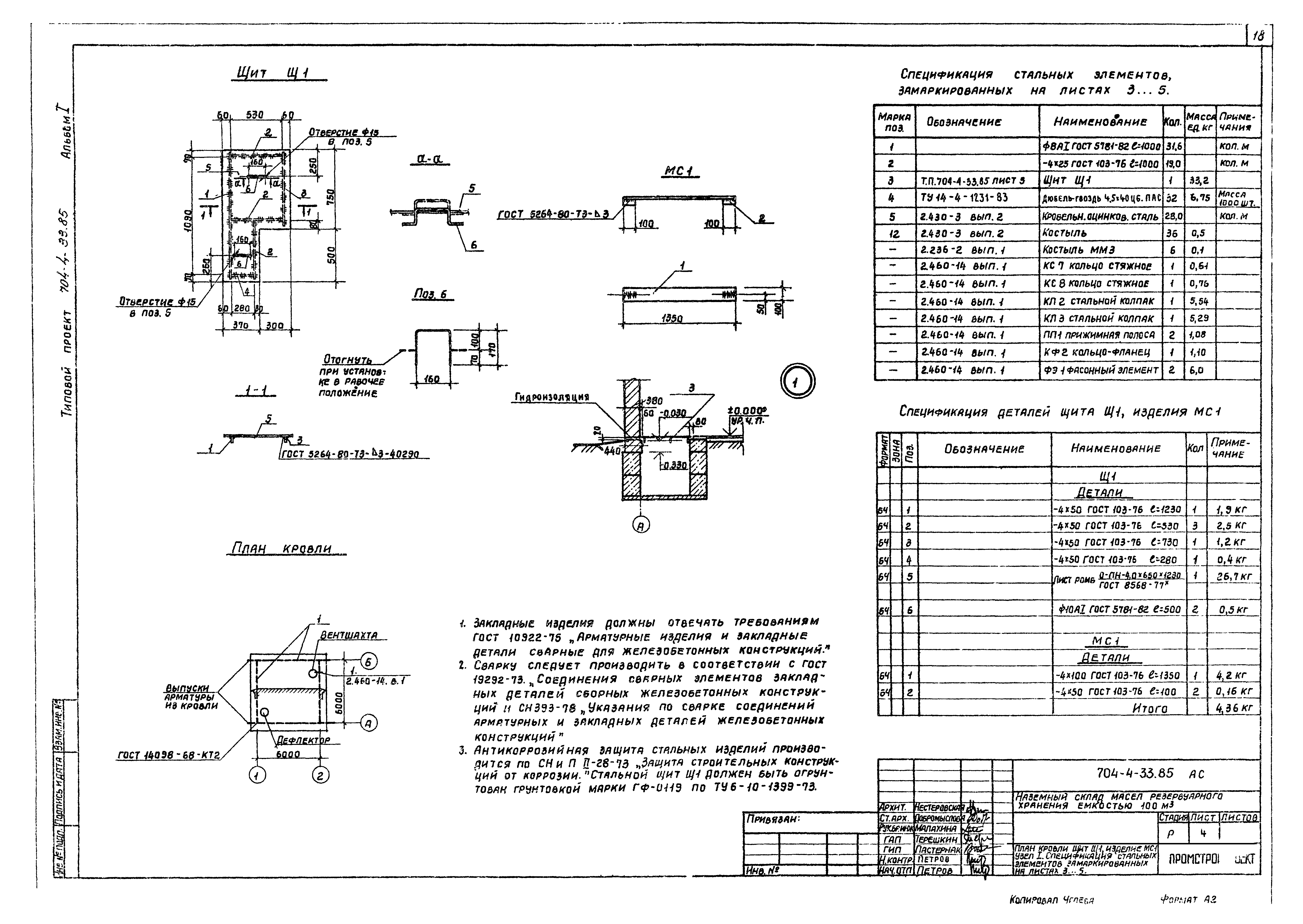
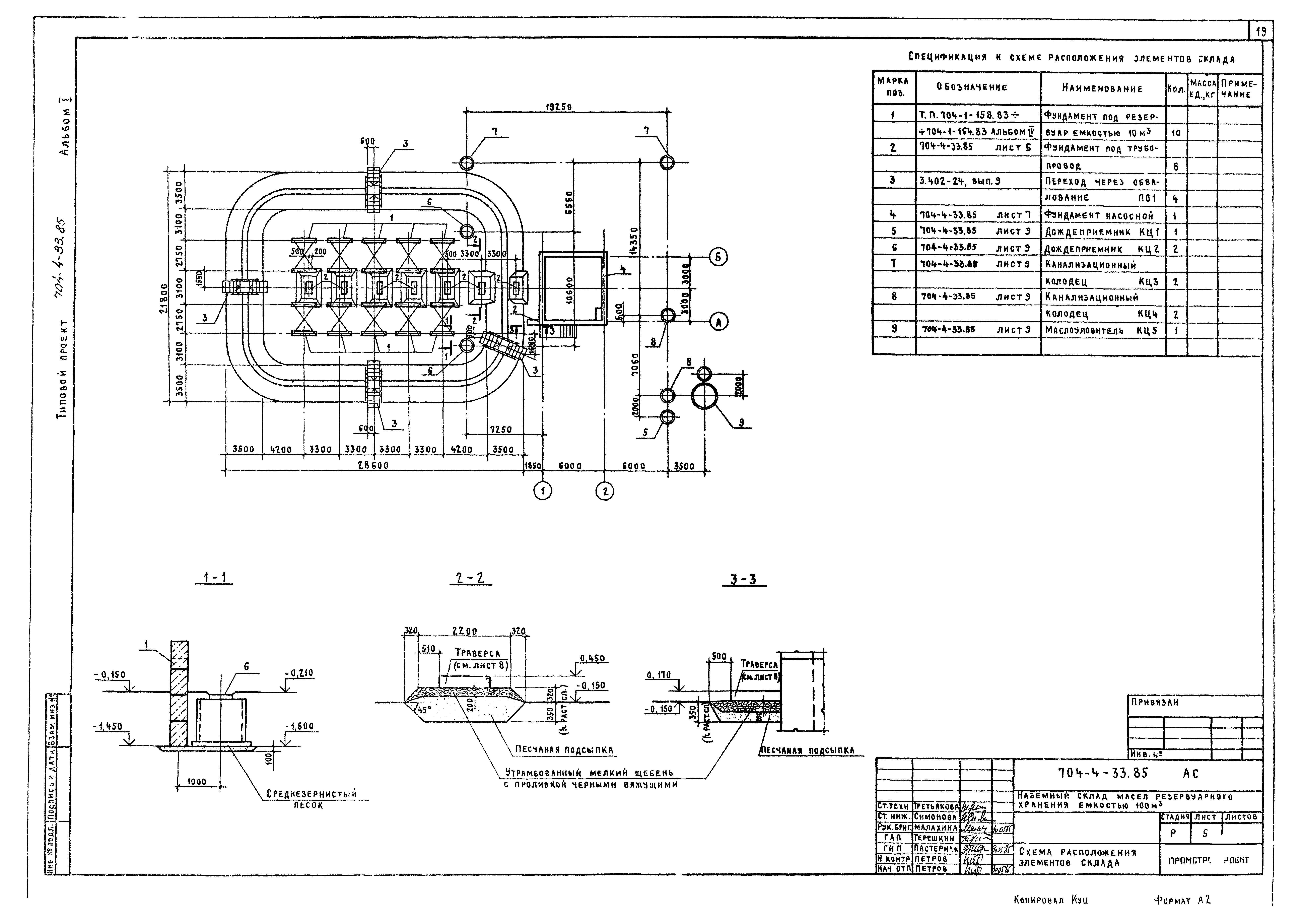
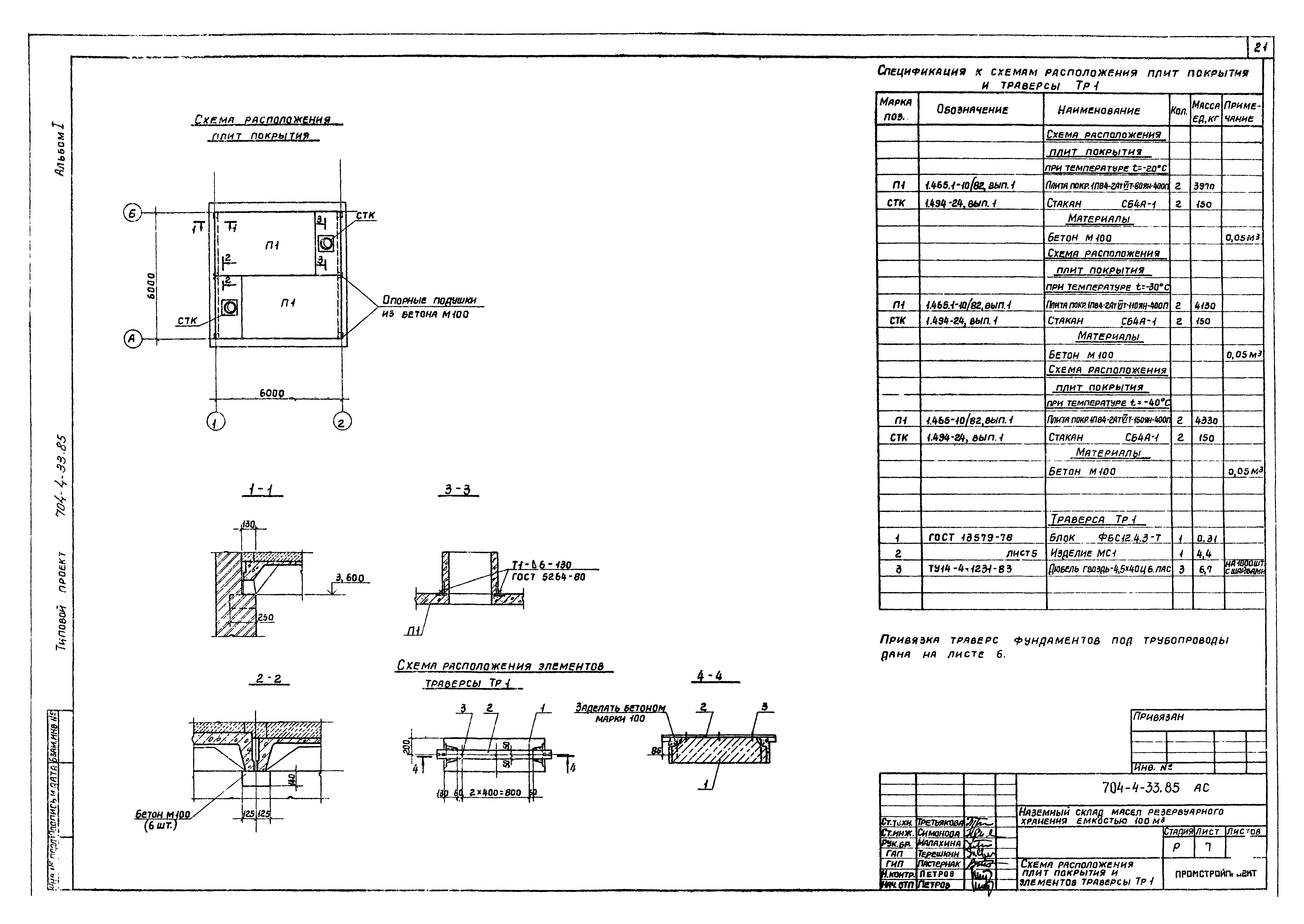
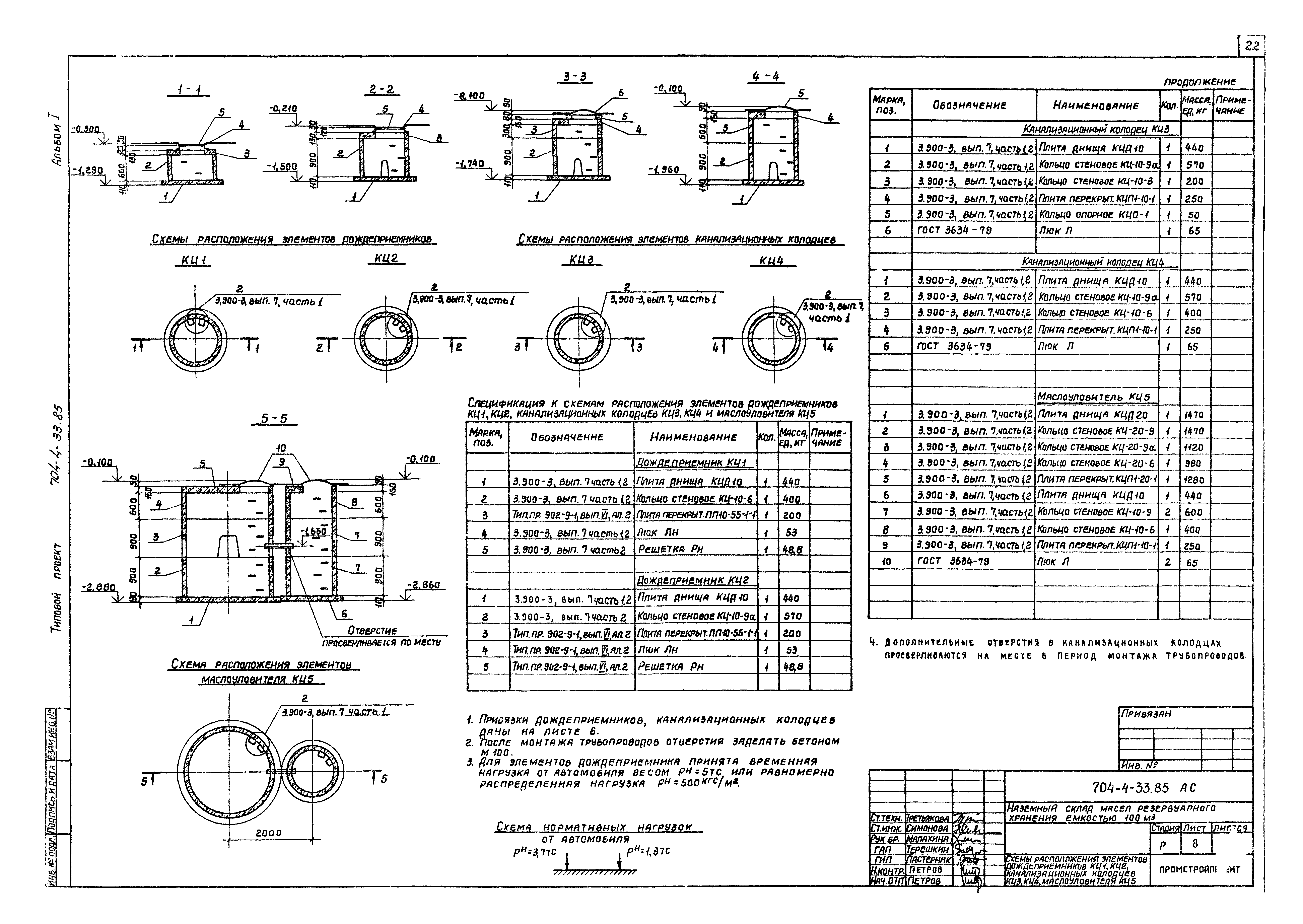
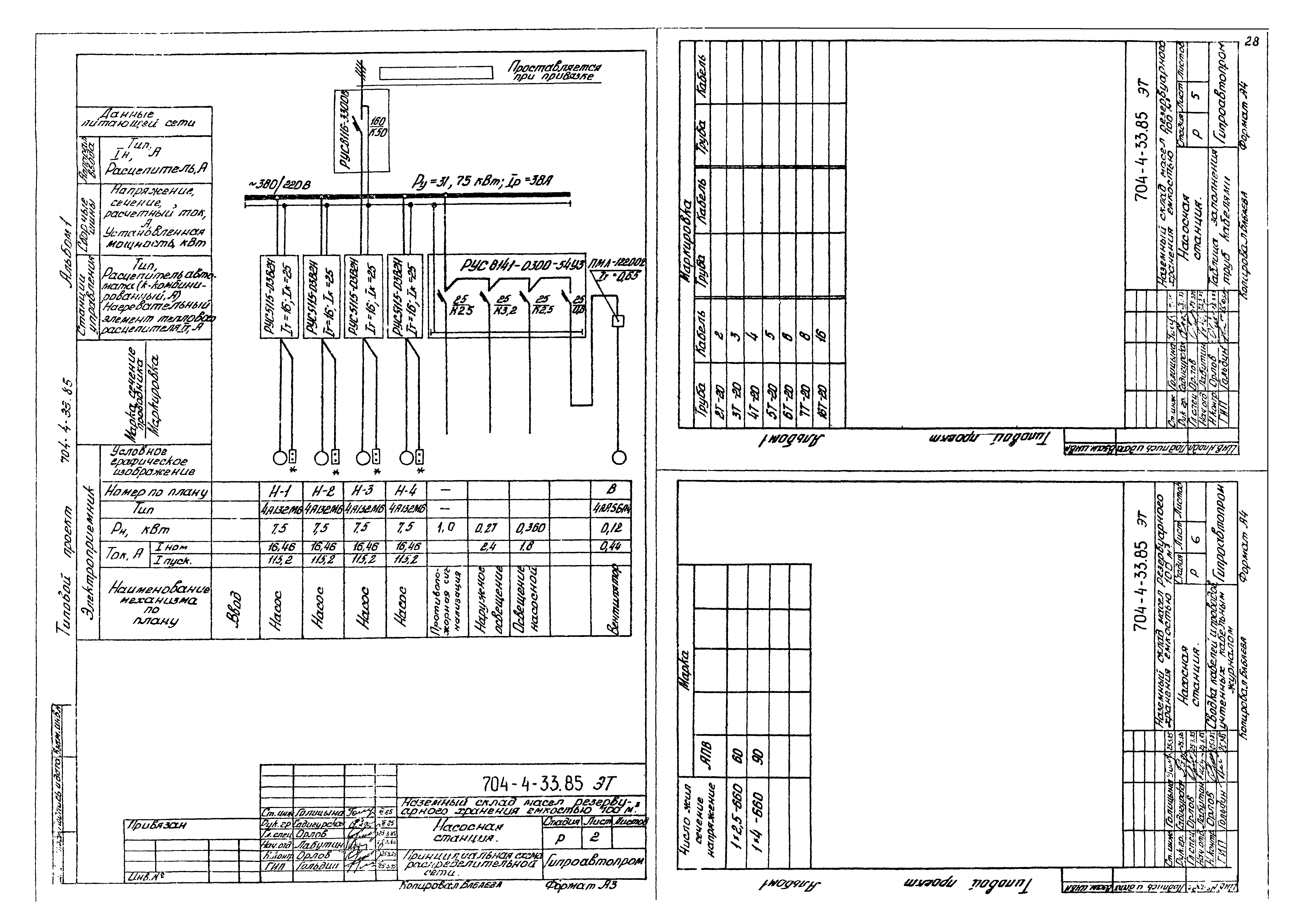
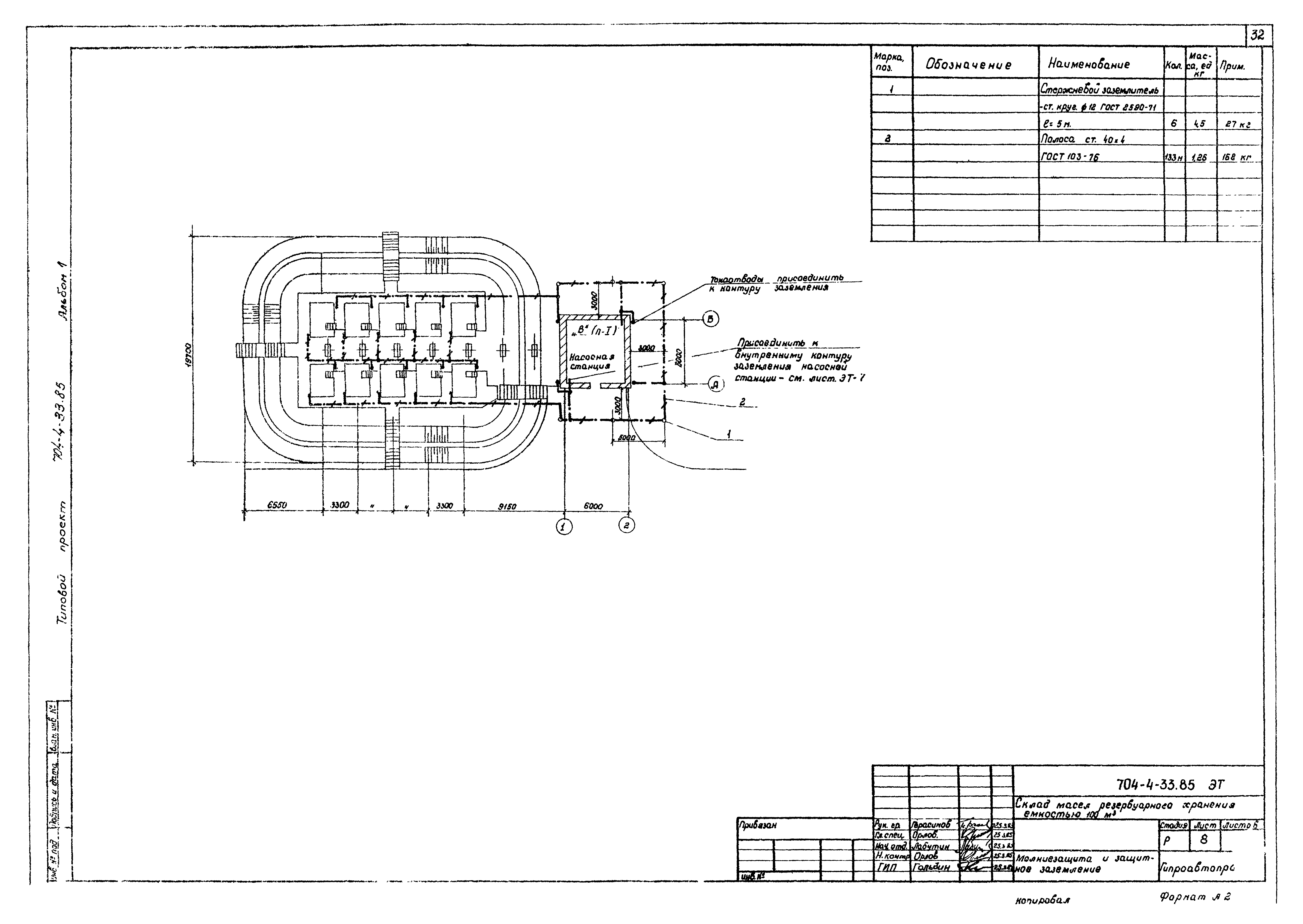
| Оглавление: | Содержание альбома Пояснительная записка Технологические решения Общие данные План склада. Разрезы 1-1, 2-2 Резервуарный парк. Монтажный план Резервуарный парк. Разрезы 1-1, 2-2. Узел А Насосная. Монтажные планы на отм. 0.000; 2.500. Разрез 1-1 Насосная. Разрезы 2-2 - 4-4 Технологическая схема трубопроводов Технологическое теплоснабжение. План. Схема Оборудование резервуара емкостью 10 куб. м. Давление насыщенных паров менее 200 мм ртутного столба Архитектурно-строительные решения Общие данные План. Разрезы Фасады. Экспликация полов. Ведомости перемычек и проемов дверей. Спецификации. Фрагменты 1, 2 План кровли. Щит Щ1, изделие МС1, узел 1. Спецификация стальных элементов, замаркированных на листах 3…5 Схема расположения элементов склада Схема расположения фундаментных блоков и ступеней насосной Схема расположения плит покрытия и элементов траверсы Тр1 Схема расположения элементов дождеприемников КЦ1, КЦ2, канализационных колодцев КЦ3, КЦ4 и маслоуловителя КЦ5 Отопление и вентиляция Общие данные Насосная. План на отм. 0.000. разрез 1-1. Схема системы отопления. Схема системы В1 Водопровод и канализация Общие данные. План сетей К2 Профили сетей К2. Маслоуловитель Электротехнические решения Общие данные Принципиальная схема распределительной сети Принципиальные схемы управления двигателями вентилятора, насосов Кабельный журнал Таблица заполнения труб кабелями Сводка кабелей и проводов, учтенных кабельным журналом Размещение электрооборудования и прокладка труб электропроводки Молниезащита и защитное заземление Наружное освещение. Освещение насосной станции 1Щ. Таблица технических данных 1Щ. Сборочный чертеж 1Щ. Панели 1 - 3. Схема электрическая соединений 1Щ. Таблица перечня надписей 1Щ. Принципиальная электрическая схема 1Щ. Каркас. Общий вид Связь и сигнализация Общие данные План сетей автоматической пожарной сигнализации и телефонной сети. Скелетная схема |
| Разработан: | Гипроавтопром Промстройпроект |
| Утверждён: | 17.12.1984 Минавтопром СССР (USSR Minavtoprom 5) |







































