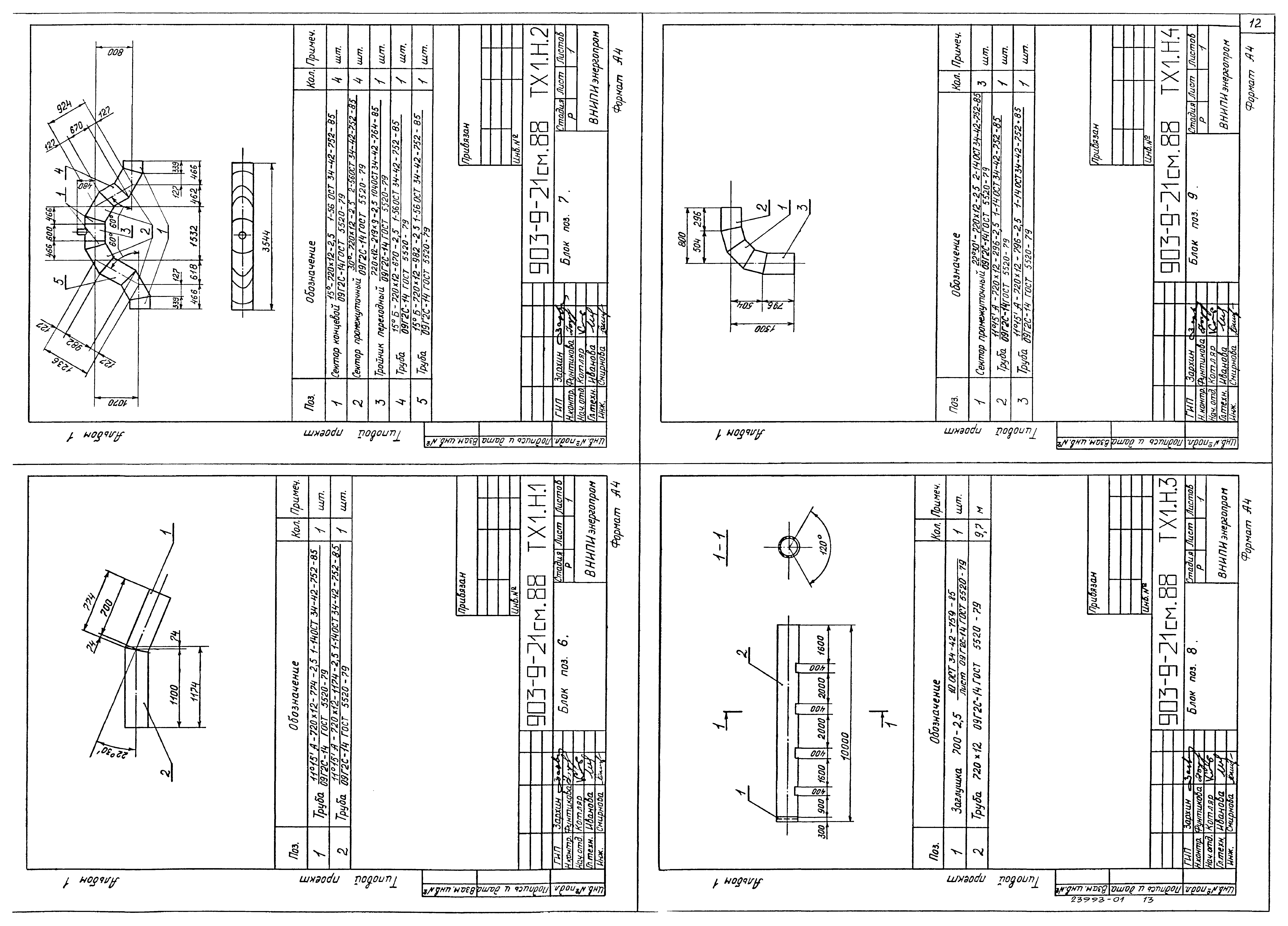
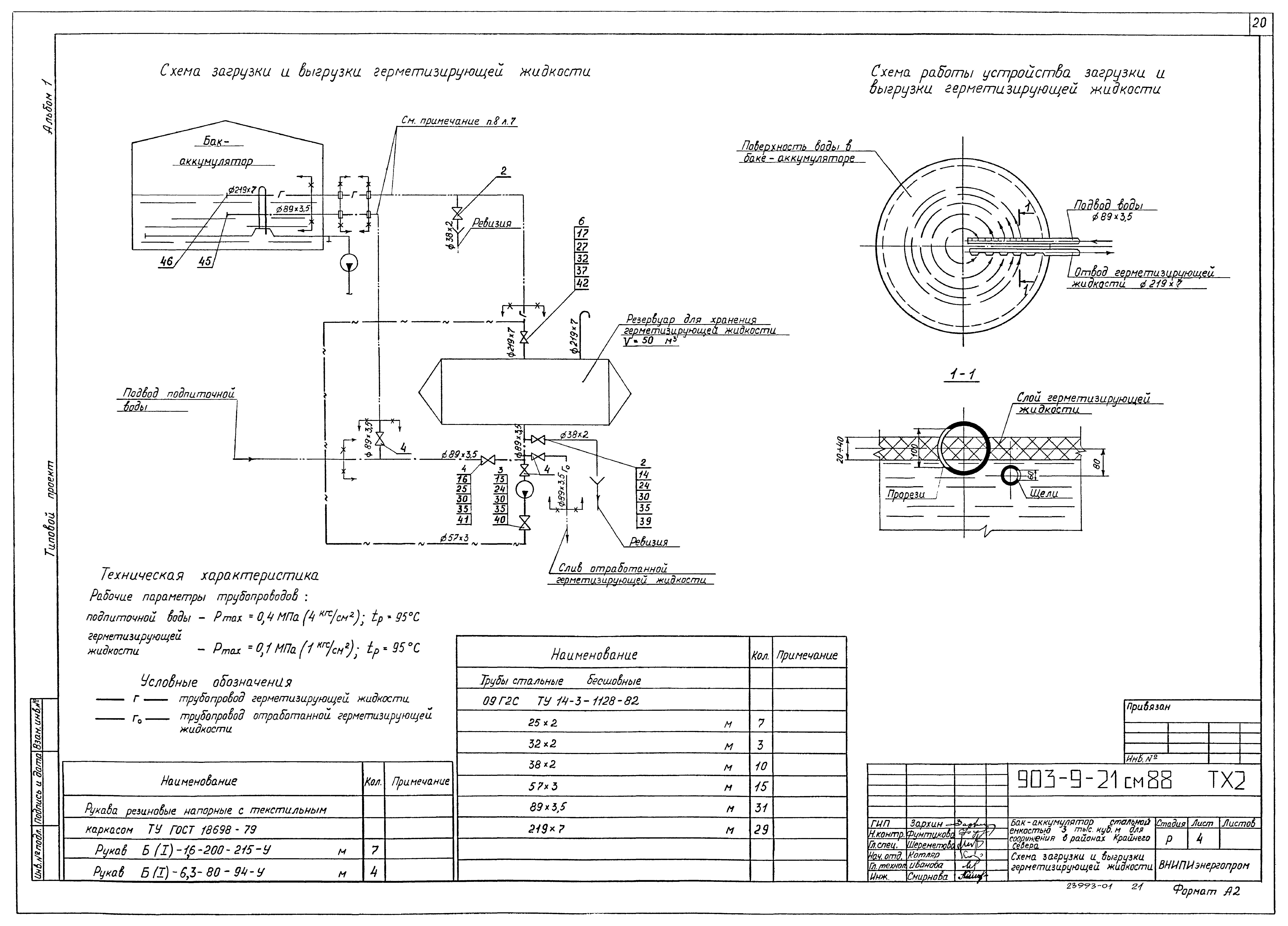
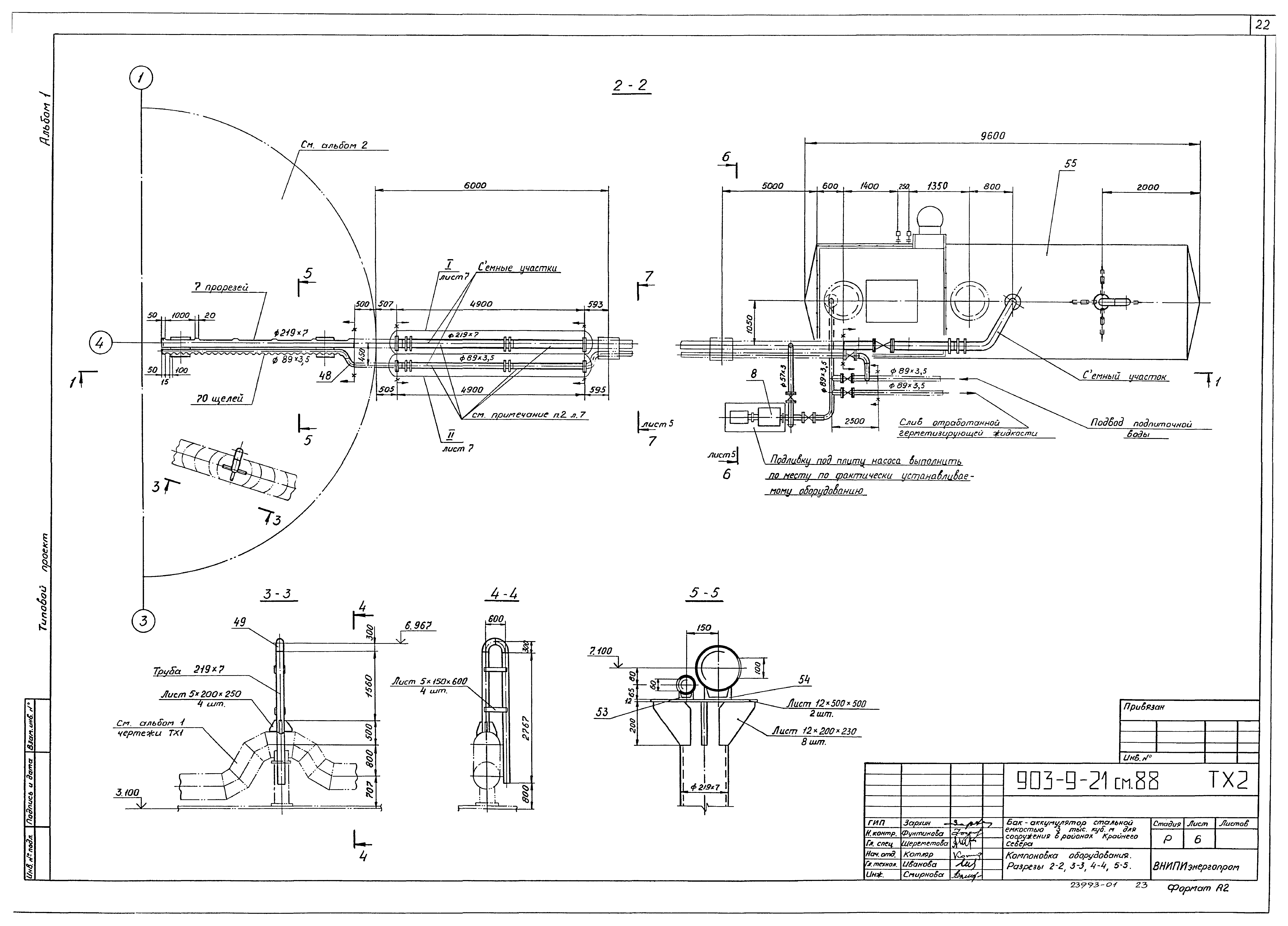
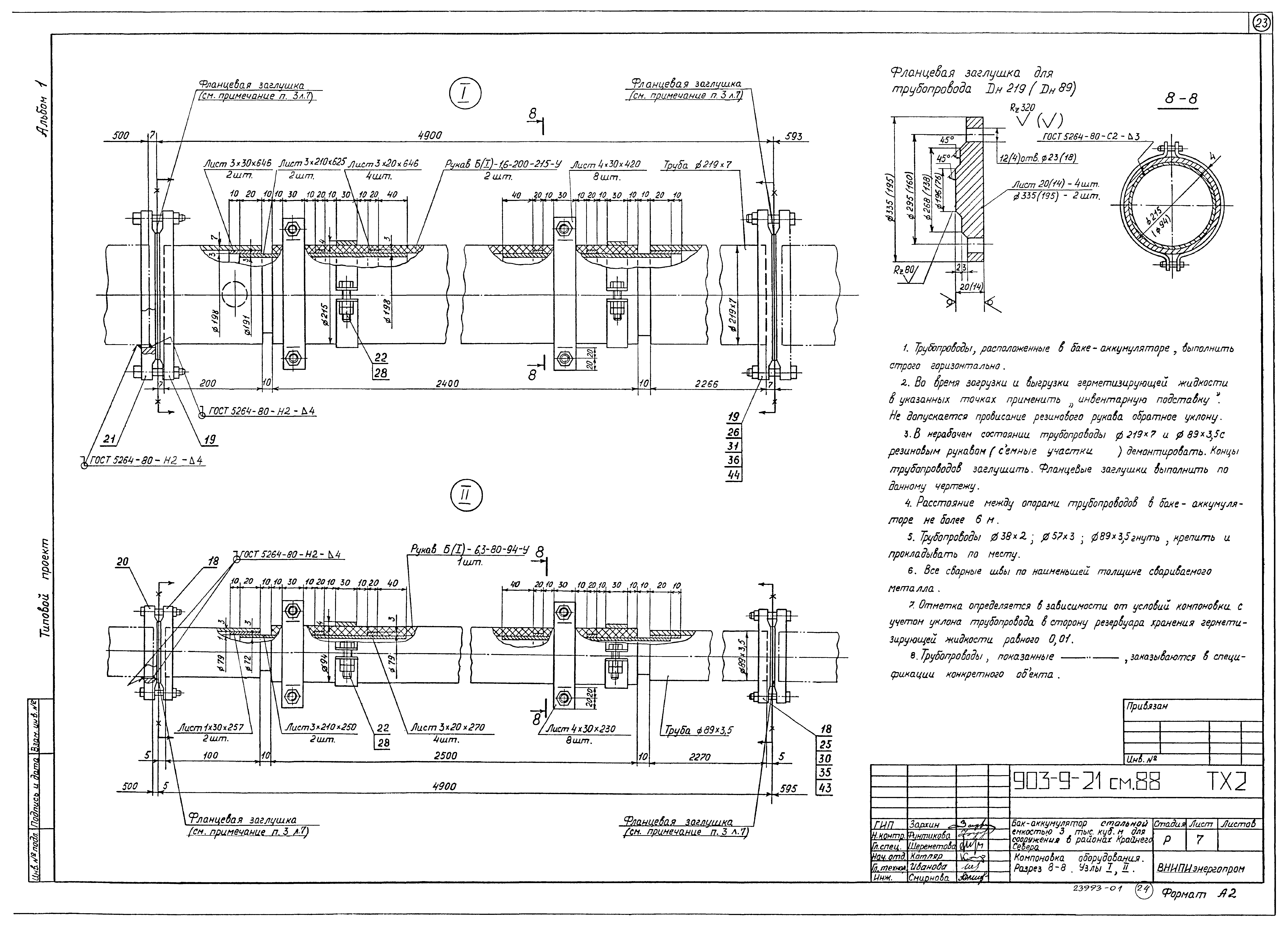
Скачать Типовой проект 903-9-21см.88 Альбом 1. Пояснительная записка. Технологическая часть. Противокоррозионная защитаДата актуализации: 01.01.2021
|
| Обозначение: | Типовой проект 903-9-21см.88 |
| Обозначение англ: | 903-9-21см.88 |
| Статус: | не определен законодательством |
| Название рус.: | Альбом 1. Пояснительная записка. Технологическая часть. Противокоррозионная защита |
| Дата добавления в базу: | 01.01.2021 |
| Дата актуализации: | 01.01.2021 |
| Дата введения: | 28.11.1988 |
| Дата окончания срока действия: | 30.06.2003 |
| Разработан: | ВНИПИэнергопром |
| Утверждён: | 20.01.1987 Минэнерго СССР (USSR Minenergo 3) |
| Нормативные ссылки: |























