Скачать Типовые материалы для проектирования 904-02-37.88 Альбом II. Общие виды щитовДата актуализации: 01.01.2021
|
| Обозначение: | Типовые материалы для проектирования 904-02-37.88 |
| Обозначение англ: | 904-02-37.88 |
| Статус: | справочные материалы, мп, тпр |
| Название рус.: | Альбом II. Общие виды щитов |
| Дата добавления в базу: | 01.09.2013 |
| Дата актуализации: | 01.01.2021 |
| Дата окончания срока действия: | 22.09.1988 |
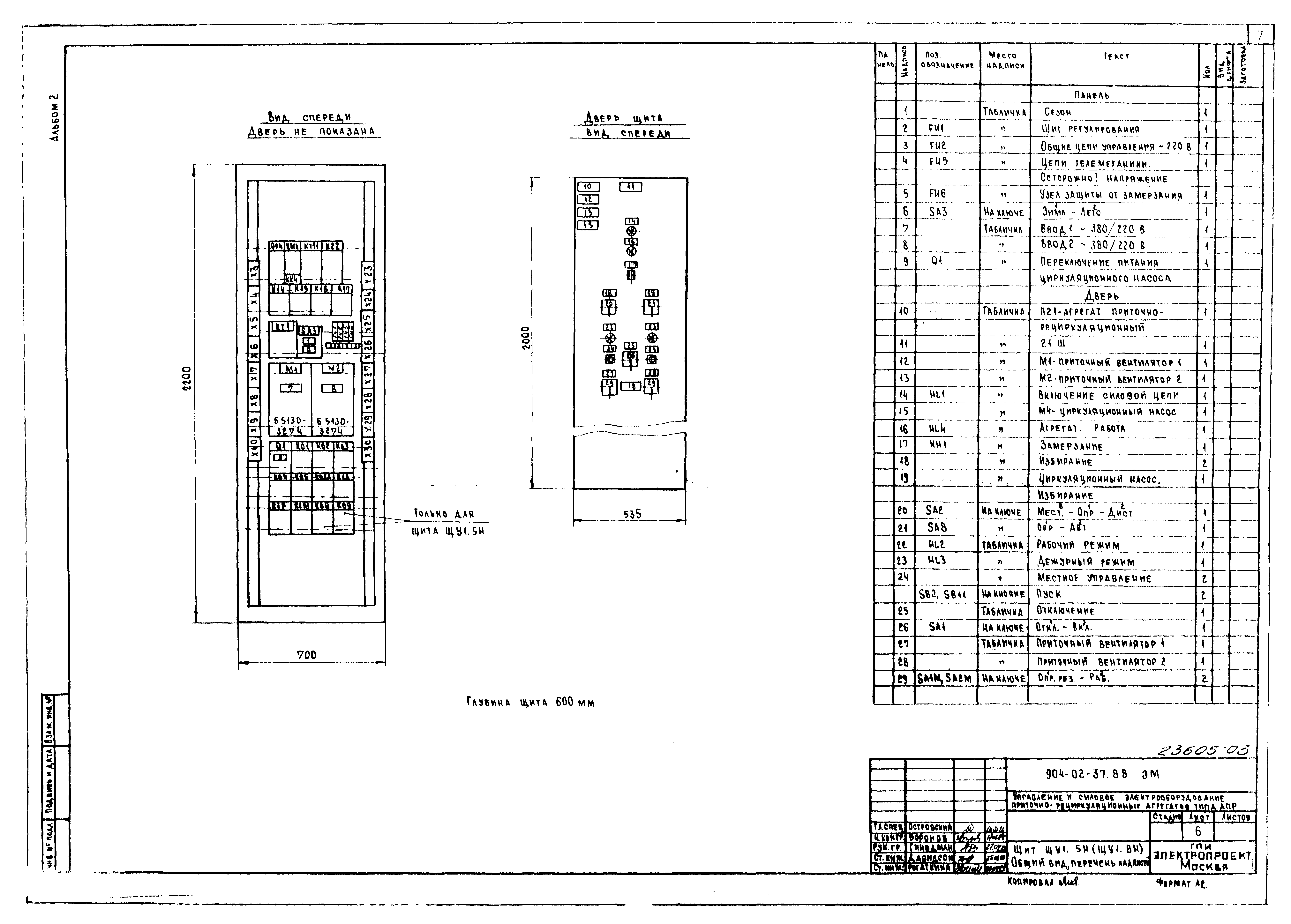
| Оглавление: | Общие данные Ящик ЯУ1, 1Н. Общий вид, перечень надписей Щит ЩУ1, 2Н. Общий вид, перечень надписей Щит ЩУ1, 3Н. Общий вид, перечень надписей Щит ЩУ1, 4Н (ЩУ1, 7Н). Общий вид, перечень надписей Щит ЩУ1, 5Н (ЩУ1, 8Н). Общий вид, перечень надписей Щит ЩУ1, 6Н (ЩУ1, 9Н). Общий вид, перечень надписей Щит ЩУР1.1-1Н (ЩУР2.1-1Н; ЩУР1.1-17-АН; ЩУР2.1-17АН; ЩУР3.1-17АН). Общий вид, перечень надписей Щит ЩУР1.1-17БН (ЩУР2.1-17БН; ЩУР3.1-17БН). Общий вид, перечень надписей Щит ЩУР1.2-1Н (ЩУР2.2-1Н; ЩУР3.2-1Н). Общий вид, перечень надписей Щит ЩУР1.2-17БН (ЩУР2.2-17БН; ЩУР3.2-17БН). Общий вид, перечень надписей Щит ЩУР1.3-1Н (ЩУР2.3-1Н; ЩУР3.3-1Н). Общий вид, перечень надписей Щит ЩУР1.3-17БН (ЩУР2.3-17БН; ЩУР3.3-17БН). Общий вид, перечень надписей Щит ЩУР1.4-13Н (ЩУР2.4-13Н; ЩУР3.4-13Н; ЩУР1.7-21АН; ЩУР2.7-21АН; ЩР3.7-21АН). Общий вид, перечень надписей Щит ЩУР1.5-13Н (ЩУР2.5-13Н; ЩУР3.5-13Н). Общий вид, перечень надписей Щит ЩУР1.6-13Н (ЩУР2.6-13Н; ЩУР3.6-13Н). Общий вид, перечень надписей Щит ЩУР1.7-21БН (ЩУР2.7-21БН; ЩУР3.7-21БН). Общий вид, перечень надписей Щит ЩУР1.8-21БН (ЩУР2.8-21БН; ЩУР3.8-21БН). Общий вид, перечень надписей Щит ЩУР1.9-21БН (ЩУР2.9-21БН; ЩУР3.9-21БН). Общий вид, перечень надписей |
| Разработан: | Электропроект Минмонтажспецстроя СССР |
| Утверждён: | 22.09.1988 Госстрой СССР (Государственный комитет Совета Министров СССР по делам строительства) (USSR Gosstroy 64) |
| Издан: | ЦИТП Госстроя СССР (CITP, Gosstroy (USSR) 1989 г. ) |





















