Скачать Типовой проект 503-1-97.91 Альбом 4. Автоматизация технологии производства. Автоматизация отопления и вентиляции. Автоматизация внутреннего водопровода и канализацииДата актуализации: 01.01.2021
|
| Обозначение: | Типовой проект 503-1-97.91 |
| Обозначение англ: | 503-1-97.91 |
| Статус: | не определен законодательством |
| Название рус.: | Альбом 4. Автоматизация технологии производства. Автоматизация отопления и вентиляции. Автоматизация внутреннего водопровода и канализации |
| Дата добавления в базу: | 01.09.2013 |
| Дата актуализации: | 01.01.2021 |
| Дата введения: | 13.02.1992 |
| Дата окончания срока действия: | 30.06.2003 |
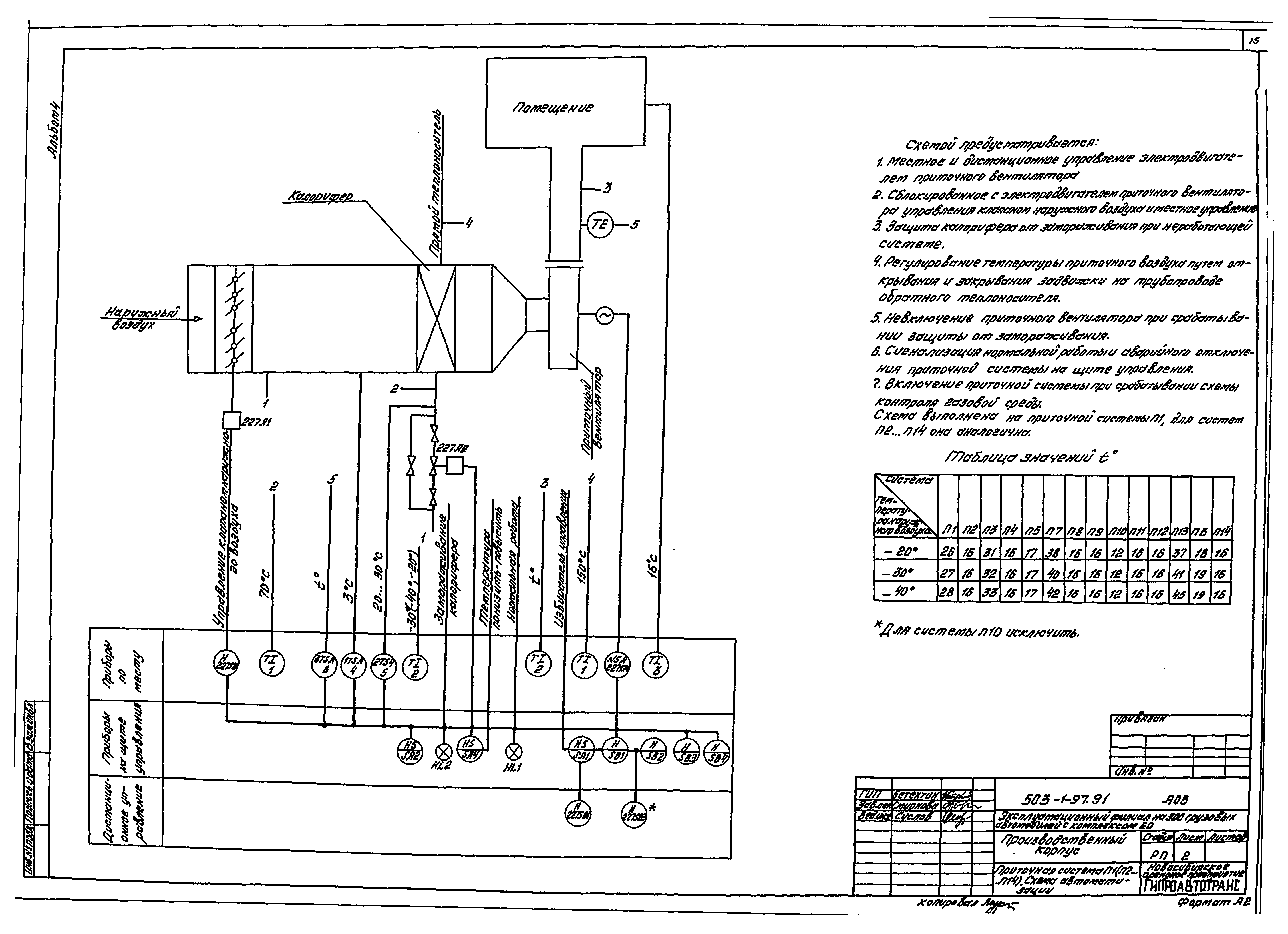
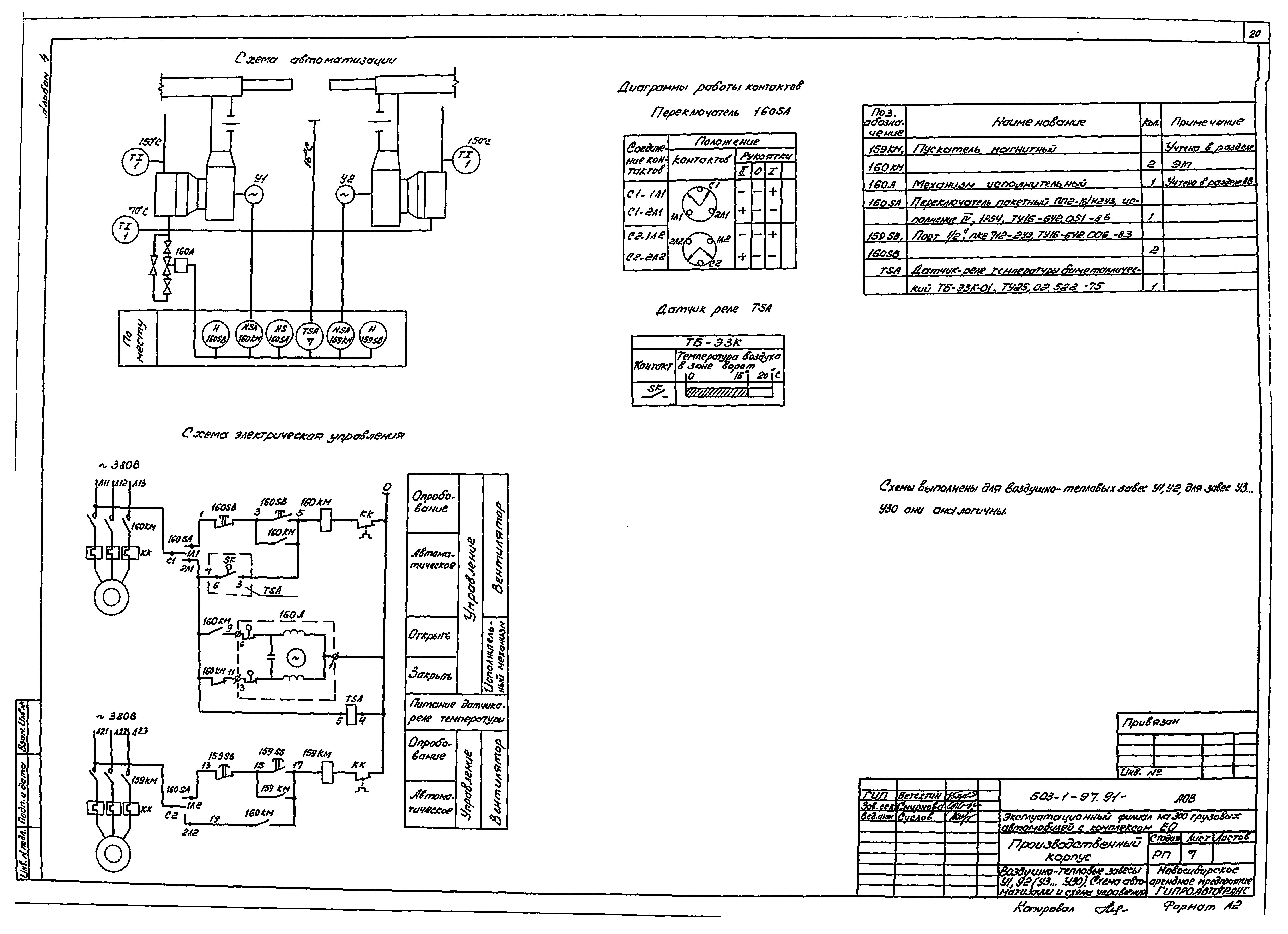
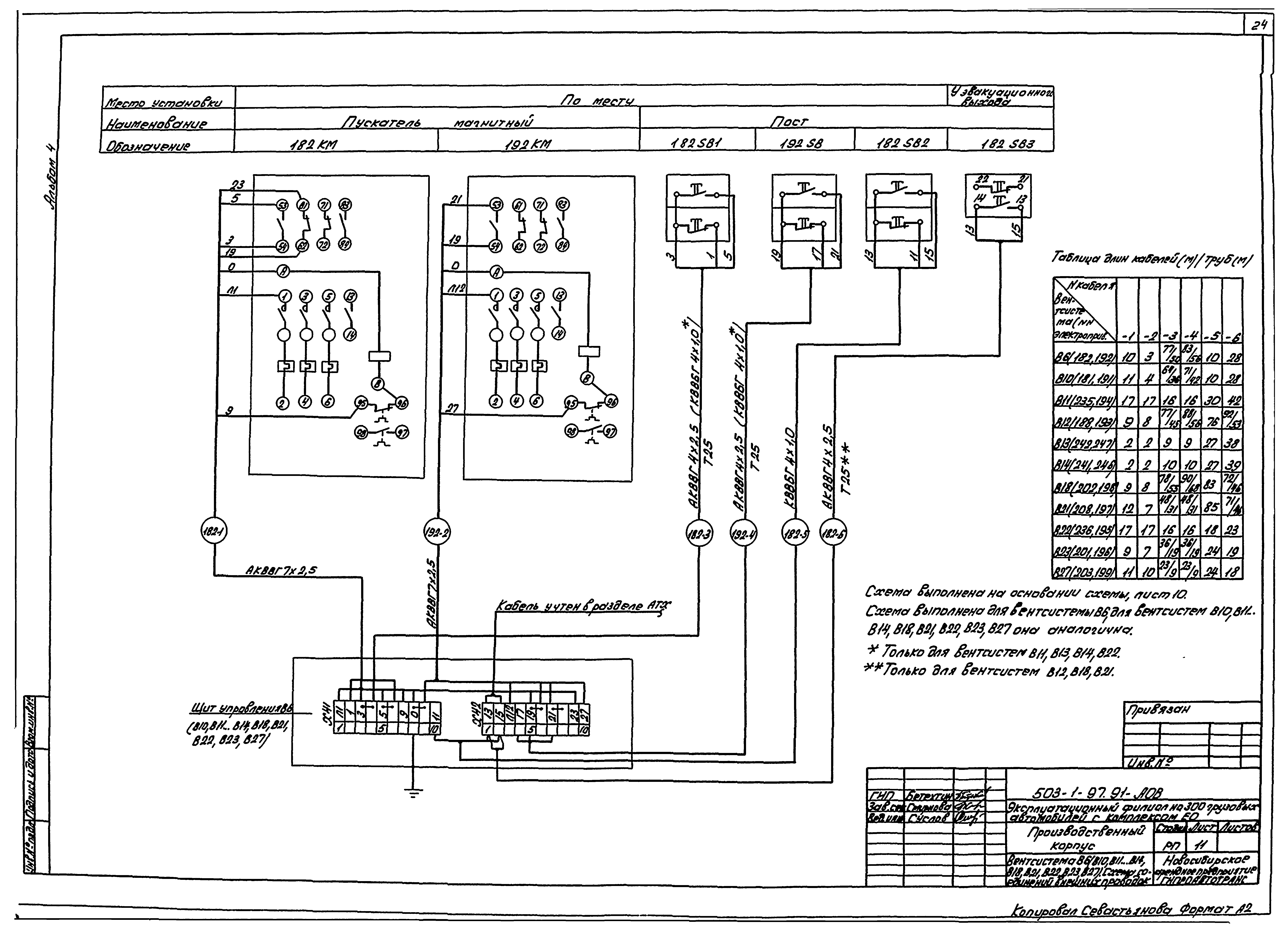
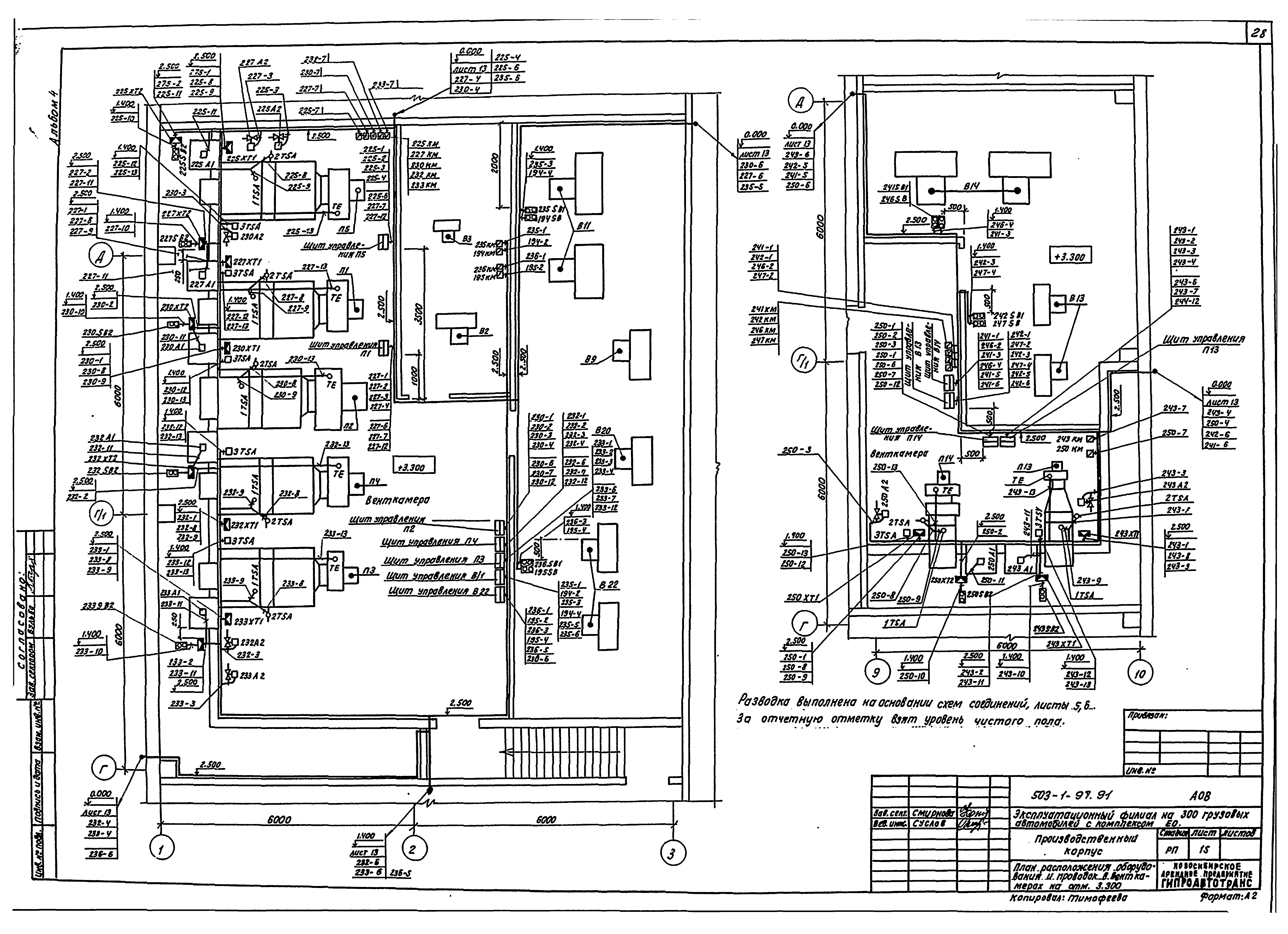
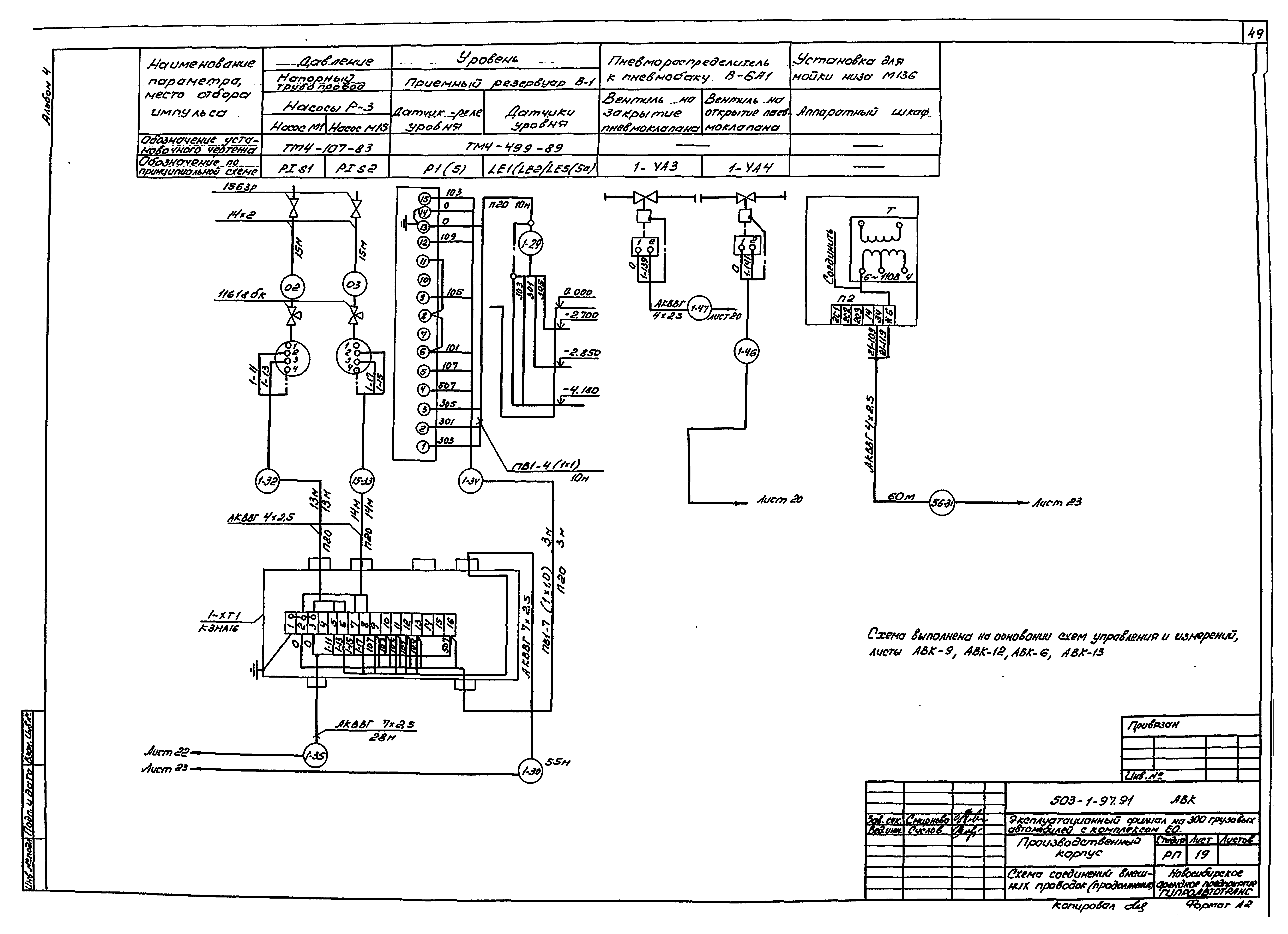
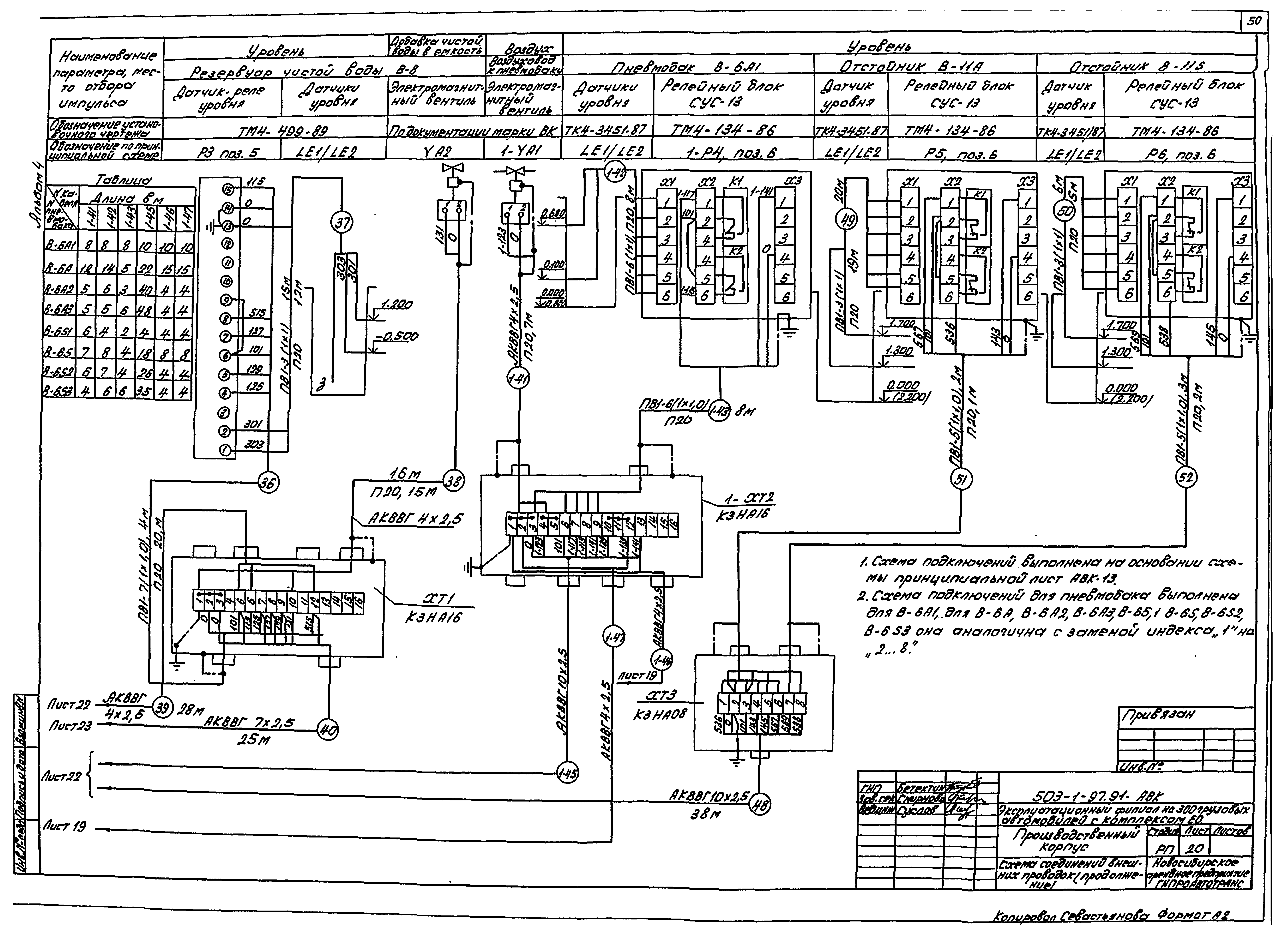
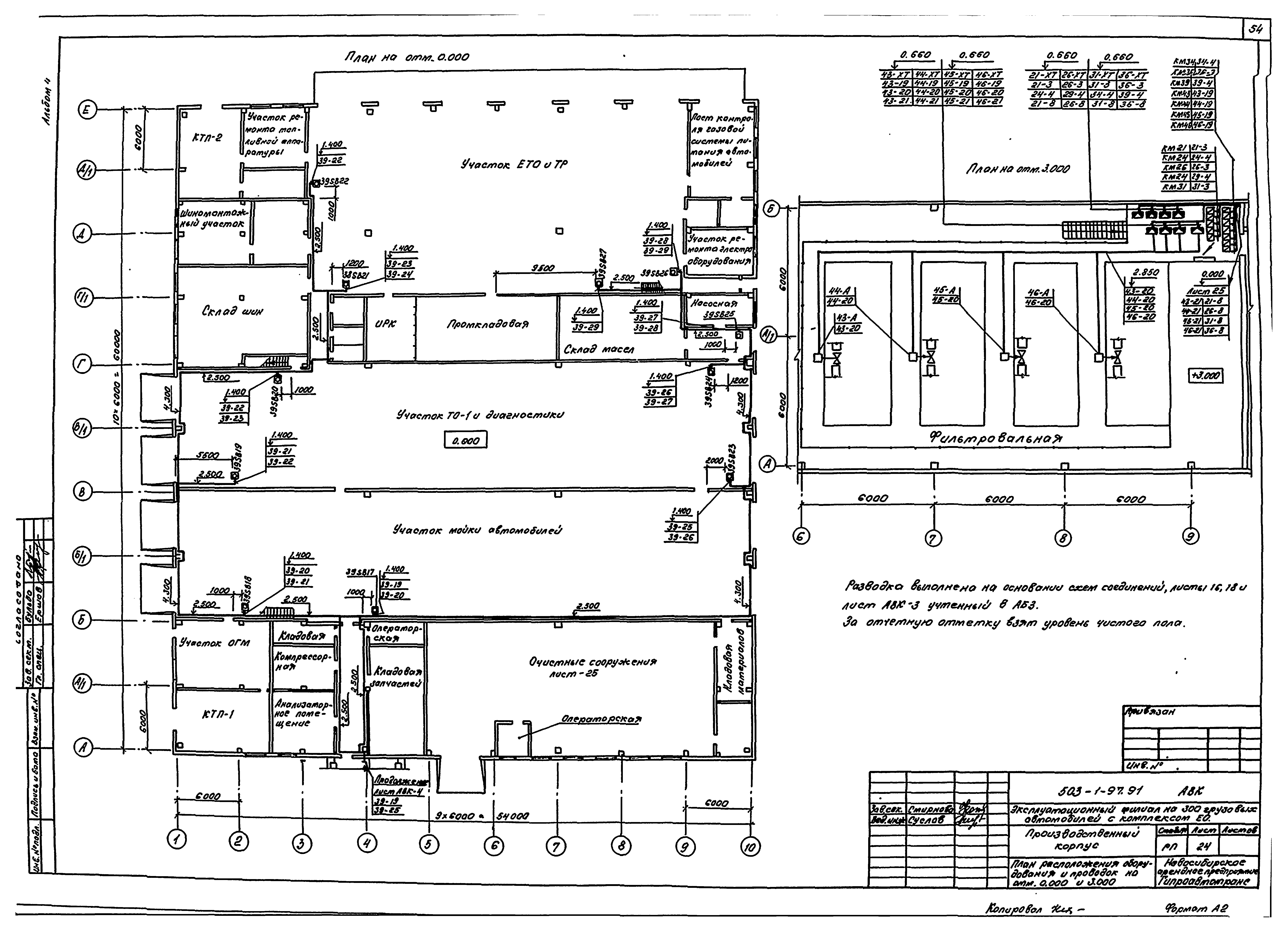
| Оглавление: | Содержание альбома Автоматизация технологии производства Общие данные Схема сигнализации №1. Схема управления технологическим оборудованием и освещением Схема сигнализации №2. Схема управления технологическим оборудованием и освещением Щит приборов Щ1 (Щ2). Схема соединений внешних проводок Щит приборов Щ3. Схема соединений внешних проводок Щит сигнализации ЩС1. Схема соединений внешних проводок Щит сигнализации ЩС2. Схема соединений внешних проводок План расположения оборудования и проводок на отм. 0.000 План расположения оборудования и проводок в венткамерах Эскизный чертеж щита приборов Щ1 (Щ2) Эскизный чертеж щита приборов Щ3 Эскизный чертеж щита сигнализации ЩС1 Эскизный чертеж щита сигнализации ЩС2 Автоматизация отопления и вентиляции Общие данные Приточная система П1 (П2…П5, П7…П13, П15). Схема автоматизации Приточная система П1 (П2…П5, П7…П13, П15). Схема электрическая управления Приточная система П1 (П2…П5, П7…П13, П15). Схема электрическая регулирования Приточная система П1 (П2…П5, П7…П13, П15). Схема соединений внешних проводок Воздушно-тепловые завесы У1, У2 (У3…У30). Схема автоматизации и схема управления Воздушно-тепловые завесы У1, У2 (У3…У30). Схема соединений внешних проводок Вентсистема В15 (В5, В29, В30). Схема электрическая блокировки и схема соединений Вентсистема В6 (В10, В11…В14, В18, В21, В22, В23, В27). Схема электрическая управления Вентсистема В6 (В10, В11…В14, В18, В21, В22, В23, В27). Схема соединений внешних проводок Схема отключения вентиляции при пожаре. Схема соединений внешних проводок План расположения оборудования и проводок на отм. 0.000 План расположения оборудования и проводок в венткамерах на отм. 3.000 и 3.300 План расположения оборудования и проводок в венткамерах на отм. 3.300 План расположения оборудования и проводок на кровле Эскизный чертеж щита управления П1 (П2…П5, П7…П13, П15) Эскизный чертеж щита управления В6 (В10, В11…В14, В18, В21, В22, В23, В27) Автоматизация внутреннего водопровода и канализации Общие данные Схема автоматизации Насосы сточных вод Р-3. Схема электрическая управления Флотатор. Насос охлаждения. Компрессор. Схема электрическая управления Схема электрическая управления задвижкой и фильтр-транспортером Насосы технологические Р-9. Схема электрическая управления Фильтр "Полимер-П-86". Схема электрическая управления Насос технической воды. Схема электрическая управления и соединений Схема электрическая принципиальная измерений Схема электрическая принципиальная сигнализаций Схема соединений внешних проводок План расположения оборудования и проводок на отм. 0.000 и 3.000 План расположения оборудования и проводок на отм. 0.000 в осях 5…9 - А…Б Эскизный чертеж шкафа А5 Эскизный чертеж щита управления ЩУ5 (ЩУ7…ЩУ9) Эскизный чертеж щита управления ЩУ10 (ЩУ11…ЩУ13) Эскизный чертеж пульта управления |
| Разработан: | Гипроавтотранс Новосибирский филиал |
| Утверждён: | 13.02.1992 Росавтотранс (1) |

























































