Скачать Типовой проект 503-1-97.91 Альбом 5. Строительные изделияДата актуализации: 01.01.2021
|
| Обозначение: | Типовой проект 503-1-97.91 |
| Обозначение англ: | 503-1-97.91 |
| Статус: | не определен законодательством |
| Название рус.: | Альбом 5. Строительные изделия |
| Дата добавления в базу: | 01.09.2013 |
| Дата актуализации: | 01.01.2021 |
| Дата введения: | 13.02.1992 |
| Дата окончания срока действия: | 30.06.2003 |
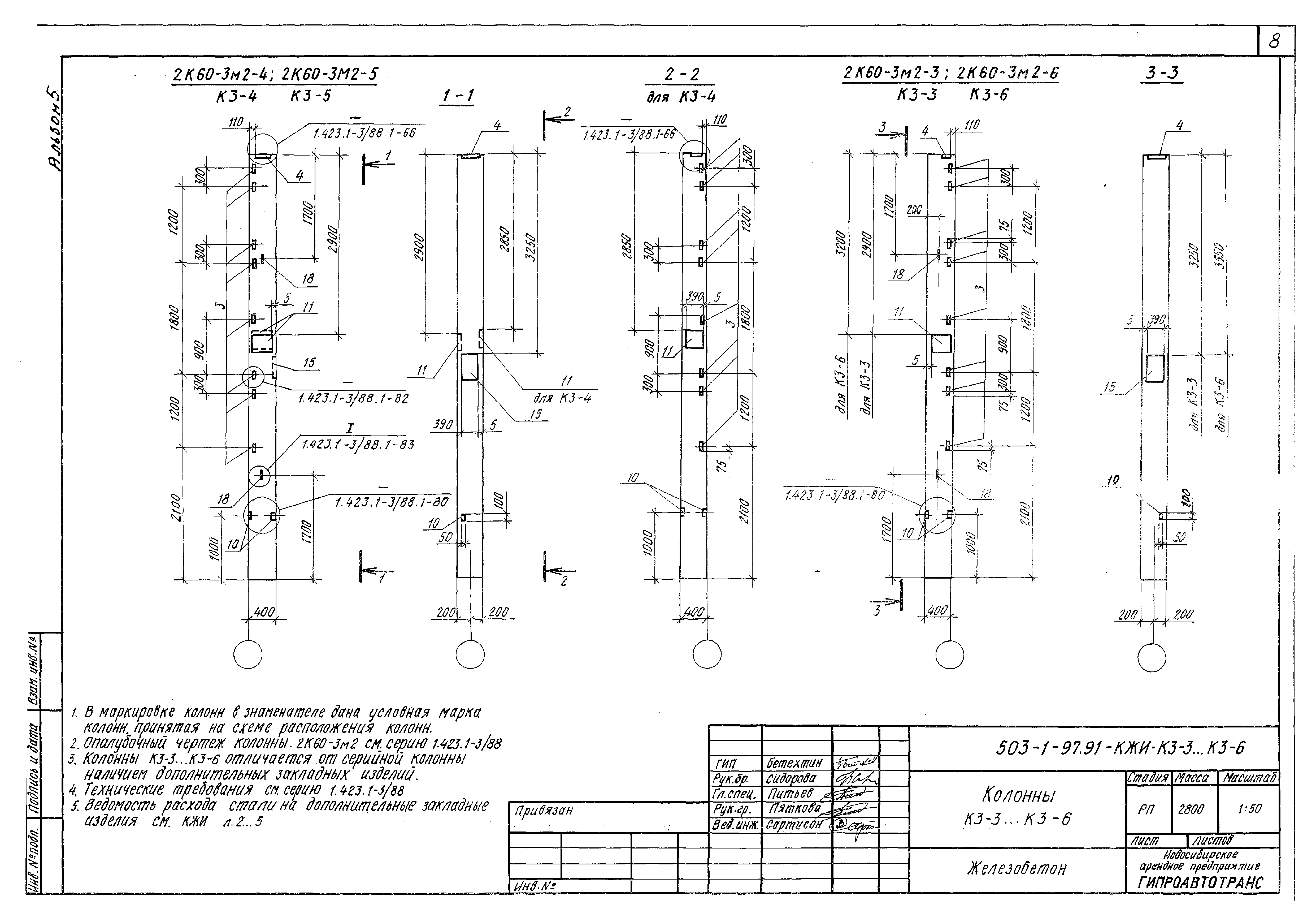
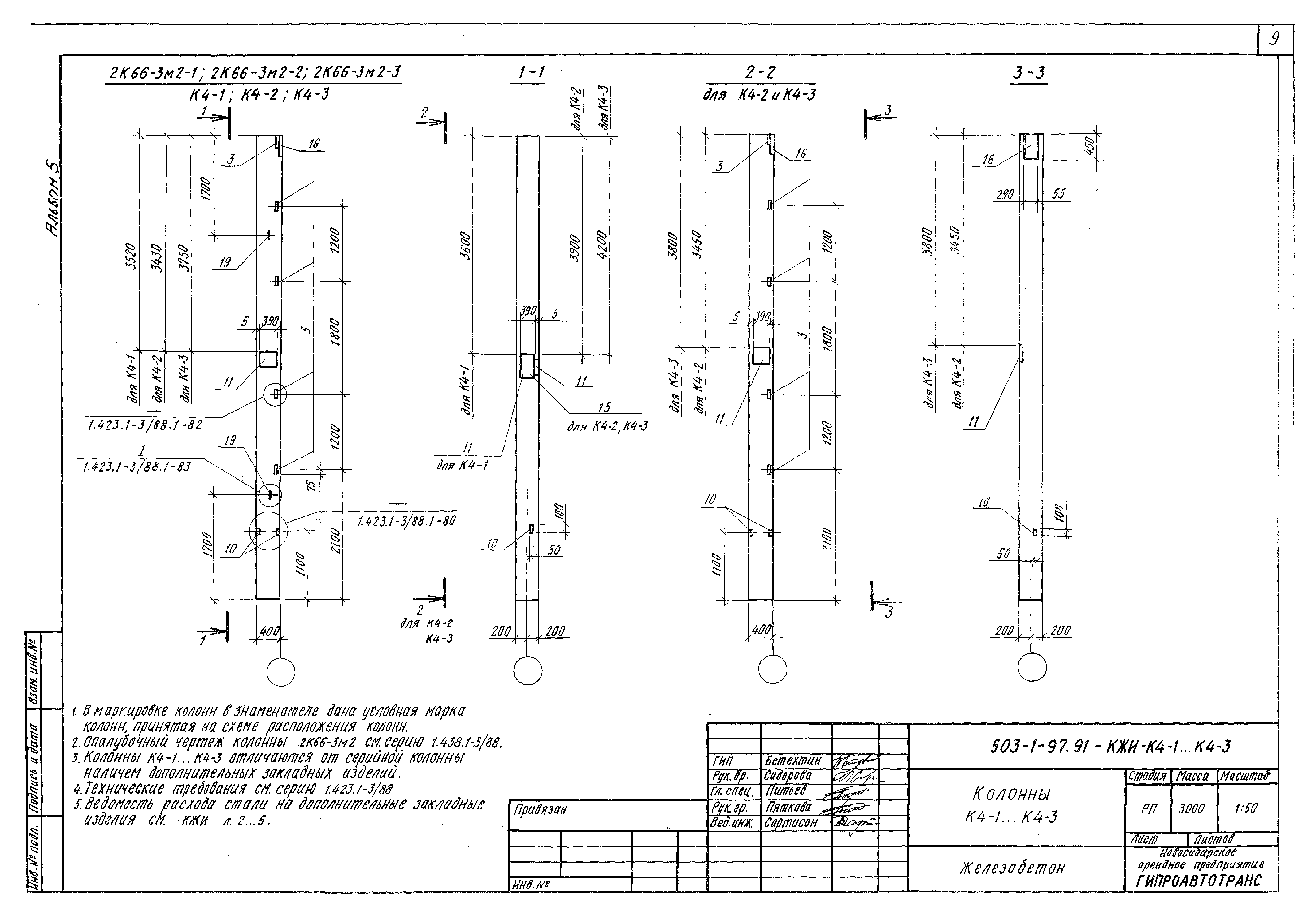
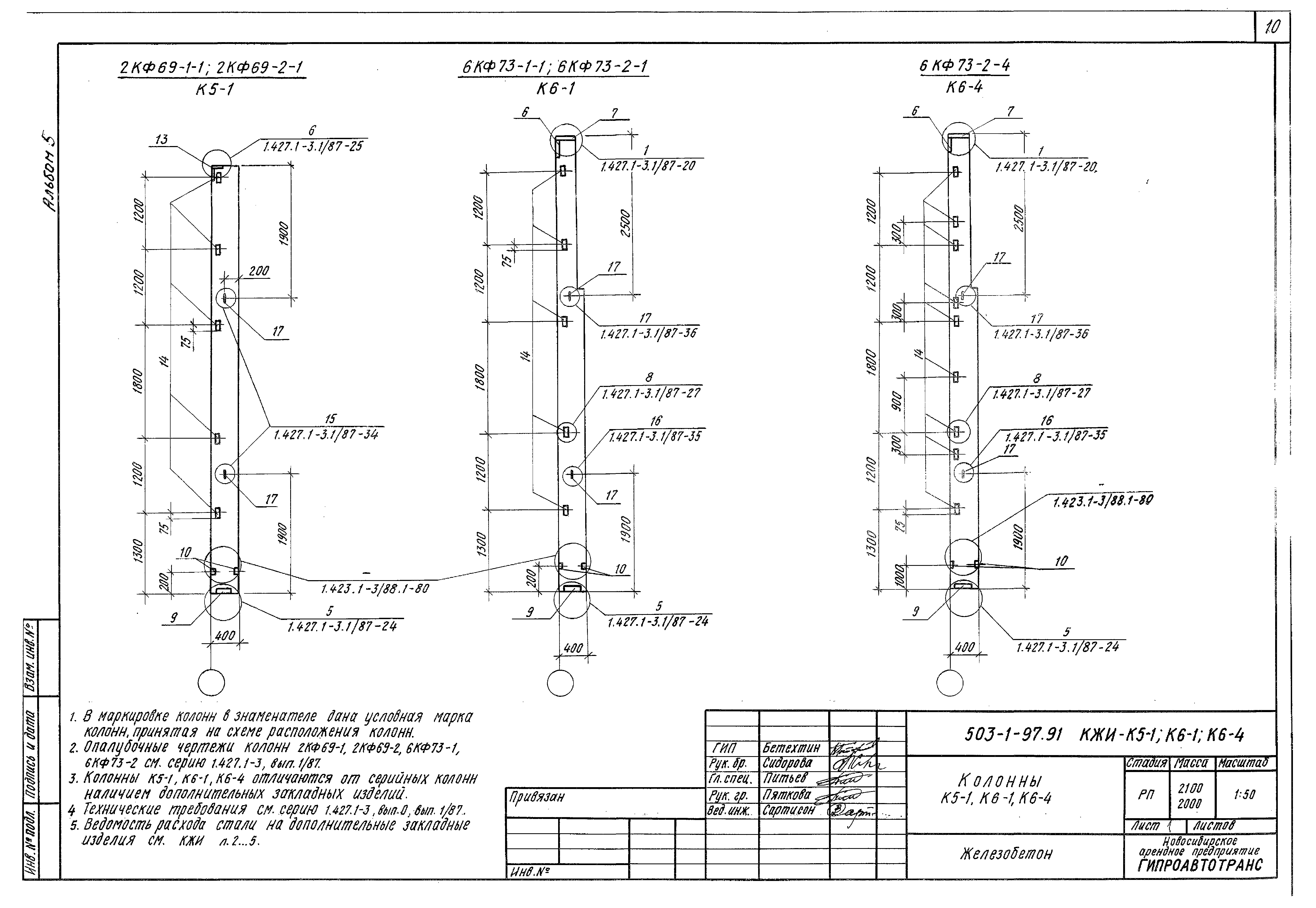
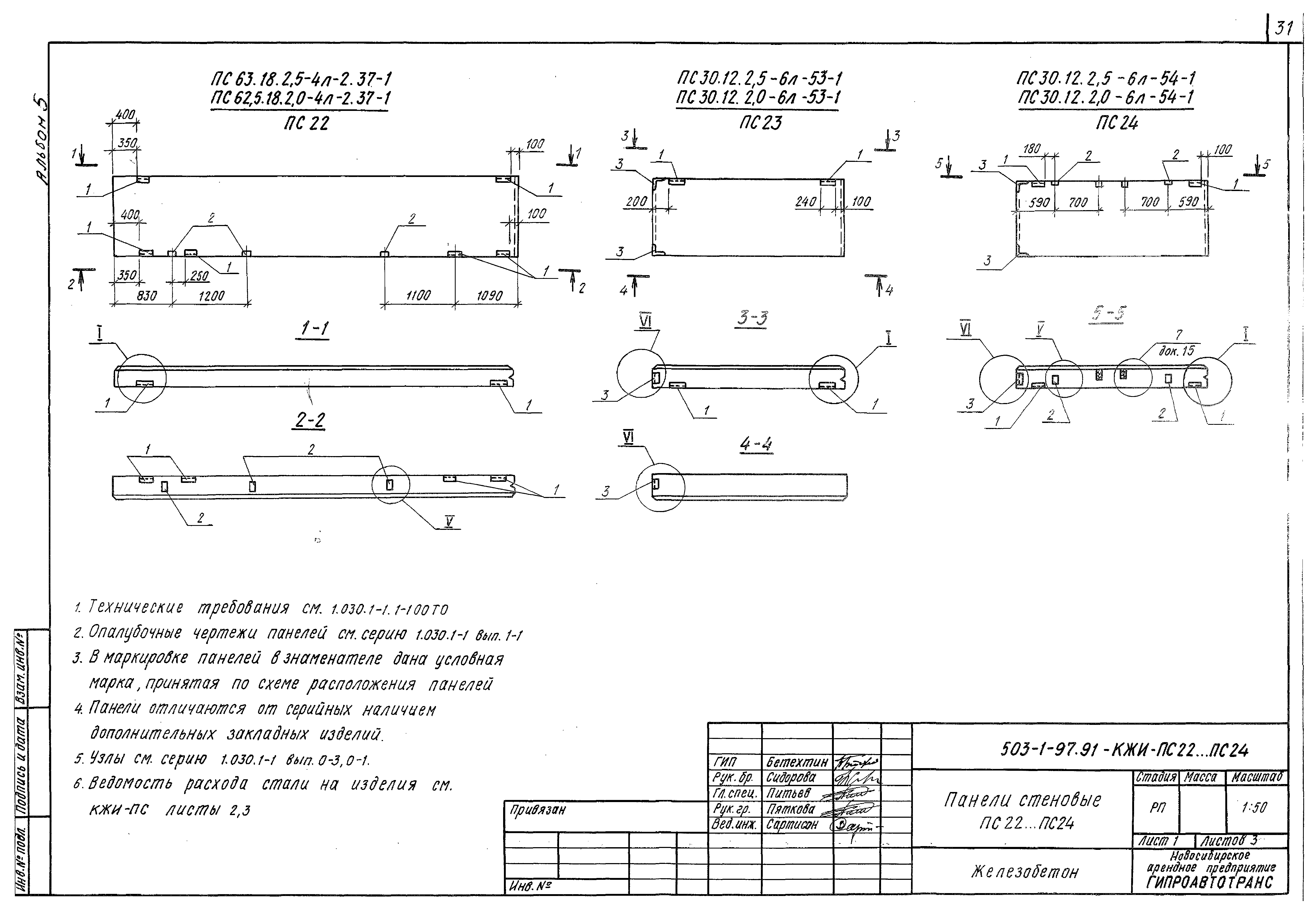
| Оглавление: | 503-1-97.91-КЖИ Содержание альбома 503-1-97.91-КЖИ-ТТ Технические требования 503-1-97.91-КЖИ-К1-1…К1-3 Колонны К1-1…К1-3 503-1-97.91-КЖИ-К2-1…К2-3 Колонны К2-1…К2-3 503-1-97.91-КЖИ-К3-1…К3-2 Колонны К3-1…К3-2 503-1-97.91-КЖИ-К3-3…К3-6 Колонны К3-3…К3-6 503-1-97.91-КЖИ-К4-1…К4-3 Колонны К4-1…К4-3 503-1-97.91-КЖИ-К5-1, К6-1, К6-4 Колонны К5-1, К6-1, К6-4 503-1-97.91-КЖИ-К5-2, К6-2, К6-3 Колонны К5-2, К6-2, К6-3 503-1-97.91-КЖИ-К8-1…К8-4 Колонны К8-1…К8-4 503-1-97.91-КЖИ-К9-1, К9-2 Колонны К9-1, К9-2 503-1-97.91-КЖИ Выборка дополнительных закладных изделий колонн 503-1-97.91-КЖИ Ведомость расхода стали на дополнительные закладные изделия колонн 503-1-97.91-КЖИ-Б1-1, Б1-2 Балки Б1-1, Б1-2 503-1-97.91-КЖИ-Б1-1, Б1-2 Выборка дополнительных закладных, ведомость расхода стали на дополнительные закладные изделия на Б1-1, Б1-2 503-1-97.91-КЖИ-П6…П9, П21…П24 Плиты П6…П9, П21…П24 503-1-97.91-КЖИ-П10…П13, П15, П25…П28, П30 Плиты П10…П13, П15, П25…П28, П30 503-1-97.91-КЖИ-П34…П38 Плиты П34…П38 503-1-97.91-КЖИ-П6…П13, П15, П21…П28, П30, П34…П38 Выборка дополнительных закладных изделий плит П6…П13, П15, П21…П28, П30, П34…П38 503-1-97.91-КЖИ-П6…П13, П15, П21…П28, П30, П34…П38 Ведомость расхода стали на дополнительные закладные изделия плит П6…П13, П15, П21…П28, П30, П34…П38 503-1-97.91-КЖИ-ПС2, ПС3, ПС5, ПС11, ПС12, ПС14, ПС37 Панели стеновые ПС2, ПС3, ПС5, ПС11, ПС12, ПС14, ПС37 503-1-97.91-КЖИ-ПС6…ПС8, ПС21 Панели стеновые ПС6…ПС8, ПС21 503-1-97.91-КЖИ-ПС9, ПС13 Панели стеновые ПС9, ПС13 503-1-97.91-КЖИ-ПС15, ПС16 Панели стеновые ПС15, ПС16 503-1-97.91-КЖИ-ПС17, ПС18 Панели стеновые ПС17, ПС18 503-1-97.91-КЖИ-ПС19, ПС20 Панели стеновые ПС19, ПС20 503-1-97.91-КЖИ-ПС22, ПС24 Панели стеновые ПС22, ПС24 503-1-97.91-КЖИ-ПС25, ПС26, ПС28, ПС30 Панели стеновые ПС25, ПС26, ПС28, ПС30 503-1-97.91-КЖИ-ПС29, ПС31, ПС32…ПС35 Панели стеновые ПС29, ПС31, ПС32…ПС35 503-1-97.91-КЖИ-ПС1…ПС38 Выборка закладных изделий панелей ПС1…ПС38 503-1-97.91-КЖИ-ПС1…ПС38 Ведомость расхода стали на закладные изделия панелей ПС1…ПС38 503-1-97.91-КЖИ-ПС1-42-БГ3-1, ПС1-42-БГ3-2 Панель ПС1-42-БГ3-1, ПС1-42-БГ3-2 503-1-97.91-КЖИ-ПС1, ПС2, ПС4 Панель ПС1, ПС2, ПС4 503-1-97.91-КЖИ-ПС5…ПС7 Панель ПС5…ПС7 503-1-97.91-КЖИ-ПС1, ПС2, ПС4…ПС7 Выборка закладных изделий панелей ПС1, ПС2, ПС4…ПС7 503-1-97.91-КЖИ-ПС1, ПС2, ПС4…ПС7 Ведомость расхода дополнительной стали на панели ПС1, ПС2, ПС4…ПС7 503-1-97.91-КЖИ-КР1 Каркас КР1 503-1-97.91-КЖИ-КР2, КР3 Каркас КР2, КР3 503-1-97.91-КЖИ-КР4 Каркас КР4 503-1-97.91-КЖИ-КР6, КР7 Каркас КР6, КР7 503-1-97.91-КЖИ-КР8, КР10, КР12 Каркас КР8, КР10, КР12 503-1-97.91-КЖИ-КР9, КР11 Каркас КР9, КР11 503-1-97.91-КЖИ-КР14, КР15 Каркас КР14, КР15 503-1-97.91-КЖИ-КП1 Каркас пространственный КП1 503-1-97.91-КЖИ-С1 Сетка арматурная С1 503-1-97.91-КЖИ-С2 Сетка арматурная С2 503-1-97.91-КЖИ-С3 Сетка арматурная С3 503-1-97.91-КЖИ-С4 Сетка арматурная С4 503-1-97.91-КЖИ-С5 Сетка арматурная С5 503-1-97.91-КЖИ-С6 Сетка арматурная С6 503-1-97.91-КЖИ-С7 Сетка арматурная С7 503-1-97.91-КЖИ-НС1, НС2 Насадки НС1, НС2 503-1-97.91-КЖИ-Щ1 Щит Щ1 503-1-97.91-КЖИ-Щ2 Щит Щ2 503-1-97.91-КЖИ-Щ3 Щит Щ3 503-1-97.91-КЖИ-КМ1 Крышка металлическая КМ1 503-1-97.91-КЖИ-Щ4 Щит Щ4 503-1-97.91-КЖИ-РШ1 Решетка РШ1 503-1-97.91-КЖИ-Л1 Лестница Л1 503-1-97.91-КЖИ-МС1 Изделие соединительное МС1 503-1-97.91-КЖИ-МС2 Изделие соединительное МС2 503-1-97.91-КЖИ-МС3…МС6 Изделие соединительное МС3…МС6 503-1-97.91-КЖИ-МН1 Изделие закладное МН1 503-1-97.91-КЖИ-МН2 Изделие закладное МН2 503-1-97.91-КЖИ-МН3 Изделие закладное МН3 503-1-97.91-КЖИ-МН4 Изделие закладное МН4 503-1-97.91-КЖИ-МН5 Изделие закладное МН5 503-1-97.91-КЖИ-МН6 Изделие закладное МН6 503-1-97.91-КЖИ-МД3-1 Изделие закладное МД3-1 503-1-97.91-КЖИ-МН7-2-1 Изделие закладное МН7-2-1 503-1-97.91-КЖИ-РШ2 Решетка РШ2 |
| Разработан: | Гипроавтотранс Новосибирский филиал |
| Утверждён: | 13.02.1992 Росавтотранс (1) |





























































