Скачать Типовой проект 902-2-477.89 Альбом 2. Технологические решения. Спецификации оборудования. Конструкции железобетонные. Организация строительстваДата актуализации: 01.01.2021
|
| Обозначение: | Типовой проект 902-2-477.89 |
| Обозначение англ: | 902-2-477.89 |
| Статус: | не определен законодательством |
| Название рус.: | Альбом 2. Технологические решения. Спецификации оборудования. Конструкции железобетонные. Организация строительства |
| Дата добавления в базу: | 01.09.2013 |
| Дата актуализации: | 01.01.2021 |
| Дата введения: | 28.09.1989 |
| Дата окончания срока действия: | 30.06.2003 |
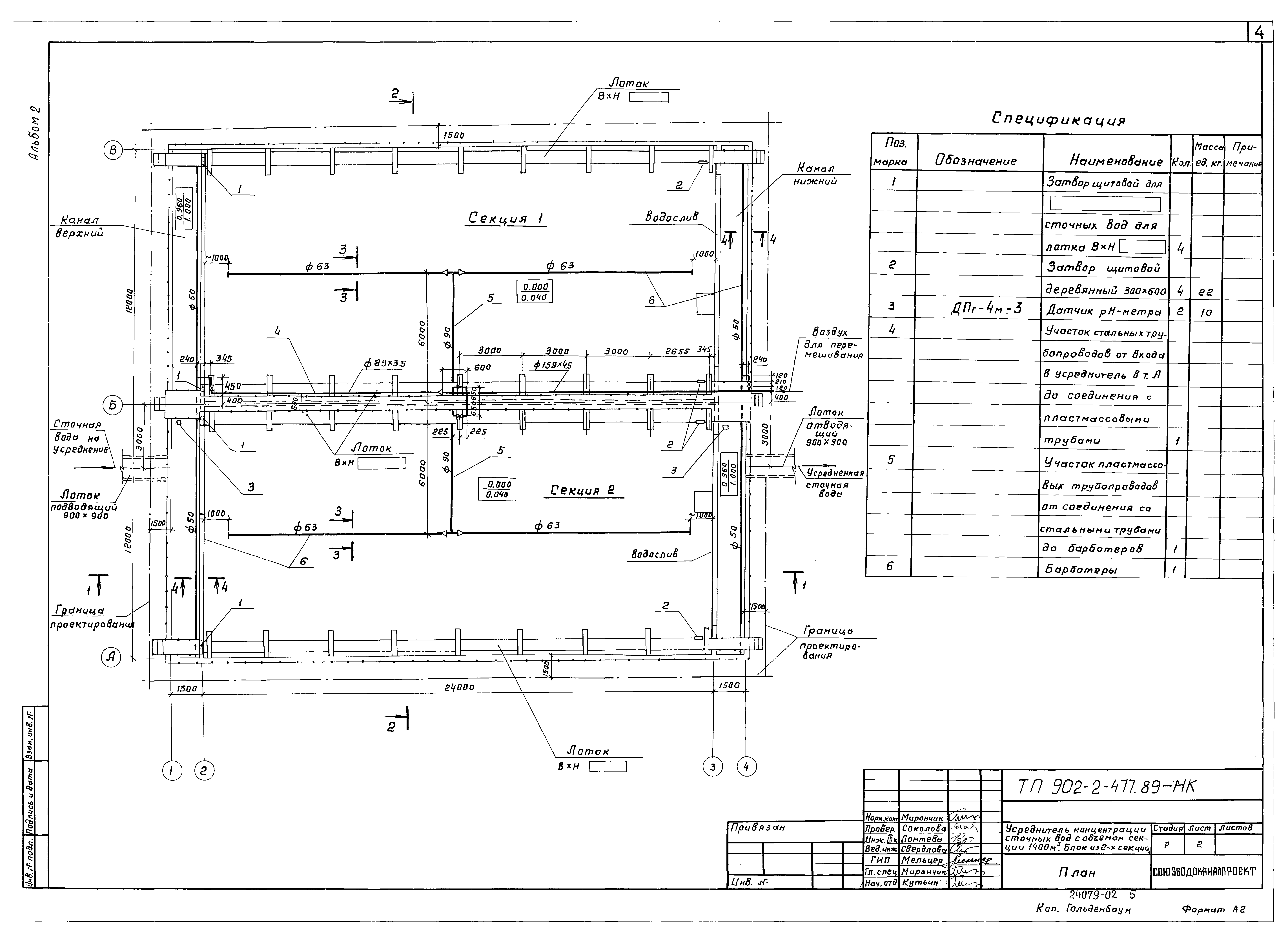
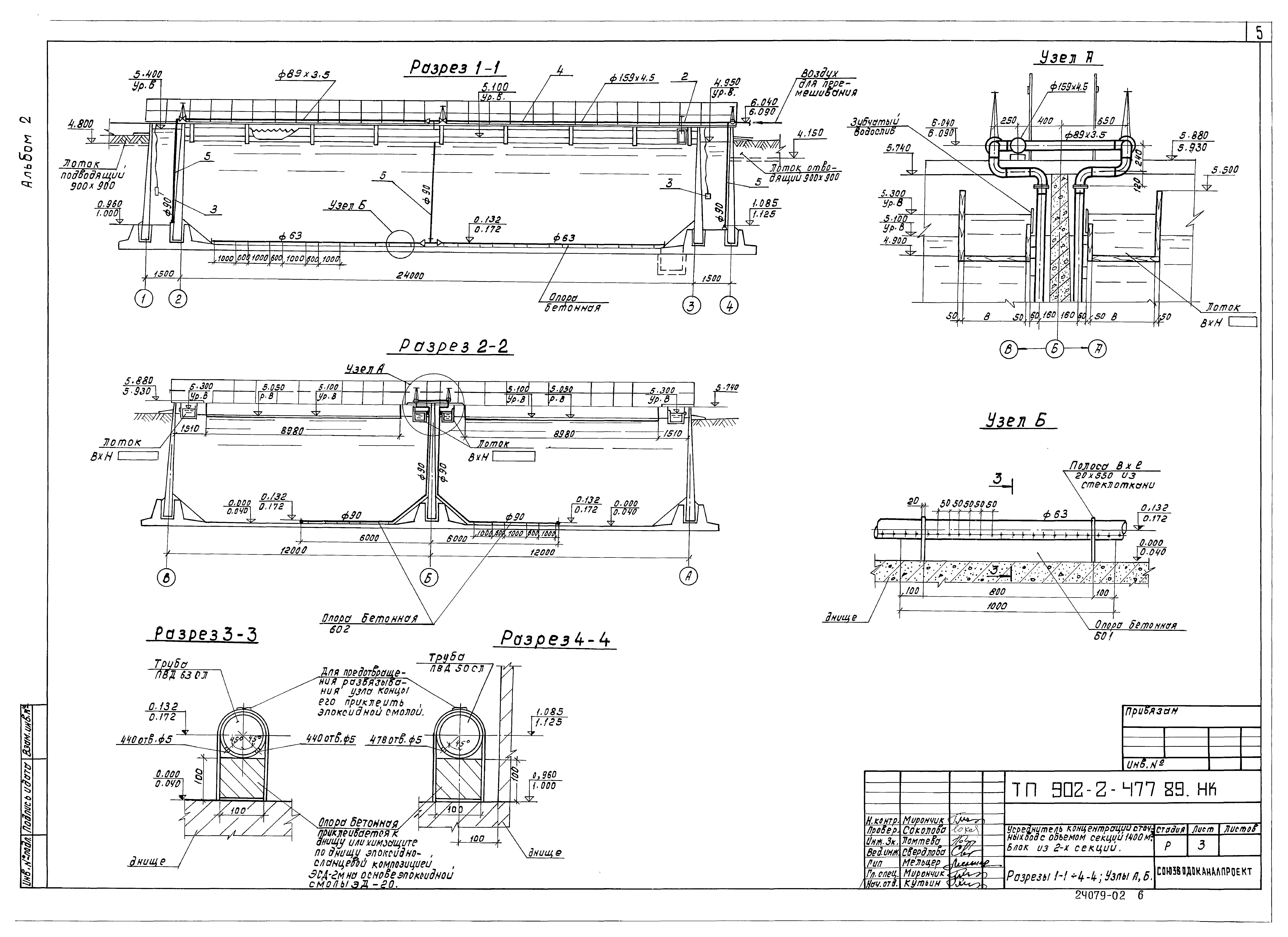
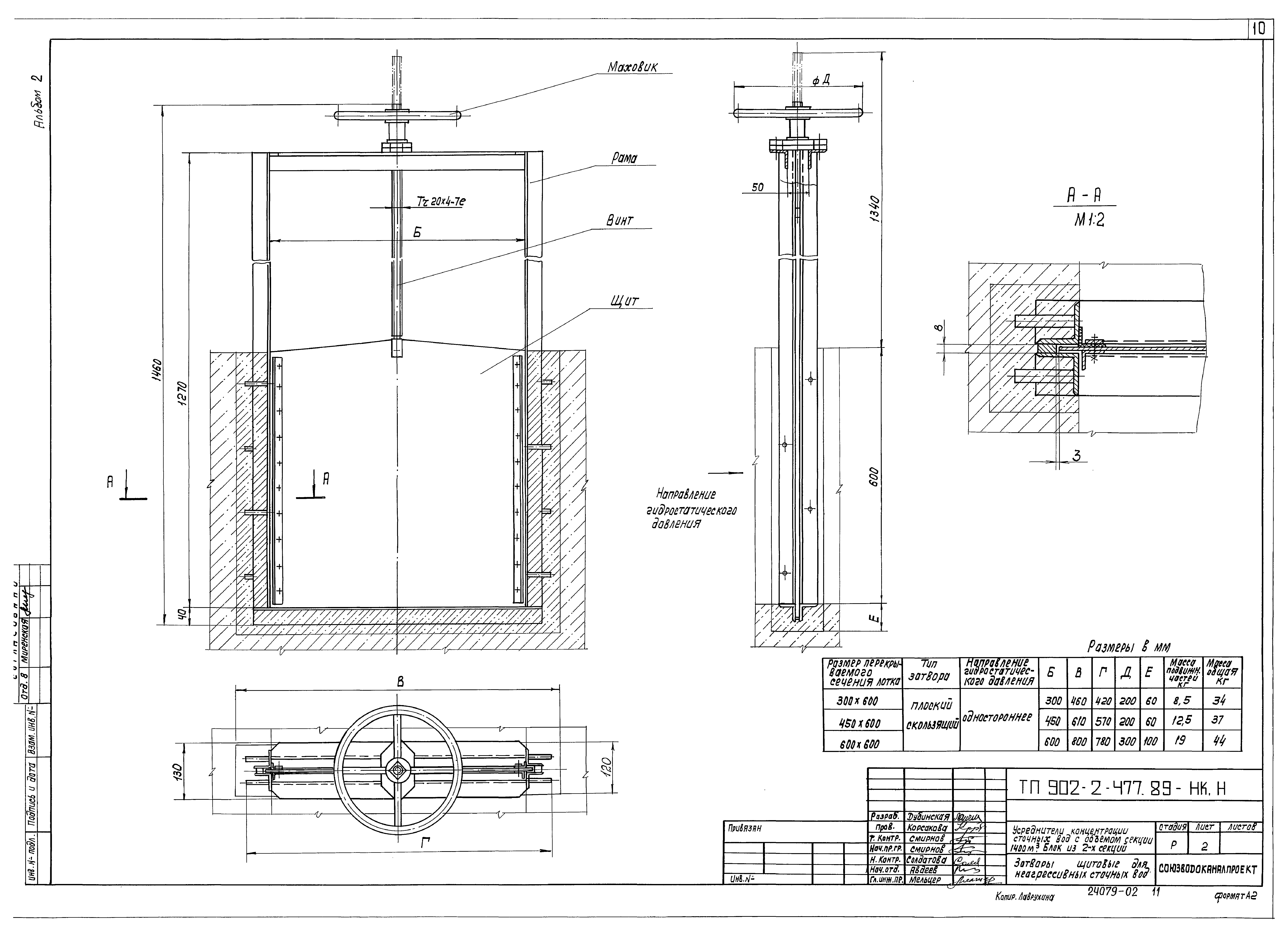
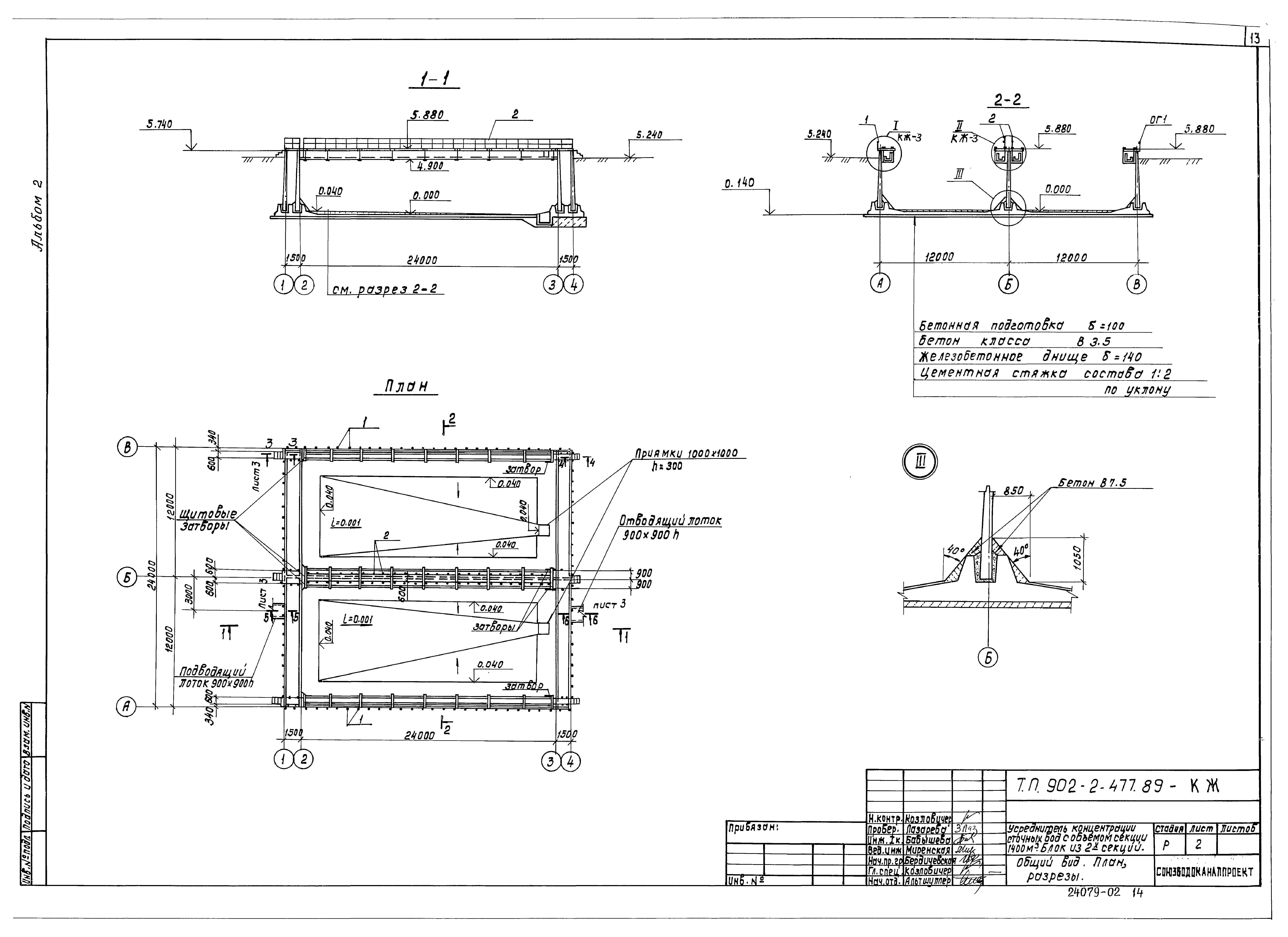
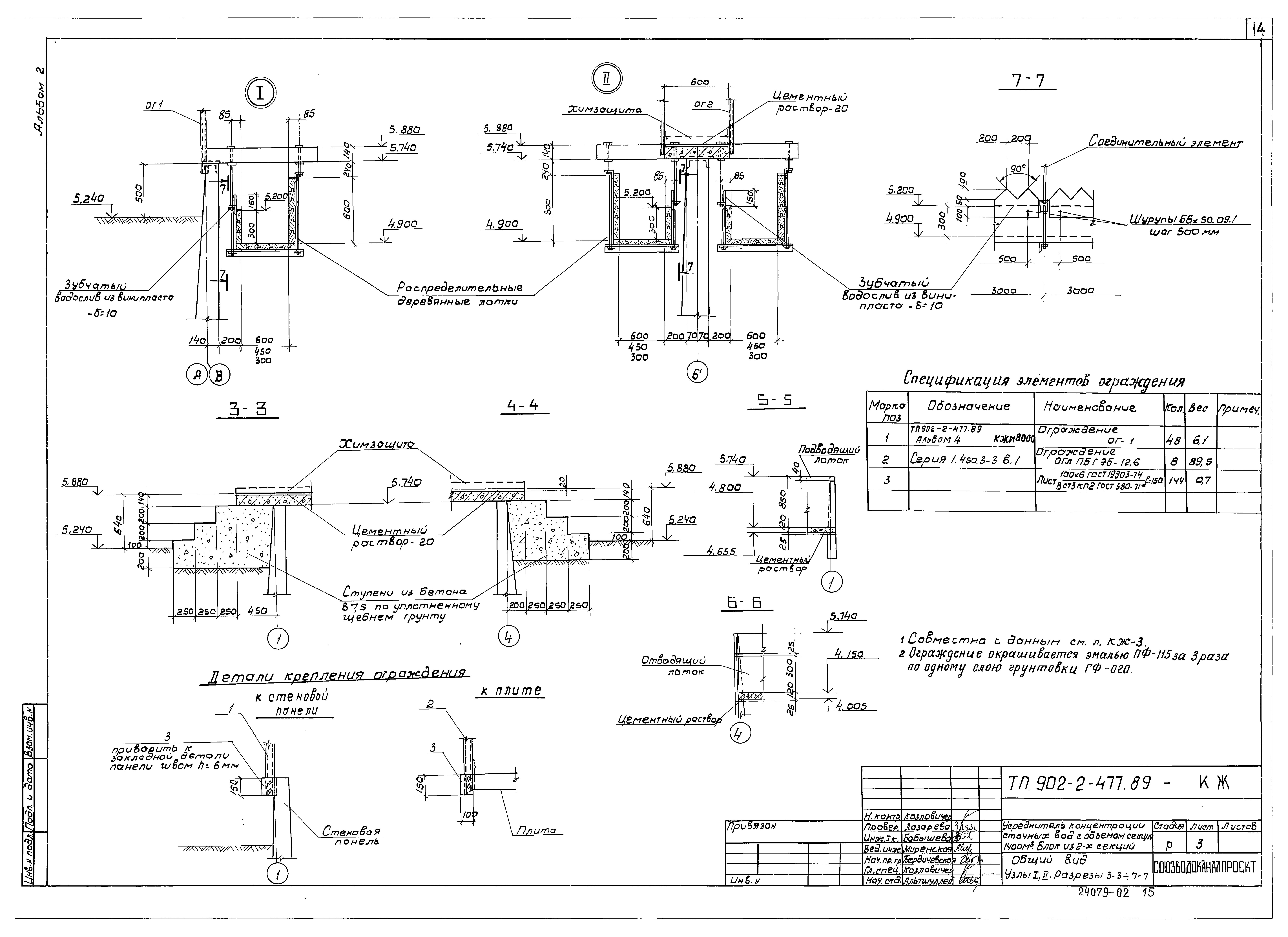
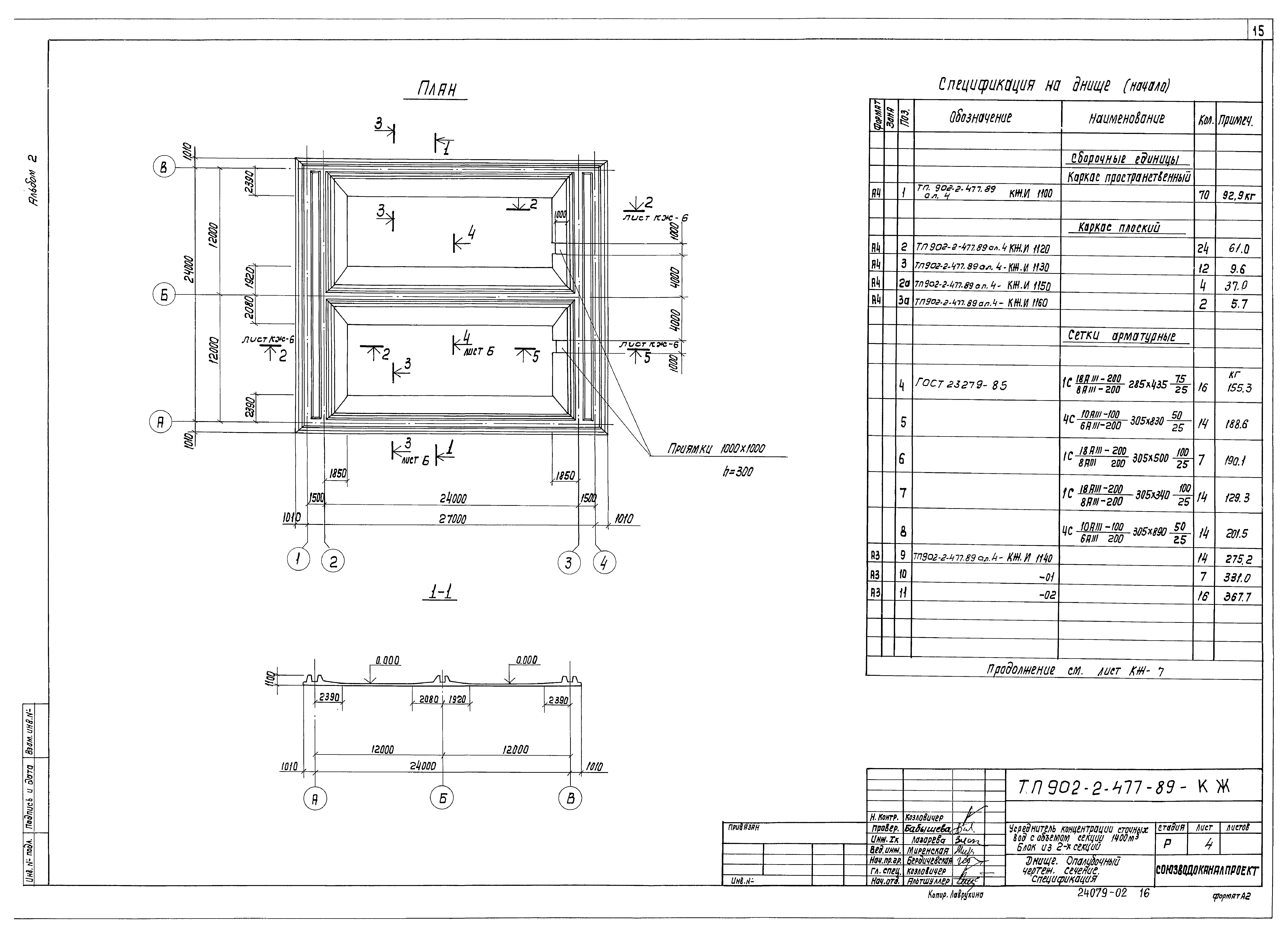
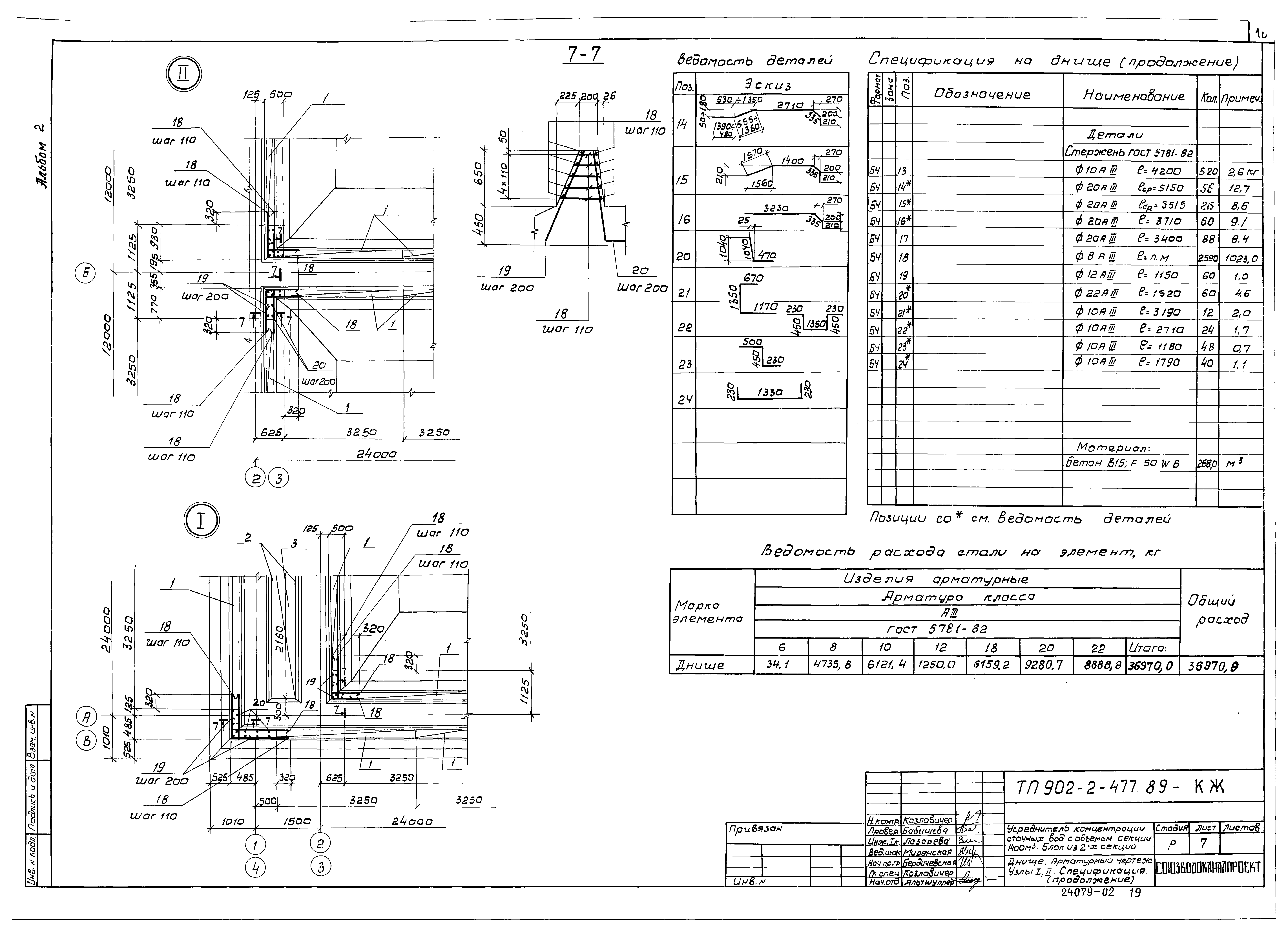
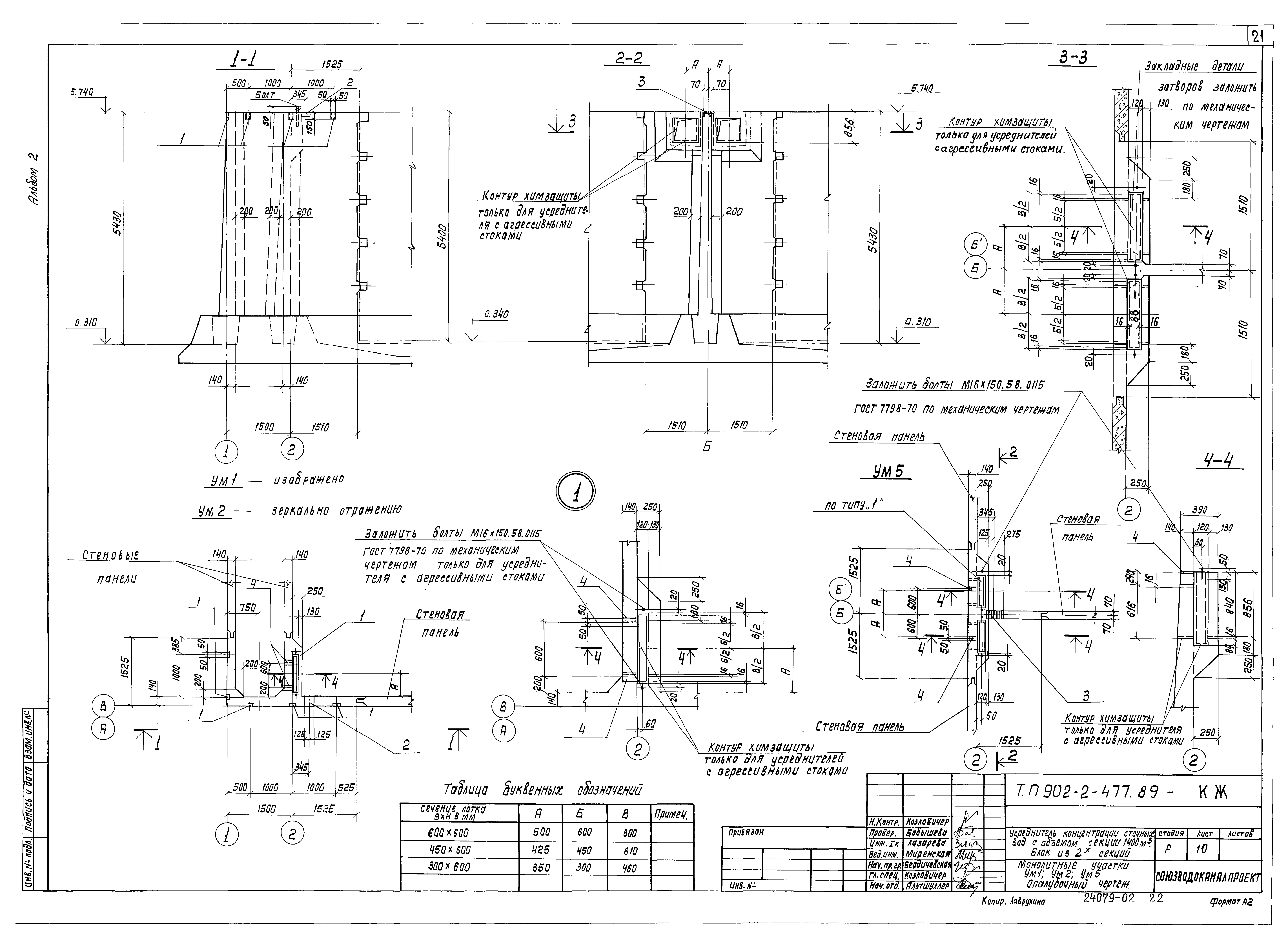
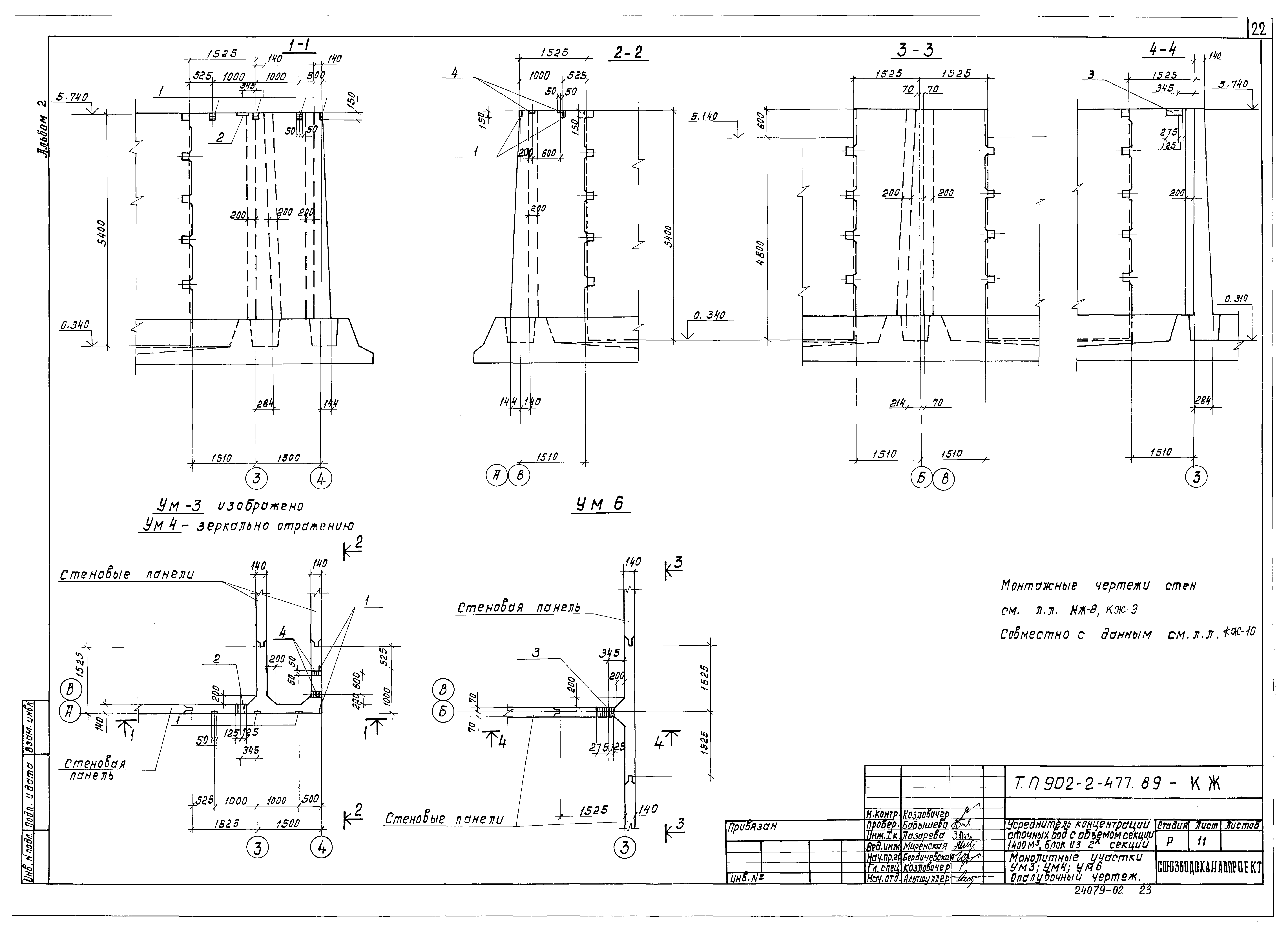
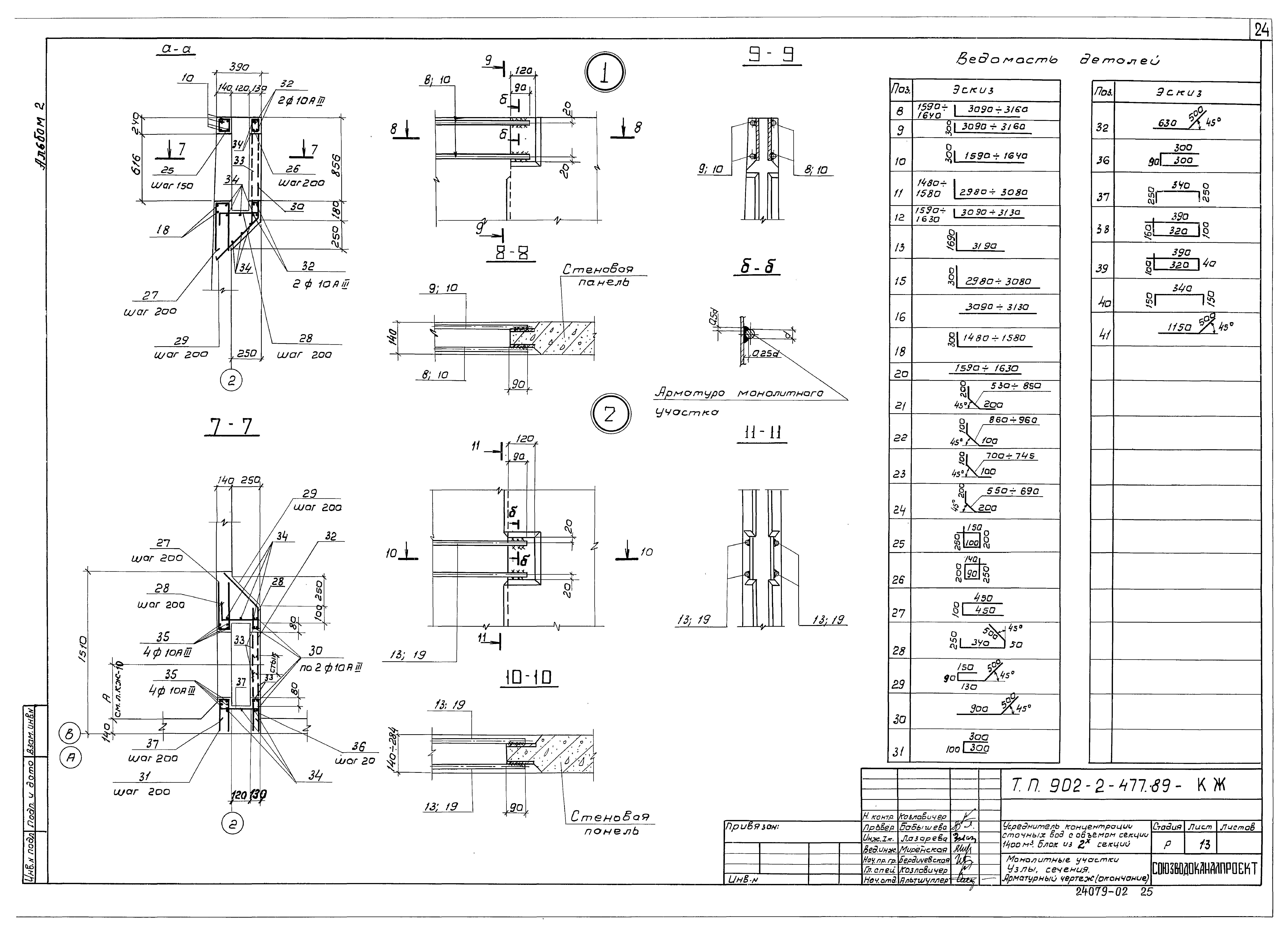
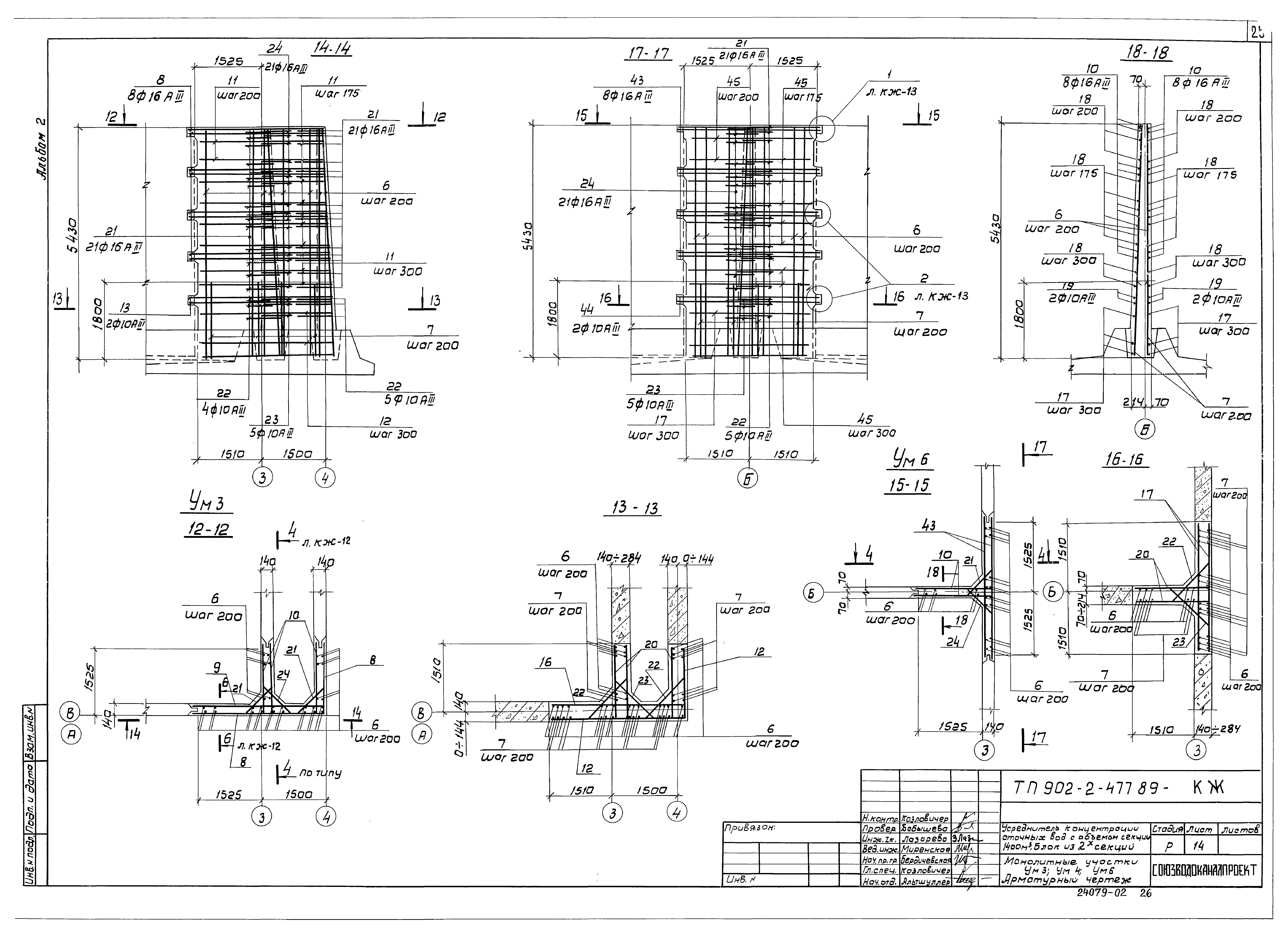
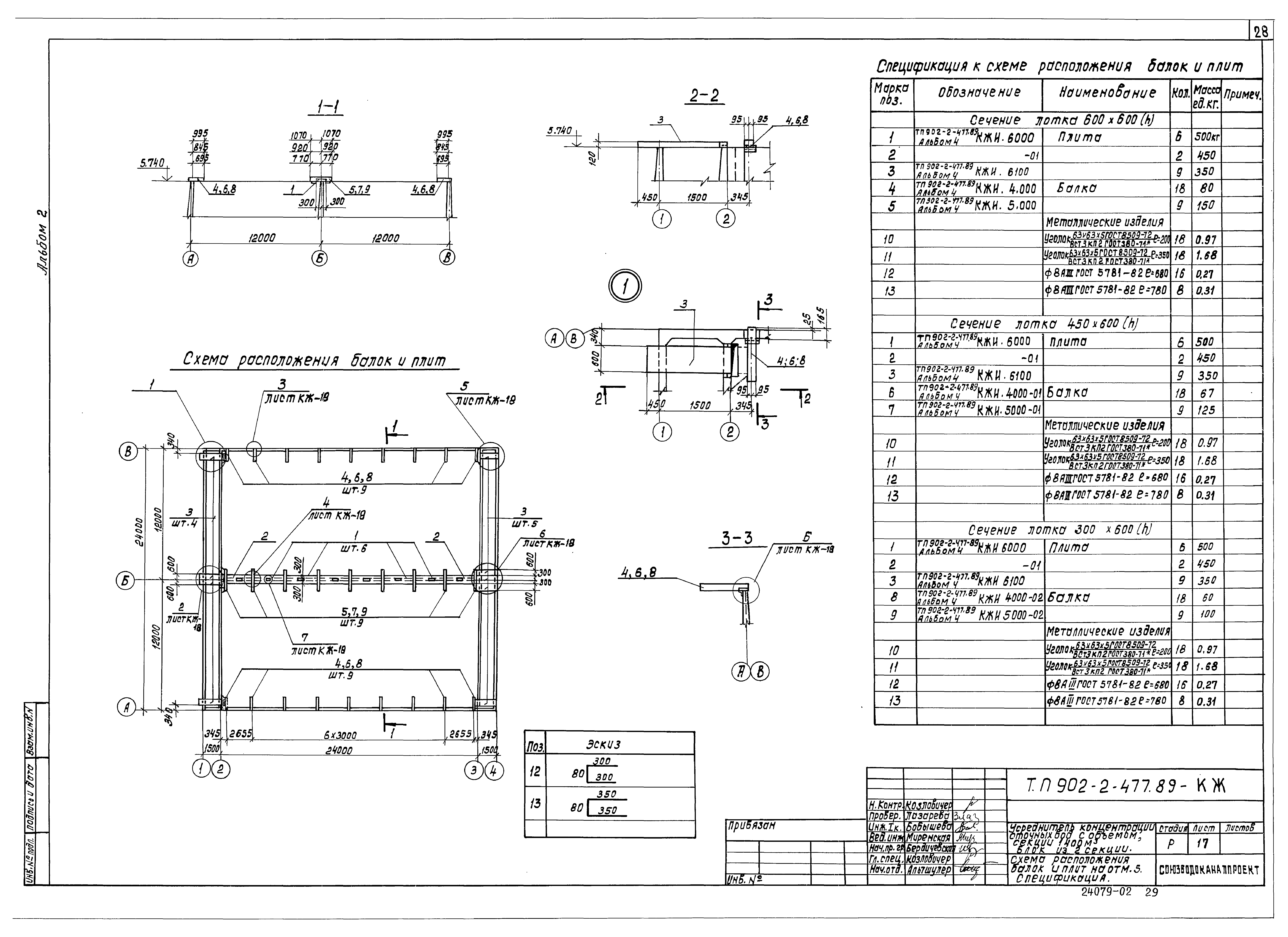
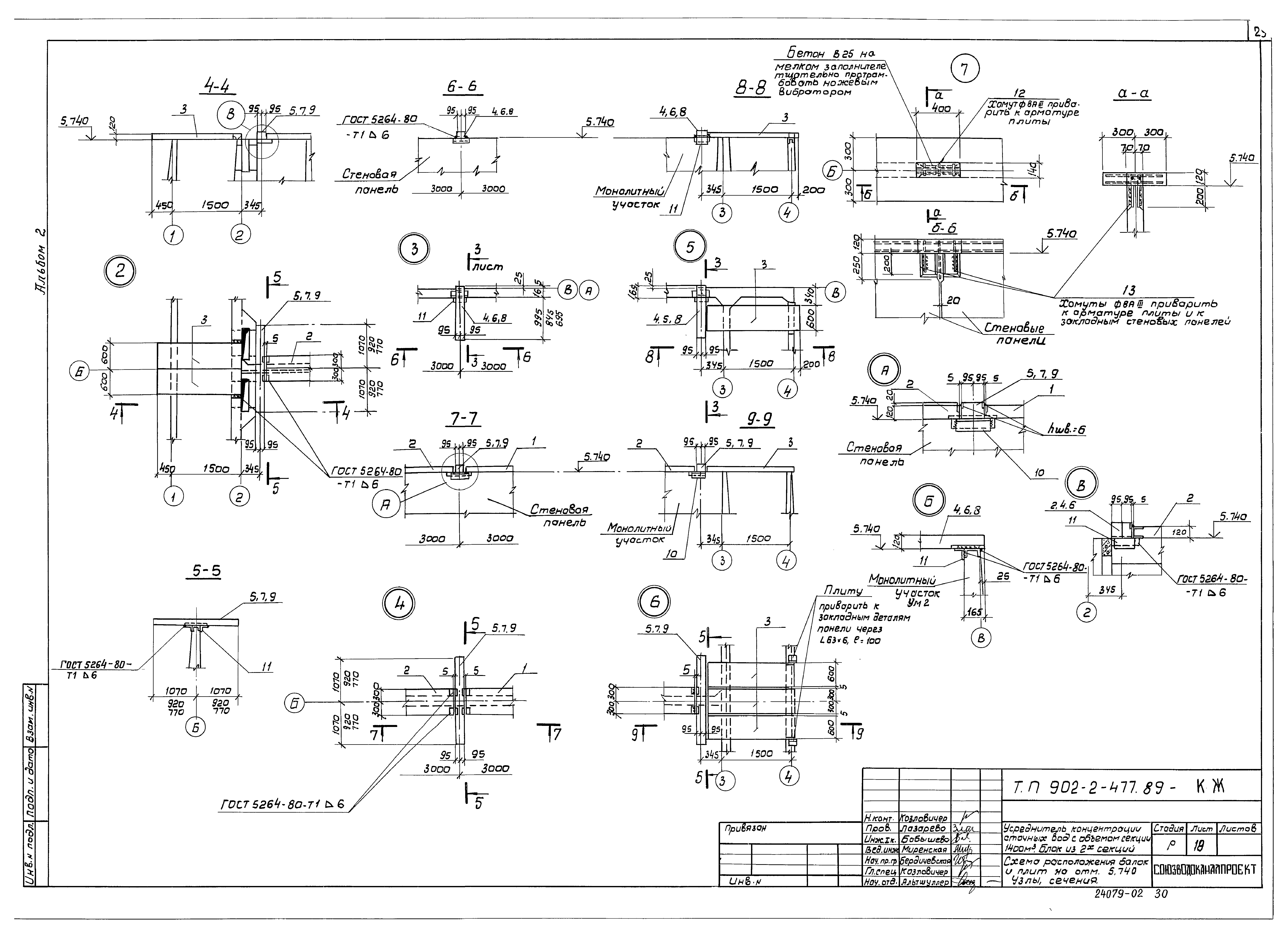
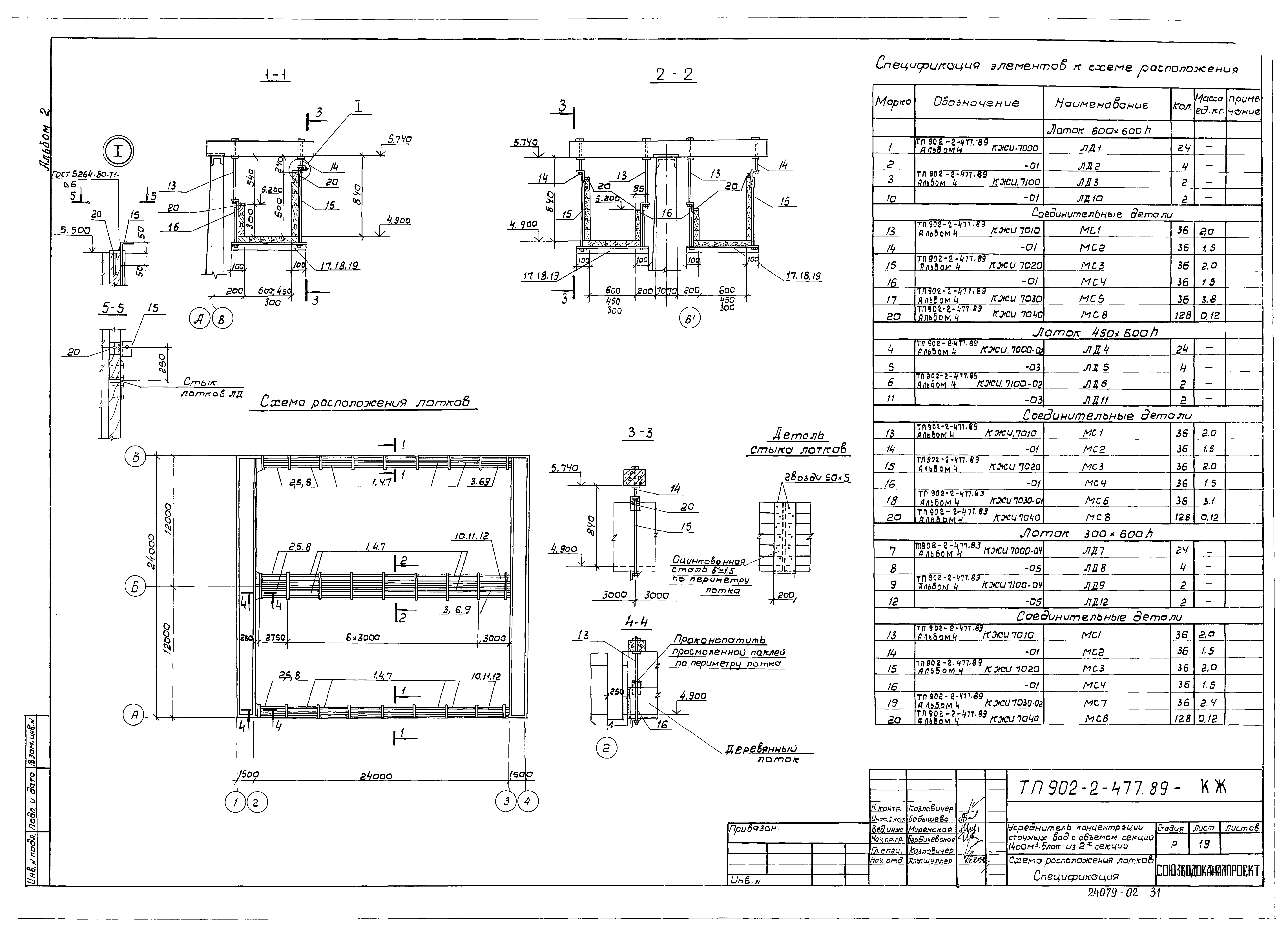
| Оглавление: | Содержание альбома Чертежи основного комплекта марки НК Общие данные План Разрезы 1-1 - 4-4. Узлы А, Б Аксонометрические схемы трубопроводов Спецификация оборудования Затвор щитовой деревянный 300х600 Затворы щитовые для неагрессивных сточных вод Затворы щитовые для агрессивных сточных вод Чертежи основного комплекта марки КЖ Общие данные Общий вид. План, разрезы Общий вид. Узлы I, II. Разрезы 3-3 - 7-7 Днище. Опалубочный чертеж. Сечения. Спецификация Днище. Арматурный чертеж. Сечения Днище. Арматурно-опалубочный чертеж. Сечения Днище. Арматурный чертеж. Узлы I, II. Спецификация Схема расположения стеновых панелей и монолитных участков. Виды 1-1 - 3-3 Схема расположения панелей. Виды 4-4 - 5-5 Монолитные участки Ум1, Ум2, Ум5. Опалубочный чертеж Монолитные участки Ум3, Ум4, Ум6. Опалубочный чертеж Монолитные участки Ум1, Ум2. Арматурный чертеж Монолитные участки. Узлы, сечения. Арматурный чертеж Монолитные участки Ум3, Ум4, Ум6. Арматурный чертеж Монолитный участок Ум5. Арматурный чертеж Монолитные участки Ум1 - Ум6. Спецификация Схема расположения балок и плит на отм. 5.74. Узлы, сечения Схема расположения балок и плит на отм. 5.74. Спецификация Схема расположения лотков. Спецификация Чертежи основного комплекта марки ОС Общие данные. Стройгенплан График производства основных строительных и монтажных работ |
| Разработан: | Союзводоканалпроект Проектхимзащита Минмонтажспецстроя СССР |
| Утверждён: | 28.09.1989 Союзводоканалпроект (Soyuzvodokanalproject 86) |
| Заменяет собой: |
|
































