Скачать Типовой проект 902-2-450.88 Альбом II. Технологические решения. Архитектурные решения. Конструкции железобетонные. Конструкции металлические. Отопление и вентиляция. Внутренний водопровод и канализация. Электротехническая часть. Автоматизация. Связь и сигнализация. Строительные изделияДата актуализации: 01.01.2021
|
| Обозначение: | Типовой проект 902-2-450.88 |
| Обозначение англ: | 902-2-450.88 |
| Статус: | не определен законодательством |
| Название рус.: | Альбом II. Технологические решения. Архитектурные решения. Конструкции железобетонные. Конструкции металлические. Отопление и вентиляция. Внутренний водопровод и канализация. Электротехническая часть. Автоматизация. Связь и сигнализация. Строительные изделия |
| Дата добавления в базу: | 01.10.2014 |
| Дата актуализации: | 01.01.2021 |
| Дата введения: | 01.09.1988 |
| Дата окончания срока действия: | 30.06.2003 |
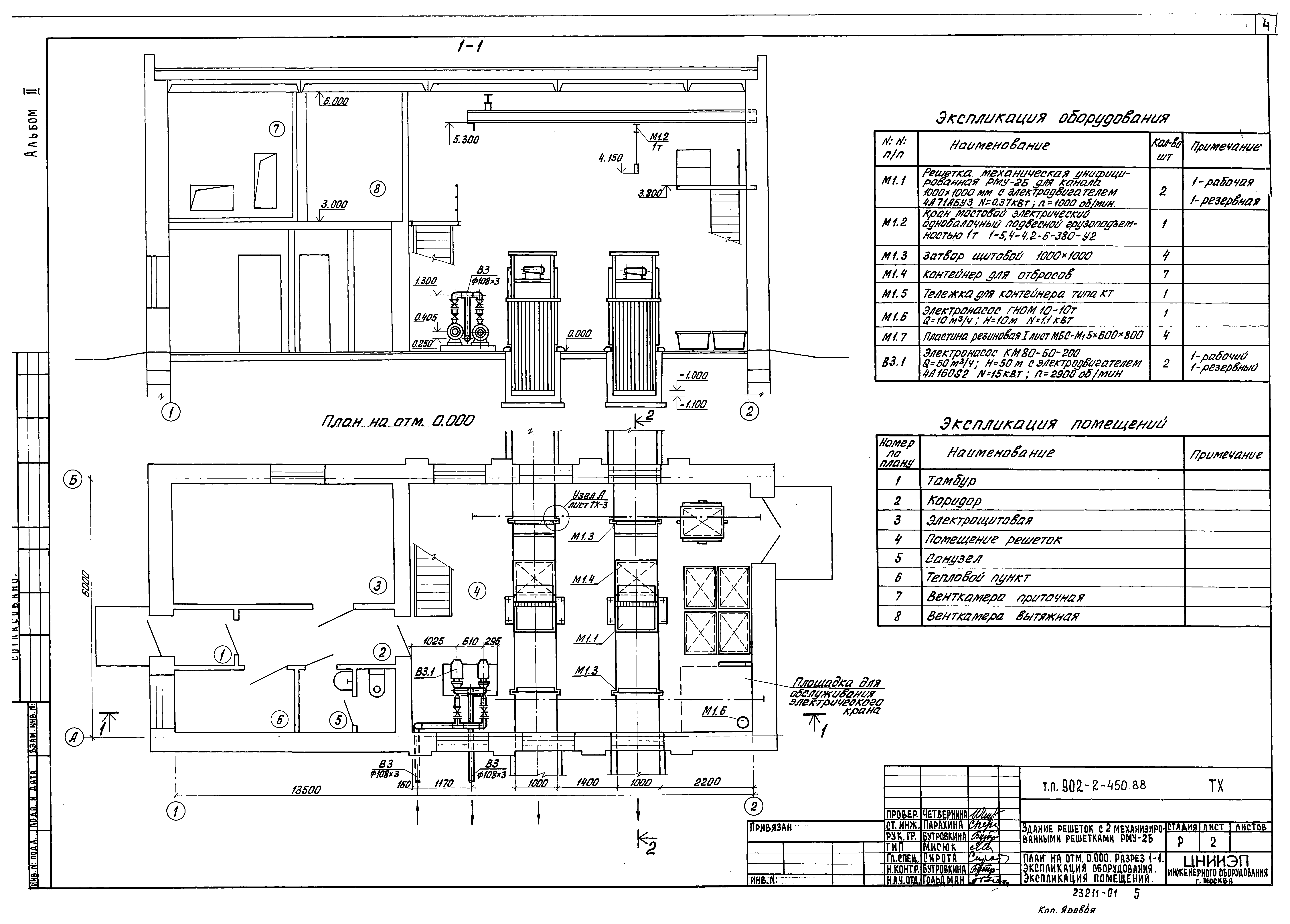
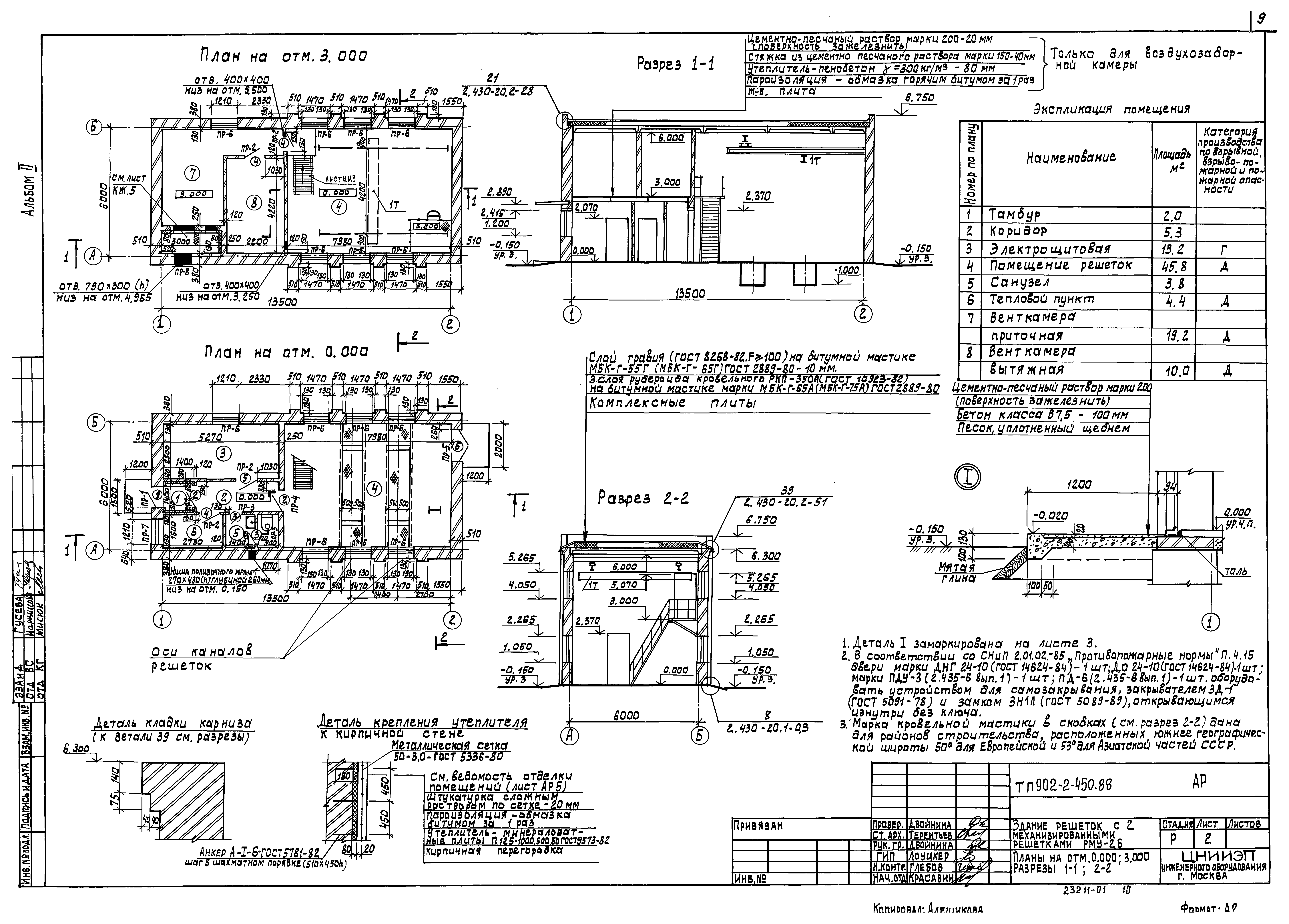
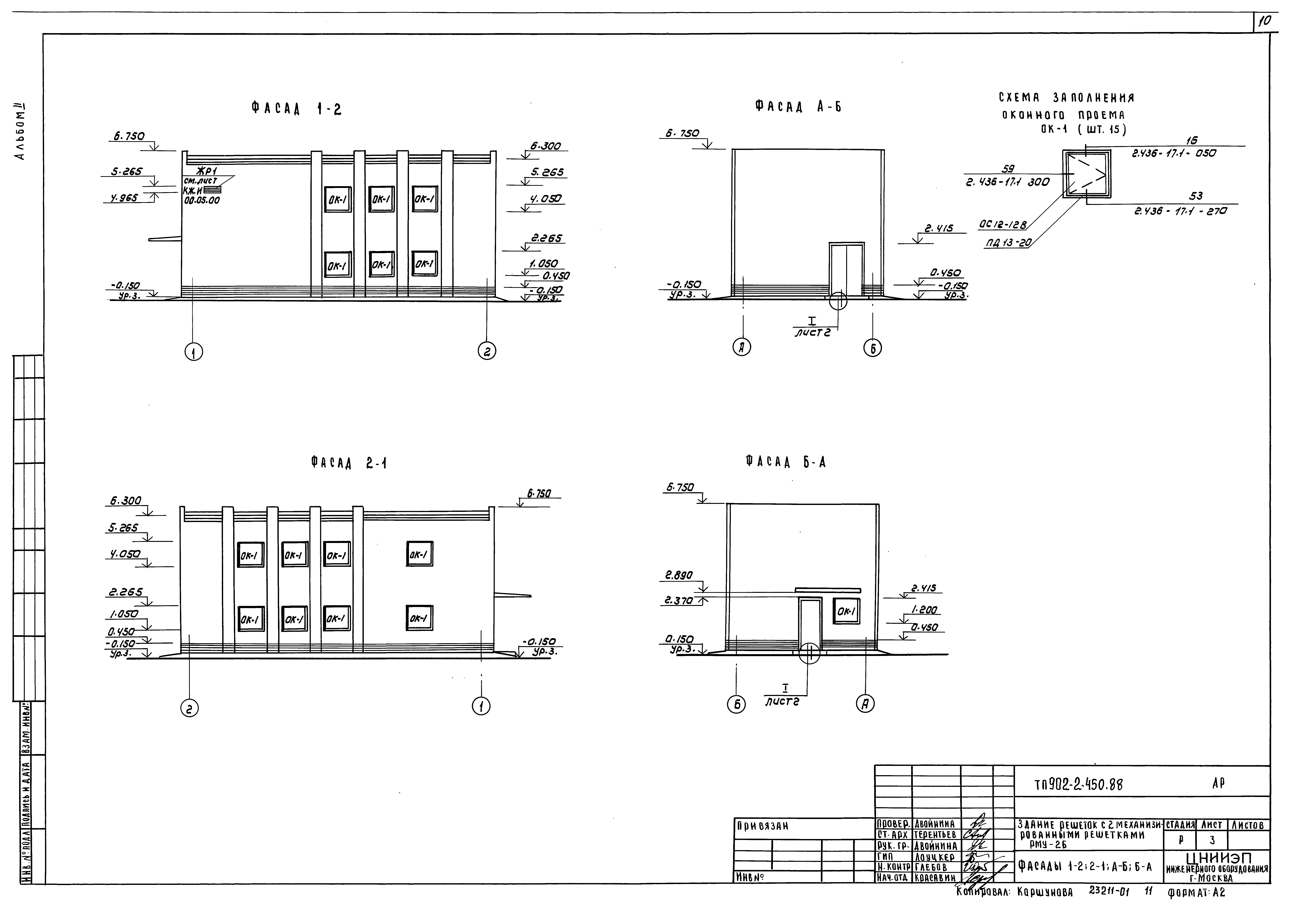
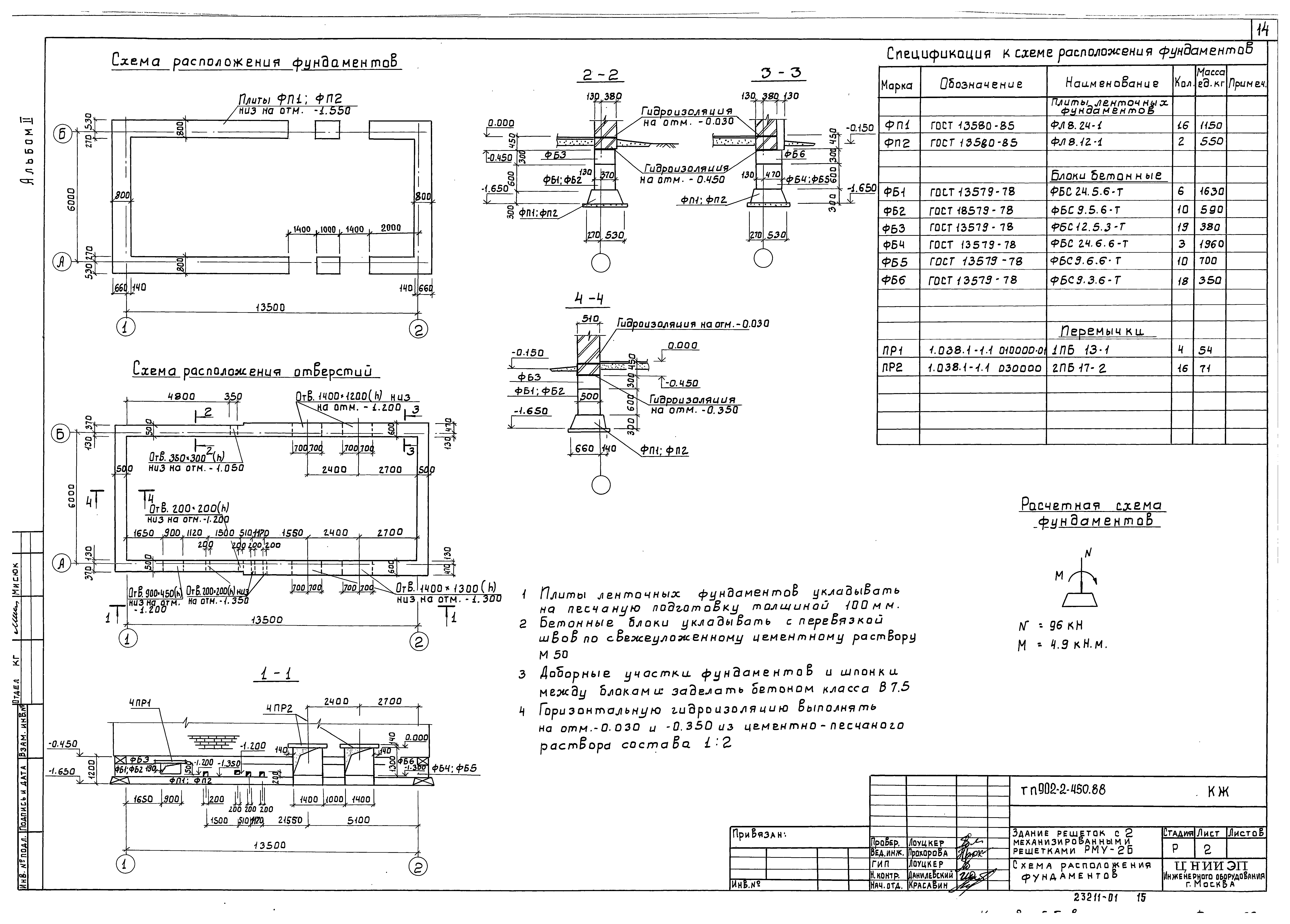
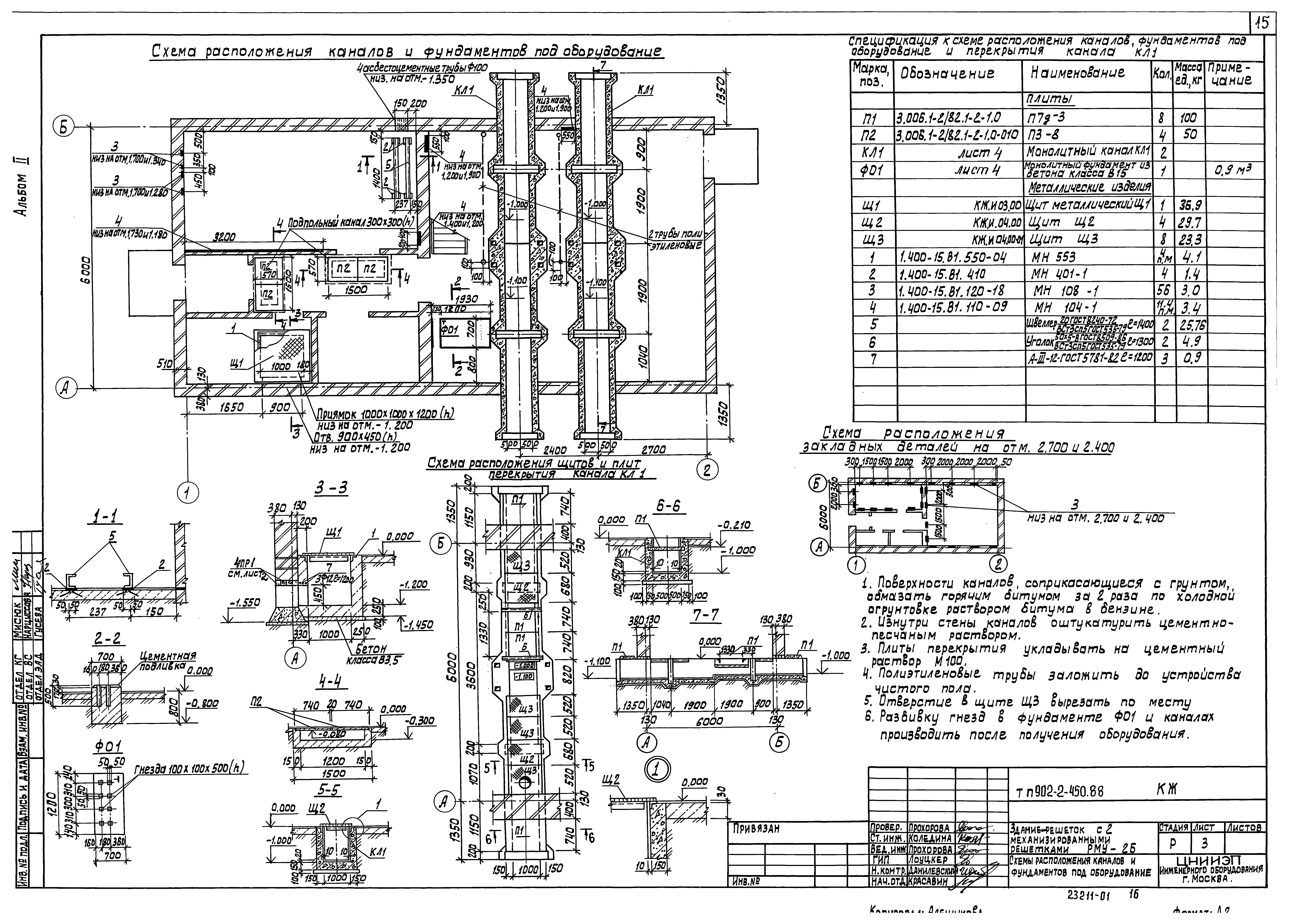
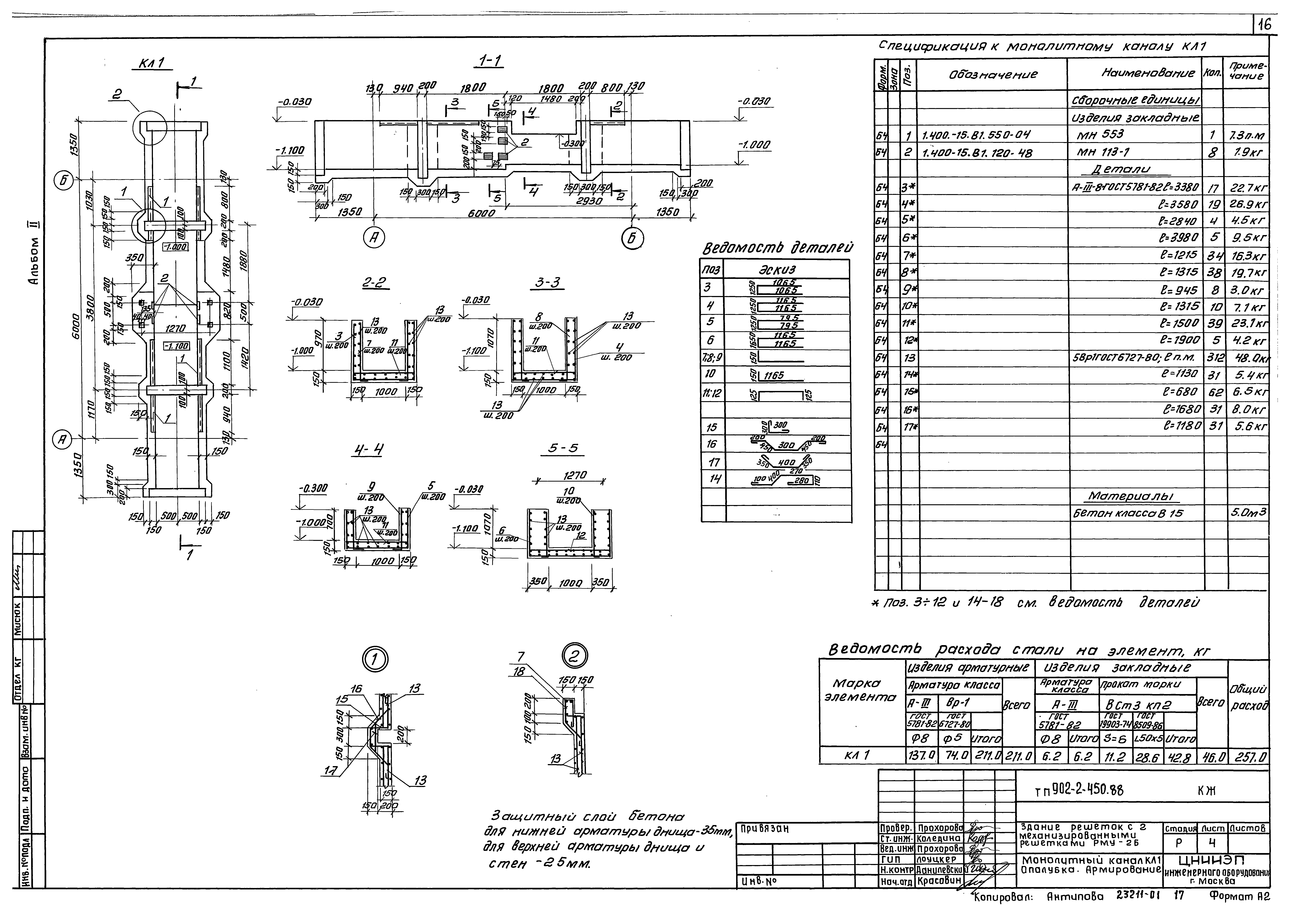
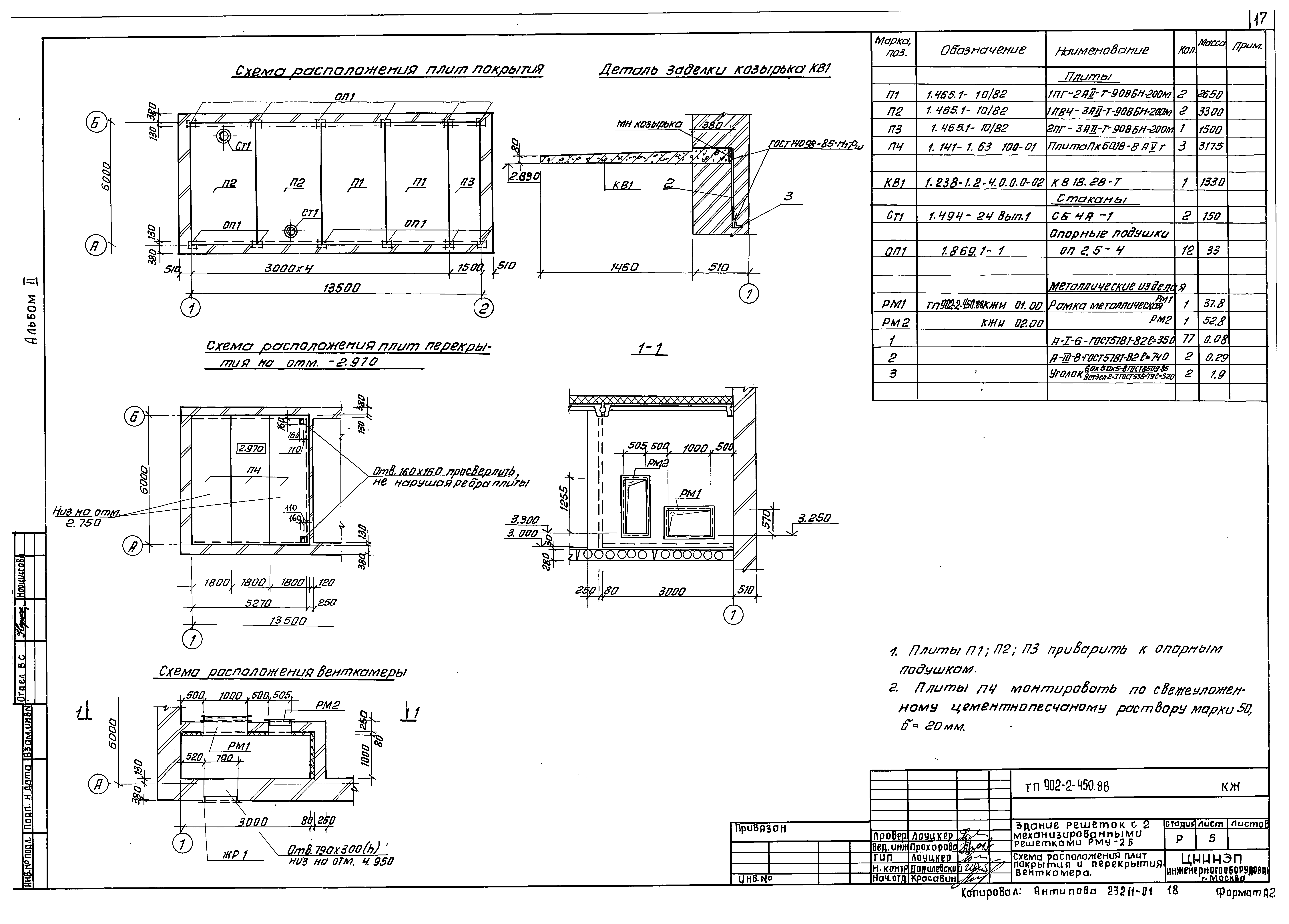
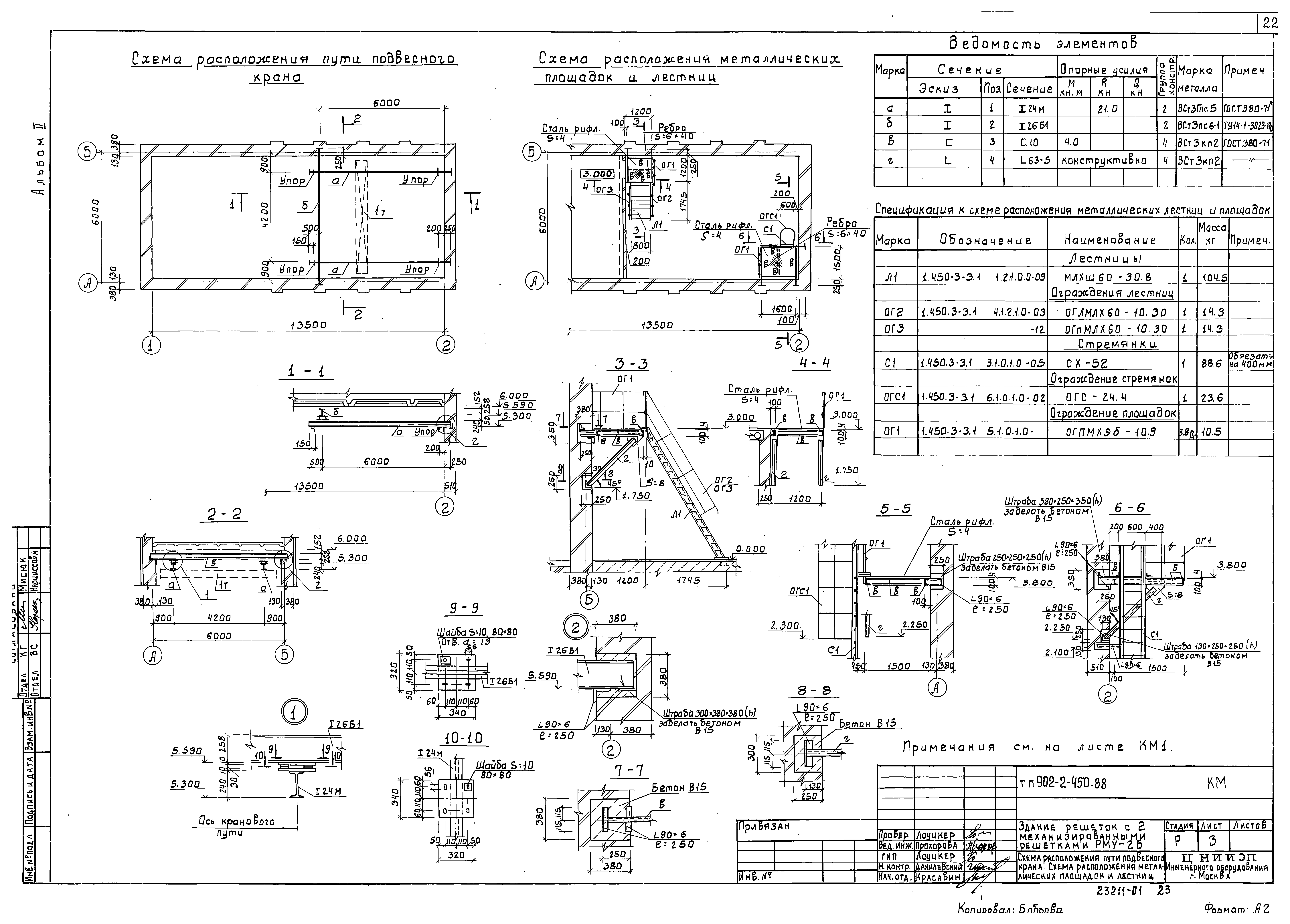
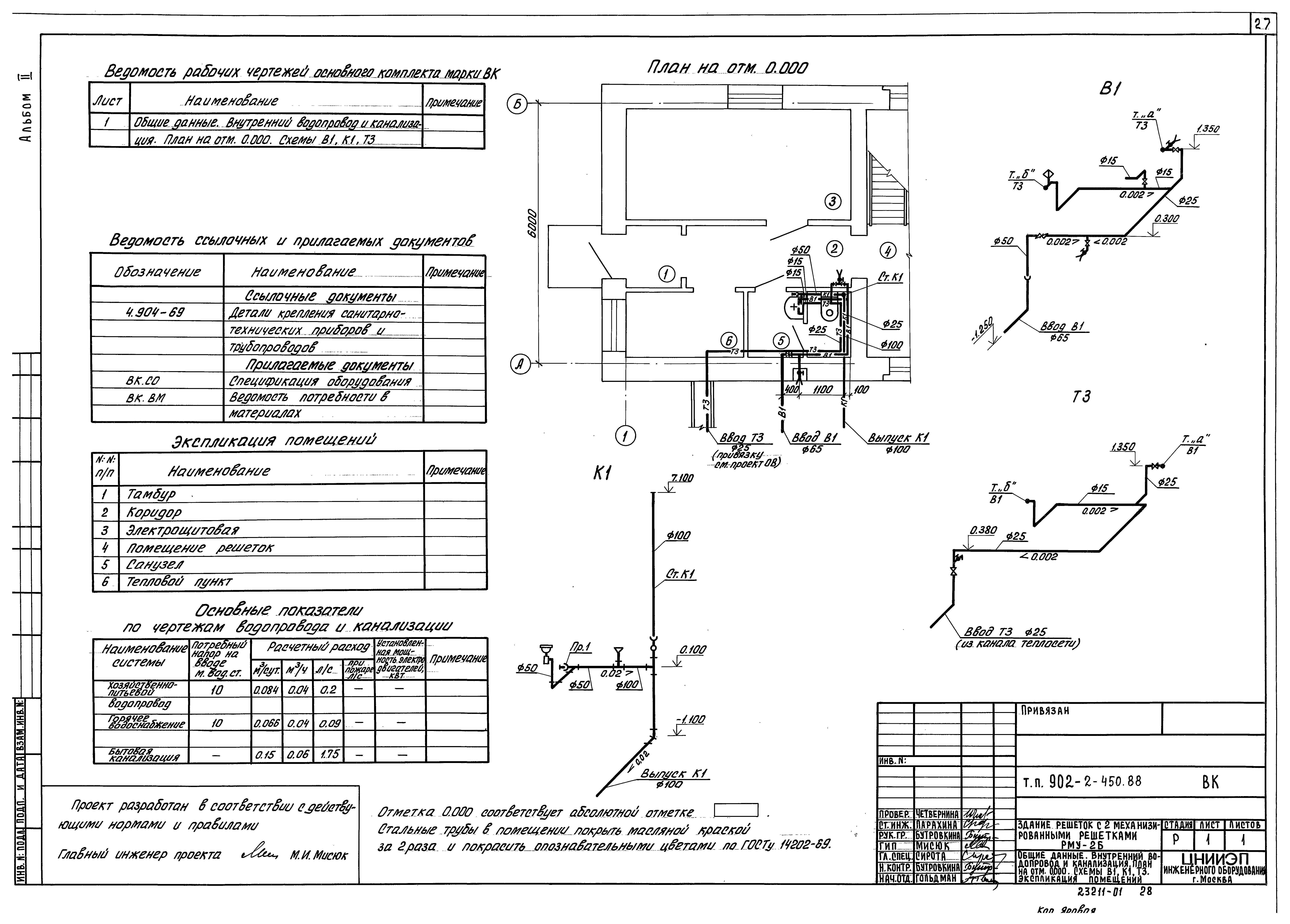
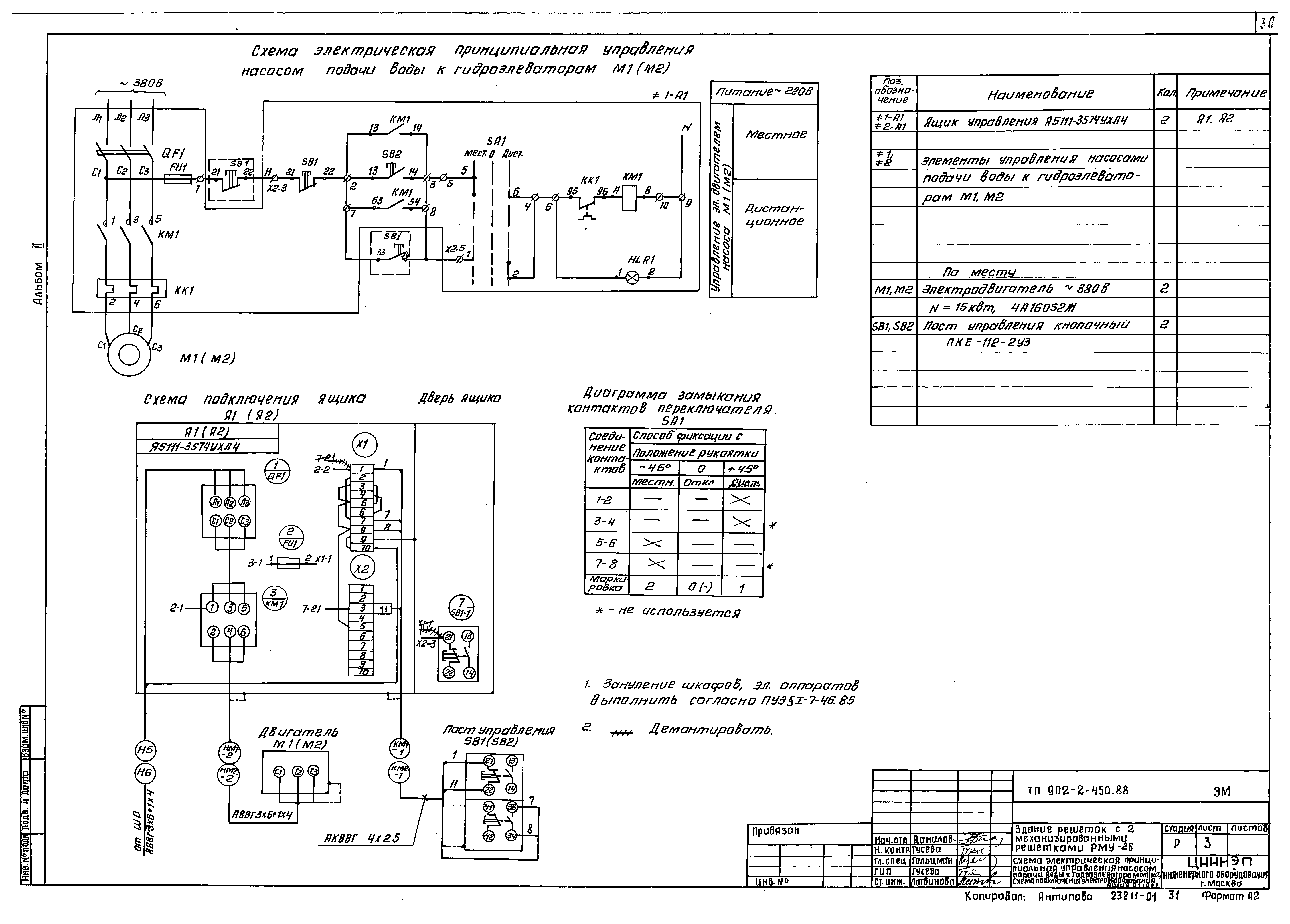
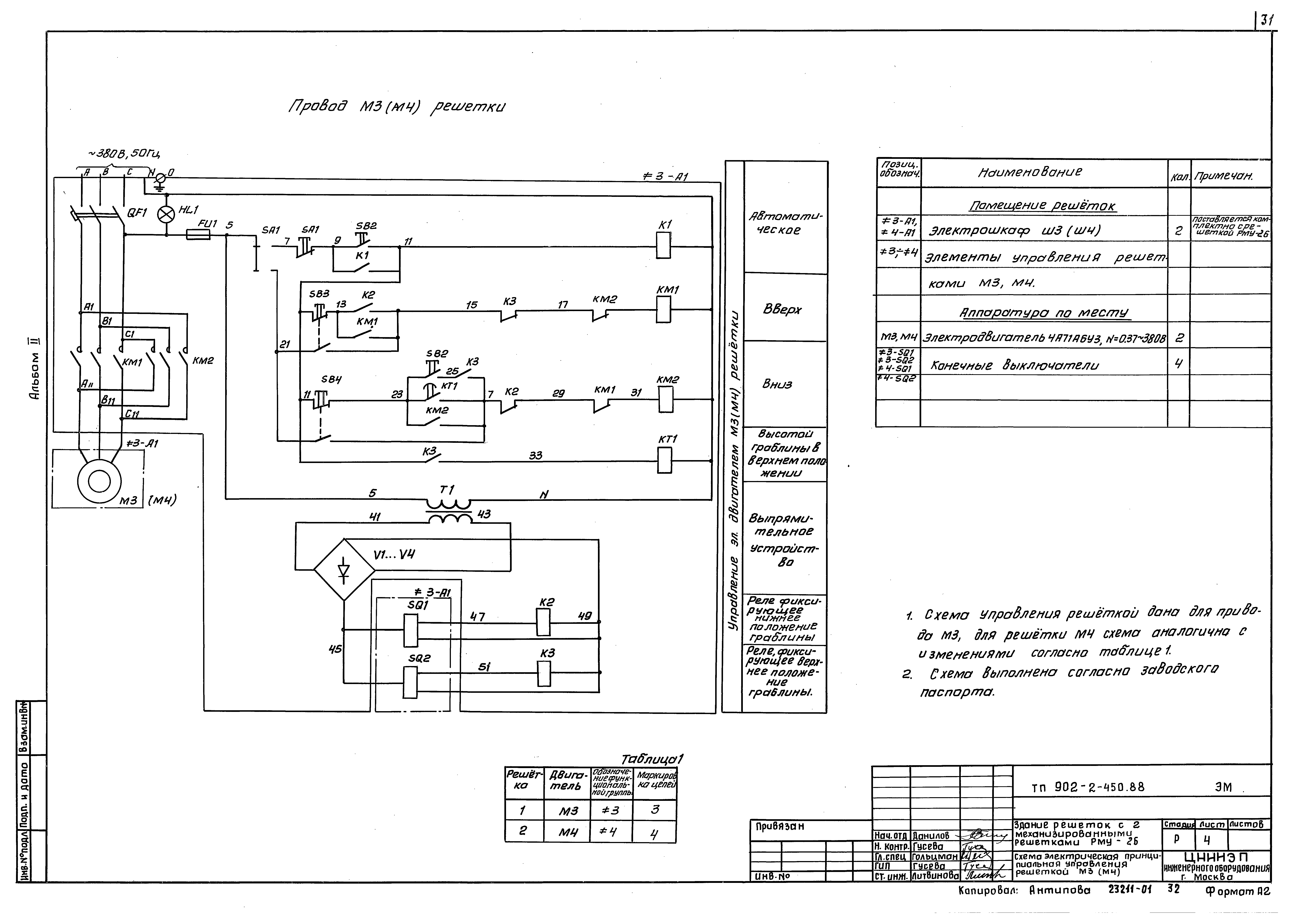
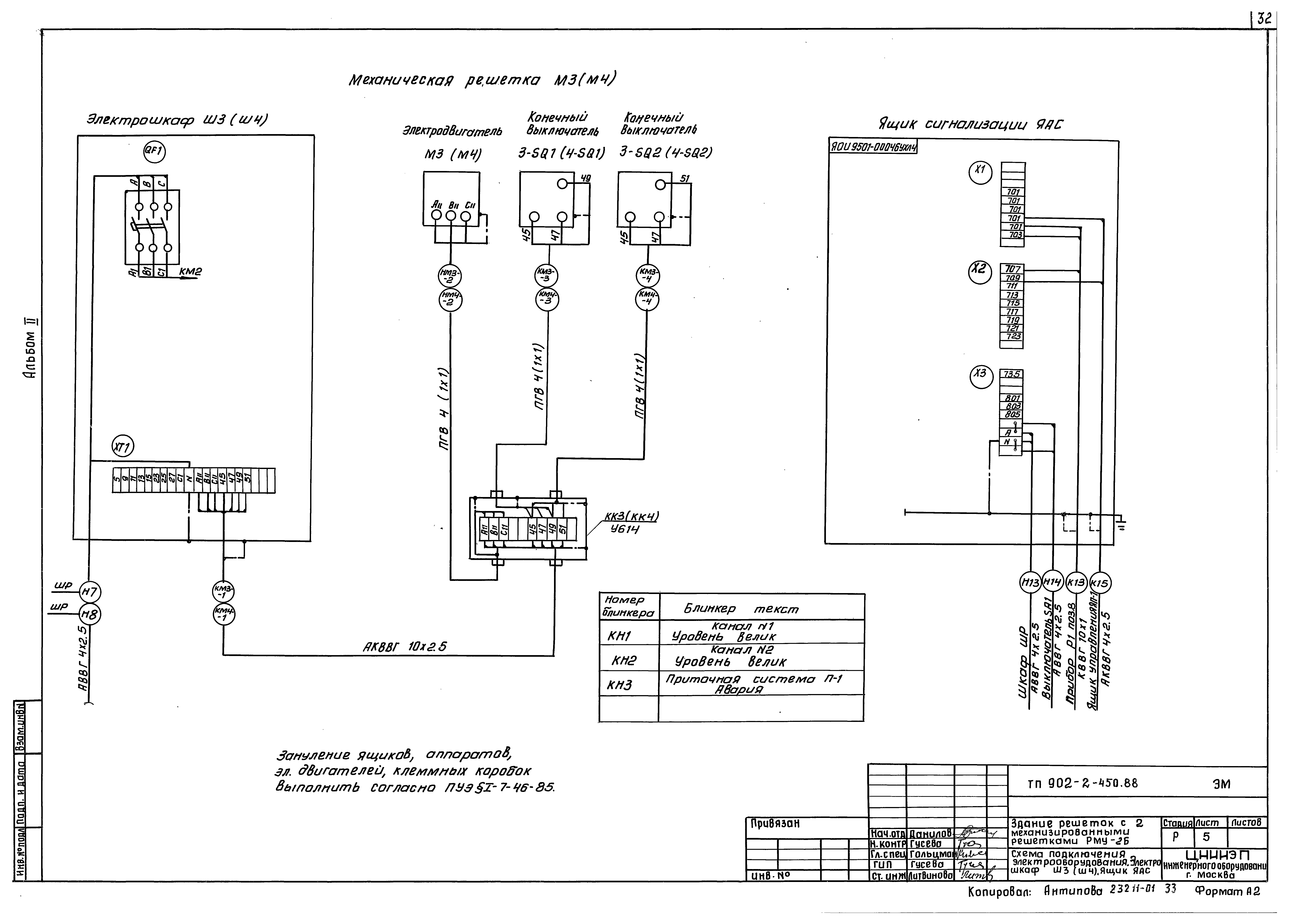
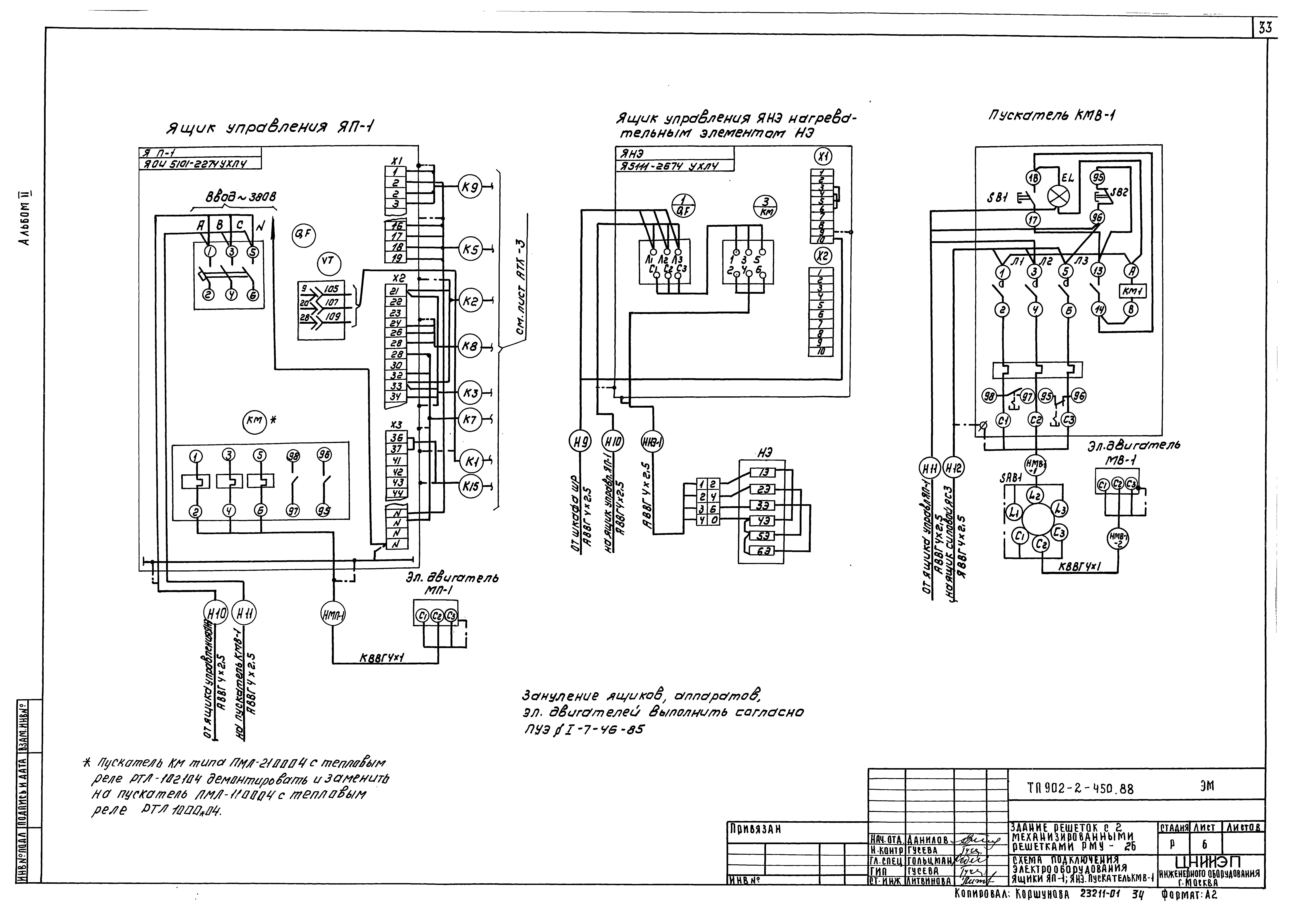
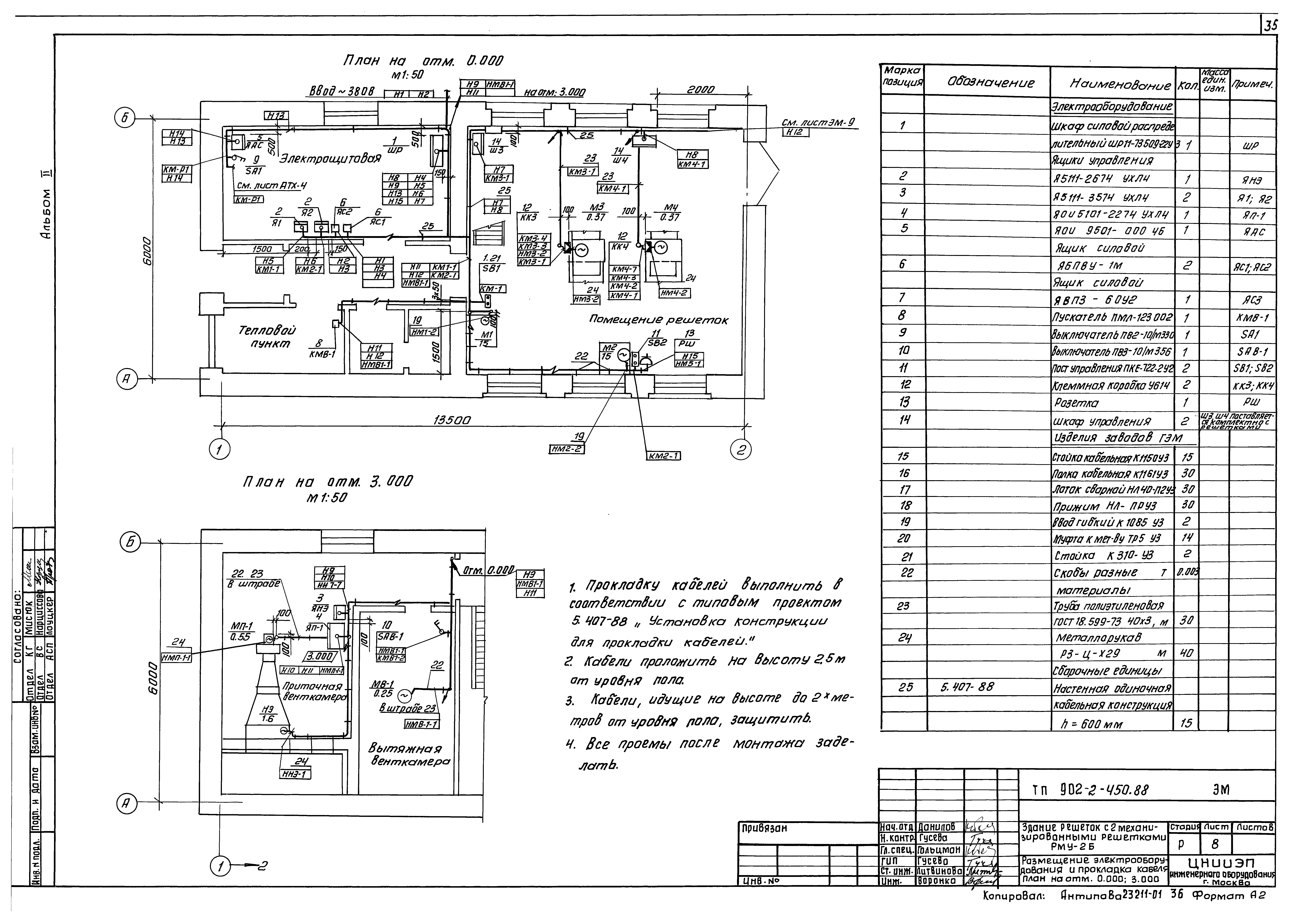
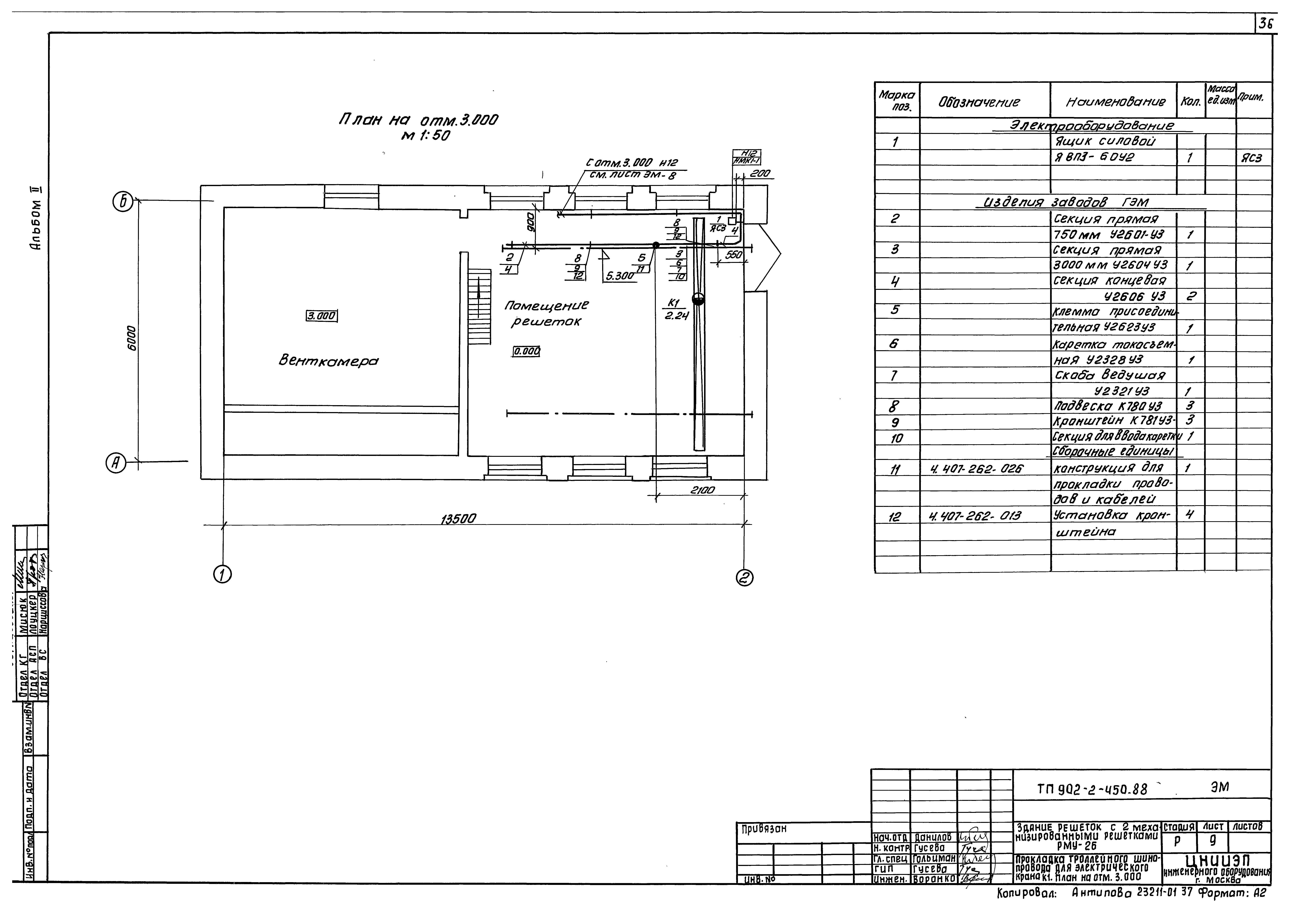
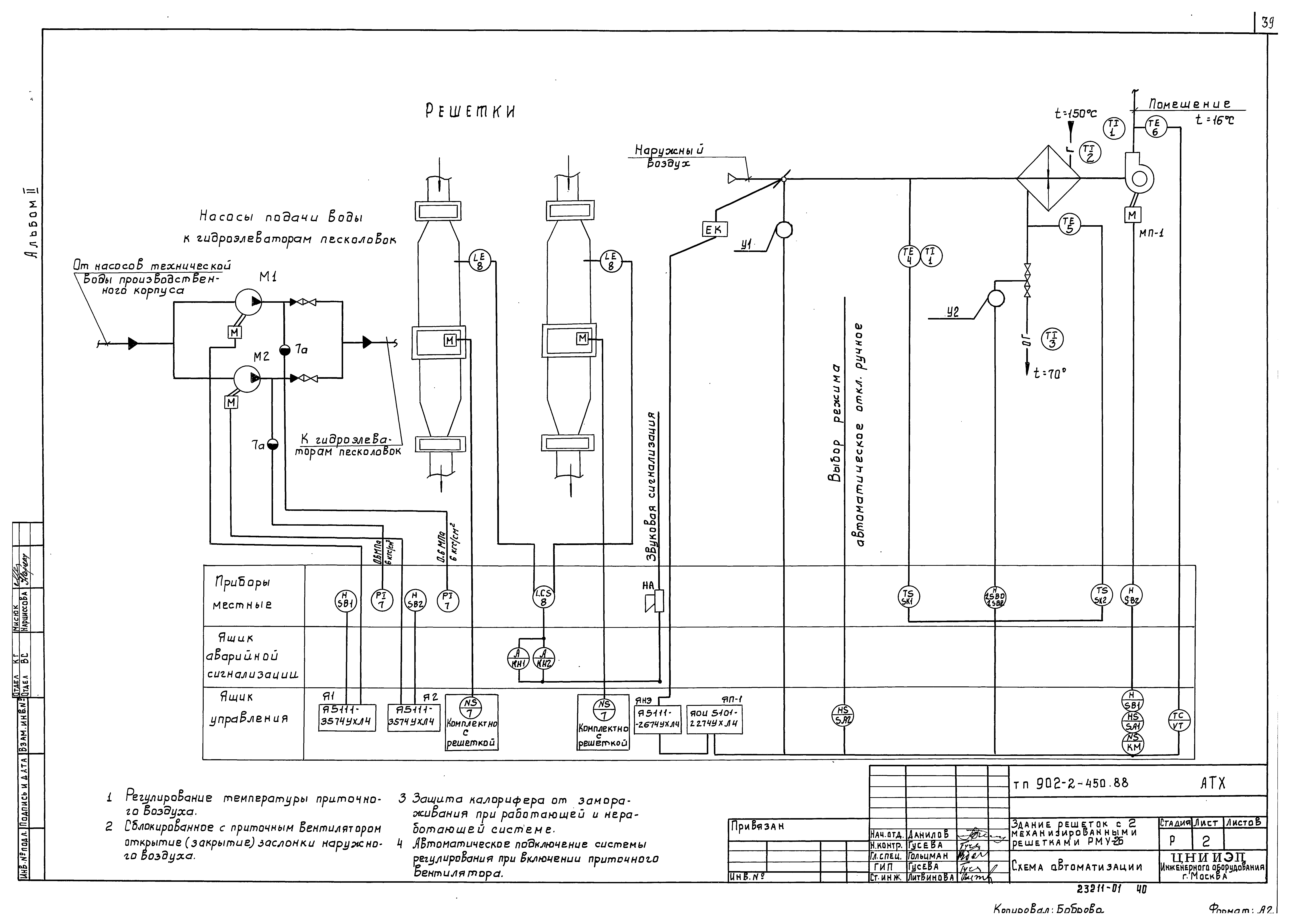
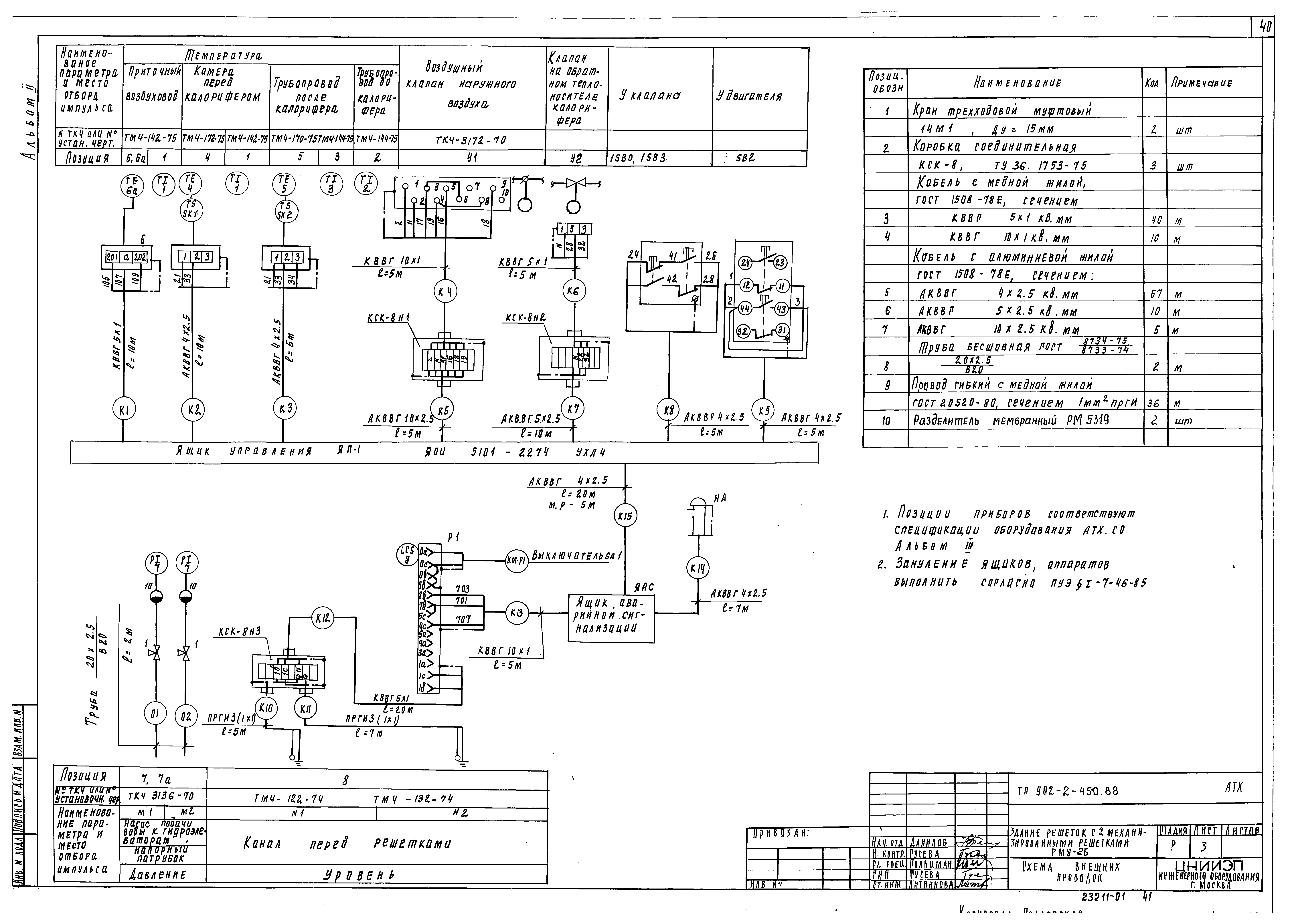
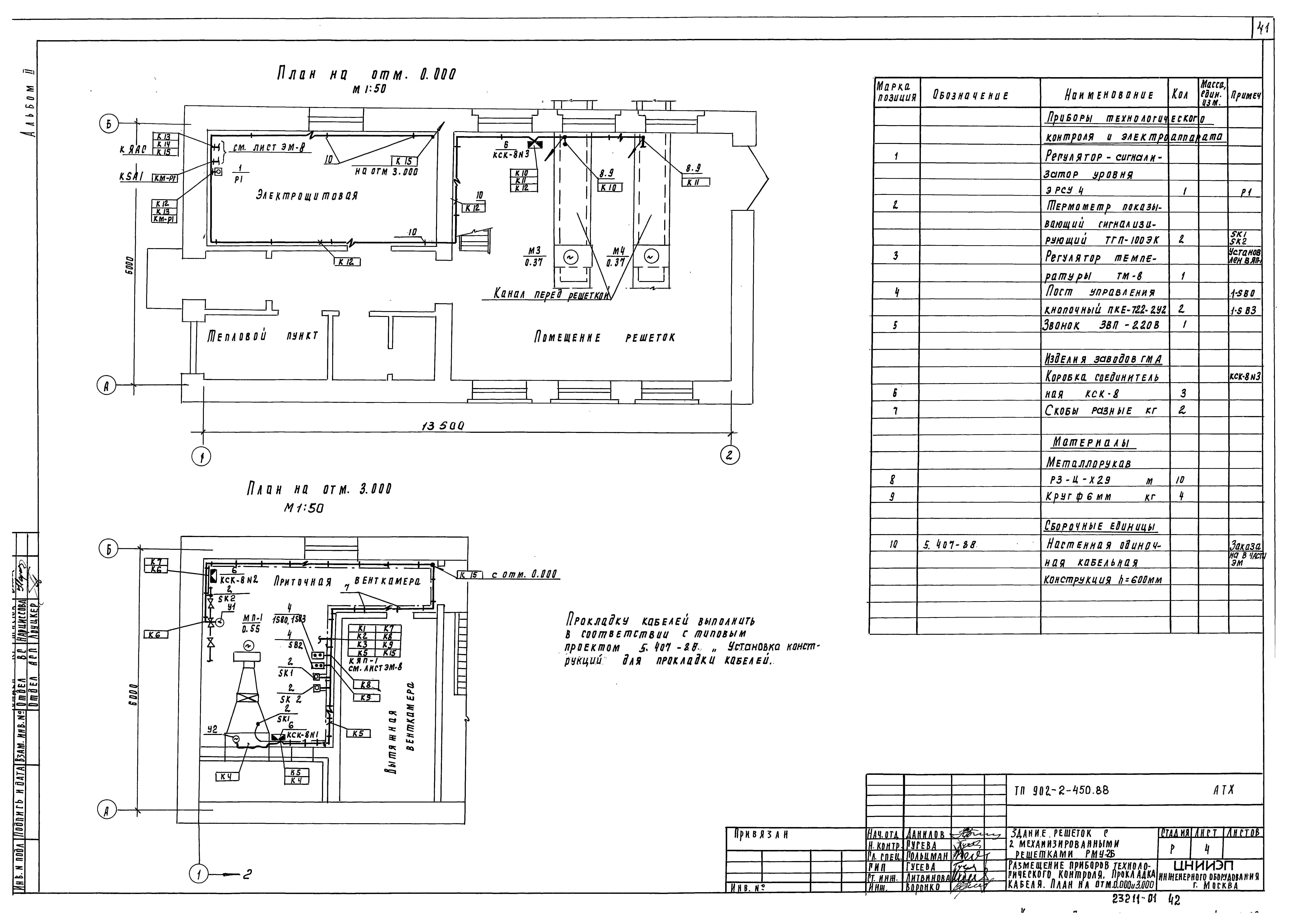
| Оглавление: | Содержание альбома Технологические решения Общие данные План на отм. 0.000. Разрез 1-1. Экспликация оборудования. Экспликация помещений Разрез 2-2. Схема В3. Узел А Контейнер. Эскизный чертеж общего вида Затвор щитовой. Эскизный чертеж общего вида Архитектурные решения Общие данные Планы на отм. 0.000; 3.000 Фасады 1 - 2; 2 - 1; А - Б; Б - А Планы кровли и полов. Экспликация полов. Ведомость отделки помещений Ведомость и спецификация перемычек. Спецификация элементов заполнения проемов. Ведомость проемов дверей Конструкции железобетонные Общие данные Схема расположения фундаментов Схемы расположения каналов и фундаментов под оборудование Монолитный канал КЛ1. Опалубочный чертеж. Армирование Схемы расположения плит покрытия и перекрытия. Венткамера Рамка металлическая РМ1 Рамка металлическая РМ2 Щит Щ1 Щит (Щ2, Щ3) Жалюзийная решетка МР1 Конструкции металлические Общие данные. Ведомость металлоконструкций по видам профилей Техническая спецификация стали Схема расположения пути подвесного крана. Схема расположения металлических площадок и лестниц Отопление и вентиляция Общие данные Планы на отм. 0.000; 3.000. Схема системы отопления. Схемы вентиляции П1, В1, ВЕ1. Узел управления Установка систем П1, В1. Схема системы теплоснабжения Конфузор. Переход Внутренний водопровод и канализация Общие данные. Внутренний водопровод и канализация. План на отм. 0.000. Схемы В1, Т3, К1. Экспликация помещений Силовое электрооборудование Общие данные Схема электрическая принципиальная распределительной сети 380/220 В Схема электрическая принципиальная управления насосом подачи воды к гидроэлеваторам М1 (М2). Схема подключения электрооборудования. Ящик Я1 (Я2) Схема электрическая принципиальная управления решеткой М3 (М4) Схема подключения электрооборудования. Электрошкаф Ш3 (Ш4). Ящик ЯАС Схема подключения электрооборудования. Ящики ЯП-1, ЯНЭ. Пускатель КМВ-1 Кабельный журнал. Сводка кабелей и проводов учтенных кабельным журналом Размещение электрооборудования и прокладка кабеля. План на отм. 0.000; 3.000 Прокладка троллейного шинопровода для электрического крана К1. План на отм. 3.000 Электрическое освещение Общие данные. Электрическое освещение. Планы на отм. 0.000 и 3.000 Автоматизация Общие данные Схема автоматизации Схема внешних проводок Размещение приборов технологического контроля и прокладка кабеля. План на отм. 0.000 Связь и сигнализация Общие данные. План на отм. 0.000 с сетями связи и сигнализации. Скелетная схема Организация строительства Схема стройгенплана График производства работ |
| Разработан: | ЦНИИЭП инженерного оборудования |
| Утверждён: | 15.03.1988 Госкомархитектура (65) |
| Заменяет собой: |












































