Скачать Типовой проект 902-2-451.88 Альбом II. Технологические решения. Архитектурные решения. Конструкции железобетонные. Конструкции металлические. Отопление и вентиляция. Внутренний водопровод и канализация. Электротехническая часть. Автоматизация. Связь и сигнализацияДата актуализации: 01.01.2021
|
| Обозначение: | Типовой проект 902-2-451.88 |
| Обозначение англ: | 902-2-451.88 |
| Статус: | не определен законодательством |
| Название рус.: | Альбом II. Технологические решения. Архитектурные решения. Конструкции железобетонные. Конструкции металлические. Отопление и вентиляция. Внутренний водопровод и канализация. Электротехническая часть. Автоматизация. Связь и сигнализация |
| Дата добавления в базу: | 01.10.2014 |
| Дата актуализации: | 01.01.2021 |
| Дата введения: | 01.09.1988 |
| Дата окончания срока действия: | 30.06.2003 |
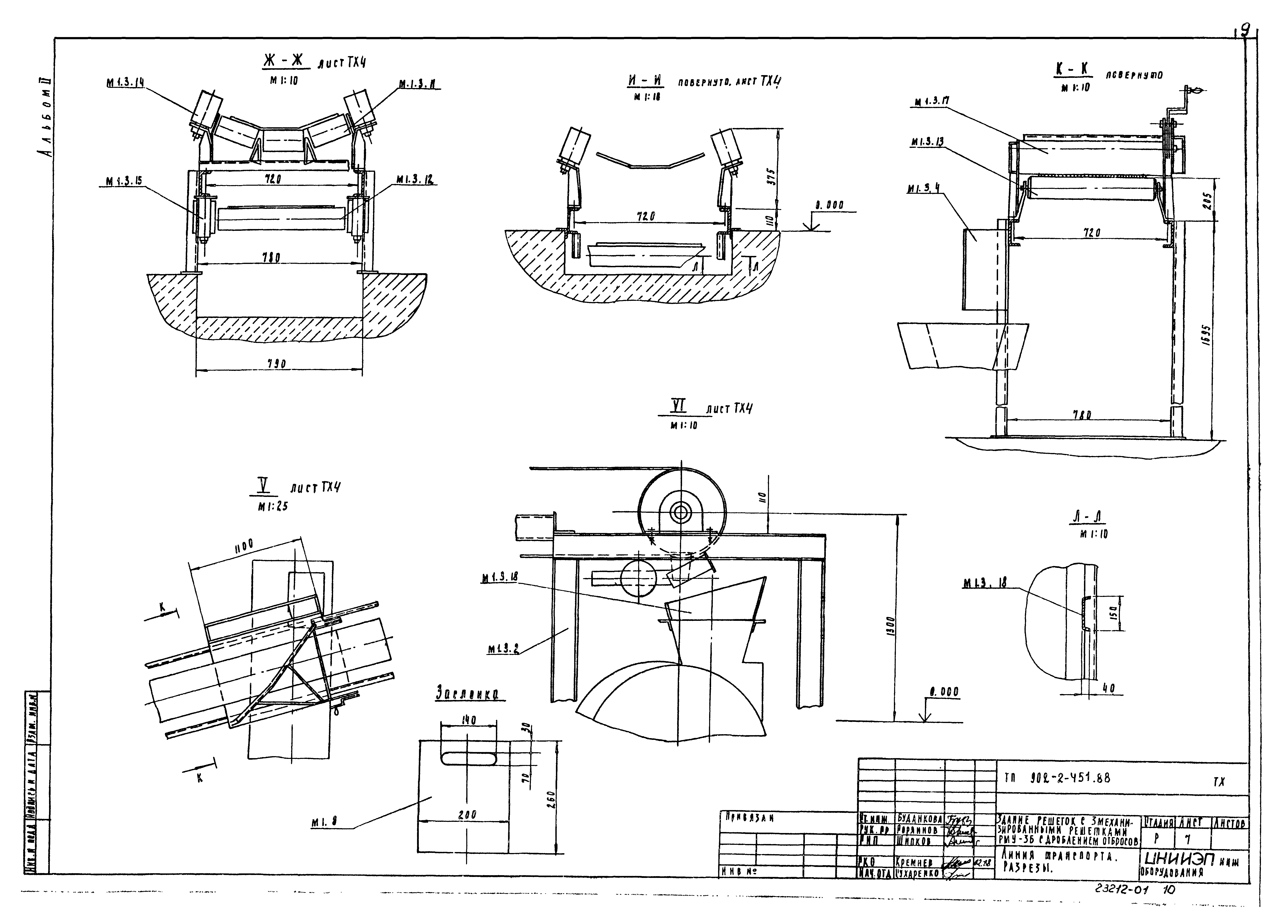
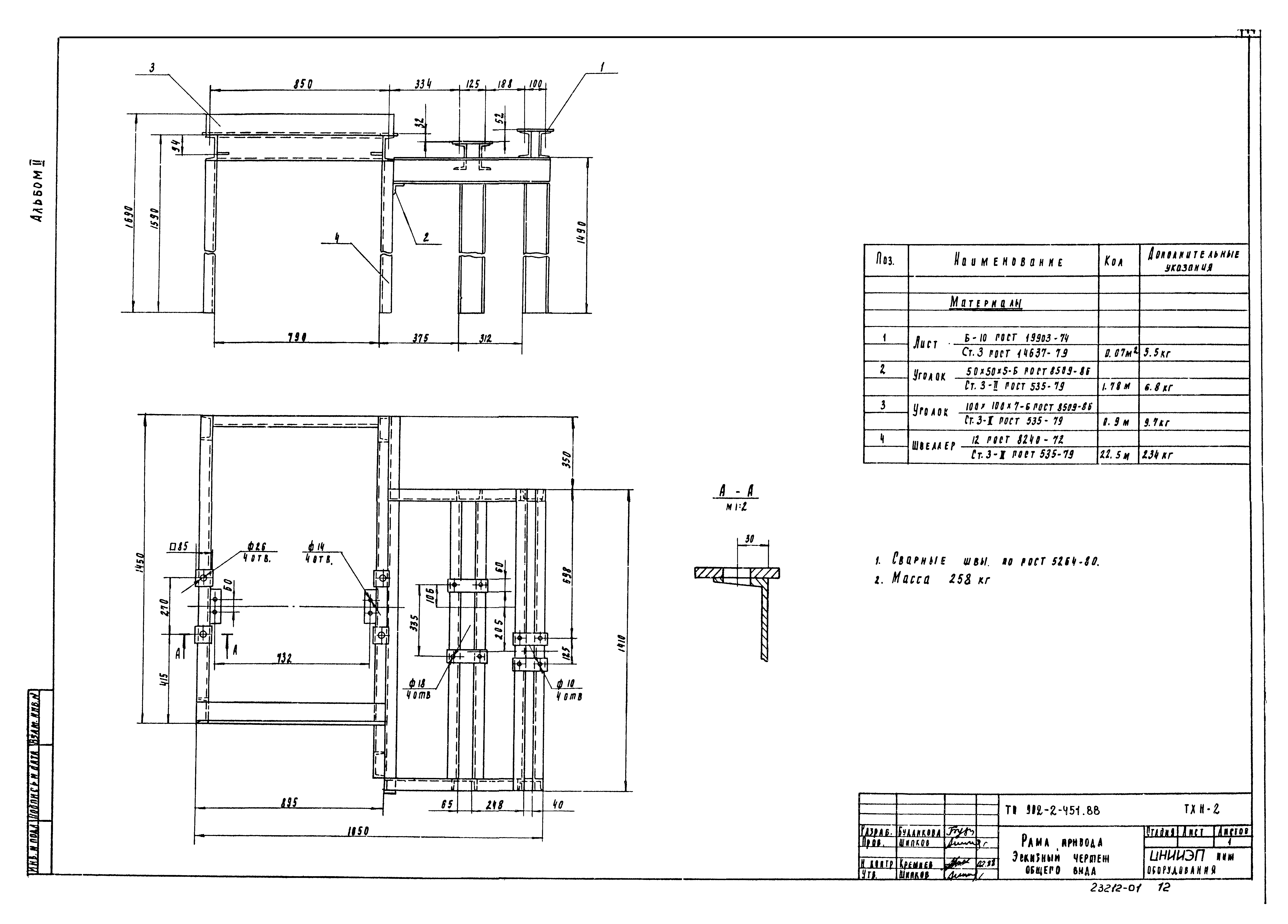
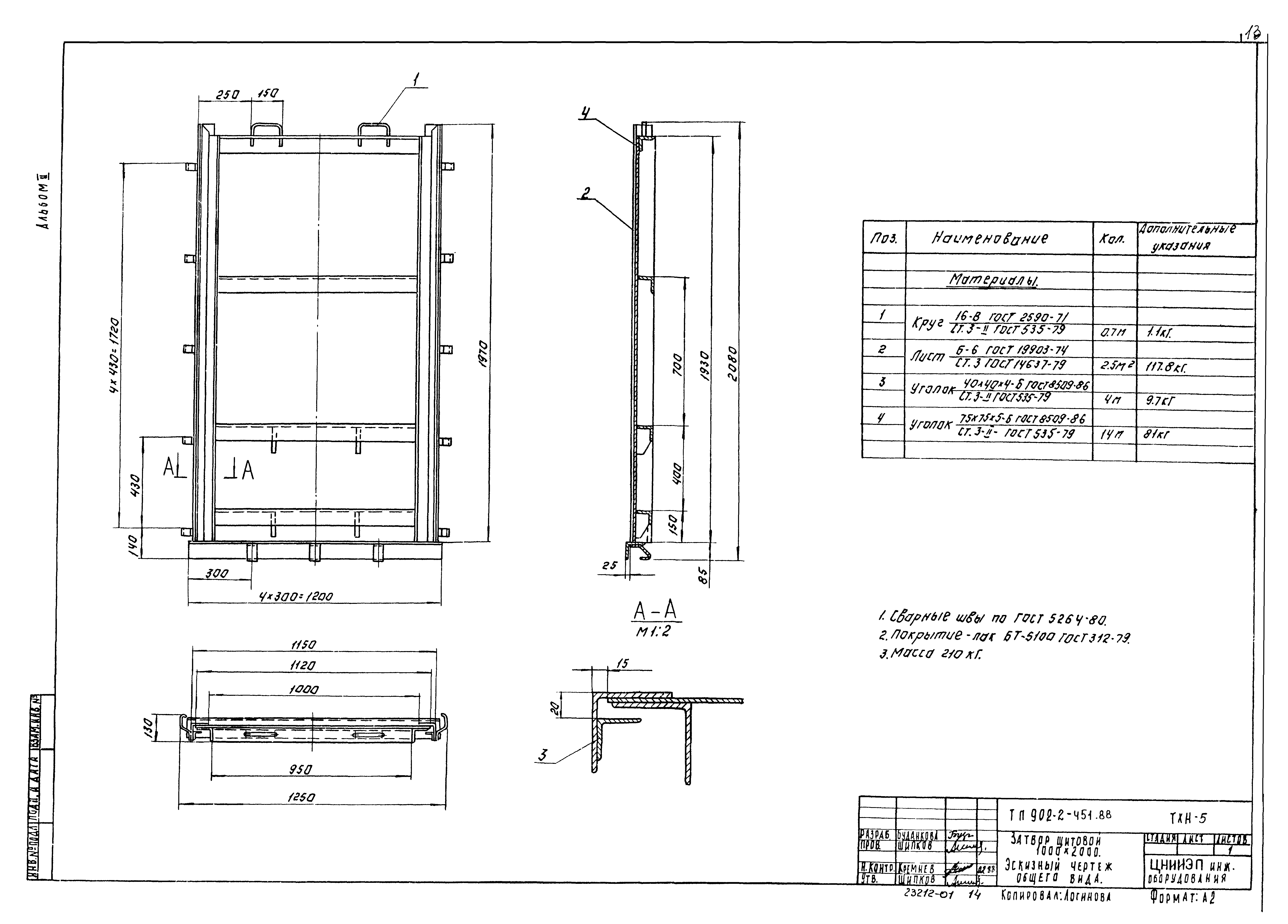
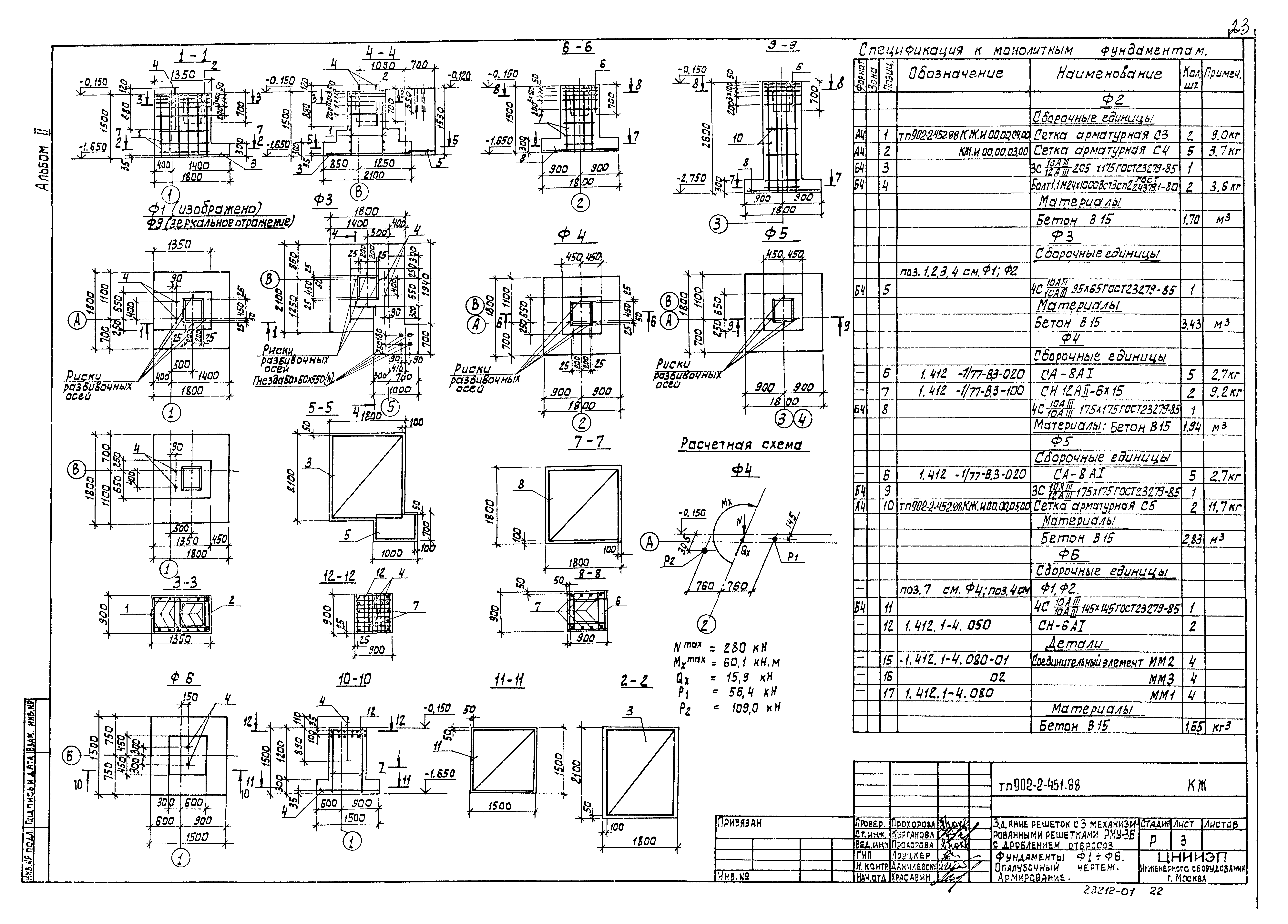
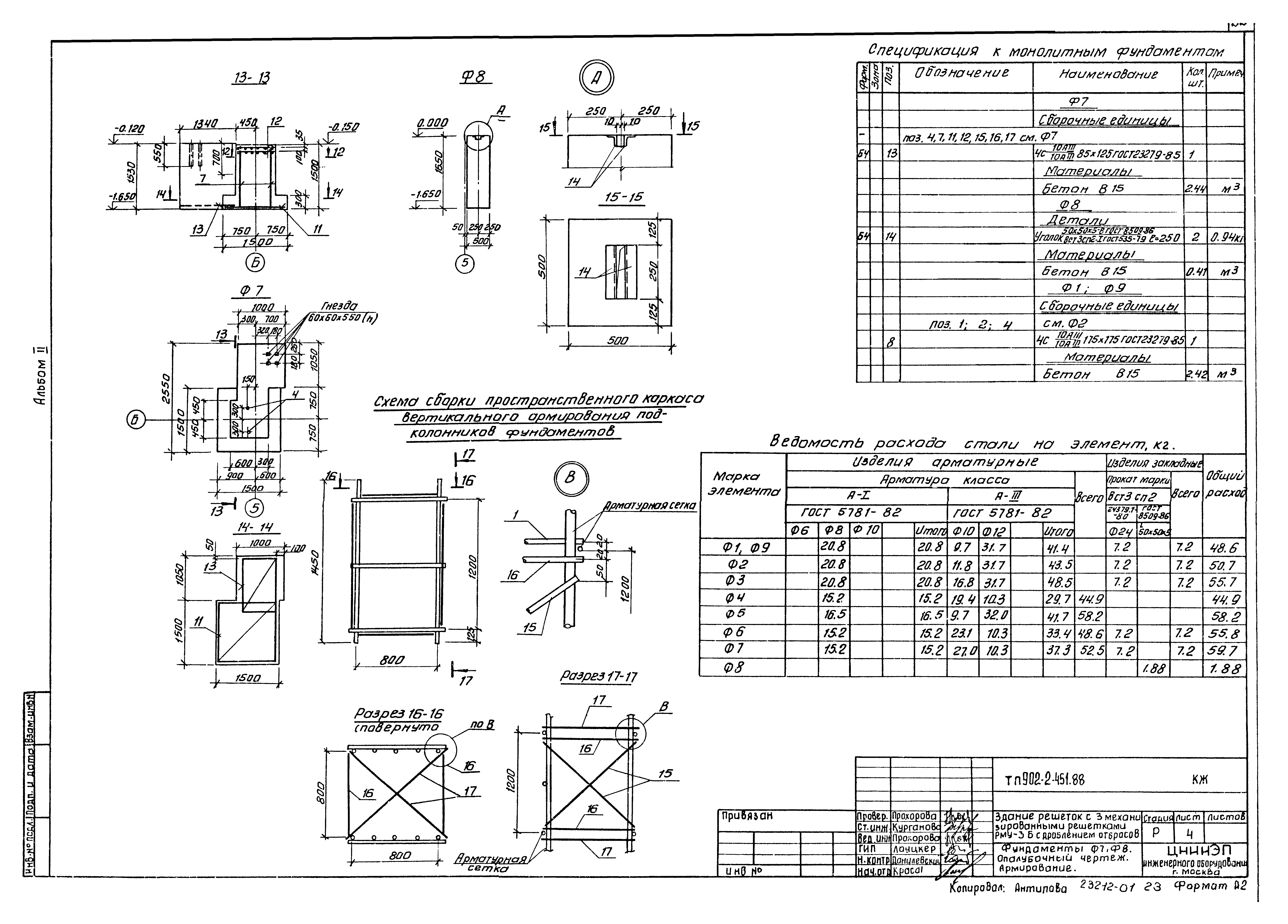
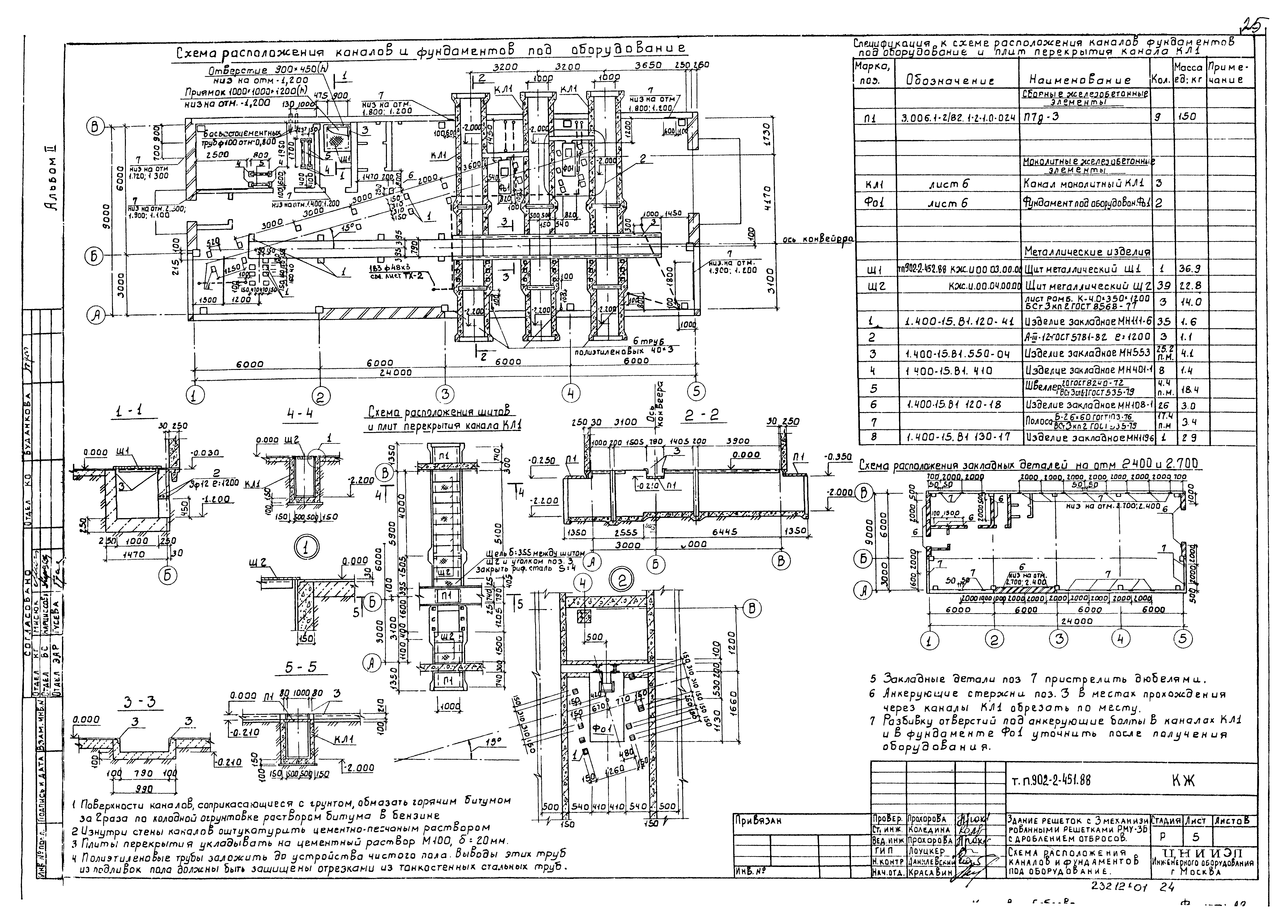
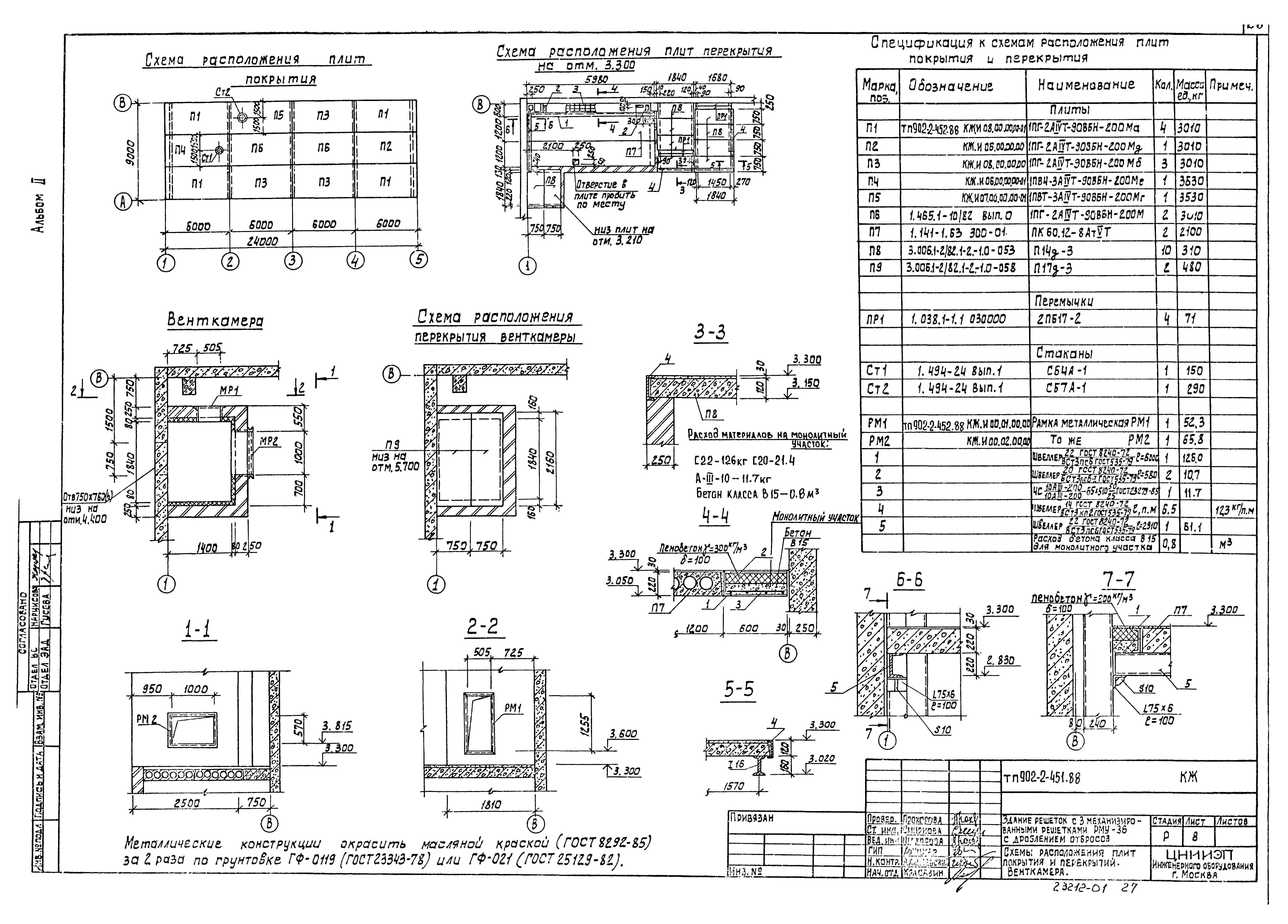
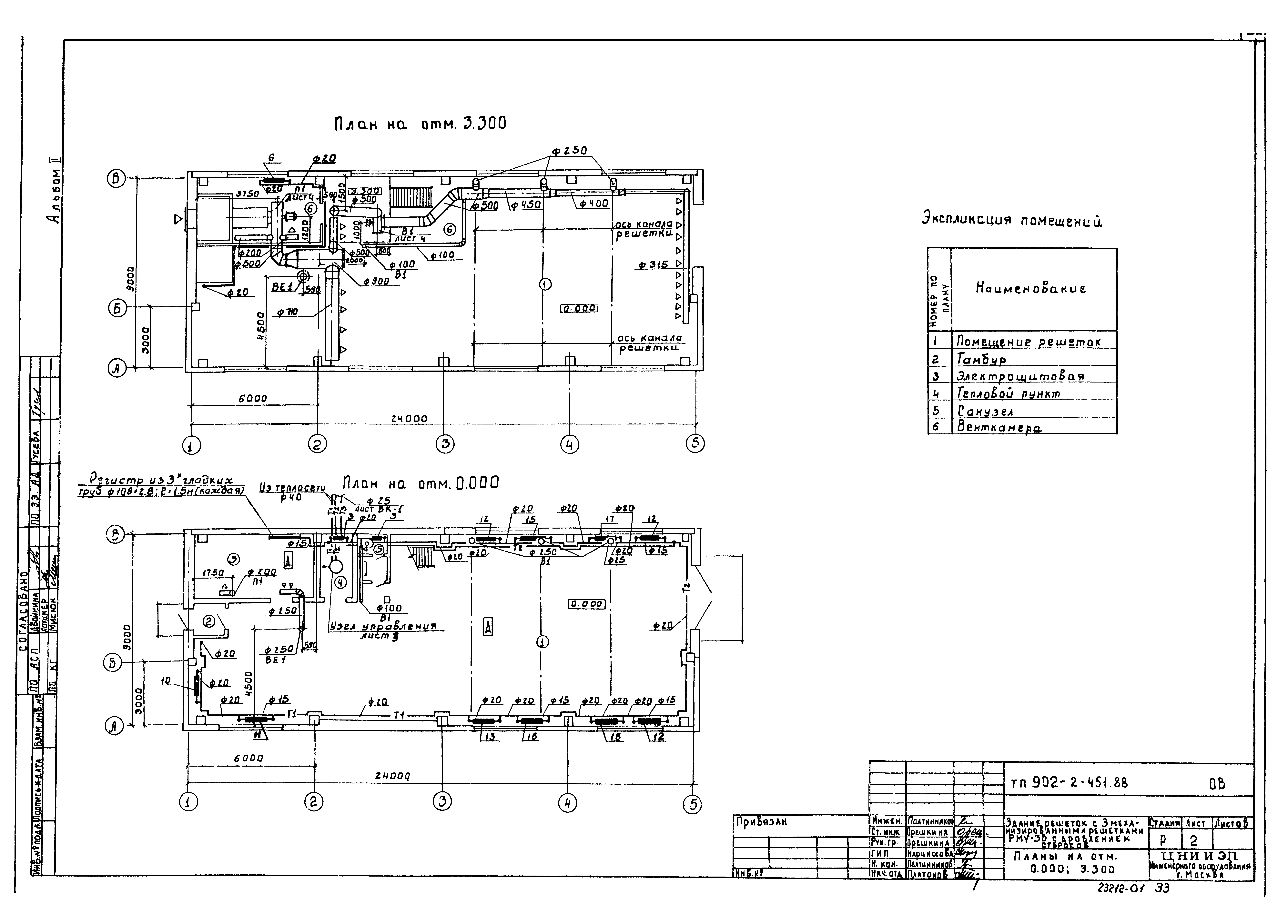
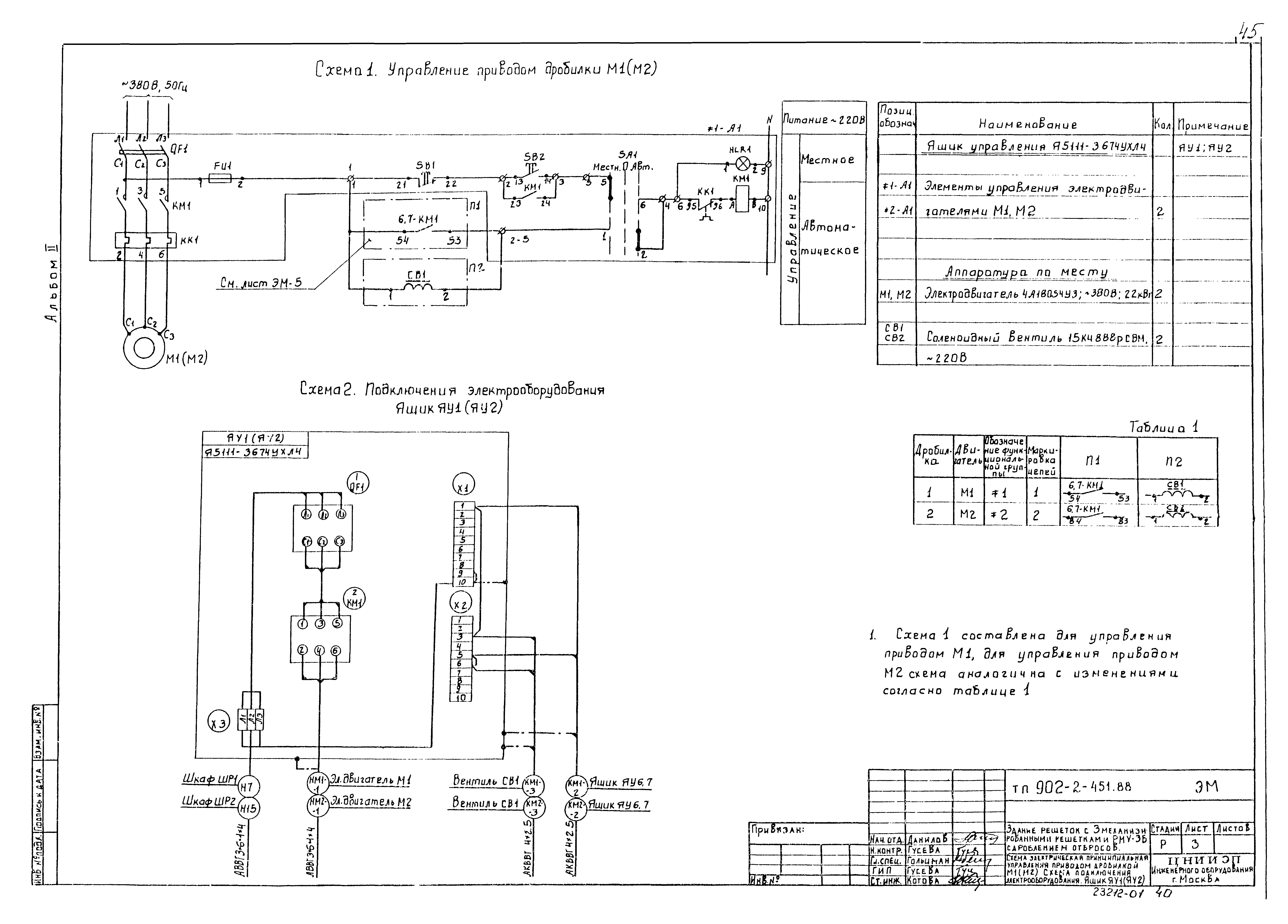
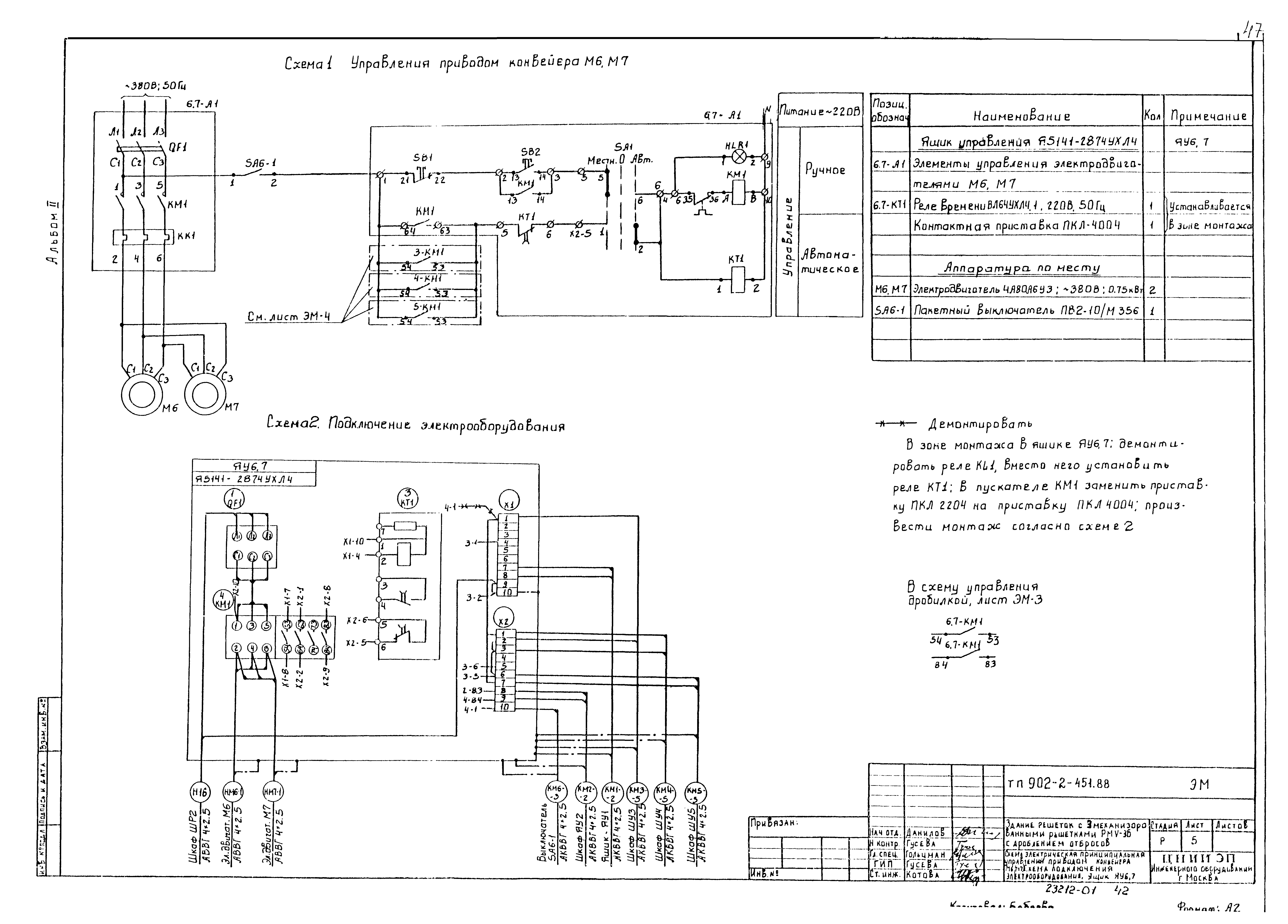
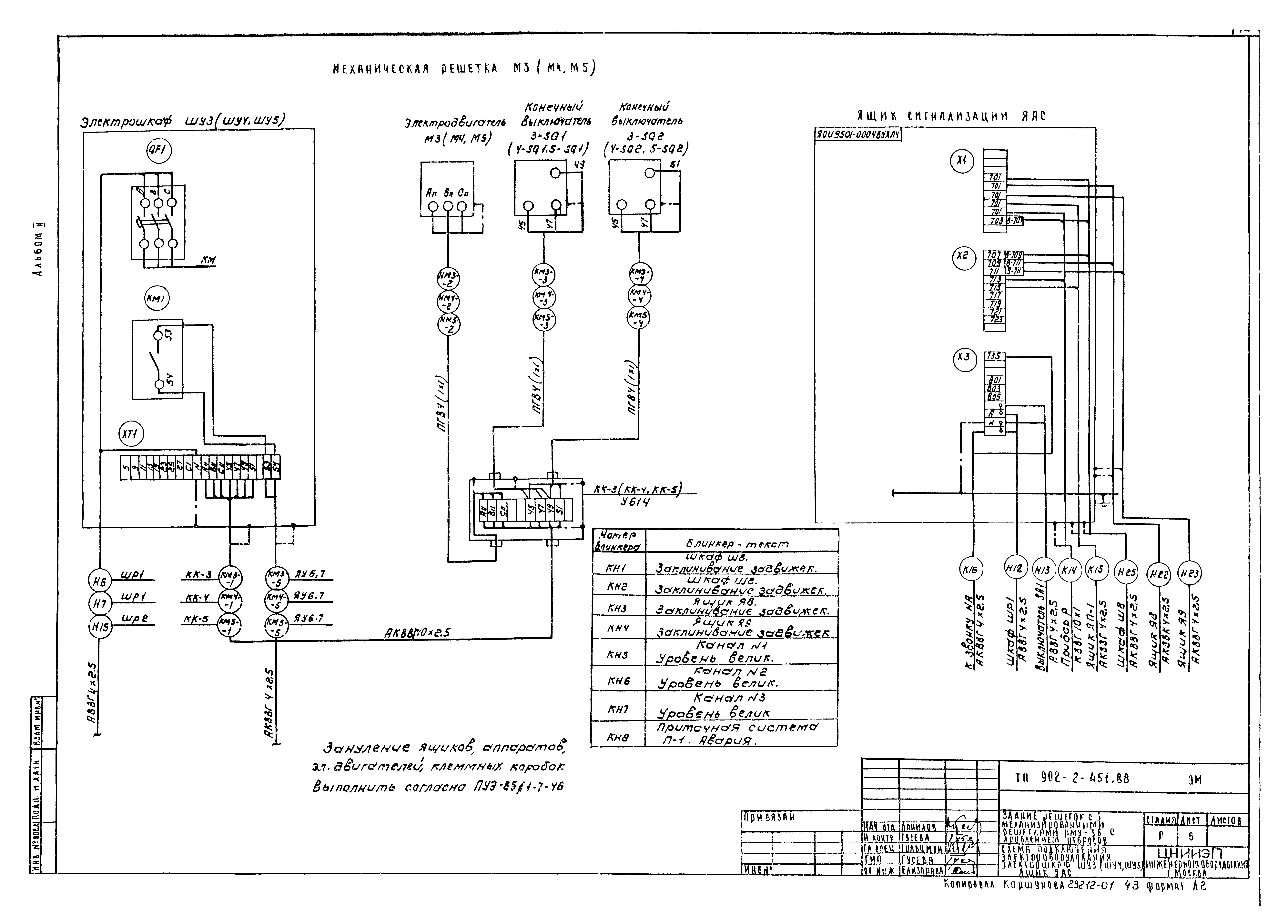
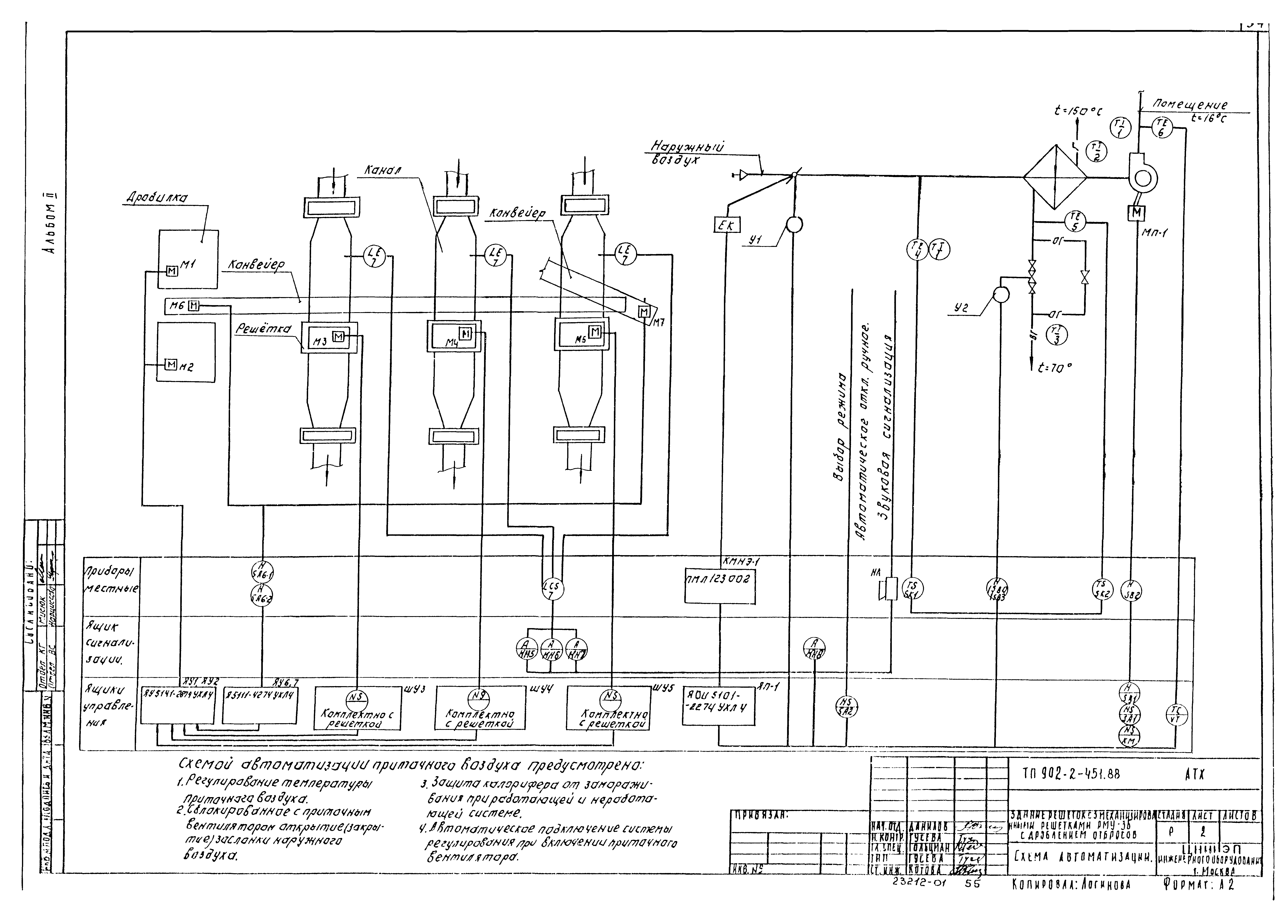
| Оглавление: | Содержание альбома Технологические решения Общие данные План на отм. 0.000. Разрезы 1-1, 2-2. Экспликация помещений Схема трубопроводов 1В3, 2В3, И16. Узел А. Установка дробилки Д-3б. Экспликация оборудования Линия транспорта. Общий вид. Разрез. Выносной элемент Линия транспорта. Разрез. Схемы. Выносной элемент Линия транспорта. Виды. Выносные элементы Линия транспорта. Разрезы Рама привода. Эскизный чертеж общего вида Рама натяжки. Эскизный чертеж общего вида Течка. Эскизный чертеж общего вида Затвор щитовой 1000х2000. Эскизный чертеж общего вида Архитектурные решения Общие данные Планы на отм. 0.000; 3.300 Разрезы 1-1, 2-2. Спецификация элементов заполнения проемов. Ведомость проемов дверей и ворот Фасады 1 - 5; 5 - 1; А - Б; Б - А Планы кровли и полов. Экспликация полов. Ведомость отделки помещений Конструкции железобетонные Общие данные Схема расположения фундаментов и фундаментных балок Фундаменты Ф1 - Ф6. Опалубочный чертеж. Армирование Фундаменты Ф7 - Ф8. Опалубочный чертеж. Армирование Схема расположения каналов и фундаментов под оборудование Монолитный канал КЛ1. Опалубочный чертеж. Армирование ФО1 Схема расположения колонн и балок покрытия Схемы расположения плит покрытия и перекрытий. Венткамера Схемы расположения стеновых панелей Конструкции металлические Общие данные. Ведомость металлоконструкций по видам профилей Техническая спецификация стали Схема расположения пути подвесного крана. Схема расположения лестницы и площадки на отм. 3.300 Отопление и вентиляция Общие данные Планы на отм. 0.000; 3.300 Схема системы отопления. Схемы вентиляции П1, В1, ВЕ1 Установка систем П1, В1. Схема системы теплоснабжения Конфузор. Переход Внутренний водопровод и канализация Общие данные. Внутренний водопровод и канализация. План на отм. 0.000. Схемы В1, Т3, К1 Силовое электрооборудование Общие данные Схема электрическая принципиальная распределительной сети 380/220 В Схема электрическая принципиальная управления дробилкой М1 (М2). Схема подключения электрооборудования. Ящик ЯУ1 (ЯУ2) Схема электрическая принципиальная управления приводом решетки М3 (М4, М5) Схема электрическая принципиальная управления приводом М6 (М7) конвейера М6 (М7). Схема подключения электрооборудования. Ящик ЯУ6,7 Схема подключения электрооборудования. Шкаф ШУ3 (ШУ4, ШУ5), Ящик ЯАС Схема подключения электрооборудования. Шкаф Ш8 задвижек насосов песколовок Схема подключения электрооборудования. Ящики Я8, Я9 задвижек насосов песколовок Схема подключения электрооборудования. Ящик ЯП-1. Пускатели КМВ-1 (КМНЭ-1) Кабельный журнал Сводка кабелей и проводов, учтенных кабельным журналом Размещение электрооборудования и прокладка кабеля. Планы на отм. 0.000 и 3.300 Размещение электрооборудования и прокладка кабеля. Спецификация Электрическое освещение Общие данные. Электрическое освещение. Планы на отм. 0.000 и 3.300 Автоматизация Общие данные Схема автоматизации Схема внешних проводок Размещение приборов технологического контроля и прокладка кабеля. План на отм. 0.000 Связь и сигнализация Общие данные. План на отм. 0.000 с сетями связи и сигнализации. Скелетная схема Организация строительства Схема стройгенплана График производства работ |
| Разработан: | ЦНИИЭП инженерного оборудования |
| Утверждён: | 15.03.1988 Госкомархитектура (66) |
| Издан: | ЦИТП Госстроя СССР (CITP, Gosstroy (USSR) 1988 г. ) |
| Заменяет собой: |


























































