Скачать Типовой проект 902-3-79.88 Альбом II. Технические решенияДата актуализации: 01.01.2021
|
| Обозначение: | Типовой проект 902-3-79.88 |
| Обозначение англ: | 902-3-79.88 |
| Статус: | не определен законодательством |
| Название рус.: | Альбом II. Технические решения |
| Дата добавления в базу: | 01.10.2014 |
| Дата актуализации: | 01.01.2021 |
| Дата введения: | 01.09.1988 |
| Дата окончания срока действия: | 30.06.2003 |
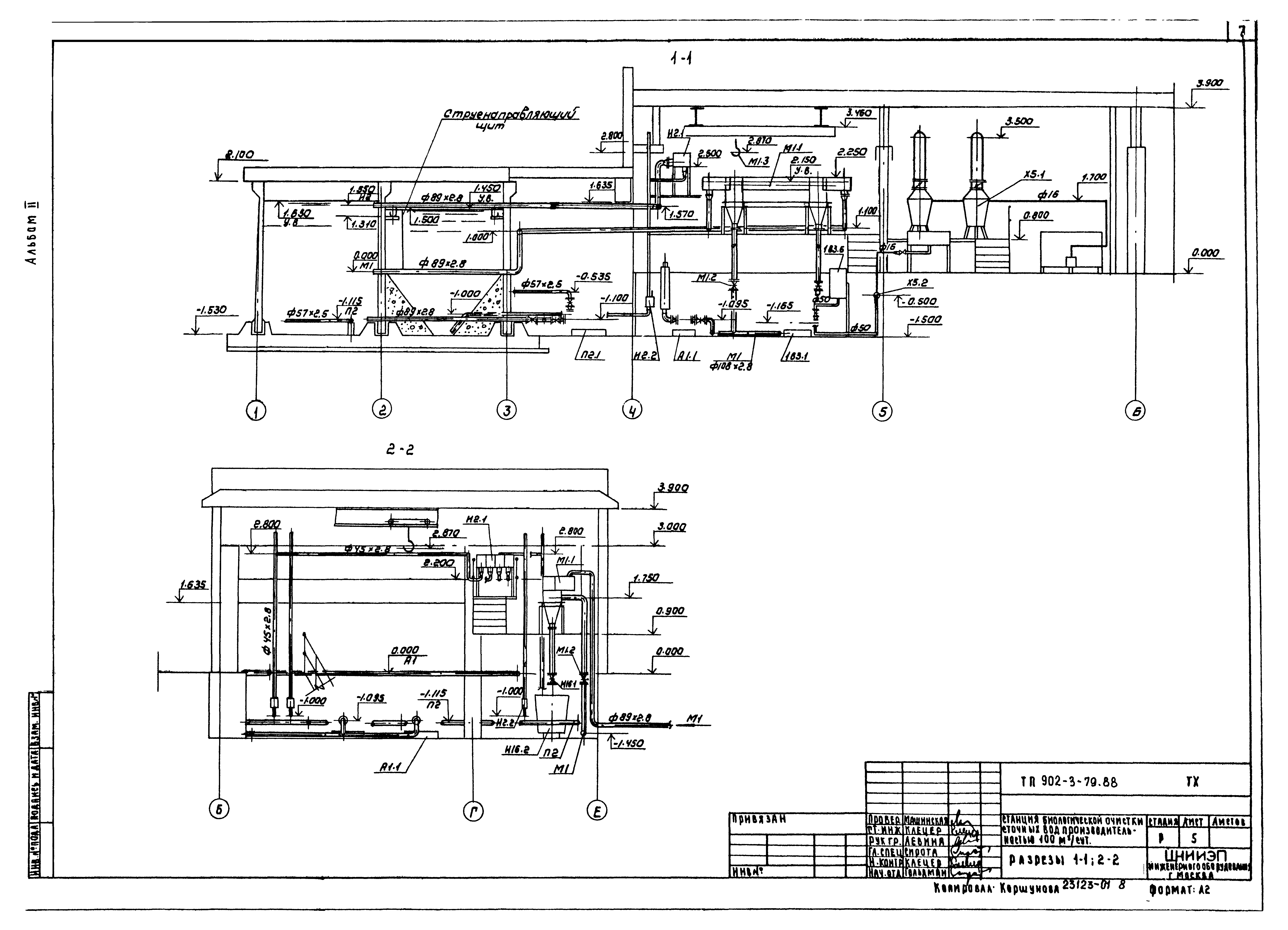
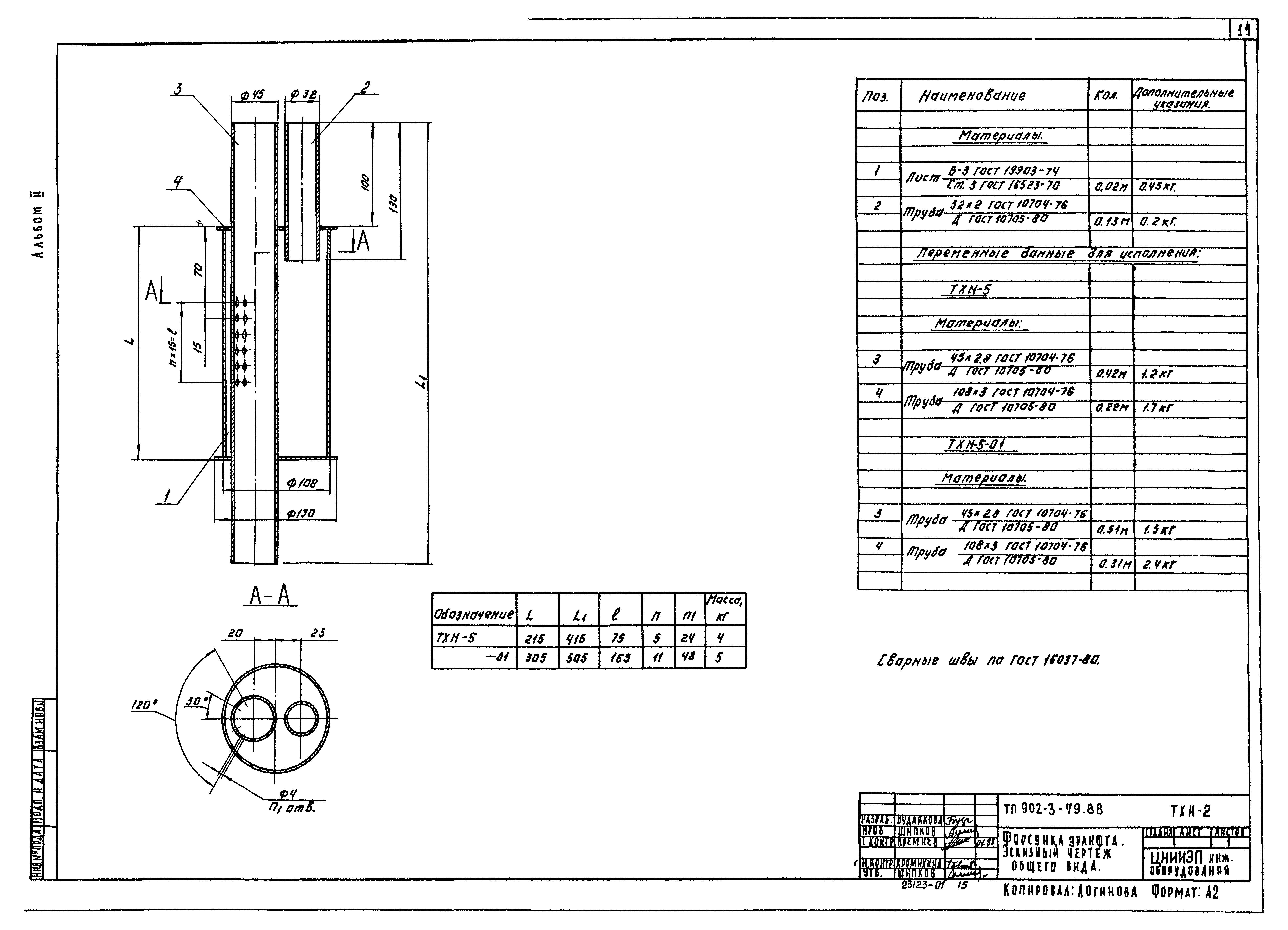
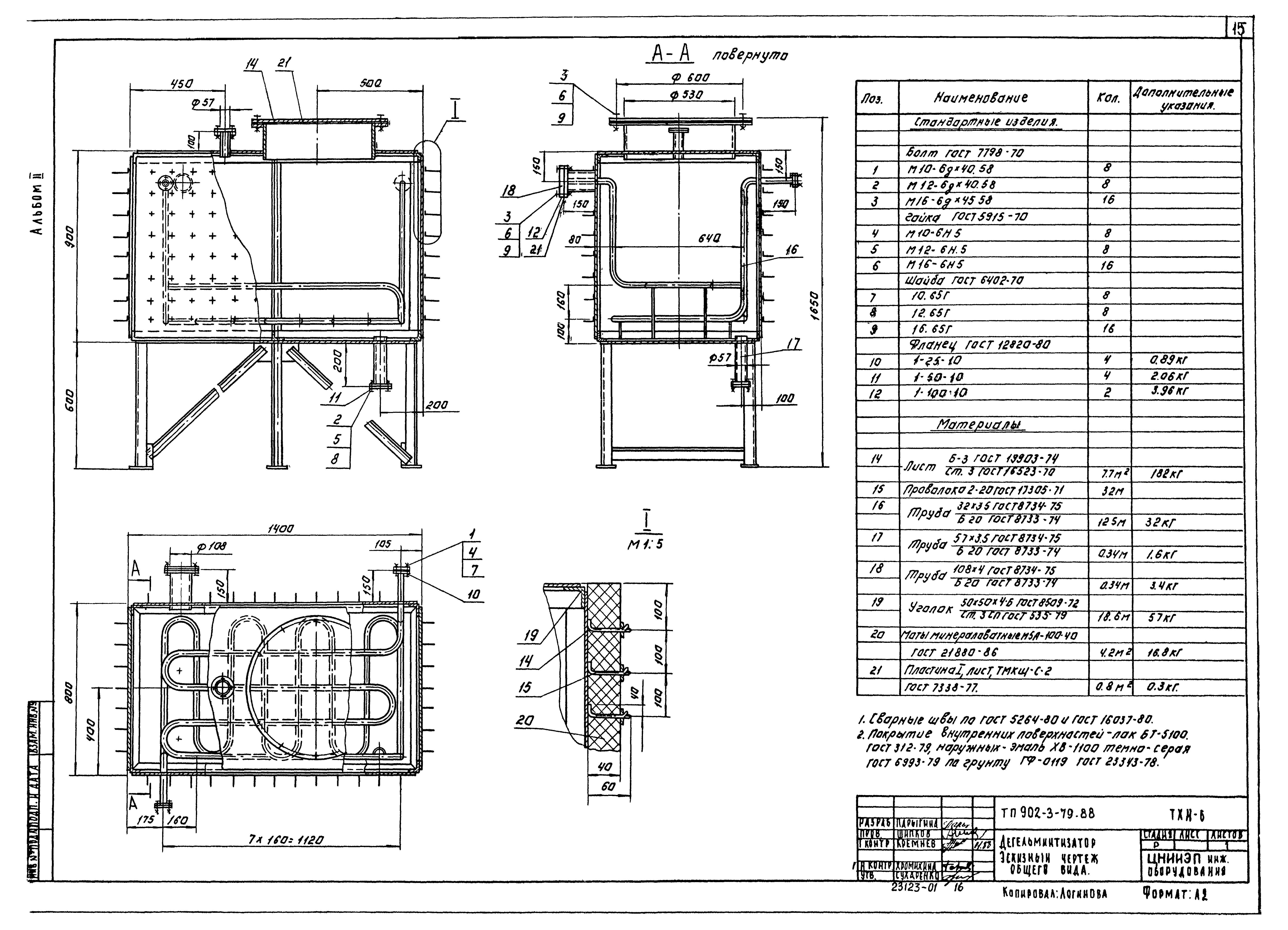
| Оглавление: | Содержание альбома Общие данные Технологическая схема План Разрезы 1-1, 2-2 Схемы трубопроводов М1, И16, М4, И2 Схемы трубопроводов А1, 2В3, Х5, А3 Схемы трубопроводов И3, П2, 1В3, 1К3, 2К3 Емкостные сооружения. Планы. Разрезы Песколовка. Эскизный чертеж общего вида Форсунка эрлифта. Эскизный чертеж общего вида Дегельминтизатор. Эскизный чертеж общего вида Камера иловая. Эскизный чертеж общего вида |
| Разработан: | ЦНИИЭП инженерного оборудования |
| Утверждён: | 10.02.1988 Госкомархитектура (38) |

















