Скачать Типовой проект 902-3-85.88 Альбом II. Технологические решенияДата актуализации: 01.01.2021
|
| Обозначение: | Типовой проект 902-3-85.88 |
| Обозначение англ: | 902-3-85.88 |
| Статус: | не определен законодательством |
| Название рус.: | Альбом II. Технологические решения |
| Дата добавления в базу: | 01.10.2014 |
| Дата актуализации: | 01.01.2021 |
| Дата введения: | 01.09.1988 |
| Дата окончания срока действия: | 30.06.2003 |
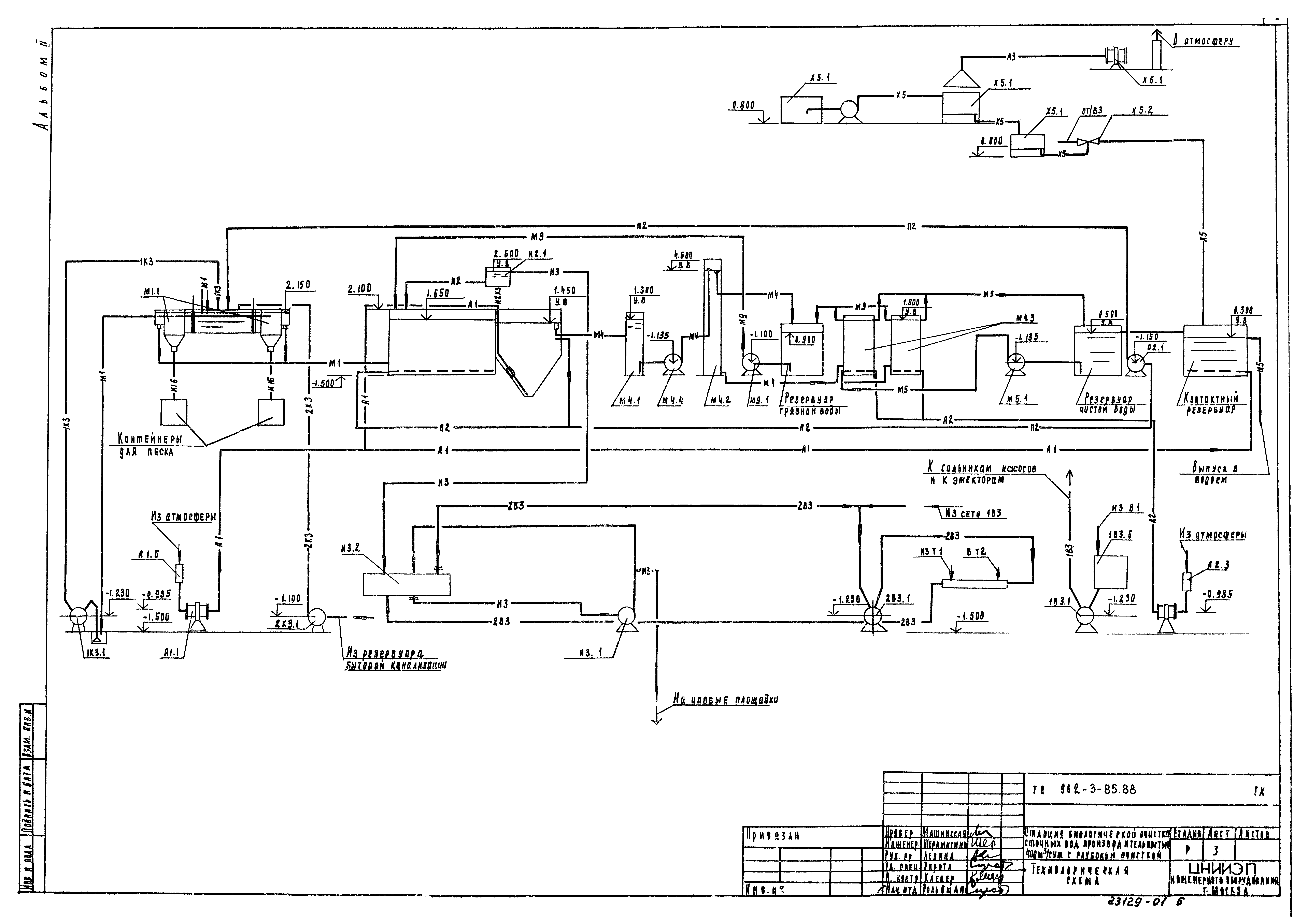
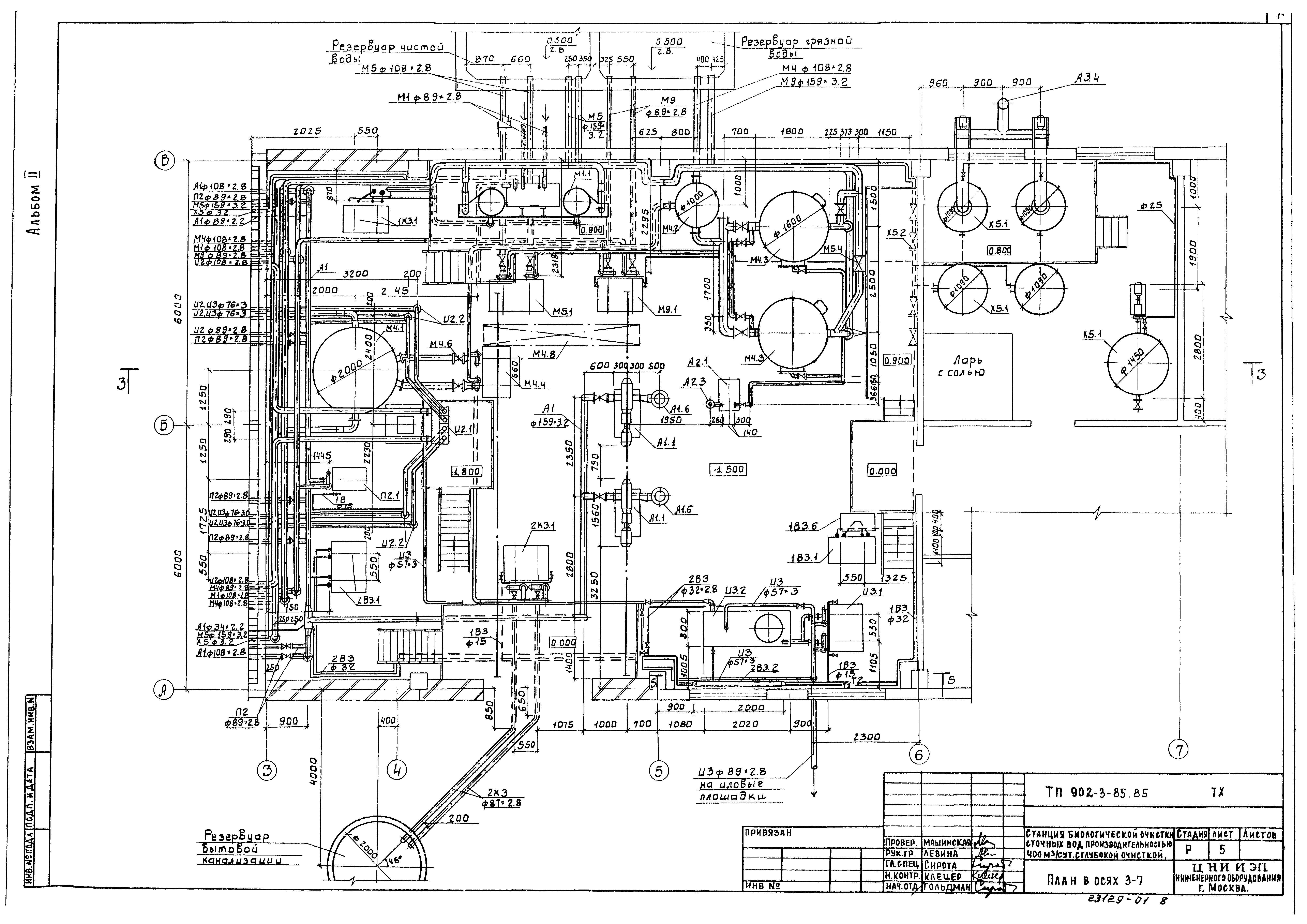
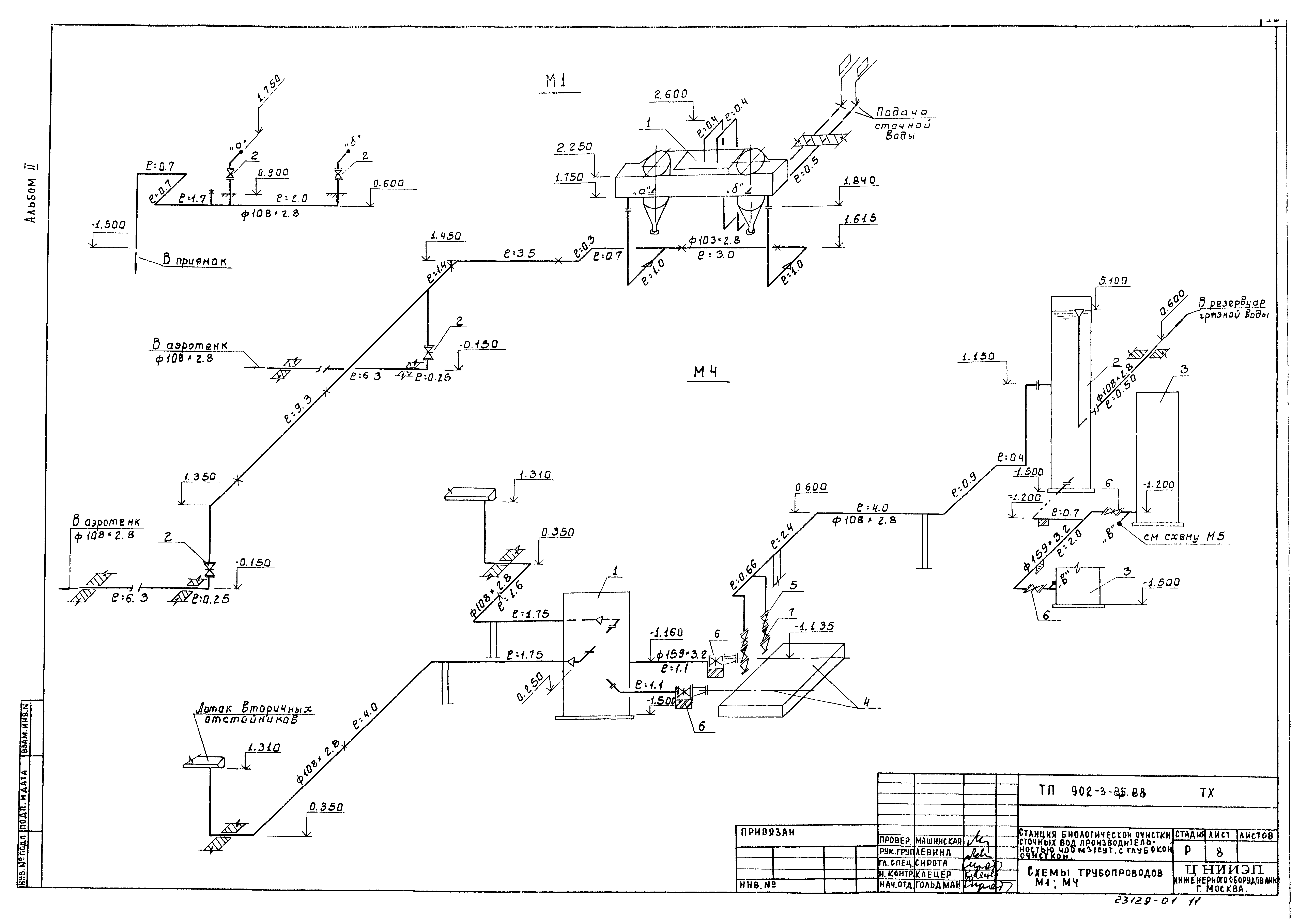
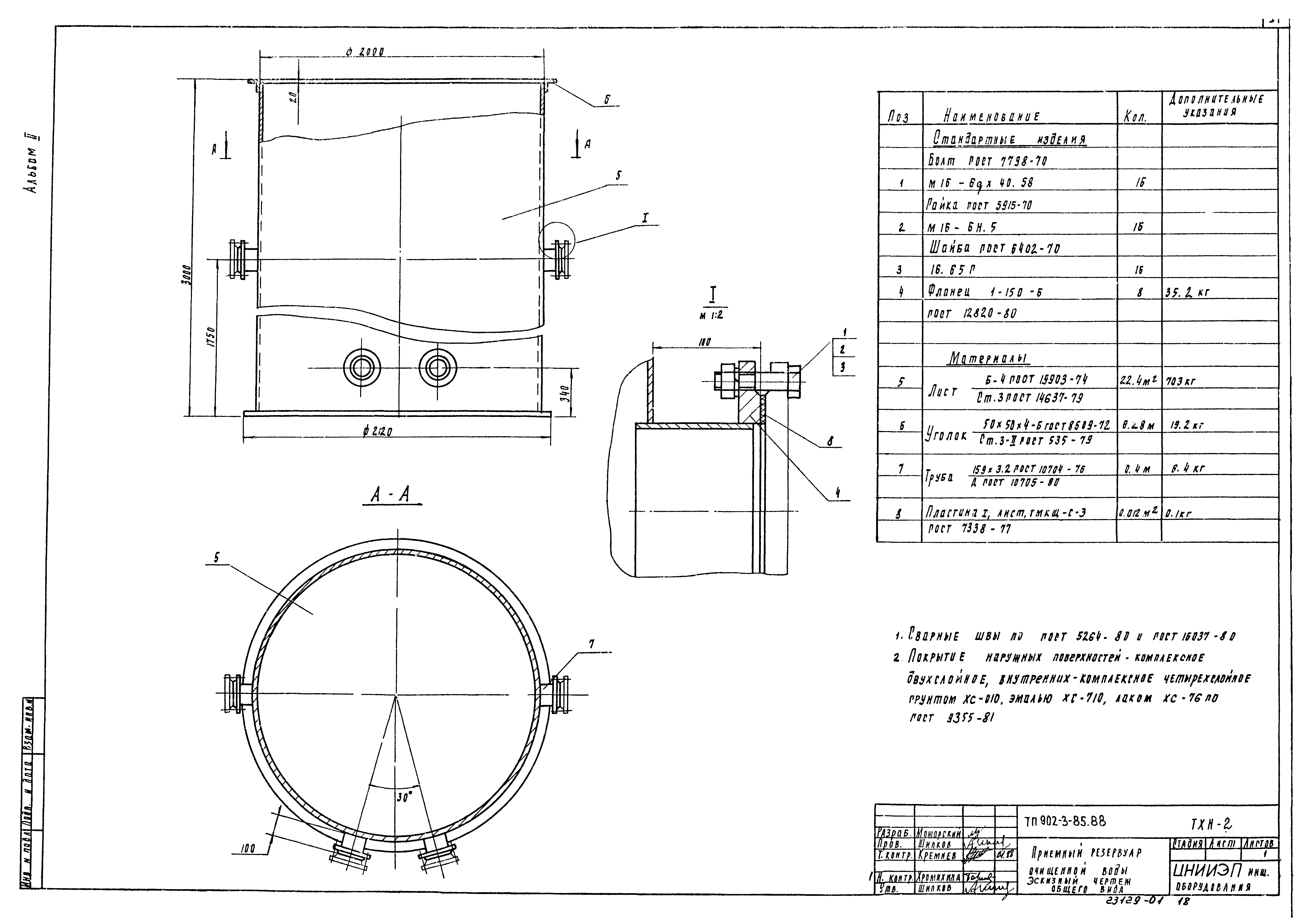
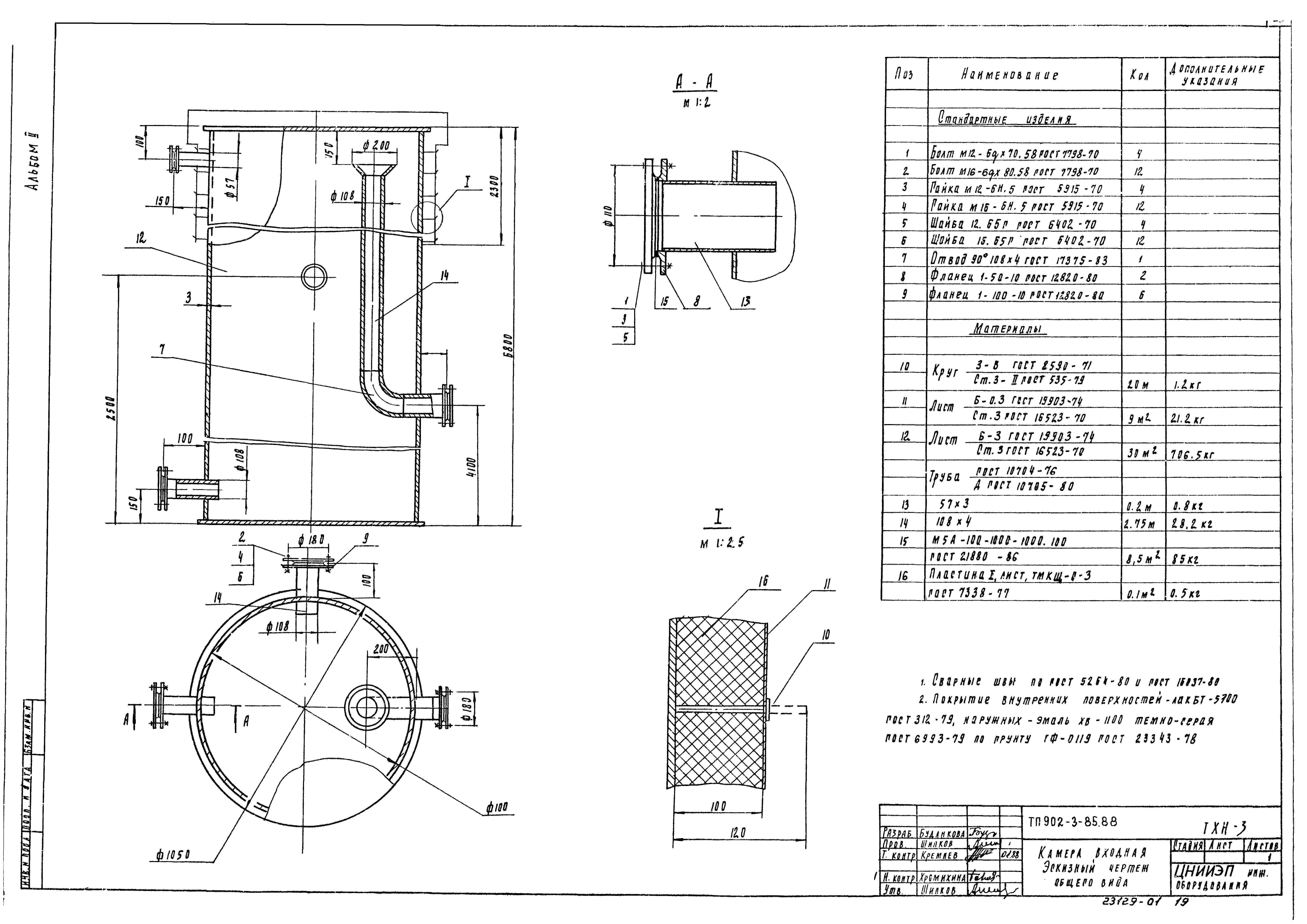
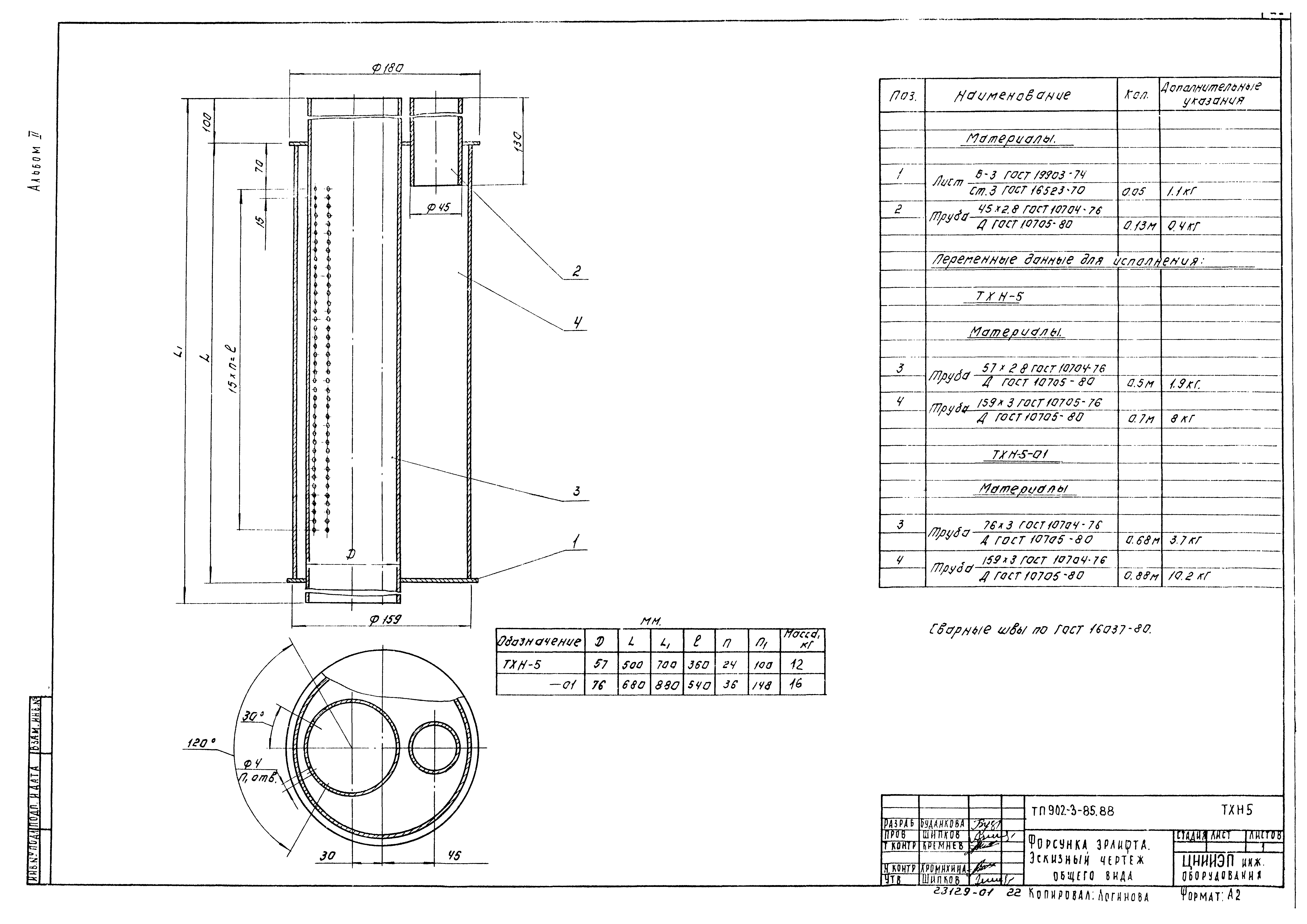
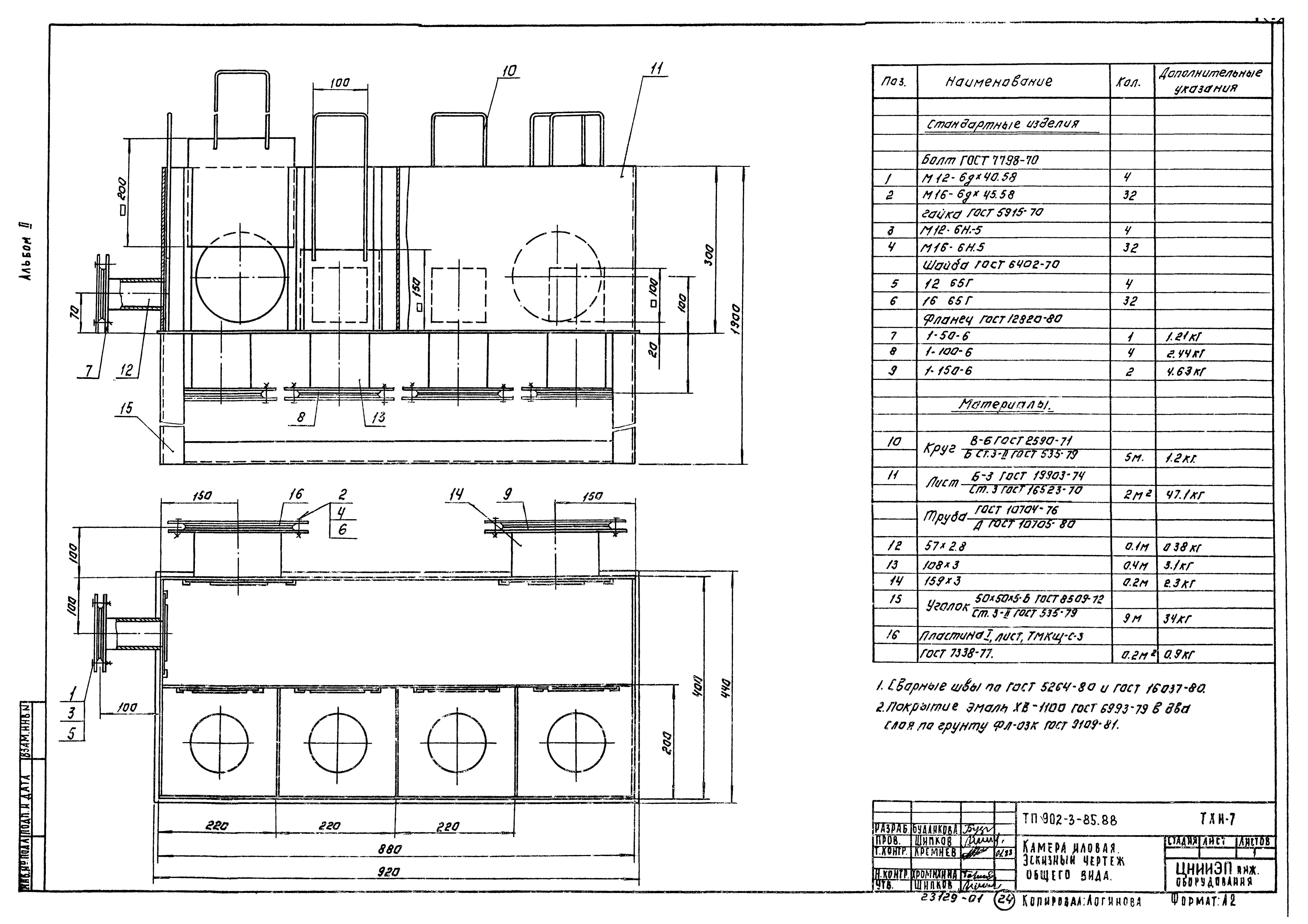
| Оглавление: | Содержание альбома Общие данные Технологическая схема План в осях 1 - 3 План в осях 3 - 7 Разрезы 1-1, 2-2 Разрезы 3-3, 4-4, 5-5 Схемы трубопроводов М1, М4 Схемы трубопроводов М5, М9 Схемы трубопроводов И2, И3, 2К3 Схемы трубопроводов П2, А1, А2, 1К3 Схемы трубопроводов Х5, А3, 1В3, 2В3, Т1, Т2 Песколовка. Эскизный чертеж общего вида Приемный резервуар очищенной воды 700 - 400 куб. мм/сутки Камера входная. Эскизный чертеж общего вида Фильтр песчаный. Эскизный чертеж общего вида Форсунка эрлифта. Эскизный чертеж общего вида Дегельминтизатор. Эскизный чертеж общего вида Камера иловая. Эскизный чертеж общего вида |
| Разработан: | ЦНИИЭП инженерного оборудования |
| Утверждён: | 10.02.1988 Госкомархитектура (38) |






















