Скачать Типовой проект 902-3-86.88 Альбом IV. Архитектурные решения. Конструкции железобетонные. Конструкции металлические. Санитарно-технические решенияДата актуализации: 01.01.2021
|
| Обозначение: | Типовой проект 902-3-86.88 |
| Обозначение англ: | 902-3-86.88 |
| Статус: | не определен законодательством |
| Название рус.: | Альбом IV. Архитектурные решения. Конструкции железобетонные. Конструкции металлические. Санитарно-технические решения |
| Дата добавления в базу: | 01.10.2014 |
| Дата актуализации: | 01.01.2021 |
| Дата введения: | 01.09.1988 |
| Дата окончания срока действия: | 30.06.2003 |
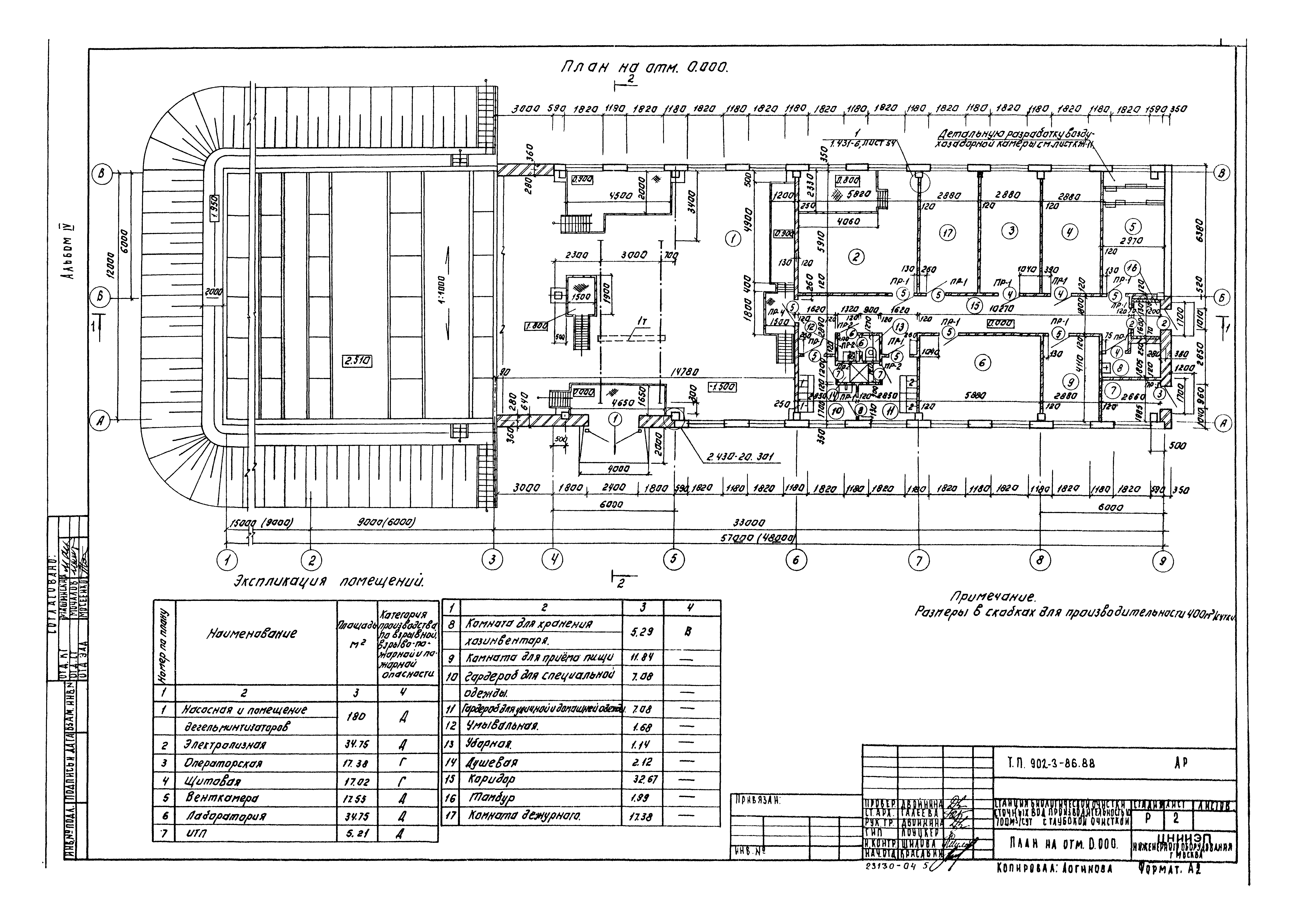
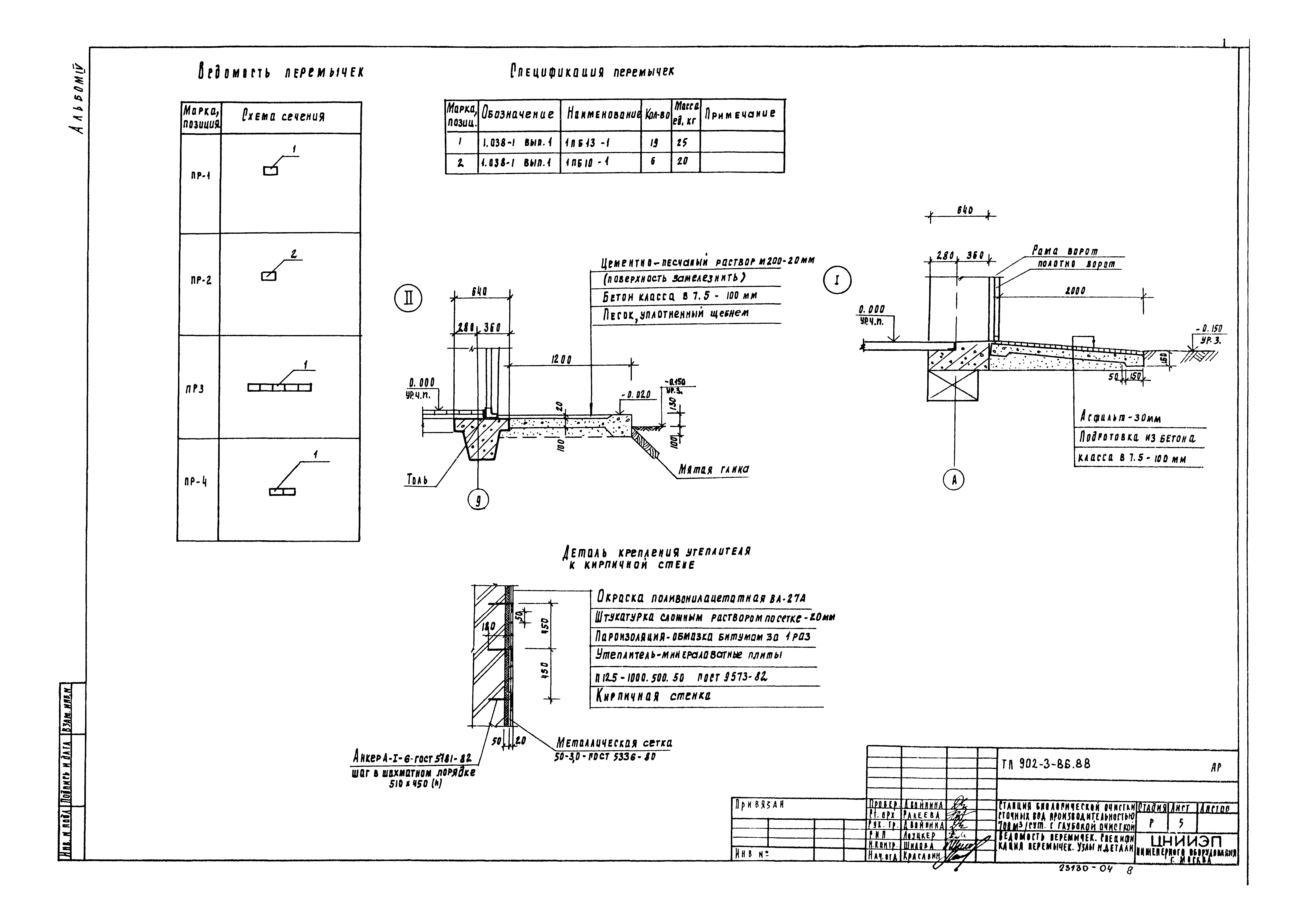
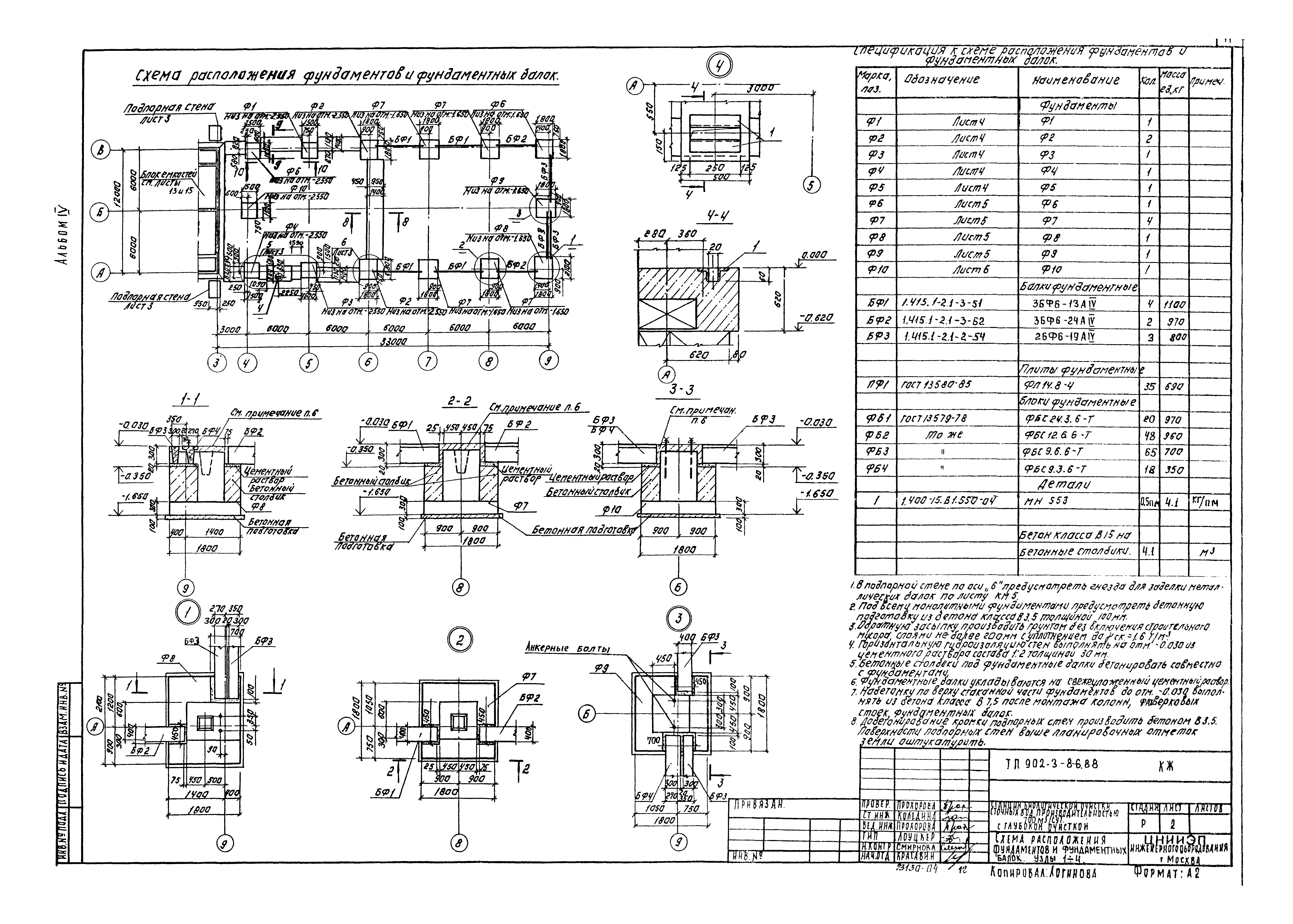
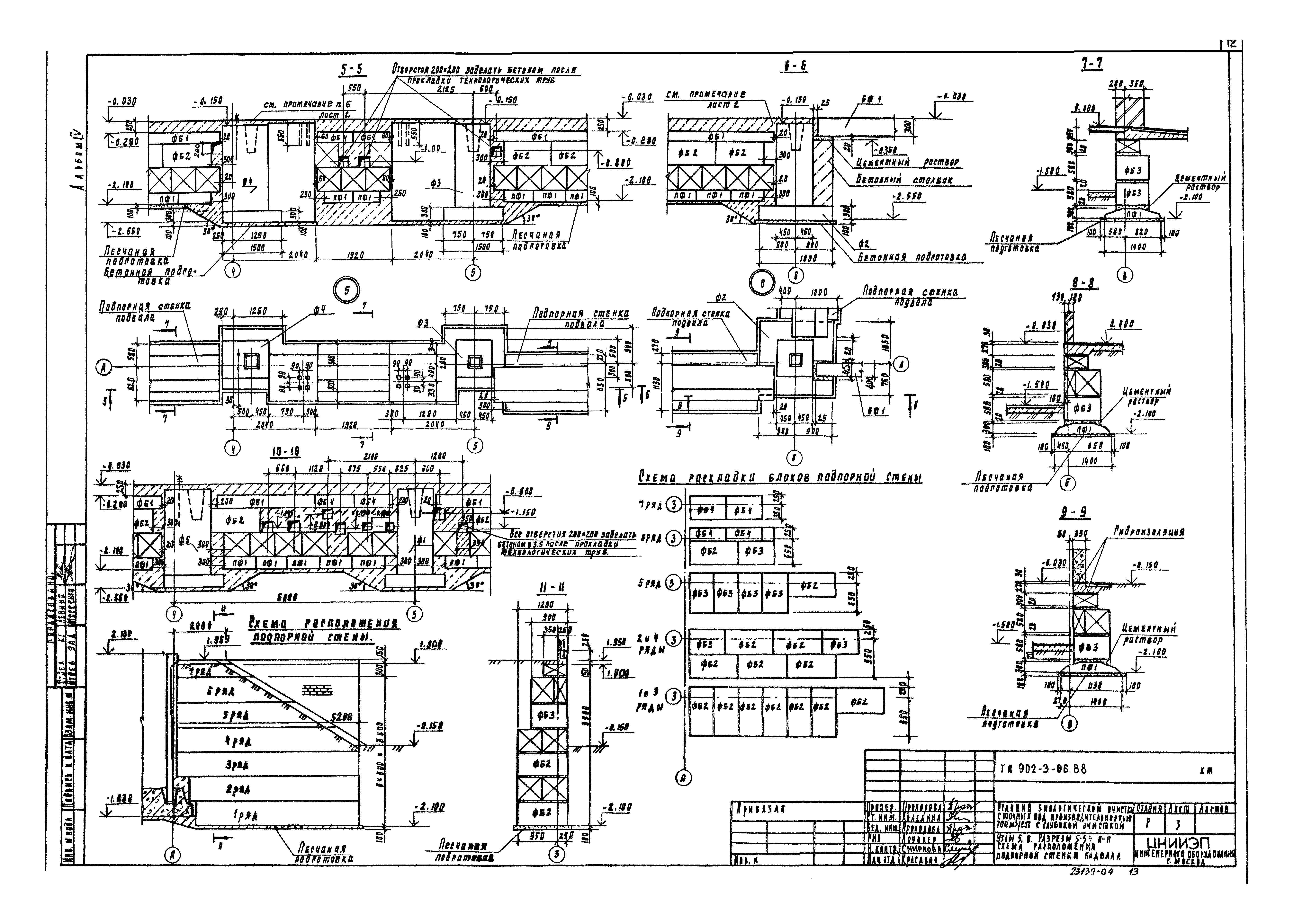
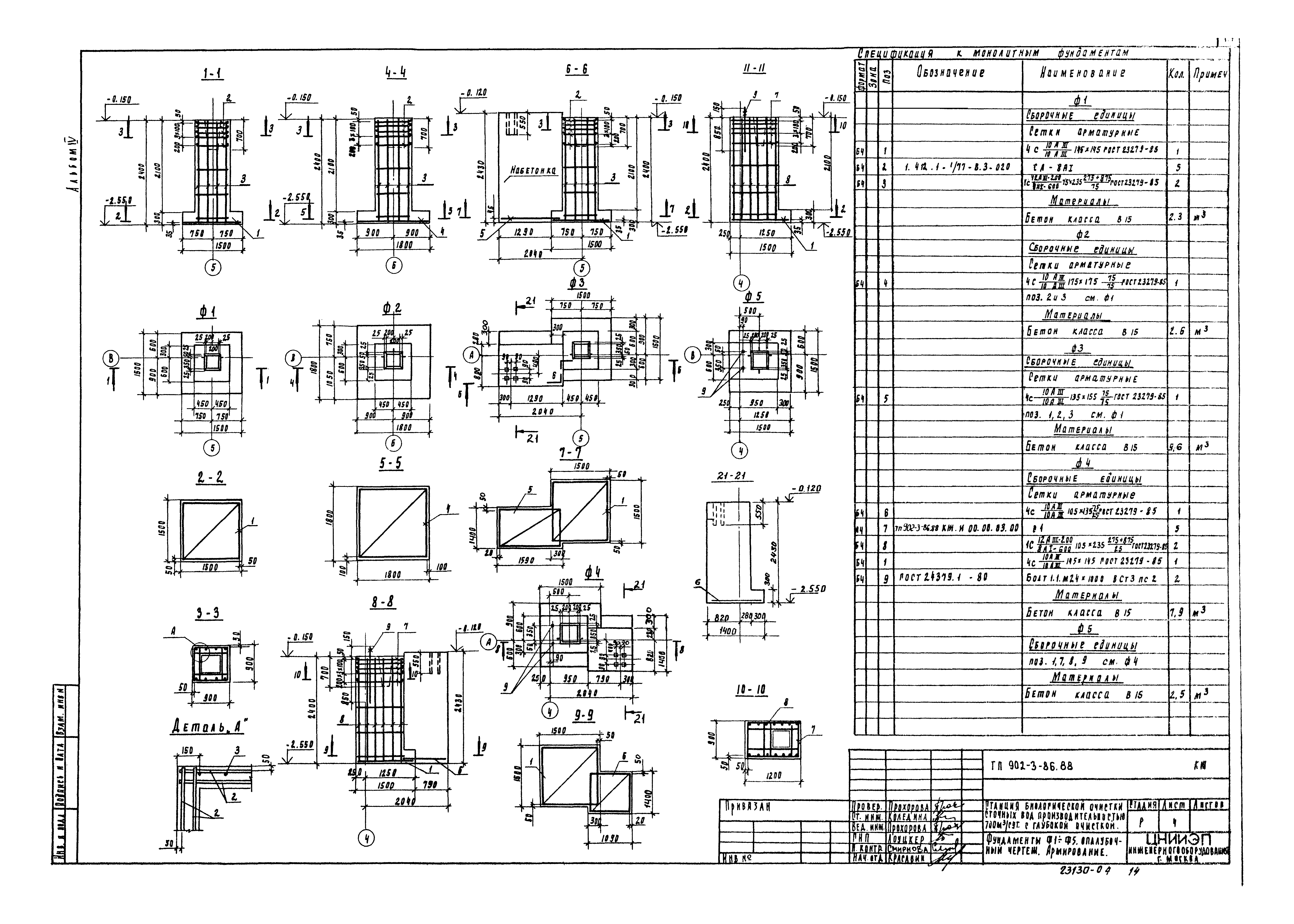
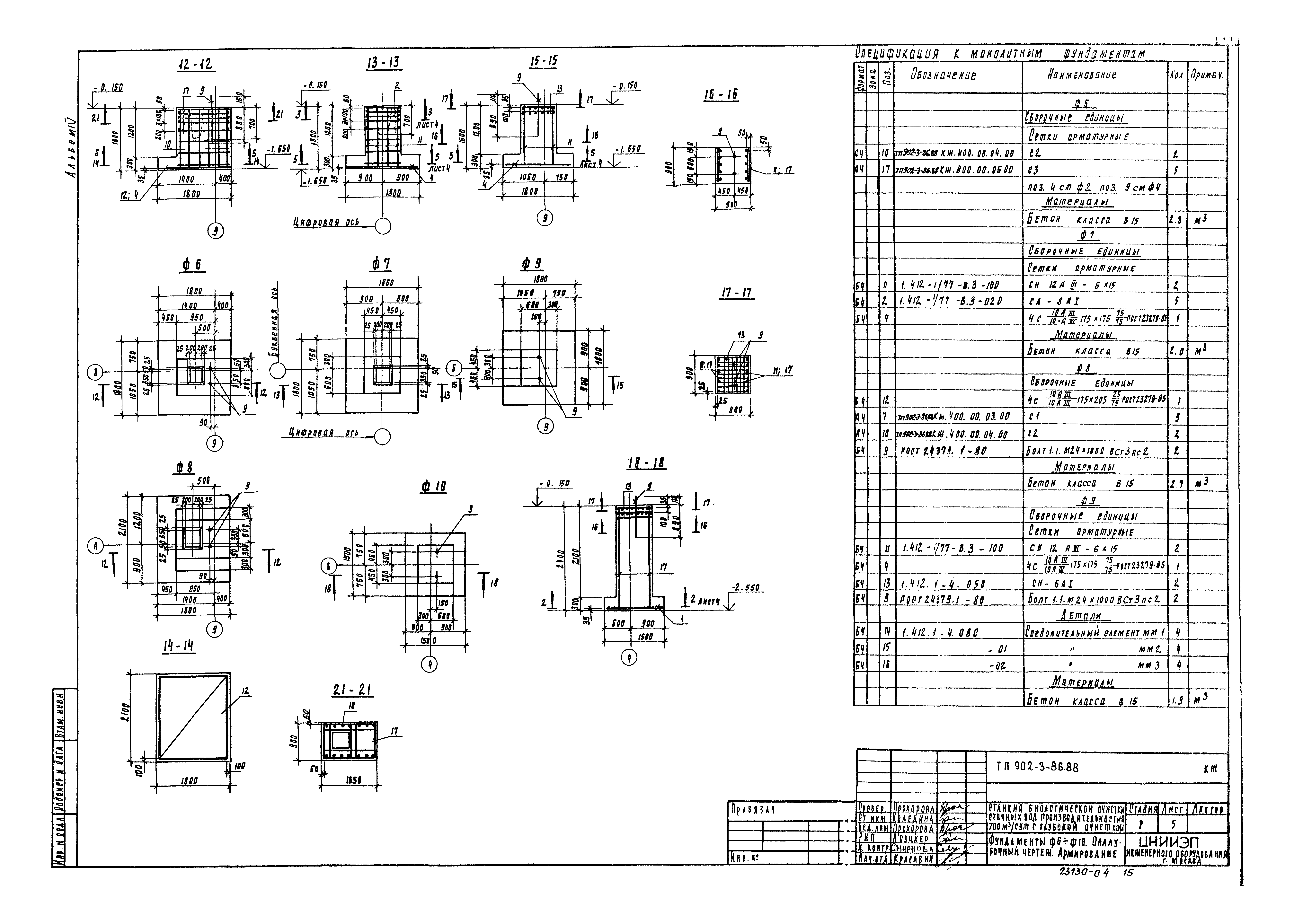
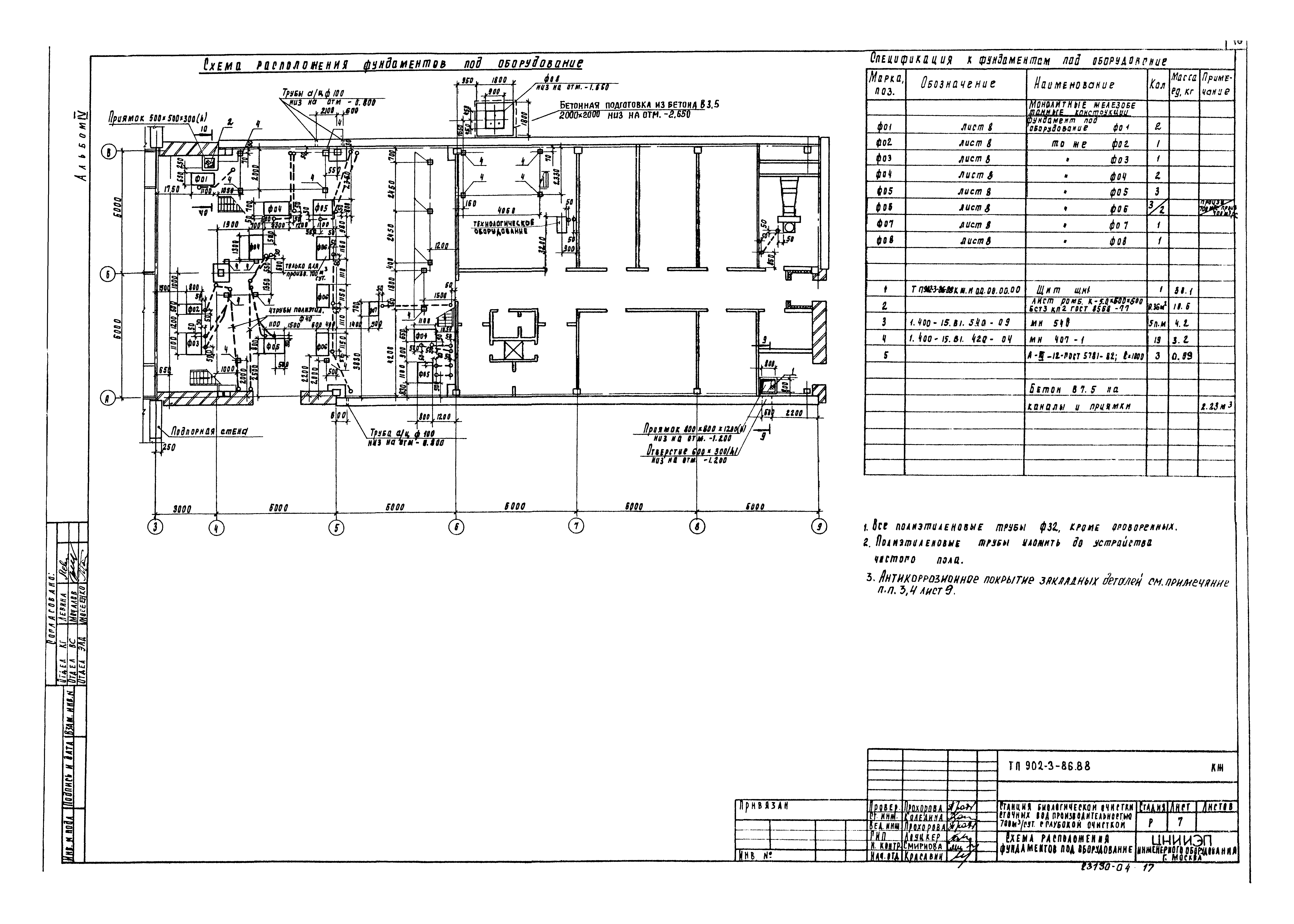
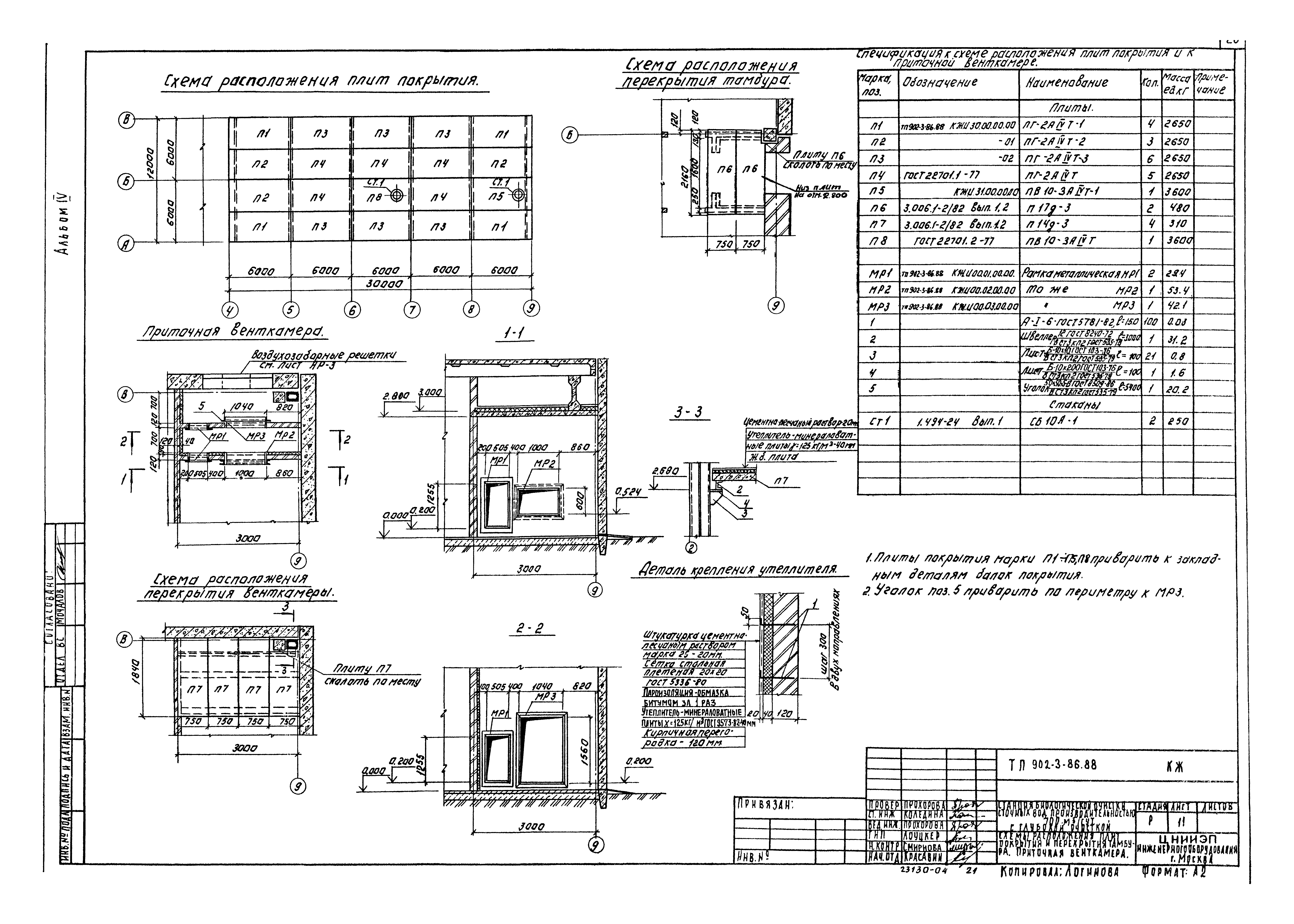
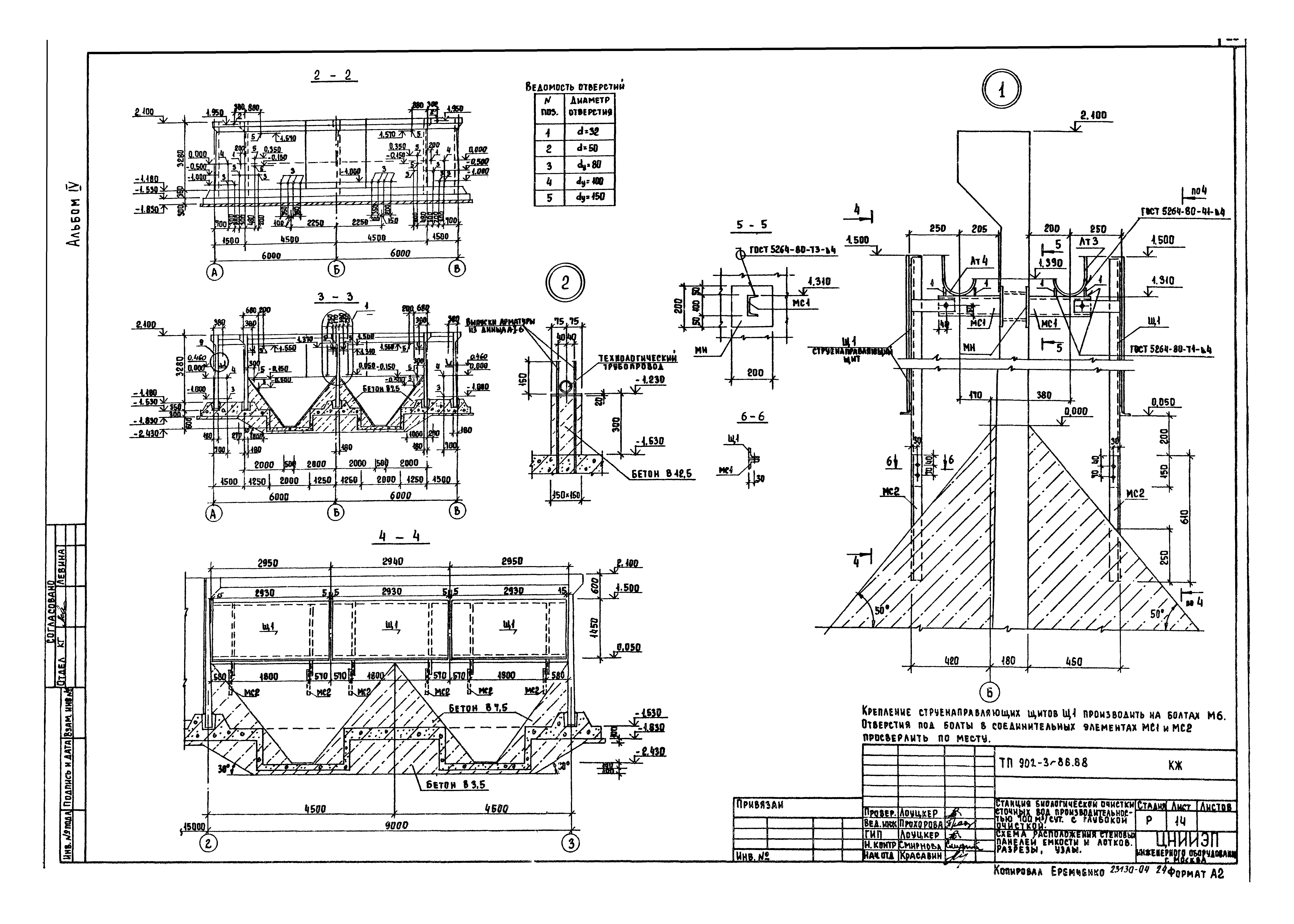
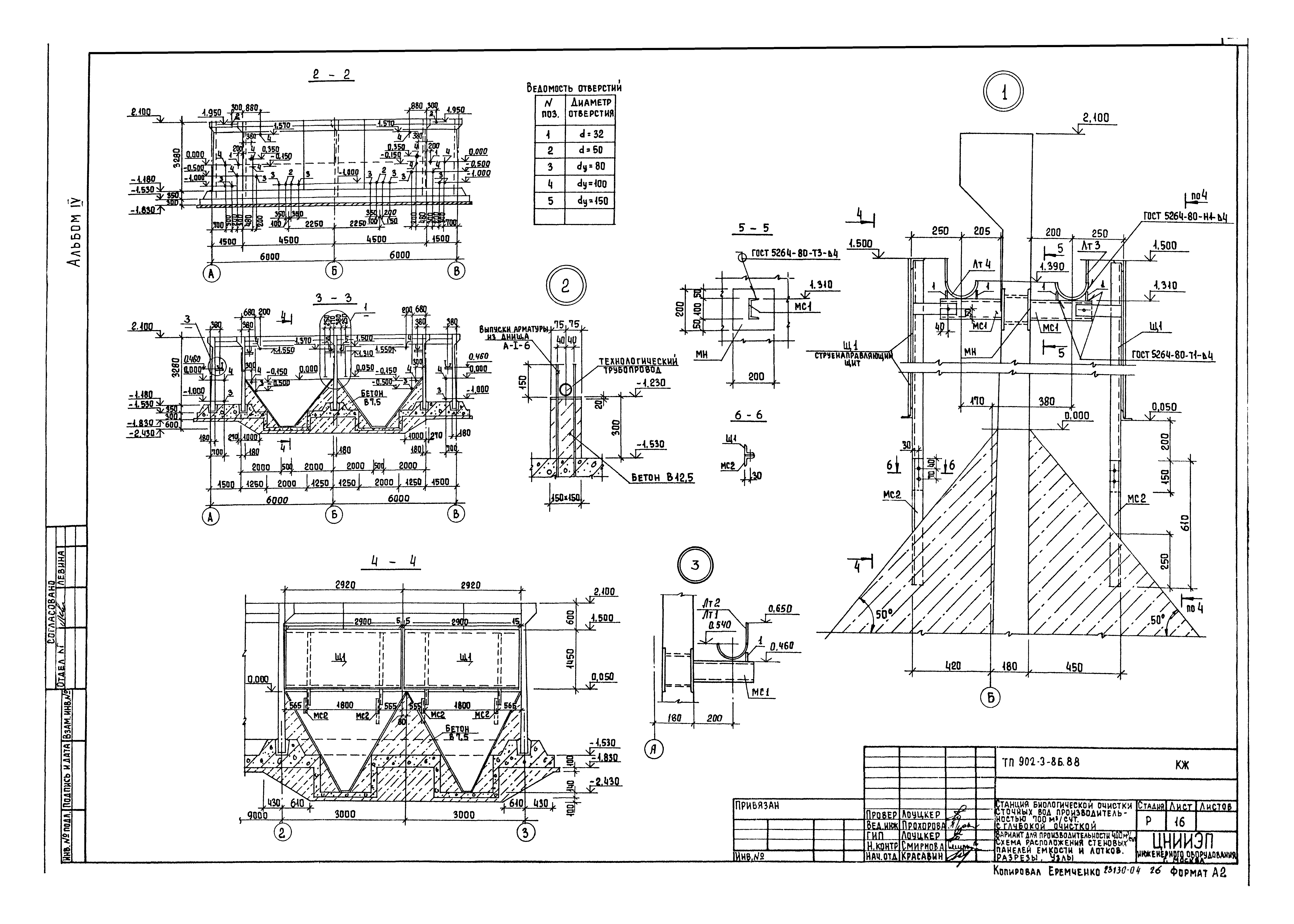
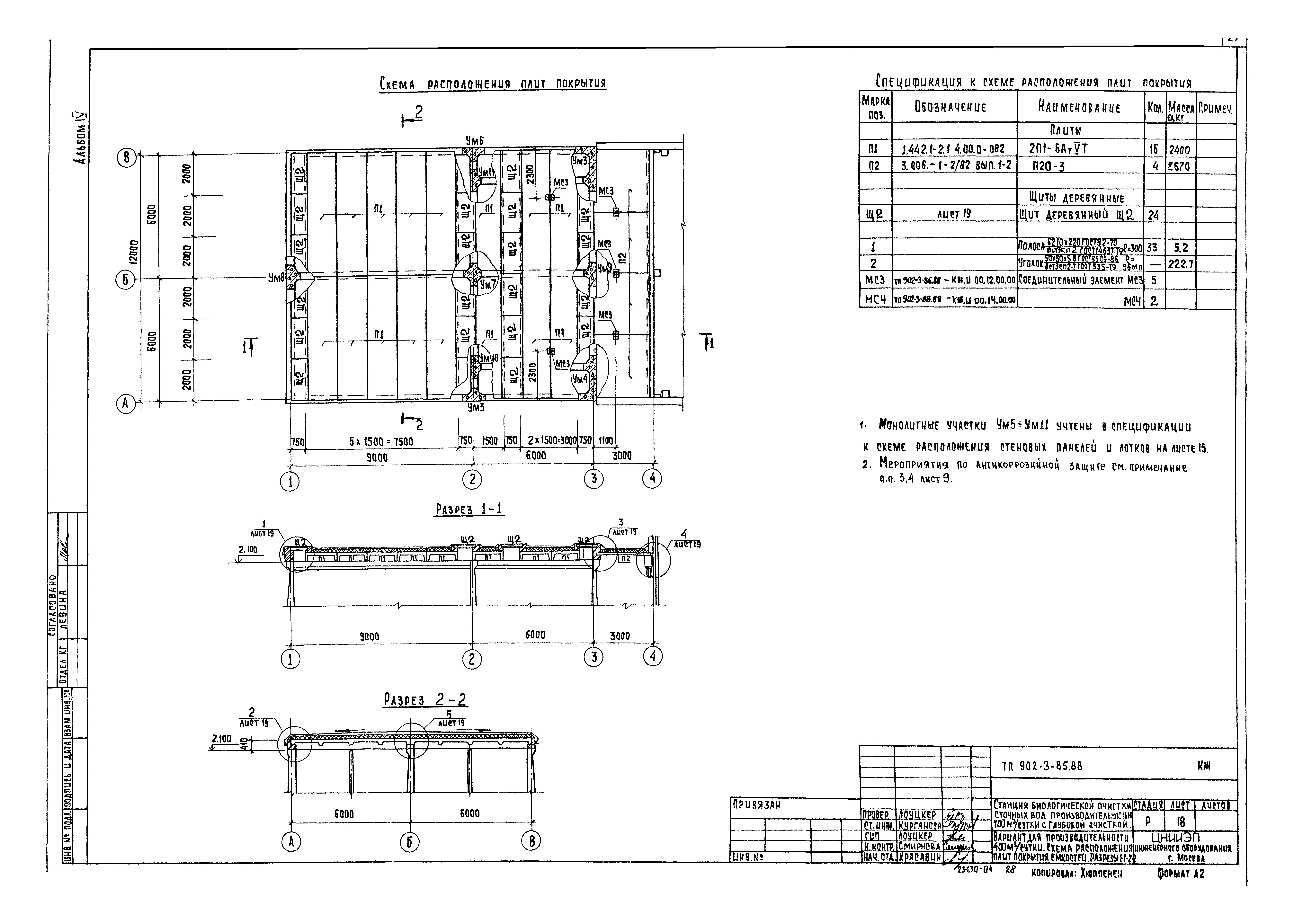
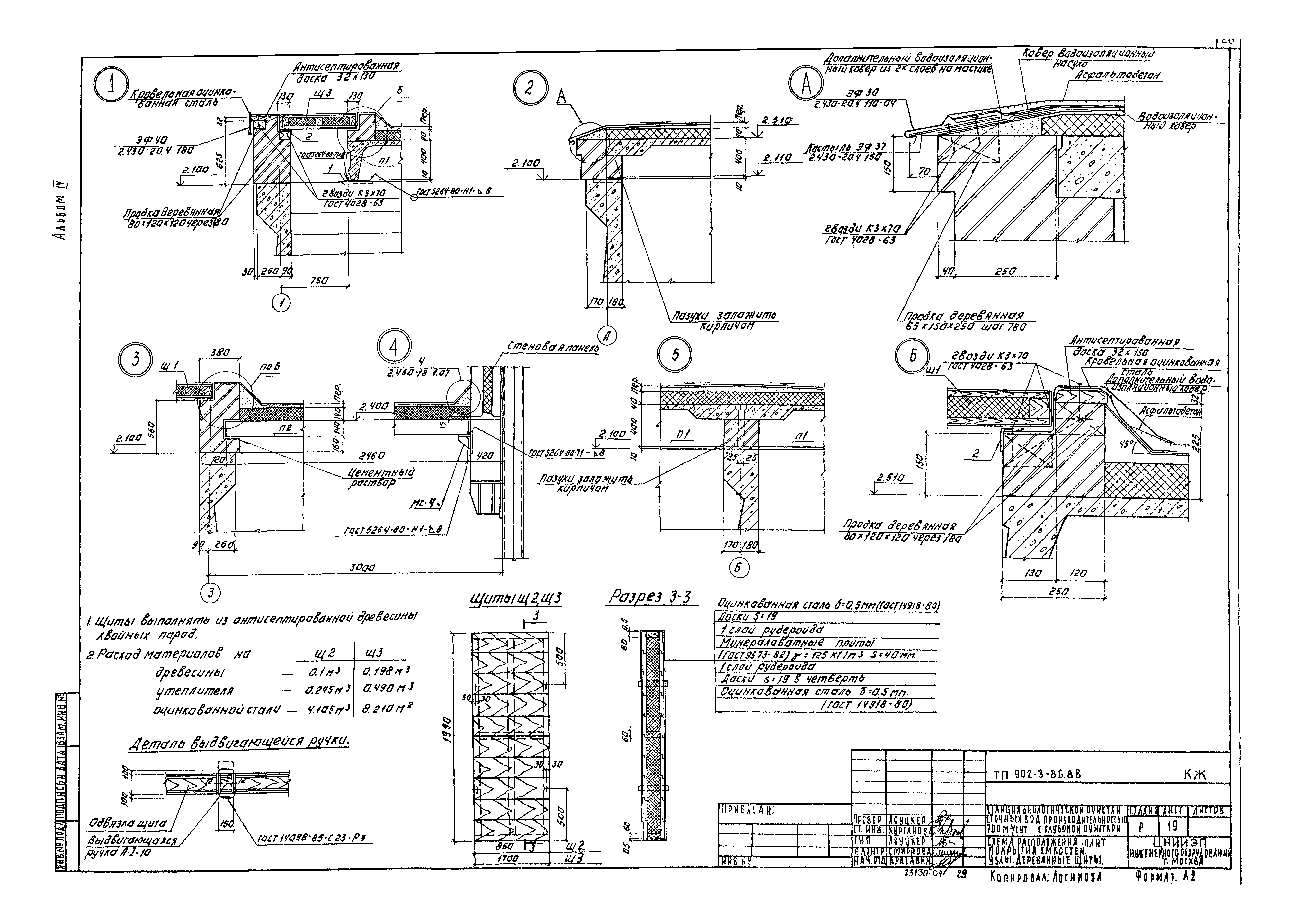
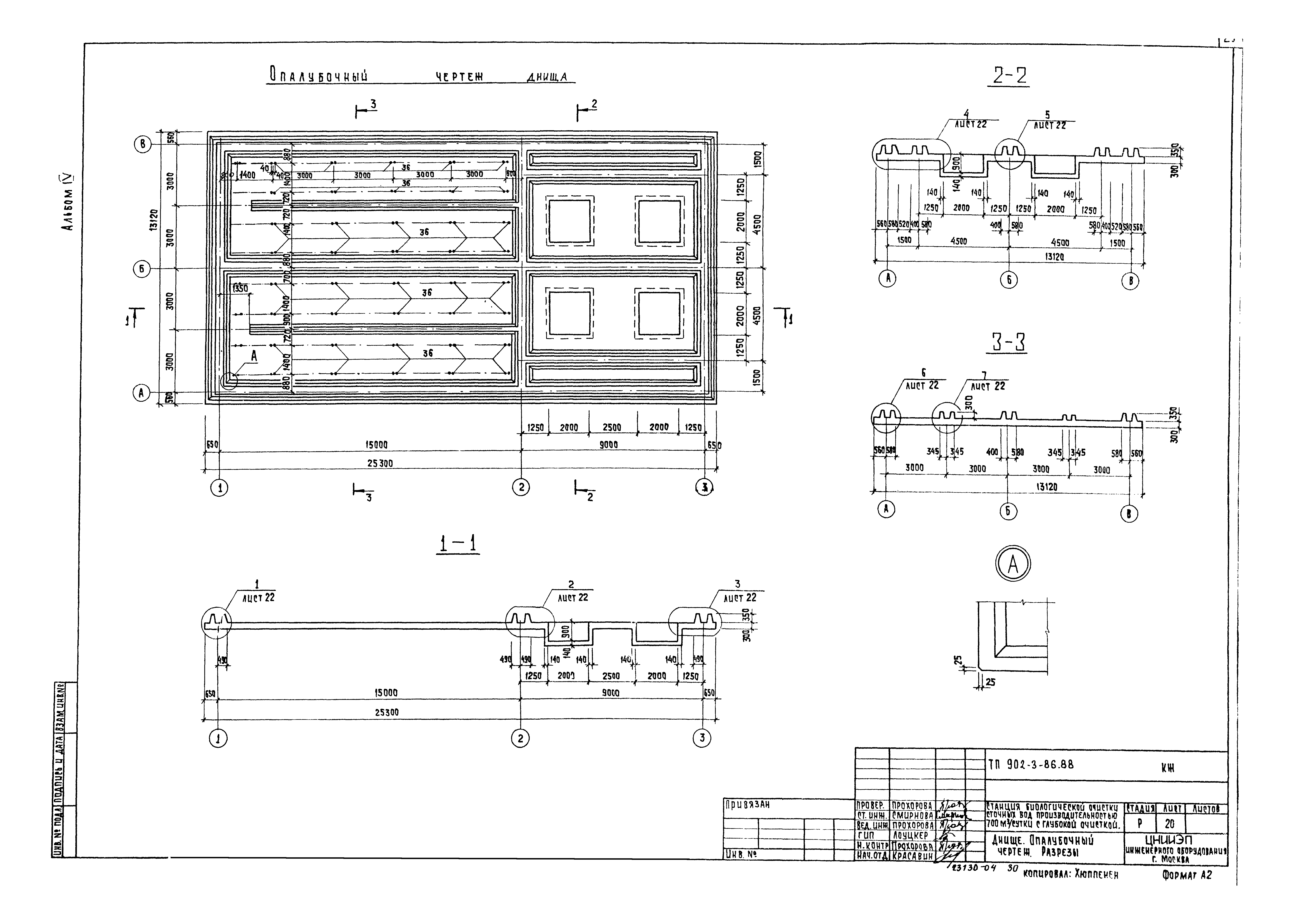
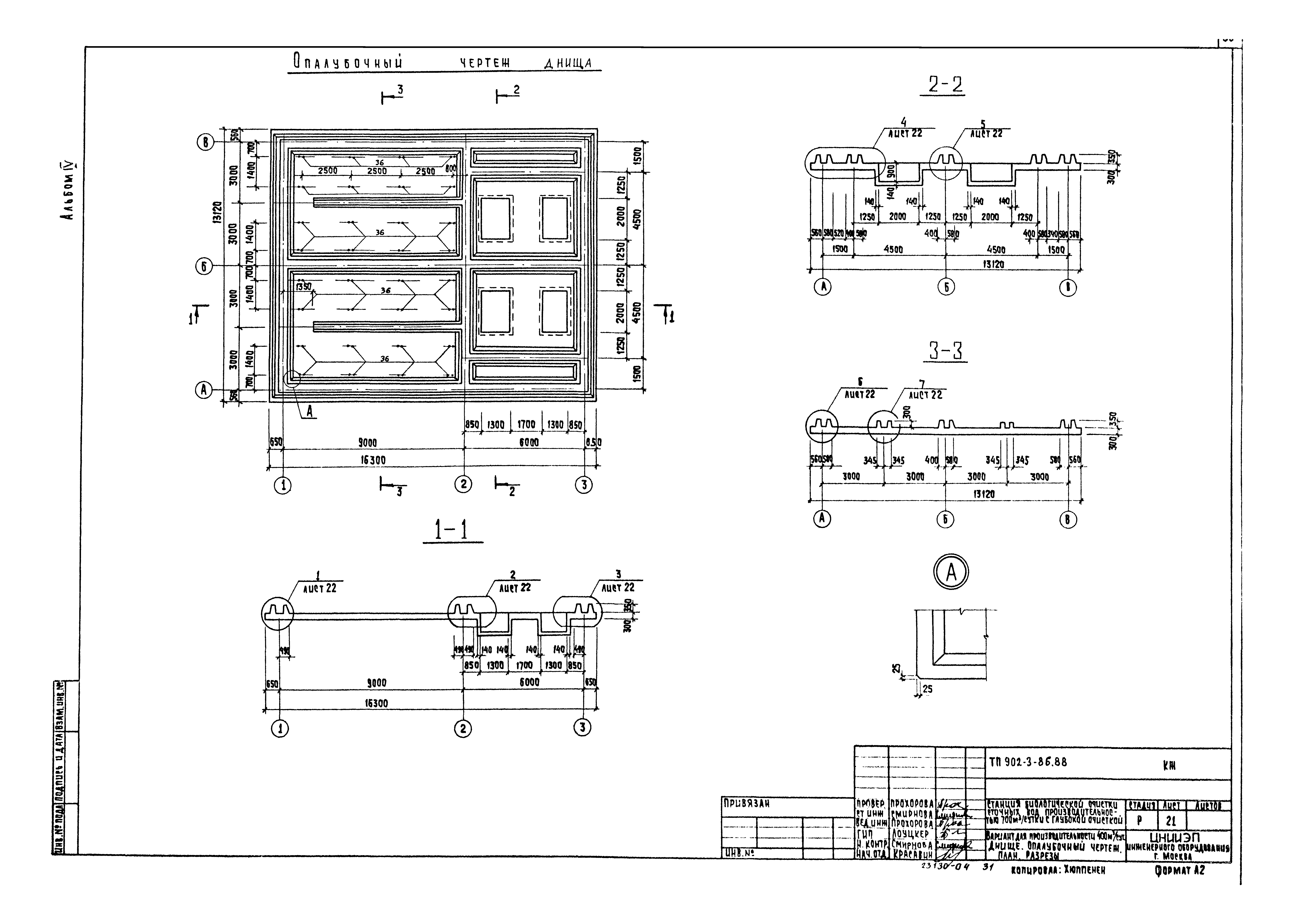
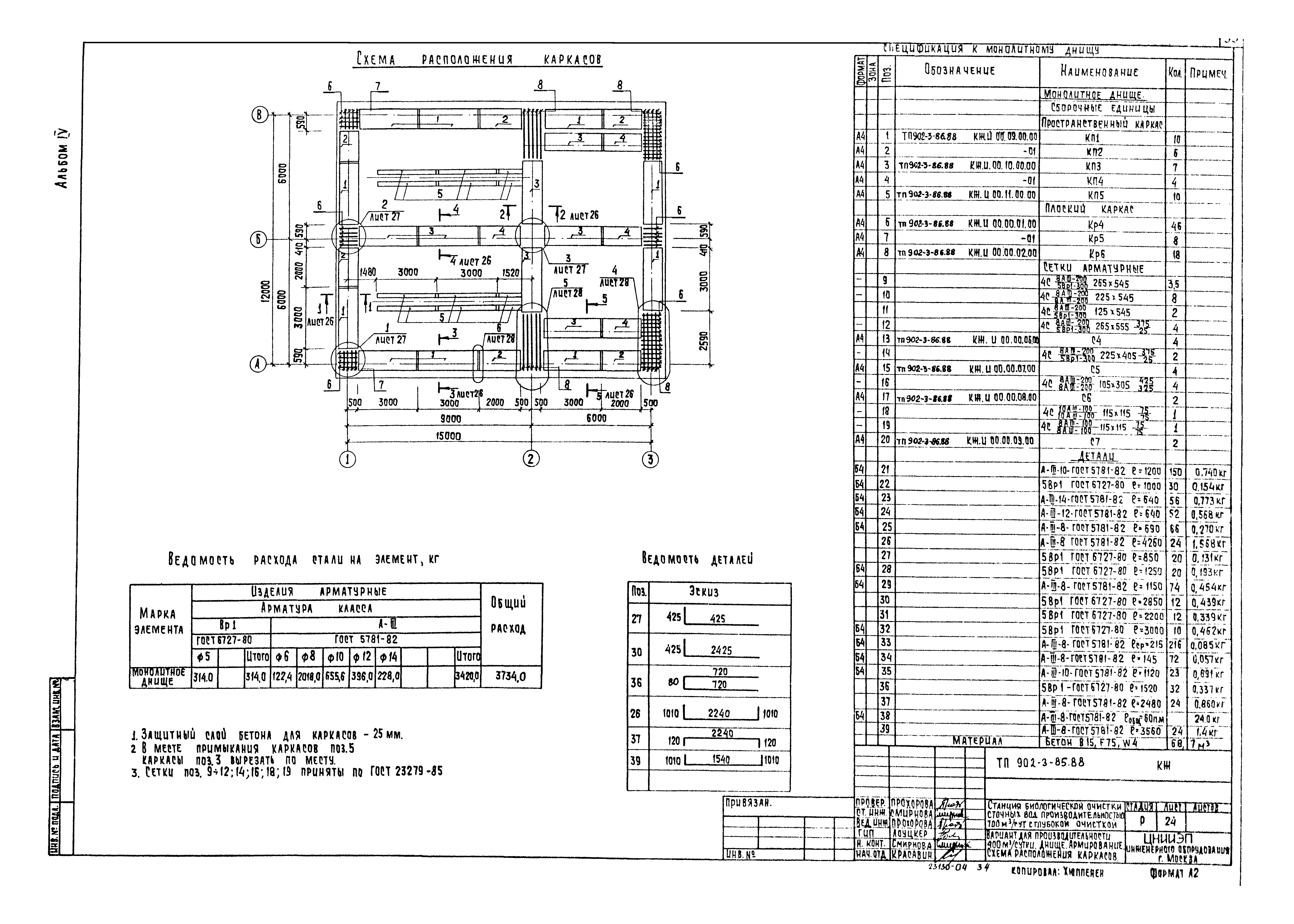
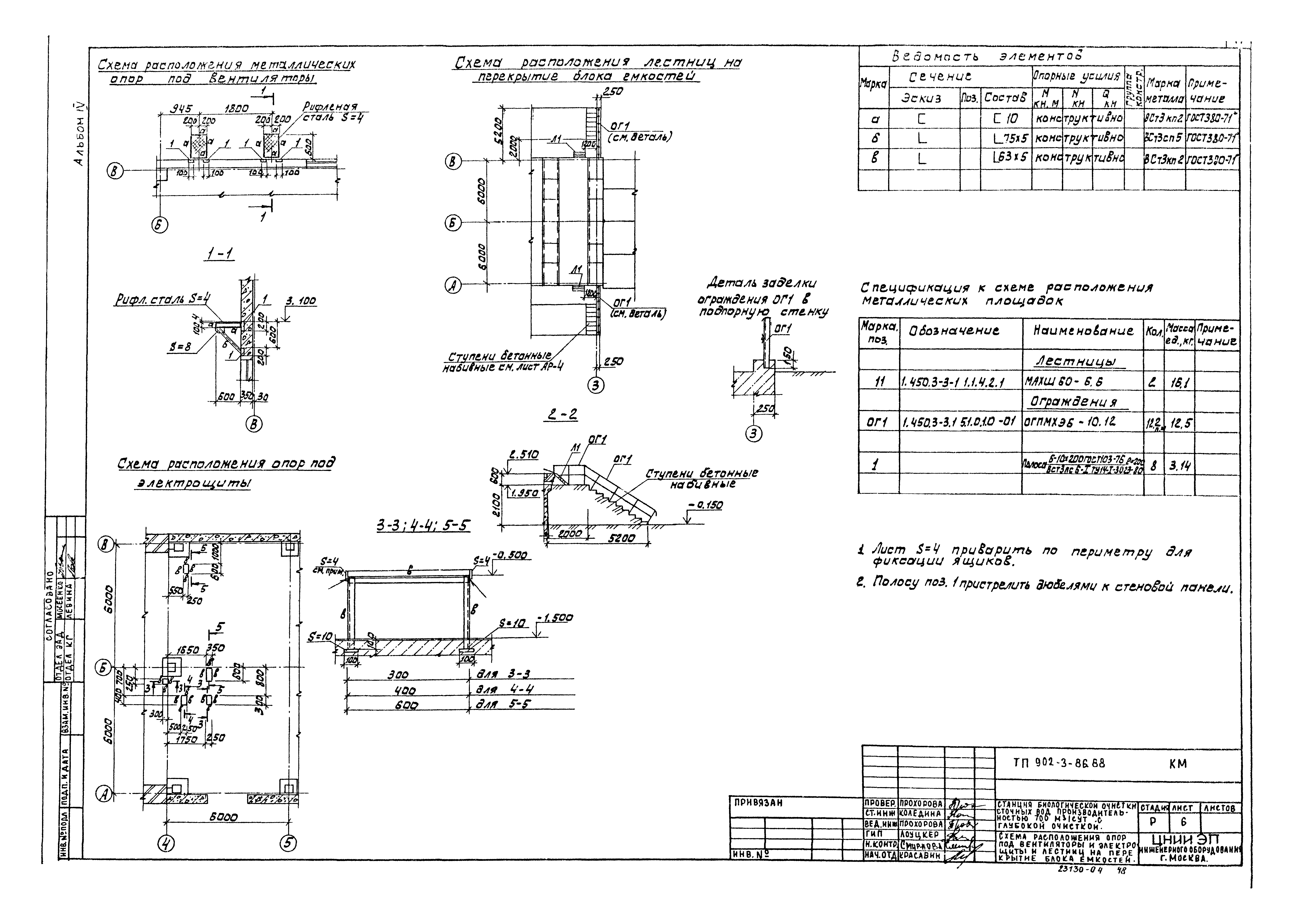
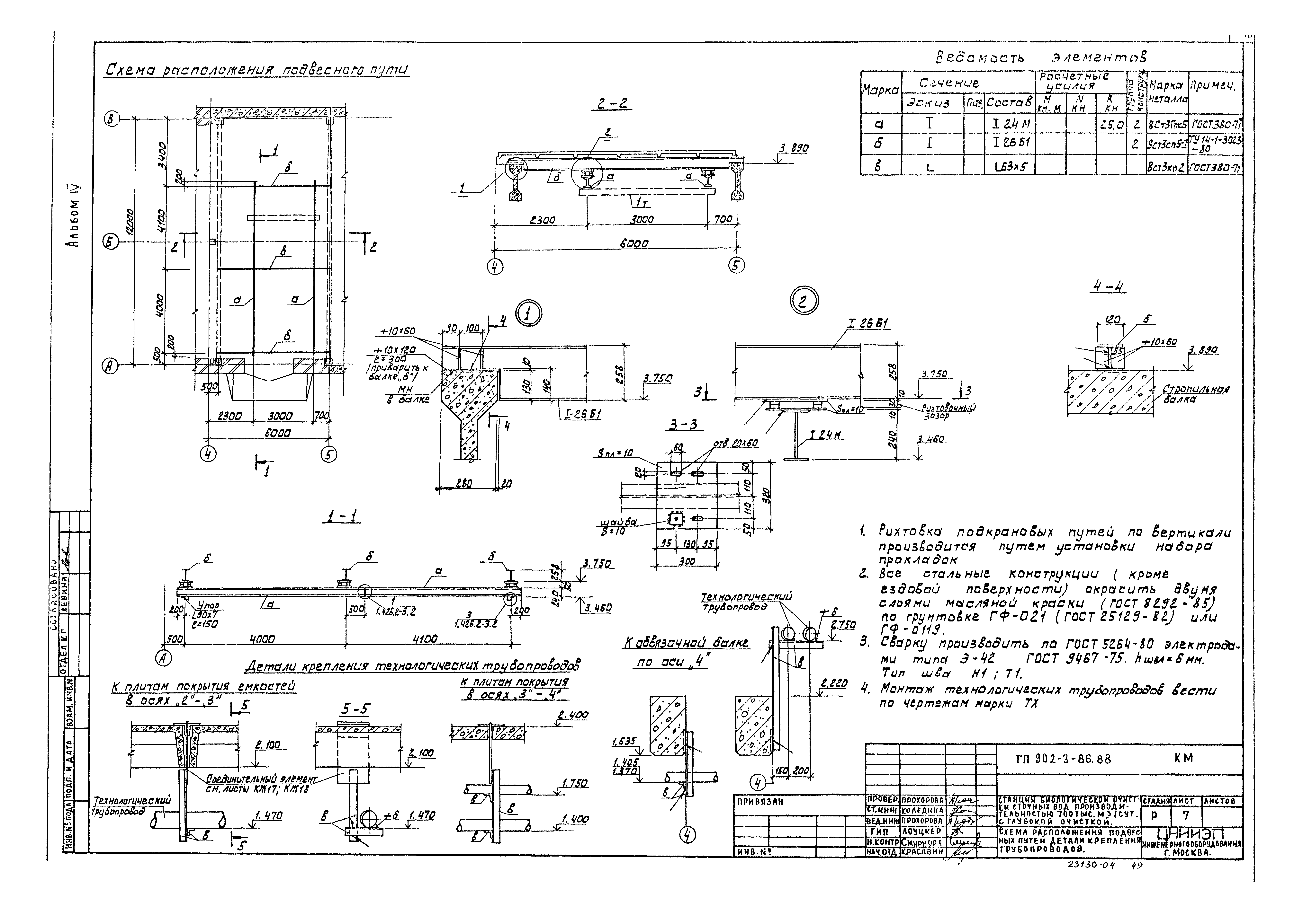
| Оглавление: | Архитектурно-строительные решения Общие данные План на отм. 0.000 Разрезы 1-1, 2-2. Ведомость проемов ворот и дверей. Спецификация элементов заполнения проемов Фасады 1 - 9; 9 - 1; А - В; В - А Ведомость перемычек. Спецификация перемычек. Узлы и детали План кровли. План полов. Ведомость отделки помещений План отверстий на отм. 0.000. Ведомость отверстий Конструкции железобетонные Общие данные Схема расположения фундаментов и фундаментных балок. Узлы 1 - 4 Узел 5, 6. Разрезы 5-5 - 11-11. Схема расположения подпорной стенки подвала Фундаменты Ф1 - Ф5. Опалубочный чертеж. Армирование Фундаменты Ф6 - Ф10. Опалубочный чертеж. Армирование Фундаменты. Разрезы. Спецификации Схема расположения фундаментов под оборудование Фундаменты под оборудование Схема расположения колонн и балок покрытия Схема расположения колонн и балок покрытия. Узлы Схема расположения плит покрытия и перекрытия тамбура. Приточная венткамера Схема расположения стеновых панелей Схема расположения стеновых панелей емкости и лотков Схема расположения стеновых панелей емкости и лотков. Разрезы. Узлы Производительность 400 куб. м/сутки. Схема расположения стеновых панелей емкости и лотков Производительность 400 куб. м/сутки. Схема расположения стеновых панелей емкости и лотков. Разрезы. Узлы Схема расположения плит покрытия емкости. Разрезы 1-1, 2-2 Производительность 400 куб. м/сутки. Схема расположения плит покрытия емкостей. Разрезы 1-1, 2-2 Схема расположения плит покрытия емкостей. Узлы. Деревянные щиты Днище. Опалубочный чертеж. Разрезы Производительность 400 куб. м/сутки. Днище. Опалубочный чертеж. План. Разрезы Днище. Опалубочный чертеж. Узлы Днище. Армирование. Схема расположения каркасов Производительность 400 куб. м/сутки. Днище. Армирование. Схема расположения каркасов Днище. Армирование. Схемы расположения нижних и верхних сеток Днище. Армирование. Сечения Днище. Армирование. Узлы 1 - 3 Днище. Армирование. Узлы 4 - 6 Монолитные участки стен. Опалубочный чертеж Монолитные участки стен. Армирование Монолитные участки стен. Армирование. Спецификация Рм1. Резервуар чистой и грязной воды и канализации Конструкции металлические Общие данные. Ведомость металлоконструкций по видам профилей Техническая спецификация стали Схемы расположения металлических площадок Схемы расположения опор под вентиляторы и электрощиты и лестниц на перекрытие блока емкостей Схема расположения подвесного пути. Детали крепления трубопроводов Выбросная труба Внутренний водопровод и канализация Общие данные. План Схемы трубопроводов В1, К1, Т3 Отопление и вентиляция Общие данные План на отм. 0.000. Схемы систем П1, В1, В2, В3, ВЕ1, ВЕ2 Для производительности 400 куб. м/сутки. Схема системы отопления. Схема системы теплоснабжения установки П1, ИТП. Схема теплоснабжения водоподогревателя Схема системы отопления. Схема системы теплоснабжения, установки П1, ИТП. Схема теплоснабжения водоподогревателя Установки систем П1, В1, В2, В3 Организация строительства Схема стройгенплана График производства работ |
| Разработан: | ЦНИИЭП инженерного оборудования |
| Утверждён: | 10.02.1988 Госкомархитектура (38) |


























































