Скачать Типовой проект 501-9-9.84 Альбом I. Технология производства. Архитектурные решения. Конструкции железобетонные. Отопление и вентиляция. Внутренние водопровод и канализация. Электрическое освещение. Силовое электрооборудование. Автоматизация систем водоснабжения и канализации. СвязьДата актуализации: 01.01.2021
|
| Обозначение: | Типовой проект 501-9-9.84 |
| Обозначение англ: | 501-9-9.84 |
| Статус: | не определен законодательством |
| Название рус.: | Альбом I. Технология производства. Архитектурные решения. Конструкции железобетонные. Отопление и вентиляция. Внутренние водопровод и канализация. Электрическое освещение. Силовое электрооборудование. Автоматизация систем водоснабжения и канализации. Связь |
| Дата добавления в базу: | 01.09.2013 |
| Дата актуализации: | 01.01.2021 |
| Дата введения: | 29.05.1984 |
| Дата окончания срока действия: | 30.06.2003 |
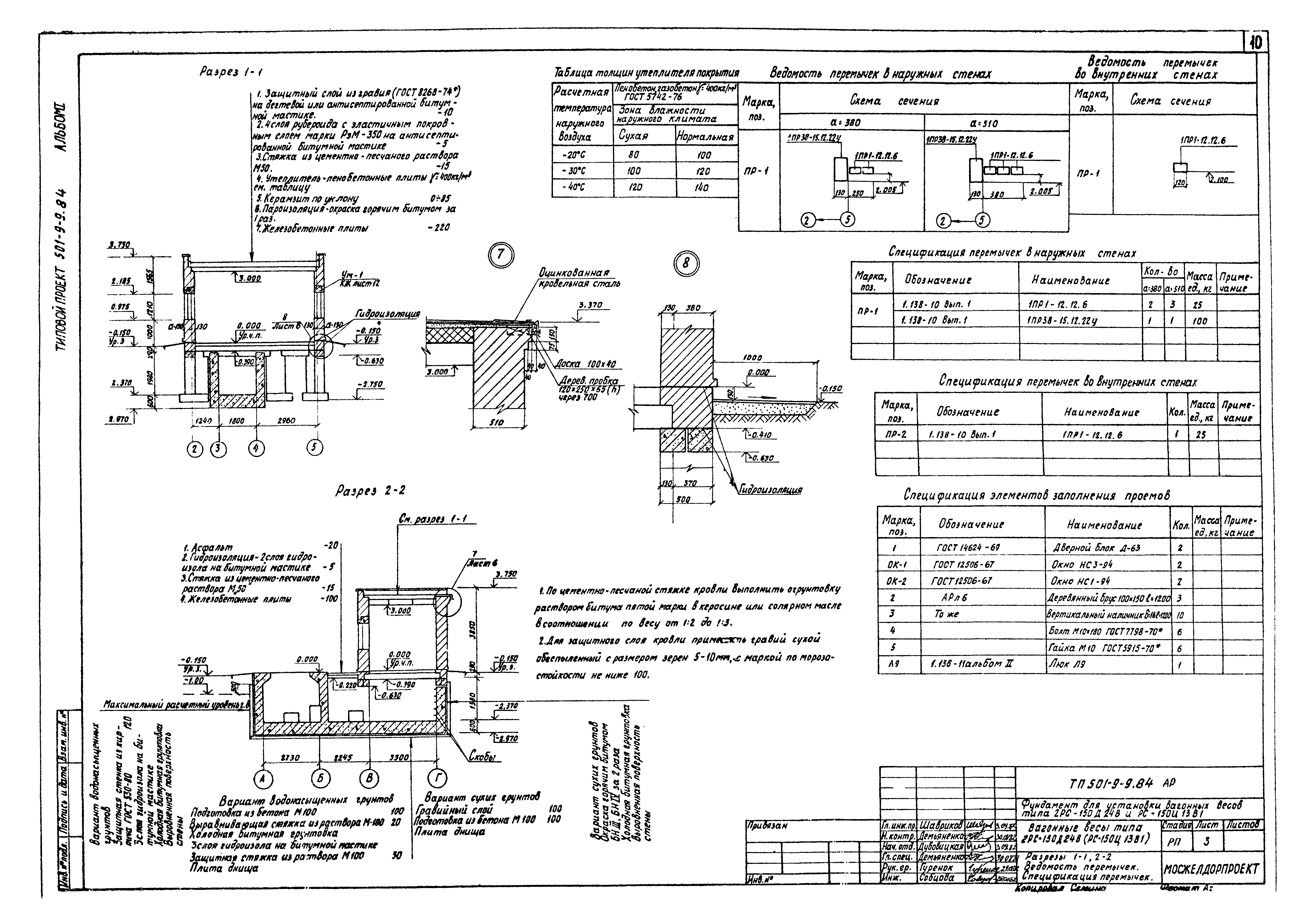
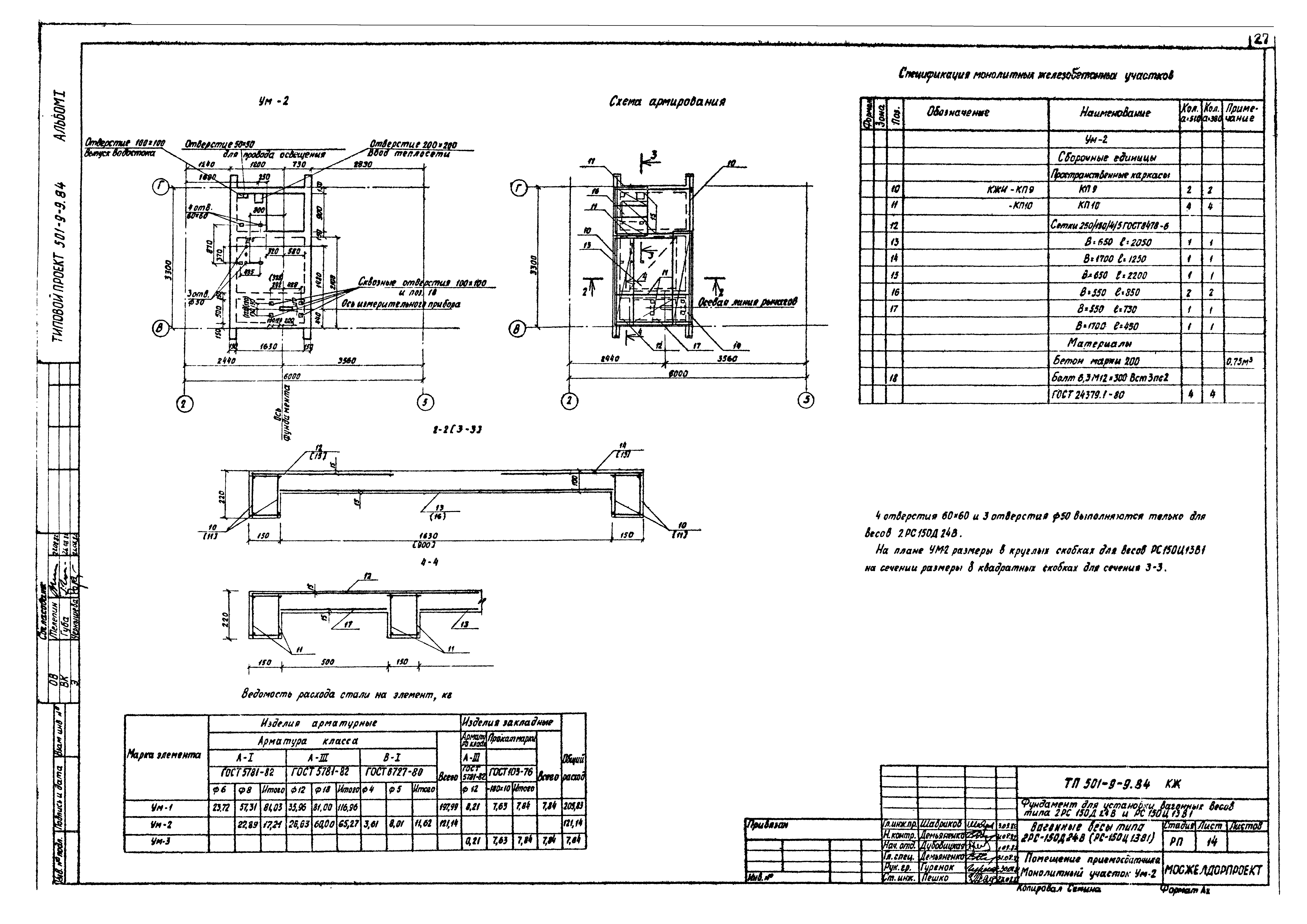
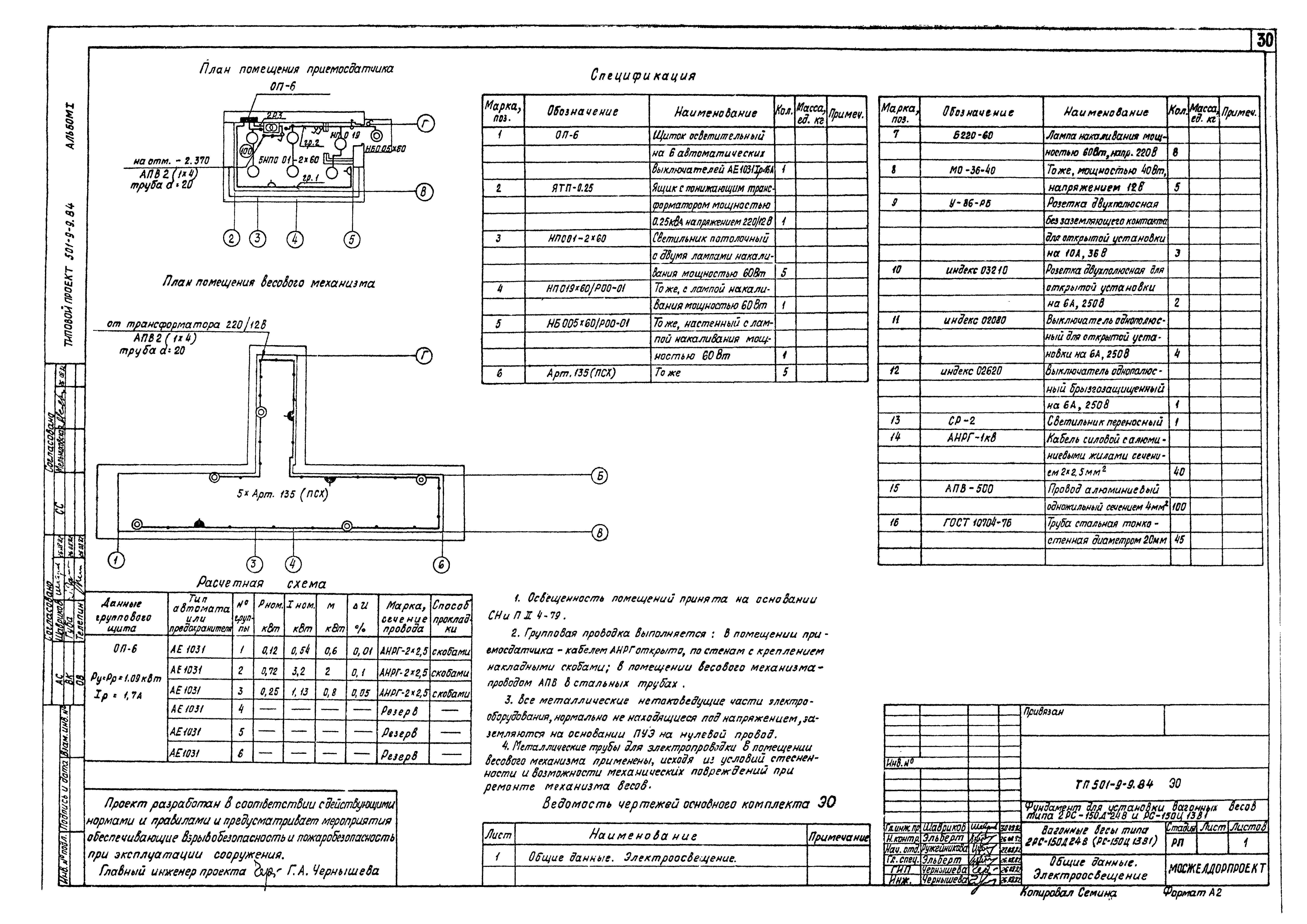
| Оглавление: | Содержание альбома Пояснительная записка Чертежи основного комплекта марки ТХ Общие данные. План с расстановкой оборудования. Разрез Чертежи основного комплекта марки АР Общие данные Планы на отм. 0.000 и - 2.370 Разрезы 1-1, 2-2. Ведомость перемычек. Спецификация перемычек Фасады. План кровли Фрагмент 1. Фрагмент 2 Схема расположения стоек СК-1. Узлы Чертежи основного комплекта марки КЖ Общие данные Помещение весового механизма. План фундаментов на отм. 0.000. Сечение 1-1 Помещение весового механизма. Сечение 2-2 - 6-6 Помещение весового механизма. Схема армирования днища. План верхних и нижних сеток Помещение весового механизма. Схема армирования днища. План каркасов Помещение весового механизма. Схема армирования СТм-1, СТм-3, СТм-4 Помещение весового механизма. Схема армирования СТм-2, СТм-5, СТм-6, СТм-7 Помещение весового механизма. Спецификация Фундаменты весового механизма ФОм-1 - ФОм-6 Помещение приемосдатчика. Схема расположения фундаментов, перемычек плит перекрытия и покрытия Помещение приемосдатчика. Монолитные участки УМ-1, УМ-3 Помещение приемосдатчика. Монолитный участок УМ-2 Чертежи основного комплекта марки ОВ Общие данные. План на отм. 0.000. Схема трубопроводов системы отопления Чертежи основного комплекта марки ВК Общие данные. План на отм. 0.000. План на отм. - 2.370. Схема канализации дренажных вод Чертежи основного комплекта марки ЭО Общие данные. Электроосвещение Чертежи основного комплекта марки ЭМ Общие данные Силовое электрооборудование. Расчетная схема Электроотопление. План и электрическая схема Шкаф управления электроотоплением. Общий вид. Монтажная схема Опросный лист для заказа панели ВРУ-1-21-10 Чертежи основного комплекта марки АВК Общие данные Схемы электрические управления насосами принципиальные Схема внешних электрических проводок Чертежи основного комплекта марки СС Общие данные. Телефонизация помещения приемосдатчика |
| Разработан: | Мосжелдорпроект |
| Утверждён: | 25.05.1984 МПС (Ministry of Railroads А-15763) |








































