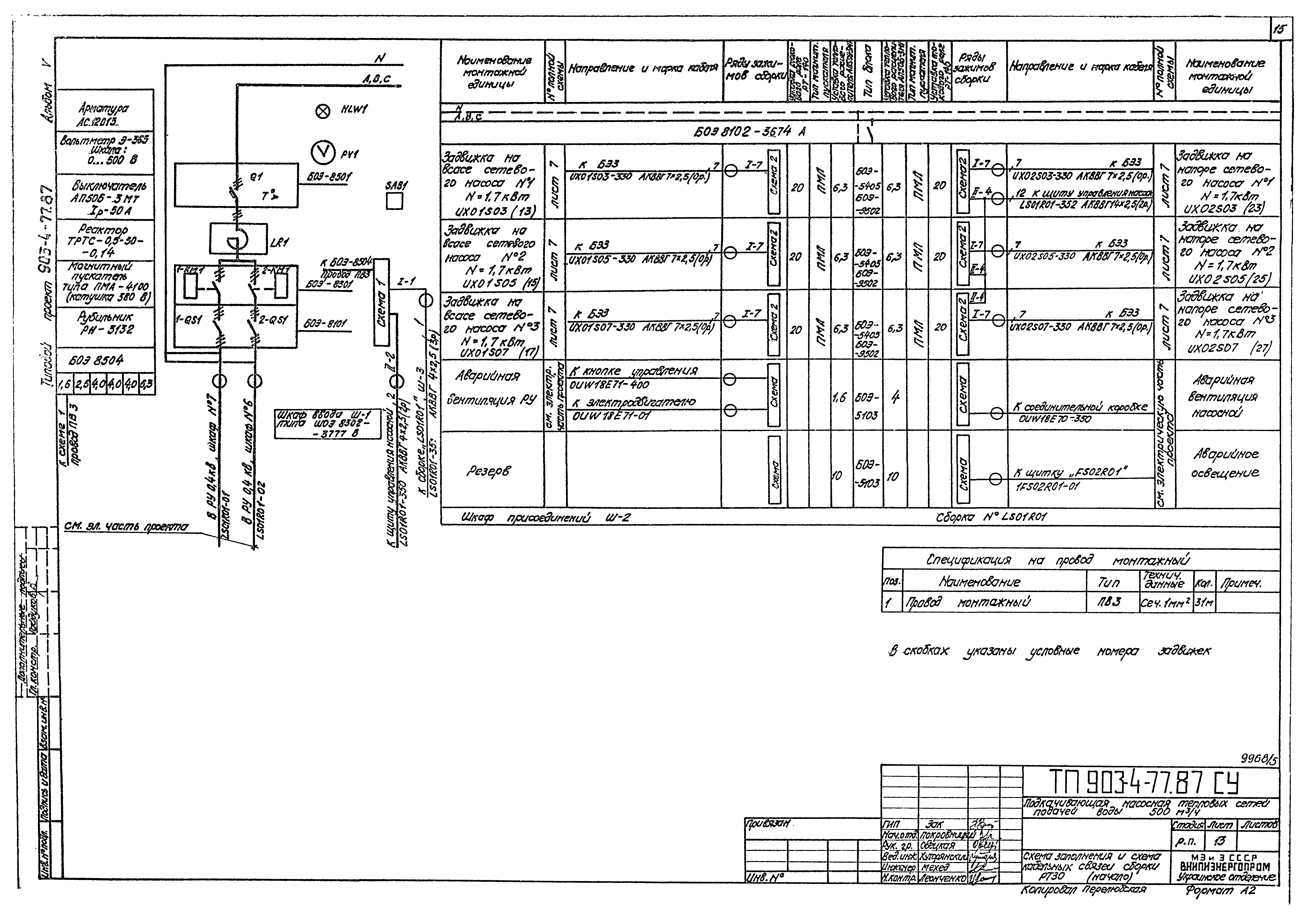
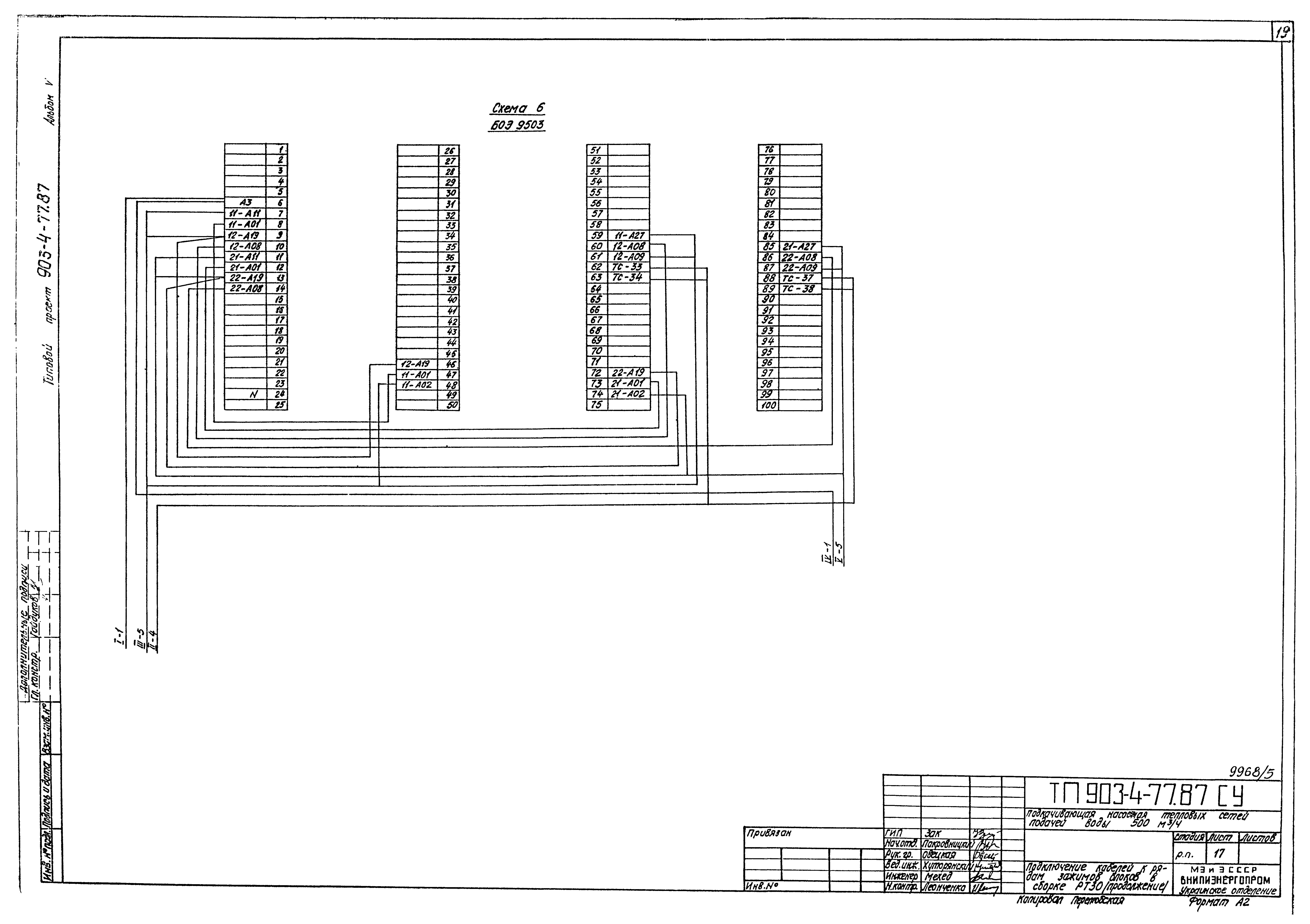
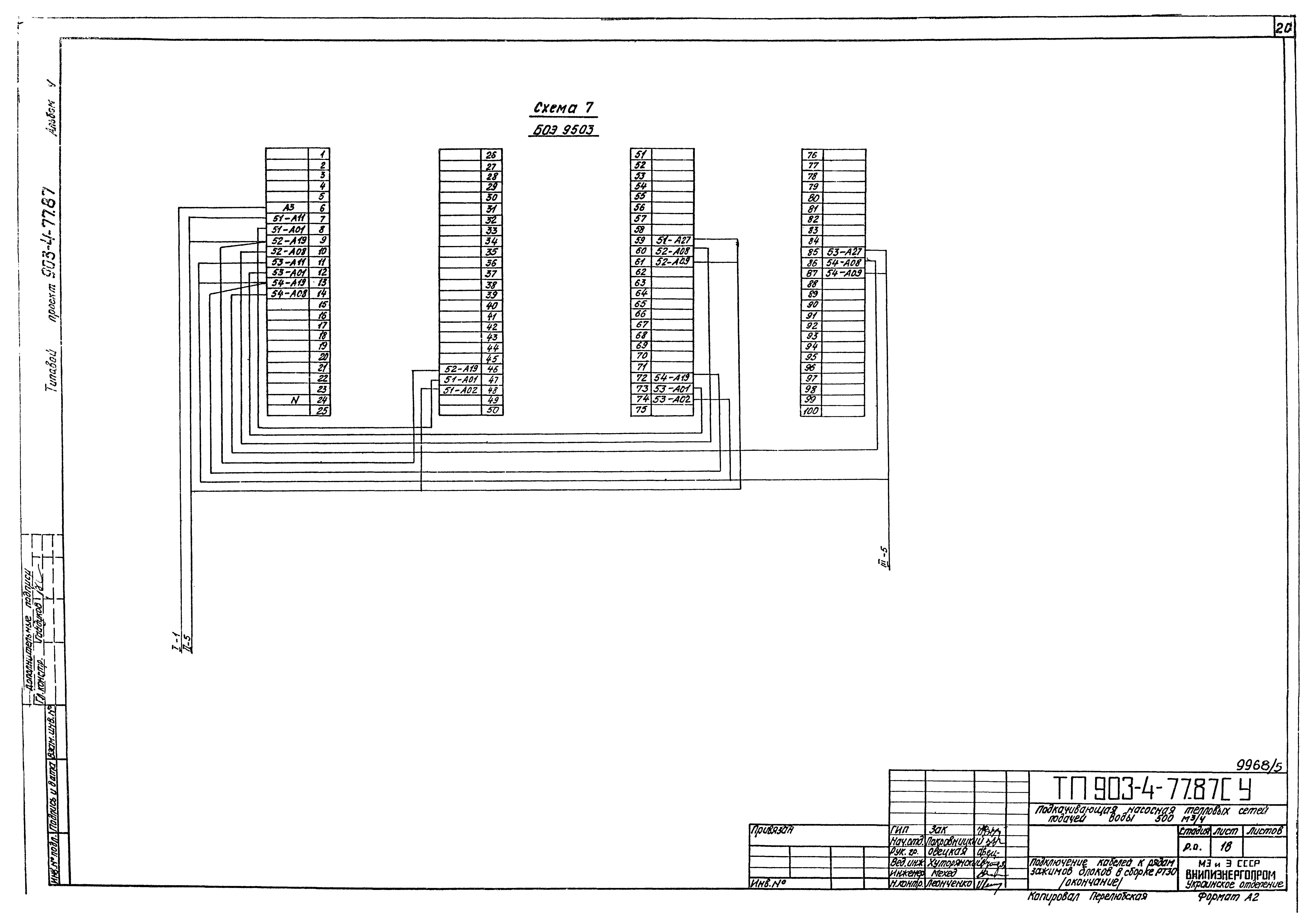
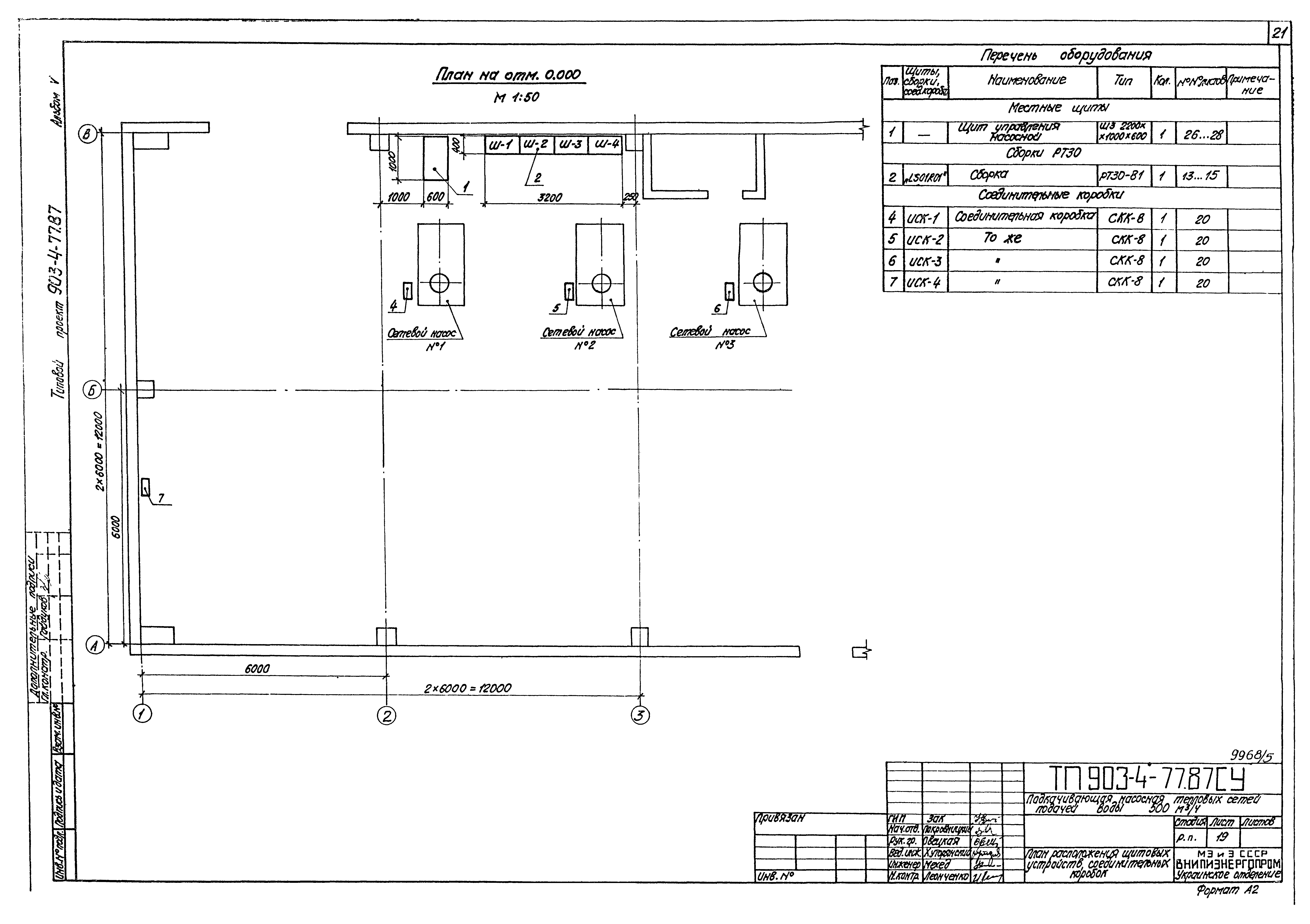
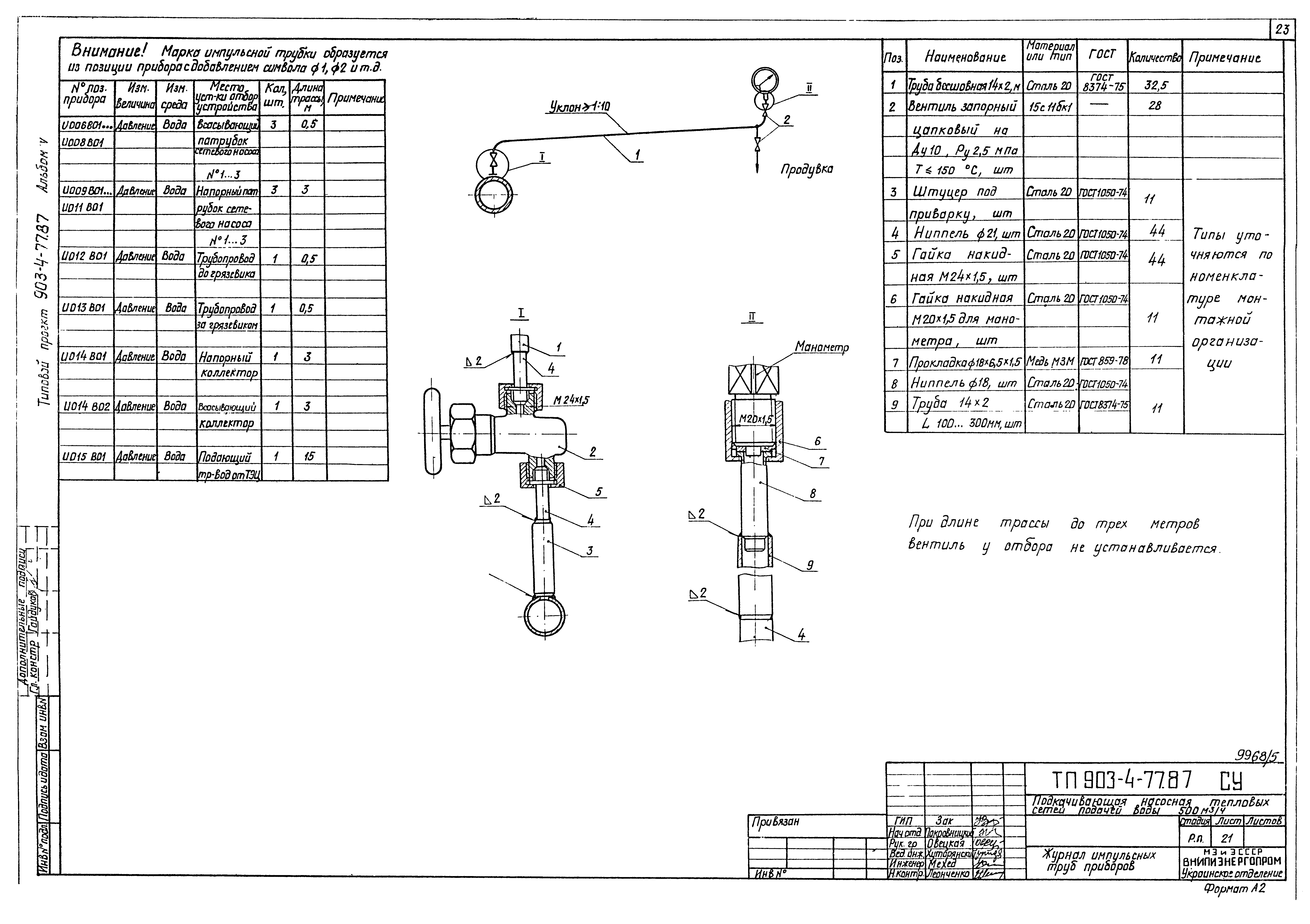
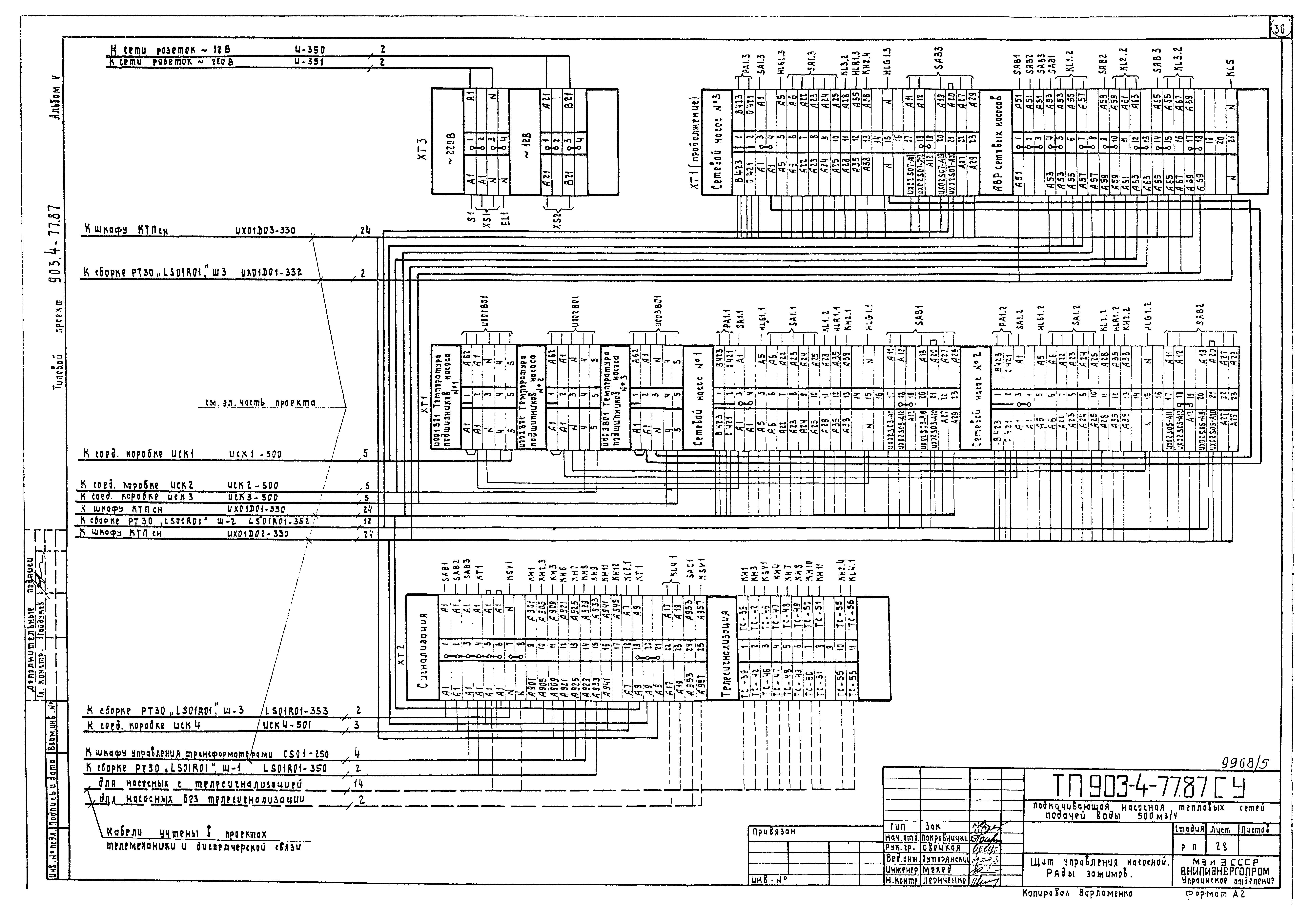
Скачать Типовой проект 903-4-77.87 Альбом V. КИП и автоматикаДата актуализации: 01.01.2021
|
| Обозначение: | Типовой проект 903-4-77.87 |
| Обозначение англ: | 903-4-77.87 |
| Статус: | действует |
| Название рус.: | Альбом V. КИП и автоматика |
| Дата добавления в базу: | 01.01.2019 |
| Дата актуализации: | 01.01.2021 |
| Дата введения: | 06.10.1987 |
| Разработан: | Украинское отделение ВНИПИэнергопрома |
| Утверждён: | 06.10.1987 Минэнерго СССР (USSR Minenergo 42) |
| Издан: | ЦИТП Госстроя СССР (CITP, Gosstroy (USSR) 1988 г. ) |





























