Скачать Типовой проект 414-2-55.94 Альбом 8. Отопление, вентиляция. Внутренние водопровод и канализацияДата актуализации: 01.01.2021
|
| Обозначение: | Типовой проект 414-2-55.94 |
| Обозначение англ: | 414-2-55.94 |
| Статус: | не определен законодательством |
| Название рус.: | Альбом 8. Отопление, вентиляция. Внутренние водопровод и канализация |
| Дата добавления в базу: | 01.09.2013 |
| Дата актуализации: | 01.01.2021 |
| Дата введения: | 21.12.1994 |
| Дата окончания срока действия: | 30.06.2003 |
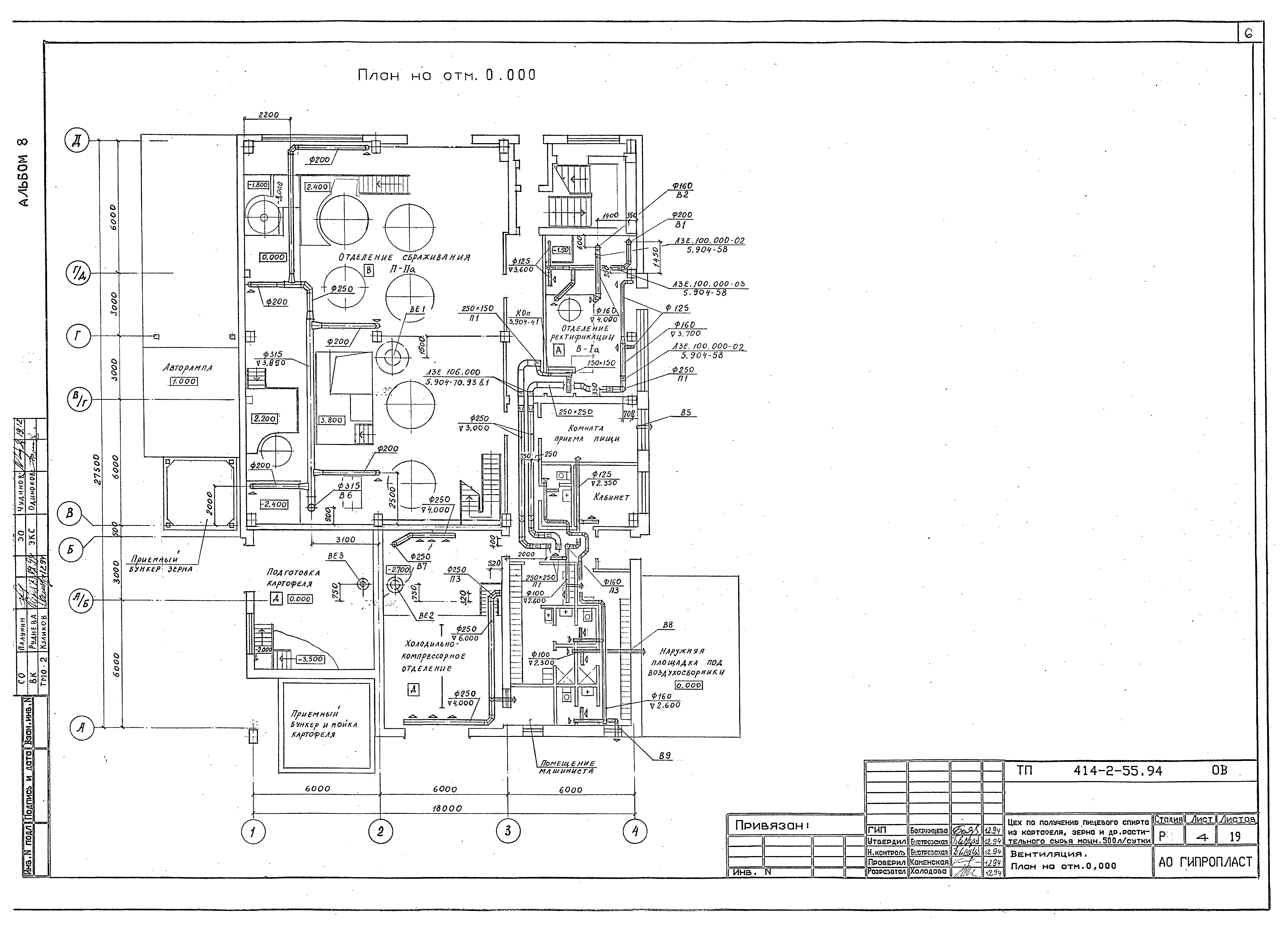
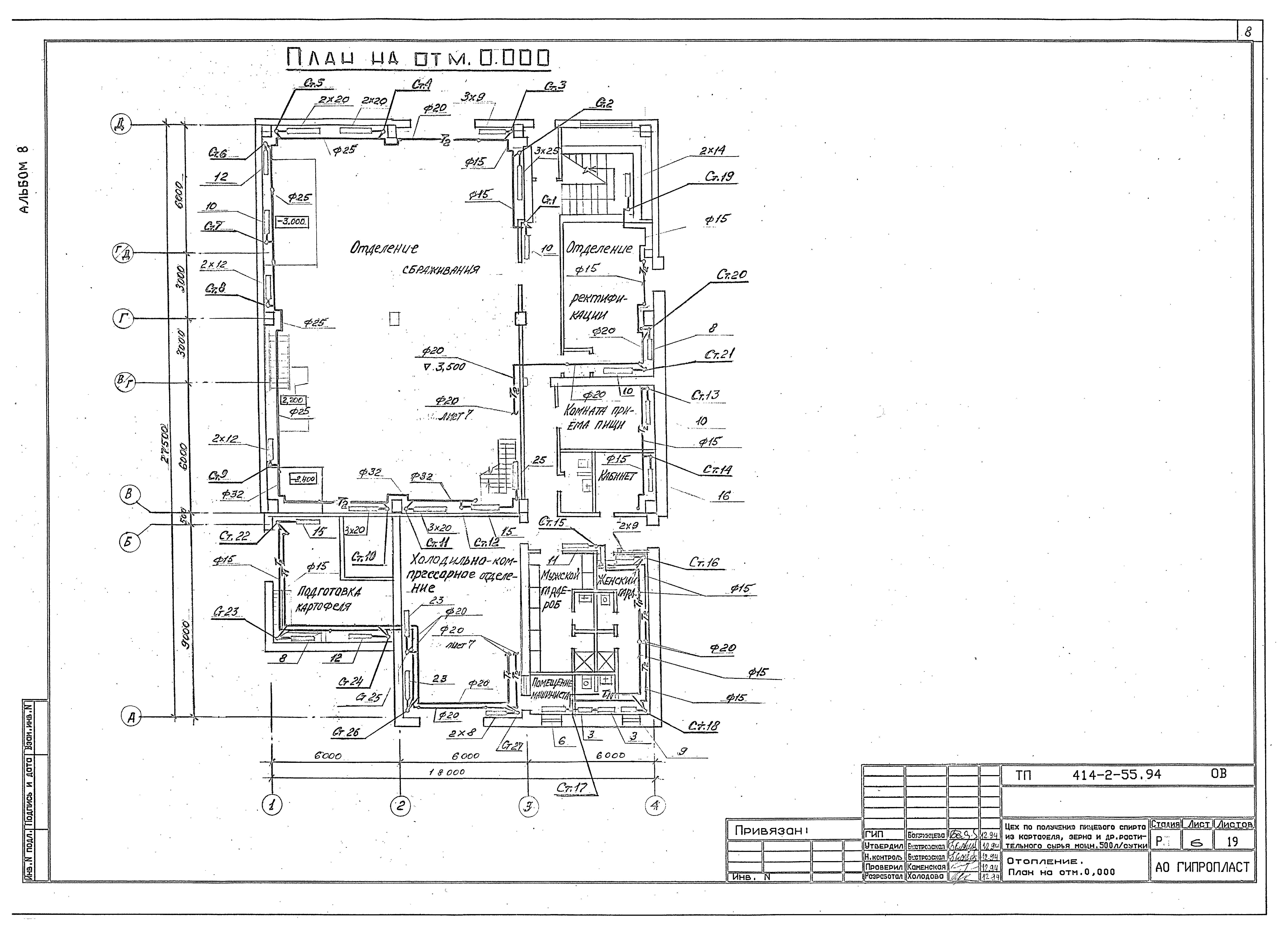
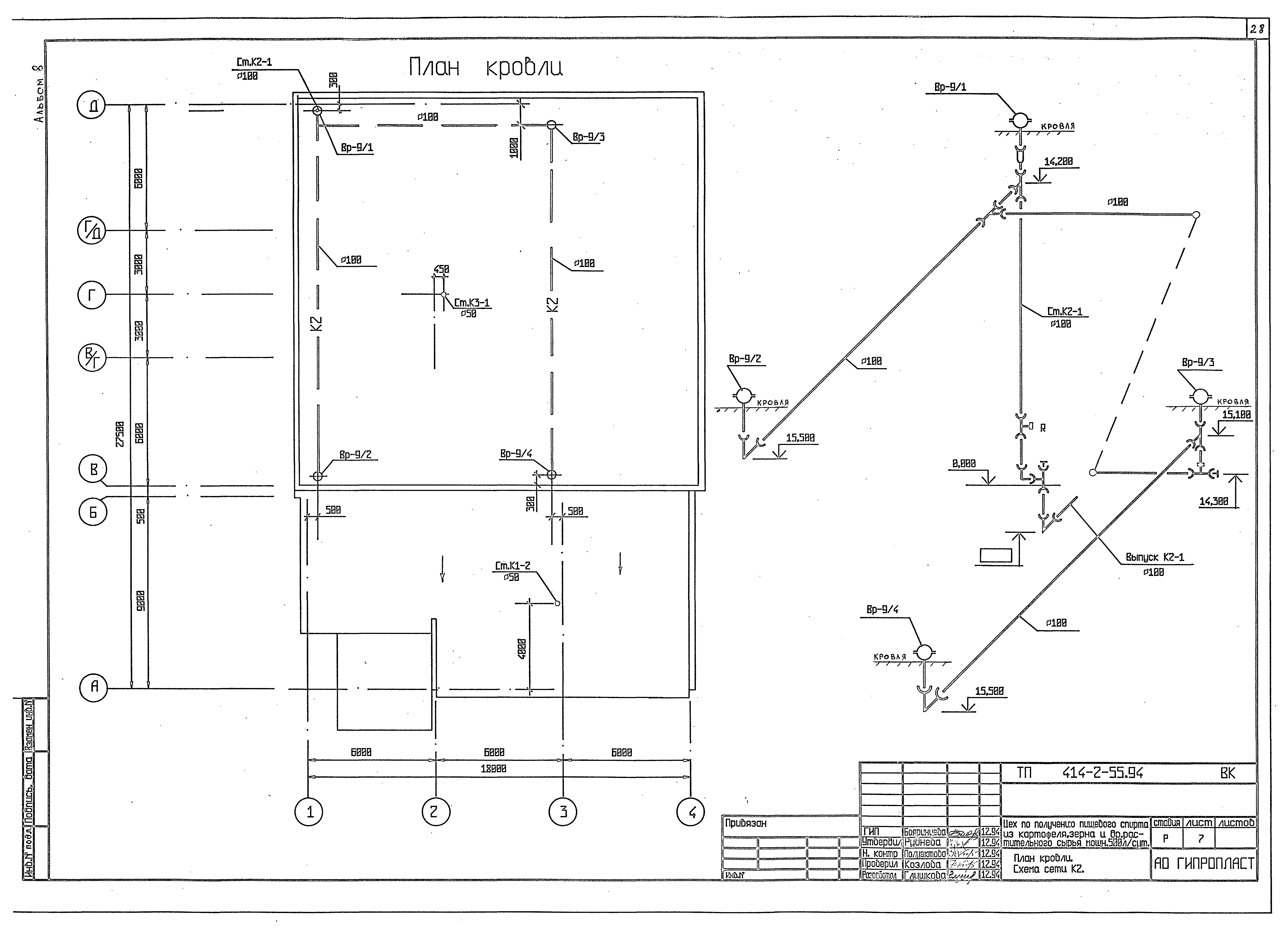
| Оглавление: | Содержание альбома Отопление и вентиляция Общие данные Вентиляция. План на отм. 0.000 Вентиляция. План на отм. 3.000; 4.800; 9.600 Отопление. План на отм. 0.000 Отопление. Теплоснабжение. План на отм. 3.000; 4.800; 9.600 Вентиляция. Установка систем П1, П2, П3 Вентиляция. Спецификация установок П1, П2, П3 Вентиляция. Установка систем В1, В2, В3, В6, В7 Вентиляция. Спецификация установок В1, В2, В3, В6, В7 Вентиляция. Схемы систем П1, П2 Вентиляция. Схемы систем П3, В3, В8, В9 Вентиляция. Схемы систем В1, В2 Вентиляция. Схемы систем В6, В7, ВЕ1, ВЕ2, ВЕ3 Отопление. Схема системы отопления 1 Отопление. Схема систем отопления 2, 3 Теплоснабжение. Схема системы теплоснабжения установок П1, П3 Теплоснабжение. Узел управления. Спецификация Водопровод, канализация Общие данные Таблица производственного водопотребления и водоотведения Планы на отм. 0.000 и 4.800 с сетями В1, Т3, Т4, К1, К2 Планы на отм. 0.000 и 4.800 с сетями В2, В4, В5, В12, К3, К4 Планы на отм. 9.600; 12.500 и 12.600 с сетями В1, В2, В4, В5, К2, К3 План кровли. Схема сети К2 Схемы сетей В1, Т3, Т4 Схемы сетей В4, В5 Схемы сетей В2, В12 Схемы сетей К1, К3, К4 |
| Разработан: | Гипропласт Минхимнефтепрома СССР |
| Утверждён: | 16.12.1994 Роскомхимнефтепром (Roskomkhimnefteprom 09/1-11-122) |
































