Скачать Типовой проект 407-3-578.90 Альбом 1. Общая пояснительная записка. Архитектурно-строительные решенияДата актуализации: 01.01.2021
|
| Обозначение: | Типовой проект 407-3-578.90 |
| Обозначение англ: | 407-3-578.90 |
| Статус: | не определен законодательством |
| Название рус.: | Альбом 1. Общая пояснительная записка. Архитектурно-строительные решения |
| Дата добавления в базу: | 01.09.2013 |
| Дата актуализации: | 01.01.2021 |
| Дата введения: | 16.11.1990 |
| Дата окончания срока действия: | 30.06.2003 |
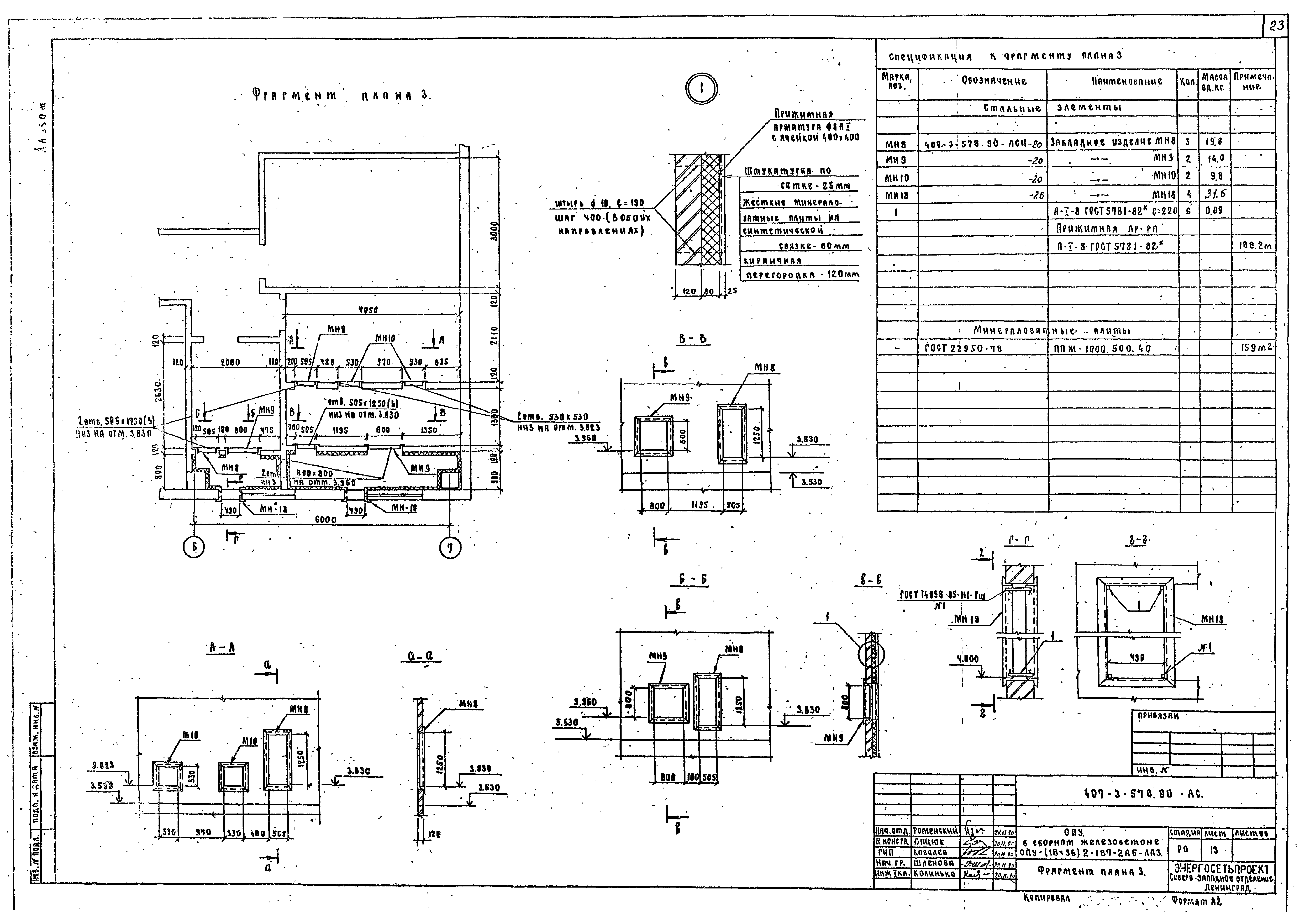
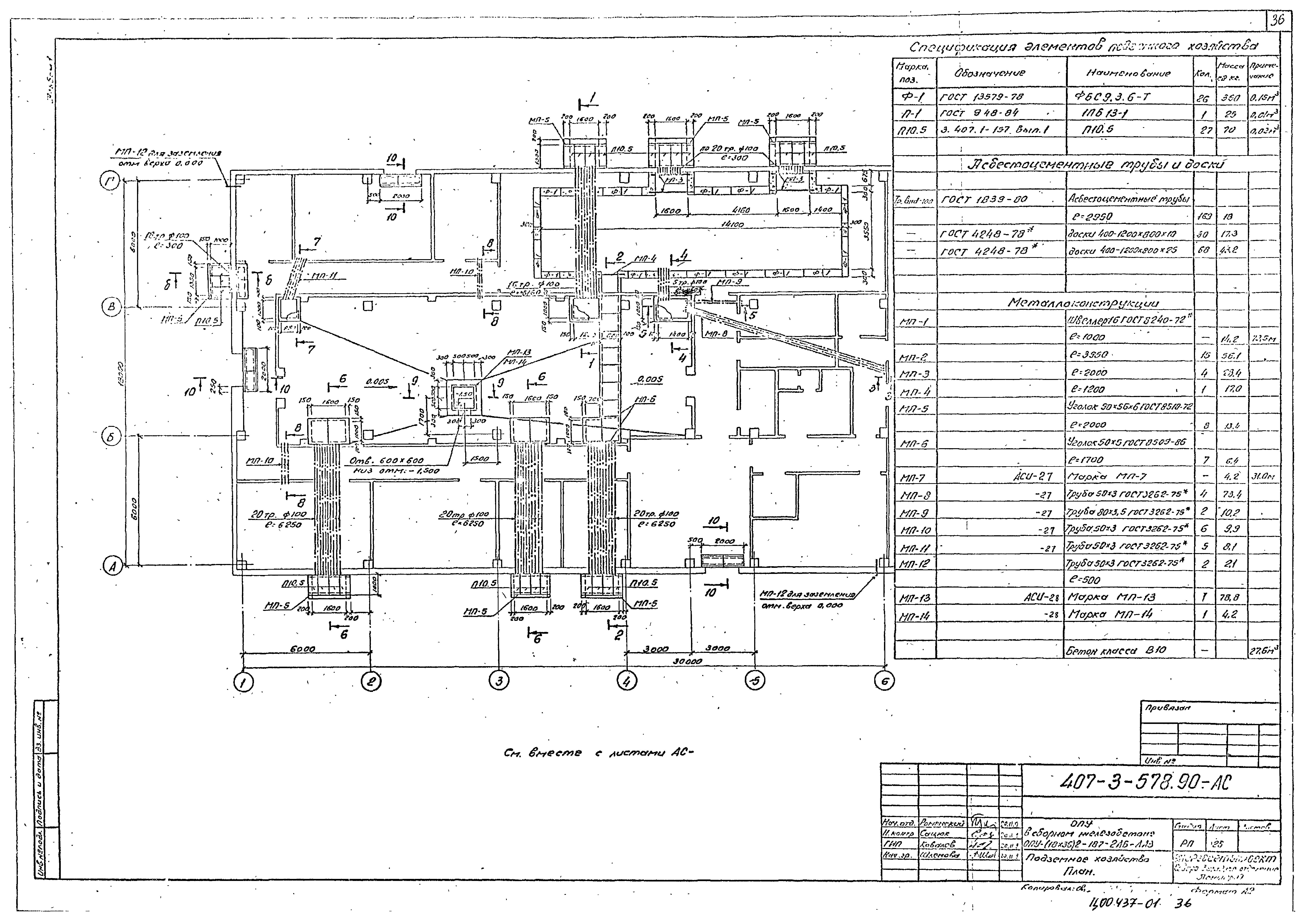
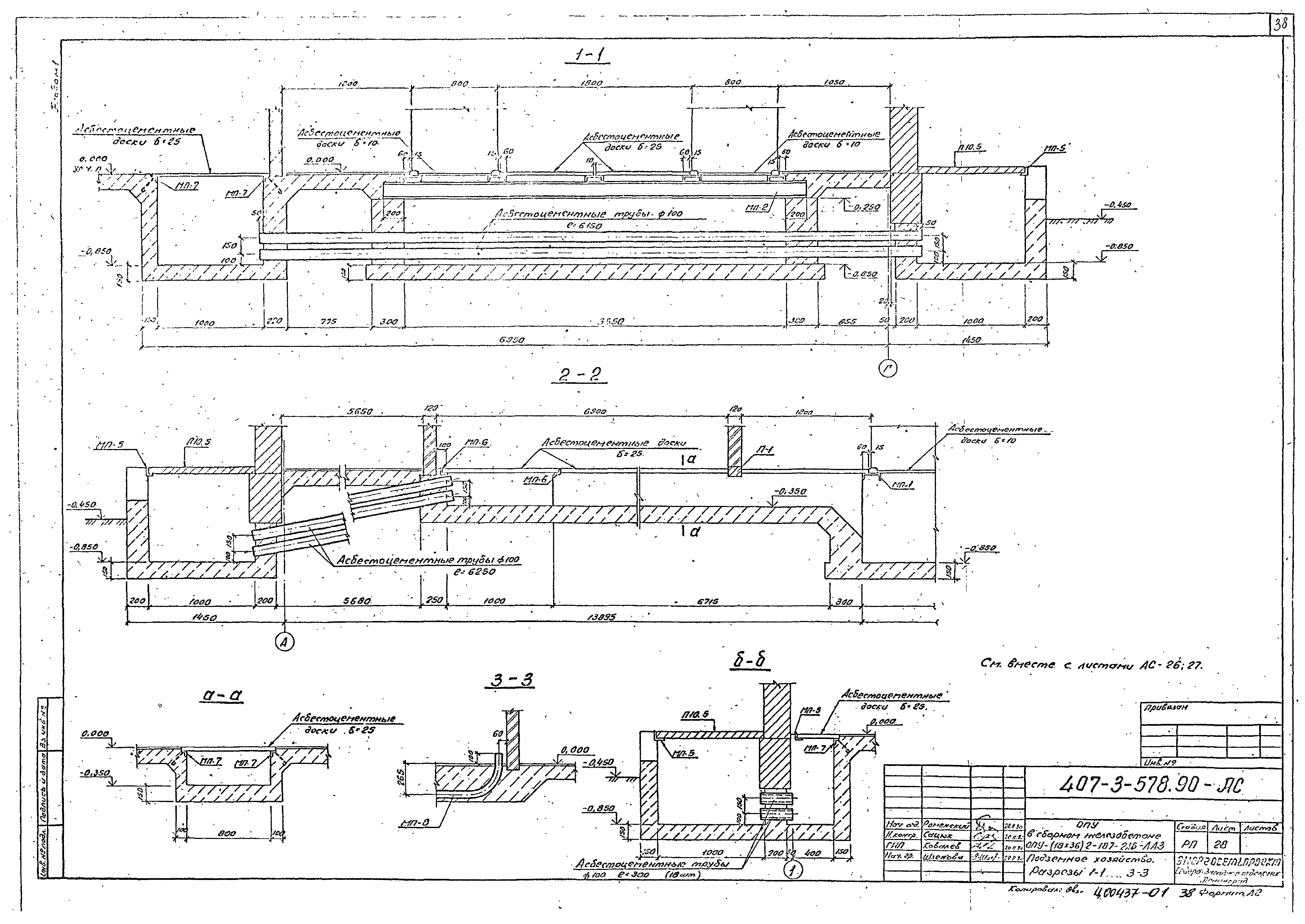
| Оглавление: | Общая пояснительная записка Архитектурно-строительные решения Общие данные Схема расположения проемов и перемычек План полов План на отм. 0.000 План на отм. 3.530 Разрезы 1-1, 2-2 Фасады Фрагмент плана 1 Фрагмент плана 2 Фрагмент плана 2. Узлы, сечения Фрагмент плана 3 Архитектурные узлы А…Д Фрагмент фасада 1 Схема расположения фундаментов Схема расположения фундаментов. Фрагменты 1, 2. Виды, сечения Схема расположения колонн и ригелей на отм. 3.530 и 7.170 Схема расположения колонн и ригелей. Сечения 1-1…5-5 Схема расположения плит покрытия и перекрытия Схема расположения металлоконструкций на отм. 3.530 Схема расположения закладных деталей в перекрытии и покрытии Схема расположения металлоконструкций в кабельном помещении Схема расположения стеновых панелей Схема расположения стеновых панелей. Узлы А…Е Подземное хозяйство. План Подземное хозяйство. Схемы расположения металлоконструкций и асбестоцементных досок Подземное хозяйство. Разрезы 1-1…3-3 Подземное хозяйство. Разрезы 4-4…10-10 Схема расположения наружной лестницы Наружная стальная лестница. Узлы "Г", "Д", "Е", "К", "И" Схема распределения конструкций для крепления расширительного бака План кровли. Схема расположения отверстий в покрытии Монолитные фундаменты ФМ-1; ФМ-2 Монолитные фундаменты ФМ-1; ФМ-2. Ведомость расхода стали. Схема расположения отверстий в перекрытии Схемы расположения отверстий в перегородках |
| Разработан: | Северо-западное отделение института Энергосетьпроект |
| Утверждён: | 16.11.1990 Минэнерго СССР (USSR Minenergo 56) |
| Издан: | СЗО Энергосетьпроект (1990 г. ) |













































