Скачать Типовой проект 407-3-578.90 Альбом 2. Отопление и вентиляция. Внутренние водопровод и канализацияДата актуализации: 01.01.2021
|
| Обозначение: | Типовой проект 407-3-578.90 |
| Обозначение англ: | 407-3-578.90 |
| Статус: | не определен законодательством |
| Название рус.: | Альбом 2. Отопление и вентиляция. Внутренние водопровод и канализация |
| Дата добавления в базу: | 01.09.2013 |
| Дата актуализации: | 01.01.2021 |
| Дата введения: | 16.11.1990 |
| Дата окончания срока действия: | 30.06.2003 |
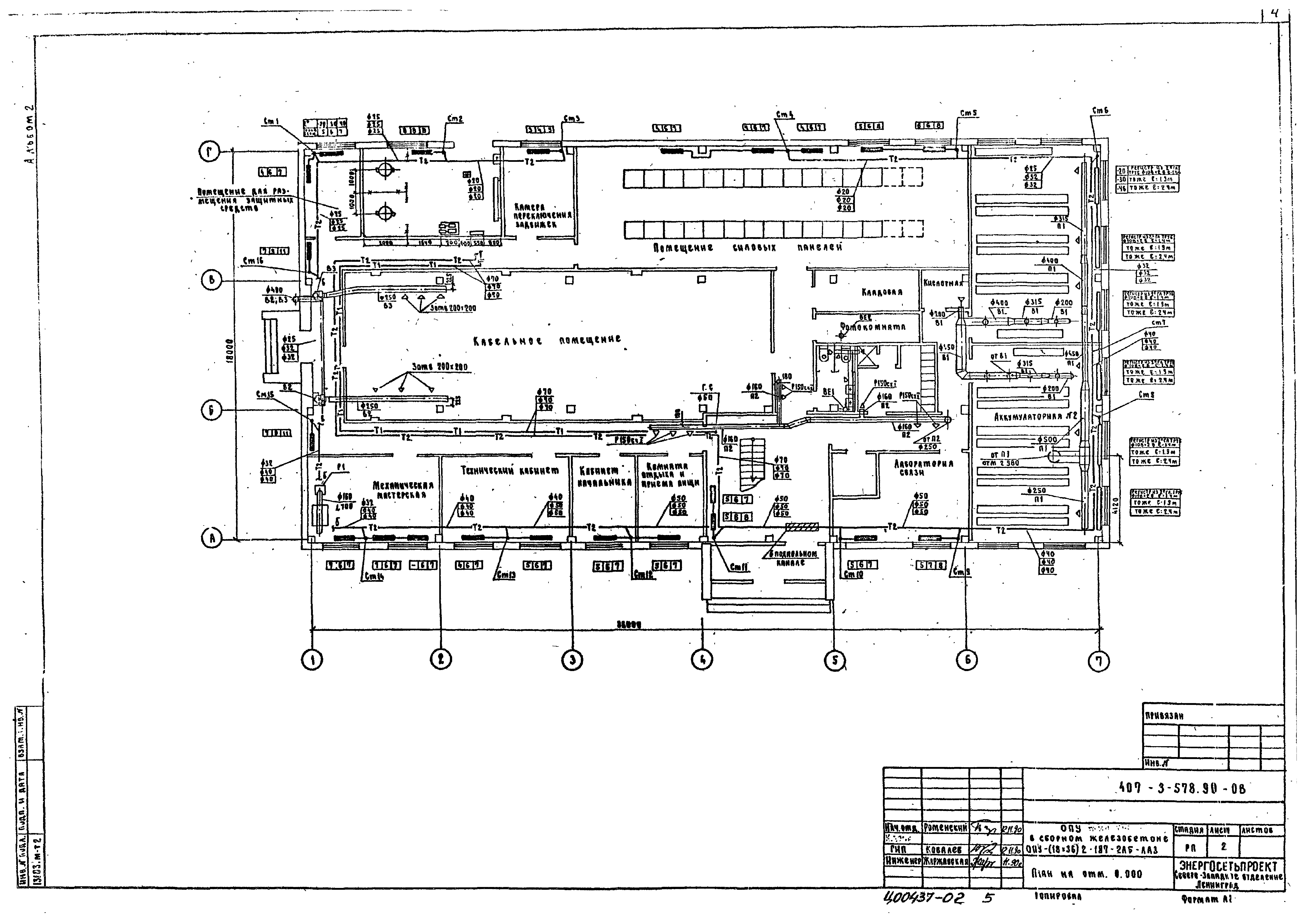
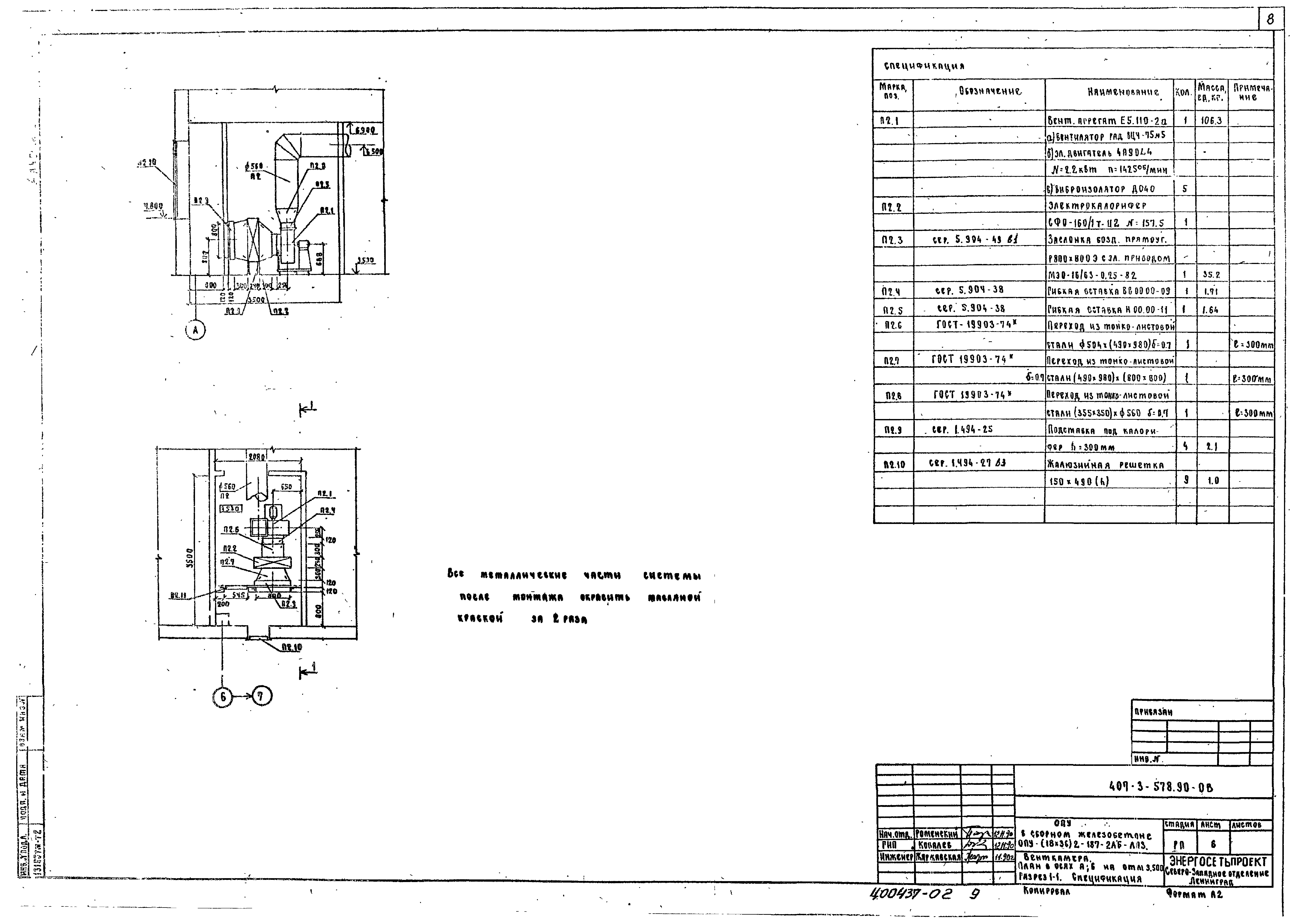
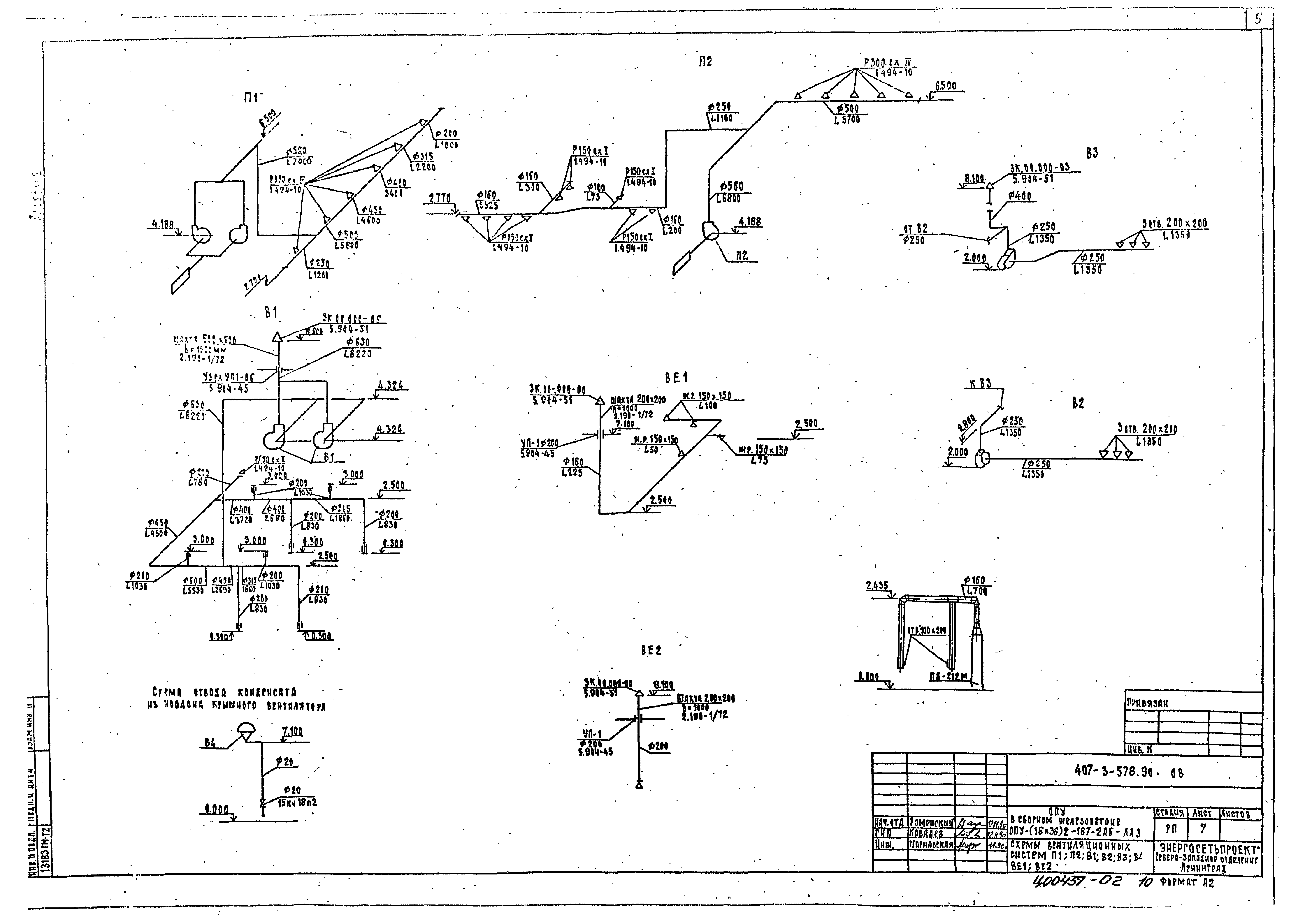
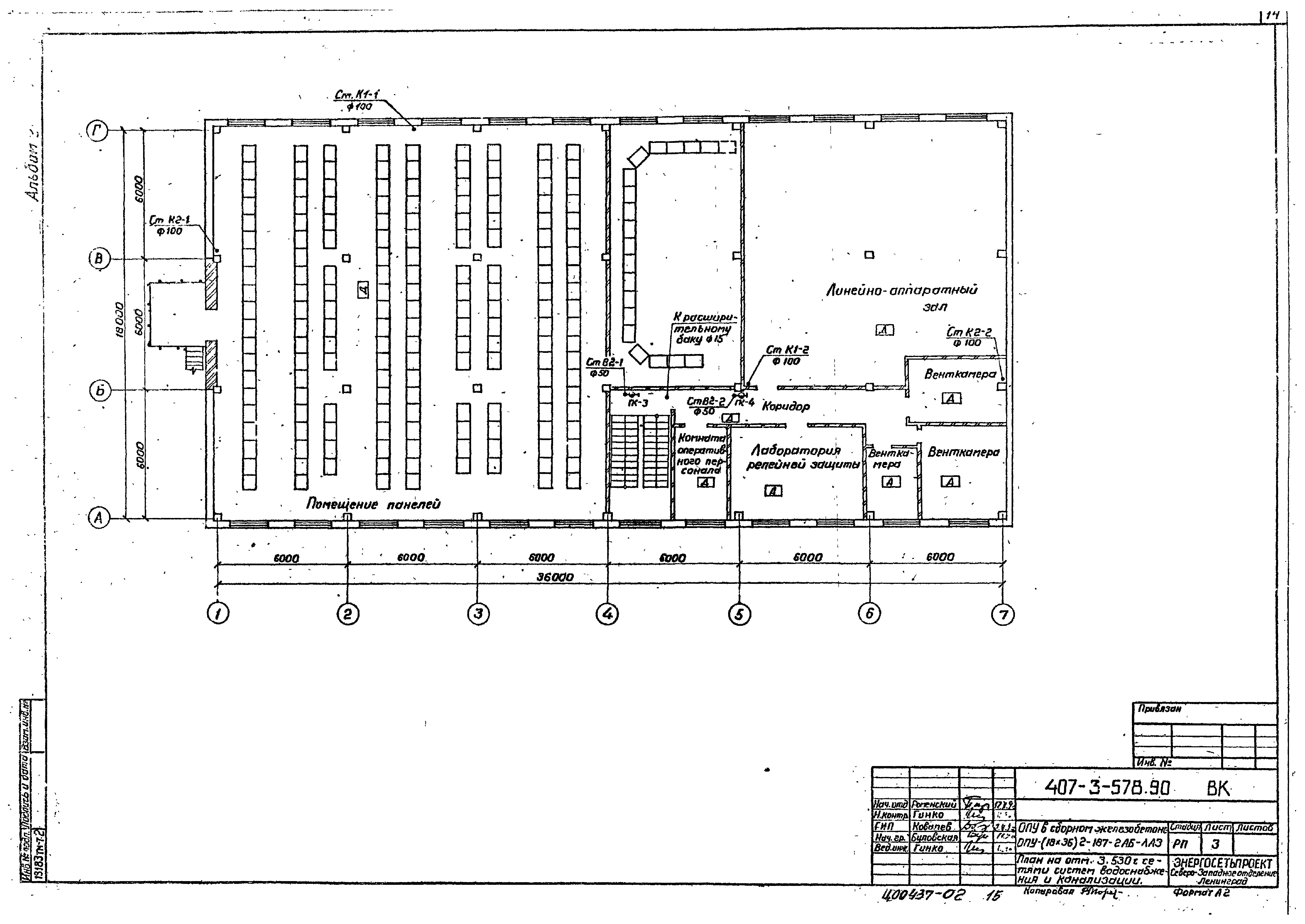
| Оглавление: | Отопление и вентиляция Общие данные План на отм. 0.000 План на отм. 3.530 Схема системы отопления Венткамеры. План в осях А, 7 на отм. 3.530. Разрез 1-1. План в осях 5, 7 на отм. 3.530. Разрез 2-2 Венткамера. План в осях А, Б на отм. 3.530. Разрез 1-1. Спецификация Схемы вентиляционных систем П1, П2, В1, В2, В3, В4, ВЕ1, ВЕ2 Электрокотельная. План на отм. 0.000 в осях Г, 2. Разрез 1-1 Схема трубопроводов электрокотельной. Схема обвязки водоподогревателя. Схема обвязки расширительного бака Водоснабжение и канализация Общие данные План на отм. 0.000 с сетями систем водоснабжения и канализации План на отм. 3.530 с сетями систем водоснабжения и канализации Схемы систем водоснабжения План кровли с водостоками. Схемы систем канализации |
| Разработан: | Северо-западное отделение института Энергосетьпроект |
| Утверждён: | 16.11.1990 Минэнерго СССР (USSR Minenergo 56) |
| Издан: | СЗО Энергосетьпроект (1990 г. ) |
















