Скачать Типовой проект 407-3-578.90 Альбом 4. Строительные изделияДата актуализации: 01.01.2021
|
| Обозначение: | Типовой проект 407-3-578.90 |
| Обозначение англ: | 407-3-578.90 |
| Статус: | не определен законодательством |
| Название рус.: | Альбом 4. Строительные изделия |
| Дата добавления в базу: | 01.09.2013 |
| Дата актуализации: | 01.01.2021 |
| Дата введения: | 16.11.1990 |
| Дата окончания срока действия: | 30.06.2003 |
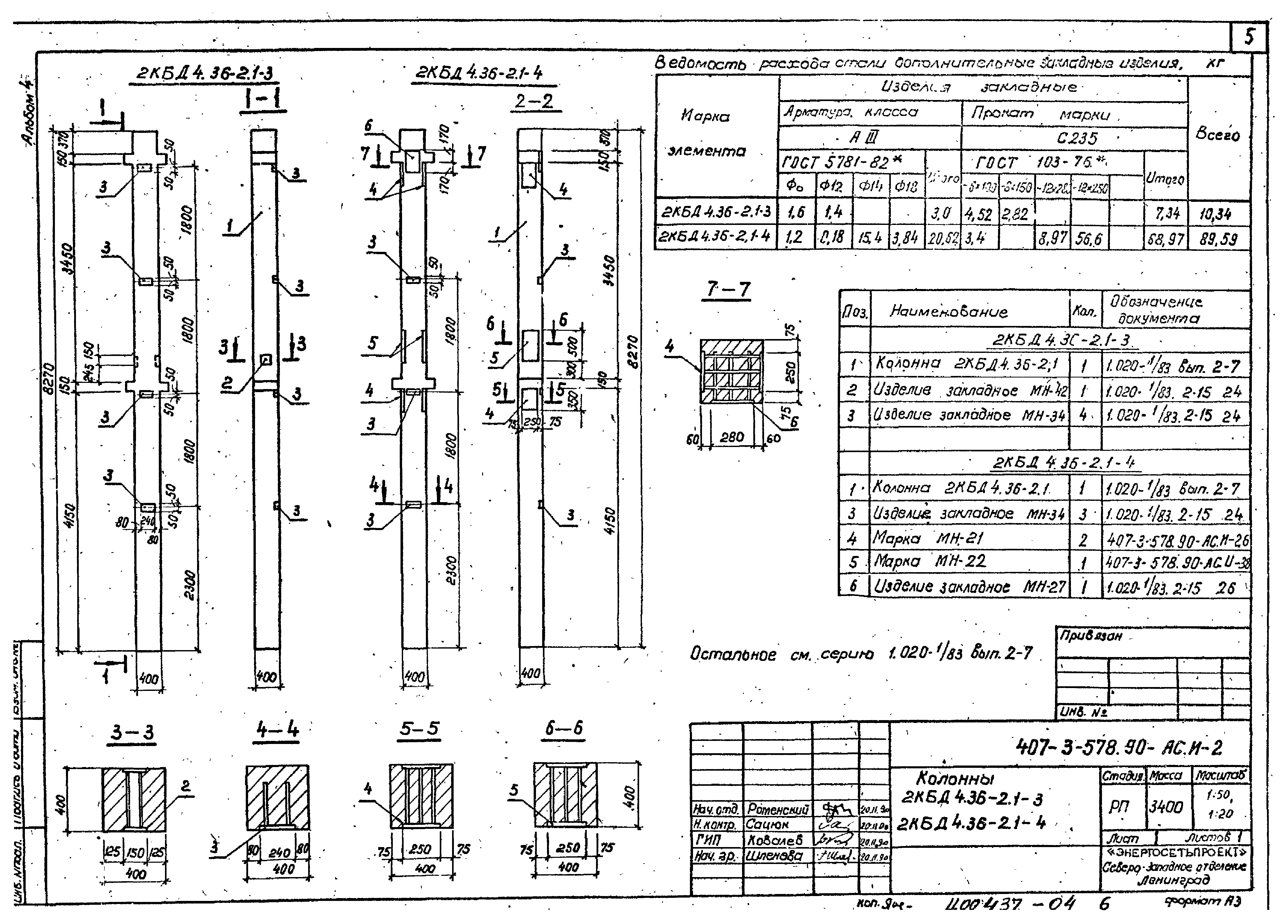
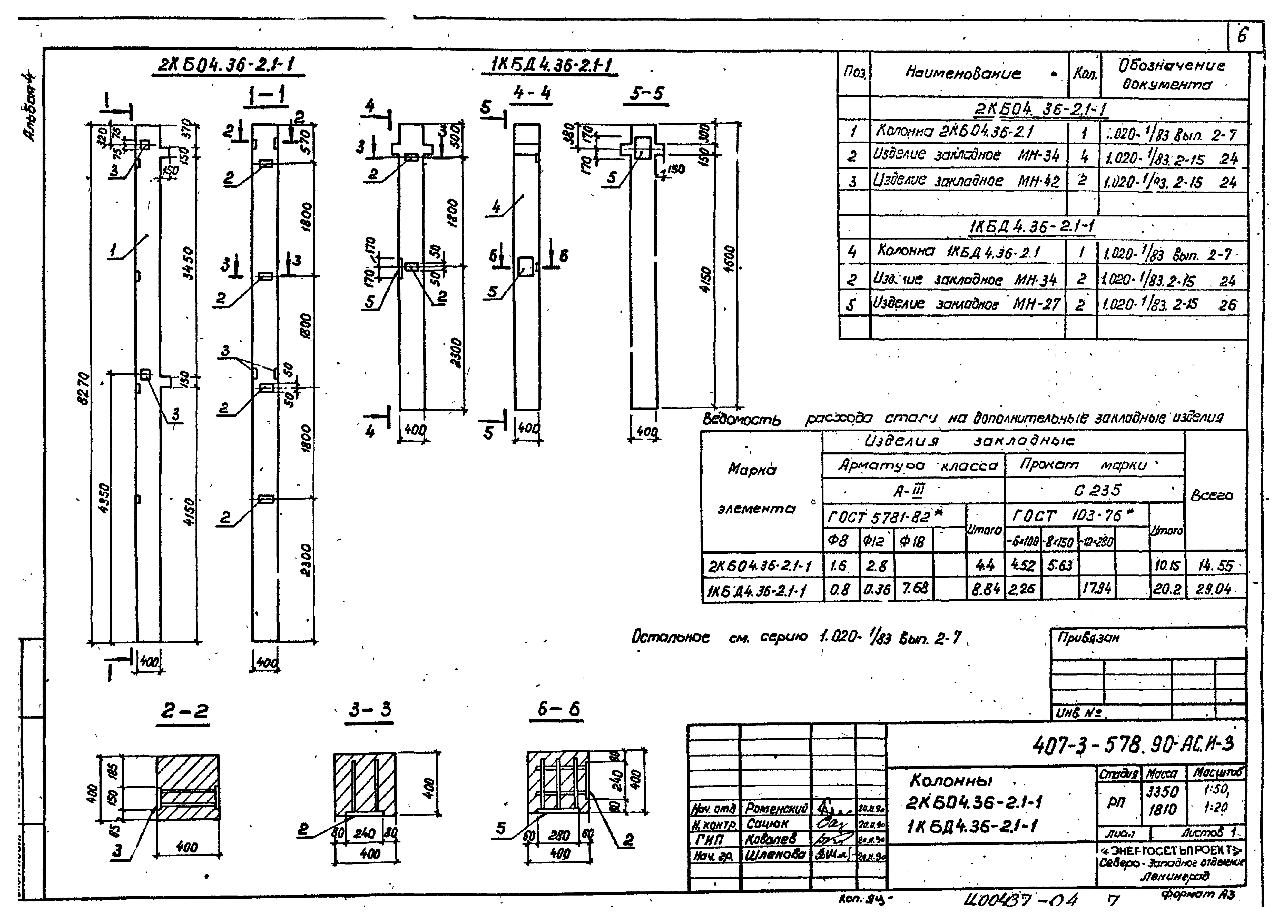
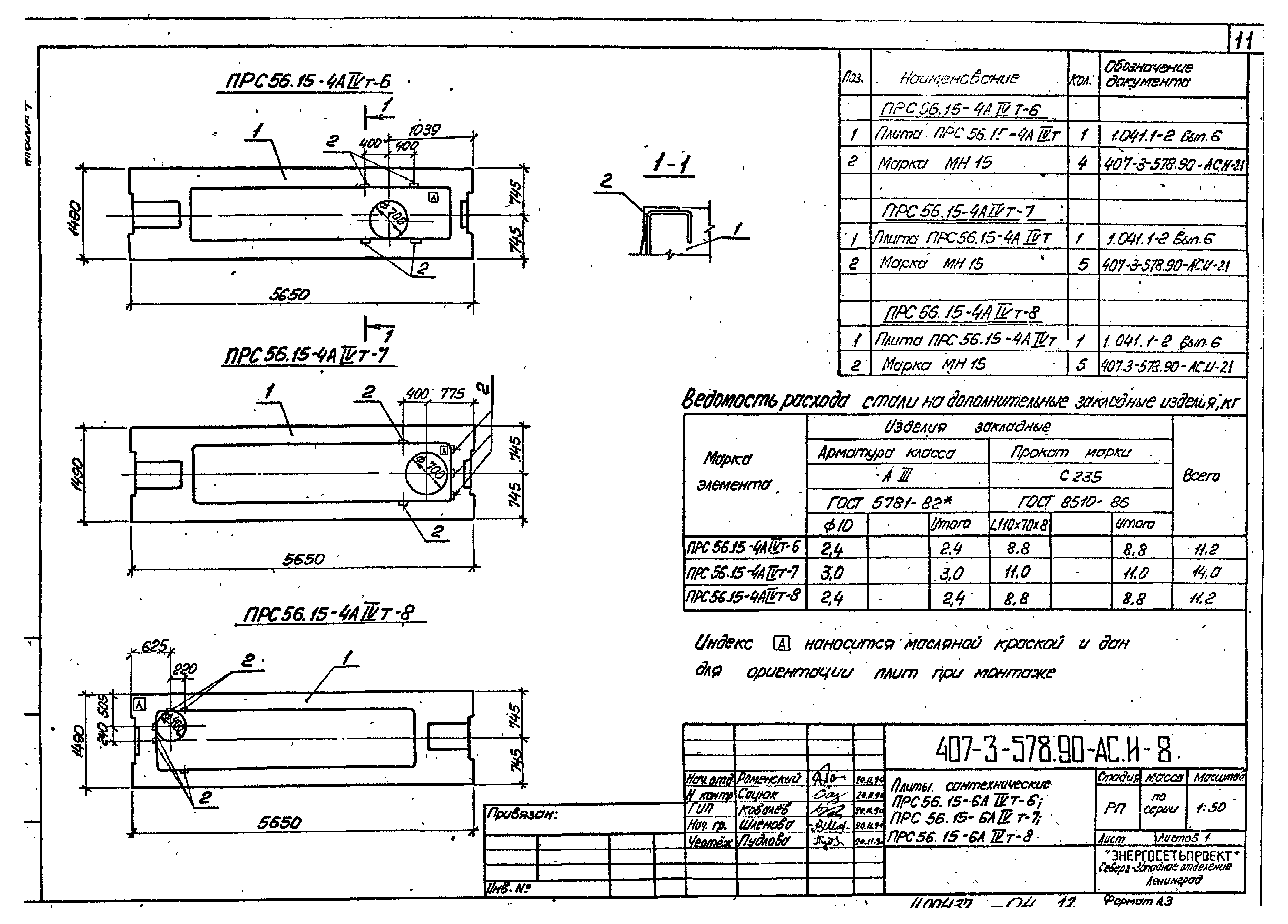
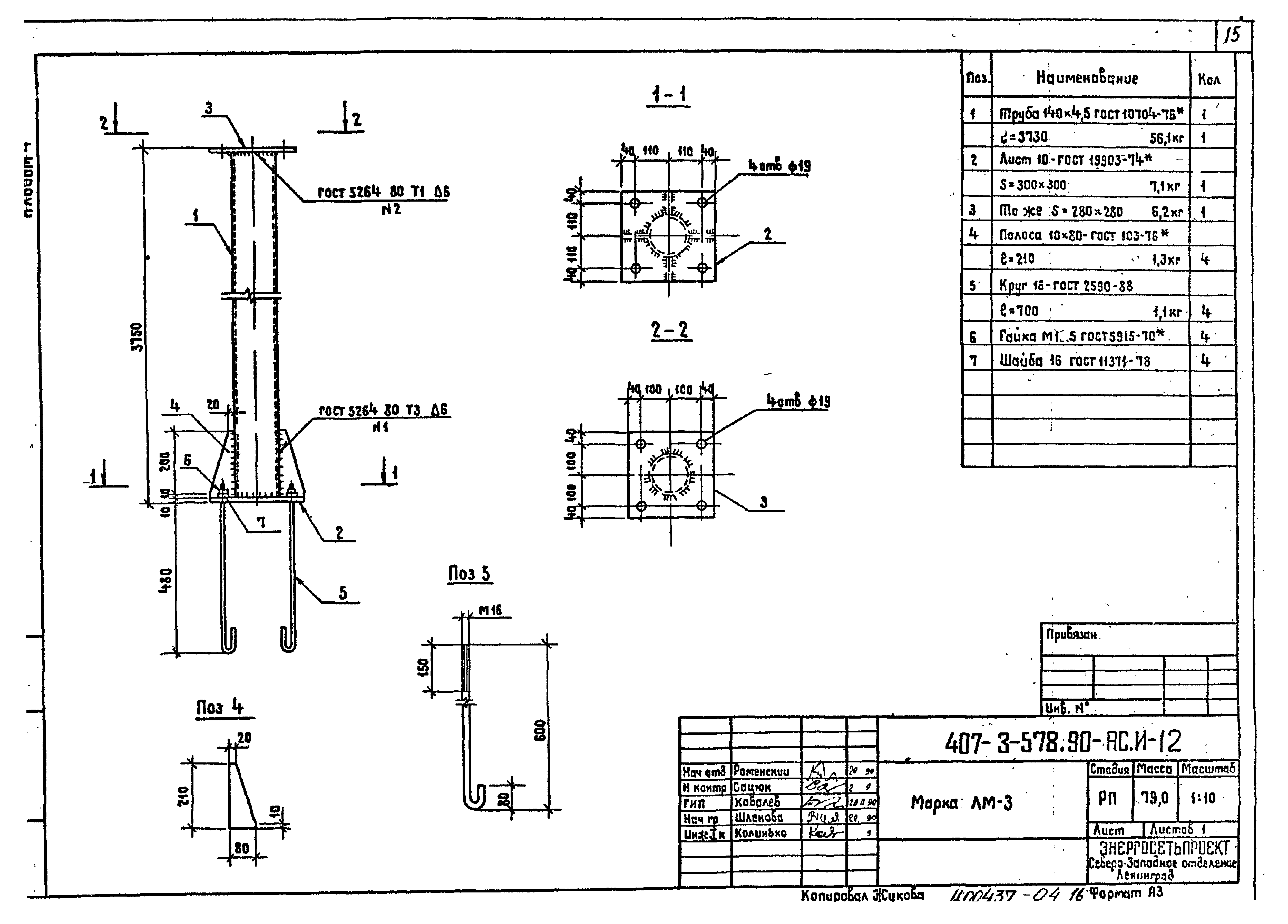
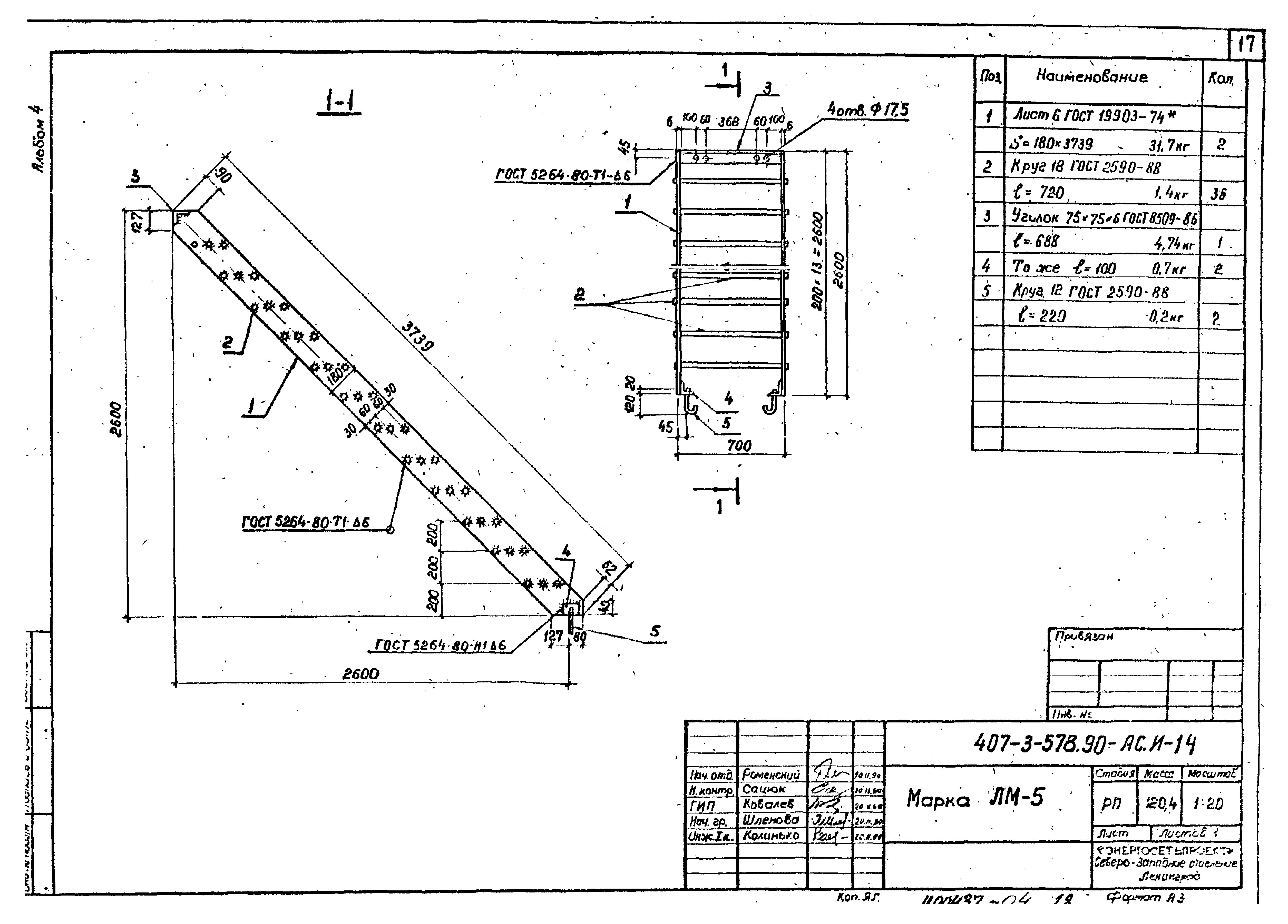
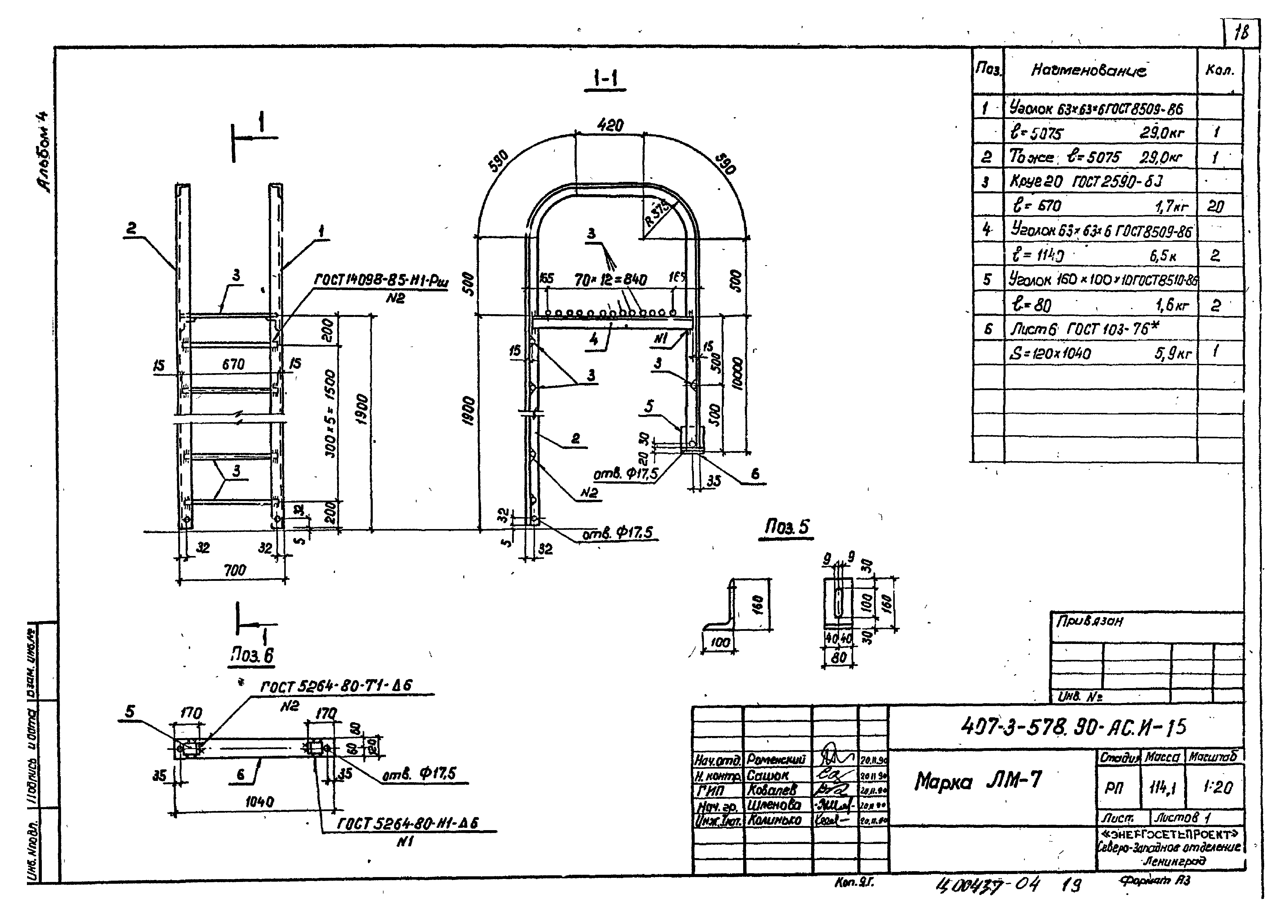
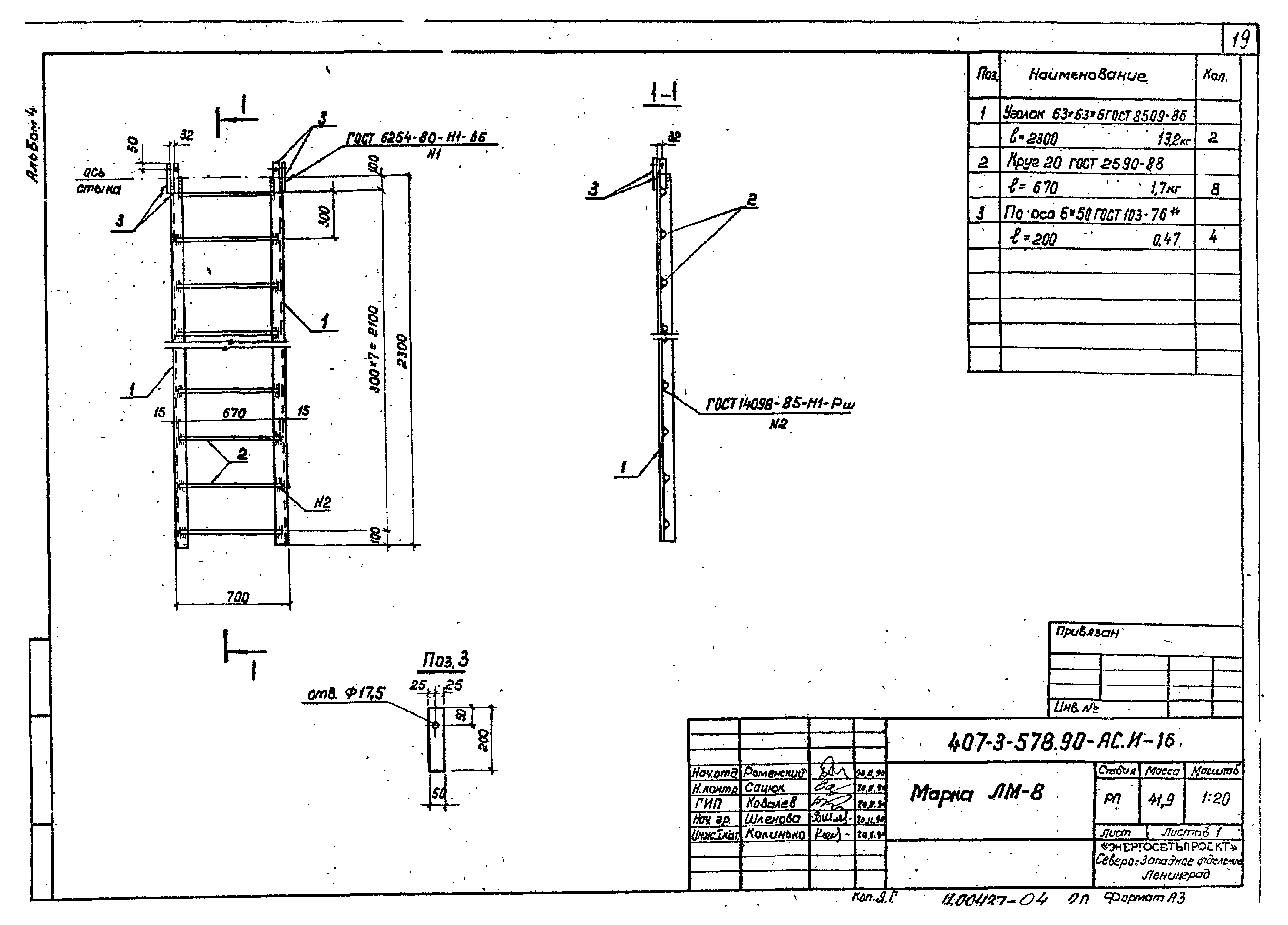
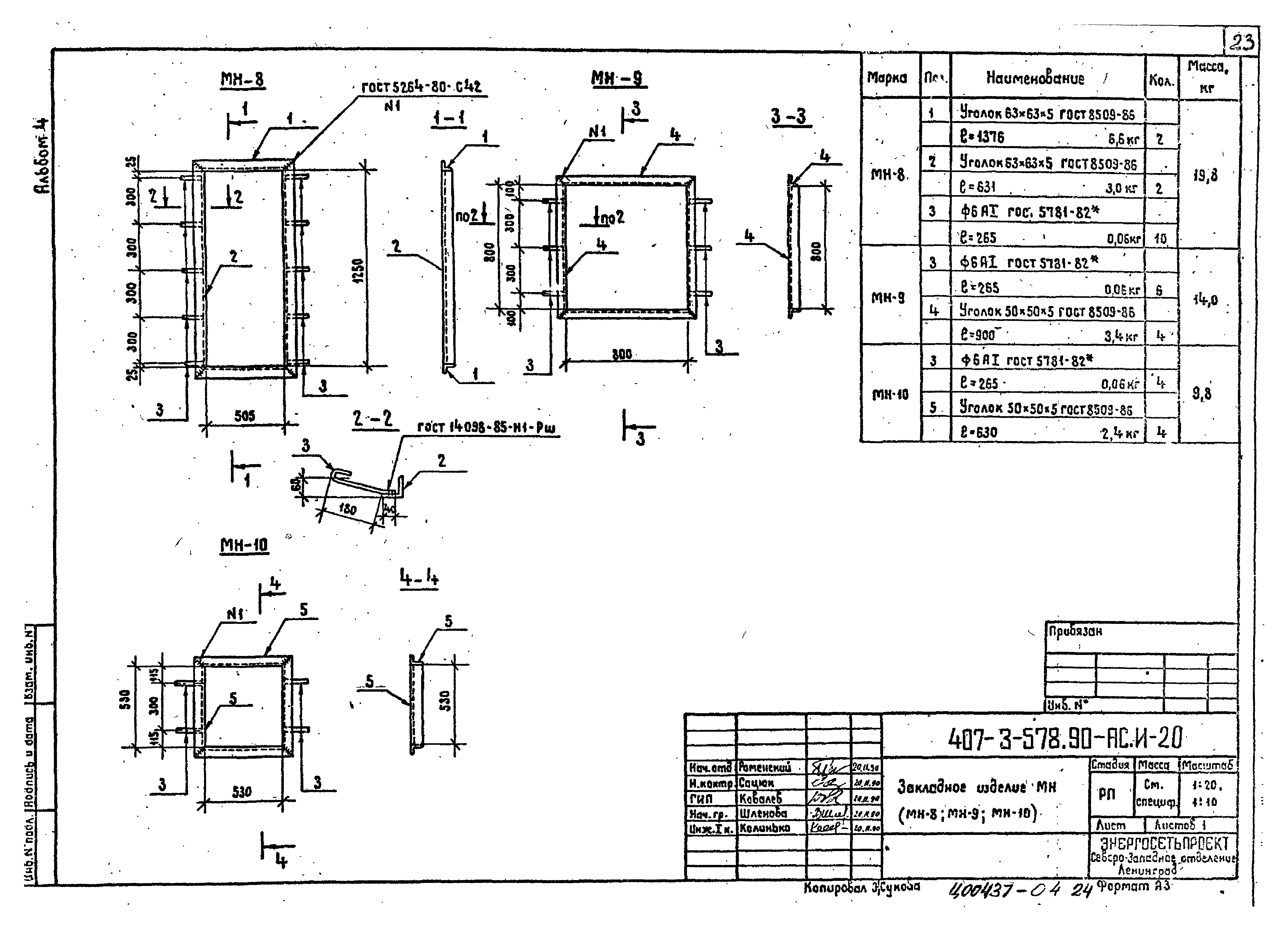
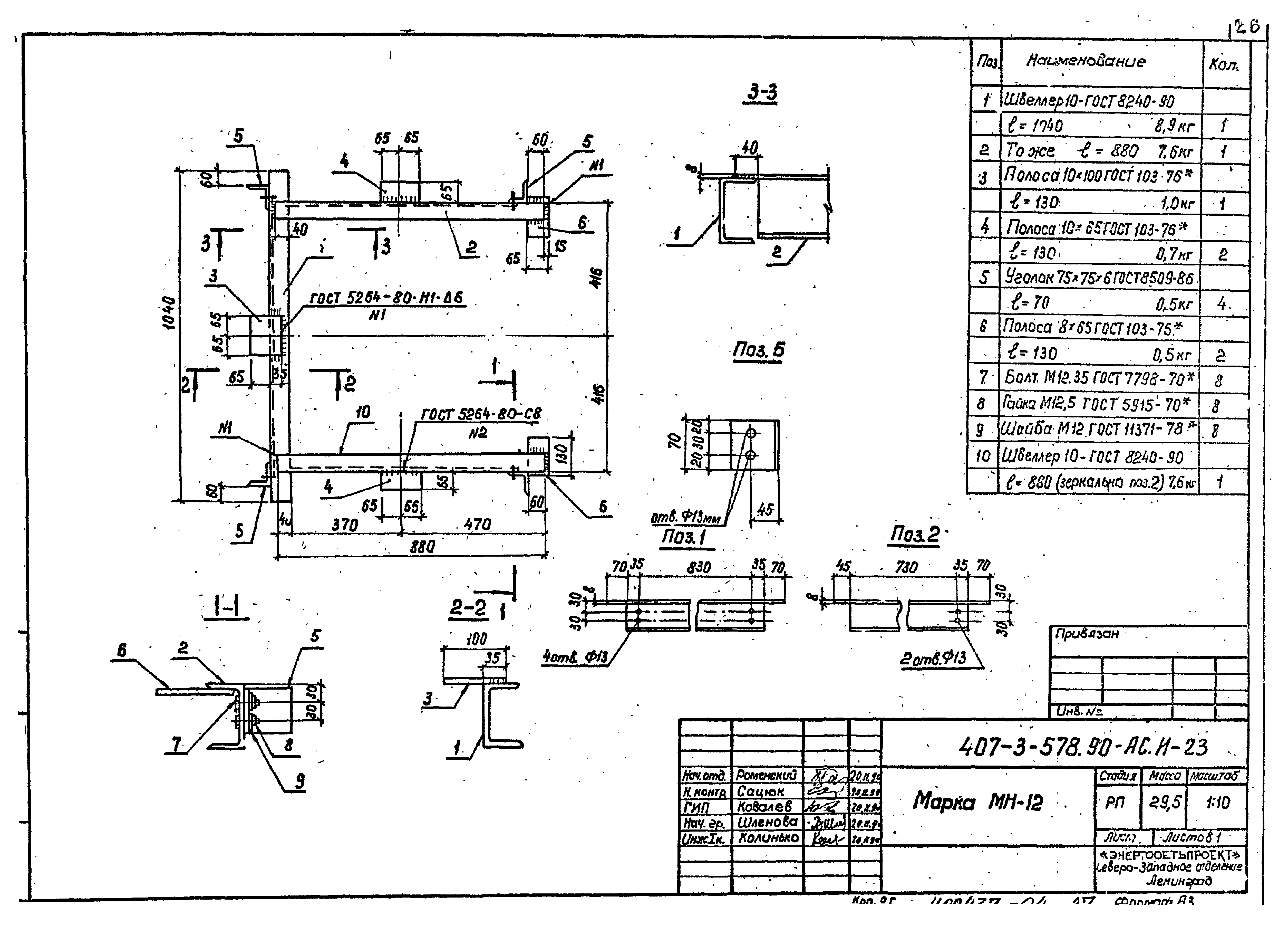
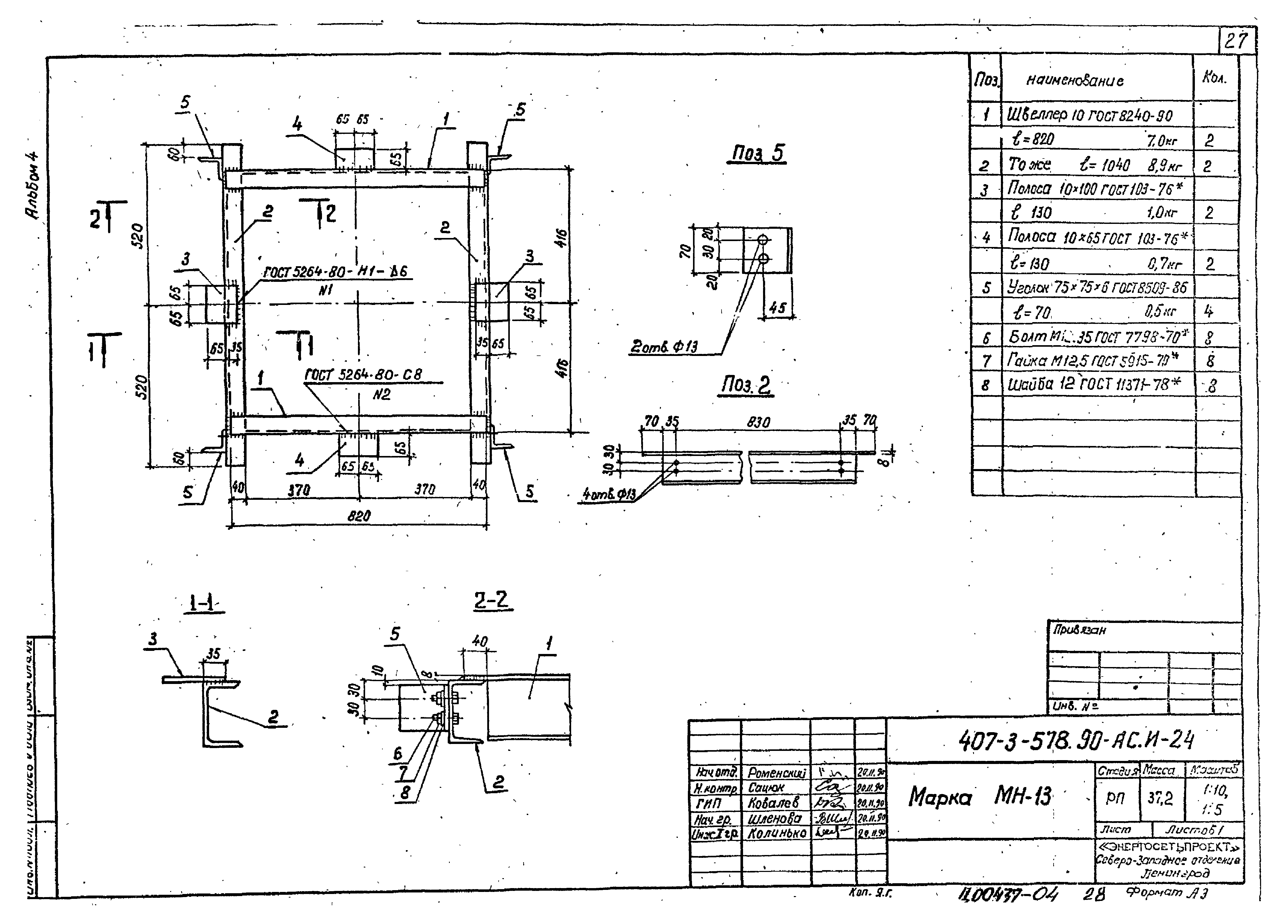
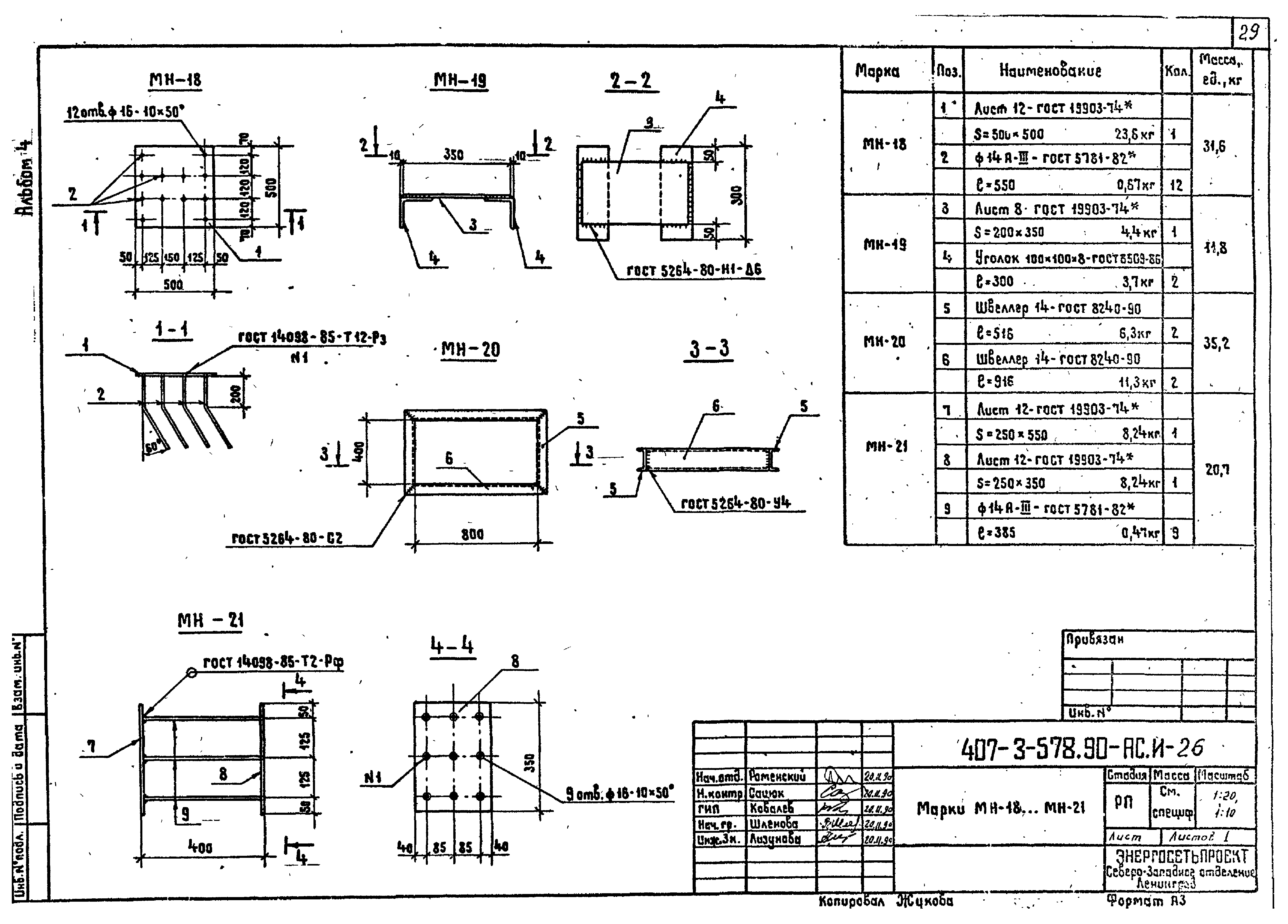
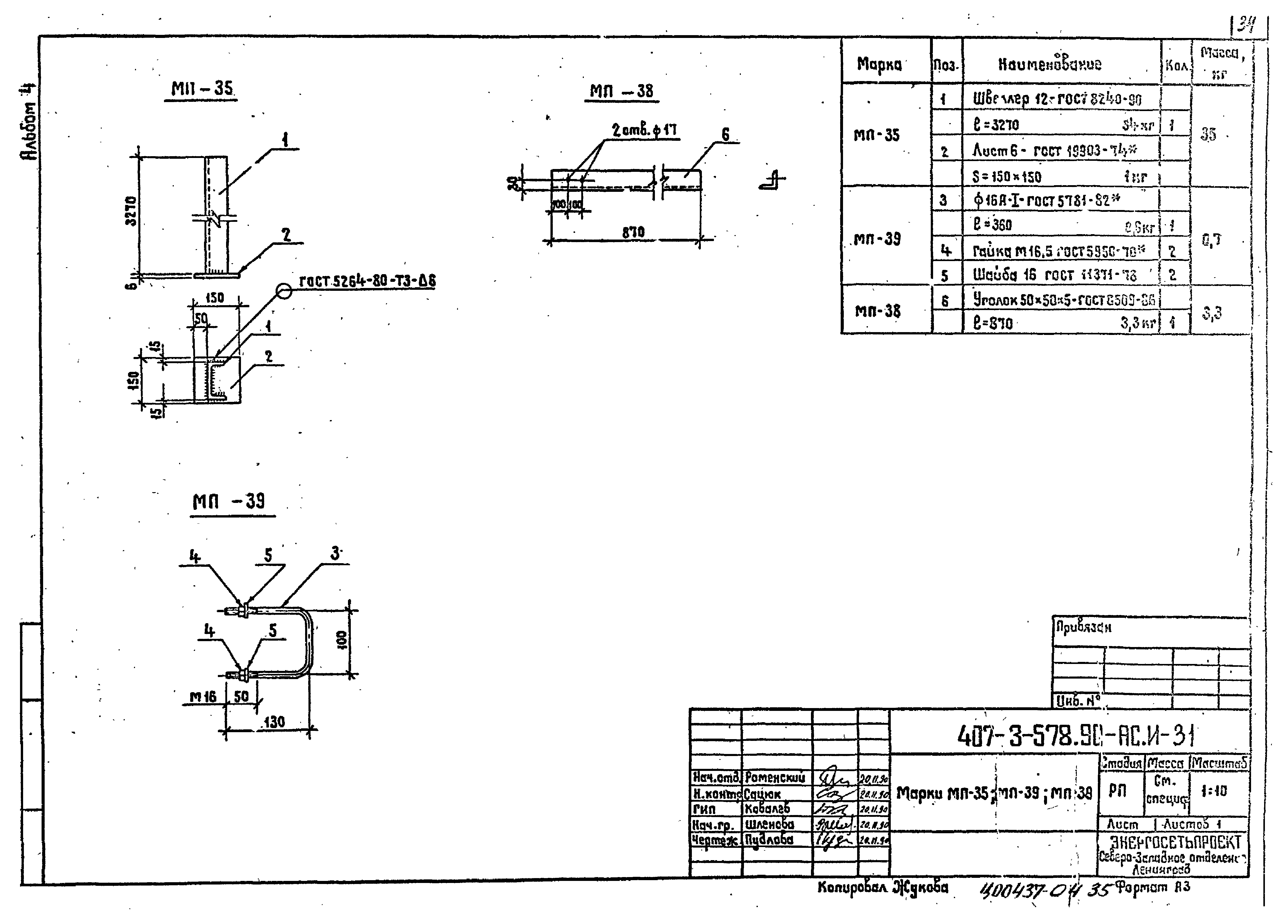
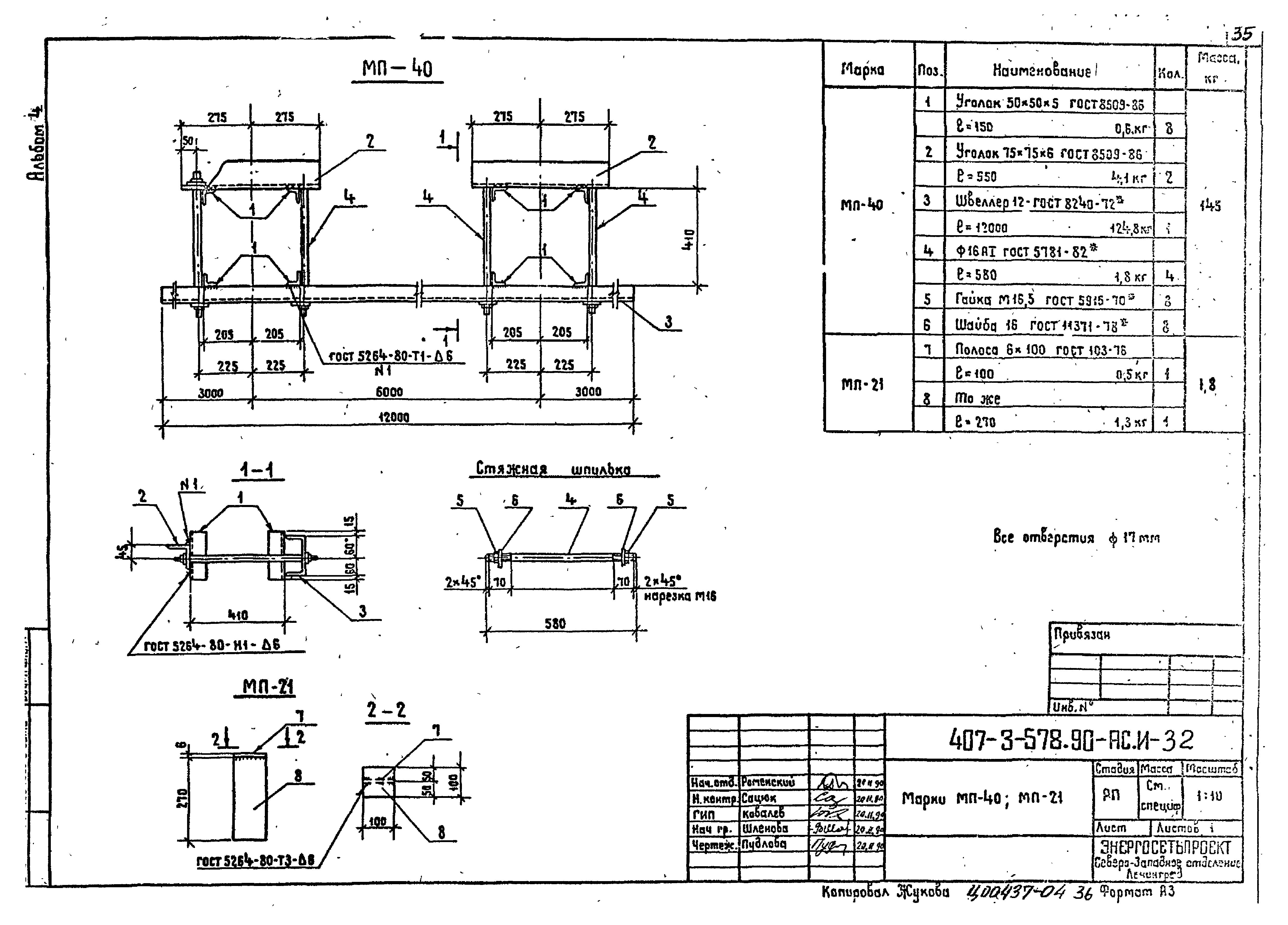
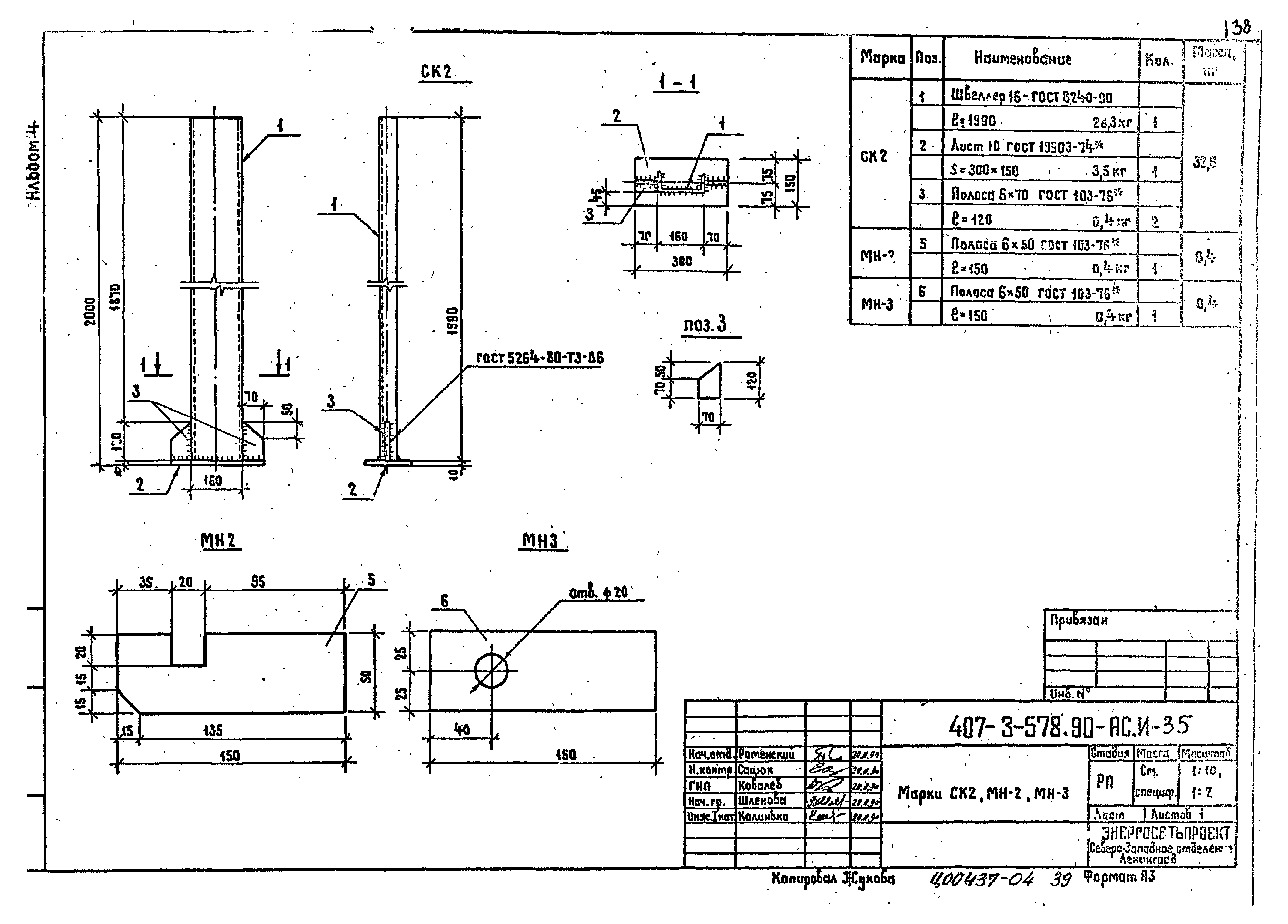
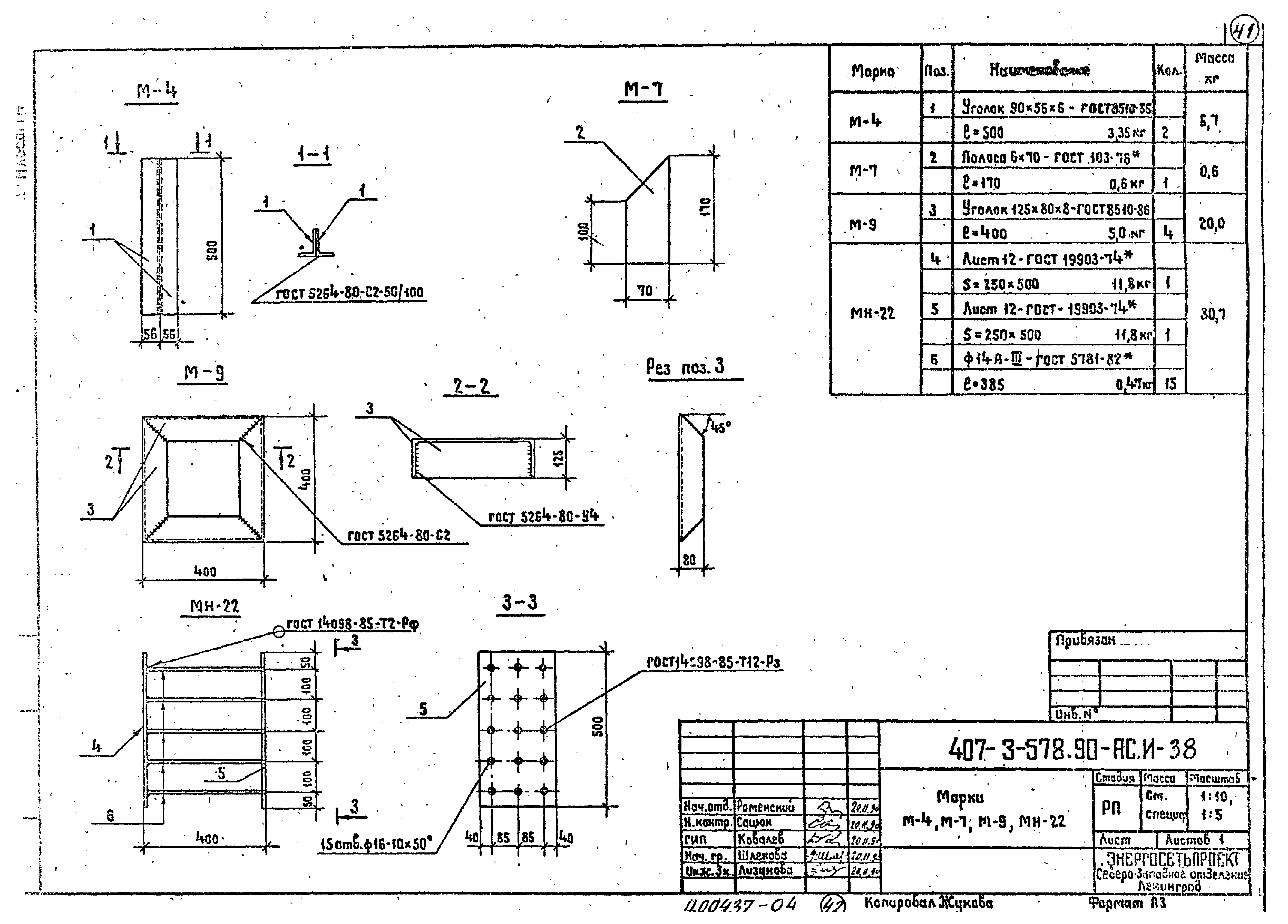
| Оглавление: | 407-3-578.90-АС.И Содержание альбома 407-3-578.90-АС.И-ТТ Технические требования 407-3-578.90-АС.И-1 Колонны 2КБД4.36-2.1-1; 2КБД4.36-2.1-2 407-3-578.90-АС.И-2 Колонны 2КБД4.36-2.1-3; 2КБД4.36-2.1-4 407-3-578.90-АС.И-3 Колонны 2КБО4.36-2.1-1; 1КБД4.36-2.1-1 407-3-578.90-АС.И-4 Колонны 2КБО4.36-2.1-2; 1КБО4.36-2.1-3 407-3-578.90-АС.И-5 Колонны 2КБО4.36-2.1-4 407-3-578.90-АС.И-6 Плиты сантехнические ПРС56.15-10А-IVТ-1, ПРС56.15-10АIVТ-2, ПРС56.15-10АIVТ-3 407-3-578.90-АС.И-7 Плиты сантехнические ПРС56.15-10А-IVТ-4, ПРС56.15-10АIVТ-5, ПРС56.15-10АIVТ-9 407-3-578.90-АС.И-8 Плиты сантехнические ПРС56.15-10А-IVТ-6, ПРС56.15-10АIVТ-7, ПРС56.15-10АIVТ-8 407-3-578.90-АС.И-9 Плита сантехническая ПРС56.15-10А-IVТ-10 407-3-578.90-АС.И-10 Марка ЛМ-1 407-3-578.90-АС.И-11 Марка ЛМ-2 407-3-578.90-АС.И-12 Марка ЛМ-3 407-3-578.90-АС.И-13 Марка ЛМ-4 407-3-578.90-АС.И-14 Марка ЛМ-5 407-3-578.90-АС.И-15 Марка ЛМ-7 407-3-578.90-АС.И-16 Марка ЛМ-8 407-3-578.90-АС.И-17 Марки ОГ-1, ОГ-4 407-3-578.90-АС.И-18 Марки ОГ-2, ОГ-3 407-3-578.90-АС.И-19 Марки МН-1, МН-4, МН-5, МН-6 407-3-578.90-АС.И-20 Закладное изделие МН(МН-8, МН-9, МН-10) 407-3-578.90-АС.И-21 Марки Б-1, МН-7, МН-15 407-3-578.90-АС.И-22 Марка МН-11 407-3-578.90-АС.И-23 Марка МН-12 407-3-578.90-АС.И-24 Марка МН-13 407-3-578.90-АС.И-25 Марки МН-16, МН-17 407-3-578.90-АС.И-26 Марки МН-18…МН21 407-3-578.90-АС.И-27 Марки МП-7 - МП-11 407-3-578.90-АС.И-28 Марки МП-13, МП-14 407-3-578.90-АС.И-29 Марки МП-15, МП-20, МП-22, МП-23 407-3-578.90-АС.И-30 Марки МП-18, МП-19 407-3-578.90-АС.И-31 Марки МП-35, МП-38, МП-39 407-3-578.90-АС.И-32 Марки МП-40, МП-21 407-3-578.90-АС.И-33 Марка МП-41 407-3-578.90-АС.И-34 Марка СК1 407-3-578.90-АС.И-35 Марки СК2, МН-2, МН-3 407-3-578.90-АС.И-36 Марки СК3, СК4, СК5 407-3-578.90-АС.И-37 Сетки С1, С2, С3 407-3-578.90-АС.И-38 Марки М-4, М-7, М-9, МН-22 |
| Разработан: | Северо-западное отделение института Энергосетьпроект |
| Утверждён: | 16.11.1990 Минэнерго СССР (USSR Minenergo 56) |
| Издан: | СЗО Энергосетьпроект (1990 г. ) |









































