Скачать Типовой проект 503-2-19.86 Альбом VIII. Конструкции железобетонные и металлическиеДата актуализации: 01.01.2021
|
| Обозначение: | Типовой проект 503-2-19.86 |
| Обозначение англ: | 503-2-19.86 |
| Статус: | не определен законодательством |
| Название рус.: | Альбом VIII. Конструкции железобетонные и металлические |
| Дата добавления в базу: | 01.09.2013 |
| Дата актуализации: | 01.01.2021 |
| Дата введения: | 30.06.1986 |
| Дата окончания срока действия: | 30.06.2003 |
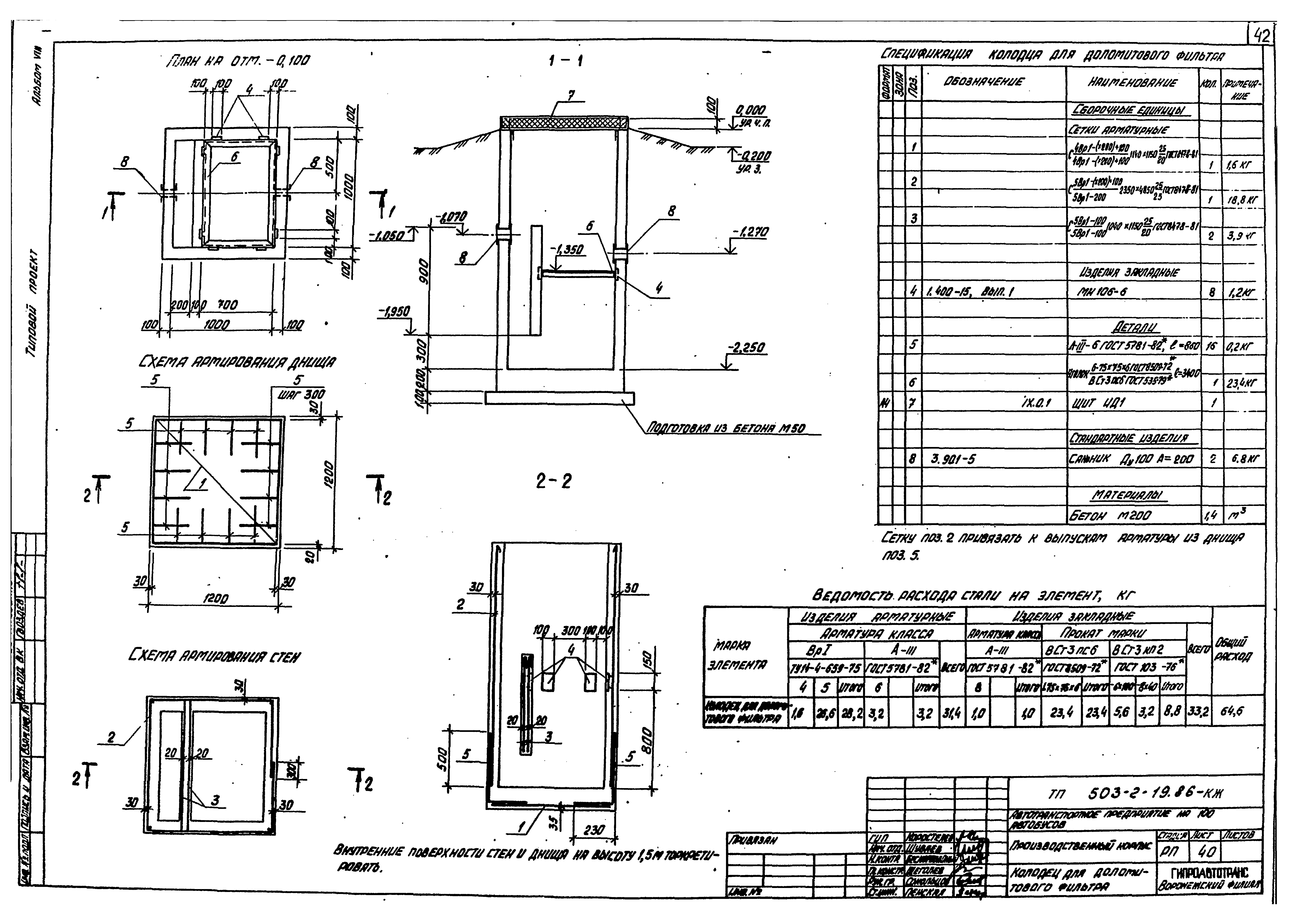
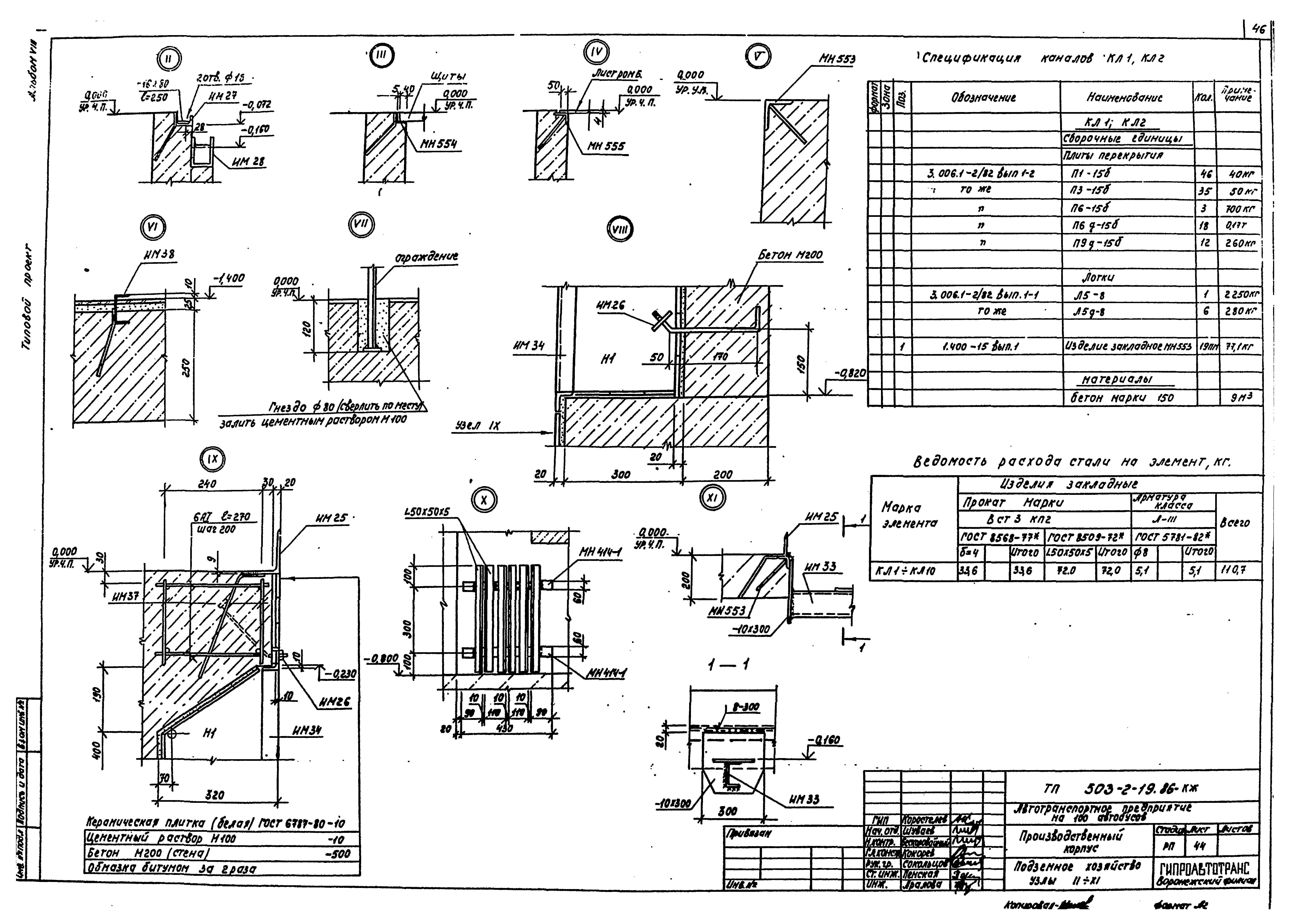
| Оглавление: | Содержание альбома Конструкции железобетонные Общие данные Схема расположения элементов фундаментов в осях А - Б/1 Схема расположения элементов фундаментов в осях Б/1 - Г Фундаменты ФМ1 - ФМ-7 Фундаменты ФМ8 - ФМ-12 Спецификация элементов монолитных фундаментов ФМ1 - ФМ12 Узлы фундаментов I - V Узлы фундаментов VI - X Узлы фундаментов XI - XV Узлы фундаментов XVI - XX Узлы фундаментов XXI - XXV Узлы фундаментов XXVI - XXIX Схемы расположения элементов каркаса и антресолей Сечения 4-4 - 14-14 Спецификация к схемам расположения элементов каркаса и антресолей Схемы расположения элементов стен по осям А и 1 Схемы расположения элементов стен по осям Г, 9 Спецификация к схемам расположения элементов стен Схема расположения элементов покрытия в осях 1 - 4 Схема расположения элементов покрытия в осях 4 - 9 Спецификация к схемам расположения элементов покрытия Схема расположения элементов антресолей на отм. 4.200 Схема расположения элементов антресолей на отм. 3.600. Ум1, Ум2 Узлы I - VIII Схема расположения элементов подземного хозяйства в осях 1 - 4; Б/1 - Г Схема расположения элементов подземного хозяйства в осях 1 - 4; А - Б/1. Фундаменты ФОм12, ФОм13 Фундаменты ФОм1, ФОм2 Фундамент ФОм3, план на отм. 0.000, сечения 1-1 - 4-4 Фундамент ФОм3, план на отм. 0.000, сечение 1-1 Фундамент ФОм3, план на отм. - 0.200, сечения 5-5 - 7-7 Фундамент ФОм3, сечения 8-8 - 10-10 Фундамент ФОм4 Фундамент ФОм5 Каналы Кл1, Кл2 Фундамент ФОм6. Планы на отм. 0.000; - 0.420, сечения 1-1 - 4-4 Фундамент ФОм6. Сечения 5-5 - 8-8. Приямок ПР1 Фундаменты ФОм7 - ФОм11 Маслоуловитель с отстойной частью Колодец для доломитового фильтра Подземное хозяйство КТП2, ФОм14 Подземное хозяйство КТП1, ФОм14 Фрагмент 1. Фундаменты ФОм15 - ФОм17 Подземное хозяйство. Узлы II - XI Конструкции металлические Общие данные Монтажные схемы балок, стоек, монорельсов, подвесных путей Сечения 1-1 - 13-13 Узлы I - X Узлы XI - XV Монтажные схемы лестниц Л1 - Л3, стремянок С1, С2 Монтажные схемы каркаса перегородок в осях 3 - 4; 2/1 - 3/1 и зенитные фонари Подвесной потолок в осях 1 - 1/1 и В - Г Подвесной потолок. Разрезы. Узлы Монтажные схемы перегородок и ограждения площадки |
| Разработан: | Воронежский филиал Гипроавтотранс |
| Утверждён: | 30.06.1986 Минавтотранс РСФСР (Russian Federation Minavtotrans 15) |

























































