Скачать Типовой проект 501-3-37.88 Альбом 2. Технология производства. Архитектурно-строительные решения. Строительные изделия. Отопление и вентиляция. Электрическое освещение. Силовое электрооборудование. Автоматизация технологии производства. Основные положения по производству строительных и монтажных работДата актуализации: 01.01.2021
|
| Обозначение: | Типовой проект 501-3-37.88 |
| Обозначение англ: | 501-3-37.88 |
| Статус: | не определен законодательством |
| Название рус.: | Альбом 2. Технология производства. Архитектурно-строительные решения. Строительные изделия. Отопление и вентиляция. Электрическое освещение. Силовое электрооборудование. Автоматизация технологии производства. Основные положения по производству строительных и монтажных работ |
| Дата добавления в базу: | 01.09.2013 |
| Дата актуализации: | 01.01.2021 |
| Дата введения: | 30.12.1987 |
| Дата окончания срока действия: | 30.06.2003 |
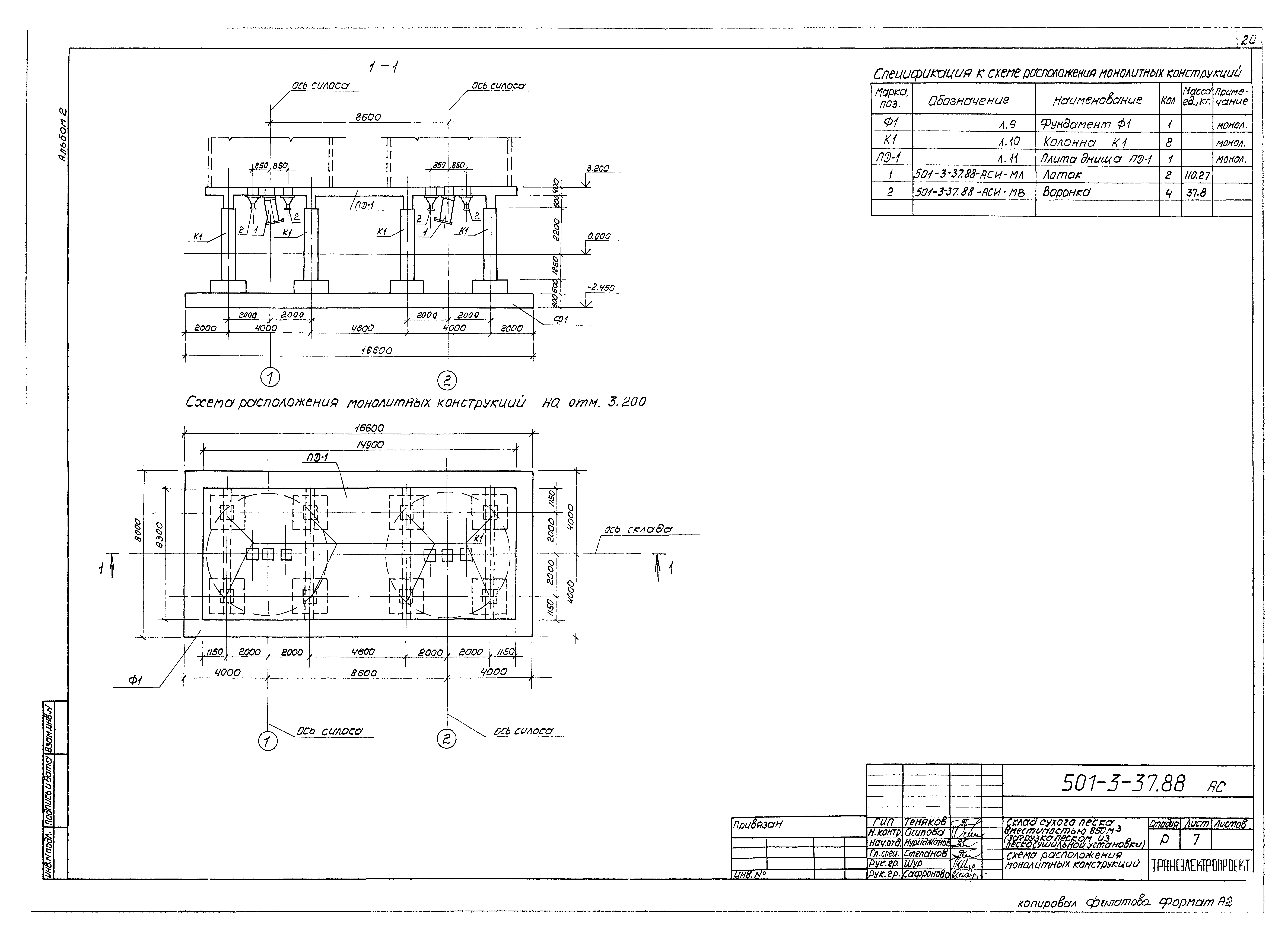
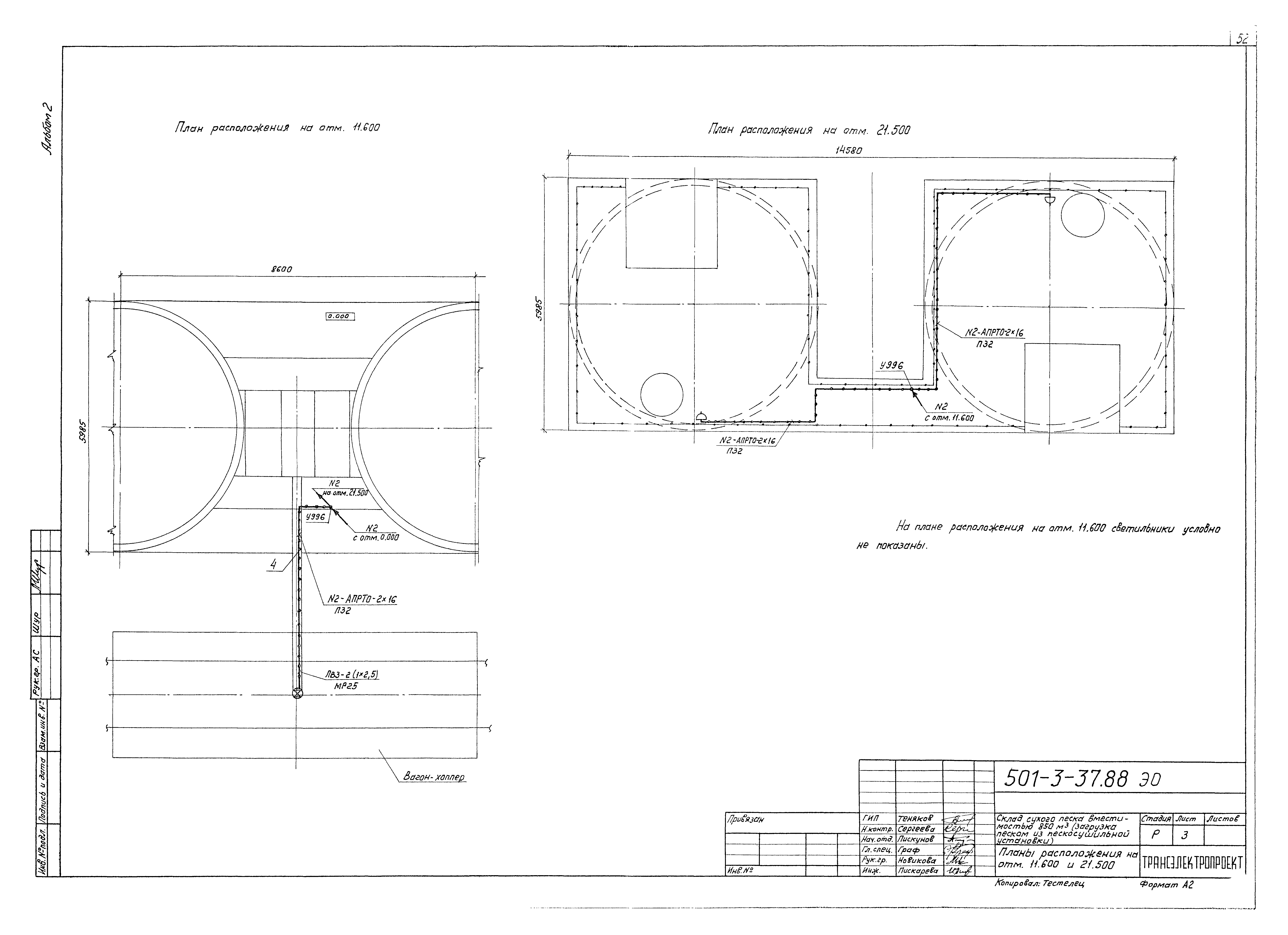
| Оглавление: | Содержание Чертежи основного комплекта марки ГП Схема расположения склада Чертежи основного комплекта марки ТХ Общие данные Планы 1, 2. Разрезы 1-1…3-3. Вид 4-4. Планы на отм. 0.000 Разрезы 5-5…7-7. Узлы I, II, III Схема принципиальная воздухопроводов. Узел управления. Разрез 8-8 Конвейер ленточный Укрытие конвейера Укрытие узла пересыпки песка Кронштейн Устройство для загрузки вагона песком Тройник Колено пескопровода Кронштейн Течка Кожух сигнализатора уровня Чертежи основного комплекта марки АР Общие данные План на отм. 3.200. Вид А. Разрез 1-1 Узлы 1, 2, 3 План на отм. 0.000. Схема расположения фундаментов под оборудование Схема расположения монолитных конструкций Схема расположения фундаментных блоков Фундамент Ф1. Армирование Плита днища ПД-1. Армирование Колонна К1. Армирование. Плита днища ПД-1. Узлы и сечения Схемы расположения плит покрытия, балок покрытия и верхнего ряда элементов стен План кровли Фрагменты 1, 2. Сечения Схемы расположения элементов лестницы Л-1 Схемы расположения элементов лестницы Л-1. Узлы. Сечения Спецификация элементов лестницы Л-1 Металлические элементы МК1…МК6, МИ1, МИ2, ОК, ОП-1 Спецификация на металлические элементы МК1…МК6, МИ1, МИ2, ОК, ОП-1 Опора пескопровода. Сечение. Ограждение ОЛ-2 Схемы расположения лестницы Л-2 Элемент стены ПС2-1 Деталь М-1 Сетка С1 Плита П-2 Плита П-1 Каркас КР1 Каркас КР2 Каркас КР3 Каркас КР4 Каркас КР5 Каркас КР6 Сетка арматурная С2 Закладное изделие ЗД-1 Каркас КР7 Каркас КР8 Закладное изделие ЗД-2 Закладное изделие ЗД-3 Закладное изделие ЗД (ЗД5…ЗД7) Закладное изделие ЗД-4 Закладное изделие ЗД (ЗД8, ЗД9) Рамка Р-1 Сетка С3 Рамка Р-2 Рамка Р-3 Лоток Стенка Бортик Шибер Воронка Конус Патрубок Шибер Бортик Чертежи основного комплекта марки ОВ Общие данные Вентиляция. План 1-1. Схемы систем В1, ВЕ1 Вентиляция. Разрезы 2-2, 3-3 Чертежи основного комплекта марки ЭО Общие данные План расположения на отм. 0.000. Схема расположения Планы расположения на отм. 0.000 и 21.500 Чертежи основного комплекта марки ЭМ Общие данные Подача песка в вагон. Схема электрическая принципиальная Подача песка в вагон. Схема электрическая соединений Схема электрическая принципиальная распределительной сети План расположения на отм. 11.600. Вид А Планы расположения на отм. 0.000; 21.500. Схема расположения Чертежи основного комплекта марки АТХ Общие данные Пневмотранспортер песка. Схемы электрические соединений, подключения и принципиальная сигнализации Пневмотранспортер песка. Кабельный журнал Пневмотранспортер песка. План расположения на отм. 0.000. Вид А Сигнализация уровня песка в силосах. Схемы электрические принципиальная и соединений. Кабельный журнал Сигнализация уровня песка в силосах. План расположения на отм. 0.000. Схема расположения. Разрезы 1-1, 2-2, 3-3 Чертежи основного комплекта марки ОСЛ Схема стройгенплана |
| Разработан: | Трансэлектропроект МПС |
| Утверждён: | 30.12.1987 Министерство путей сообщения СССР (USSR Ministry of Railroads А-6578у) |
































































