Скачать Типовой проект 503-4-57с.88 Альбом 3. Конструкции металлическиеДата актуализации: 01.01.2021
|
| Обозначение: | Типовой проект 503-4-57с.88 |
| Обозначение англ: | 503-4-57с.88 |
| Статус: | не определен законодательством |
| Название рус.: | Альбом 3. Конструкции металлические |
| Дата добавления в базу: | 01.09.2013 |
| Дата актуализации: | 01.01.2021 |
| Дата введения: | 20.06.1988 |
| Дата окончания срока действия: | 30.06.2003 |
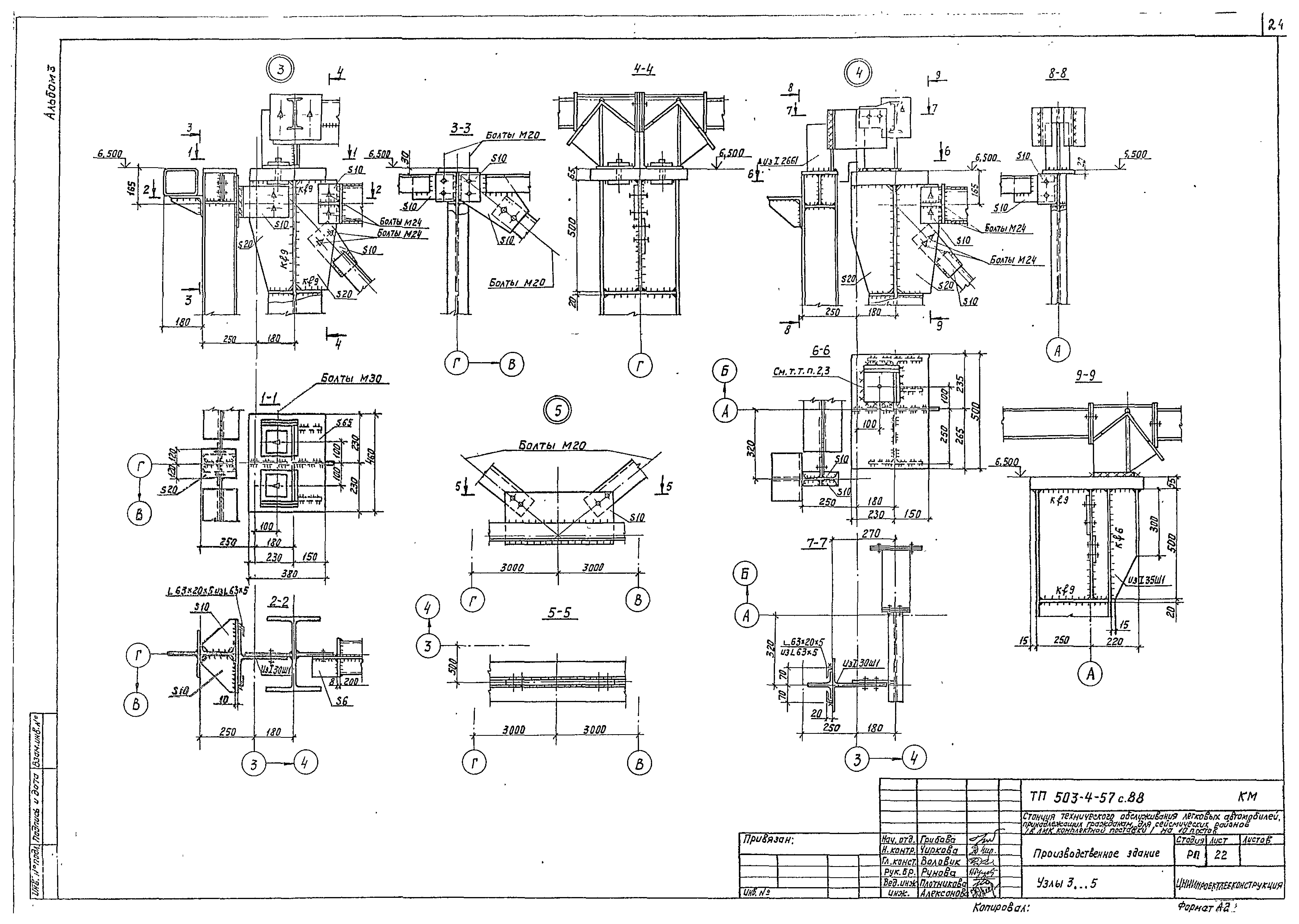
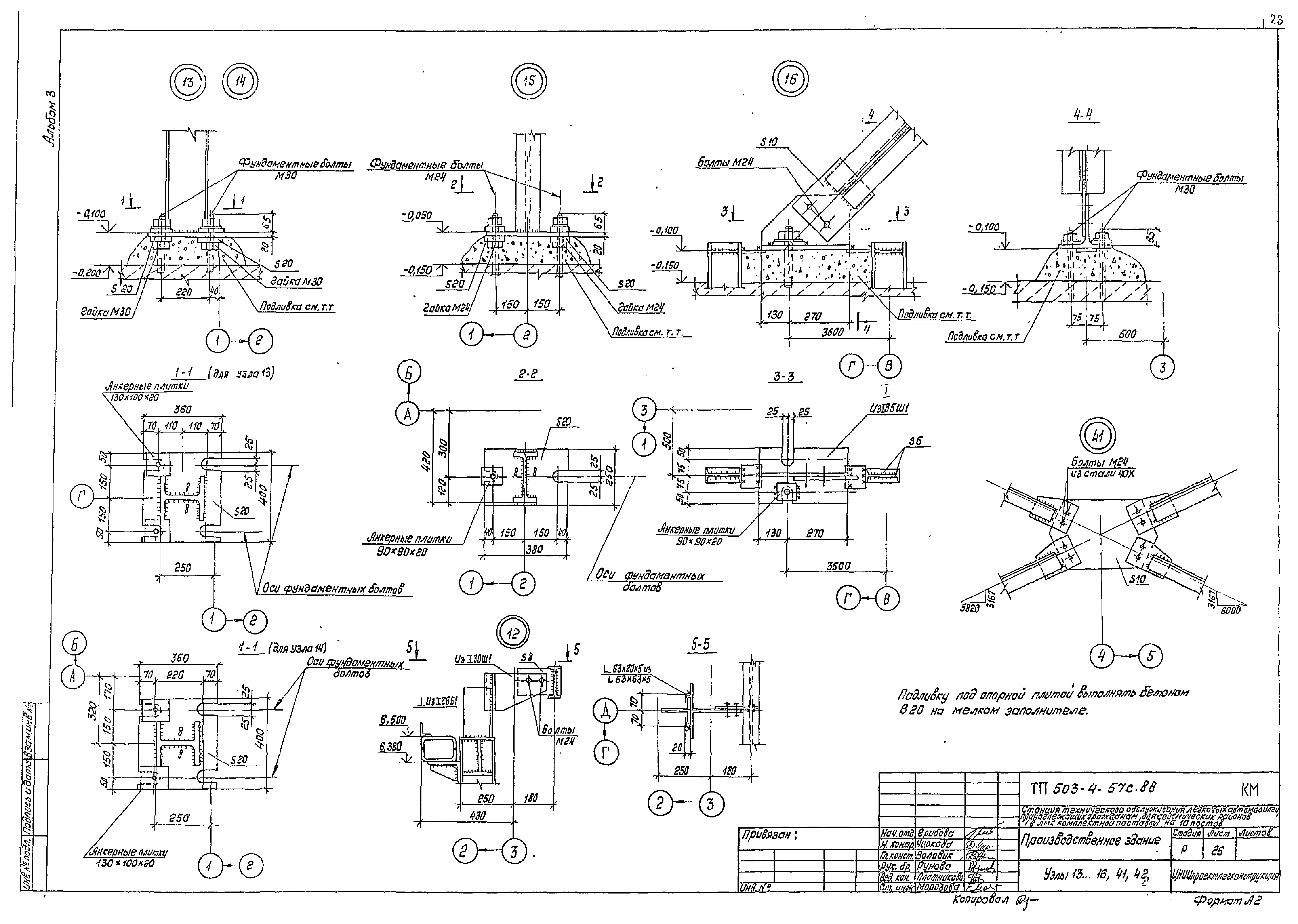
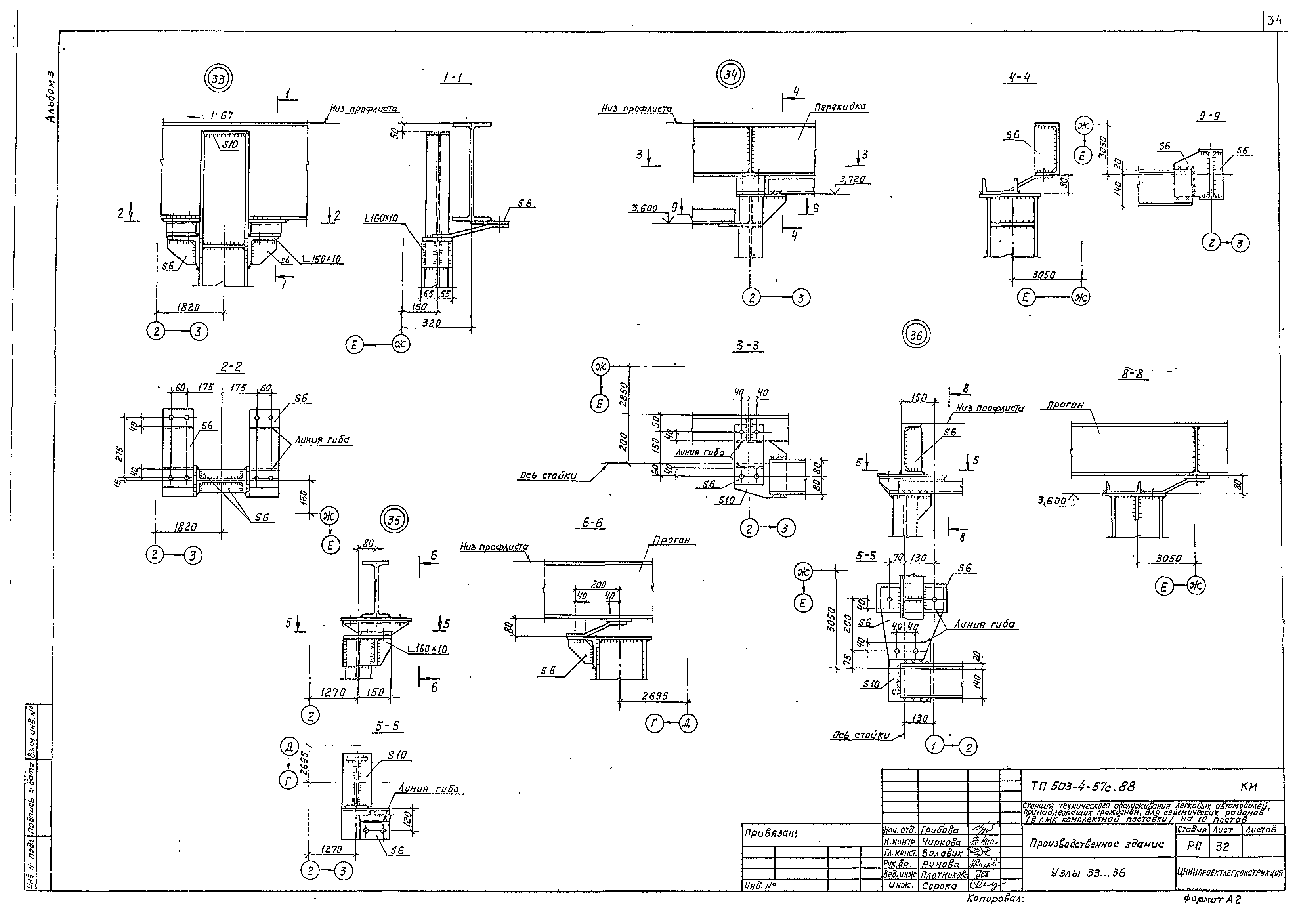
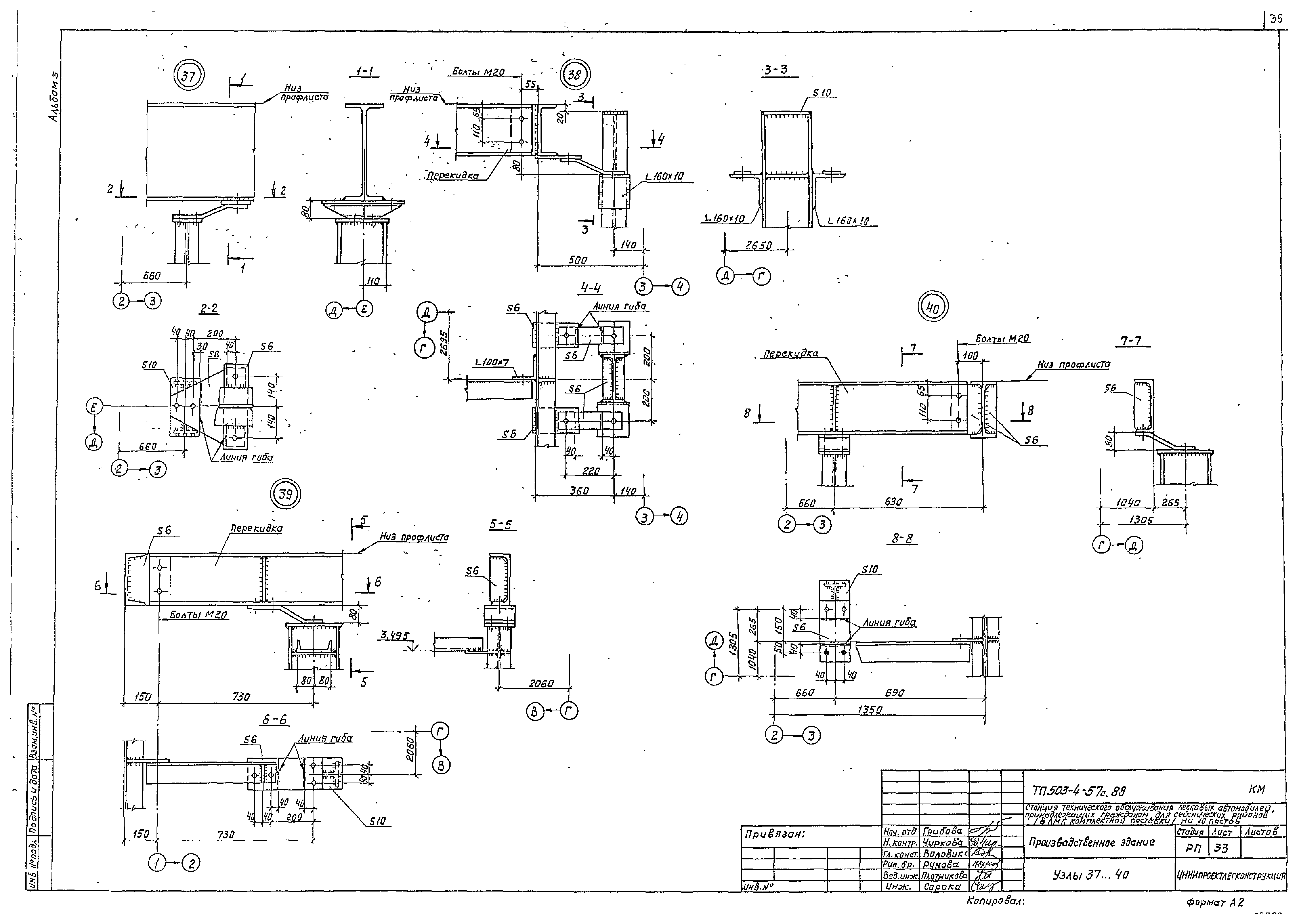
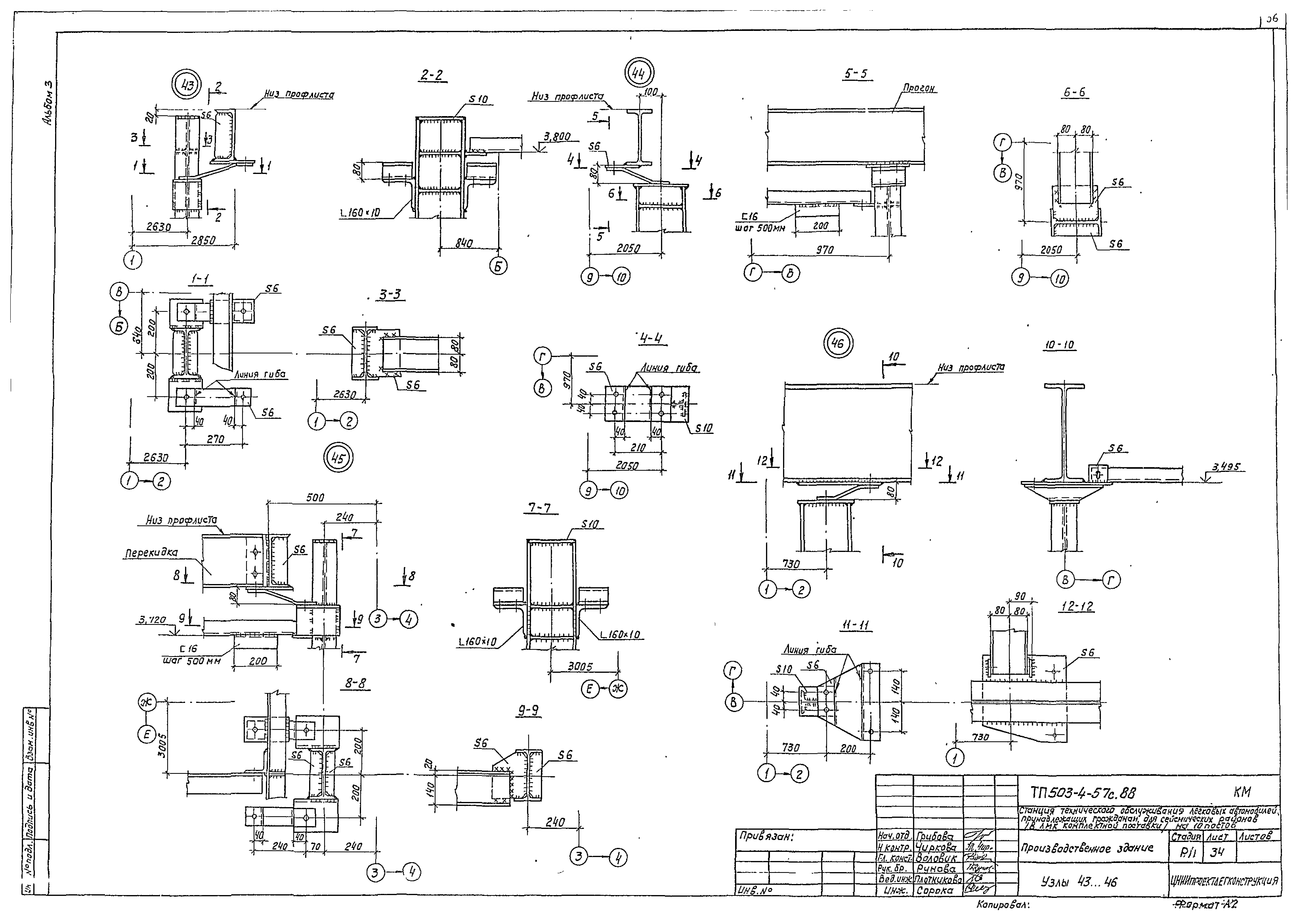
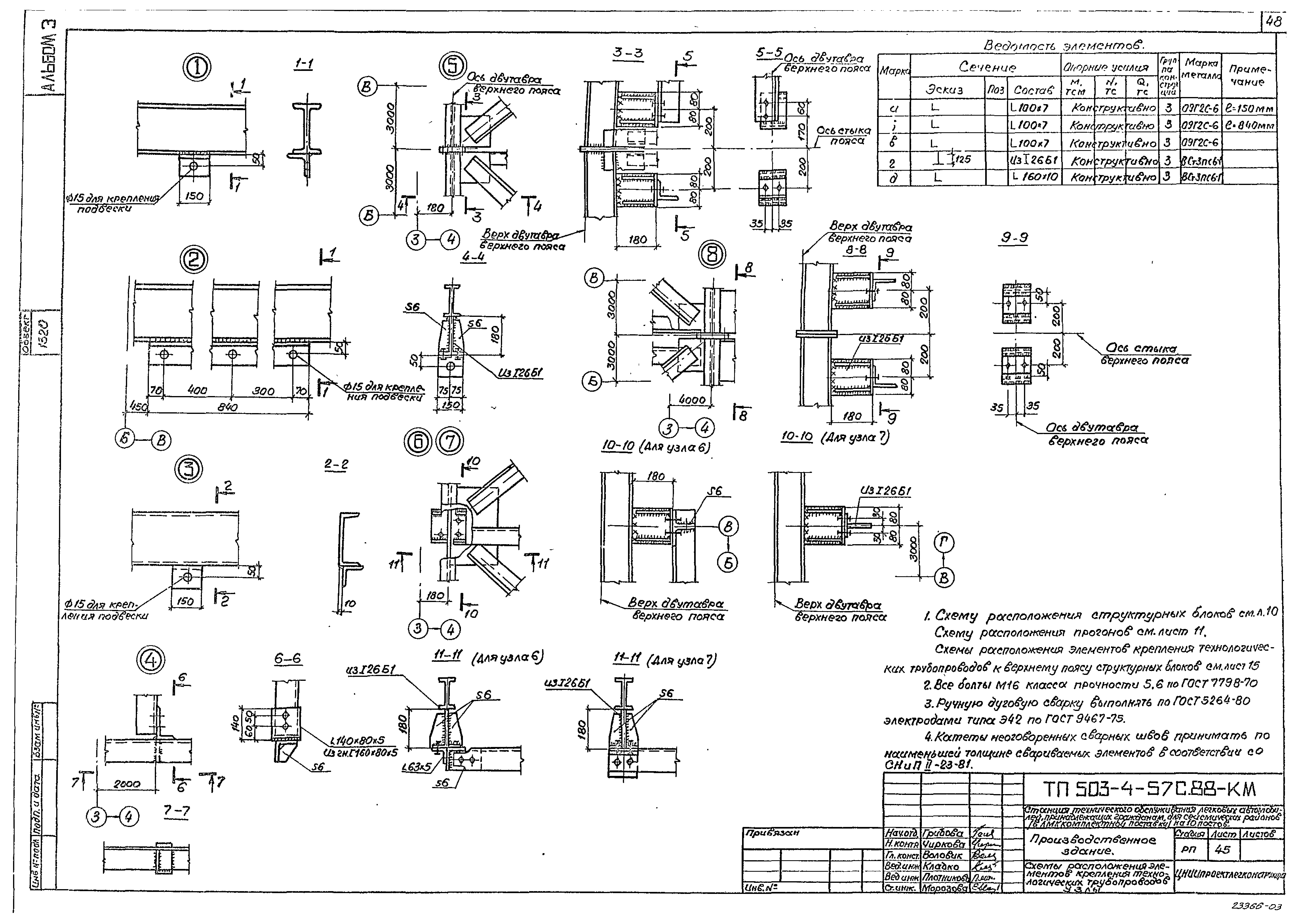
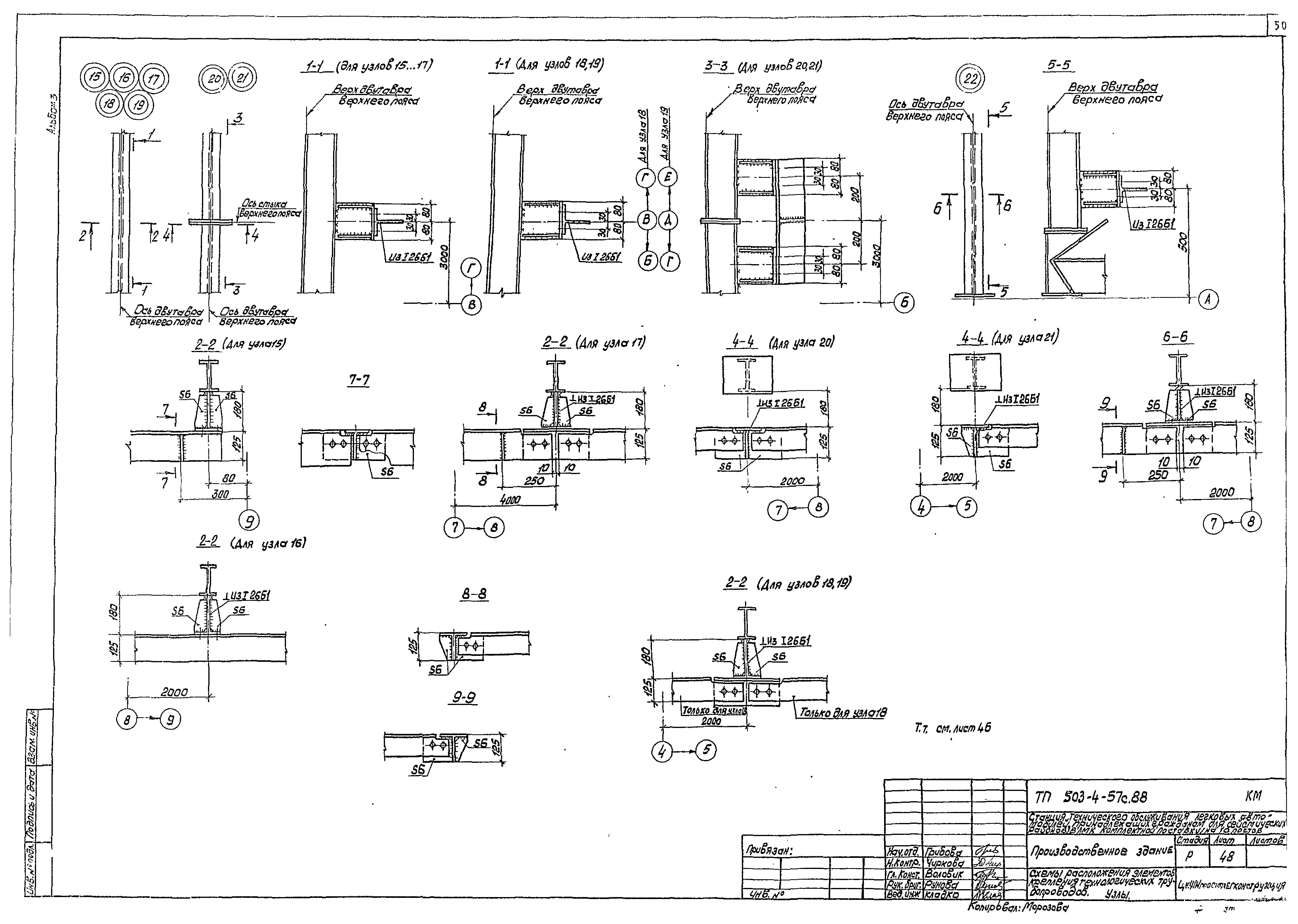
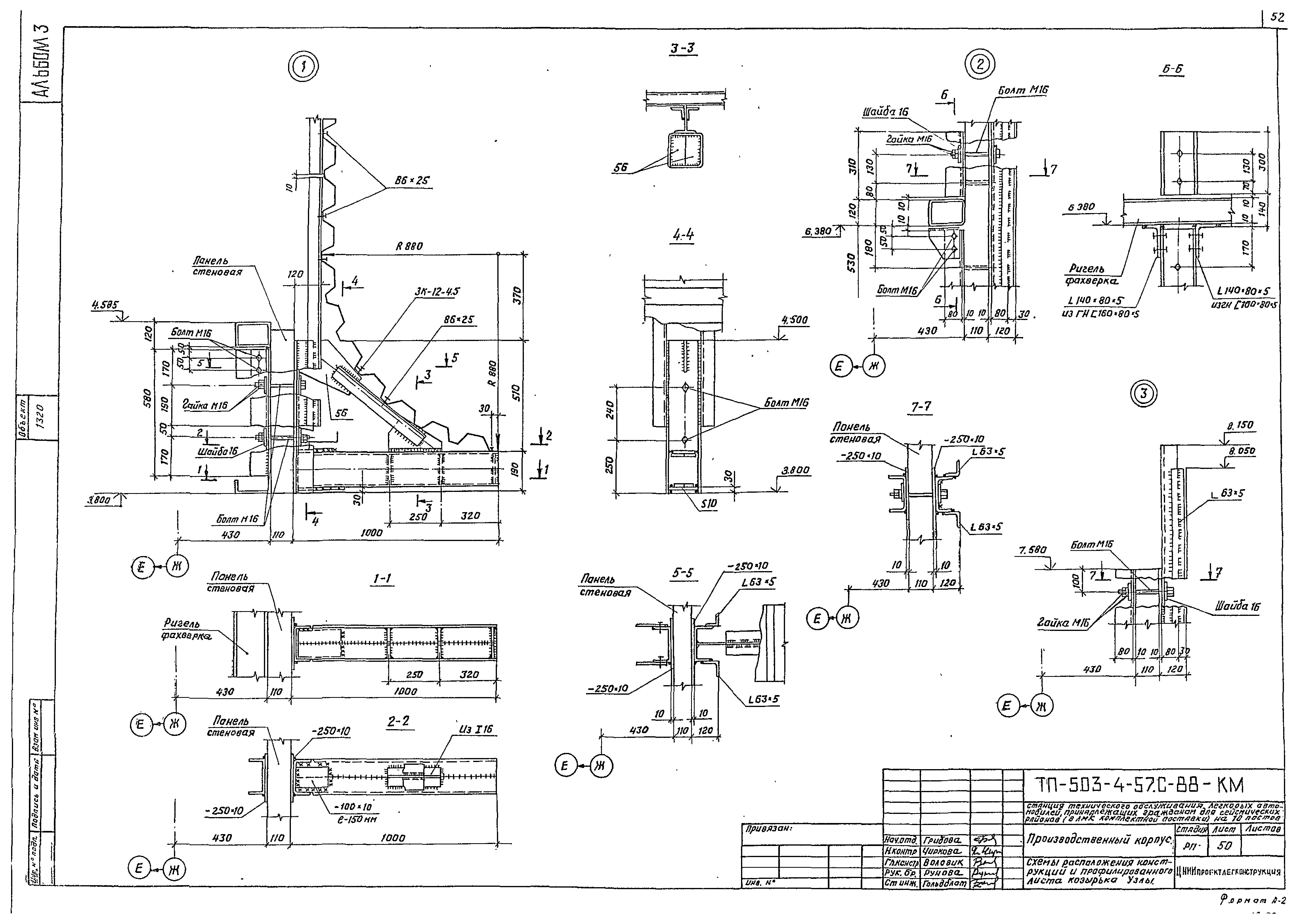
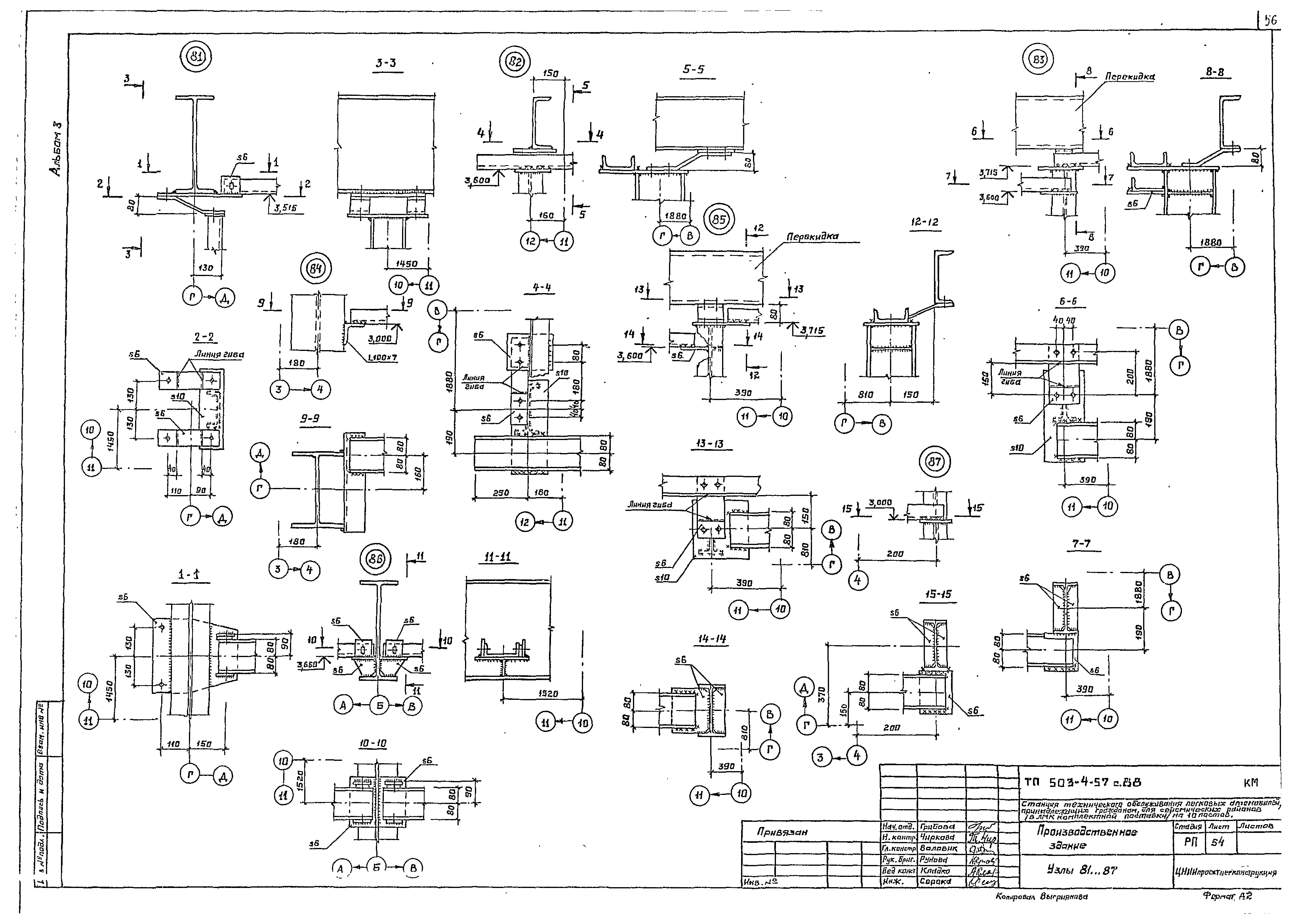
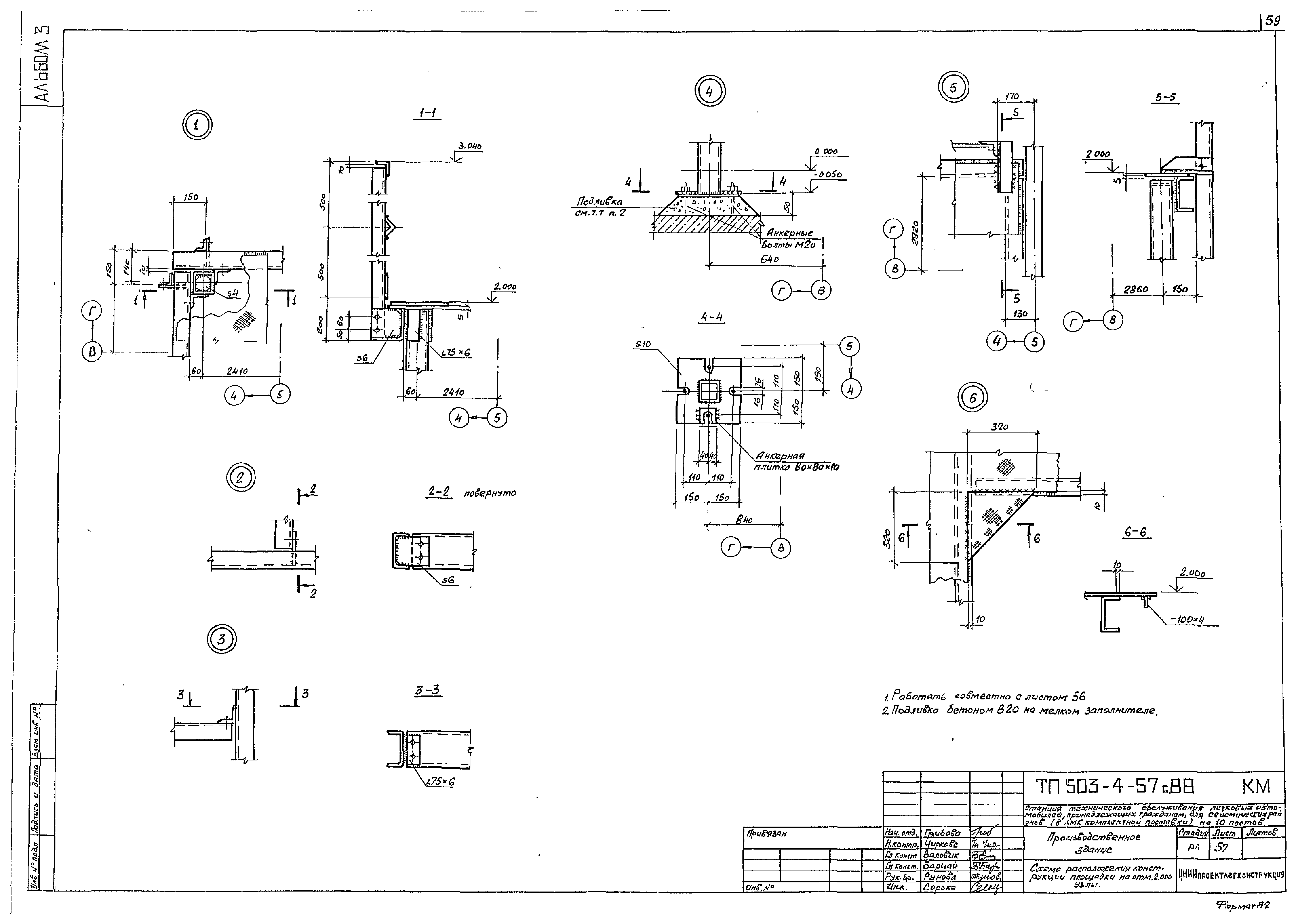
| Оглавление: | Содержание альбома Общие данные Техническая спецификация металла Схема расположения колонн и стоек наружного фахверка Схема расположения структурных блоков покрытия консолей и рамок в осях 3 - 9 Схемы расположения ригелей, прогонов и рамок в осях 1 - 3; 9 - 11. Разрезы Схема расположения настила покрытия в осях 3 - 9. Разрезы. Узлы Схема расположения настила покрытия в осях 1 - 3; 9 - 11. Разрезы. Узлы Схема расположения путей подвесных кранов в осях 5 - 9. Разрезы Схема расположения стоек внутреннего фахверка Разрезы 1-1…3-3; 5-5…7-7 Разрезы 4-4; 8-8…11-11 Разрезы 12-12…32-32 Схемы расположения ригелей фахверка в осях 11 - 1 по оси Ж; в осях 1 - 11 по оси А; в осях Ж - А по оси 1 Схемы расположения ригелей фахверка в осях А - Ж по оси 11; в осях А - Ж по оси 9; в осях Ж - А по оси 3; Р2, Р3, Р17…Р20 Узлы 1, 2 Узлы 3…5 Узлы 6…8, 91 Узлы 9, 10 Узлы 11, 12 Узлы 13…16; 41, 42 Узлы 17, 18 Узлы 19…21 Узлы 22…25 Узлы 26…29 Узлы 30…32 Узлы 33…36 Узлы 37…40 Узлы 43…46 Узлы 47…51 Узлы 52…54 Узлы 55…60, 92 Узлы 61…65 Узлы 66…69 Узлы 70…75 Схемы опорных рамок и закрепления профилированного листа Схемы опорных рамок и закрепления профилированного листа. Узлы 93…97 Схемы расположения стоек для крепления вертикальных воздуховодов в осях А - Г по оси 9; в осях Г - Б по оси 3. Узлы Схемы расположения элементов крепления технологических трубопроводов. Разрезы Схемы расположения элементов крепления технологических трубопроводов. Узлы Схемы расположения конструкций и профилированного листа козырька. Разрезы Схемы расположения конструкций и профилированного листа козырька. Узлы Схемы расположения элементов молниезащиты Схема расположения ригелей для кирпичных перегородок. Разрезы 1-1…15-15 Узлы 76…80 Узлы 81…87 Узлы 88…90 Схема расположения конструкций площадки на отм. 2.000. Разрезы Схема расположения конструкций площадки на отм. 2.000. Узлы Ведомость металлоконструкций по видам профилей |
| Разработан: | Ленинградский филиал Гипроавтотранс |
| Утверждён: | 20.06.1988 Минавтопром СССР (USSR Minavtoprom 23) |
| Издан: | ЦИТП Госстроя СССР (CITP, Gosstroy (USSR) 1988 г. ) |




























































