Скачать Типовой проект 503-4-57с.88 Альбом 6. Отопление и вентиляция. Внутренний водопровод и канализацияДата актуализации: 01.01.2021
|
| Обозначение: | Типовой проект 503-4-57с.88 |
| Обозначение англ: | 503-4-57с.88 |
| Статус: | не определен законодательством |
| Название рус.: | Альбом 6. Отопление и вентиляция. Внутренний водопровод и канализация |
| Дата добавления в базу: | 01.09.2013 |
| Дата актуализации: | 01.01.2021 |
| Дата введения: | 20.06.1988 |
| Дата окончания срока действия: | 30.06.2003 |
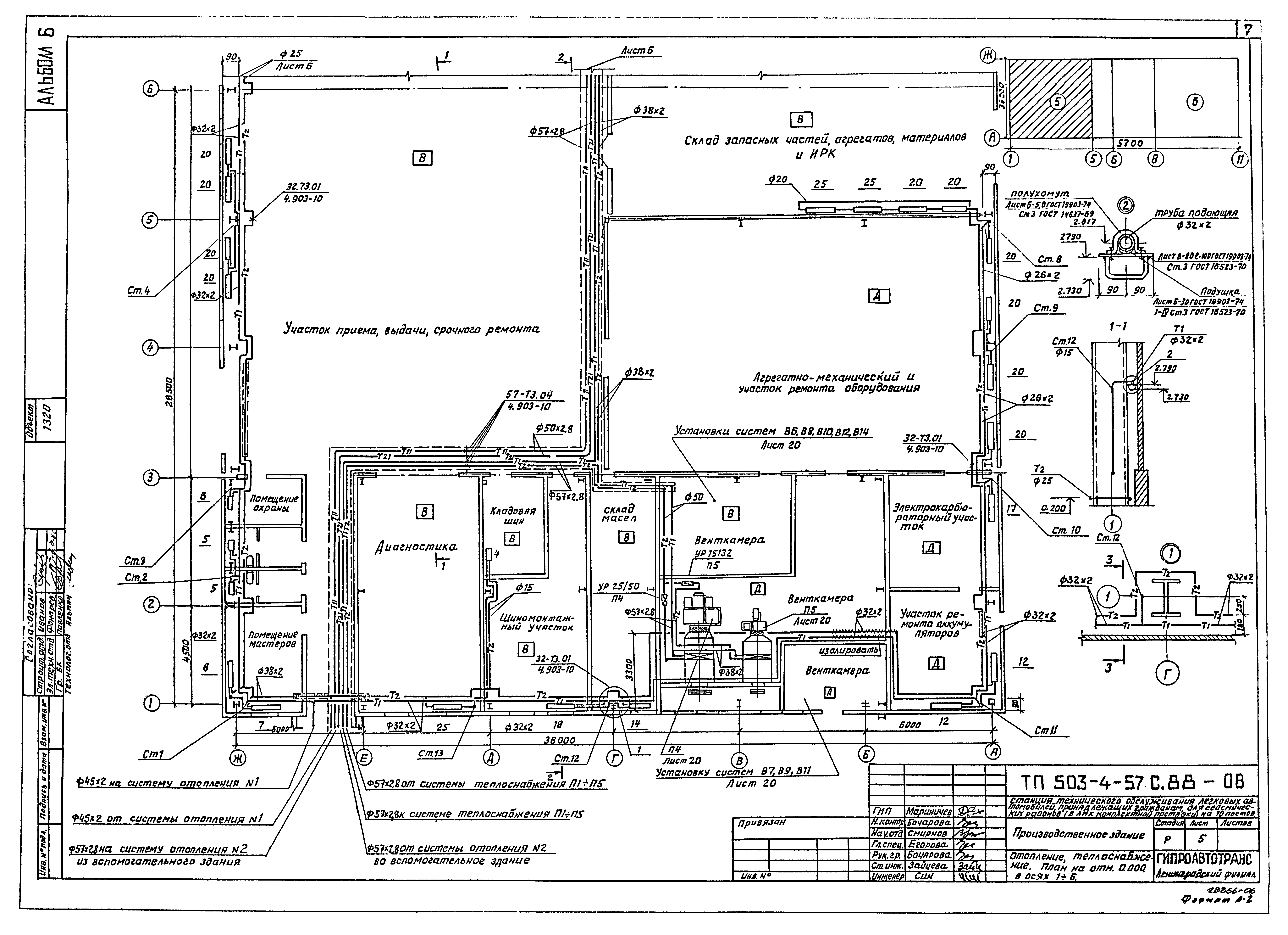
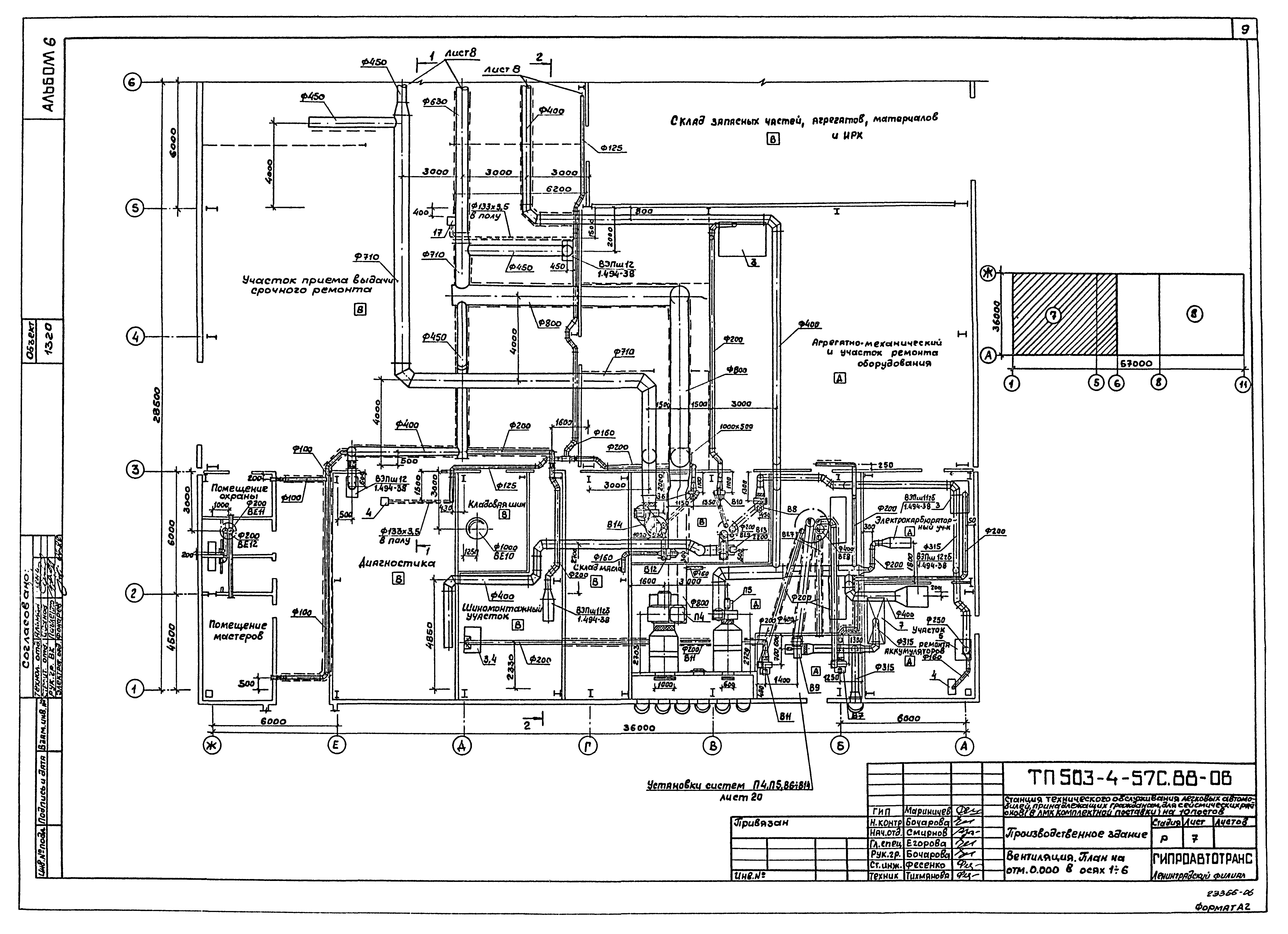
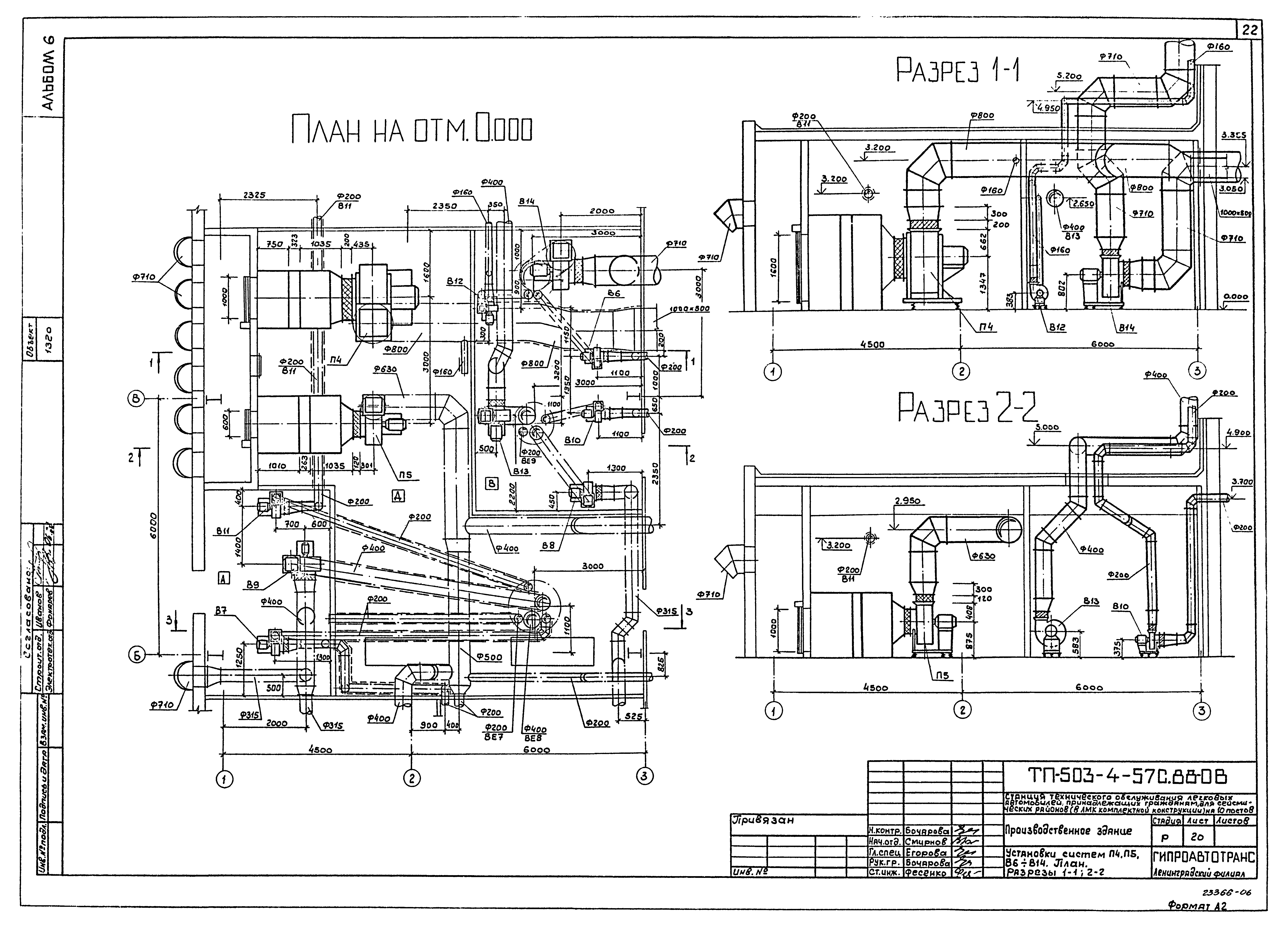
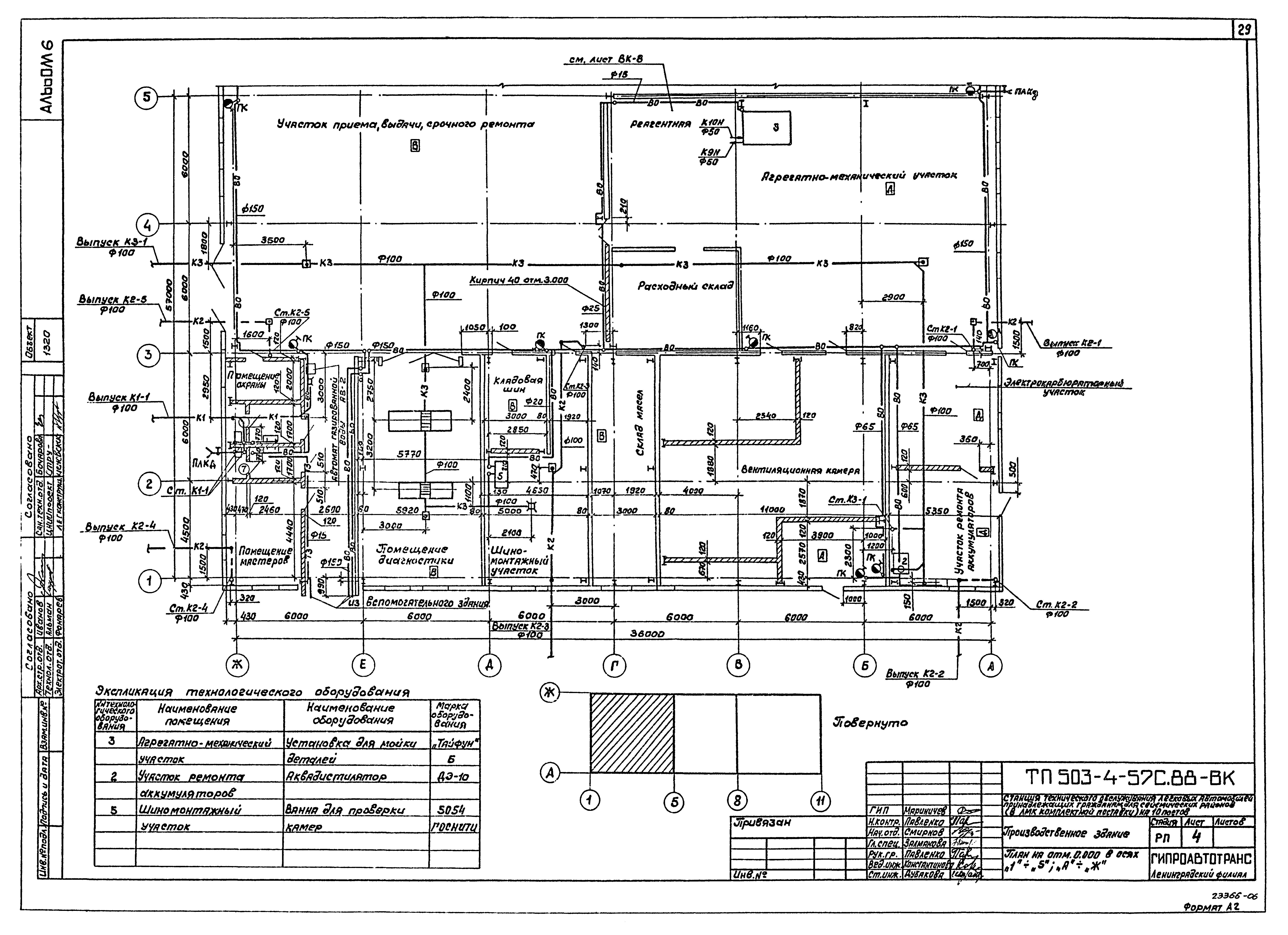
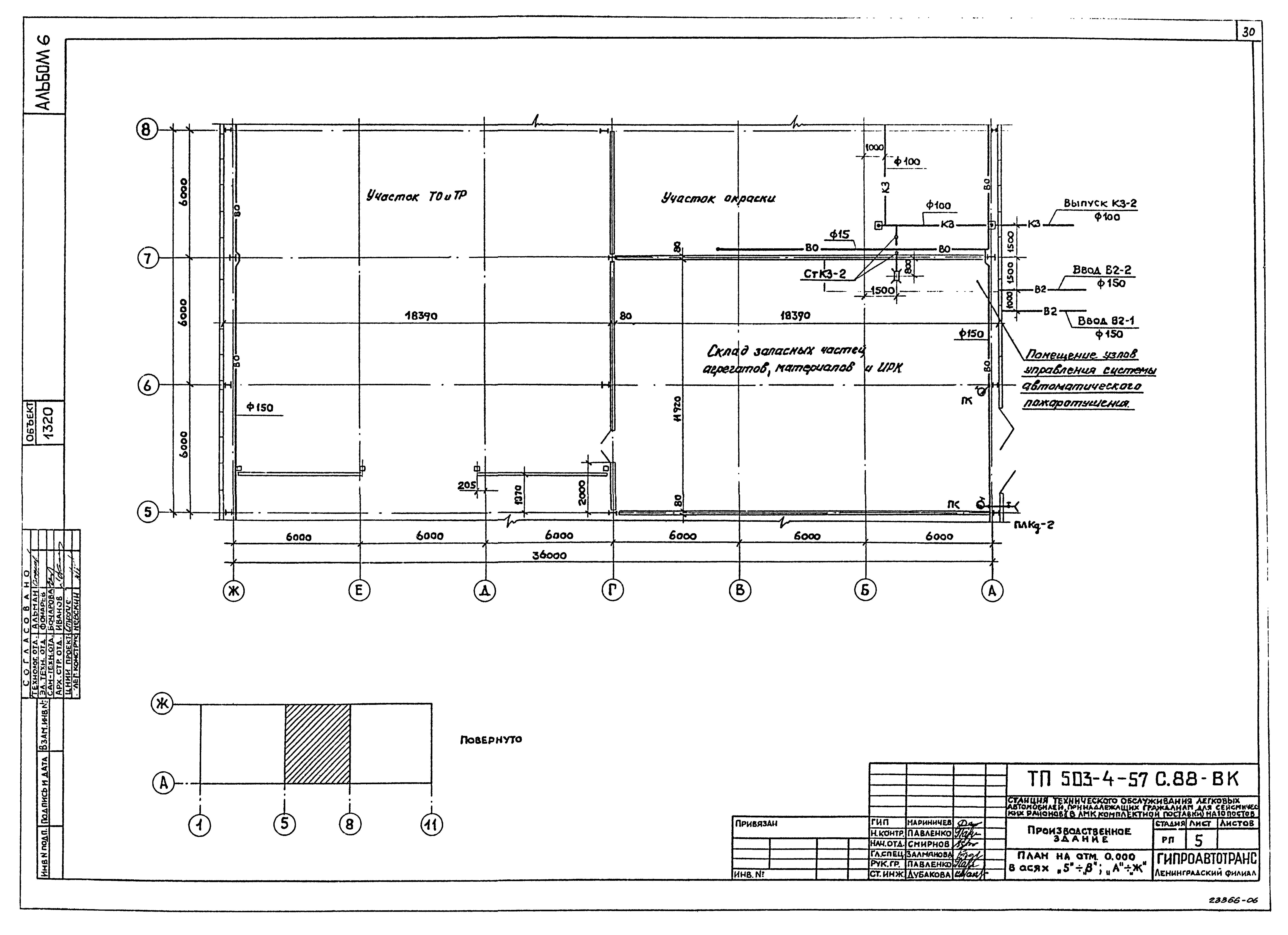
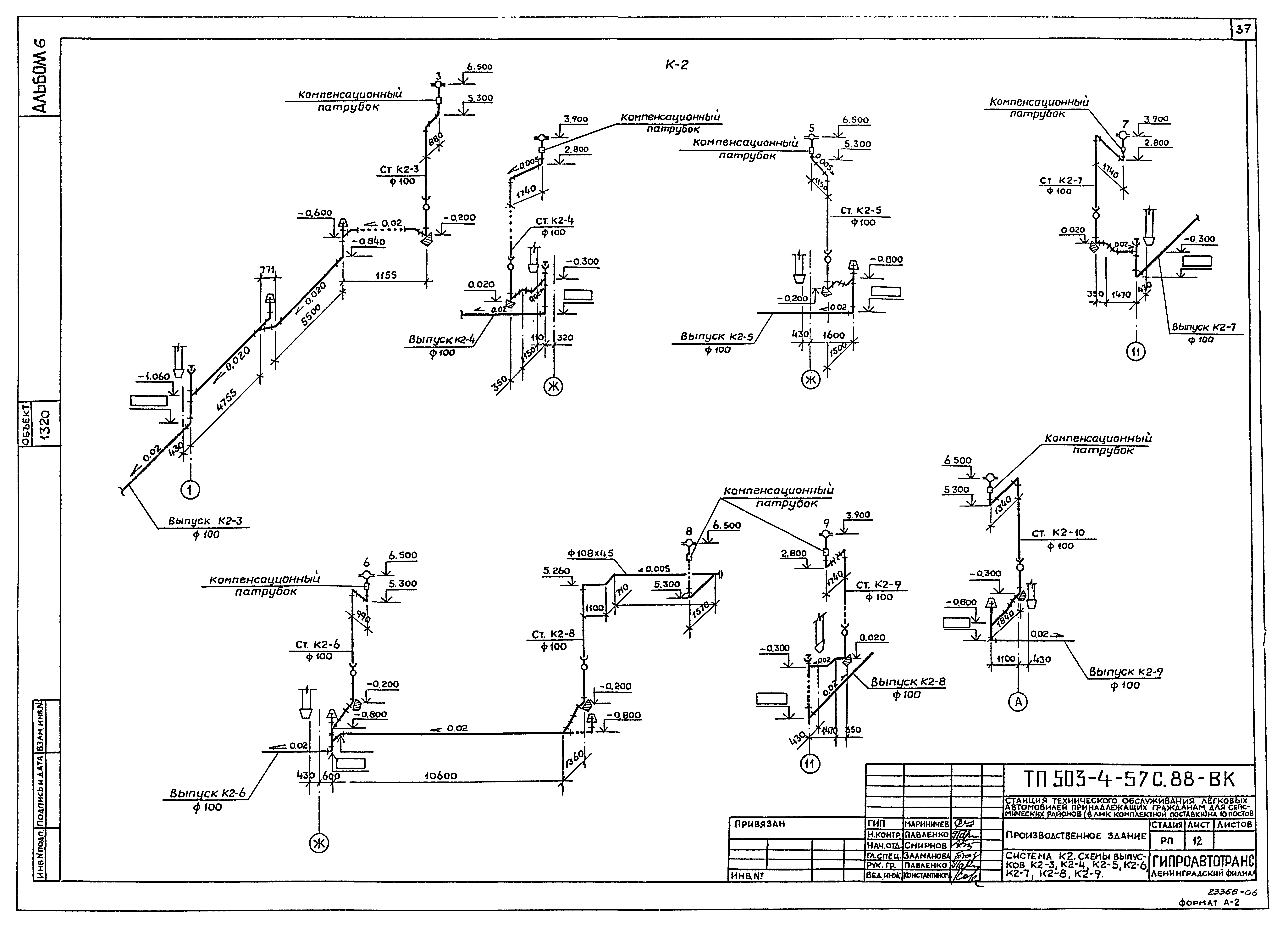
| Оглавление: | Чертежи основного комплекта марки ОВ Общие данные Отопление, теплоснабжение. План на отм. 0.000 в осях 1 - 6 Отопление, теплоснабжение. План на отм. 0.000 в осях 6 - 11 Вентиляция. План на отм. 0.000 в осях 1 - 6 Вентиляция. План на отм. 0.000 в осях 6 - 11 Таблица местных отсосов Таблица местных отсосов. Разрезы 1-1, 2-2 Схема системы отопления №1 Схема системы отопления №2 Схема системы теплоснабжения установок П1 - П5 Схемы систем П1 - П4 Схемы систем П5, ВЕ1 - ВЕ12 Схемы систем В1 - В8 Схемы систем В9 - В15 Установки систем П1, П2, П3. План. Разрезы Спецификация отопительно-вентиляционных установок П1 - П3 Установки систем П4, П5, В6 - В14. План. Разрезы 1-1, 2-2 Установки систем П4, П5, В6 - В14. Разрез 3-3. Спецификация отопительно-вентиляционных установок В9 - В14 Спецификация отопительно-вентиляционных установок П4, П5, В6 - В8 Установки систем В1 - В3 Чертежи основного комплекта марки ВК Общие данные План на отм. 0.000 в осях "1 - 5"; "А - Ж" План на отм. 0.000 в осях "5 - 8"; "А - Ж" План на отм. 0.000 в осях "8 - 11"; "А - Ж" Системы В0, Т3. Схемы Система оборотного водоснабжения моющих растворов. План. Разрез. Схема Система оборотного водоснабжения участка окраски. План. Разрез. Схема Система К1. Схема К1-1. Система К3. Схемы выпусков К3-1, К3-2, К3-3 Система К2. План кровли. Схемы выпусков К2-1, К2-2 Система К2. Схемы выпусков К2-3, К2-4, К2-5, К2-6, К2-7, К2-8, К2-9 Блок-отстойник стальной. Общий вид. Установка пожарного крана Ф 65 в шкафу |
| Разработан: | Ленинградский филиал Гипроавтотранс |
| Утверждён: | 20.06.1988 Минавтопром СССР (USSR Minavtoprom 23) |
| Издан: | ЦИТП Госстроя СССР (CITP, Gosstroy (USSR) 1988 г. ) |






































