Скачать Типовой проект 503-4-57с.88 Альбом 7. Электрическое освещение. Силовое электрооборудование. Связь и сигнализация. АвтоматизацияДата актуализации: 01.01.2021
|
| Обозначение: | Типовой проект 503-4-57с.88 |
| Обозначение англ: | 503-4-57с.88 |
| Статус: | не определен законодательством |
| Название рус.: | Альбом 7. Электрическое освещение. Силовое электрооборудование. Связь и сигнализация. Автоматизация |
| Дата добавления в базу: | 01.09.2013 |
| Дата актуализации: | 01.01.2021 |
| Дата введения: | 20.06.1988 |
| Дата окончания срока действия: | 30.06.2003 |
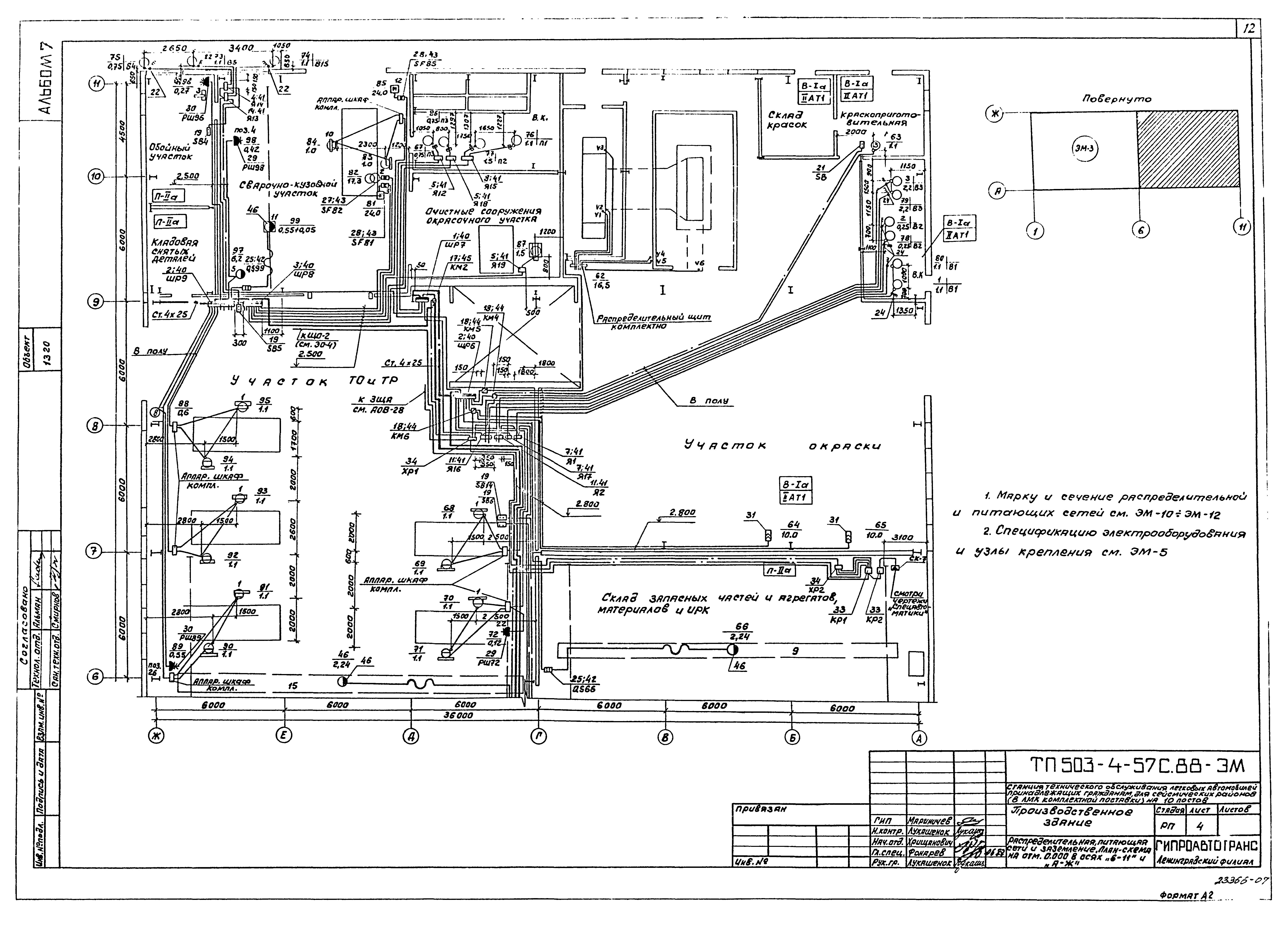
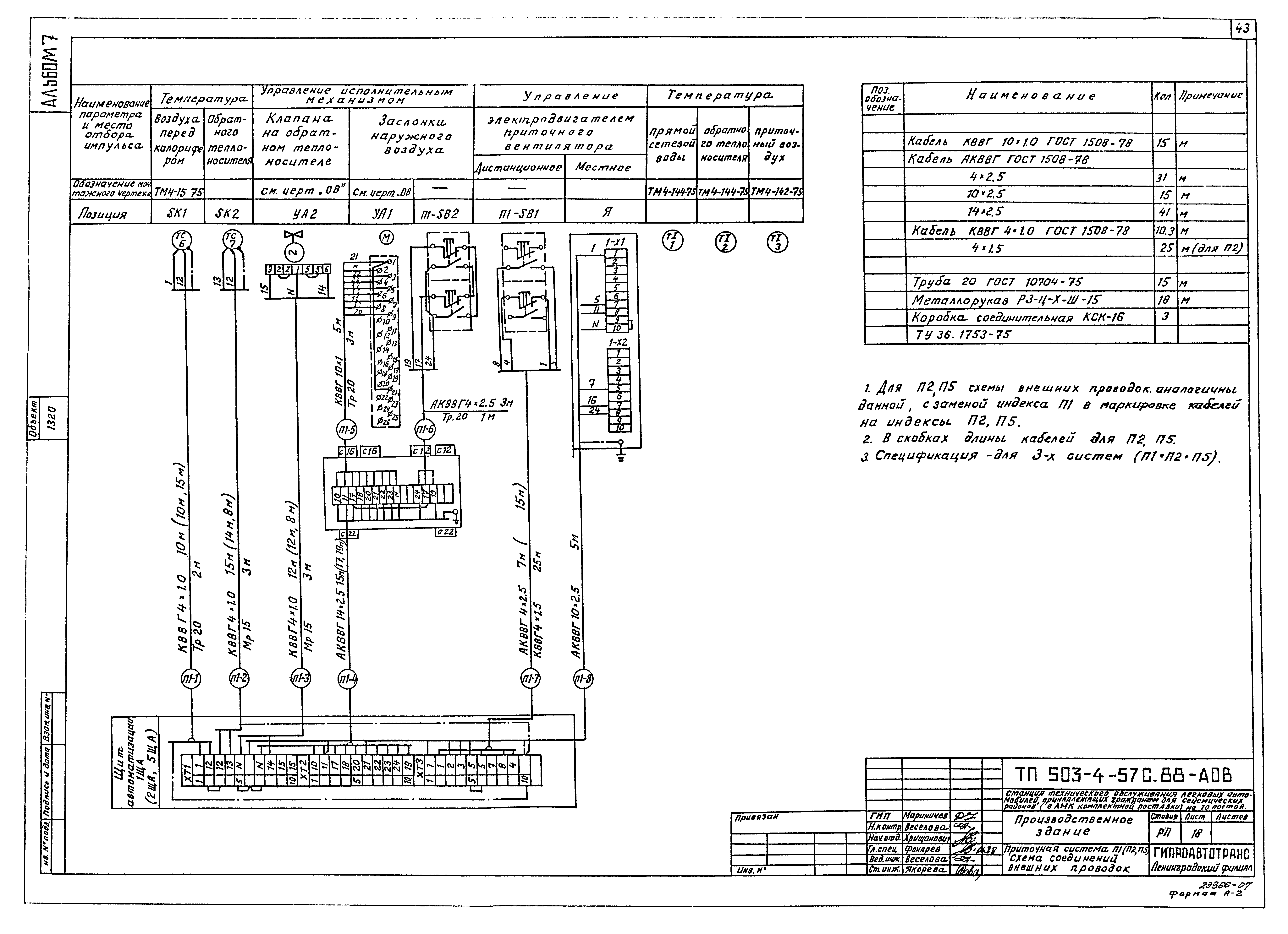
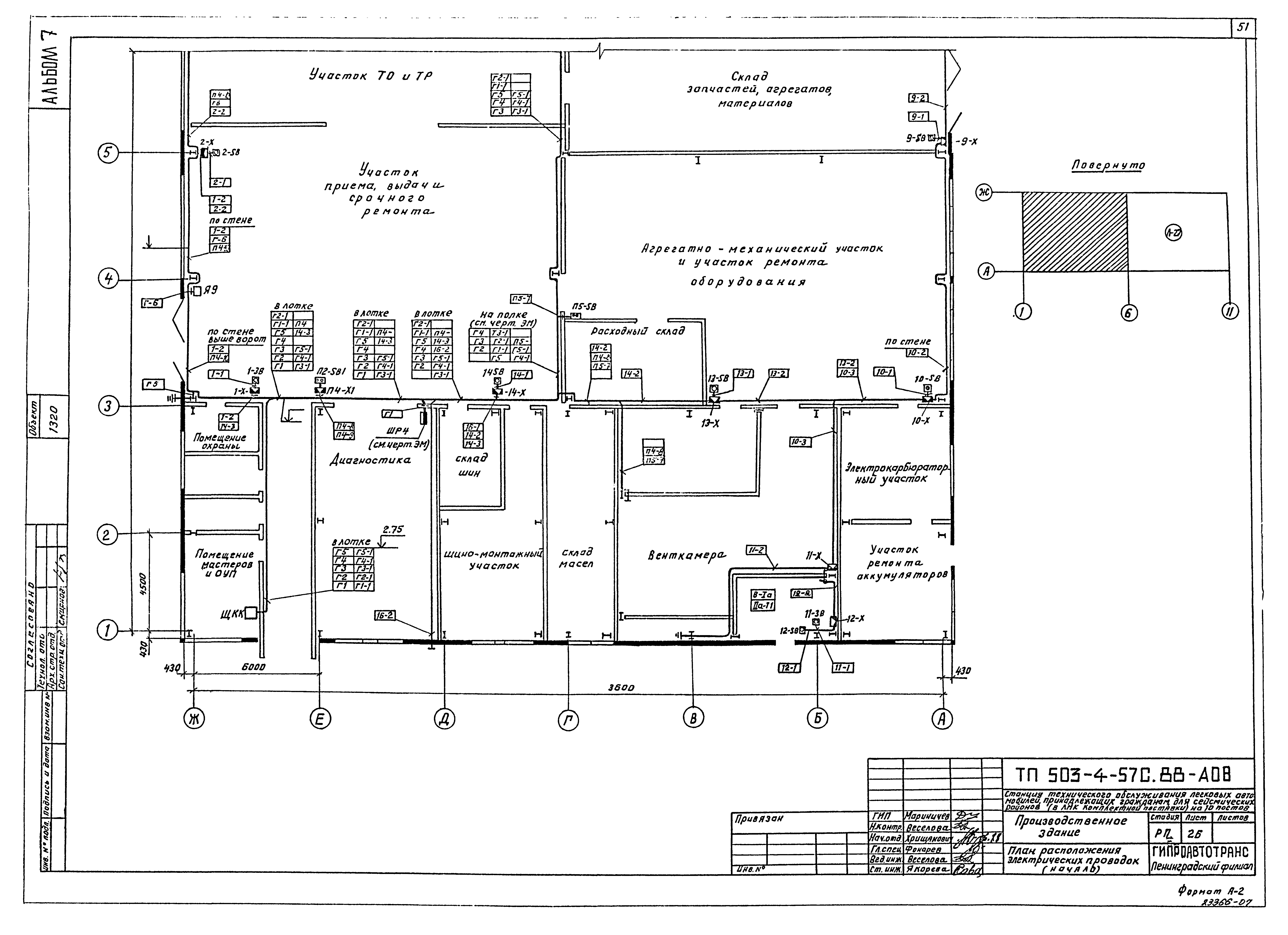
| Оглавление: | Содержание альбома Электрическое освещение Общие данные Принципиальная электрическая схема питающей сети 380/220 В Общее освещение. План на отм. 0.000 в осях "1 - 6" и "А - Ж" Общее освещение. План на отм. 0.000 в осях "6 - 11" и "А - Ж" Общее освещение. Фрагменты планов Общее освещение. Разрезы Силовое электрооборудование Общие данные Распределительная, питающая сети и заземление. План-схема на отм. 0.000 в осях "1 - 6" и "А - Ж" Распределительная, питающая сети и заземление. План-схема на отм. 0.000 в осях "6 - 11" и "А - Ж" Спецификация электрооборудования и узлы крепления Распределительная сеть ШР1. Схема электрическая принципиальная Распределительная сеть ШР2 и ШР3. Схема электрическая принципиальная Распределительная сеть ШР4. Схема электрическая принципиальная Распределительная сеть ШР5. Схема электрическая принципиальная Распределительная сеть ШР6. Схема электрическая принципиальная Распределительная сеть ШР7 и ШР8. Схема электрическая принципиальная Распределительная сеть ШР9. Схема электрическая принципиальная. Сводка кабелей, проводов и труб Отключение вентиляции при пожаре. Схема электрическая принципиальная Связь и сигнализация Общие данные План расположения устройств связи и сигнализации на отм. 0.000 в осях "1 - 6" и "А - Ж" План расположения устройств связи и сигнализации на отм. 0.000 в осях "6 - 11" и "А - Ж" Схема систем связи и сигнализации. Схема расположения сетей распорядительно-оповестительной связи и городской радиотрансляции Автоматизация Общие данные Приточная система П1 (П2, П5). Схема функциональная Приточная система П3. Схема функциональная Приточная система П4. Схема функциональная Контроль концентрации ксилола на участке окраски. Схема функциональная Вытяжная система В1 (В2, В3). Схема функциональная Контроль уровня очищенных стоков. Схема функциональная и электрическая принципиальная Контроль уровня воды в приямке окрасочно-сушильной камеры "Афит". Схема функциональная и электрическая принципиальная Приточная система П1 (П2, П5). Схема электрическая принципиальная управления Приточная система П3. Схема электрическая принципиальная управления Приточная система П4. Схема электрическая принципиальная управления Приточная система П4. Схема электрическая принципиальная регулирования Контроль концентрации ксилола на участке окраски. Схема электрическая принципиальная Контроль концентрации ксилола на участке окраски. Схема электрическая принципиальная сигнализации Вытяжная система В1 (В2, В3). Схема электрическая принципиальная управления Приточная система П1 (П2, П5). Схема соединений внешних проводок Приточная система П3. Схема соединений внешних проводок Приточная система П4. Схема соединений внешних проводок Участок окраски. Схема соединений внешних проводок Участок окраски. Схема подключений внешних проводок Вытяжная система В1 (В2, В3). Схема соединений внешних проводок Кнопки пуска пожарных кранов. Схема соединений внешних проводок Контроль уровней. Схема соединений внешних проводок План расположения электрических проводок |
| Разработан: | Ленинградский филиал Гипроавтотранс |
| Утверждён: | 20.06.1988 Минавтопром СССР (USSR Minavtoprom 23) |
| Издан: | ЦИТП Госстроя СССР (CITP, Gosstroy (USSR) 1988 г. ) |





















































