Скачать Типовой проект 503-5-23.86 Альбом I. Пояснительная записка. Генеральный план и транспорт. Архитектурные решенияДата актуализации: 01.01.2021
|
| Обозначение: | Типовой проект 503-5-23.86 |
| Обозначение англ: | 503-5-23.86 |
| Статус: | не определен законодательством |
| Название рус.: | Альбом I. Пояснительная записка. Генеральный план и транспорт. Архитектурные решения |
| Дата добавления в базу: | 01.09.2013 |
| Дата актуализации: | 01.01.2021 |
| Дата введения: | 12.09.1986 |
| Дата окончания срока действия: | 30.06.2003 |
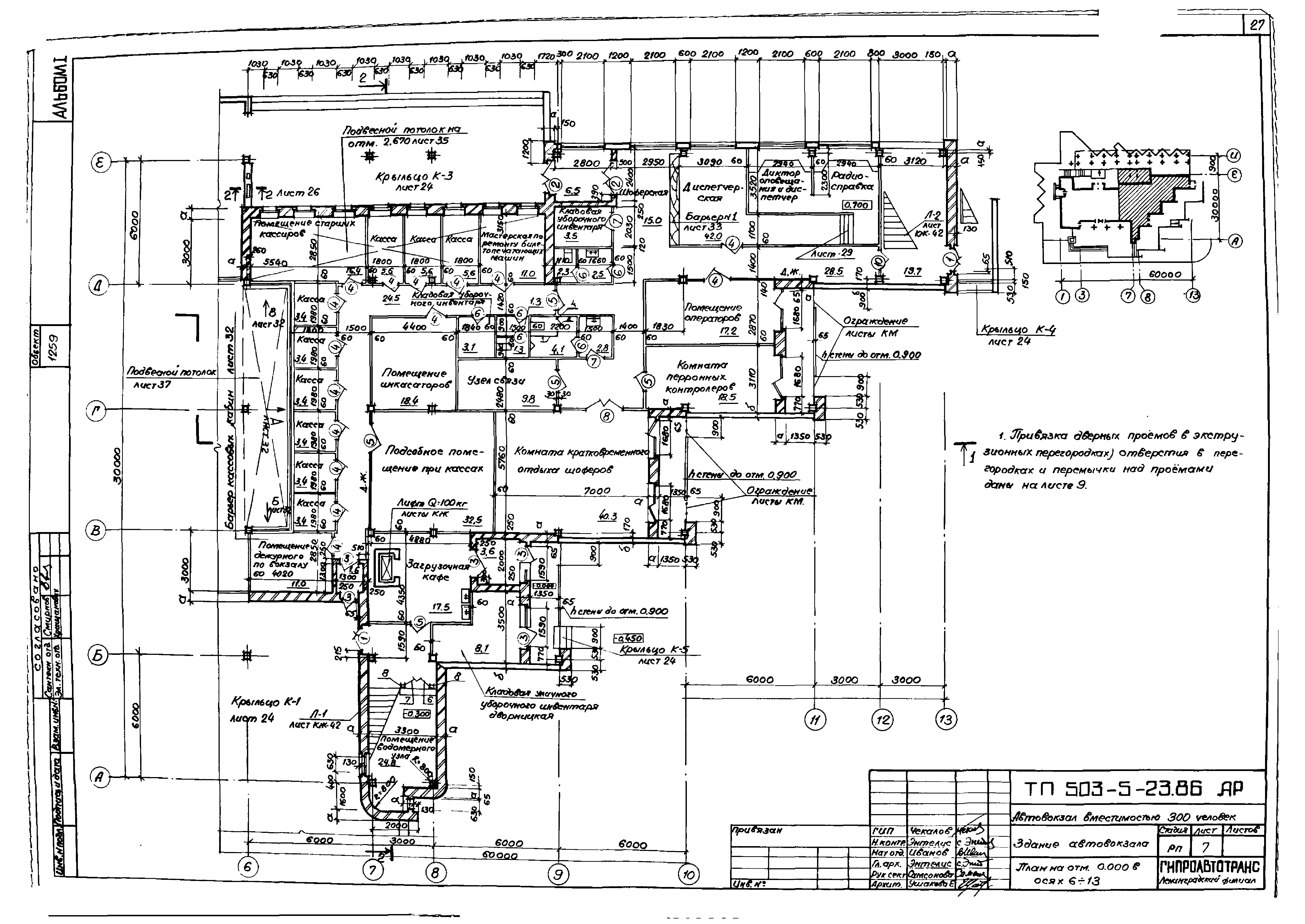
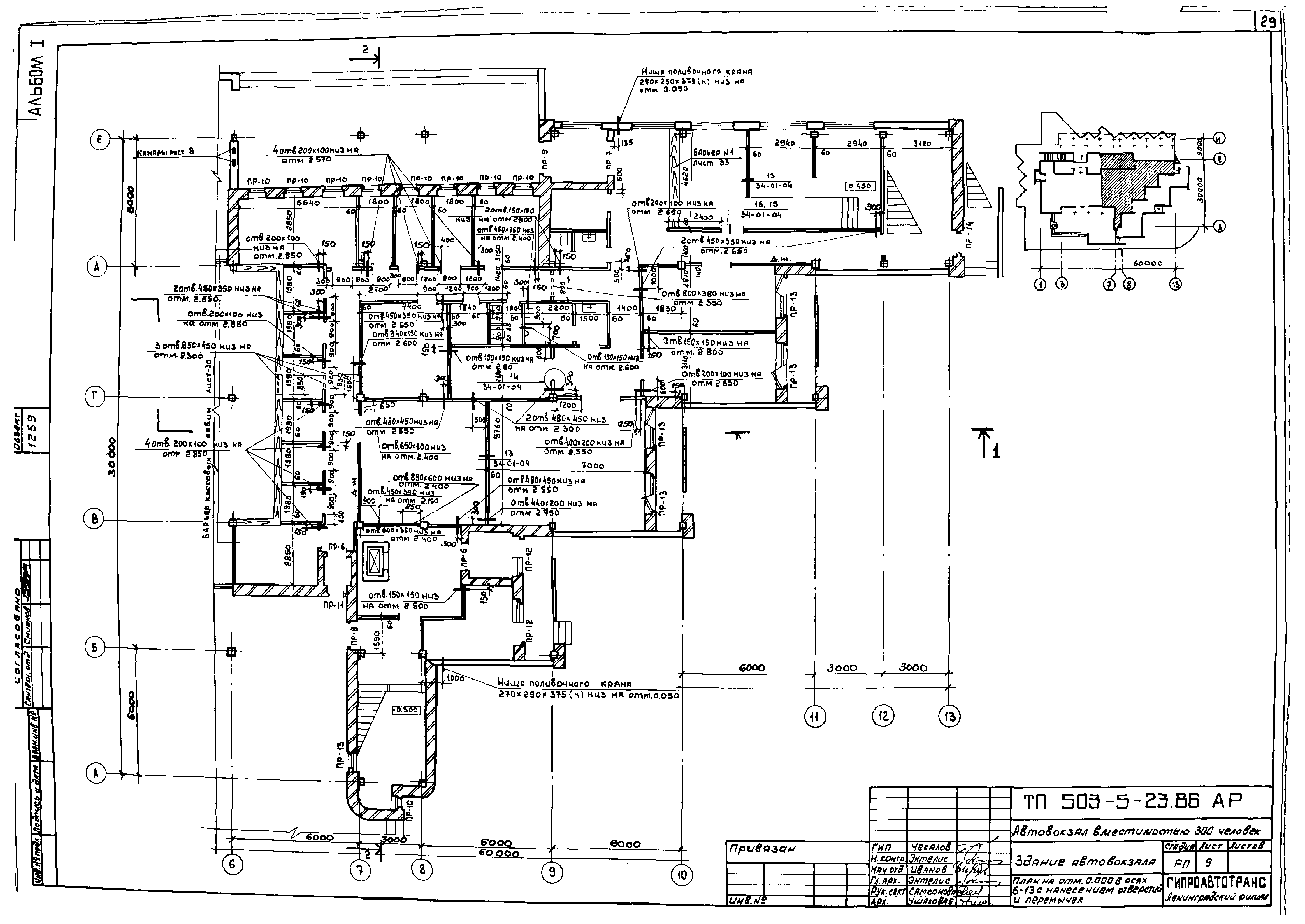
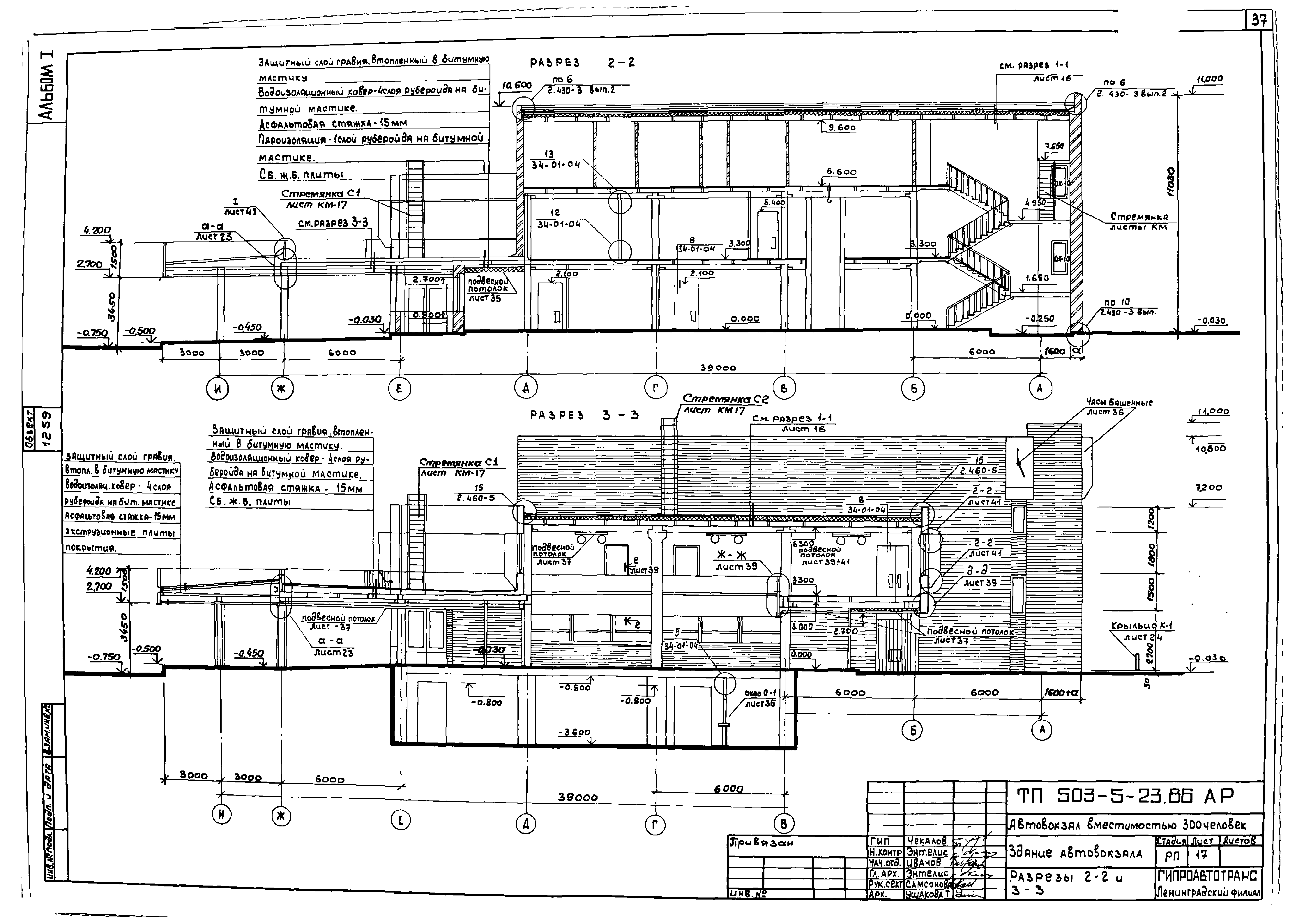
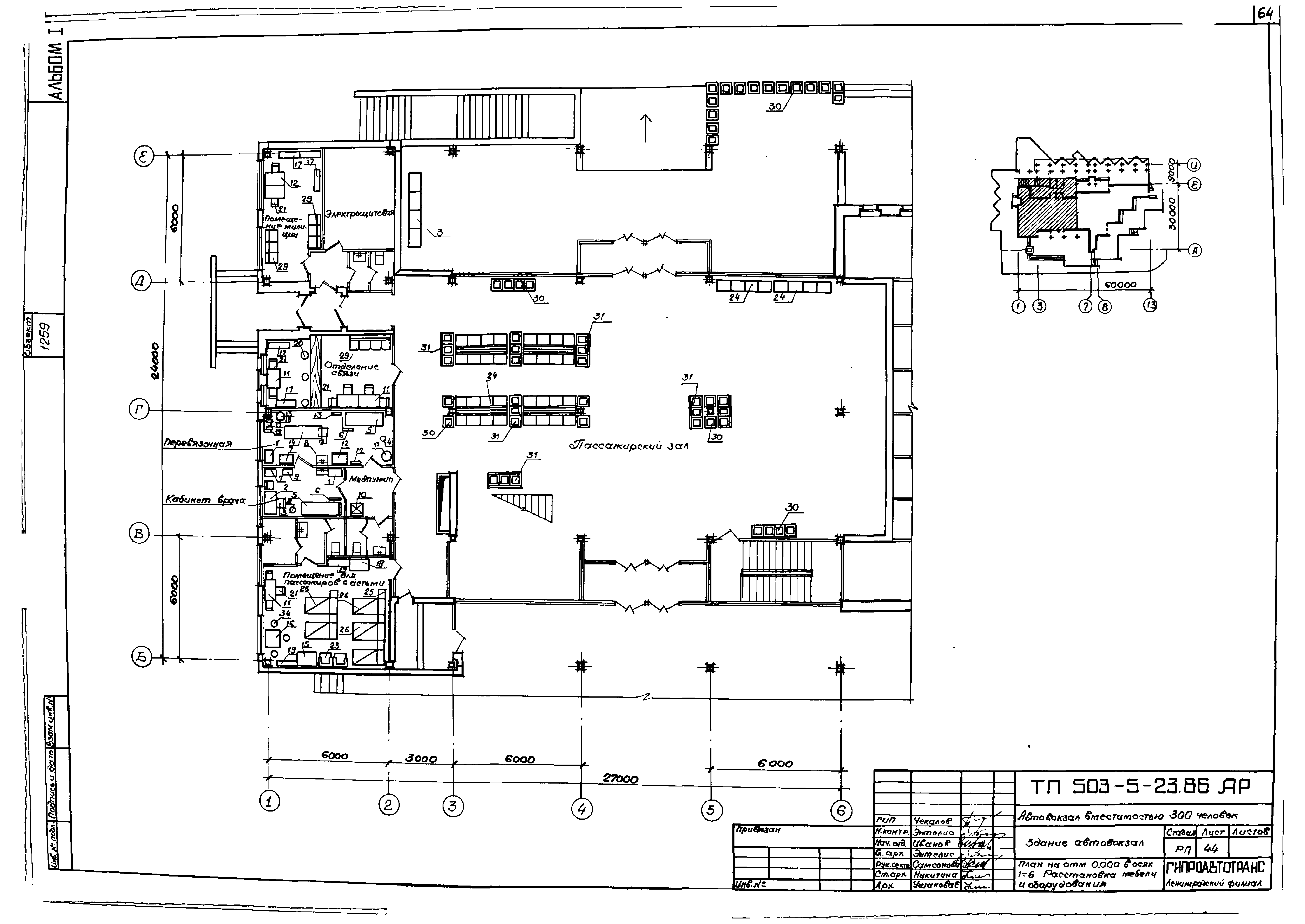
| Оглавление: | Содержание альбома Пояснительная записка Чертежи основного комплекта марки ГТ Общие данные Генеральный план и транспорт Чертежи основного комплекта марки АР Общие данные План на отм. - 3.600 План на отм. - 3.600 с нанесением отверстий и перемычек План на отм. 0.000 в осях 1 - 6 План на отм. 0.000 в осях 6 - 13 План на отм. 0.000 в осях 1 - 6 с нанесением отверстий и перемычек План на отм. 0.000 в осях 6 - 13 с нанесением отверстий и перемычек План на отм. 3.300 в осях 1 - 6 План на отм. 3.300 в осях 6 - 13 План на отм. 3.300 в осях 1 - 6 с нанесением отверстий и перемычек План на отм. 3.300 в осях 6 - 13 с нанесением отверстий и перемычек План на отм. 6.600. Ведомость перемычек Ведомость перемычек. Спецификации Разрез 1-1. Узел "А" Разрезы 2-2 и 3-3 Фасад 1 - 13 Фасады А - И; И - А Фасад 13 - 1 Фрагменты 1, 2, 3 Часы башенные План кровли Схема расположения крылец и благоустройство территории Крыльца К-1, К-2, К-4, К-5. Виды А, Б, В, Г Крыльца К-1 - К5 и благоустройство территории. Сечения Схема расположения элементов отделки колонн. Сечения. Узлы Крепление отделки колонн. Сечения Планы полов на отм. - 3.600; 0.000; 3.300; 6.600 Экспликация полов Пол в диспетчерской Барьер кассовых кабин Барьеры №№1, 2, 3 Подвесной потолок. Сечения. Узлы Окна О-1, О-2 Планы подвесного потолка на отм. 2.400; 2.700 и 6.100 с раскладкой панелей Планы подвесного потолка на отм. 2.400; 2.700 и 6.100. Сечения Подвесные потолки. Сечения. Узлы Реклама Фрагмент 4. Устройство поручня ограждения (Узел I) Расстановка мебели и оборудования. Кафе на 25 посадочных мест План на отм. - 3.600. Расстановка мебели и оборудования План на отм. 0.000 в осях 1 - 6. Расстановка мебели и оборудования План на отм. 0.000 в осях 6 - 13. Расстановка мебели и оборудования План на отм. 3.300 в осях 1 - 7. Расстановка мебели и оборудования План на отм. 3.300 в осях 6 - 13. Расстановка мебели и оборудования Чертежи основного комплекта марки ПОС Стройгенплан |
| Разработан: | Ленинградский филиал Гипроавтотранс |
| Утверждён: | 12.09.1986 Минавтотранс РСФСР (Russian Federation Minavtotrans 20) |
| Издан: | ЦИТП Госстроя СССР (CITP, Gosstroy (USSR) 1988 г. ) |
| Заменяет собой: |
|
| Нормативные ссылки: |




































































