Скачать Типовой проект 503-5-23.86 Альбом II. Конструкции железобетонные. Конструкции металлическиеДата актуализации: 01.01.2021
|
| Обозначение: | Типовой проект 503-5-23.86 |
| Обозначение англ: | 503-5-23.86 |
| Статус: | не определен законодательством |
| Название рус.: | Альбом II. Конструкции железобетонные. Конструкции металлические |
| Дата добавления в базу: | 01.09.2013 |
| Дата актуализации: | 01.01.2021 |
| Дата введения: | 12.09.1986 |
| Дата окончания срока действия: | 30.06.2003 |
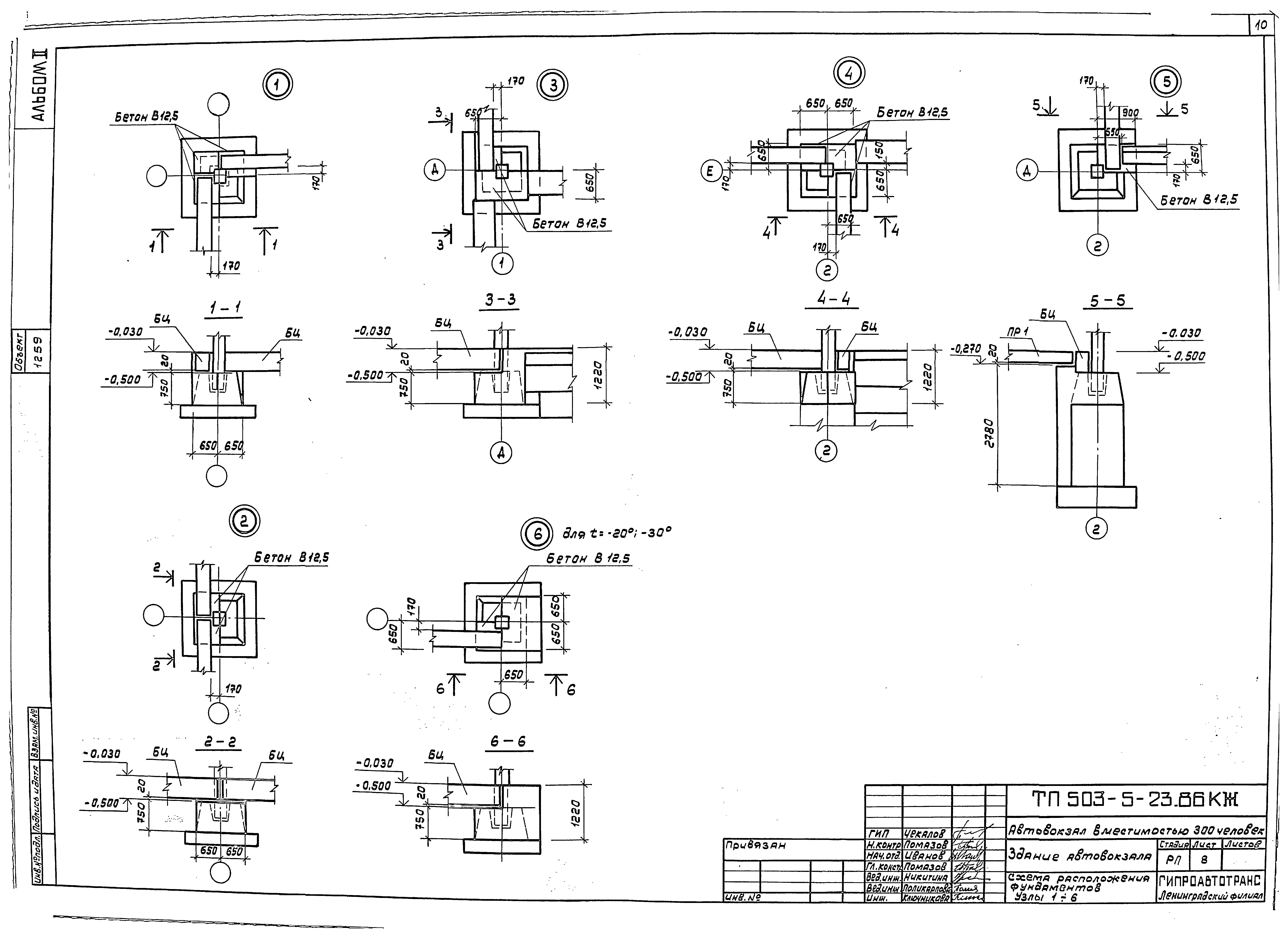
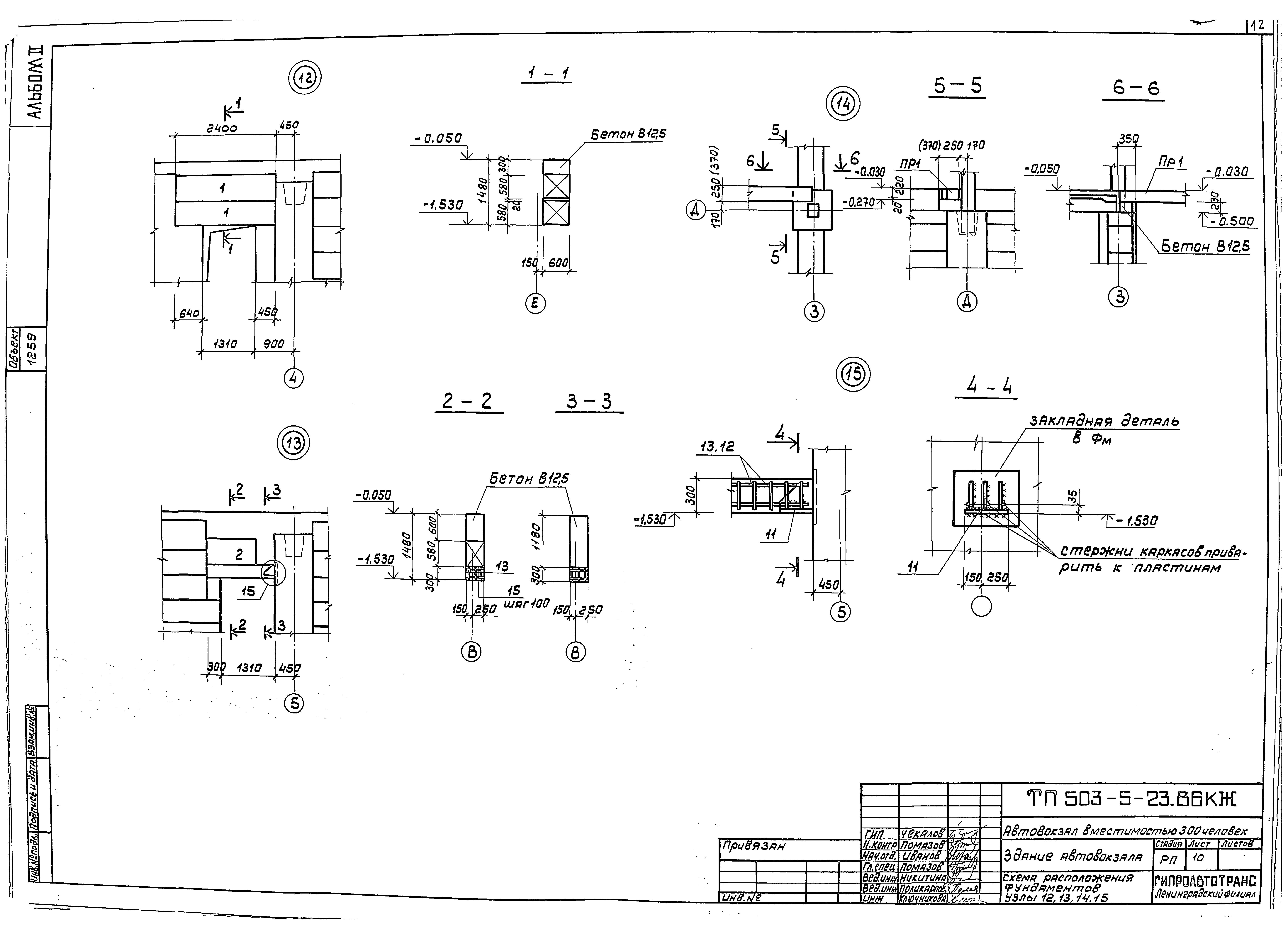
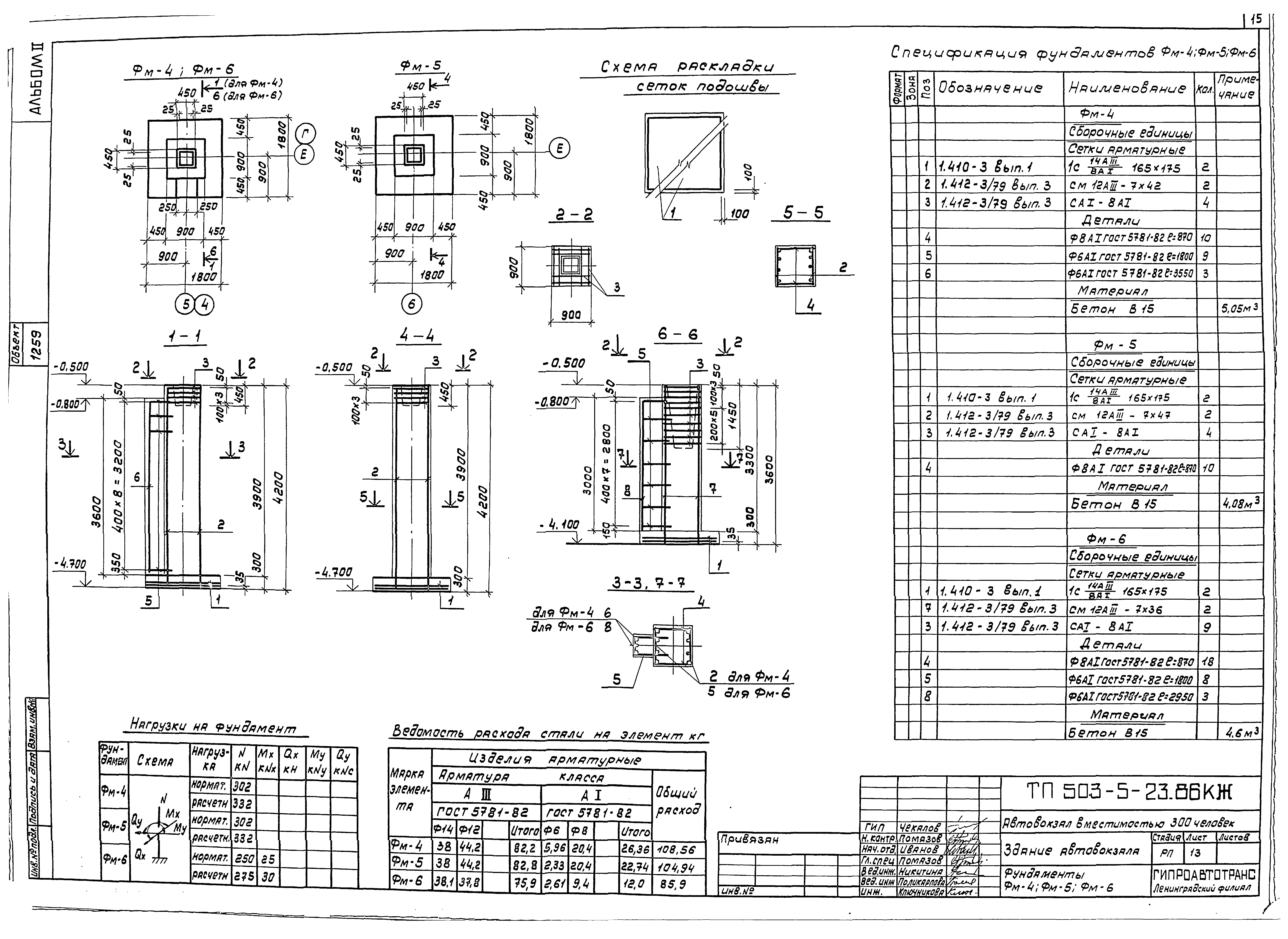
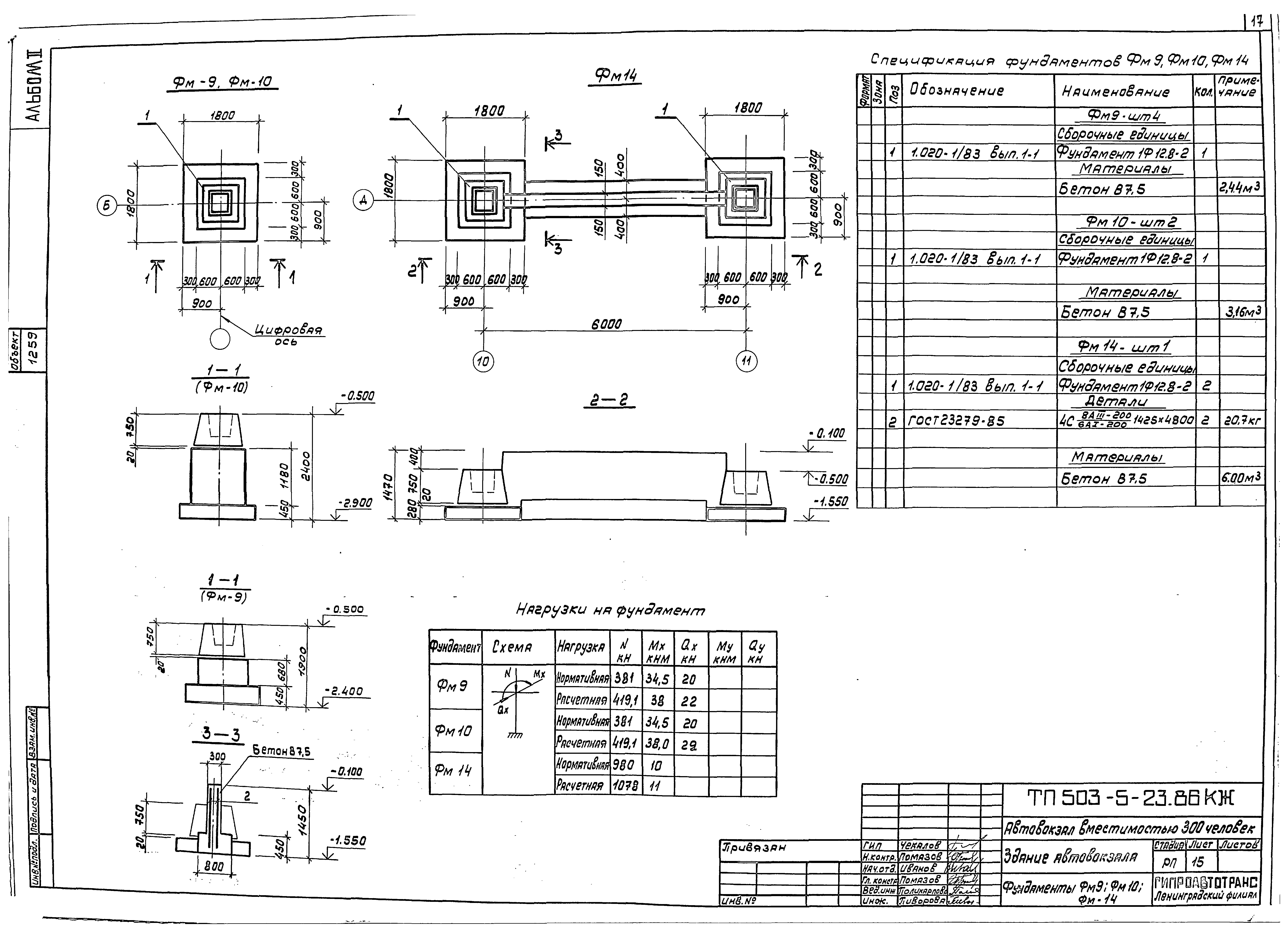
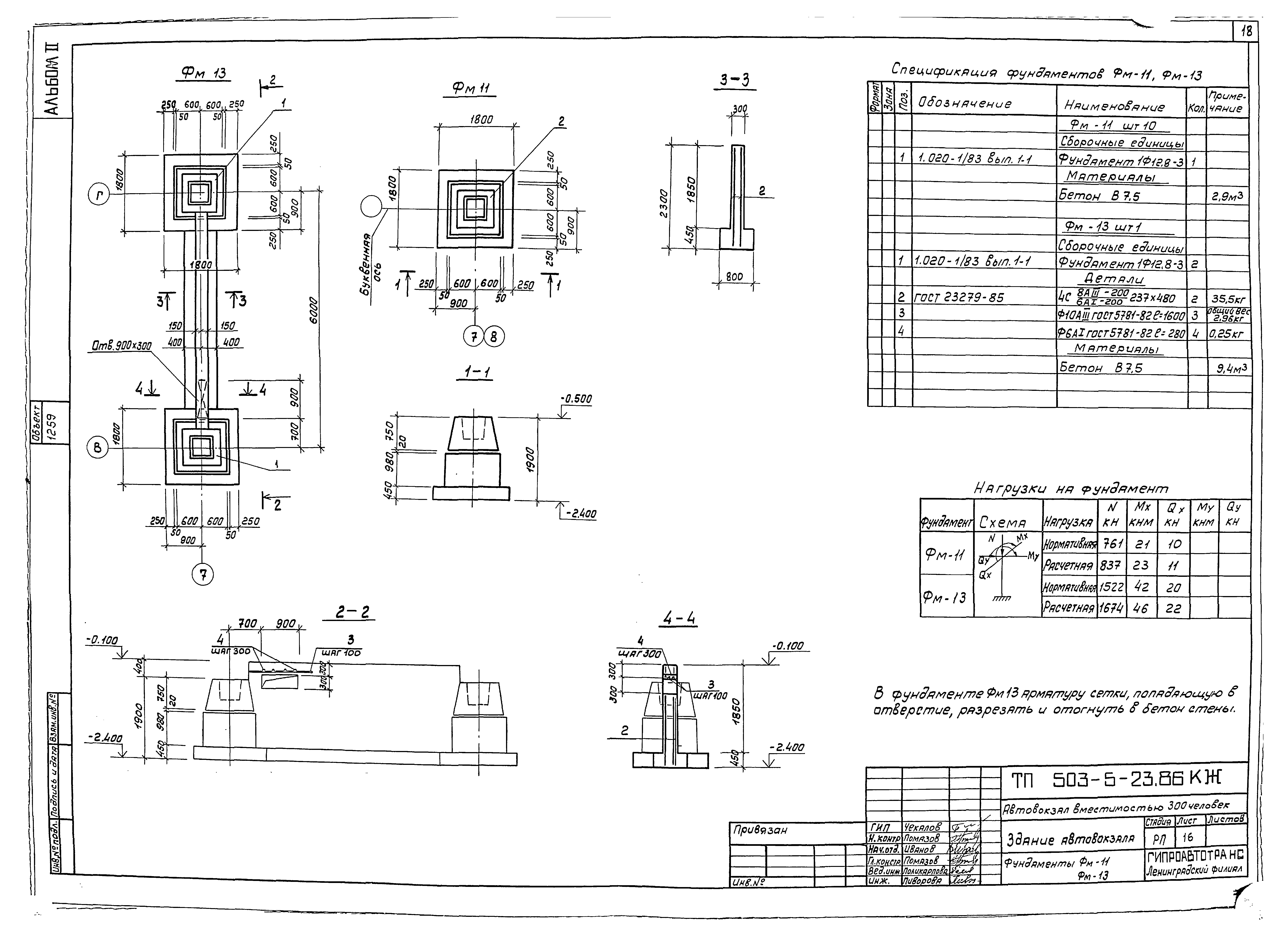
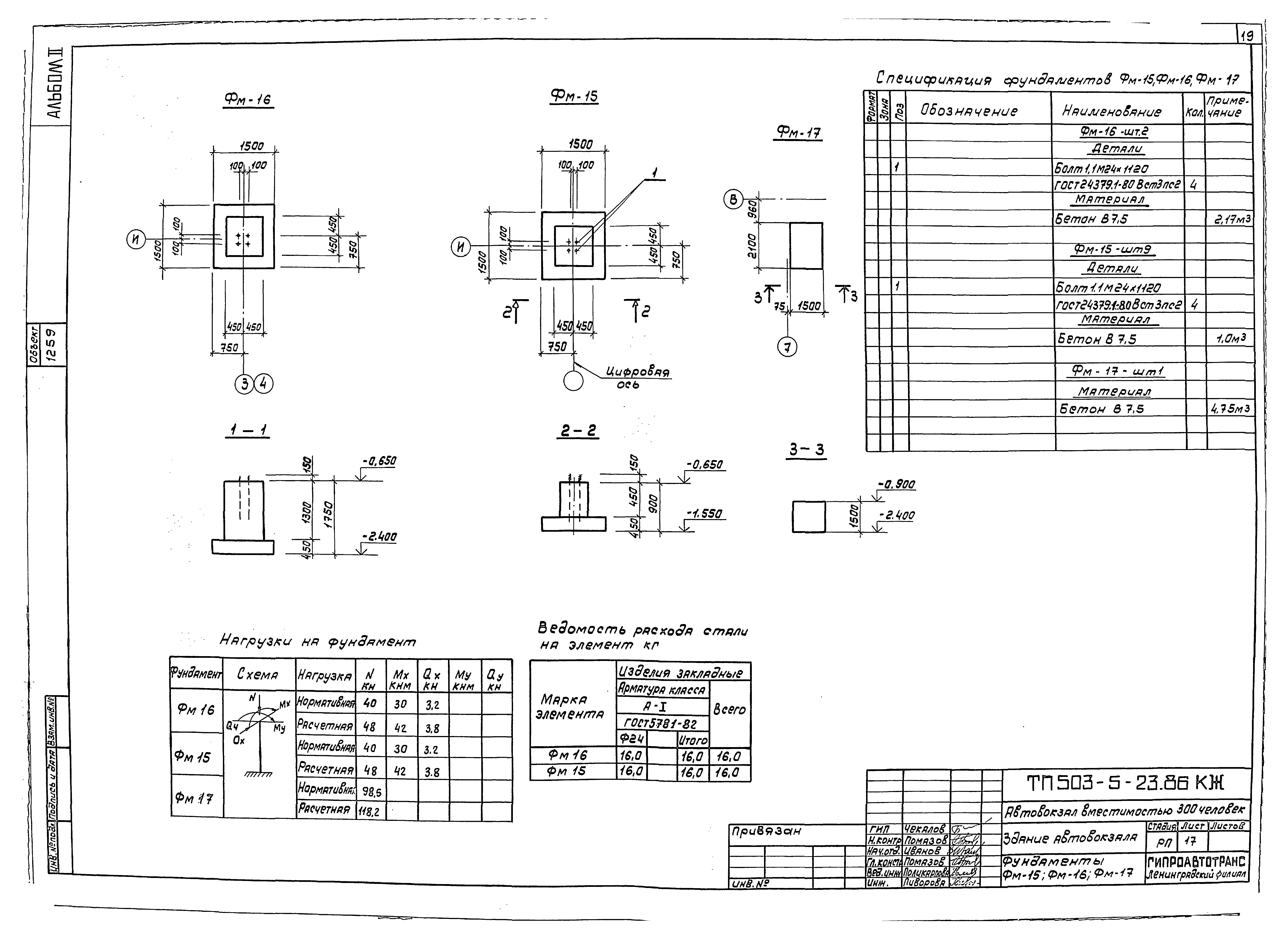
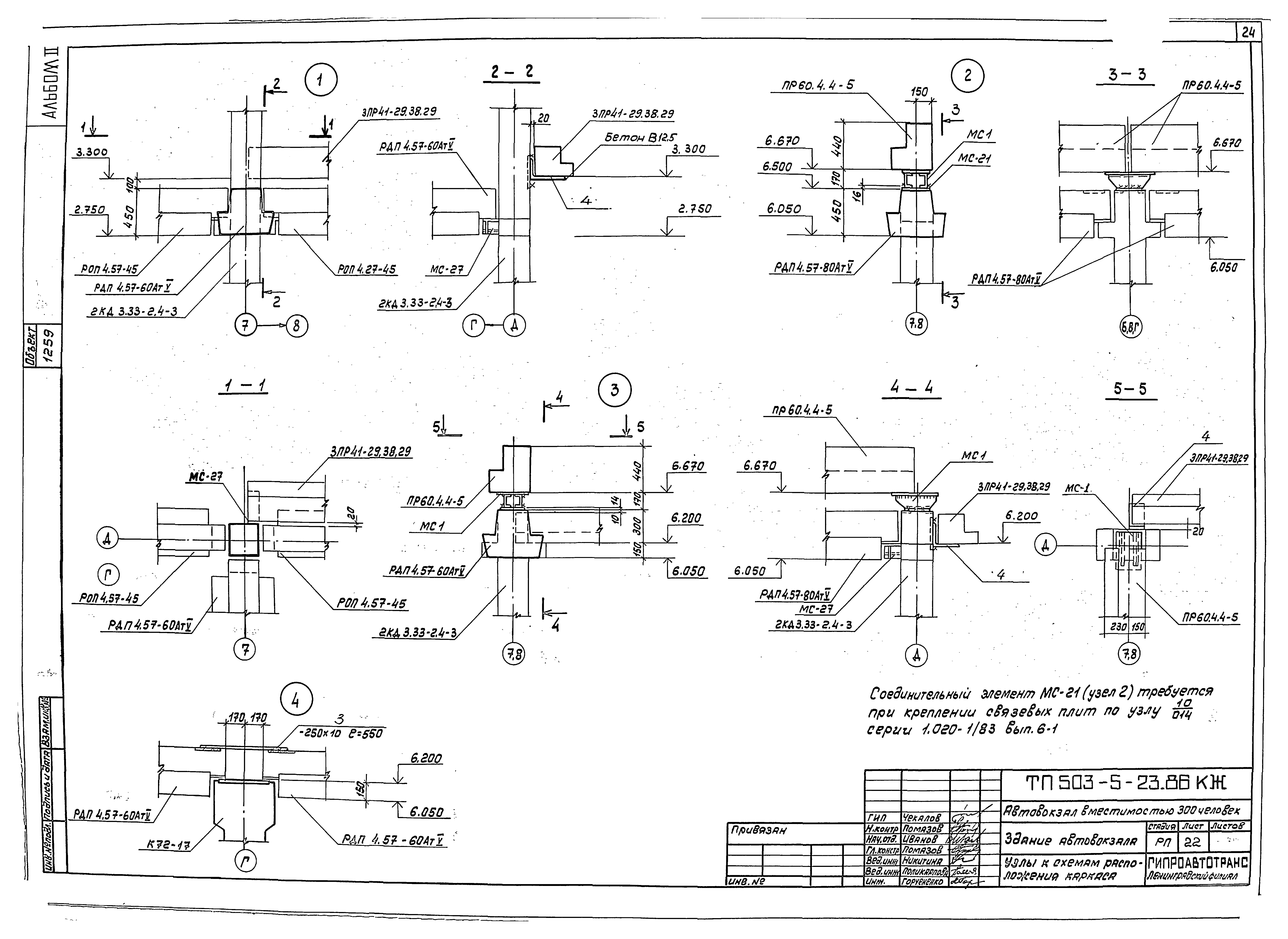
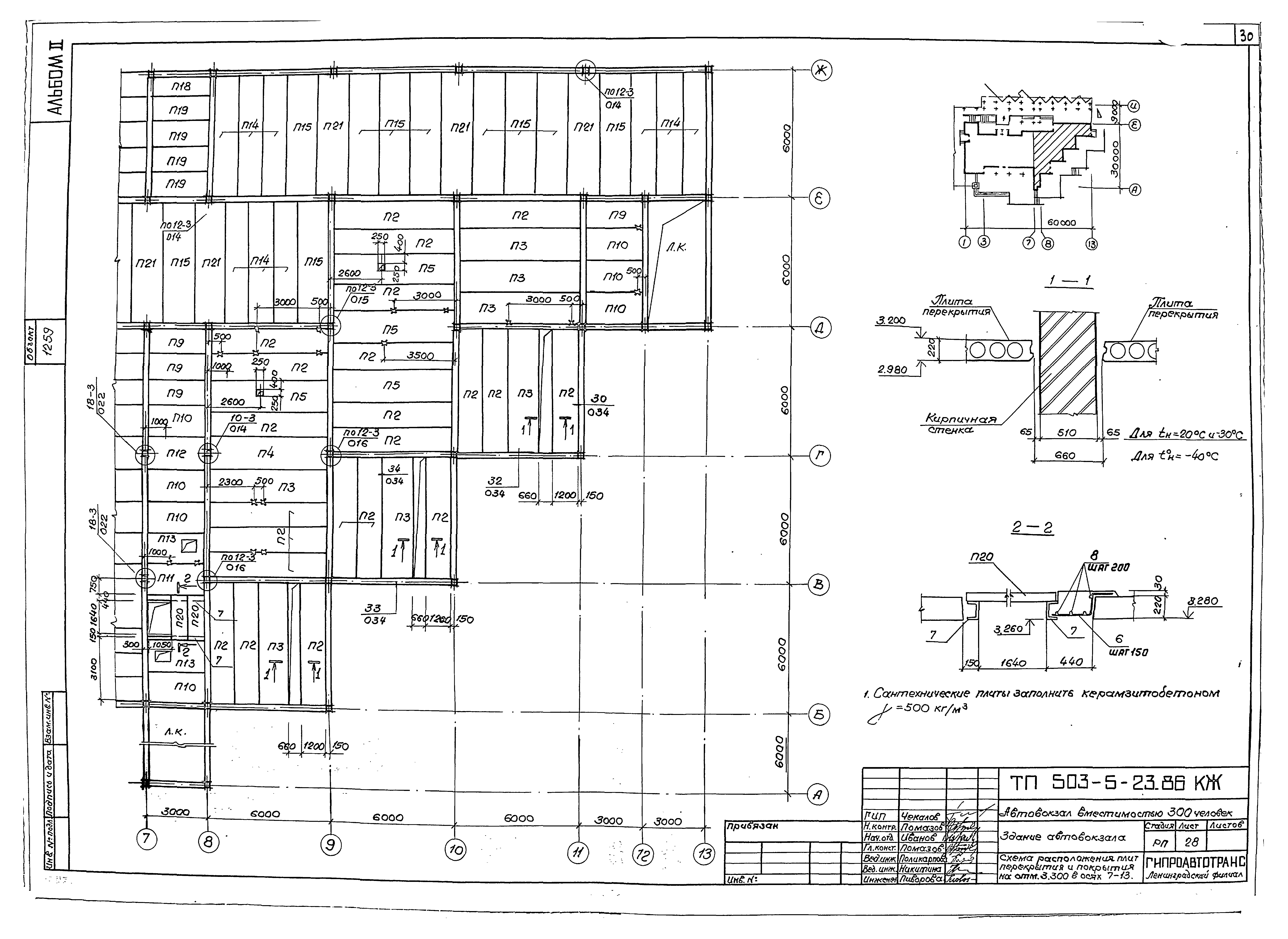
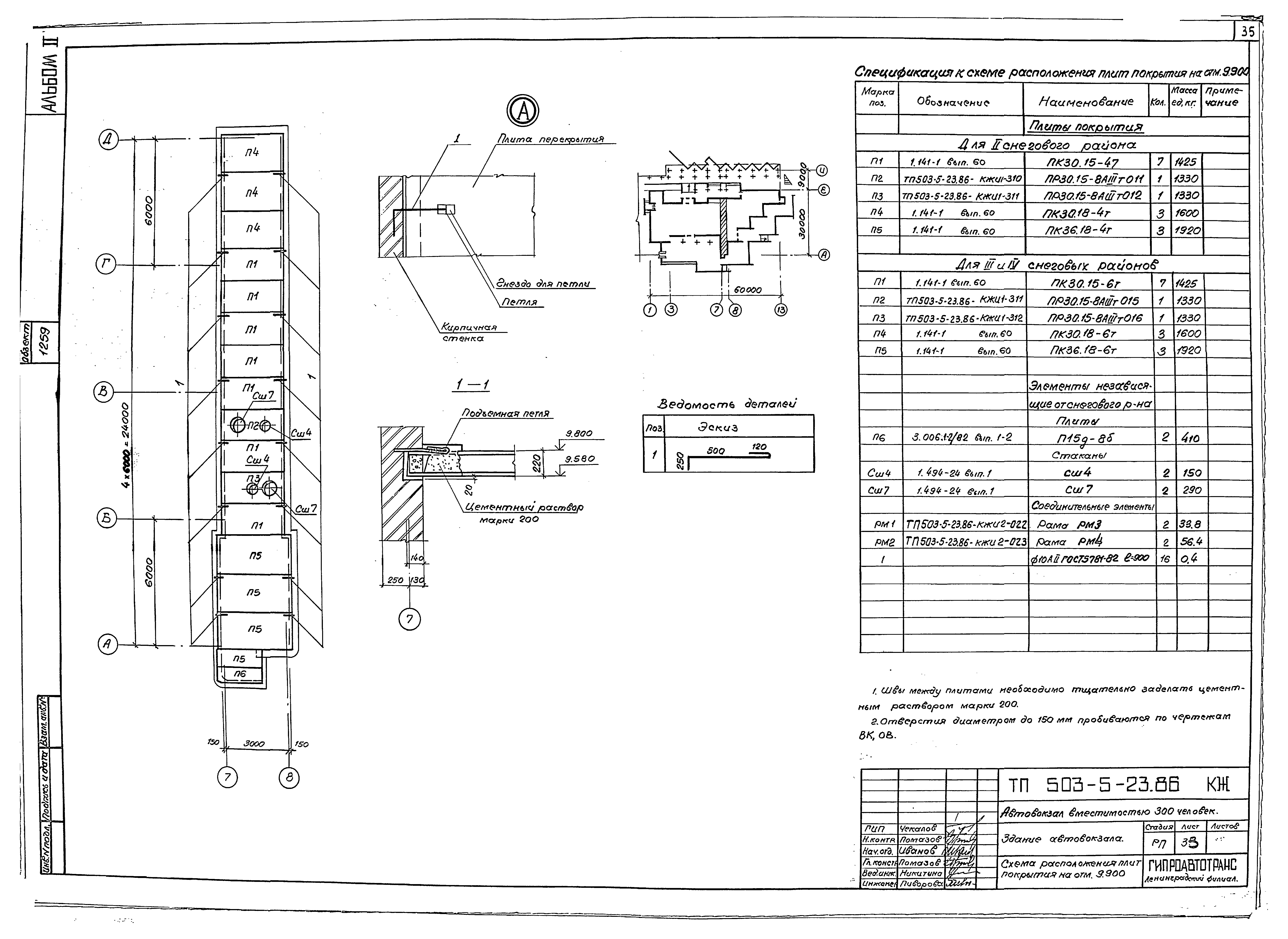
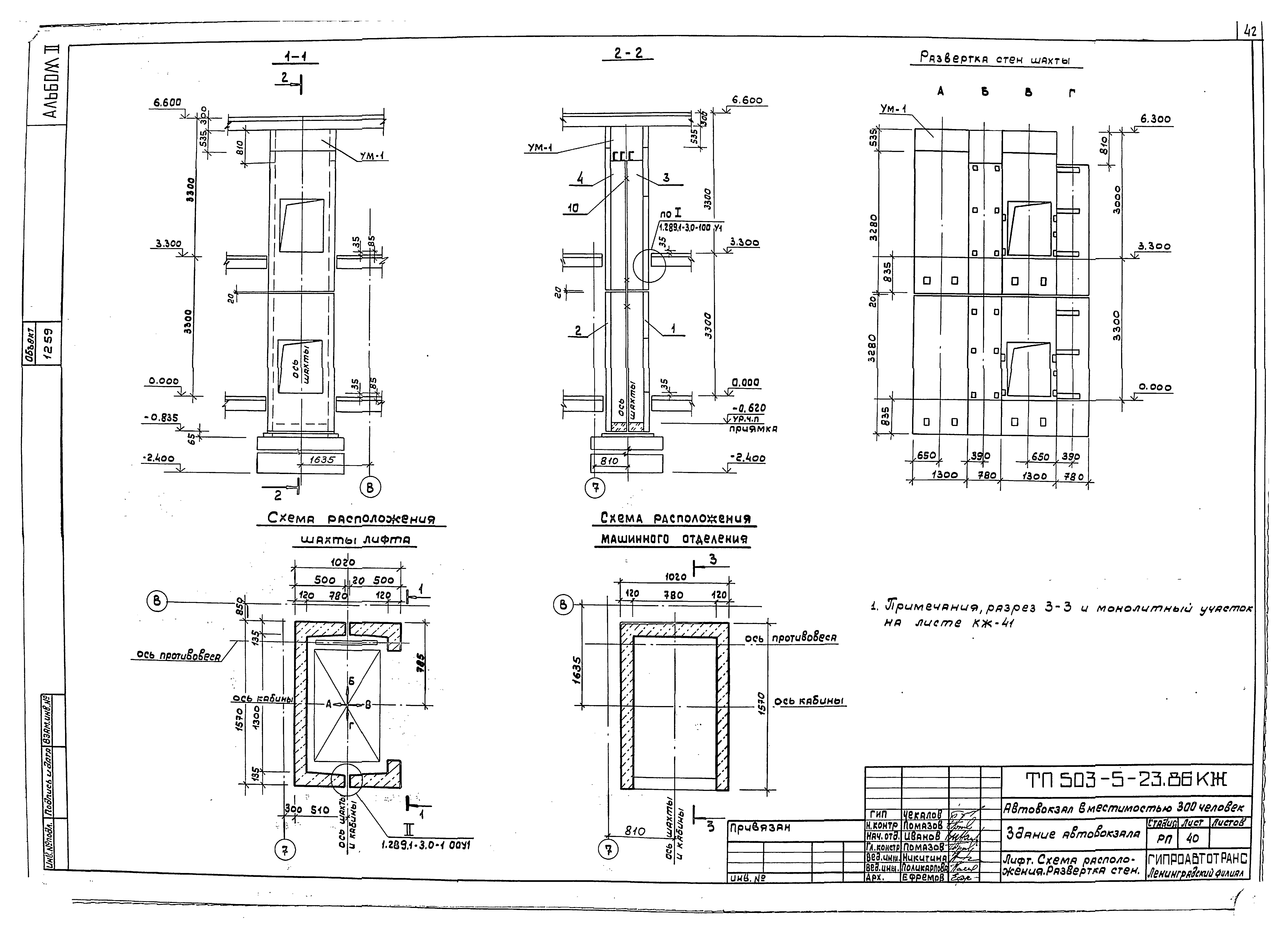
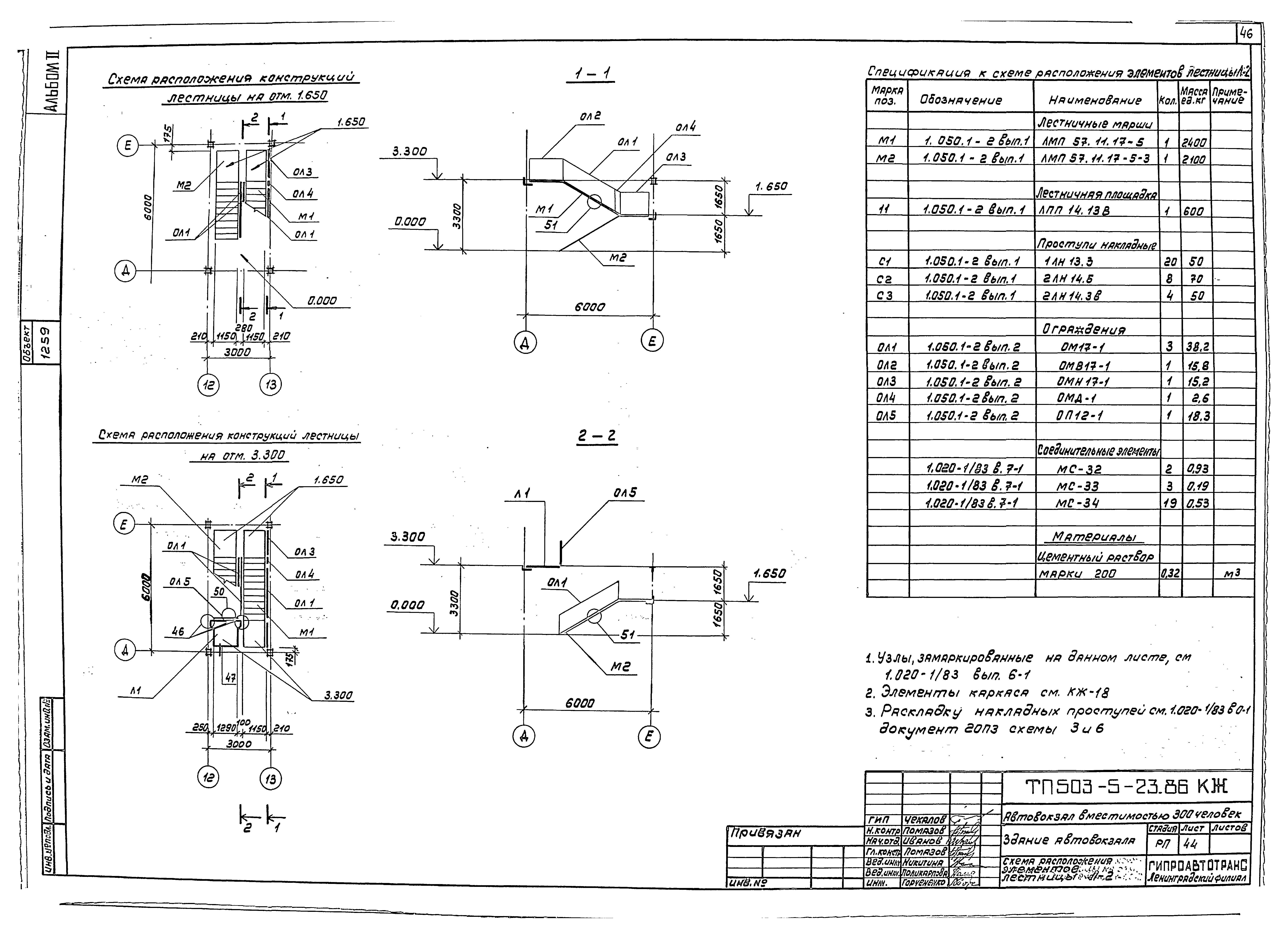
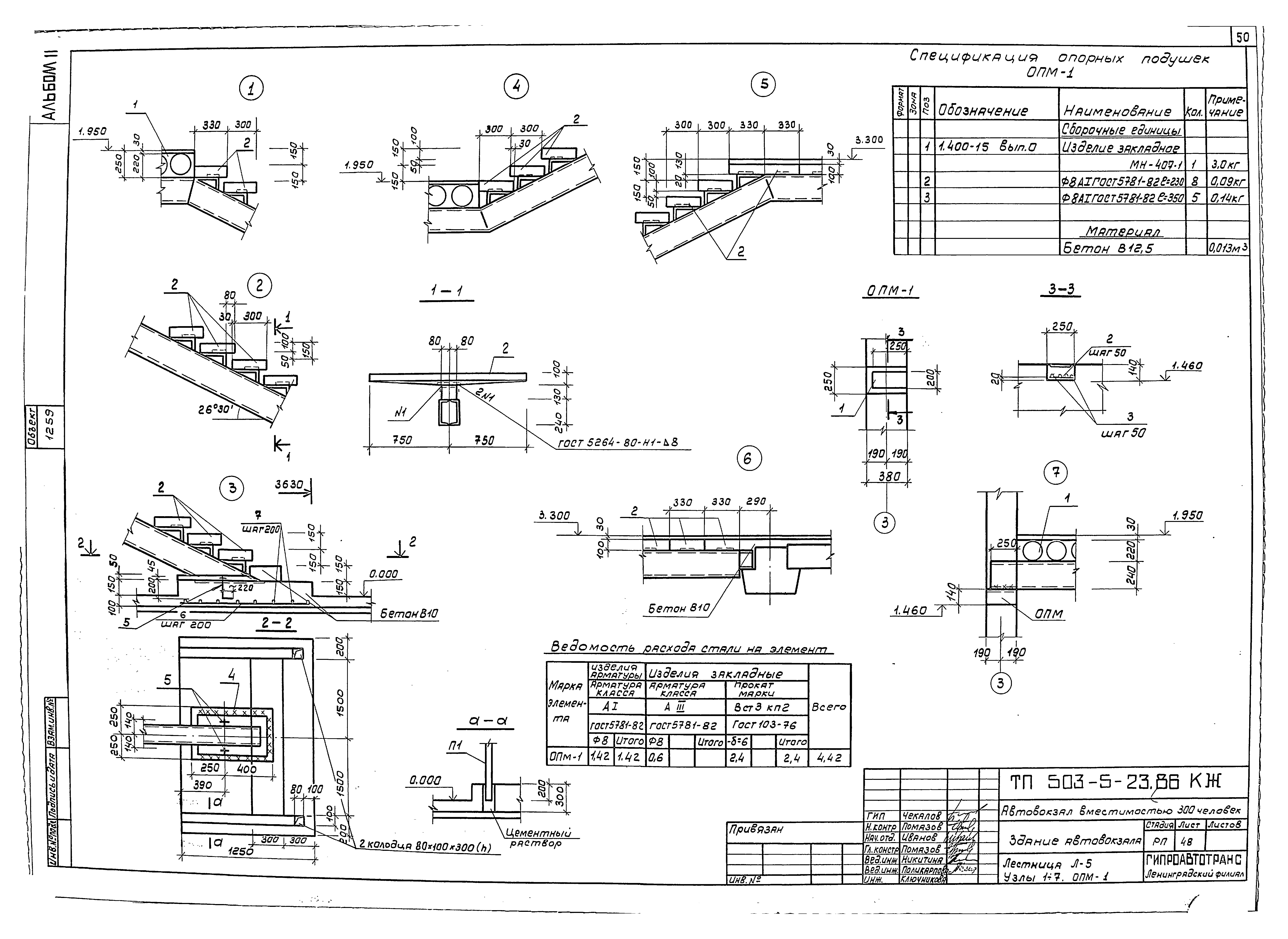
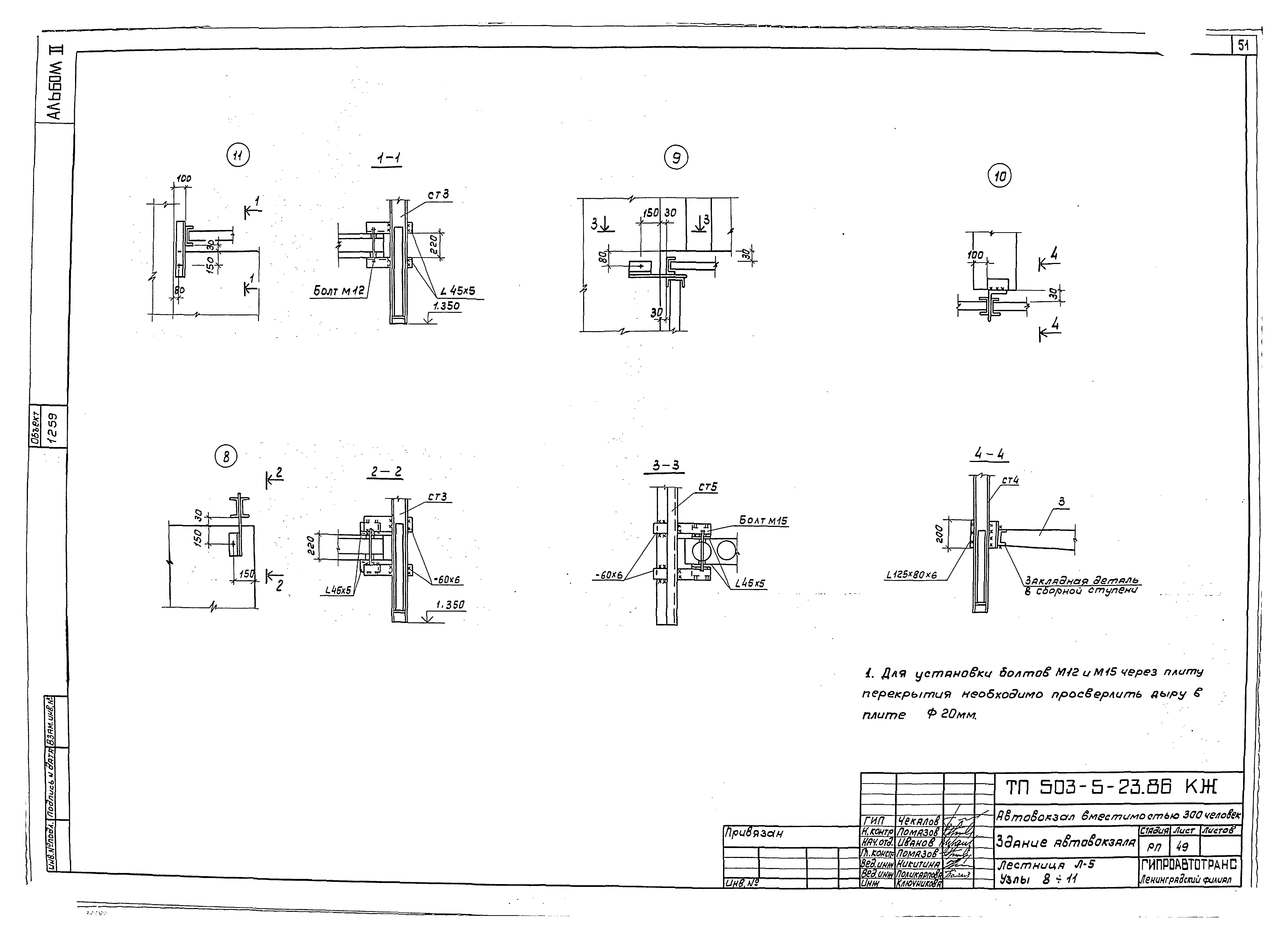
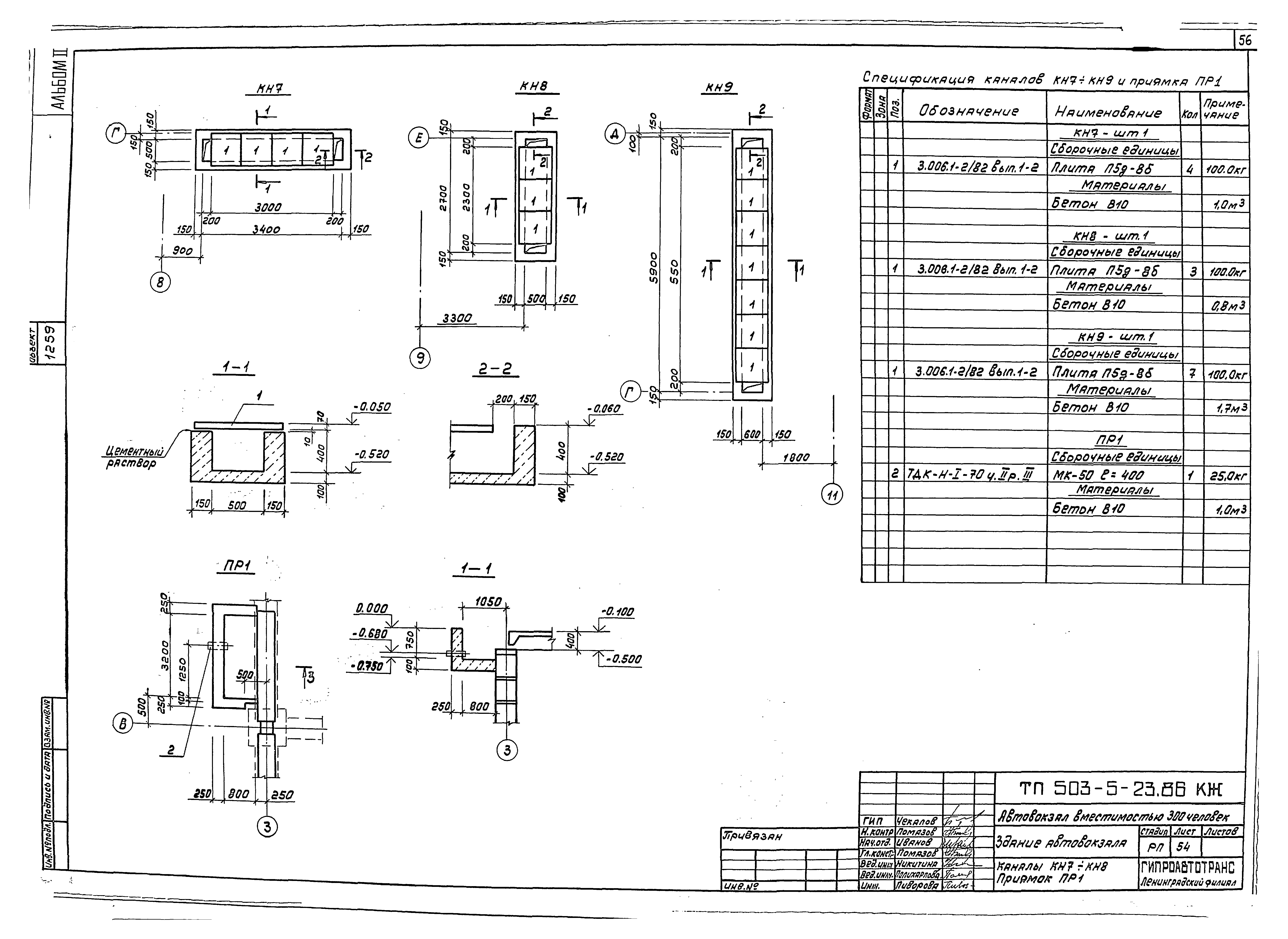
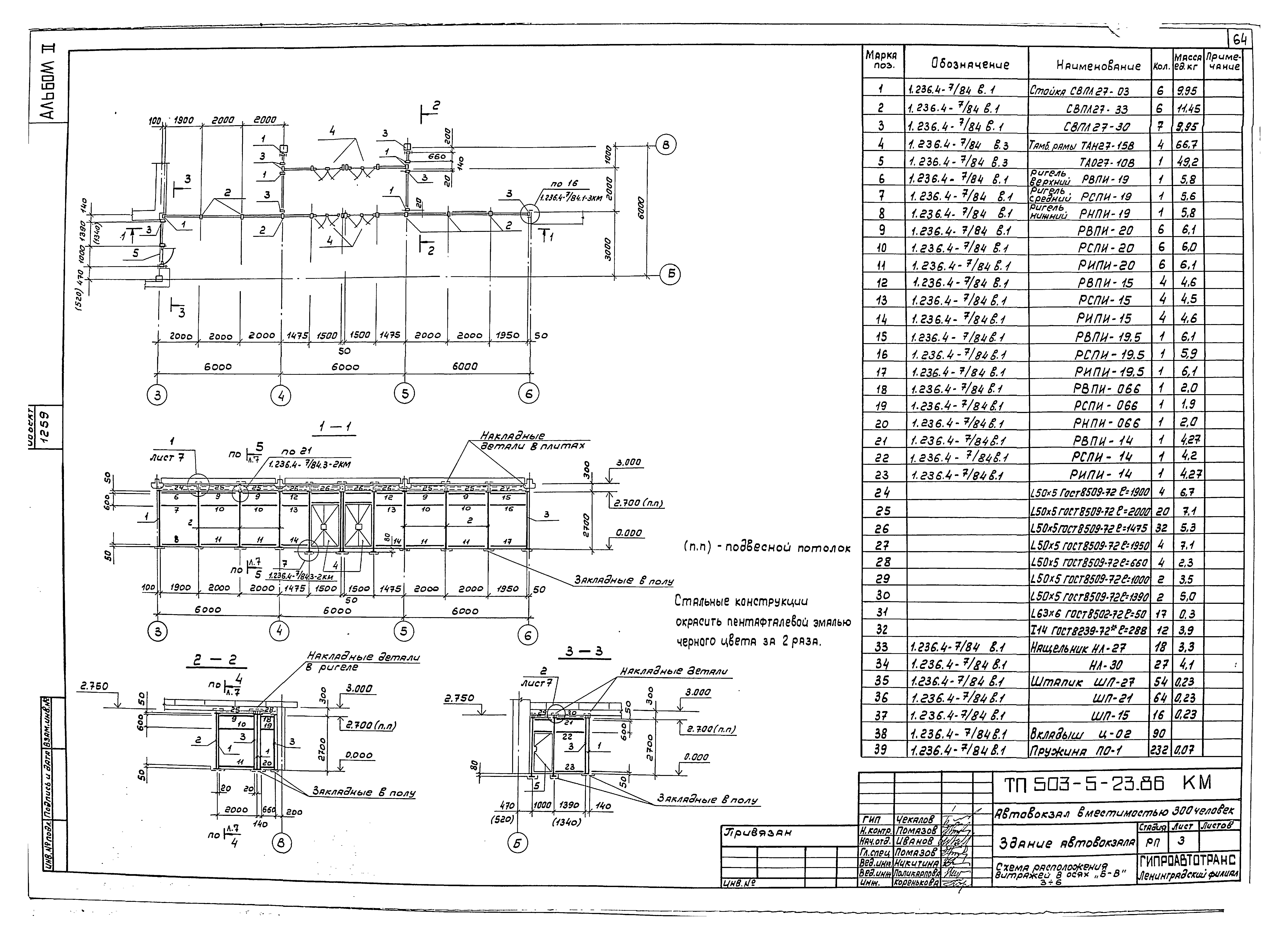
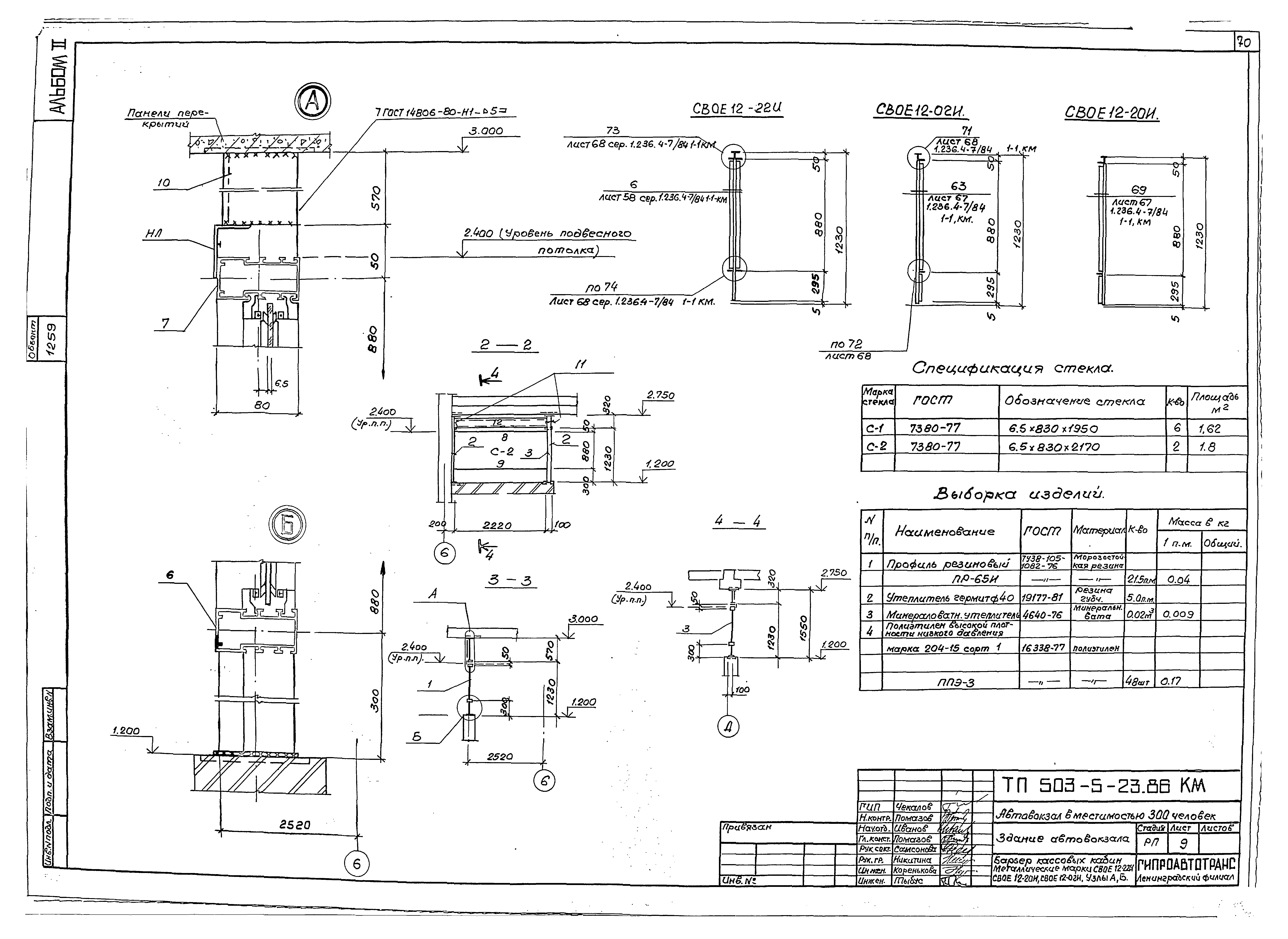
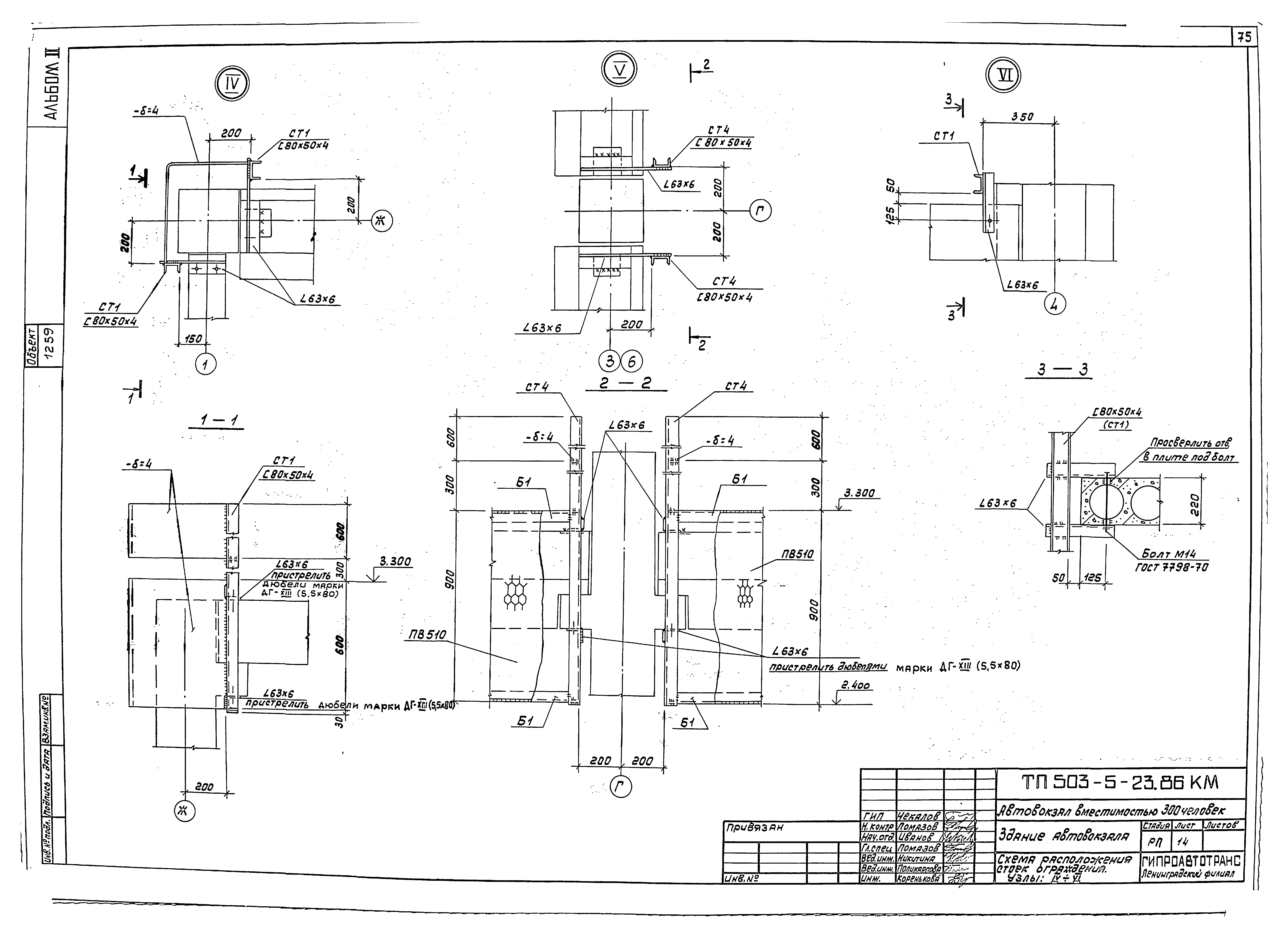
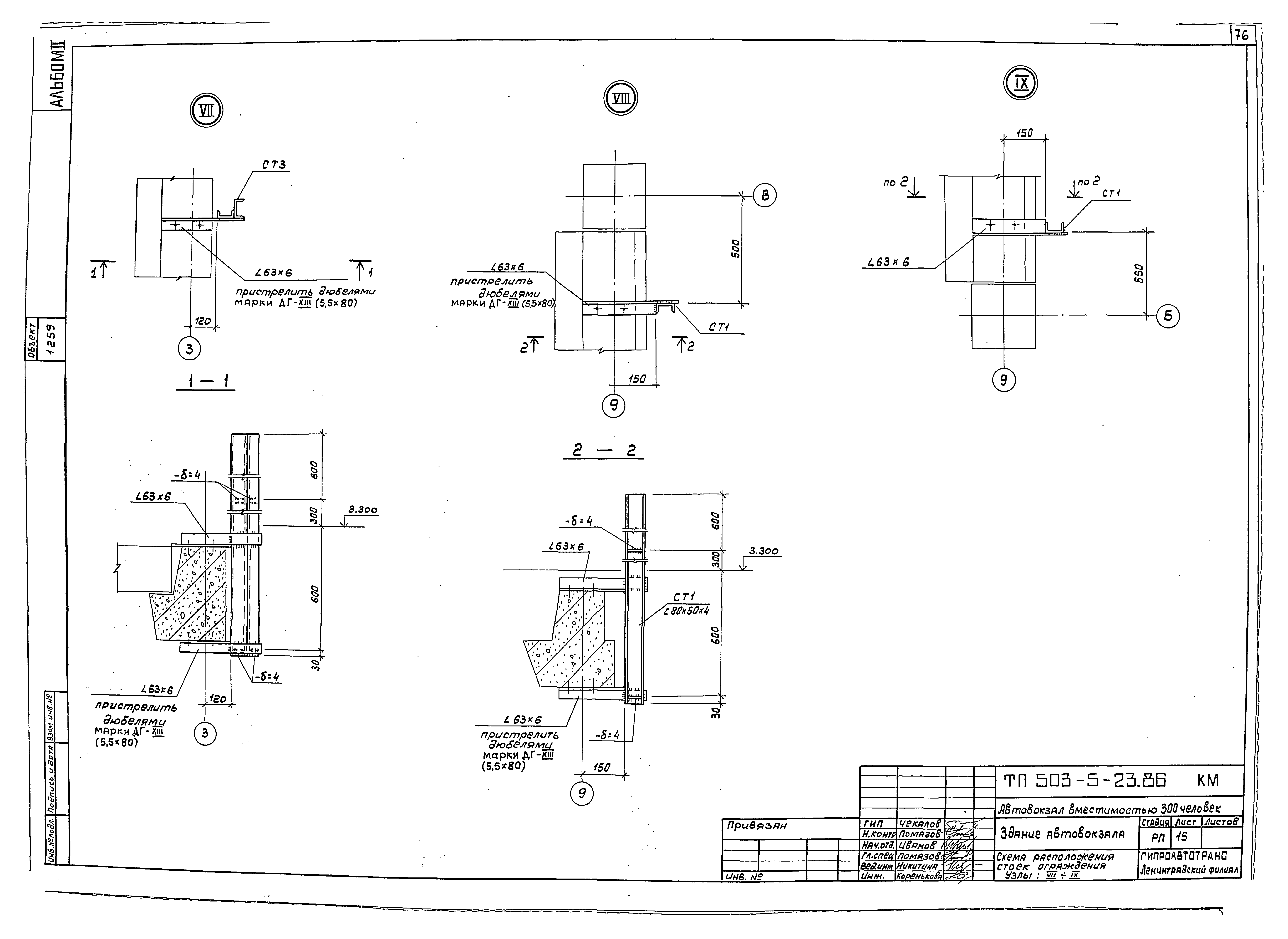
| Оглавление: | Содержание альбома Чертежи основного комплекта марки КЖ Общие данные Схема расположения фундаментов Схема расположения фундаментов. Сечения 1-1, 2-2, 4-4, 17-17 - 24-24 Схема расположения фундаментов. Сечения 3-3, 5-5 - 8-8, 25-25, 26-26, 27-27, 35-35 Схема расположения фундаментов. Сечения 9-9 - 16-16, 29-29 - 34-34 Схема расположения фундаментов. Узлы 1 - 6 Схема расположения фундаментов. Узлы 7 - 11 Схема расположения фундаментов. Узлы 12, 13, 14 ,15 Схема расположения фундаментов. Спецификация Фундаменты Фм-1, Фм-2, Фм-3 Фундаменты Фм-4, Фм-5, Фм-6 Фундаменты Фм-7, Фм-8, Фм-12 Фундаменты Фм-9, Фм-10, Фм-14 Фундаменты Фм-11, Фм-13 Фундаменты Фм-15, Фм-16, Фм-17 Схема расположения колонн и ригелей на отм. 3.300 Схема расположения ригелей на отм. 6.600 Разрезы 5-5, 7-7, 3-3 (ось Б) Разрезы 9-9, 10-10, 6-6, 3-3 Узлы к схемам расположения каркаса Спецификация к схемам расположения каркаса Монолитный железобетонный пояс Схема расположения плит перекрытия на отм. 0.000 Схема расположения плит перекрытия на отм. 0.000. Сечения 4-4 - 10-10 Схема расположения плит перекрытия на отм. 3.300 в осях 1 - 7 Схема расположения плит перекрытия и покрытия на отм. 3.300 в осях 7 - 13 Спецификация к схеме расположения плит перекрытия и покрытия на отм. 3.300 Схема расположения плит покрытия на отм. 6.600 в осях 1 - 7 Схема расположения плит покрытия и перекрытия на отм. 6.600 в осях 7 - 13 Спецификация к схемам расположения плит покрытия и перекрытия на отм. 6.600 Схема расположения плит покрытия на отм. 9.900 Схемы расположения стеновых панелей по осям Б, В, Г, Д, 1 Стеновые панели. Фрагменты 1 - 9 Схемы расположения стеновых панелей по осям Е9 - 11. Фрагменты 10 - 15 Спецификация к схемам расположения стеновых панелей для t = минус 20, минус 30 градусов Цельсия Спецификация к схемам расположения стеновых панелей для t = минус 40 градусов Цельсия Схемы расположения опорных столиков Лифт. Схема расположения. Развертка стен Лифт. Монолитный участок Схема расположения лестниц Схемы расположения элементов лестницы Л-1 Схема расположения элементов лестницы Л-2 Схемы расположения элементов лестниц Л-3, Л-4, Л-6 Лестницы Л-3, Л-4, Л-6. Узлы 1 - 11 Схемы расположения элементов лестницы Л-5 Лестница Л-5. Узлы 1 - 7. ОПМ-1 Лестница Л-5. Узлы 8 - 11 Схема расположения фундамента ФО1, каналов и приямков Каналы КН1 - КН4 Канал КН5. Приямки ПР2, ПР3 Канал КН6 Канал КН7 - КН8. Приямок ПР1 Схема расположения подпорных стенок крылец Схема расположения подпорных стенок крылец. Сечения 5-5 - 10-10 Схема расположения плит покрытия перрона Схема расположения экструзионного ограждения на перекрытиях Схема расположения ограждения крылец Чертежи основного комплекта марки КМ Общие данные Техническая спецификация стали Схема расположения витражей в осях "Б - В", 3 - 6 Схема заполнения витражей в осях Б, В, 3 - 6 Схема расположения витражей по оси "Д" Схема заполнения остекления по оси "Д" Сечения 4-4, 5-5. Узлы I, II. Схема расположения дверных проемов Барьер кассовых кабин. Схема расположения элементов витрины Барьер кассовых кабин. Металлические марки СВОЕ-12-22И; СВОЕ-12-20И, СВОЕ-12-02И. Узлы А, Б Схема расположения металлоконструкций навеса перрона Схема расположения металлоконструкций навеса перрона. Узлы I - V Схема расположения стоек ограждения Схема расположения стоек ограждения. Узлы I - III Схема расположения стоек ограждения. Узлы IV - VI Схема расположения стоек ограждения. Узлы VII - IX Лестницы Л-3, Л-5, Л-6 Схема расположения стремянок С1 и С2 |
| Разработан: | Ленинградский филиал Гипроавтотранс |
| Утверждён: | 12.09.1986 Минавтотранс РСФСР (Russian Federation Minavtotrans 20) |
| Издан: | ЦИТП Госстроя СССР (CITP, Gosstroy (USSR) 1988 г. ) |
| Заменяет собой: |
|
| Нормативные ссылки: |













































































