Скачать Типовой проект 503-6-3 Альбом II. Здание станции. Технологическая, архитектурно-строительная, санитарно-техническая, электротехническая части и слаботочные устройства (стены кирпичные)Дата актуализации: 01.01.2021
|
| Обозначение: | Типовой проект 503-6-3 |
| Обозначение англ: | 503-6-3 |
| Статус: | не определен законодательством |
| Название рус.: | Альбом II. Здание станции. Технологическая, архитектурно-строительная, санитарно-техническая, электротехническая части и слаботочные устройства (стены кирпичные) |
| Дата добавления в базу: | 01.09.2013 |
| Дата актуализации: | 01.01.2021 |
| Дата введения: | 18.03.1981 |
| Дата окончания срока действия: | 30.06.2003 |
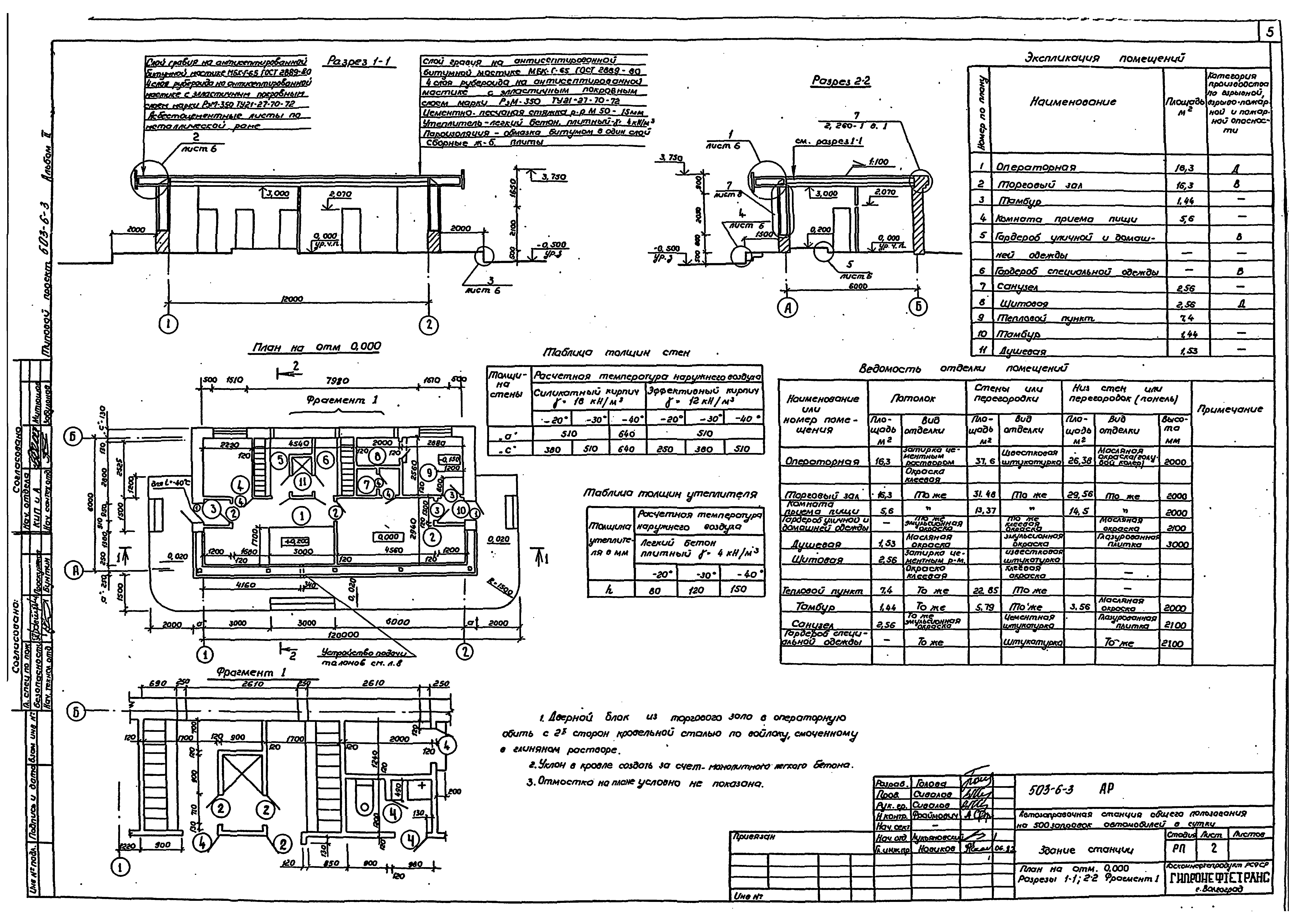
| Оглавление: | Содержание альбома Чертежи основного комплекта марки АР Общие данные План на отм. 0.000. Разрезы 1-1 - 2-2. Фрагмент 1 Фасады. Схема расположения проемов под стеклоблоки по оси "Б" План кровли. План полов. Схема расположения перемычек и отверстий в перегородках Ведомости и спецификации План разбивки закладных деталей МН1 - МН3. Узлы 1 - 6 Схемы расположения плит покрытия. План фундаментов. Узел 8 Узлы. Устройство подачи талонов Чертежи основного комплекта марки КМ Общие данные Схема расположения элементов каркаса. Узлы 1 - 4. Разрезы 1-1 - 3-3 Схемы расположения элементов витража. План витража. Сечения (вариант с двойным остеклением) Схемы расположения элементов витража. План витража. Сечения (вариант с тройным остеклением) Витраж. Узлы 5 - 14 (вариант с двойным остеклением) Витраж. Узлы 15 - 25 (вариант с тройным остеклением) Б1, Б2, СК1, МК1, МК1а, МК2, МК2а, МК2б. Разрезы 1-1 - 5-5 Витраж. Ригели Р1 - Р16. Стойки СТ-1 - СТ-9 (вариант с двойным остеклением) Витраж. Спецификации (вариант с двойным остеклением) Витраж. Ригели Р1 - Р19. Стойки СТ-1 - СТ-8 (вариант с тройным остеклением) Витраж. Спецификации (вариант с тройным остеклением) Чертежи основного комплекта марки Т План размещения оборудования. Общие данные Чертежи основного комплекта марки ВК Общие данные Водопровод и канализация. План. Схемы систем В1, К1 Водопровод и канализация. Спецификация Чертежи основного комплекта марки ОВ Общие данные Вентиляция. План. Схемы систем В1, ВЕ1…ВЕ3 Отопление. План. Схемы отопления и обогрева витража. Узел управления (вариант I) Отопление. План. Схемы отопления обвязки ручного насоса и обогрева витража (вариант II) Чертежи основного комплекта марки Э Общие данные Принципиальная однолинейная схема распределительной сети Силовое электрооборудование. Электроосвещение. Заземление. Планы Принципиальная схема управления Схема подключений и управления Схемы подключений Громкоговорящая связь, телефонизация и радиофикация |
| Разработан: | Гипронефтетранс |
| Утверждён: | 26.02.1981 Госкомнефтепродукт РСФСР (Russian Federation Goskomnefteprodukt 63) |
| Издан: | ЦИТП Госстроя СССР (CITP, Gosstroy (USSR) 1986 г. ) |
















































