Скачать Типовой проект 704-1-172.84 Альбом III. Основание и фундаменты. Крепежные узлыДата актуализации: 01.01.2021
|
| Обозначение: | Типовой проект 704-1-172.84 |
| Обозначение англ: | 704-1-172.84 |
| Статус: | действует |
| Название рус.: | Альбом III. Основание и фундаменты. Крепежные узлы |
| Дата добавления в базу: | 01.09.2013 |
| Дата актуализации: | 01.01.2021 |
| Дата введения: | 23.05.1983 |
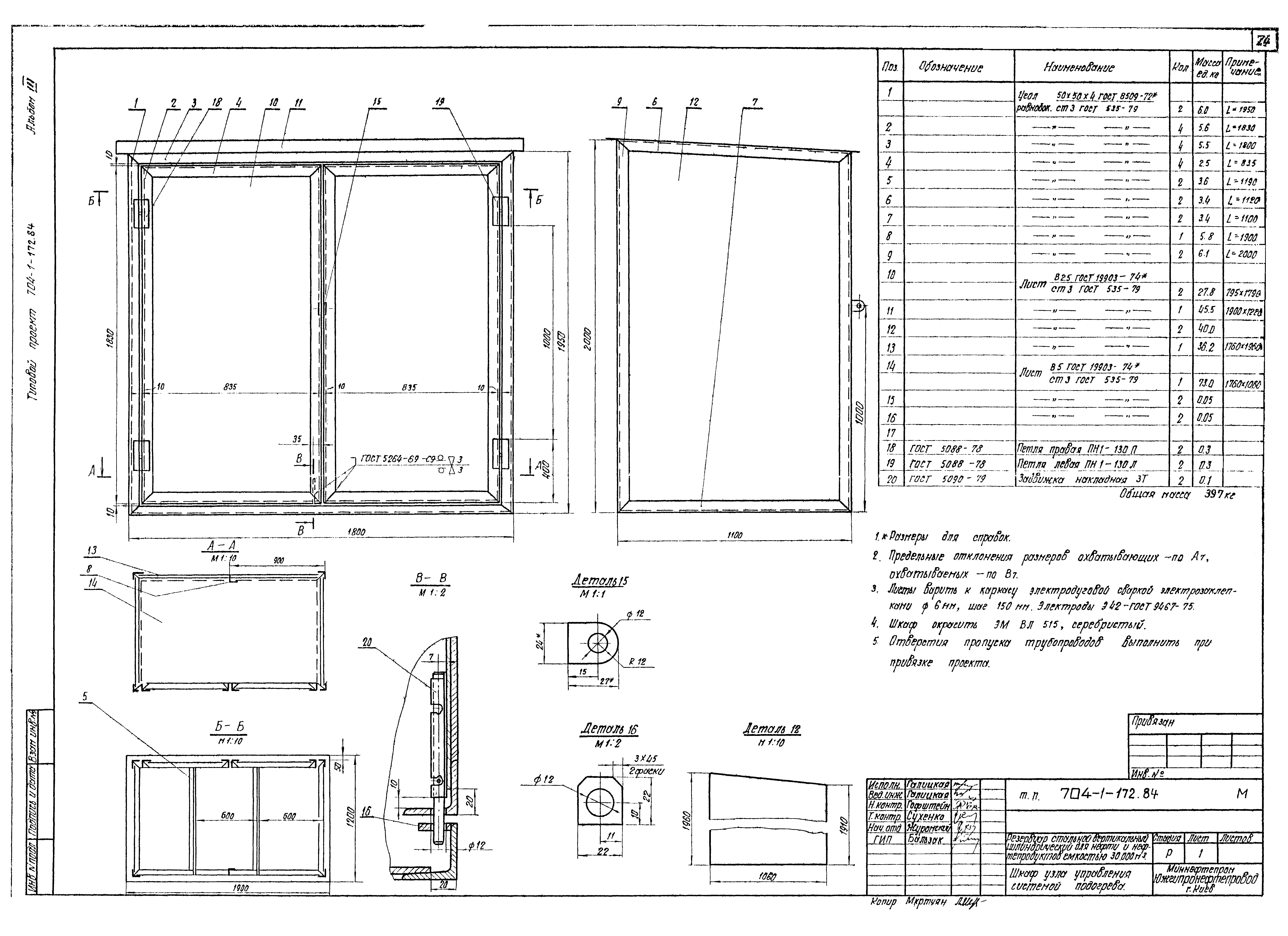
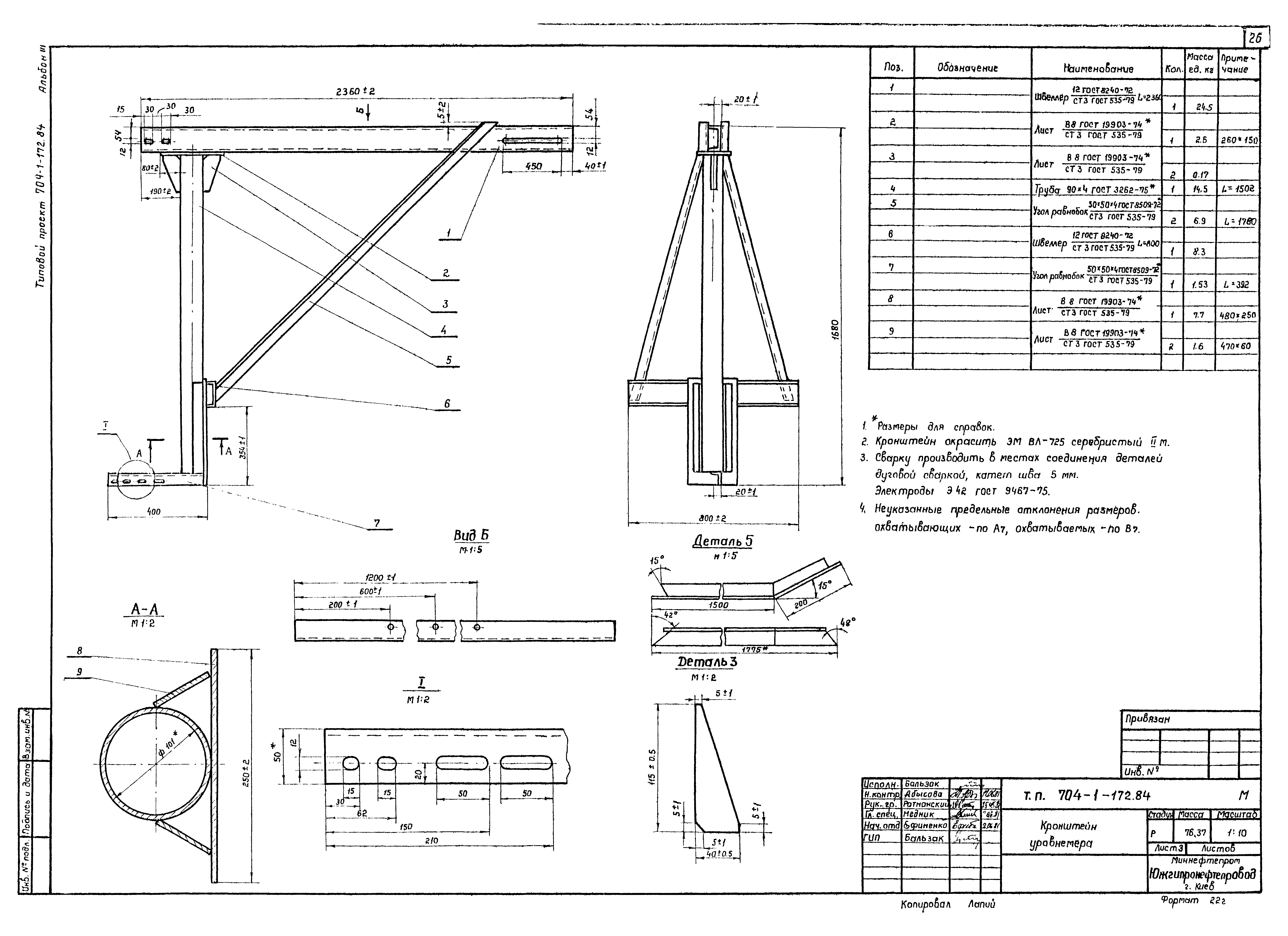
| Оглавление: | Содержание Конструкции железобетонные Общие данные Пояснительная записка Расчетный лист Схемы оснований №№1 - 6 Схемы оснований №№7 - 11 Общий вид основания. Основная таблица привязки оснований Площадка и фундамент под шахтную лестницу Ф-1 Тип подушек, отмосток и покрытия площадок Узел А. Типы А.1, А.2, А.3 Узел А. Типы А.4, А.5, А.6 Узел Б. Типы Б-1, Б-2 Фундаментное кольцо КФ-1 Фундаментное кольцо КФ-2. Плита ПФ-1 Контрольный колодец КК-1 Плиты П-1, П-2 Фундамент под шкаф узла управления системой подогрева Крепежные узлы Шкаф узла управления системой подогрева Кронштейны крепления трубопроводов Кронштейн уровнемера Кронштейн установки уровнемера Люк уровнемера Молниеприемник |
| Разработан: | Южгипронефтепровод Миннефтепрома СССР |
| Утверждён: | 23.05.1983 Миннефтепром (Minnefteprom ) |





























