Скачать Типовой проект 707-2-21с.85 Альбом III. Нестандартизированное оборудование. Системы объемоуказанияДата актуализации: 01.01.2021
|
| Обозначение: | Типовой проект 707-2-21с.85 |
| Обозначение англ: | 707-2-21с.85 |
| Статус: | действует |
| Название рус.: | Альбом III. Нестандартизированное оборудование. Системы объемоуказания |
| Дата добавления в базу: | 01.10.2014 |
| Дата актуализации: | 01.01.2021 |
| Дата введения: | 17.05.1984 |
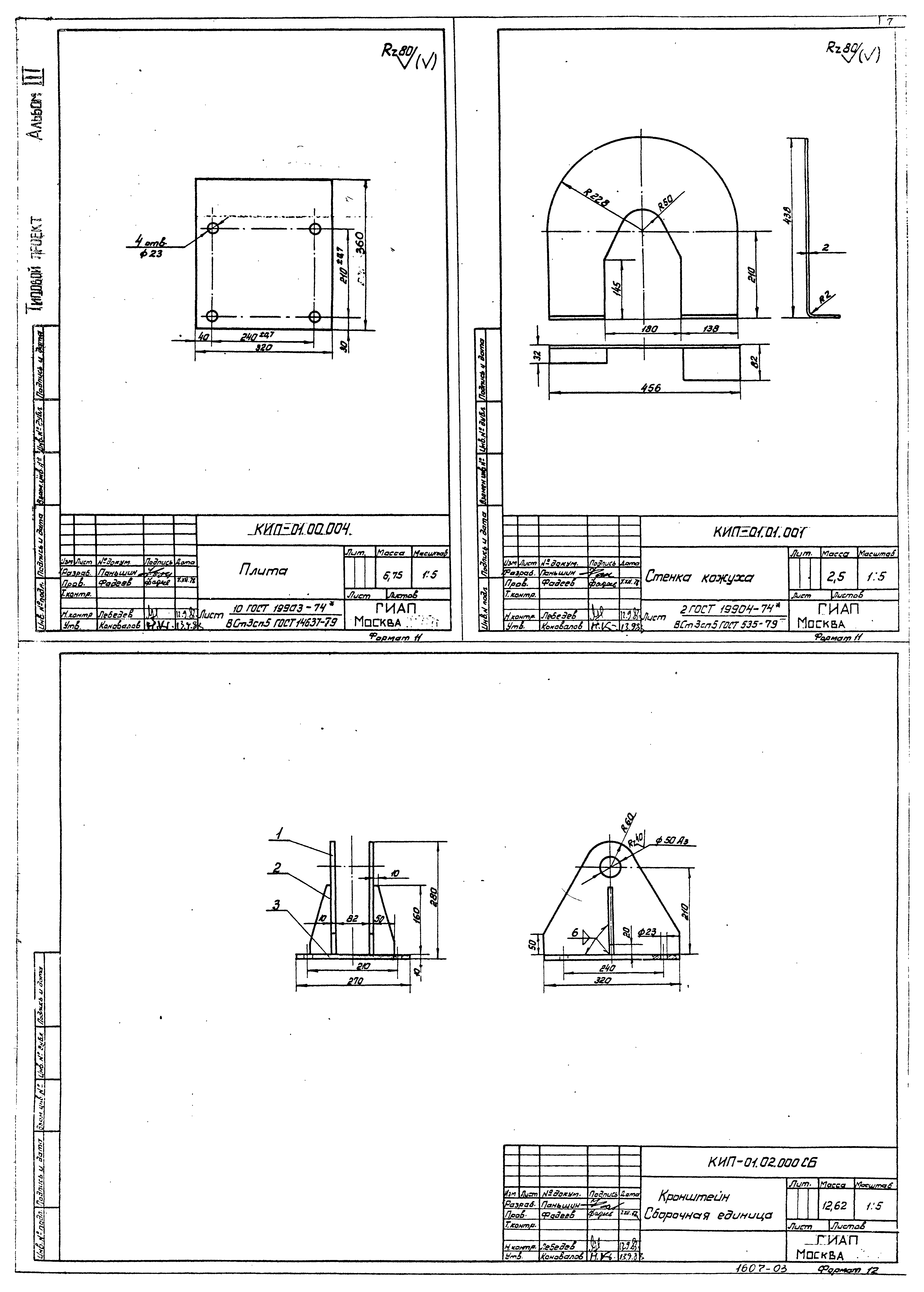
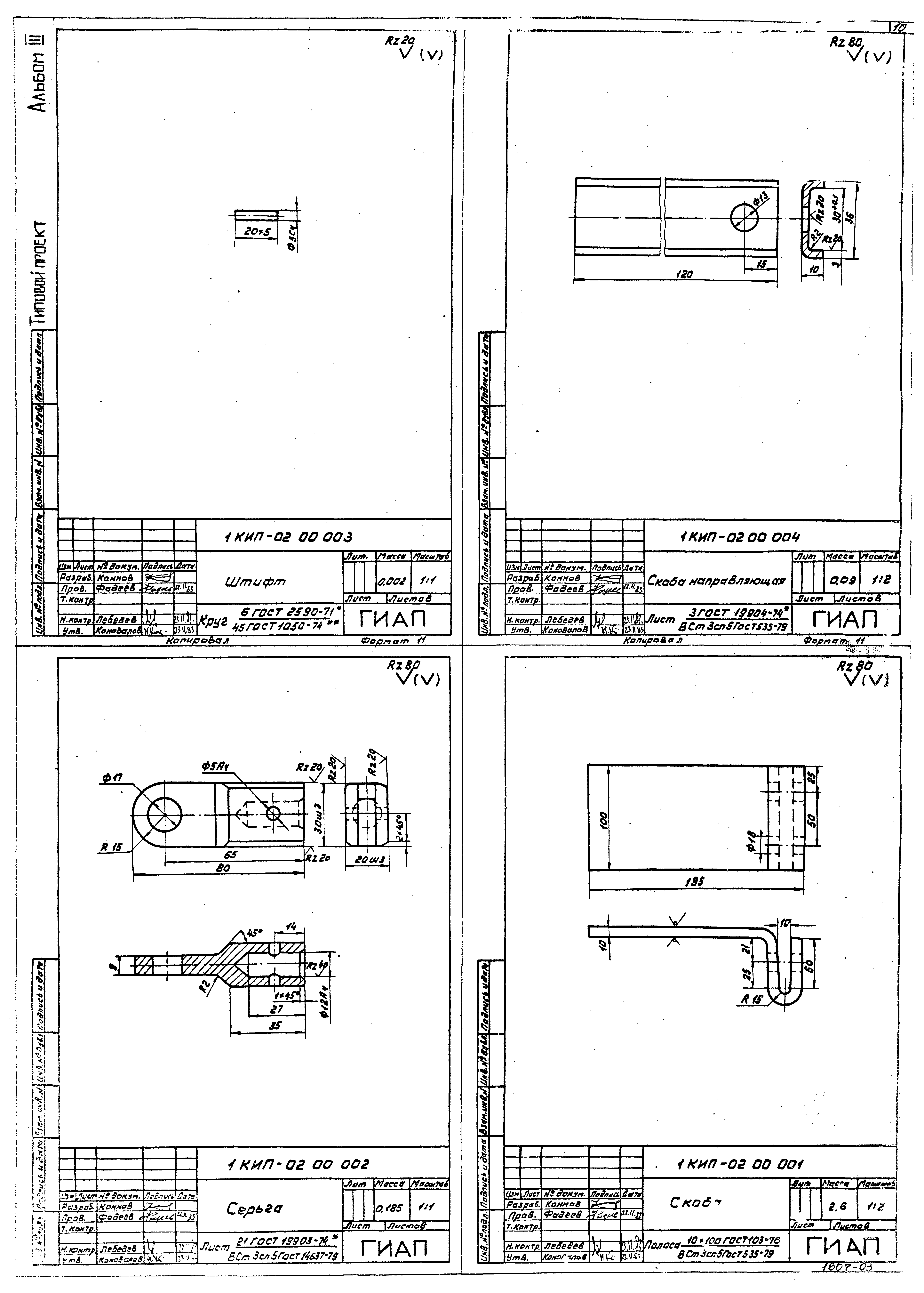
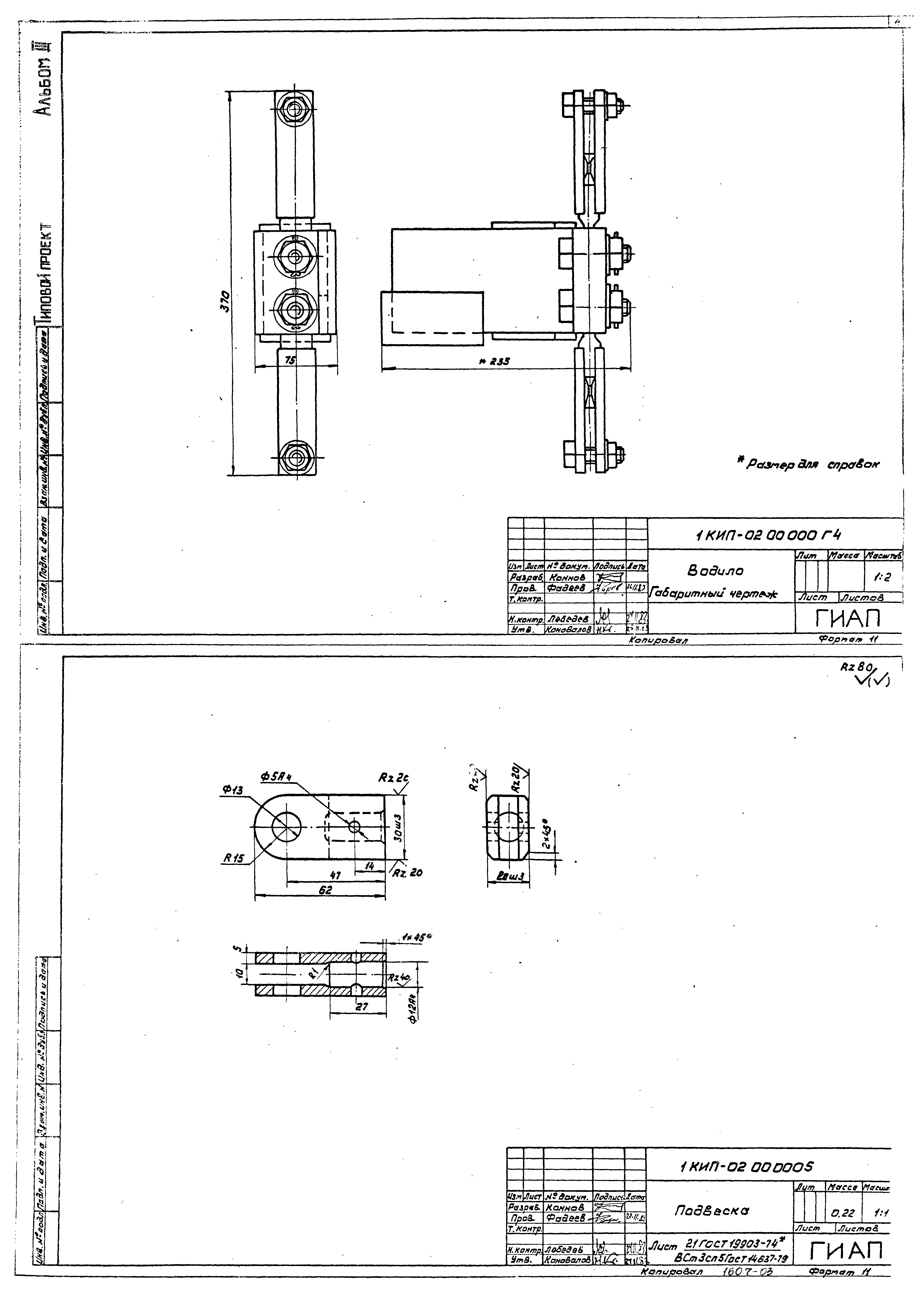
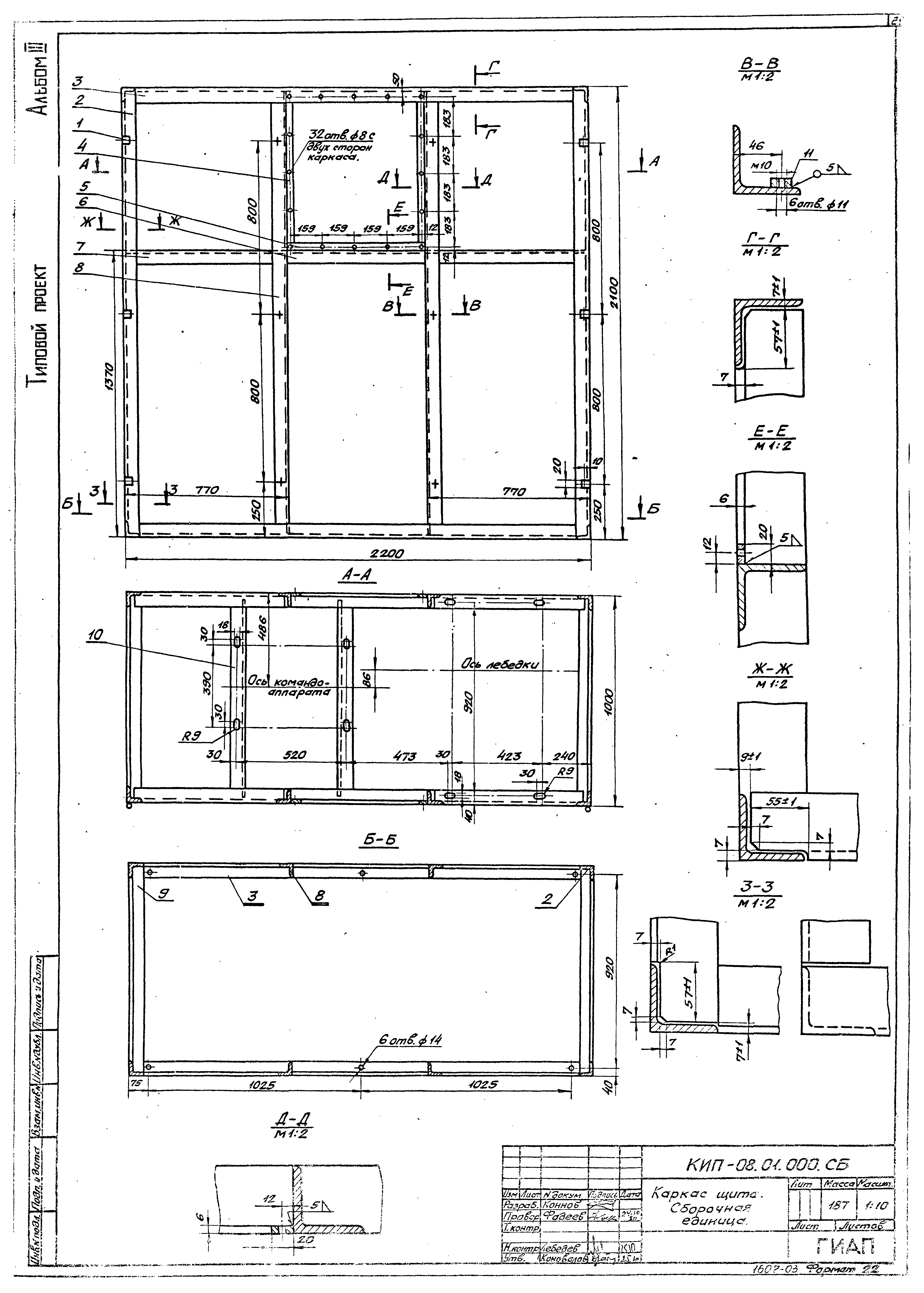
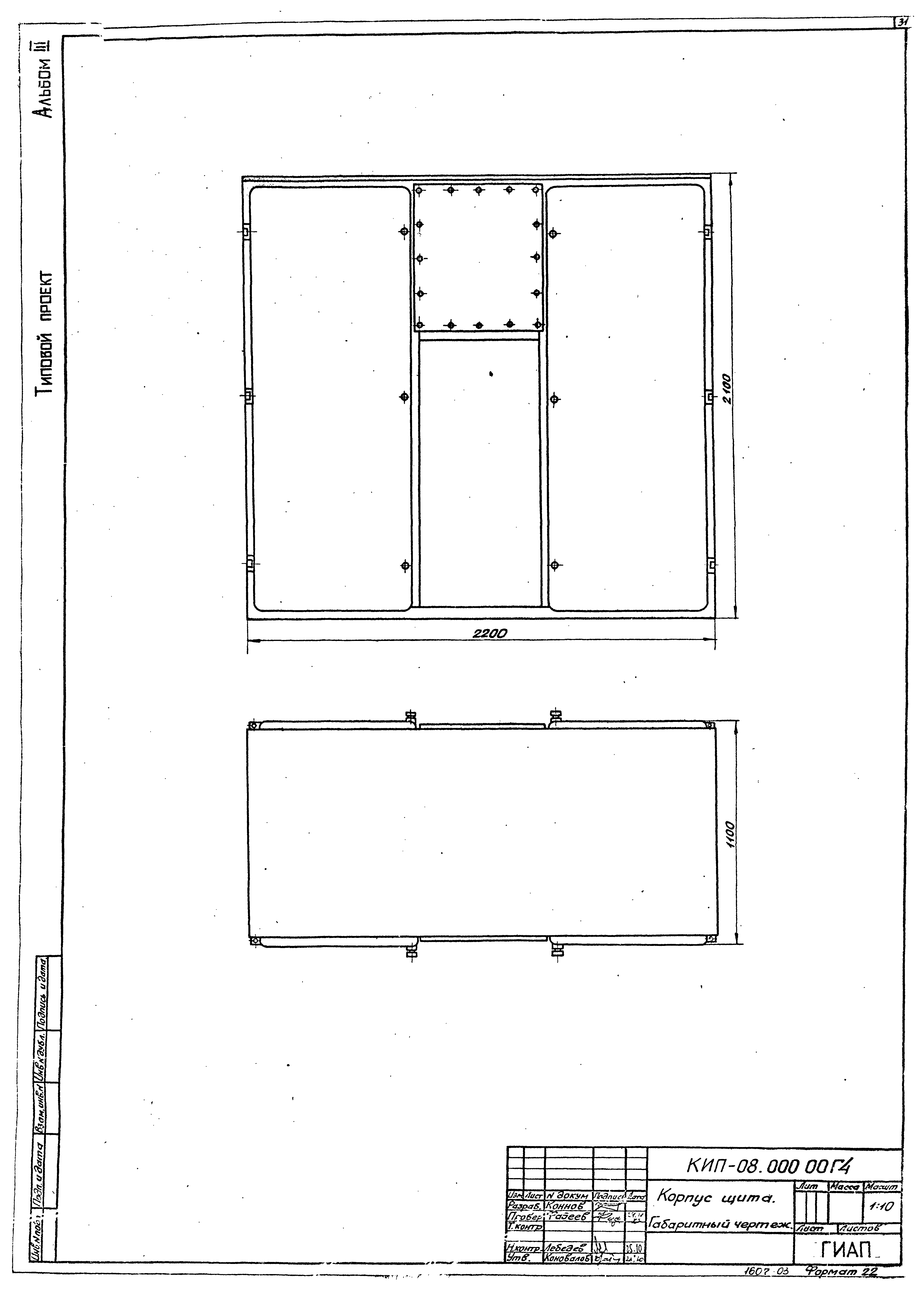
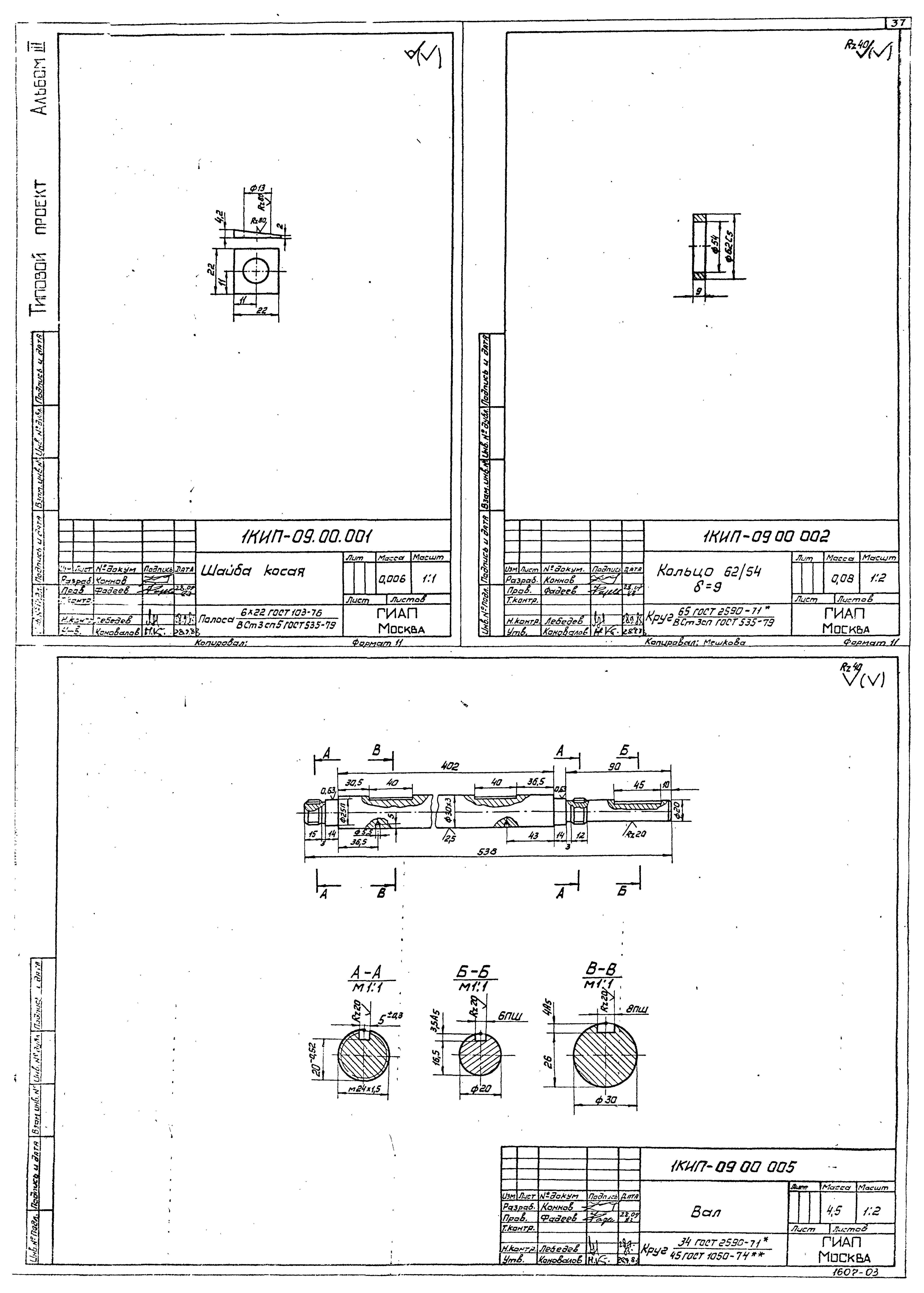
| Оглавление: | Содержание альбома КИП-0100000ВО Блок верхний. Чертеж общего вида КИП-0100000ГЧ Блок верхний. Габаритный чертеж КИП-0101000СБ Кожух защитный. Сборочная единица КИП-0100001 Ролик Ф 350 КИП-0100002 Ось КИП-0100003 Крышка КИП-0100004 Плита КИП-0101001 Стенка кожуха КИП-0102000СБ Кронштейн. Сборочная единица КИП-0100000 Блок верхний 1КИП-0200000ВО Водило. Чертеж общего вида 1КИП-0200001 Скоба 1КИП-0200002 Серьга 1КИП-0200003 Штифт 1КИП-0200004 Скоба направляющая 1КИП-0200000ГЧ Водило. Габаритный чертеж 1КИП-0200005 Подвеска 1КИП-0200006 Предохранитель 1КИП-0200000 Водило 1КИП-0300000ВО Блок средний. Чертеж общего вида 1КИП-0300000ГЧ Блок средний. Габаритный чертеж 1КИП-0301000СБ Кронштейн I. Сборочная единица 1КИП-0302000СБ Кронштейн II. Сборочная единица 1КИП-0300001 Ось 1КИП-0301001 Плита 1КИП-0300000 Блок средний 1КИП-0400000ВО Блок натяжной. Чертеж общего вида 1КИП-0400002 Груз 1КИП-0400003 Щека рычага правая 1КИП-0400000ГЧ Блок натяжной. Габаритный чертеж 1КИП-0401000СБ Кронштейн. Сборочная единица 1КИП-0401001 Ось L = 145 1КИП-0401004 Ось L = 110 1КИП-0400000 Блок натяжной КИП-0500000ВО Блок приямка №1. Чертеж общего вида КИП-0500000ГЧ Блок приямка №1. Габаритный чертеж КИП-0500002 Ось КИП-0500001 Плита КИП-0501000СБ Кронштейн. Сборочная единица КИП-0501001 Плита КИП-0500000 Блок приямка №1 КИП-0600000ВО Блок приямка №2. Чертеж общего вида КИП-0601000СБ Кронштейн. Сборочная единица КИП-0600001 Ролик Ф 200 КИП-0600000ГЧ Блок приямка №2. Габаритный чертеж КИП-0601001 Плита КИП-0600002 Крышка КИП-0600003 Ось КИП-0600000 Блок приямка №2 1КИП-0700000ВО Щит датчиков шкафной. Чертеж общего вида 1КИП-0700001 Шайба косая 12 1КИП-0700000 Щит датчиков шкафной КИП-0800000ВО Корпус щита. Чертеж общего вида КИП-0801000СБ Каркас щита. Сборочная единица КИП-0801001 Петля КИП-0800001 Рукоятка КИП-0800002 Банка (заготовка) КИП-0800003 Петля КИП-0800000ГЧ Корпус щита. Габаритный чертеж КИП-0800004 Дверь 2020х720х30 (развертка) КИП-0800005 Палец КИП-0800000 Корпус щита 1КИП-0900000ВО Лебедка. Чертеж общего вида 1КИП-0901000СБ Барабан. Сборочная единица 1КИП-0902000СБ Рама лебедки. Сборочная единица 1КИП-0901001 Диск 1КИП-0900003 Войлочное уплотнение Ф 31/19 1КИП-0900004 Войлочное уплотнение Ф 43/29 1КИП-0900001 Шайба косая 1КИП-0900002 Кольцо 62/54 б = 9 1КИП-0900005 Вал 1КИП-0900000ГЧ Лебедка. Габаритный чертеж 1КИП-0900000 Лебедка КИП-1000000ВО Установка сельсина-датчика БД-1501. Чертеж общего вида КИП-1001000СБ Корпус. Сборочная единица КИП-1000001 Палец КИП-1000002 Валик КИП-1000003 Скоба КИП-1000004 Полумуфта КИП-1000005 Полумуфта КИП-1000006 Гайка специальная М4 КИП-1000000ГЧ Установка сельсина-датчика БД-1501. Габаритный чертеж КИП-1000000 Установка сельсина-датчика БД-1501 1КИП-1100000ВО Сельсин-приемник. Чертеж общего вида 1КИП-1101000СБ Кронштейн. Сборочная единица 1КИП-1102000СБ Стрелка. Сборочная единица 1КИП-1100001 Циферблат 1КИП-1100002 Переходник 1КИП-1100003 Стойка 1КИП-1100004 Гайка специальная 1КИП-1100005 Скоба 1КИП-1100000ГЧ Сельсин-приемник. Габаритный чертеж 1КИП-1100000 Сельсин-приемник 1КИП-1200000ВО Установка датчиков в утепленной будке. Чертеж общего вида 1КИП-1201000СБ Опора под аппараты. Сборочная единица 1КИП-1200000ГЧ Опора под аппараты. Габаритный чертеж 1КИП-1200001 Шайба косая 12 1КИП-1200000 Установка датчиков в утепленной будке 1КИП-1300000ВО Установка ртутного термометра. Чертеж общего вида 1КИП-1300000 Установка ртутного термометра 1КИП-1400000 Сигнализация и объемоуказание. Вариант с утепленной будкой 1КИП-1400000ВО Сигнализация и объемоуказание. Вариант с утепленной будкой. Чертеж общего вида |
| Разработан: | ГИАП Минудобрений СССР |
| Утверждён: | 17.05.1984 Министерство по производству минеральных удобрений СССР (USSR Ministry of Mineral Fertilizer Production 25-89) |























































