Скачать Типовой проект 901-3-181.83 Альбом II. Часть 1. Технологическая, санитарно-техническая части, нестандартизированное оборудованиеДата актуализации: 01.01.2021
|
| Обозначение: | Типовой проект 901-3-181.83 |
| Обозначение англ: | 901-3-181.83 |
| Статус: | не определен законодательством |
| Название рус.: | Альбом II. Часть 1. Технологическая, санитарно-техническая части, нестандартизированное оборудование |
| Дата добавления в базу: | 01.10.2014 |
| Дата актуализации: | 01.01.2021 |
| Дата введения: | 21.06.1983 |
| Дата окончания срока действия: | 30.06.2003 |
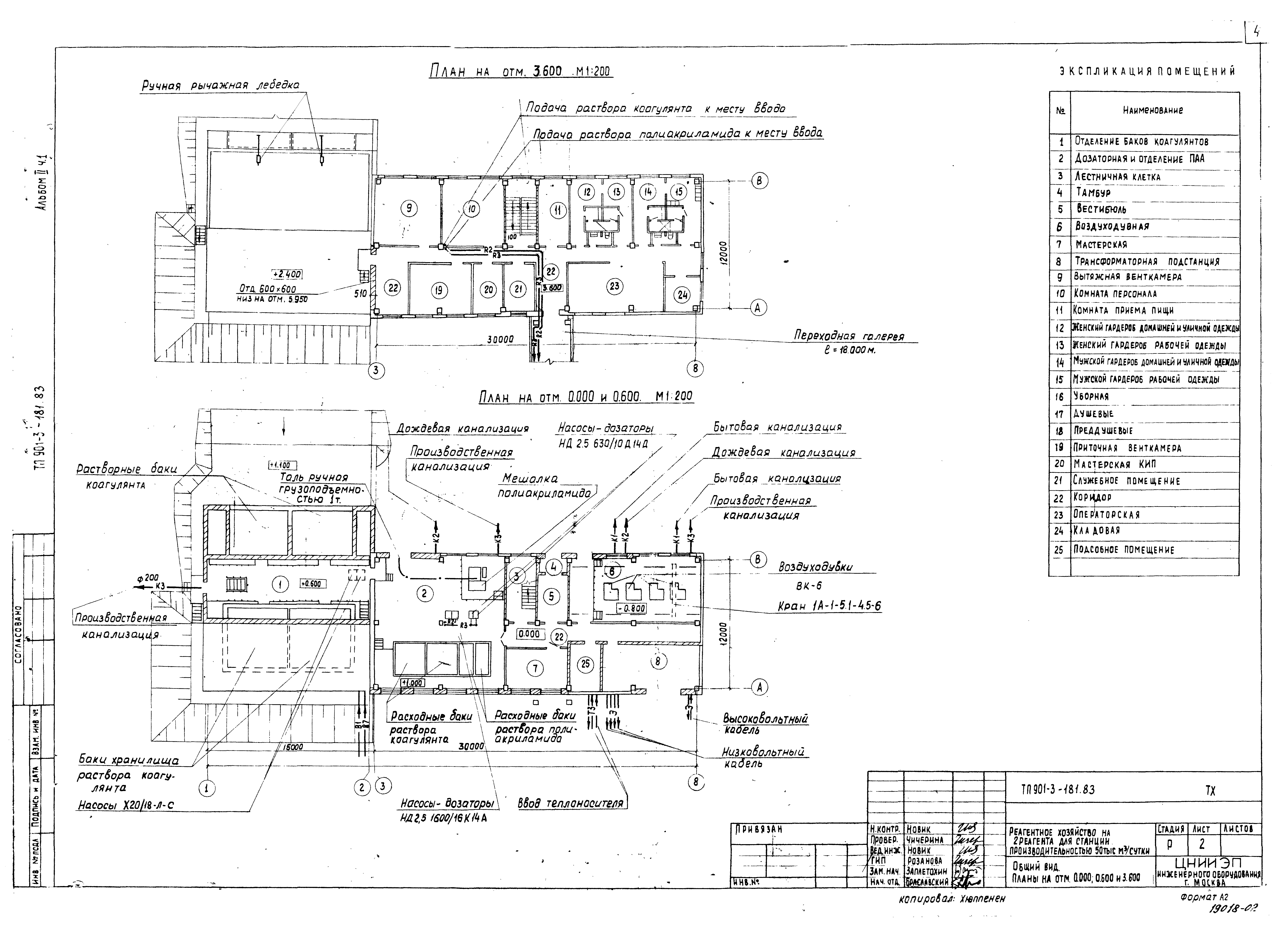
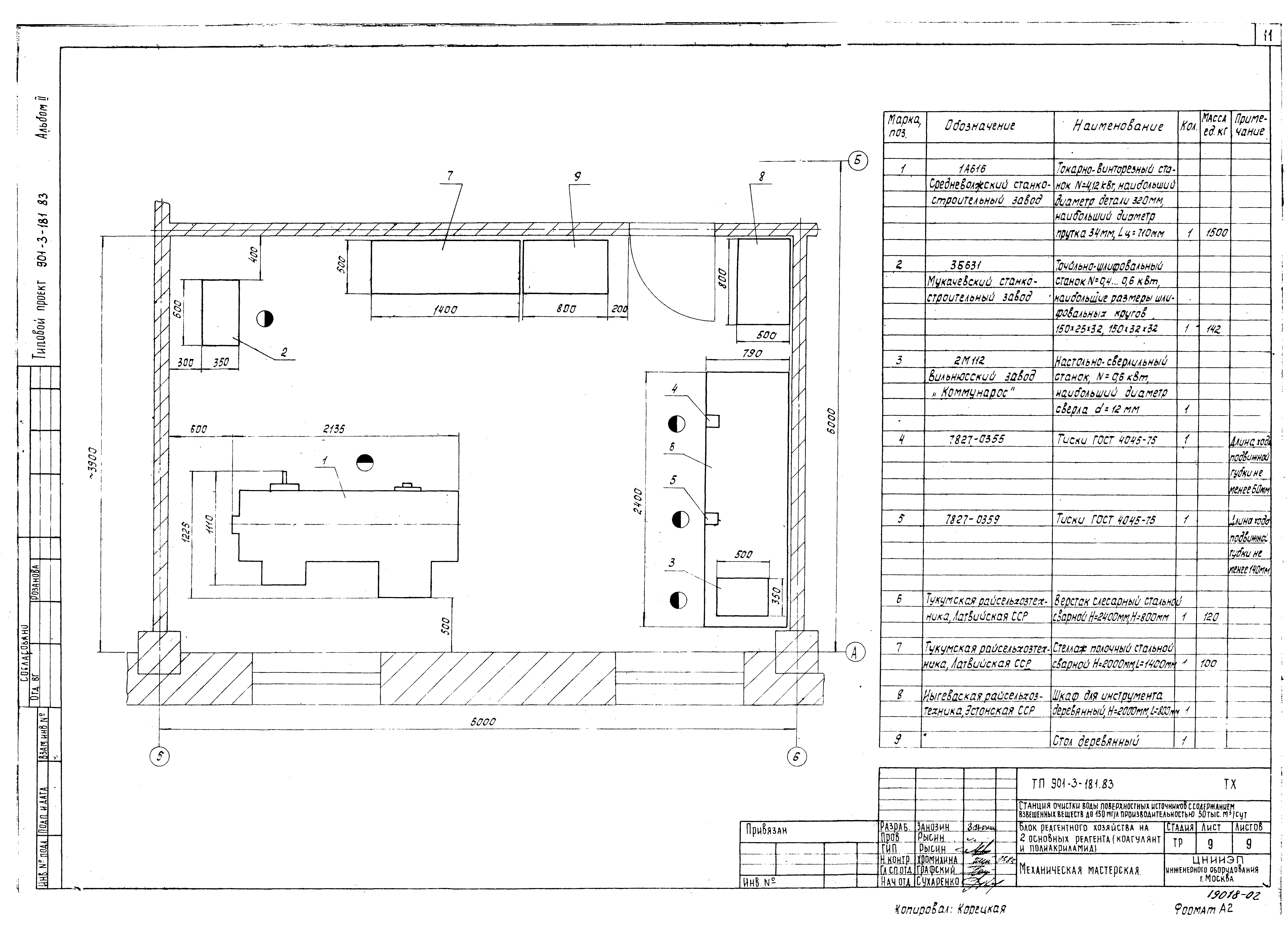
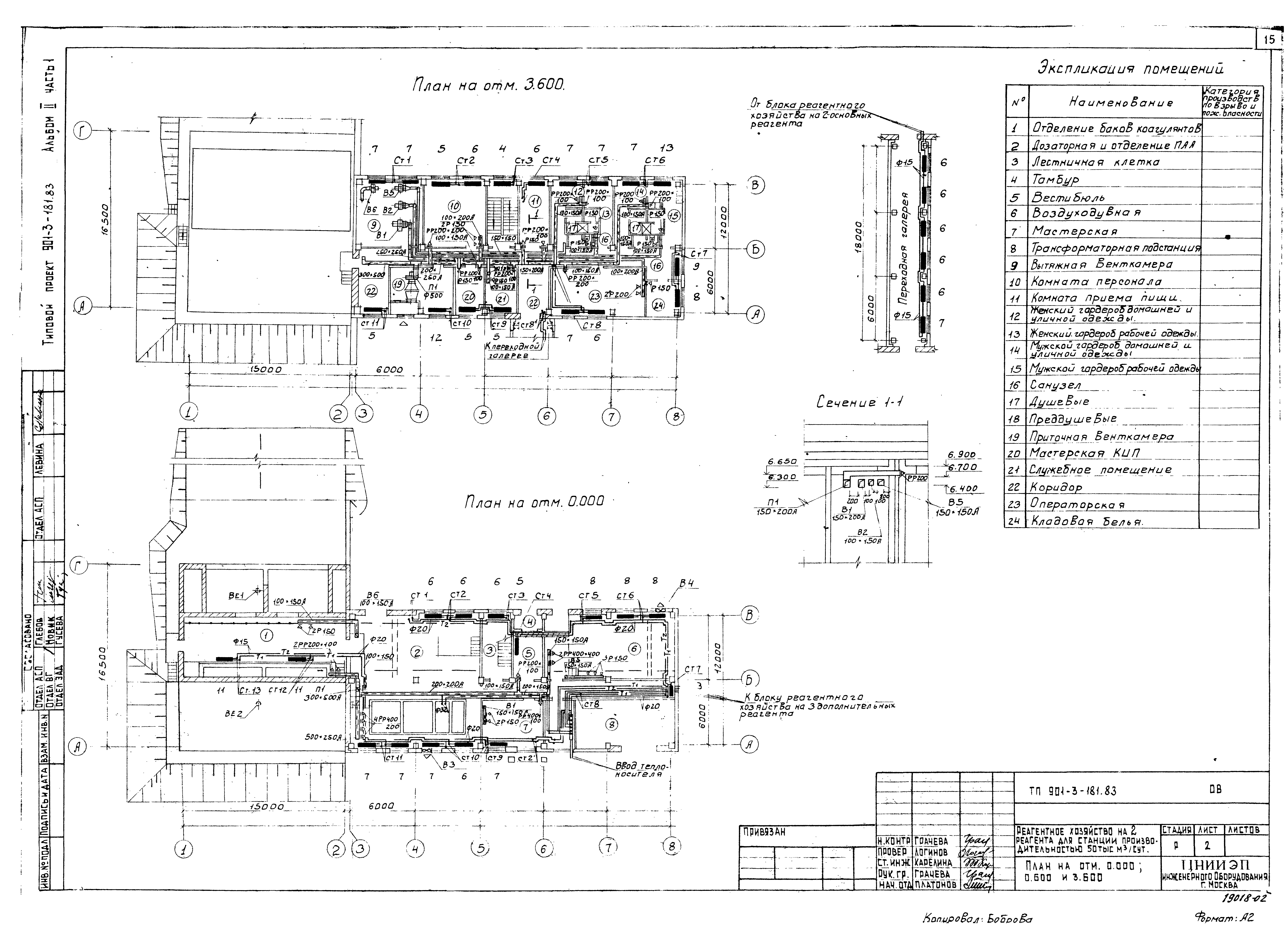
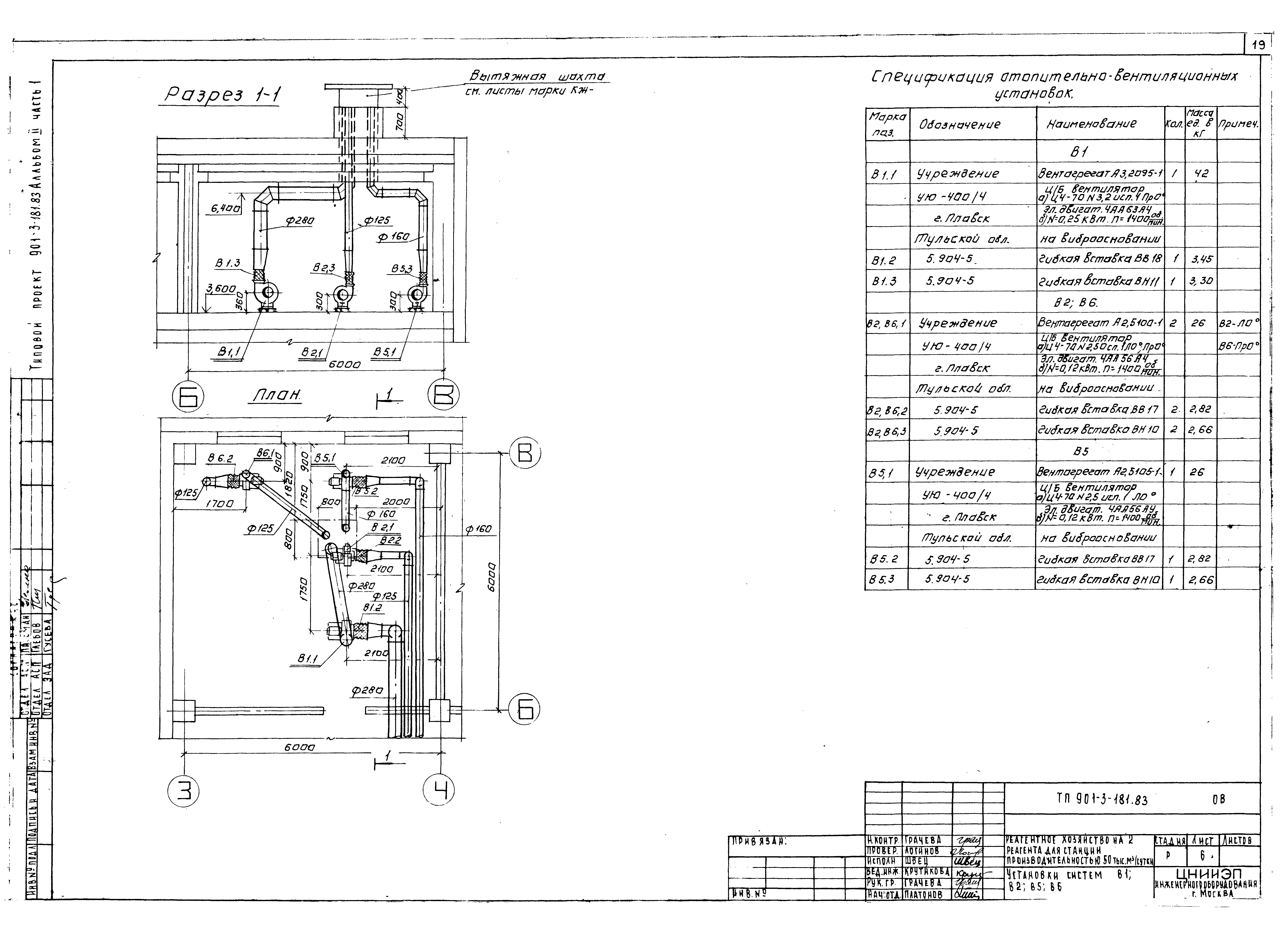
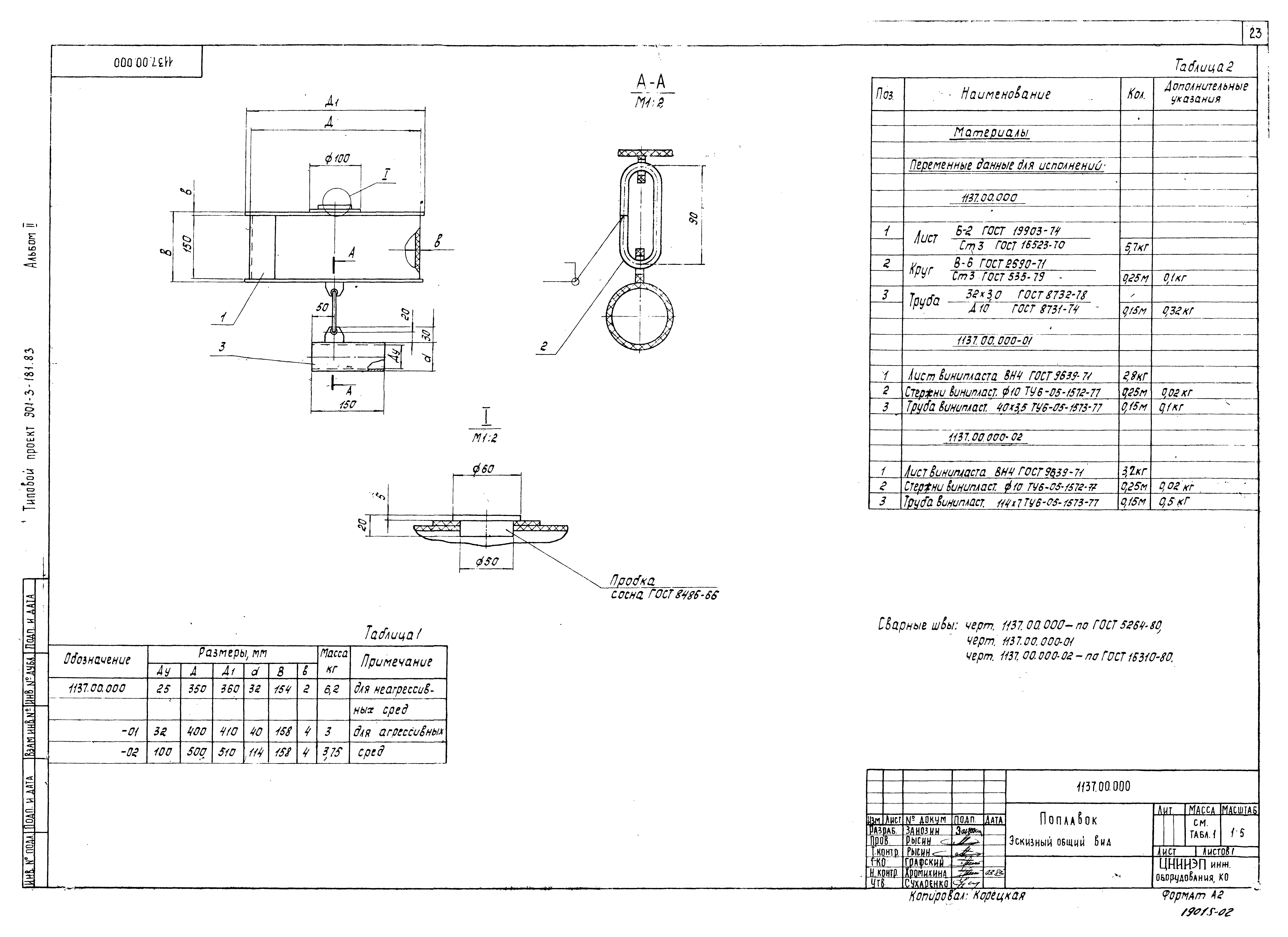
| Оглавление: | Технологическая часть Общие данные Общий вид. Планы на отм. 0.000; 0.600; 3.600 План на отм. 0.600; 0.000 и - 2.500 Разрез 1-1. Сечения А-А, Б-Б Разрезы 2-2, 3-3, 4-4 Аксонометрическая схема трубопроводов растворов реагента Аксонометрические схемы технологических трубопроводов Спецификация материалов и оборудования Механическая мастерская Санитарно-техническая часть Общие данные Внутренний водопровод, канализация, водостоки. Планы. Аксонометрические схемы Отопление и вентиляция Общие данные План на отм. 0.000; 0.600 и 3.600 Схема системы отопления Схемы систем П1, В1, В2, В5, В6, ВЕ1 и ВЕ2 Установка системы П1 Установки систем В1, В2, В5, В6 Конфузоры, переходы Воздуховод из асбестоцементных листов. Узлы соединений Нестандартизированное оборудование Гребенка воздухораспределительная в растворном баке коагулянта. Эскизный общий вид Кольцо гидросмыва. Эскизный общий вид Поплавок. Эскизный общий вид Гребенка воздухораспределительная в расходном баке коагулянта. Эскизный общий вид Гребенка воздухораспределительная в расходном баке полиакриламида. Эскизный общий вид |
| Разработан: | ЦНИИЭП |
| Утверждён: | 31.10.1980 Госгражданстрой (Gosgrazhdanstroy 297) |
| Издан: | ЦИТП Госстроя СССР (CITP, Gosstroy (USSR) 1988 г. ) |
























