Скачать Типовой проект 901-3-181.83 Альбом III. Часть 1. Электротехническая часть. Связь и сигнализацияДата актуализации: 01.01.2021
|
| Обозначение: | Типовой проект 901-3-181.83 |
| Обозначение англ: | 901-3-181.83 |
| Статус: | не определен законодательством |
| Название рус.: | Альбом III. Часть 1. Электротехническая часть. Связь и сигнализация |
| Дата добавления в базу: | 01.10.2014 |
| Дата актуализации: | 01.01.2021 |
| Дата введения: | 21.06.1983 |
| Дата окончания срока действия: | 30.06.2003 |
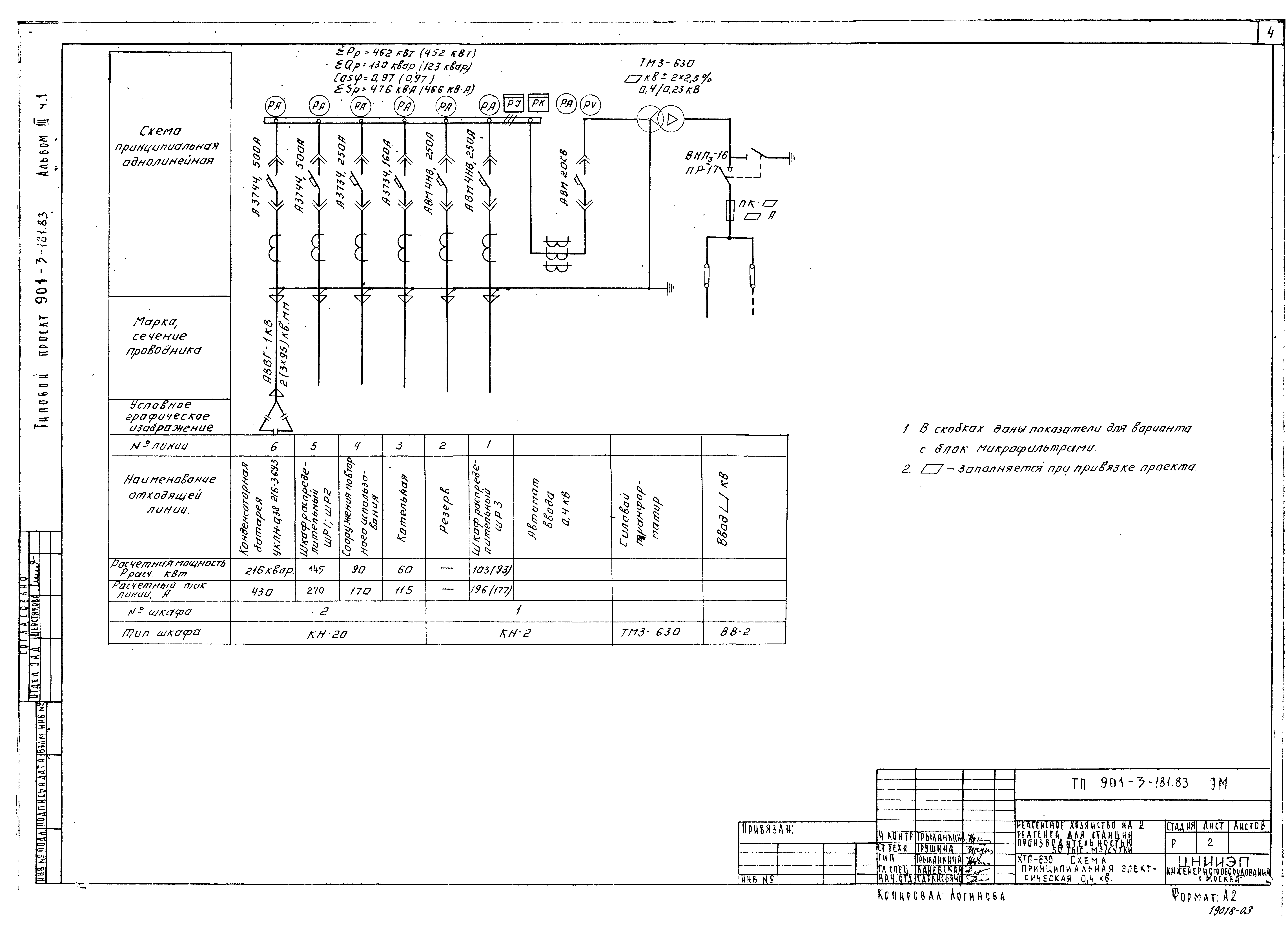
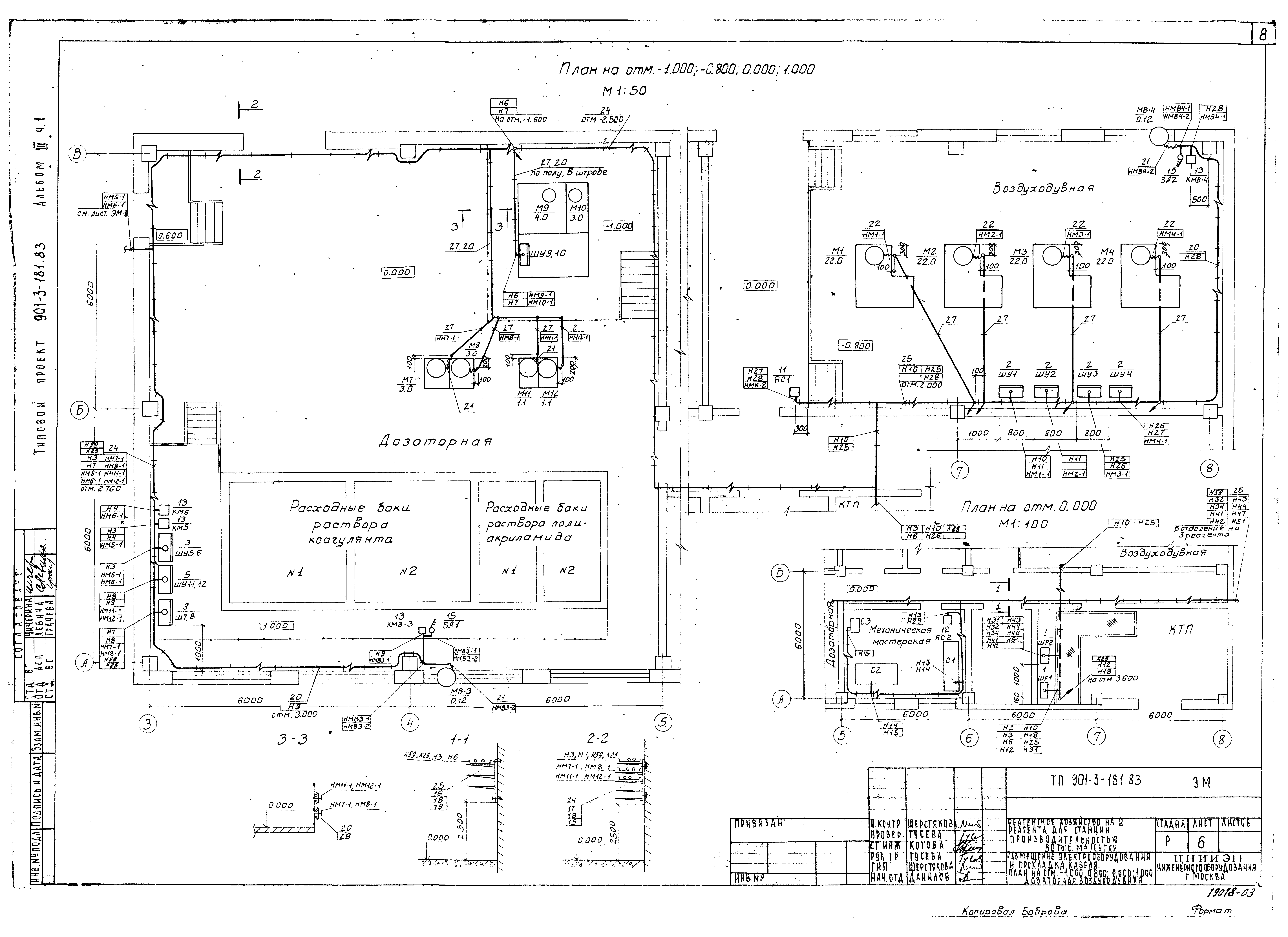
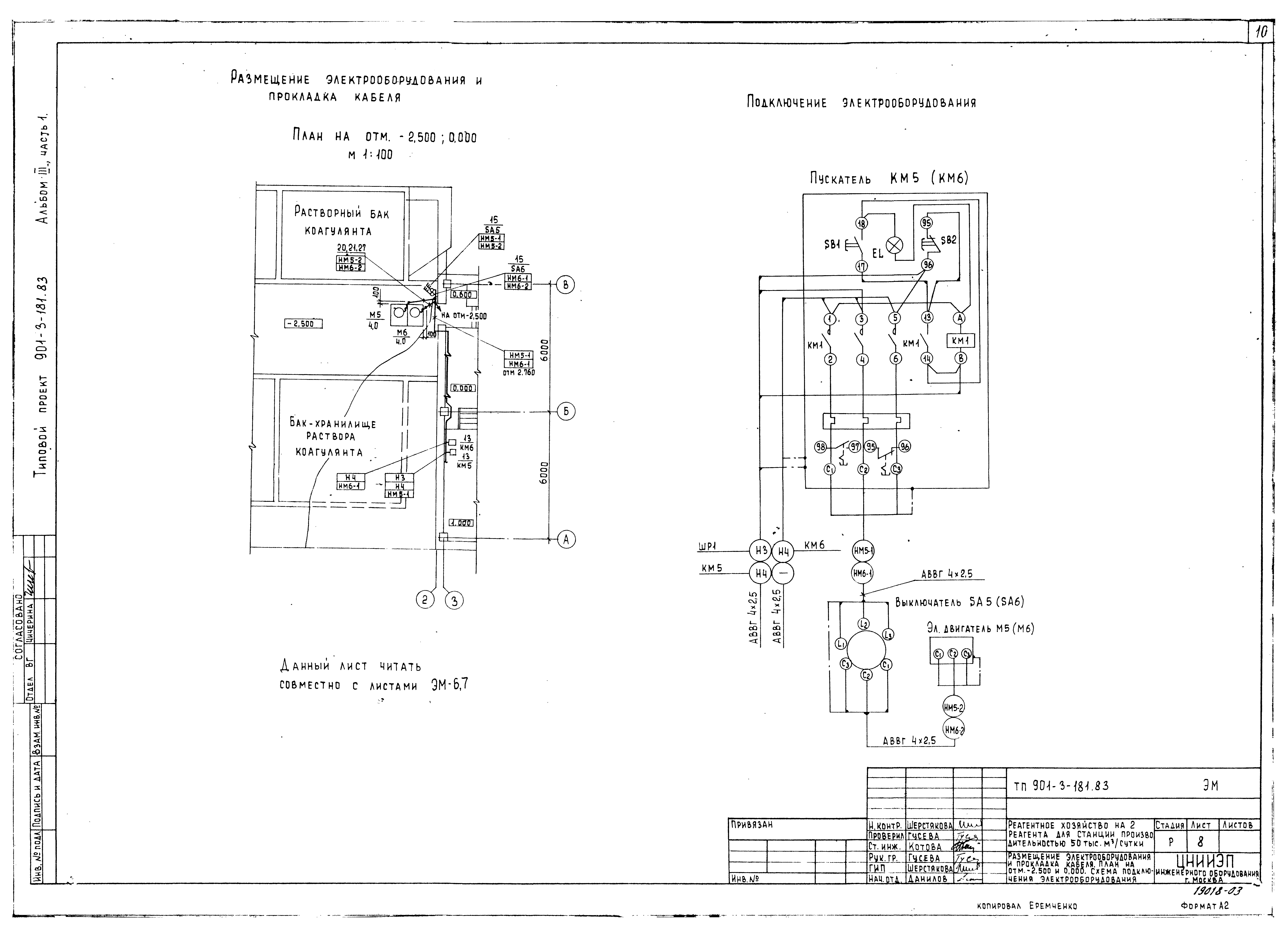
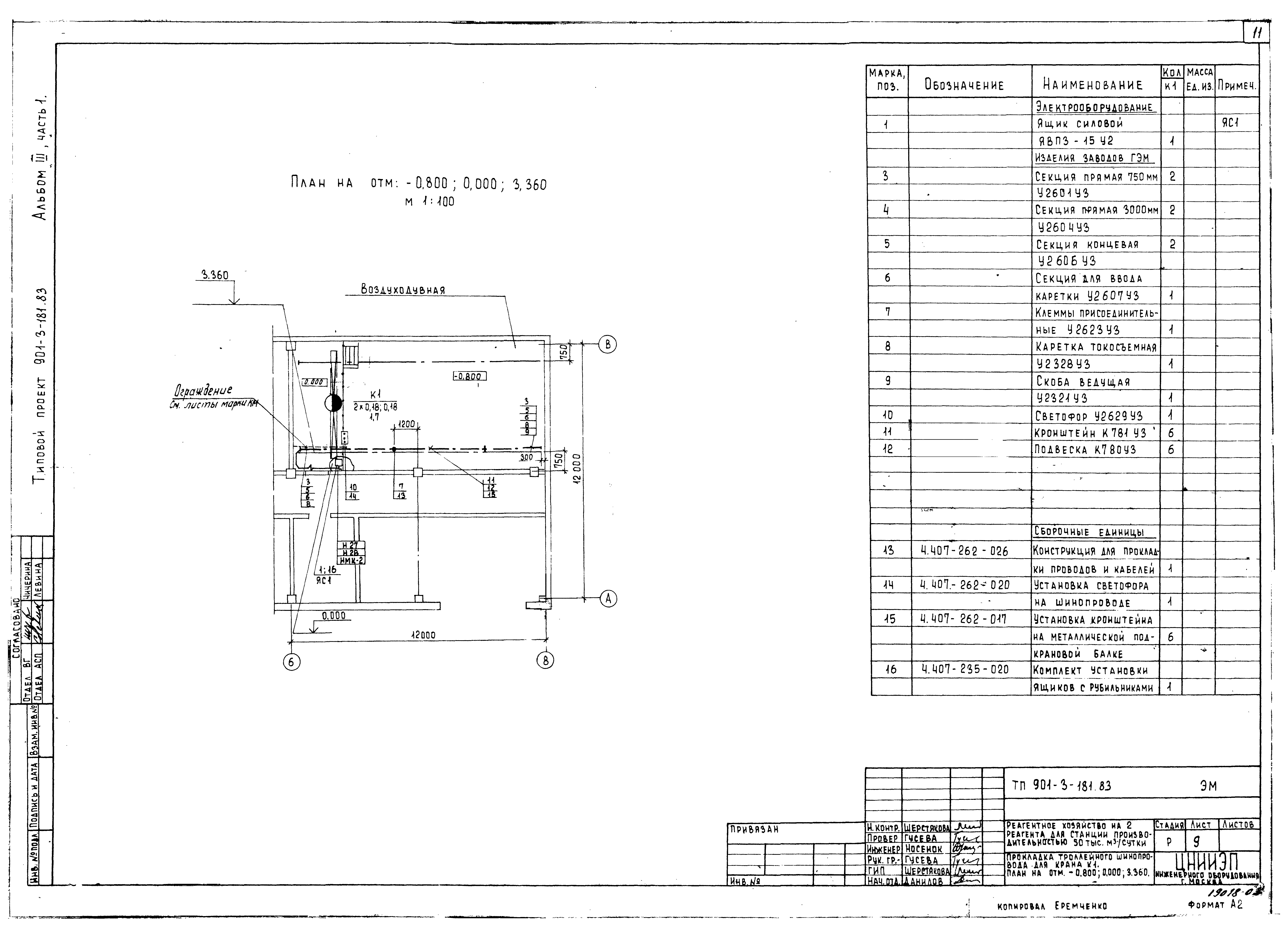
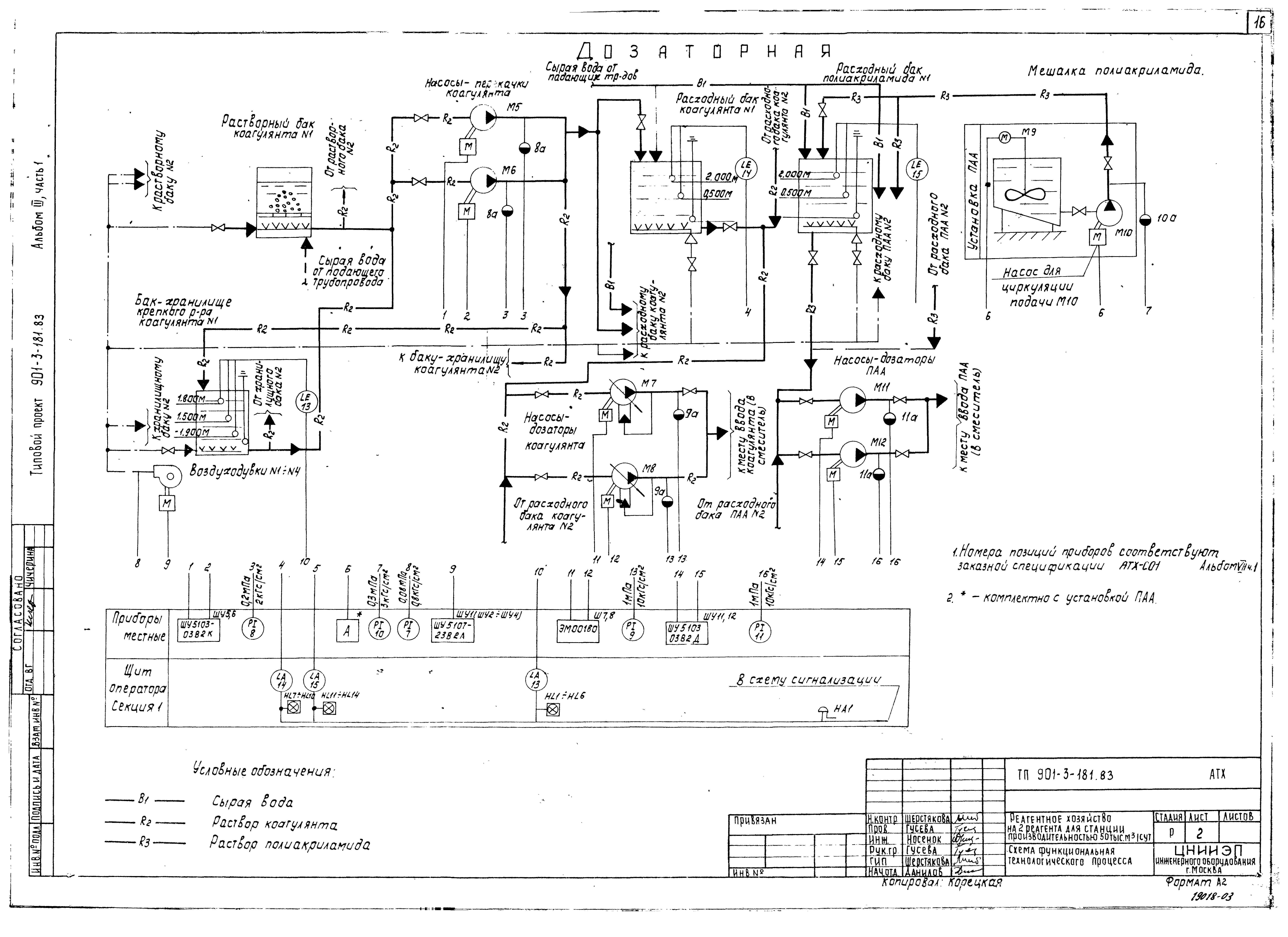
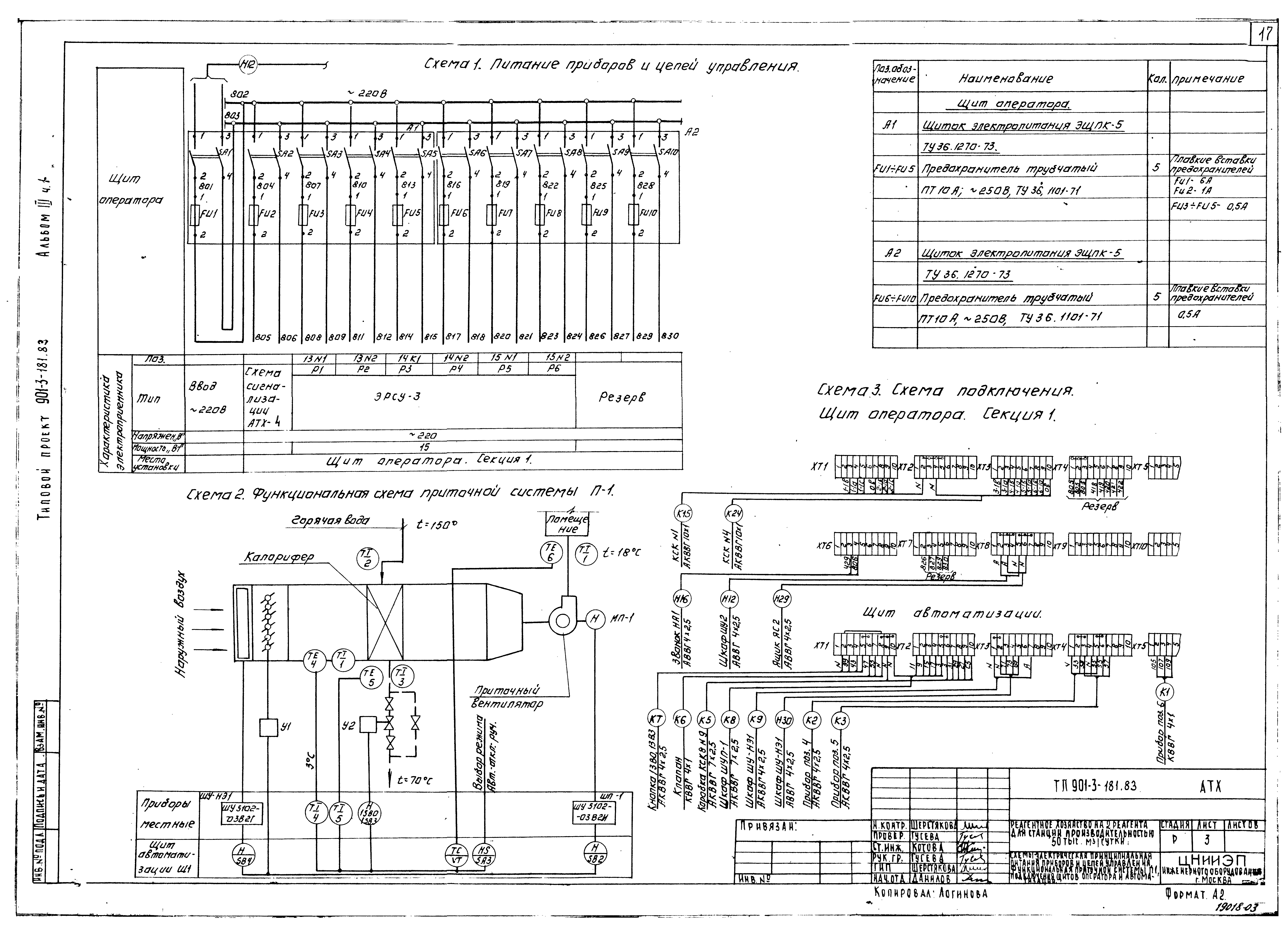
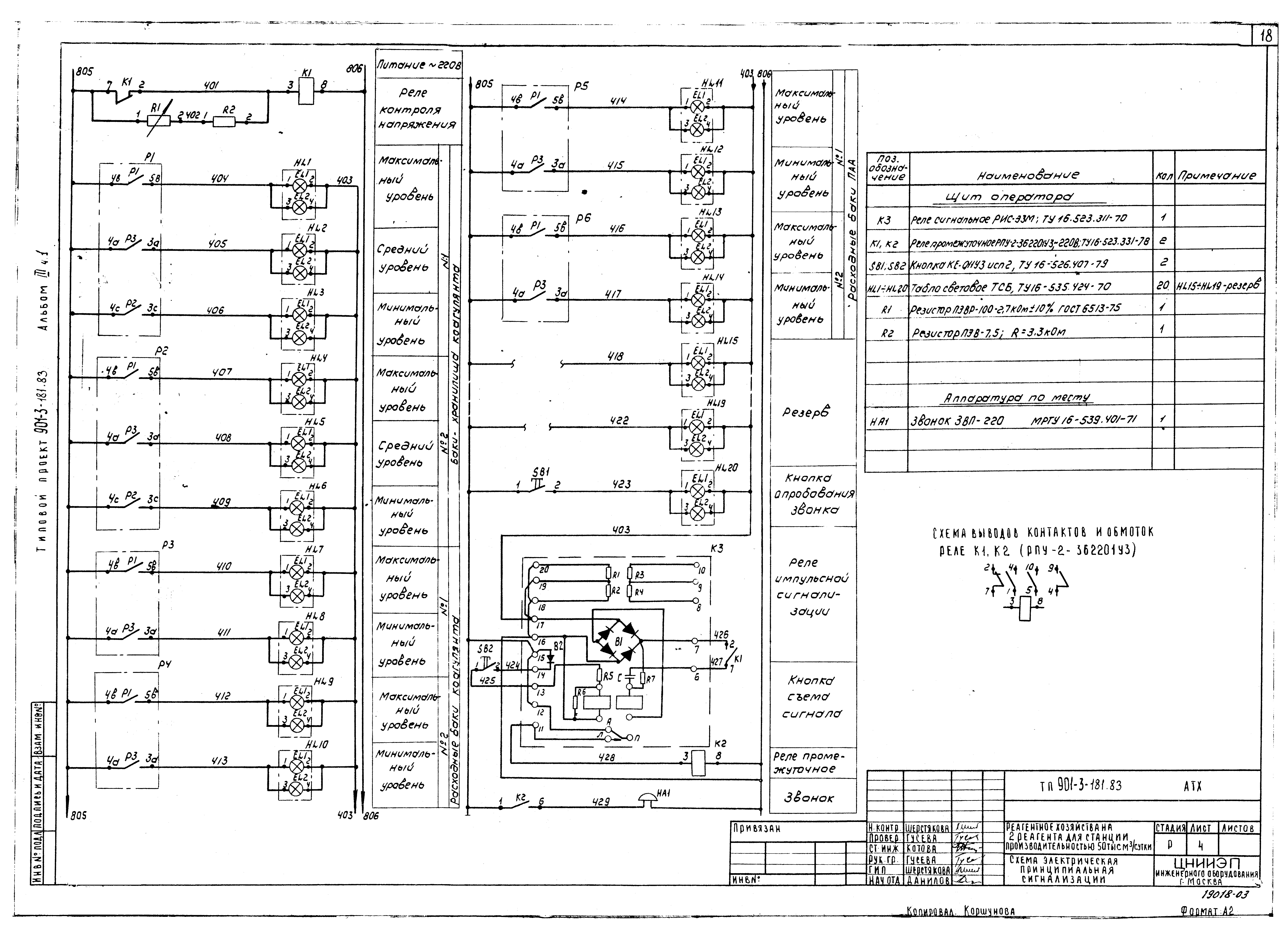
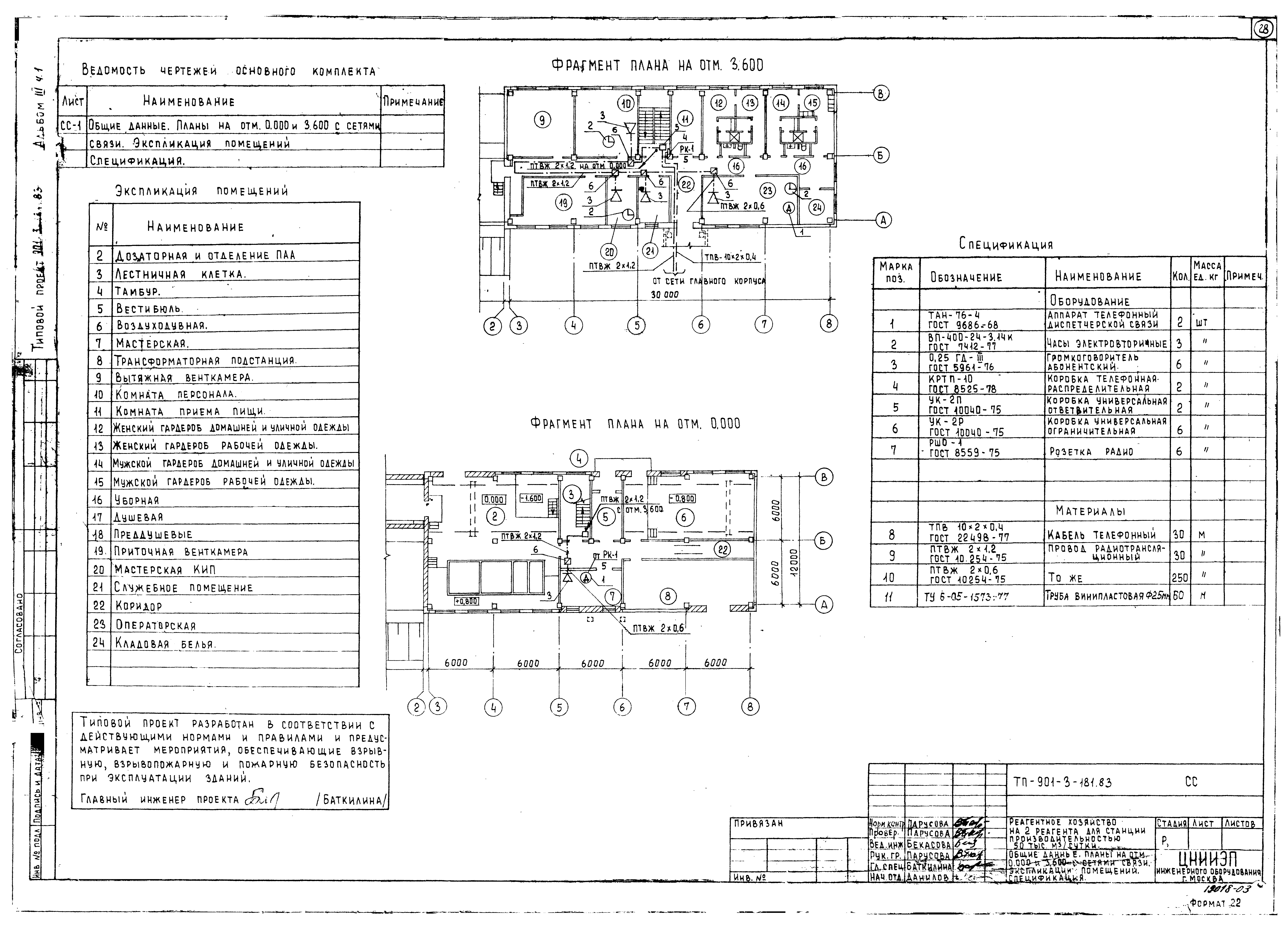
| Оглавление: | Содержание Электротехническая часть Общие данные КТП-630. Схема принципиальная электрическая 0,4 кВ Схема электрическая принципиальная распределительной сети 380/220 В Схема подключения электрооборудования Кабельный журнал. Сводка кабелей и проводов учтенных кабельным журналом Размещение электрооборудования и прокладка кабеля. План на отм. - 1.000; 0.800; 0.000; 1.000. Дозаторная. Воздуходувная Размещение электрооборудования и прокладка кабеля. План на отм. 3.600. Венткамеры. Операторская Размещение электрооборудования и прокладка кабеля. План на отм. - 2.500 и 0.000. Схема подключения электрооборудования Прокладка троллейного шинопровода для крана К1. План на отм. - 0.800; 0.000; 3.360 КТП-630. Установка электрооборудования. План и разрез КТП-630. Заземление. План Опросный лист для заказа КТП-630 Хмельницкого завода трансформаторных подстанций Автоматизация технологического процесса Общие данные Схема функциональная технологического процесса Схемы электрическая принципиальная питания приборов и цепей управления, функциональная приточной системы П-1, подключения щитов оператора и автоматизации Схема электрическая принципиальная сигнализации Схема электрическая принципиальная управления приточной системой П-1 Схема регулирования дозы коагулянта Схема подключения приборов и устройств технологического контроля приточной системы П-1 Схема подключения приборов и устройств технологического контроля Размещение приборов и устройств технологического контроля и прокладка кабеля. План на отм. - 0.800; 0.000; 0.600; 3.600 Электрическое освещение Общие данные Электрическое освещение. План на отм. 0.000; 0.600; 3.600; - 2.500 Электрическое освещение. Спецификация Связь и сигнализация Общие данные. Планы на отм. 0.000 и 4.200 с сетями связи. Экспликация помещений. Спецификация |
| Разработан: | ЦНИИЭП |
| Утверждён: | 31.10.1980 Госгражданстрой (Gosgrazhdanstroy 297) |
| Издан: | ЦИТП Госстроя СССР (CITP, Gosstroy (USSR) 1988 г. ) |



























