Скачать Типовой проект 411-2-144 Альбом IV. Нестандартизированное оборудованиеДата актуализации: 01.01.2021
|
| Обозначение: | Типовой проект 411-2-144 |
| Обозначение англ: | 411-2-144 |
| Статус: | не определен законодательством |
| Название рус.: | Альбом IV. Нестандартизированное оборудование |
| Дата добавления в базу: | 01.10.2014 |
| Дата актуализации: | 01.01.2021 |
| Дата введения: | 31.07.1986 |
| Дата окончания срока действия: | 30.06.2003 |
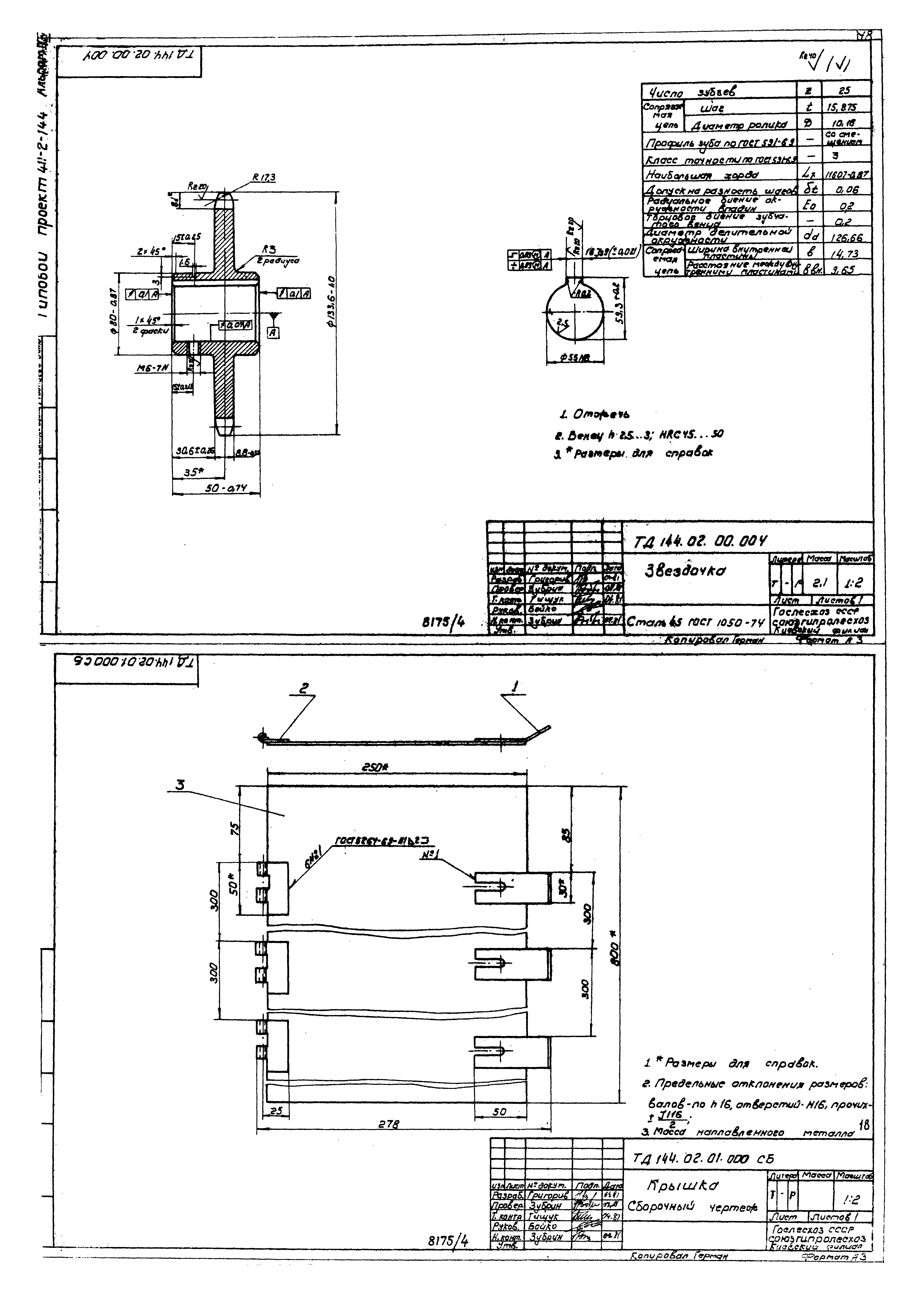
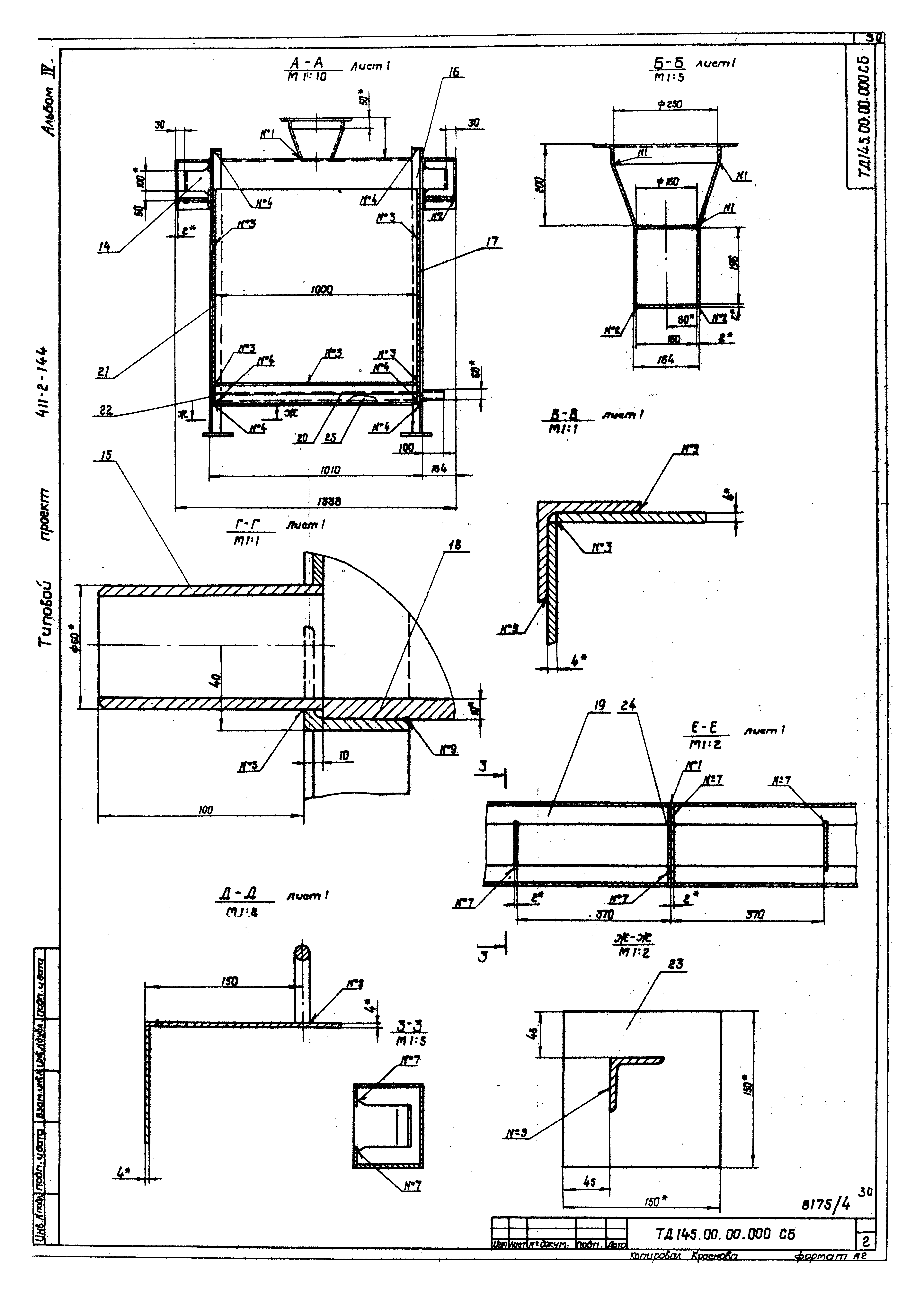
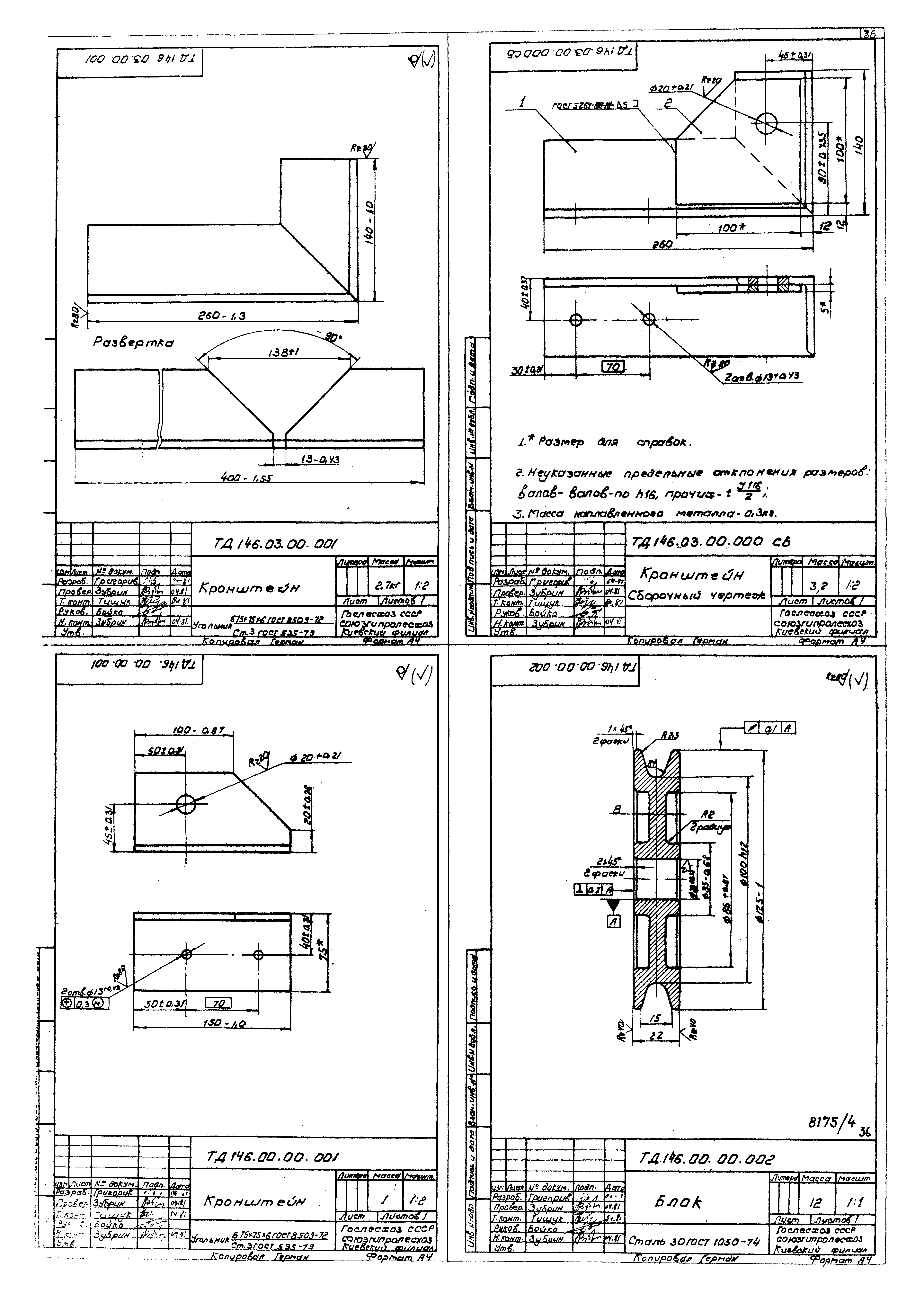
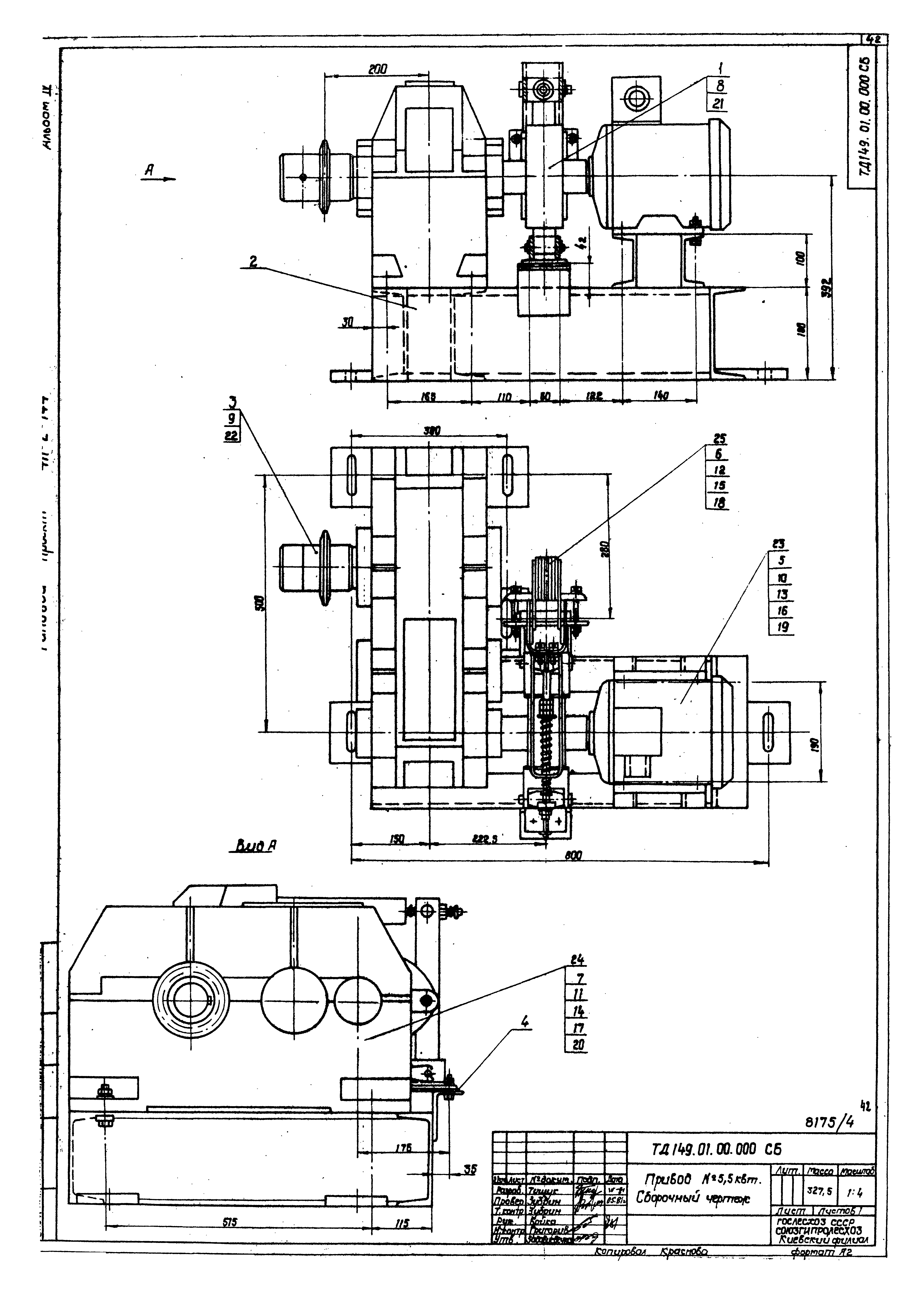
| Оглавление: | Содержание альбома ТД142.00.00.000 Стол приставной ТД142.00.00.009 Уголок ТД142.00.00.000СБ Стол приставной. Сборочный чертеж ТД142.00.00.001 Стенка ТД142.00.00.002 Уголок ТД143.00.00.000 Рольганг неприводной ТД143.00.00.000СБ Рольганг неприводной. Сборочный чертеж ТД143.01.00.000СБ Стол откидной. Сборочный чертеж ТД143.01.00.000 Стол откидной ТД143.01.00.001 Уголок ТД143.02.00.000 Рама ТД143.01.00.002 Платик ТД143.02.00.000СБ Рама. Сборочный чертеж ТД144.00.00.000ВС Барабан галтовочный. Ведомость спецификаций ТД144.00.00.000 Барабан галтовочный ТД144.02.00.002 Палец ТД144.00.00.000СБ Барабан галтовочный. Сборочный чертеж ТД144.00.00.001 Звездочка ТД144.01.00.000 Рама ТД144.01.00.001 Уголок ТД144.01.00.000СБ Рама. Сборочный чертеж ТД144.01.00.002 Врезка ТД144.02.01.000 Крышка ТД144.02.00.000 Барабан ТД144.02.00.000СБ Барабан. Сборочный чертеж ТД144.02.00.004 Звездочка ТД144.02.01.000СБ Крышка. Сборочный чертеж ТД144.02.01.101 Кронштейн ТД144.02.02.102 Стенка ТД144.02.02.000 Барабан ТД144.02.02.010 Барабан ТД144.02.02.000СБ Барабан. Сборочный чертеж ТД144.02.02.010СБ Барабан. Сборочный чертеж ТД144.02.02.101 Уголок ТД144.03.00.000 Крышка ТД144.05.00.000 Муфта ТД144.03.00.000СБ Крышка. Сборочный чертеж ТД144.04.00.000 Ограждение ТД144.04.00.000СБ Ограждение. Сборочный чертеж ТД144.04.00.001 Уголок ТД144.05.00.000СБ Муфта. Сборочный чертеж ТД144.05.00.001 Полумуфта левая ТД144.05.00.002 Полумуфта правая ТД144.06.00.000СБ Отсос. Сборочный чертеж ТД144.06.00.000 Отсос ТД144.06.00.001 Кронштейн ТД144.06.00.002 Лист ТД145.00.00.000 Ванна для олифы с бортовыми отсосами ТД145.00.00.000СБ Ванна для олифы с бортовыми отсосами. Сборочный чертеж ТД145.00.00.001 Фланец ТД145.00.00.005 Стойка ТД145.00.00.002 Обечайка ТД145.00.00.007 Связь ТД145.00.00.014 Лист ТД145.00.00.015 Лепесток ТД145.00.00.016 Патрубок ТД146.00.00.000ВС Затвор бункера. Ведомость спецификаций ТД149.00.00.000ВС Транспортер поперечный. Ведомость спецификаций ТД145.00.00.017 Стенка ТД145.00.00.019 Обечайка ТД146.00.00.000 Затвор бункера ТД146.00.00.000СБ Затвор бункера. Сборочный чертеж ТД146.03.00.001 Кронштейн ТД146.03.00.000СБ Кронштейн. Сборочный чертеж ТД146.00.00.001 Кронштейн ТД146.00.00.002 Блок ТД146.01.00.000СБ Каркас. Сборочный чертеж ТД146.01.00.000 Каркас ТД146.01.00.001 Стенка ТД146.02.00.000СБ Створка. Сборочный чертеж ТД146.02.00.000 Створка ТД146.03.00.000 Кронштейн ТД149.00.00.000 Транспортер поперечный ТД149.01.00.000 Привод N = 5,5 кВт ТД149.00.00.000СБ Транспортер поперечный. Сборочный чертеж ТД149.01.00.000СБ Привод N = 5,5 кВт. Сборочный чертеж ТД149.01.00.001 Звездочка z = 16; t = 25,4 ТД149.01.00.002 Прокладка ТД149.01.01.000 Муфта ТД149.01.01.000СБ Муфта. Сборочный чертеж ТД149.01.01.011 Полумуфта левая ТД149.01.01.012 Полумуфта правая ТД149.01.01.013 Палец ТД149.01.01.014 Втулка распорная ТД149.01.01.015 Кольцо упругое ТД149.02.01.012 Венец ТД149.01.02.000 Рама ТД149.01.02.000СБ Рама. Сборочный чертеж ТД149.01.02.024 Врезка ТД149.01.02.025 Лапа ТД149.02.00.000 Вал приводной I ТД149.02.00.000СБ Вал приводной I. Сборочный чертеж ТД149.02.01.000 Звездочка z = 10; t = 100 ТД149.02.01.011 Ступица ТД149.02.01.000СБ Звездочка z = 10; t = 100. Сборочный чертеж ТД149.02.00.001 Вал ТД149.02.00.002 Крышка сквозная ТД149.02.00.003 Крышка сквозная ТД149.02.00.001 Крышка глухая ТД149.02.00.005 Прокладка ТД149.02.00.006 Корпус подшипника ТД149.03.00.000 Вал приводной II ТД149.03.00.000СБ Вал приводной II. Сборочный чертеж ТД149.03.00.001 Вал ТД149.04.00.000 Вал приводной III ТД149.04.00.000СБ Вал приводной III. Сборочный чертеж ТД149.04.00.001 Вал ТД149.04.01.000 Звездочка z = 40; t = 25,4 ТД149.04.01.011 Ступица ТД149.04.01.000СБ Звездочка z = 40; t = 25,4. Сборочный чертеж ТД149.04.01.012 Венец ТД149.05.00.000 Рама ТД149.05.00.001 Стойка ТД149.05.00.003 Стойка ТД149.05.00.000СБ Рама. Сборочный чертеж ТД149.05.00.004 Врезка ТД149.05.00.005 Стойка ТД149.05.00.006 Стойка средняя ТД149.05.00.007 Стойка средняя ТД149.05.00.010 Лист ТД149.05.00.012 Врезка ТД149.05.00.013 Кронштейн ТД149.05.00.014 Врезка ТД149.05.00.017 Косынка ТД149.05.00.020 Упор ТД149.05.00.021 Врезка ТД149.05.01.000 Направляющий швеллер ТД149.05.01.000СБ Направляющий швеллер. Сборочный чертеж ТД149.05.01.011 Направляющая ТД149.06.00.000 Цепь с толкателями ТД149.06.00.000СБ Цепь с толкателями. Сборочный чертеж ТД149.06.01.000 Толкатель ТД149.06.01.011 Пластина ТД149.06.01.000СБ Толкатель. Сборочный чертеж ТД149.07.00.000 Натяжка ТД149.07.00.000СБ Натяжка. Сборочный чертеж ТД149.07.01.000 Кронштейн ТД149.07.01.000СБ Кронштейн. Сборочный чертеж ТД149.07.00.001 Звездочка ТД149.07.00.002 Корпус подшипника ТД149.07.00.003 Крышка сквозная ТД149.07.00.004 Ось ТД149.07.00.005 Кольцо распорное ТД149.07.00.006 Прокладка ТД150.00.00.000 Бункер ТД150.00.00.001 Уголок ТД150.00.00.002 Лист ТД150.00.00.000СБ Бункер. Сборочный чертеж Ведомость покупных изделий |
| Разработан: | Союзгипролесхоз |
| Утверждён: | 31.07.1986 Гослесхоз СССР (USSR Gosleskhoz 24) |



















































































