Скачать Типовой проект 707-2-30с.94 Альбом 2. Технологические решения. Системы объемоуказания. Антикоррозийная защитаДата актуализации: 01.01.2021
|
| Обозначение: | Типовой проект 707-2-30с.94 |
| Обозначение англ: | 707-2-30с.94 |
| Статус: | не определен законодательством |
| Название рус.: | Альбом 2. Технологические решения. Системы объемоуказания. Антикоррозийная защита |
| Дата добавления в базу: | 01.10.2014 |
| Дата актуализации: | 01.01.2021 |
| Дата введения: | 16.12.1993 |
| Дата окончания срока действия: | 30.06.2003 |
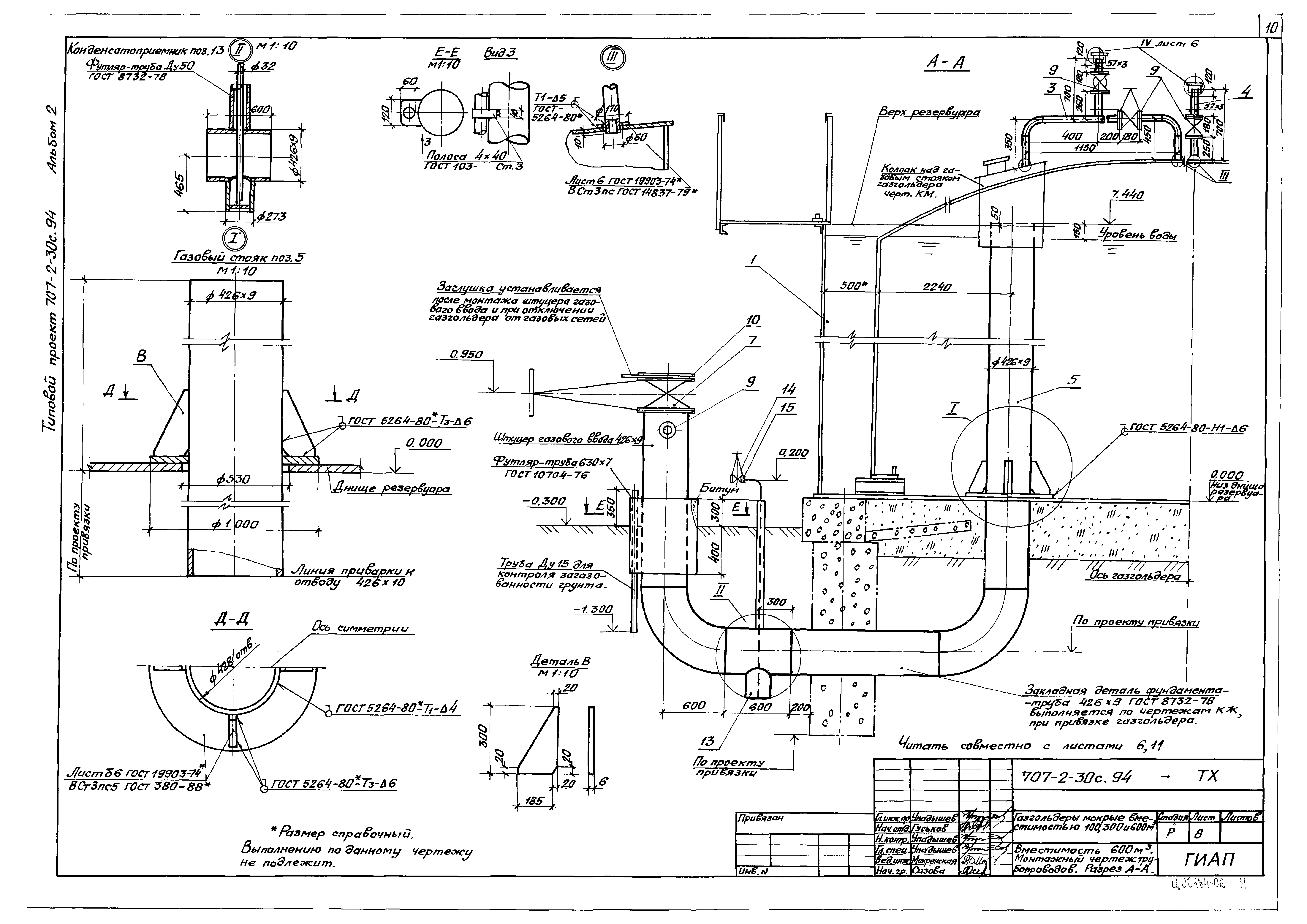
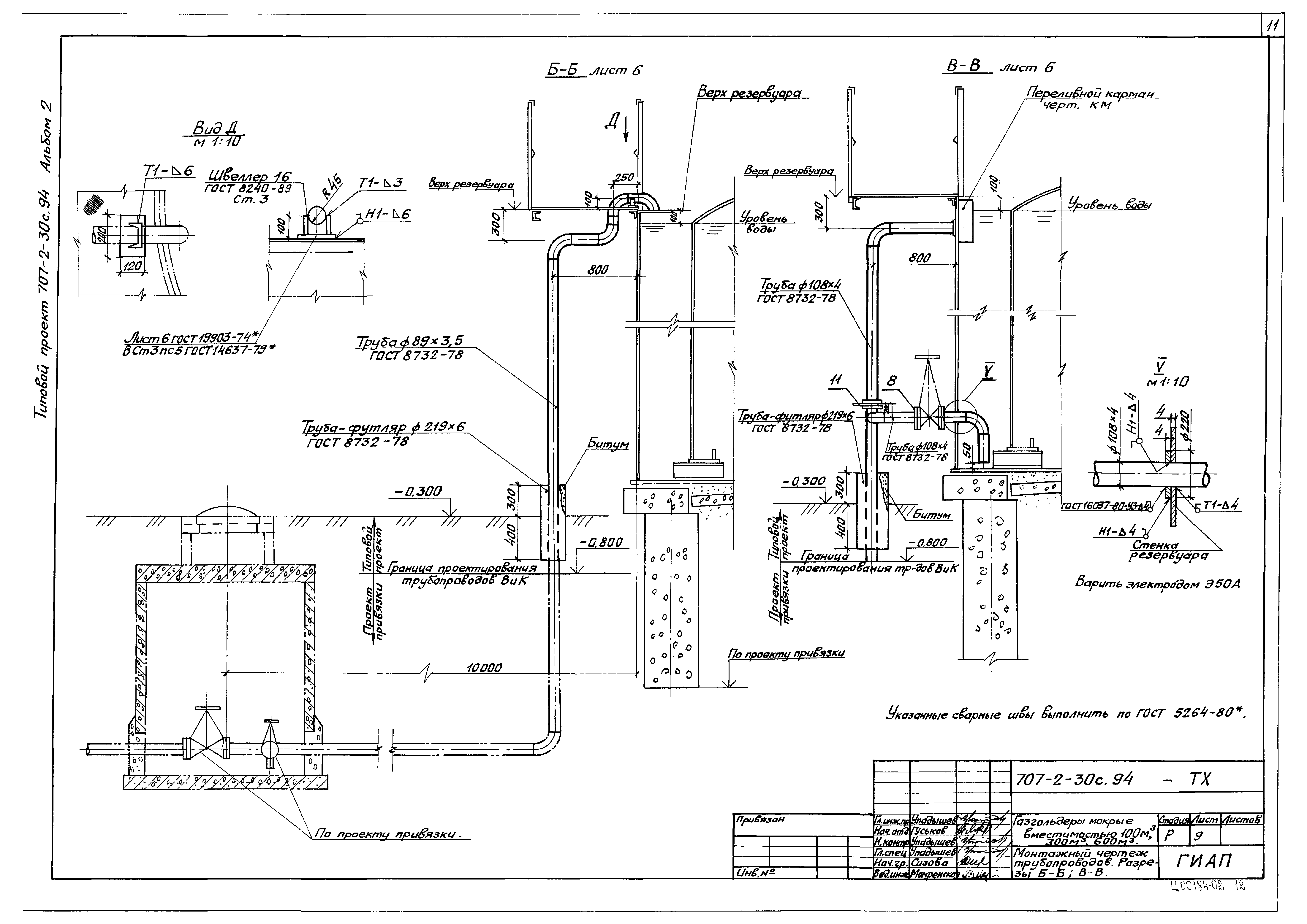
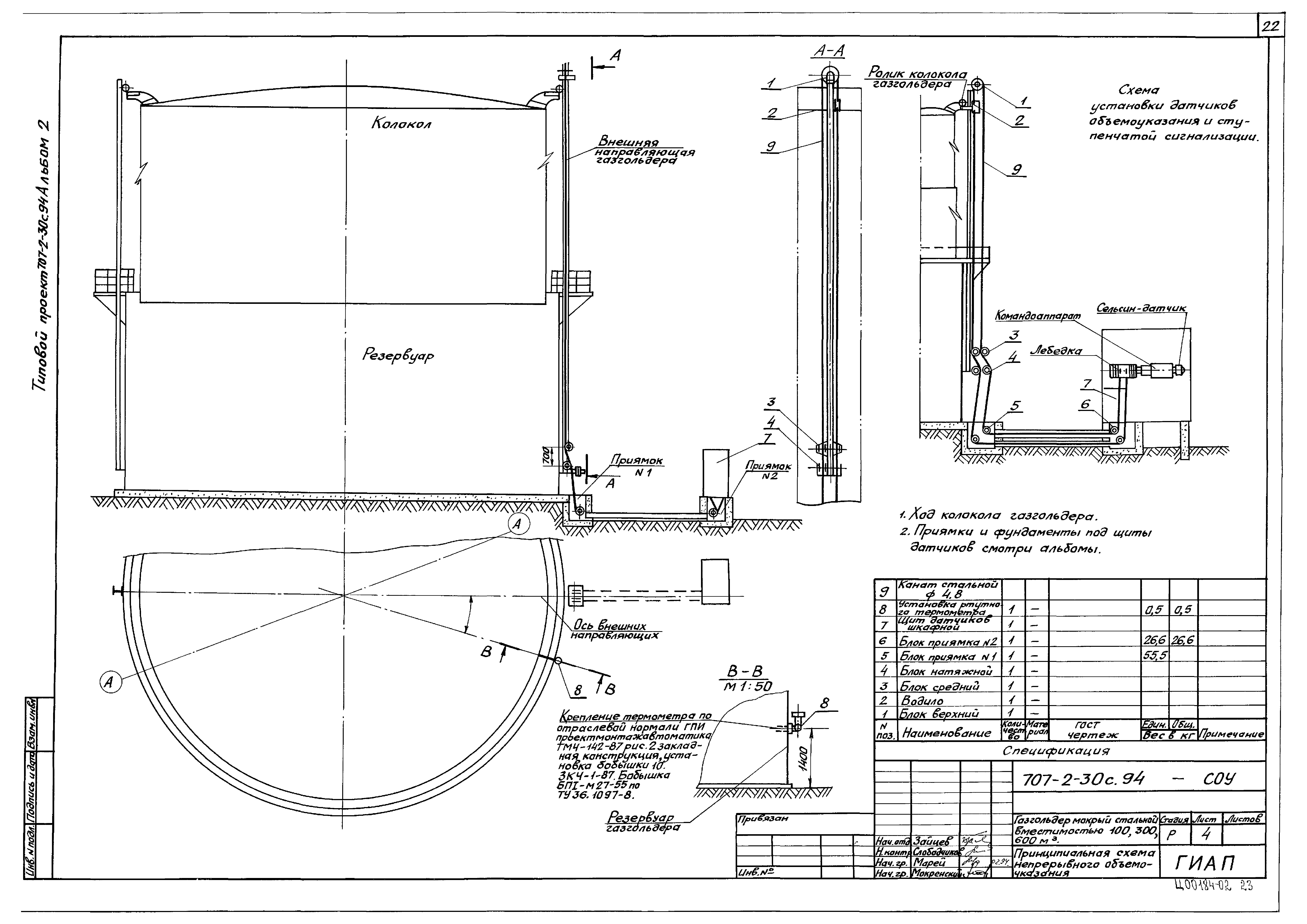
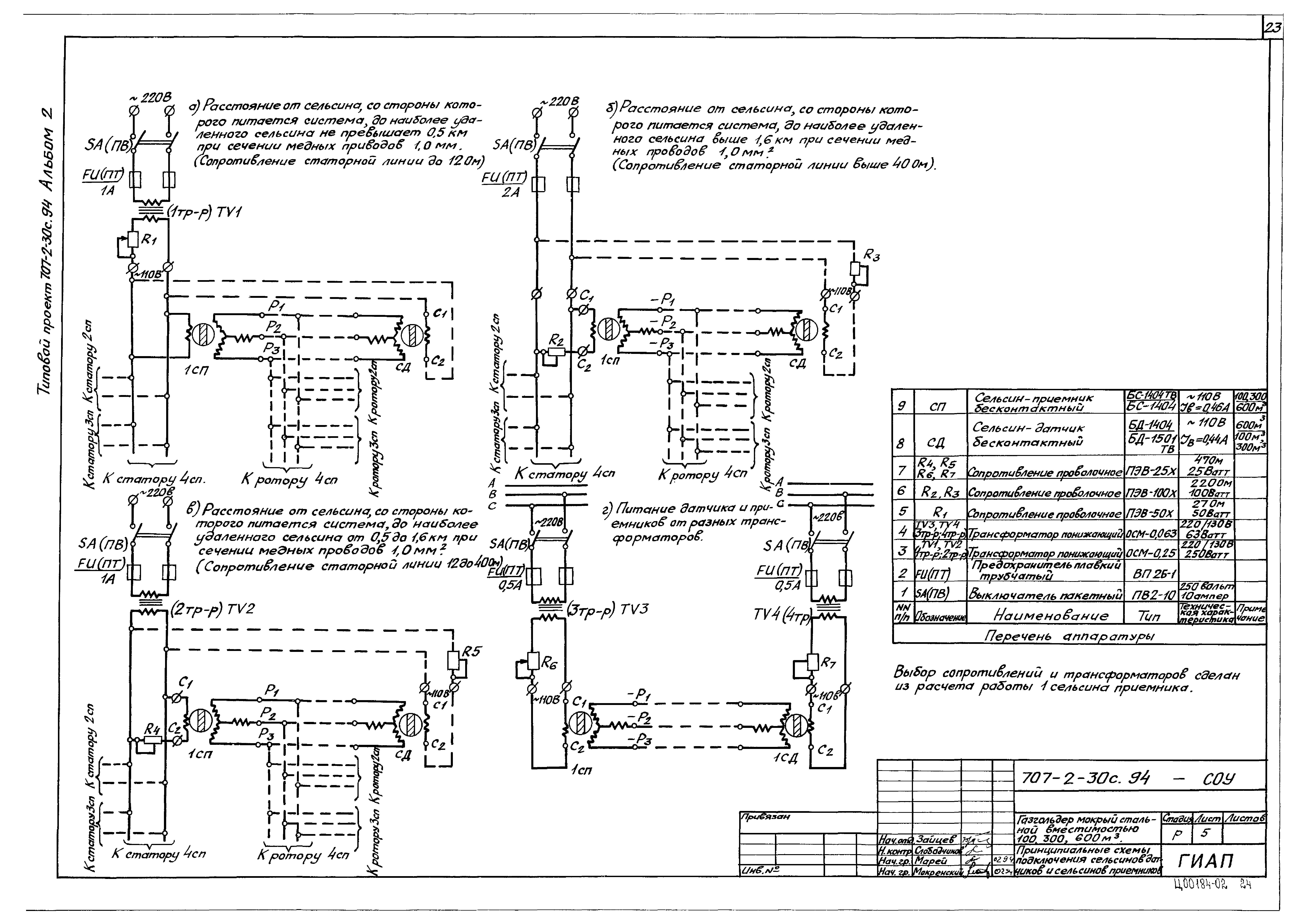
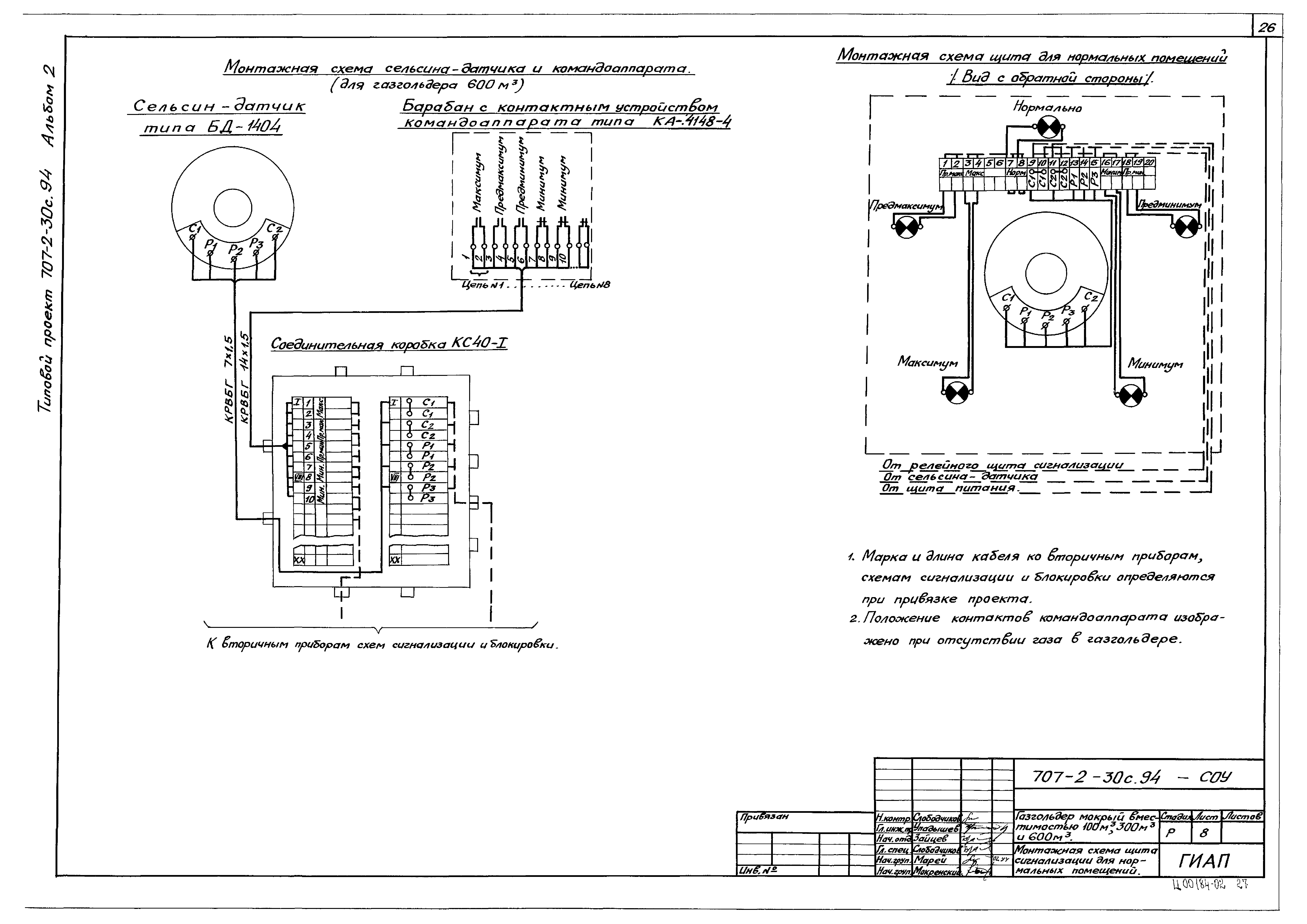
| Оглавление: | Технологическая часть Общие данные Схема трубопроводов Монтажный чертеж трубопроводов. План на отм. 0.000 Вместимость 100 и 300 куб. м. Монтажный чертеж трубопроводов. Разрез А-А Вместимость 600 куб. м. Монтажный чертеж трубопроводов. Разрез А-А Монтажный чертеж трубопроводов. Разрезы Б-Б и В-В Вместимость 100 и 300 куб. м. Монтажный чертеж трубопроводов. Разрез Г-Г Вместимость 600 куб. м. Монтажный чертеж трубопроводов. Разрез Г-Г Резервуар газгольдера. Планы, разрезы и схема обогрева №1 (без утепления) Резервуар газгольдера. Планы, разрезы и схема обогрева №2 (с утеплением) Установка и крепление нагревательных приборов в резервуарах Узлы крепления трубопроводов к площадкам резервуара Шкаф датчиков объемоуказания газа. План, разрезы, схема обогрева Системы объемоуказания Общие данные Принципиальная схема непрерывного объемоуказания Принципиальные схемы подключения сельсин-датчиков и сельсин-приемников Диаграмма работы контактов командоаппарата Монтажная схема сельсин-датчика и командоаппарата Монтажная схема щита сигнализации для нормальных помещений Антикоррозийная защита Общие данные Конструкции антикоррозийной защиты |
| Разработан: | ГИАП |
| Утверждён: | 16.12.1993 Роскомхимнефтепром (Roskomkhimnefteprom 09/1-1-14Б) |
| Заменяет собой: |
|






























