Скачать Типовой проект 264-12-318.92 Альбом 3. Пояснительная записка. Конструкции металлическиеДата актуализации: 01.01.2021
|
| Обозначение: | Типовой проект 264-12-318.92 |
| Обозначение англ: | 264-12-318.92 |
| Статус: | не определен законодательством |
| Название рус.: | Альбом 3. Пояснительная записка. Конструкции металлические |
| Дата добавления в базу: | 01.10.2014 |
| Дата актуализации: | 01.01.2021 |
| Дата введения: | 17.09.1992 |
| Дата окончания срока действия: | 30.06.2003 |
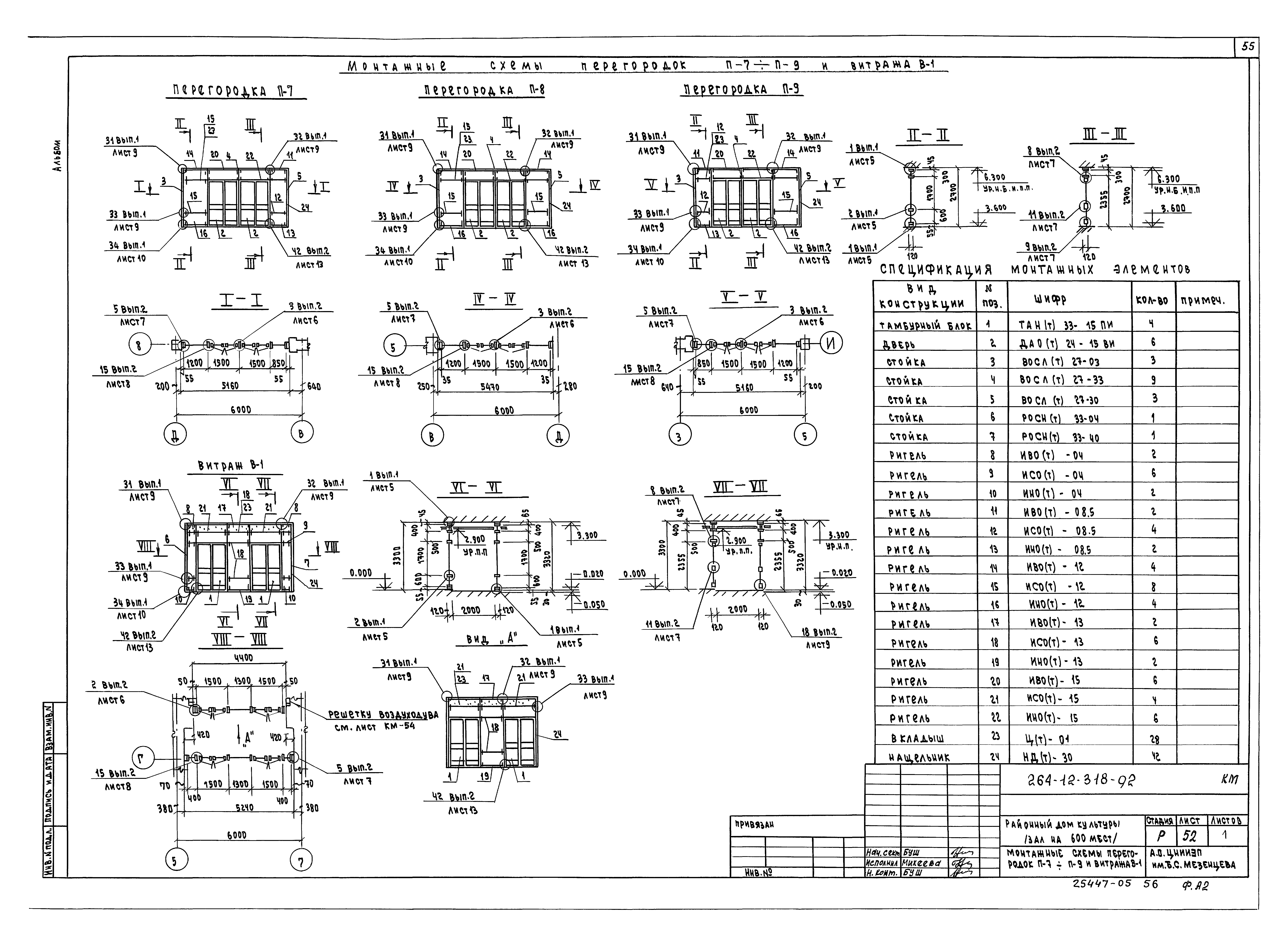
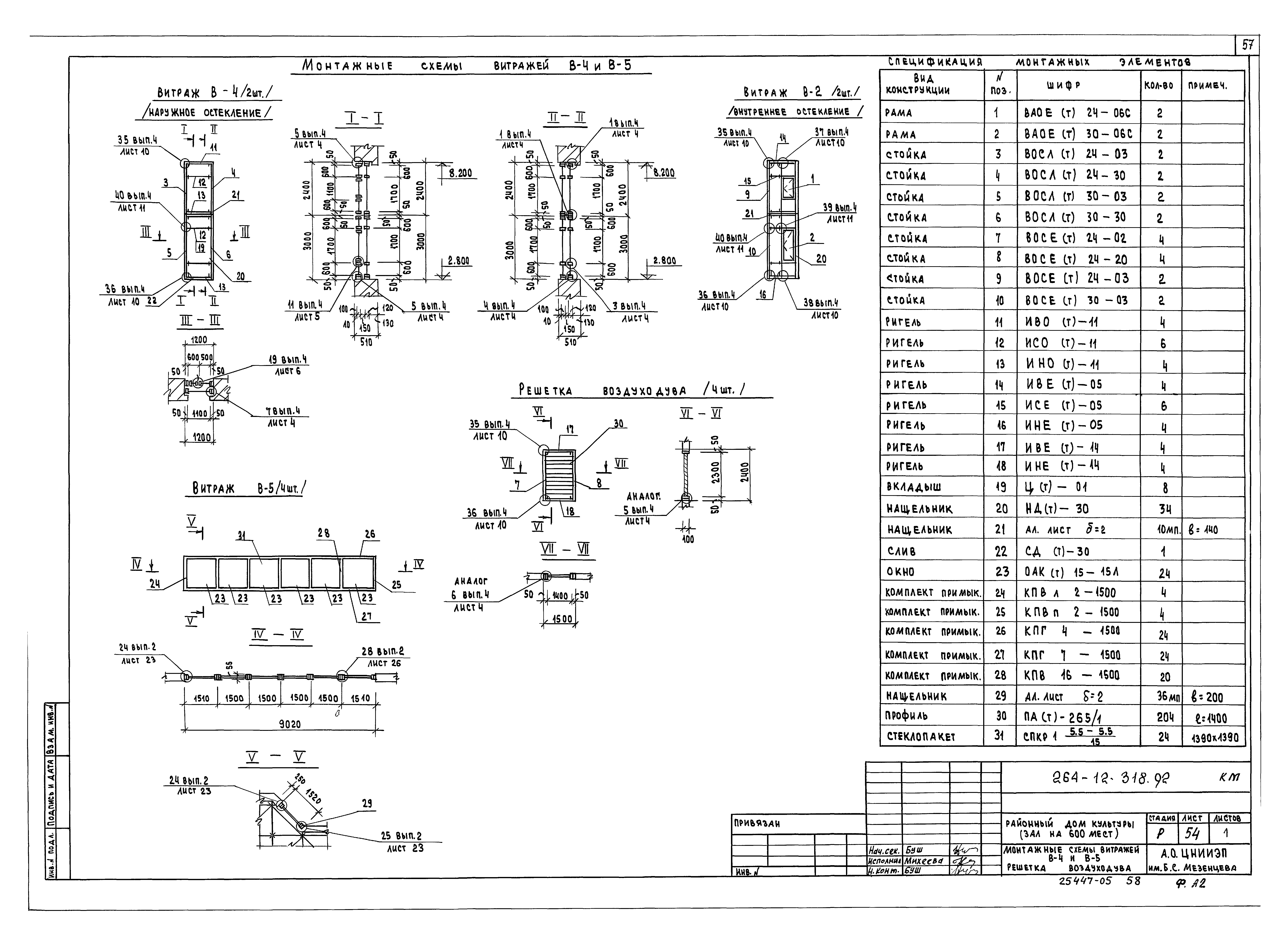
| Оглавление: | Пояснительная записка Конструкции металлические Общие данные Зона 1. Схема каркаса на отм. 0.000 Зона 1. Каркас на отм. 0.000. Узлы каркаса 1 - 4 Зона 1. Каркас выше отм. 0.650 Зона 1. Каркас выше отм. 0.650. Узлы каркаса "5" и "6" Зона 1. Пространственная решетчатая конструкция. Схемы стержней поясов. Спецификация Зона 1. Пространственная решетчатая конструкция. Разрез I-I. Схемы раскосов. Узлы 1, 2 Зона 1. Пространственная решетчатая конструкция. Стержневые и узловые элементы. Пояснительная записка Порталы №№1, 2. Монтажная схема ригеля. Спецификация Планы штакетных и колосниковых балок. Монтажные узлы №I и II, фермы Фм-1 Ферма ОМ-1. Монтажный узел III. Спецификация на монтажные элементы фермы Фм-2 Ферма Фм-1. Схемы, таблица элементов. Узлы 1 и 2 Ферма Фм-1. Узлы 3 - 9 Балки БМ-1 - БМ-4 Балки БМ-5 - БМ-10 Балки БМ-11 - БМ-15 Схема связей и балок по верхнему и нижнему поясам ферм Фм-2 Монтажные узлы 1 - 8 фермы Фм-2 Монтажные узлы 9 - 16 фермы Фм-2 Ферма Фм-2. Схемы, таблица элементов и техническая спецификация стали Ферма Фм-2. Узлы 1 - 7 Металлические балки БМ-17, БМ-25 - БМ-28 Металлические балки БМ-16, БМ-18, БМ-29, БМ-30 Монтажная схема балок на отм. 5.450 Монтажная схема балок на отм. 5.450. Узлы 1 - 6 Монтажная схема ферм Ф-3. Узел "А" Техническая спецификация стали Лестницы №5 и 6. Монтажные схемы Лестница №7. Монтажная схема. Техническая спецификация стали Лестницы №5, 6, 7. Узлы 1 - 4 Лестницы №5, 6, 7. Ограждения лестниц ОЛ-1 - ОЛ-7 Лестница ЛМ-1. Ограждение ОЛ-8. Балка ИМ-13. Рамка ИМ-15 Металлические лестницы и стремянки Планы рабочих галерей на отм. 9.300; 12.000 и 14.900. Фрагмент 1 Разрезы рабочих галерей. Сечения 3-3 и 5-5. Узлы А - Д Рабочие галереи. Сечения 4-4 - 9-9. Узлы "Е", "Ж". Детали I - III План штакетных балок. Сечения 1-1 - 5-5 План колосников. Сечения 7-7 - 10-10 Арьерсцена. Планы колосниковых и штакетных балок и консолей под стеллажи сейфа. Разрезы Арьерсцена. Узлы А - Е Арьерсцена. Расположение направляющих. Узел "И" Развертки стен по осям "Т" и "Ш". Сечения 1-1 - 3-3 Развертка стены по оси "8". Фрагмент дымового люка. Сечения 4-4 - 8-8 Развертка стены по оси "Ш". Сечения 1-1 - 5-5 Металлические изделия М-1 - М-4 Конструкция барьера оркестровой ямы. Кожуха рампы ИМ-10 и ИМ-11 Ходовые мостики. План. Сечения Ходовые мостики. Разрез 1-1. Узлы 1 - 3 Склад объемных декораций. Крановые пути Монтажные схемы перегородок П-1, П-2 Монтажные схемы перегородок П-3 - П-6 Монтажные схемы перегородок П-7 - П-9, витража 3-1 Монтажные схемы витражей В-2, В-3 Монтажные схемы витражей В-4, В-5, решетка воздуходува Спецификация монтажных элементов с поз. 1 по 59 Спецификация монтажных элементов с поз. 60 по 90 |
| Разработан: | ЦНИИЭП им. Б.С. Мезенцева Госкомархитектуры |
| Утверждён: | 29.11.1991 Госкомархитектура (2-129) |



























































