Скачать Типовой проект 264-12-318.92 Альбом 7. Пояснительная записка. Силовое электрооборудование. Установка электрооборудования и прокладка трубДата актуализации: 01.01.2021
|
| Обозначение: | Типовой проект 264-12-318.92 |
| Обозначение англ: | 264-12-318.92 |
| Статус: | не определен законодательством |
| Название рус.: | Альбом 7. Пояснительная записка. Силовое электрооборудование. Установка электрооборудования и прокладка труб |
| Дата добавления в базу: | 01.10.2014 |
| Дата актуализации: | 01.01.2021 |
| Дата введения: | 17.09.1992 |
| Дата окончания срока действия: | 30.06.2003 |
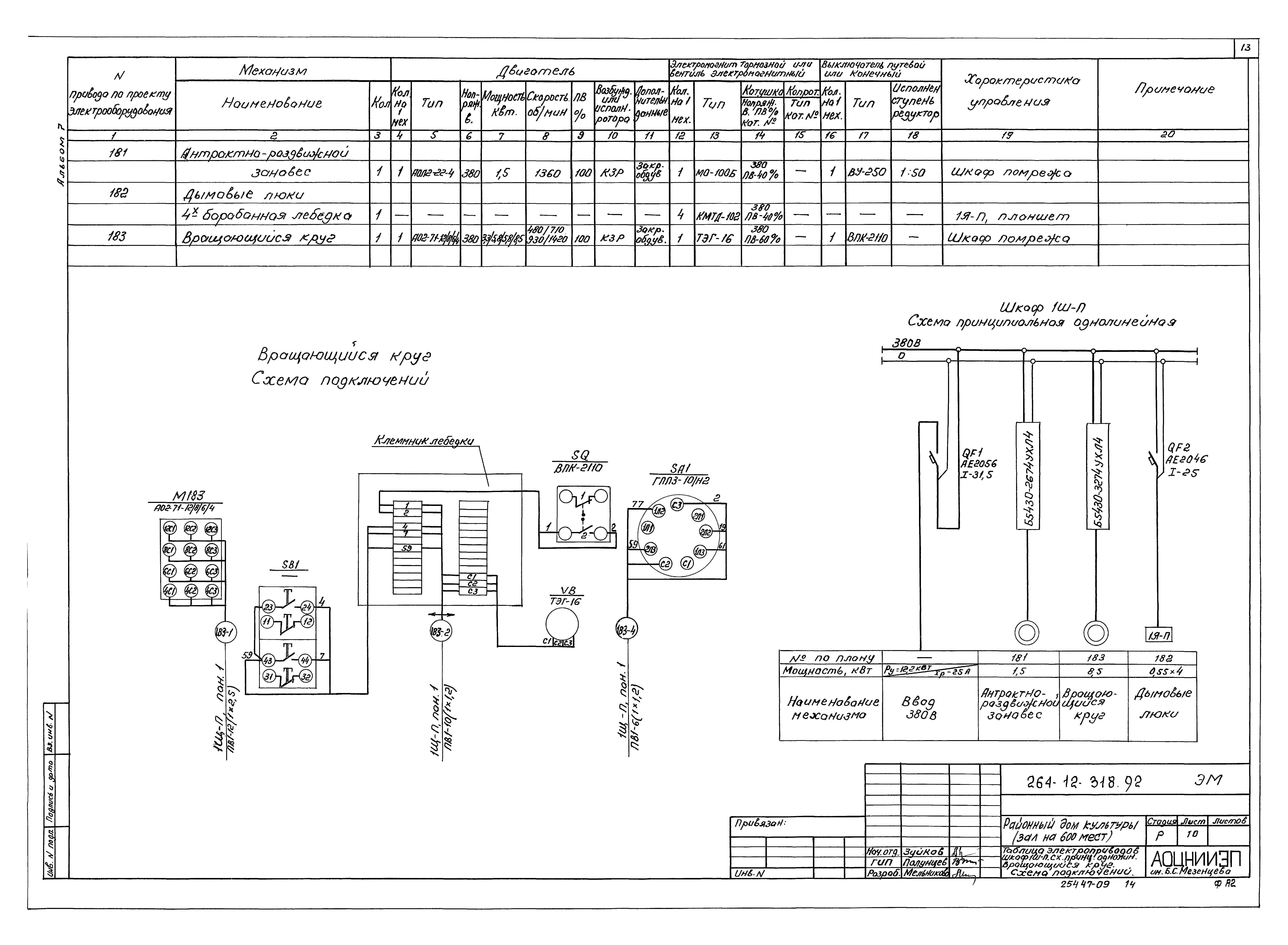
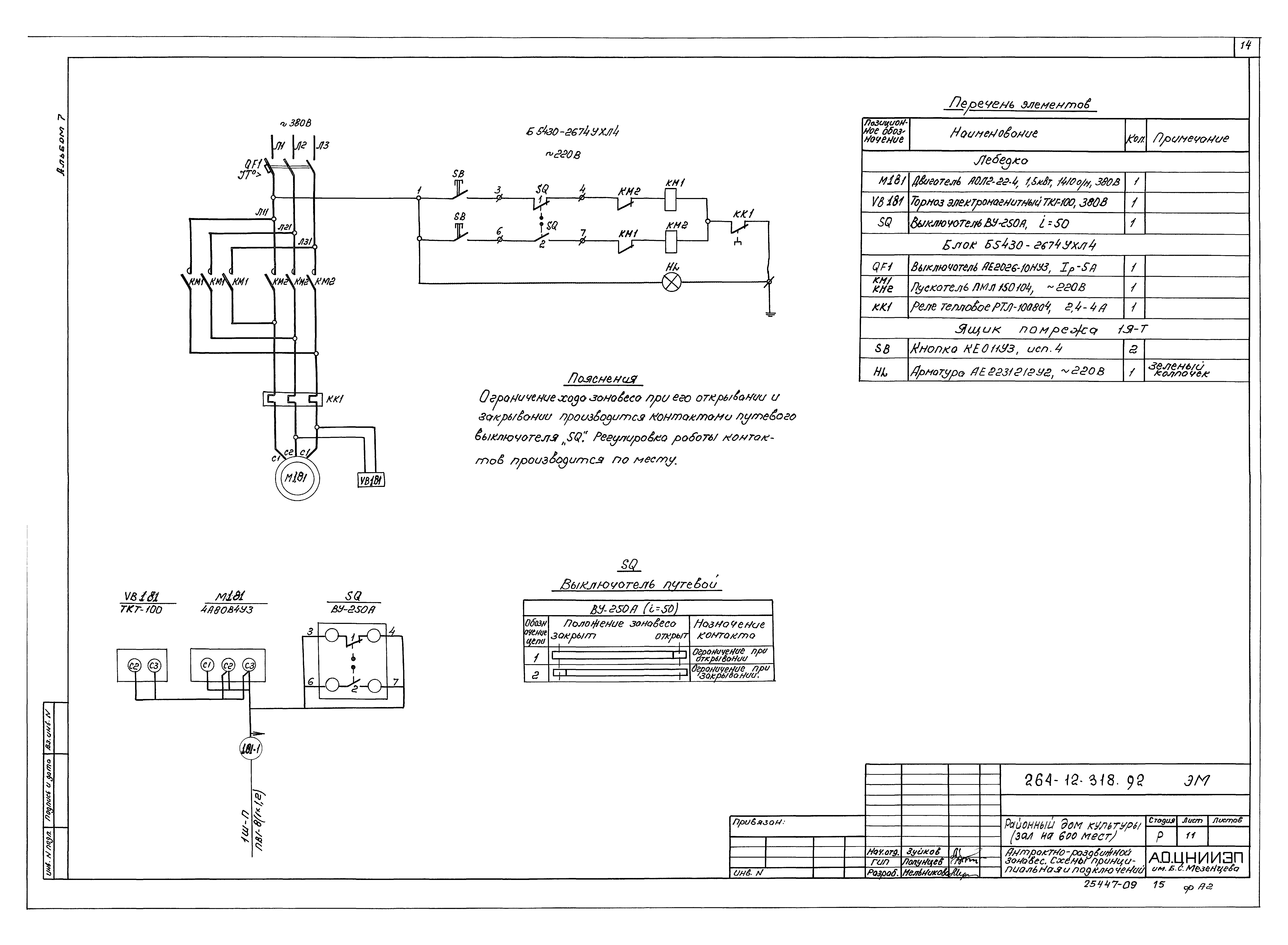
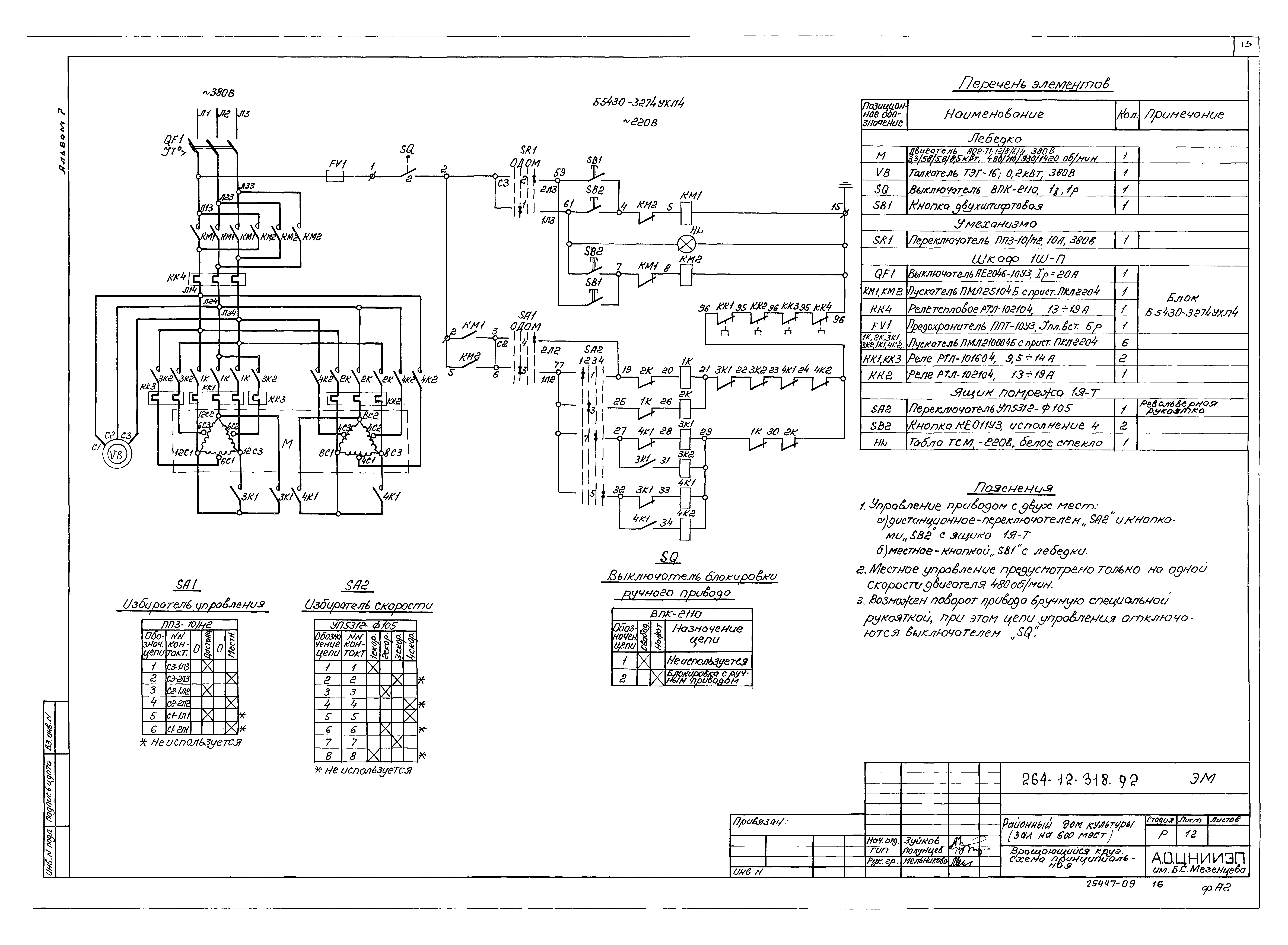
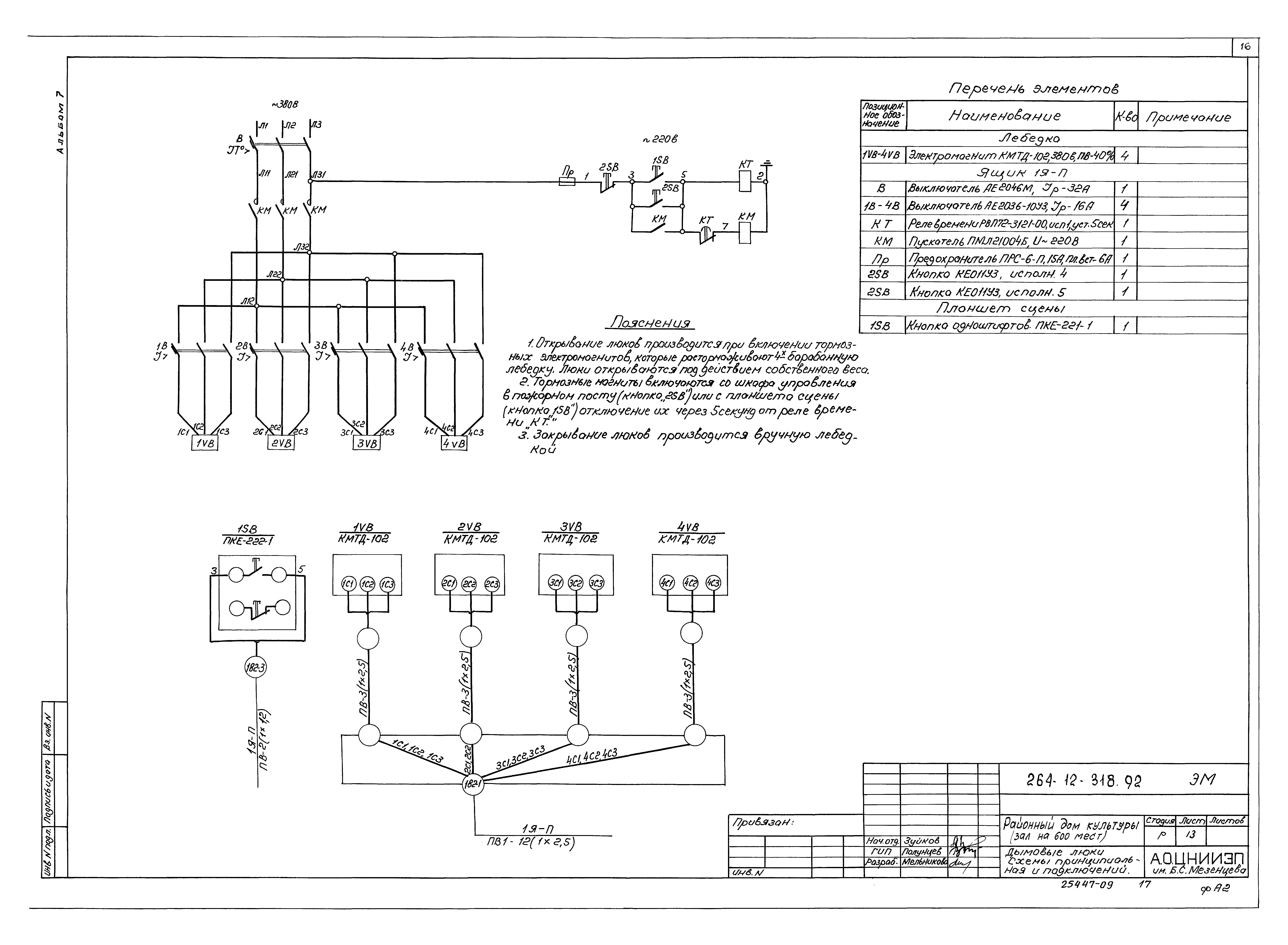
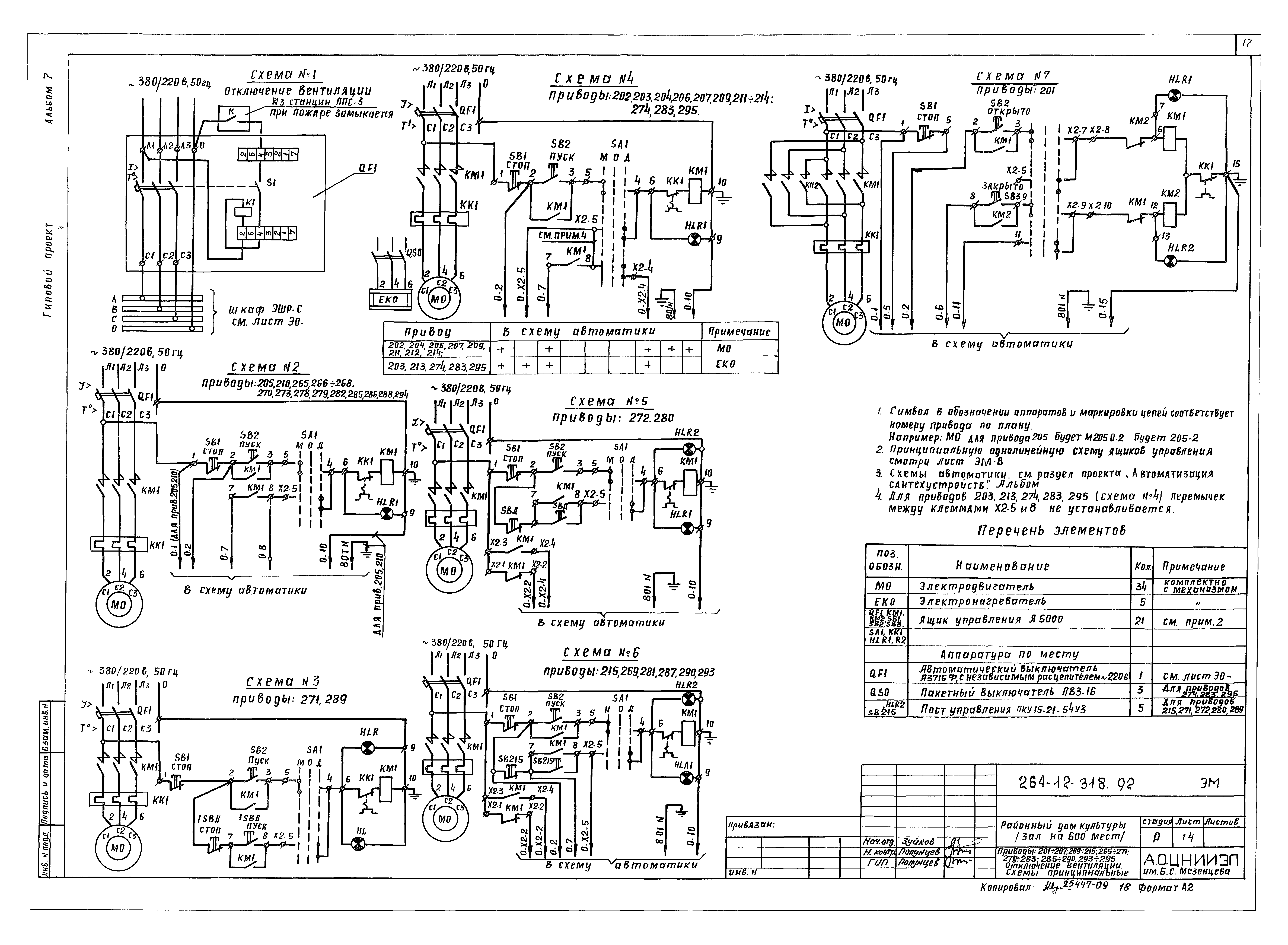
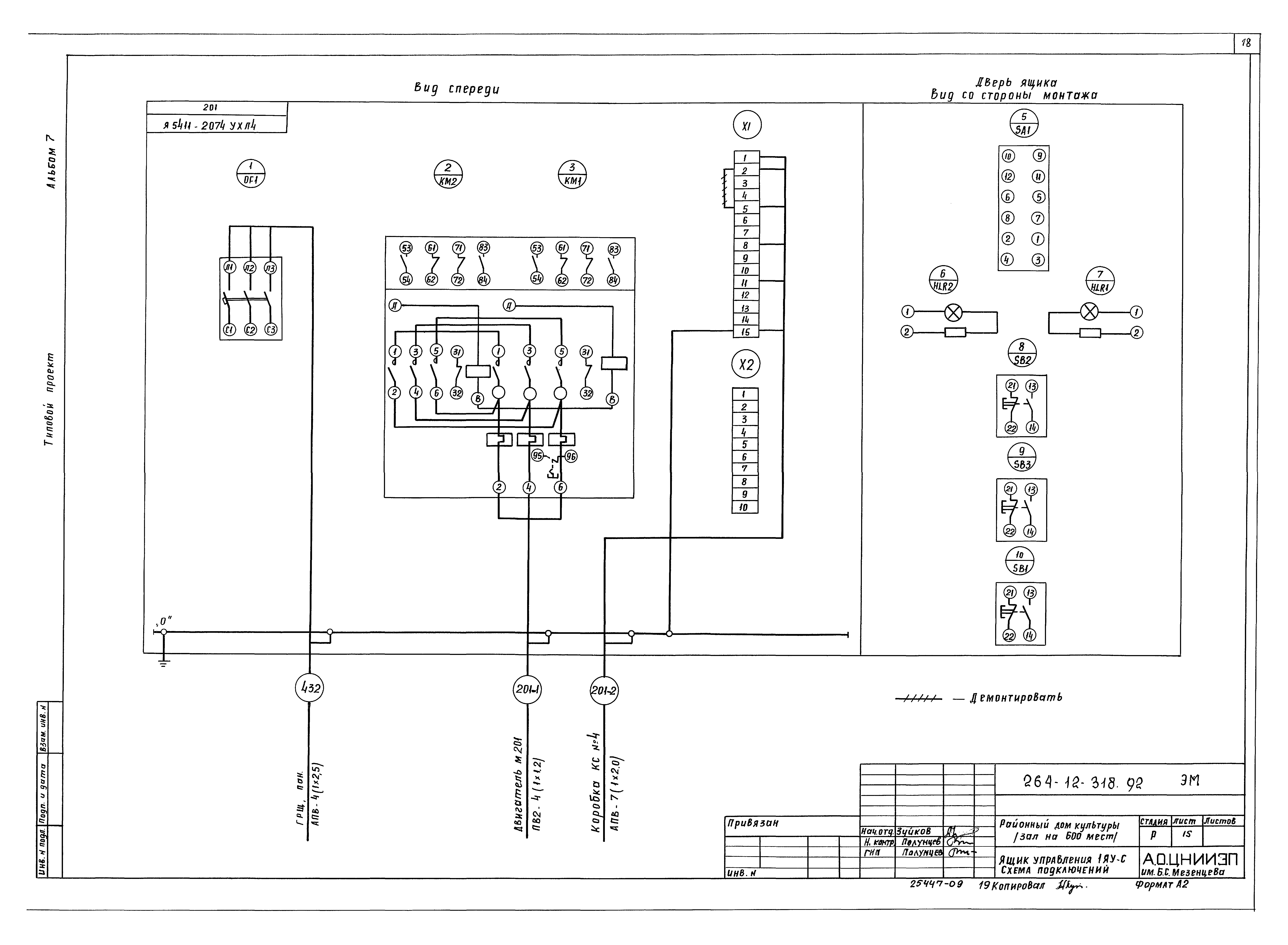
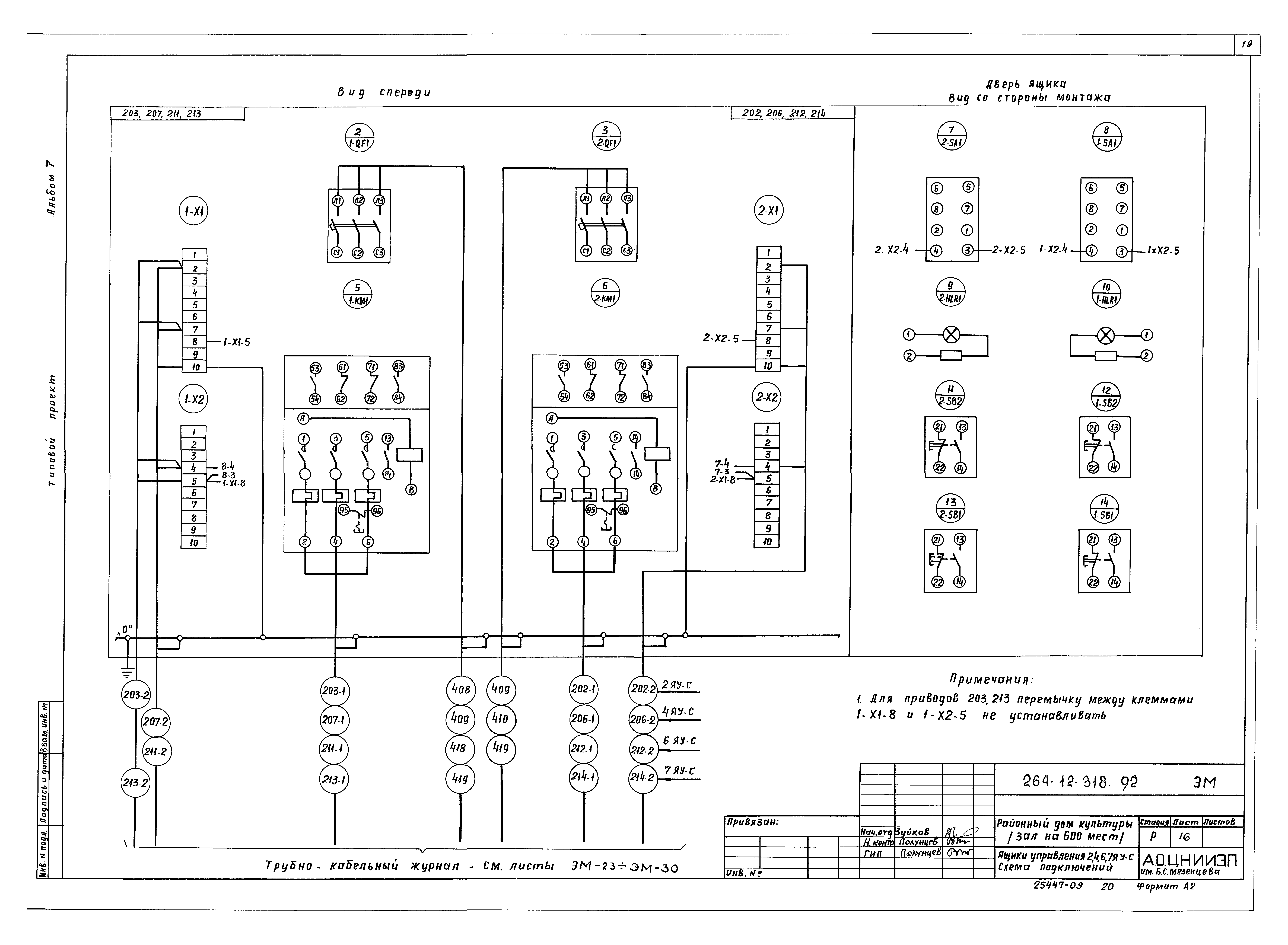
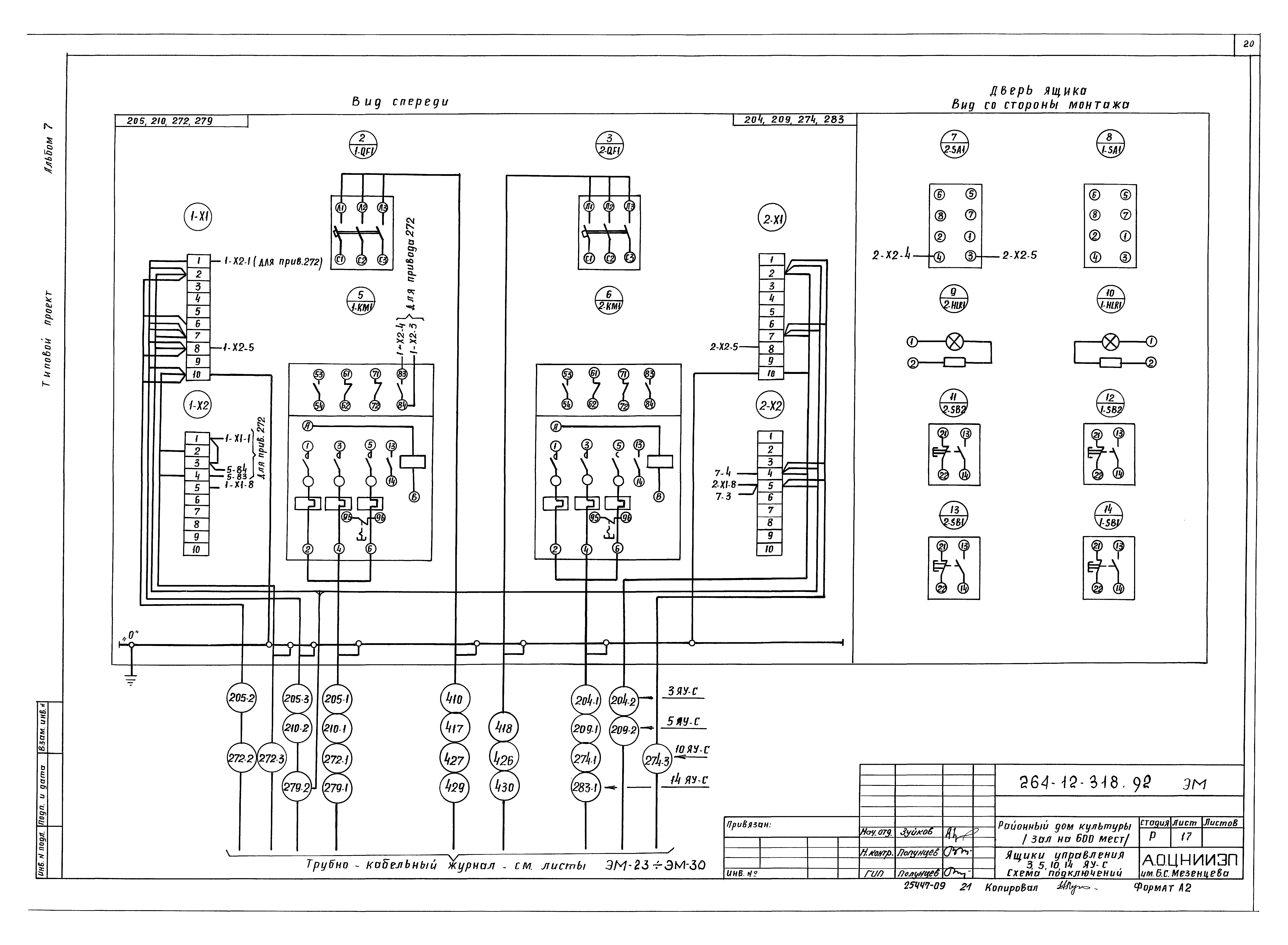
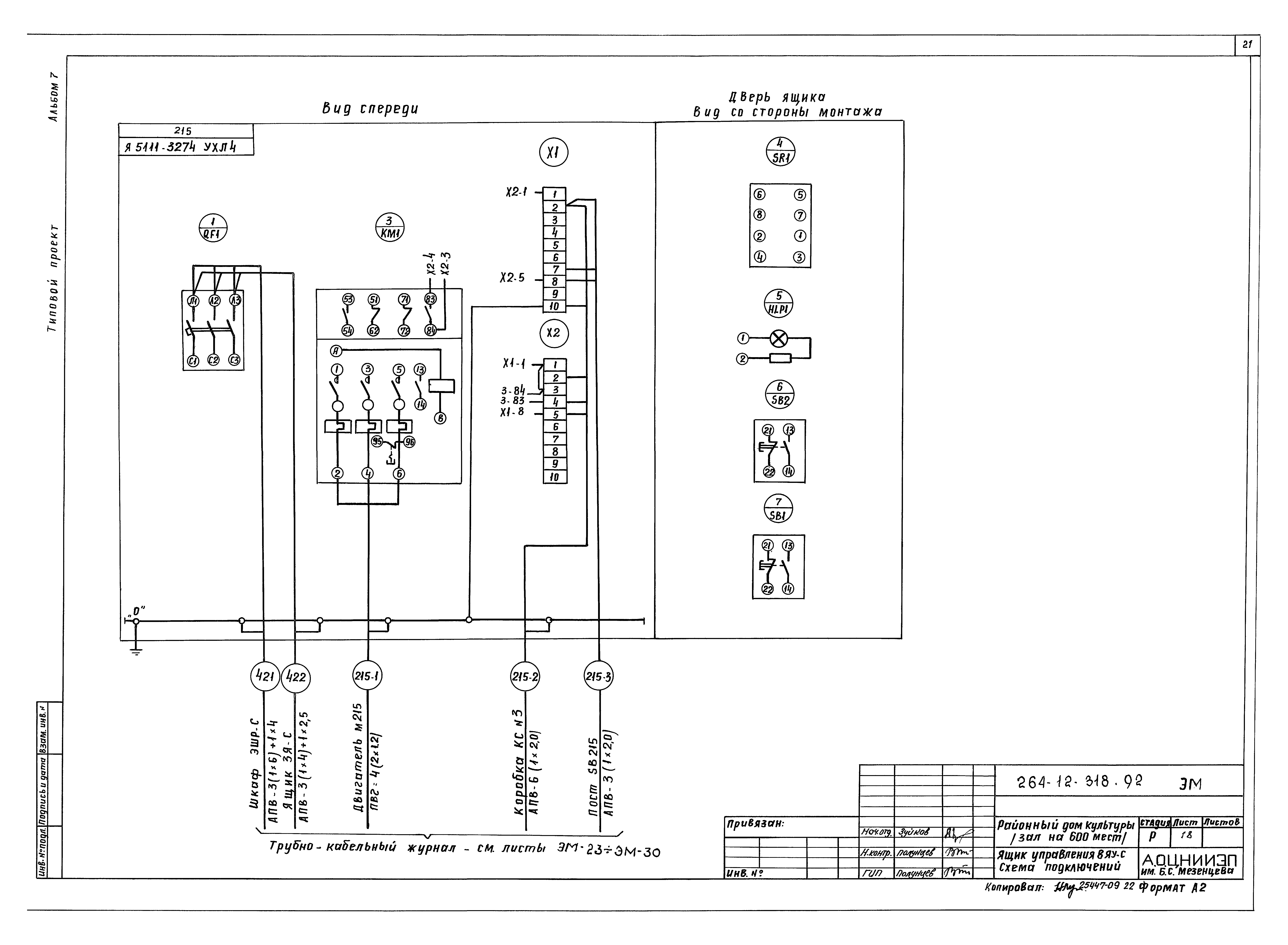
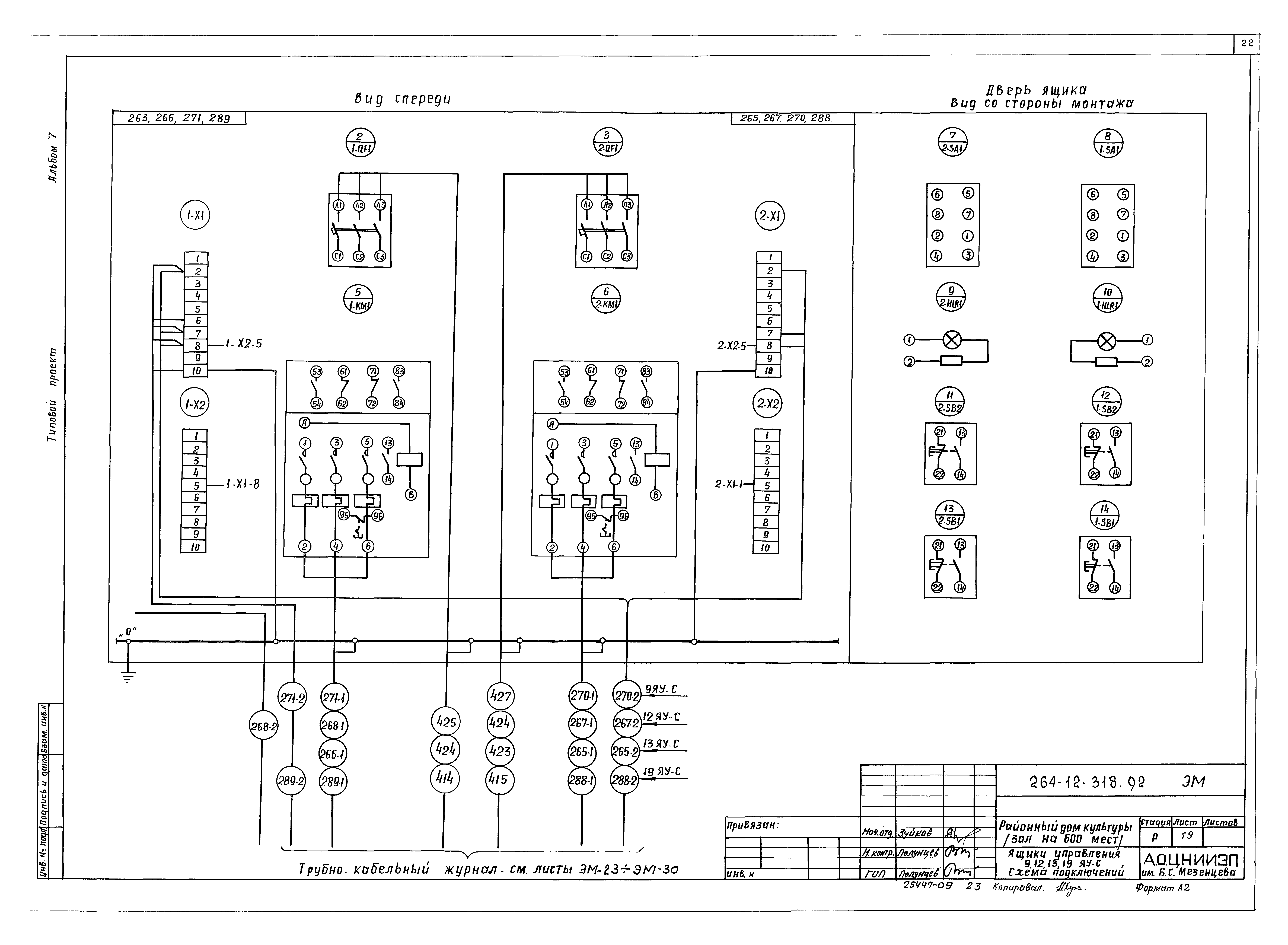
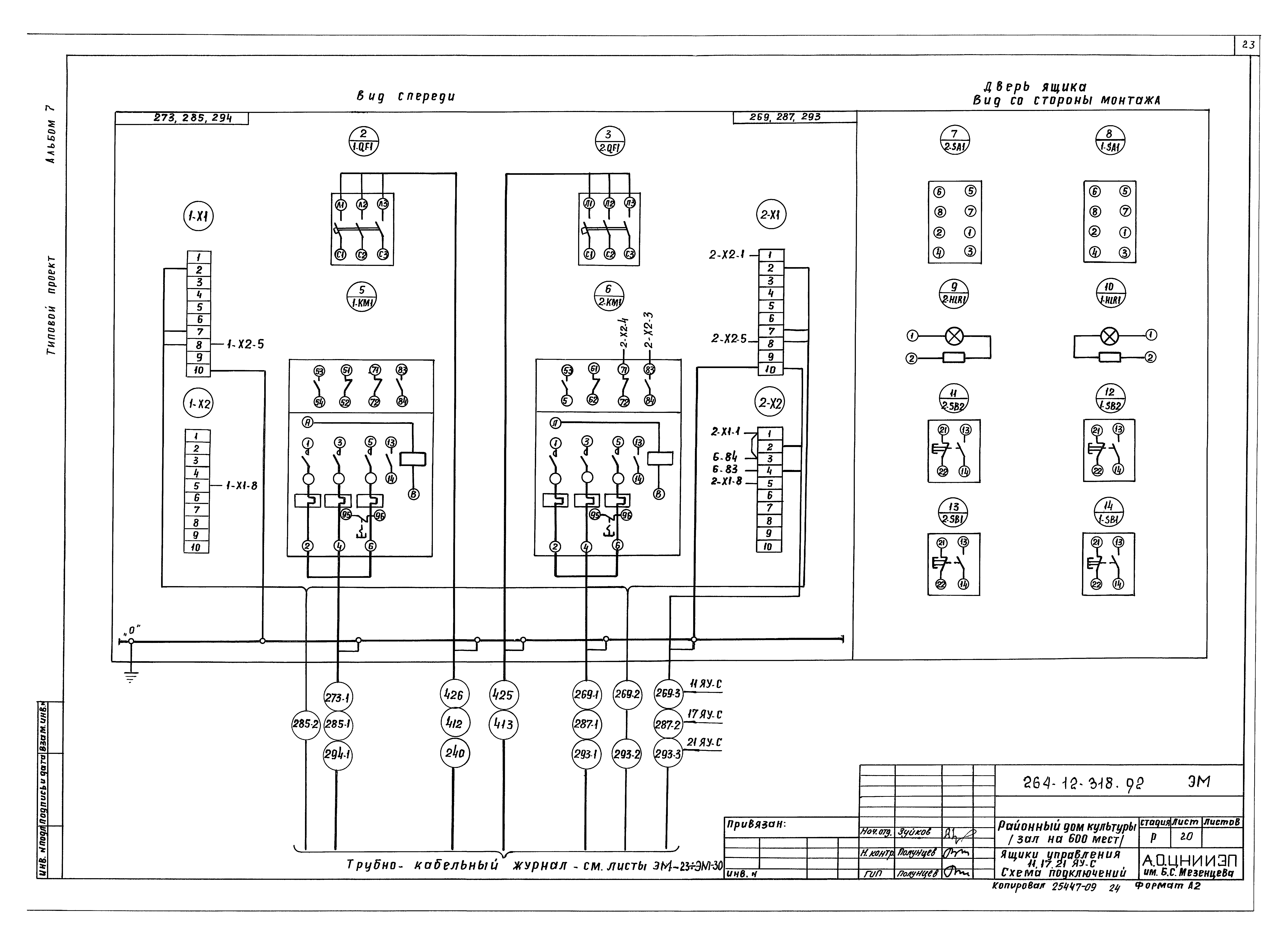
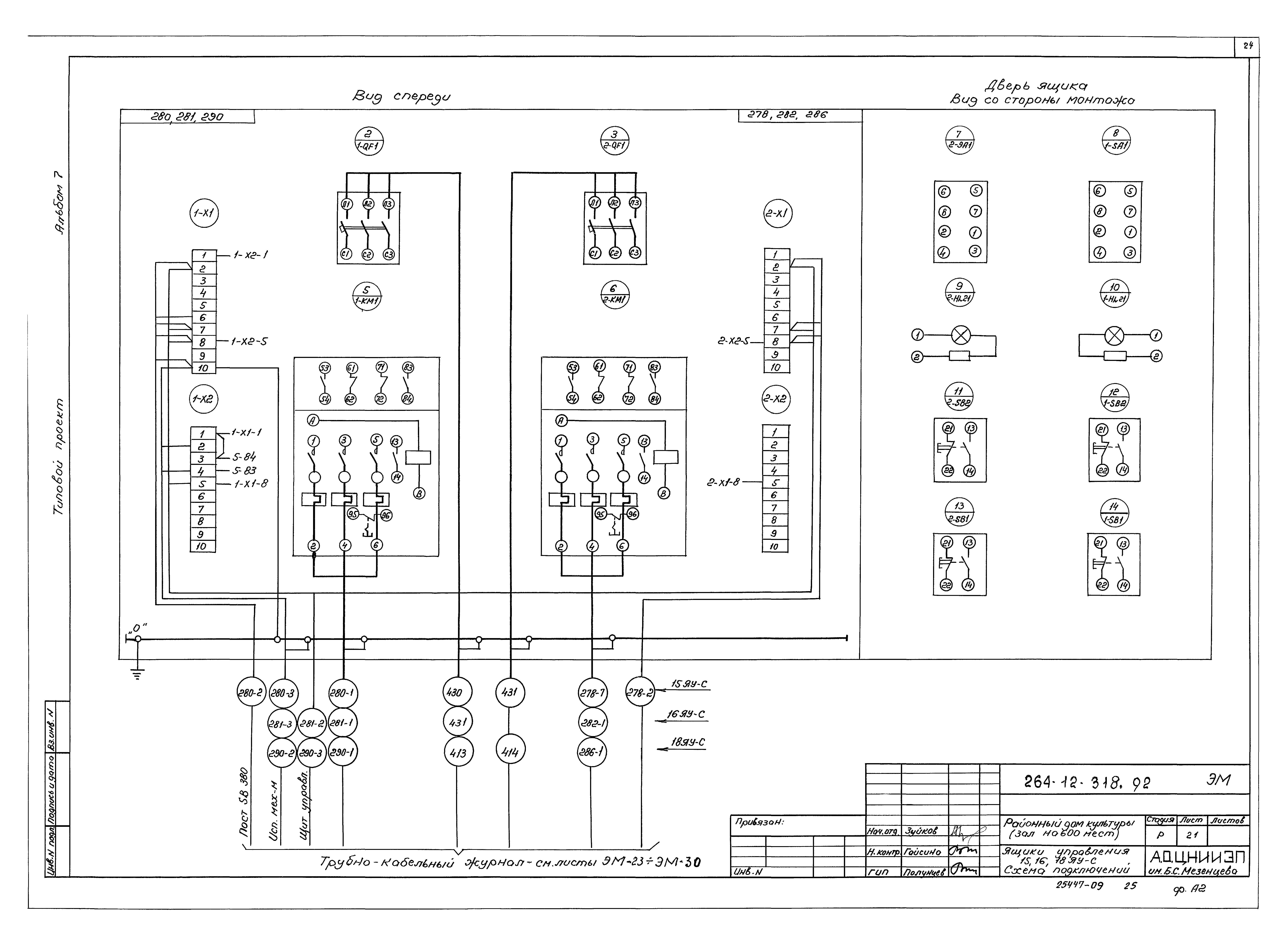
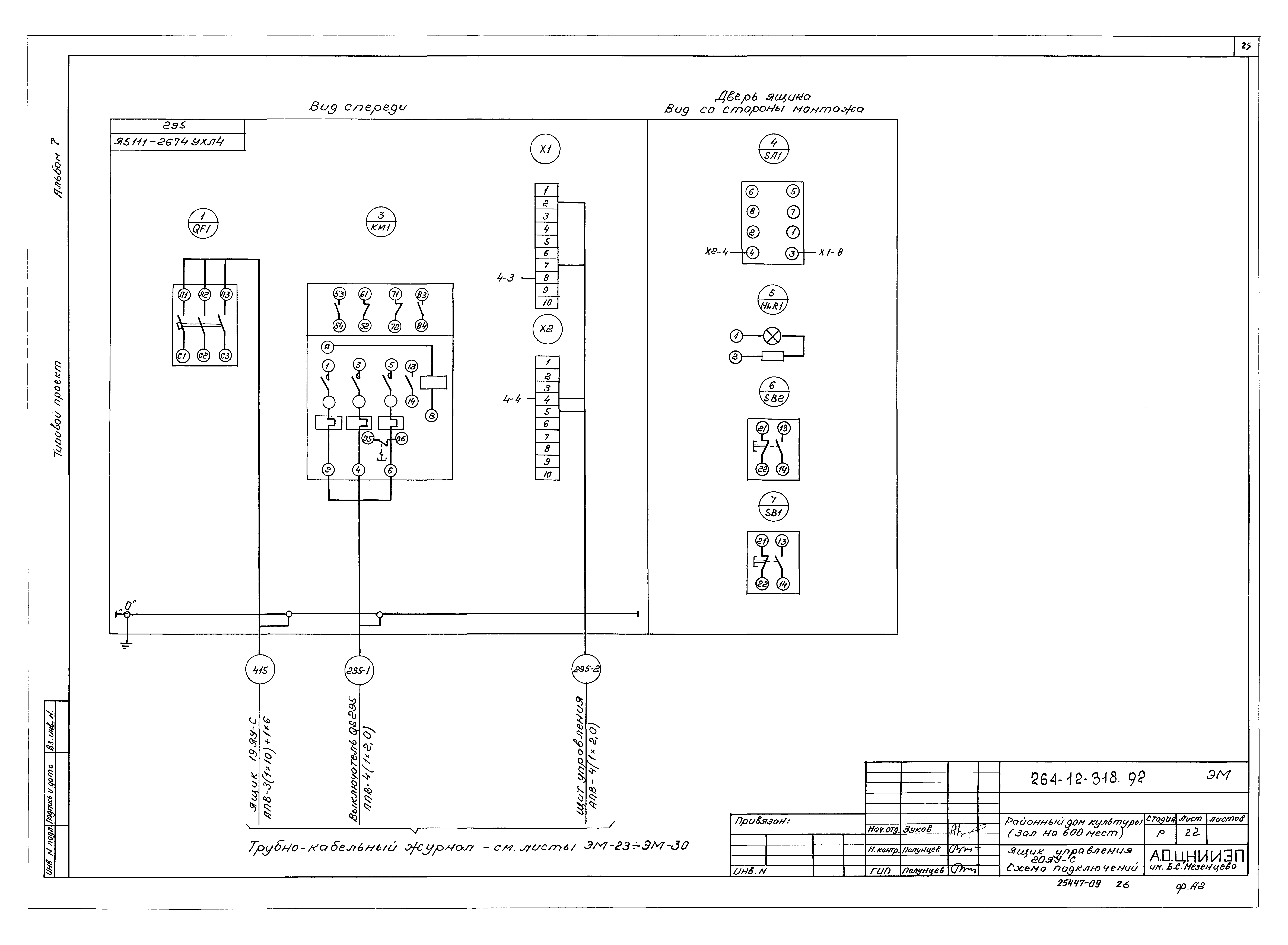
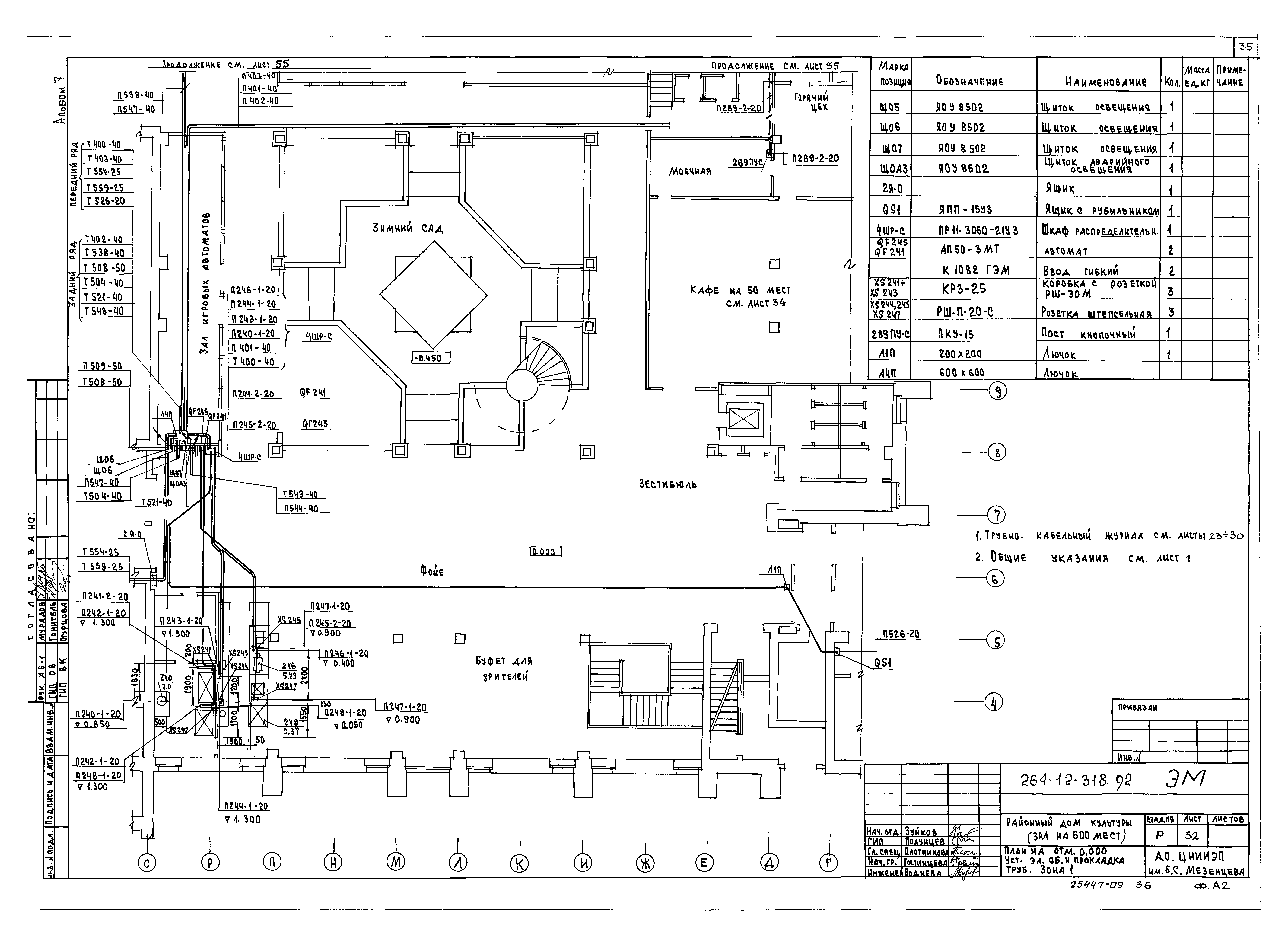
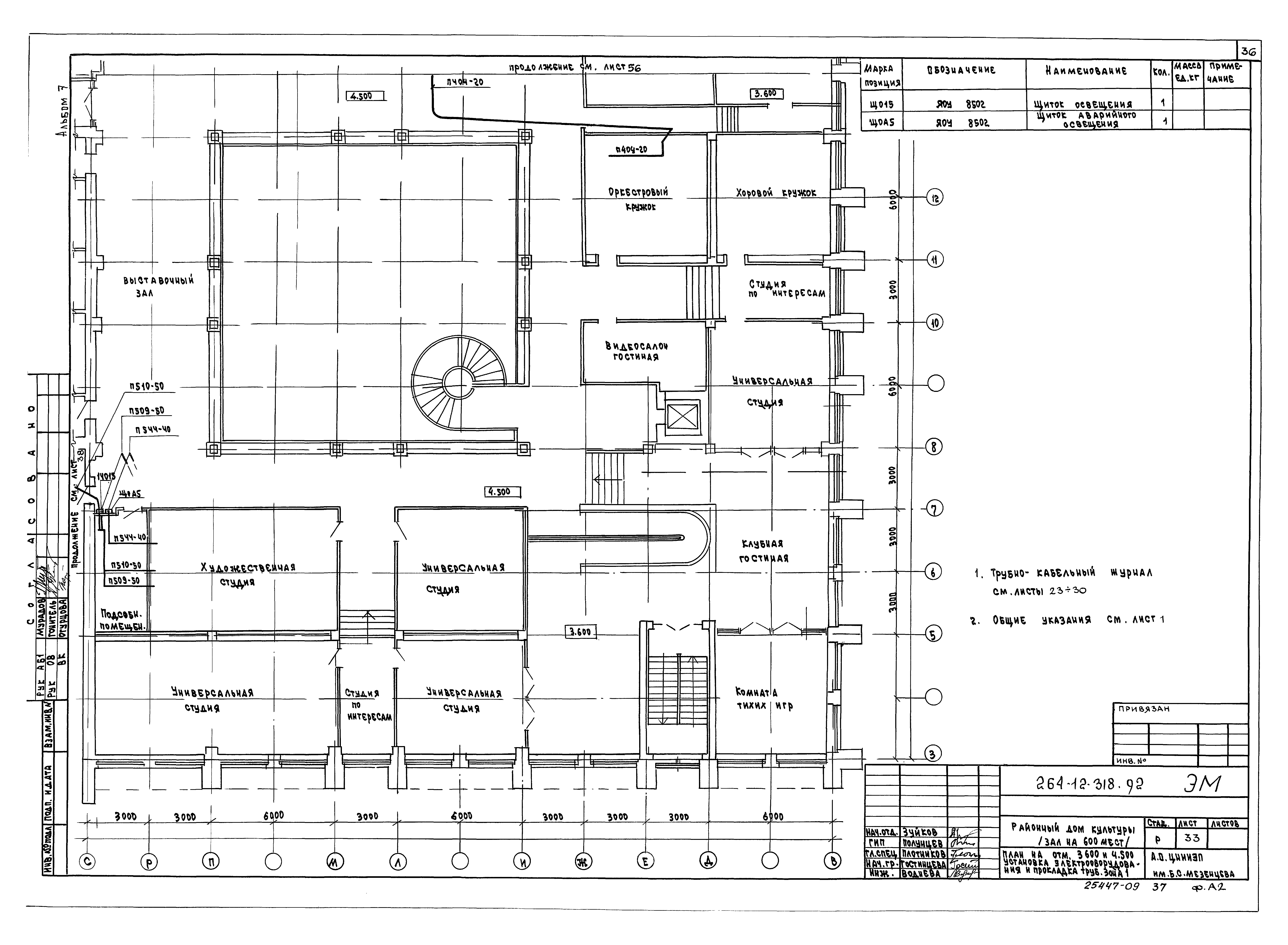
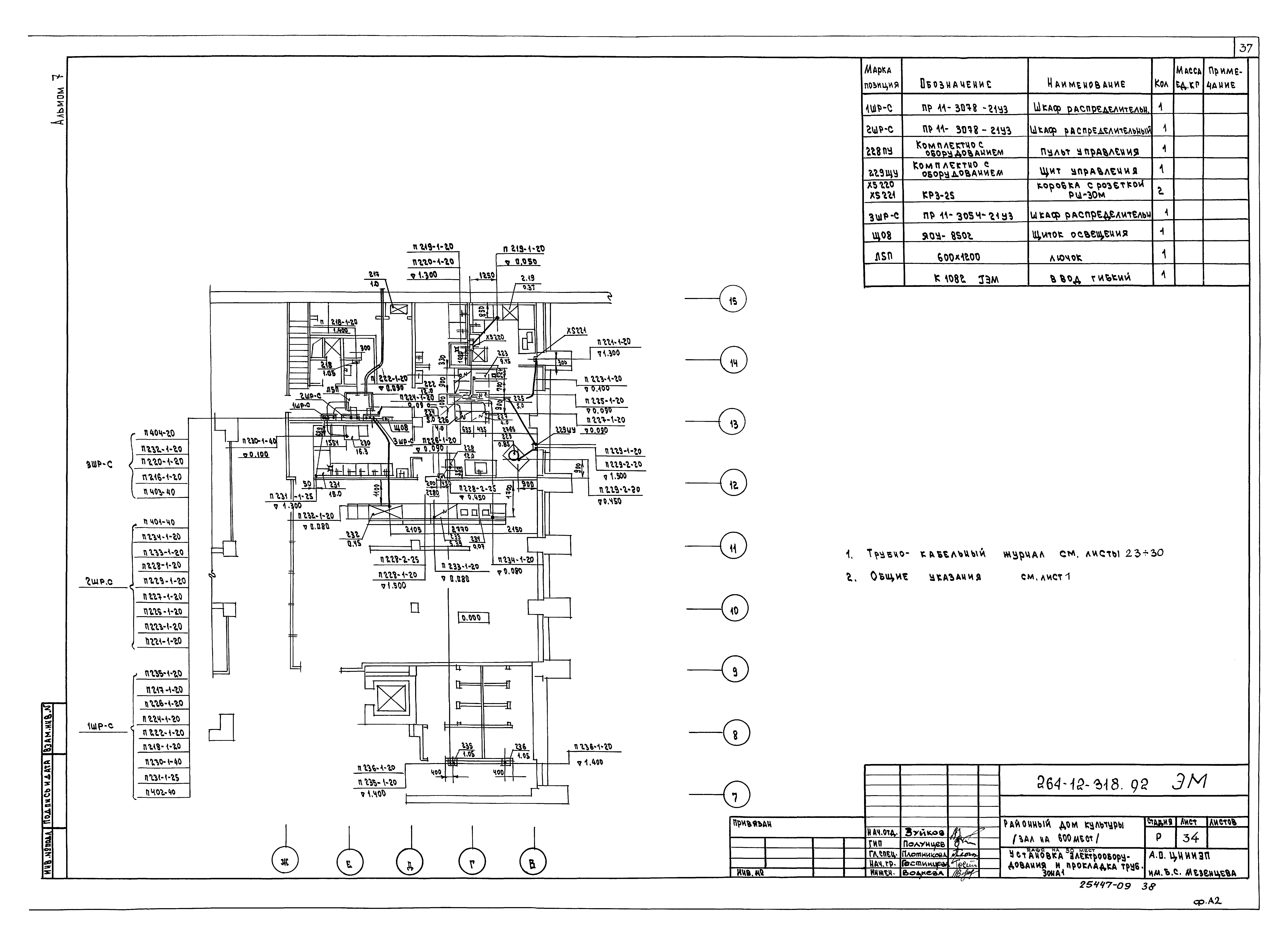
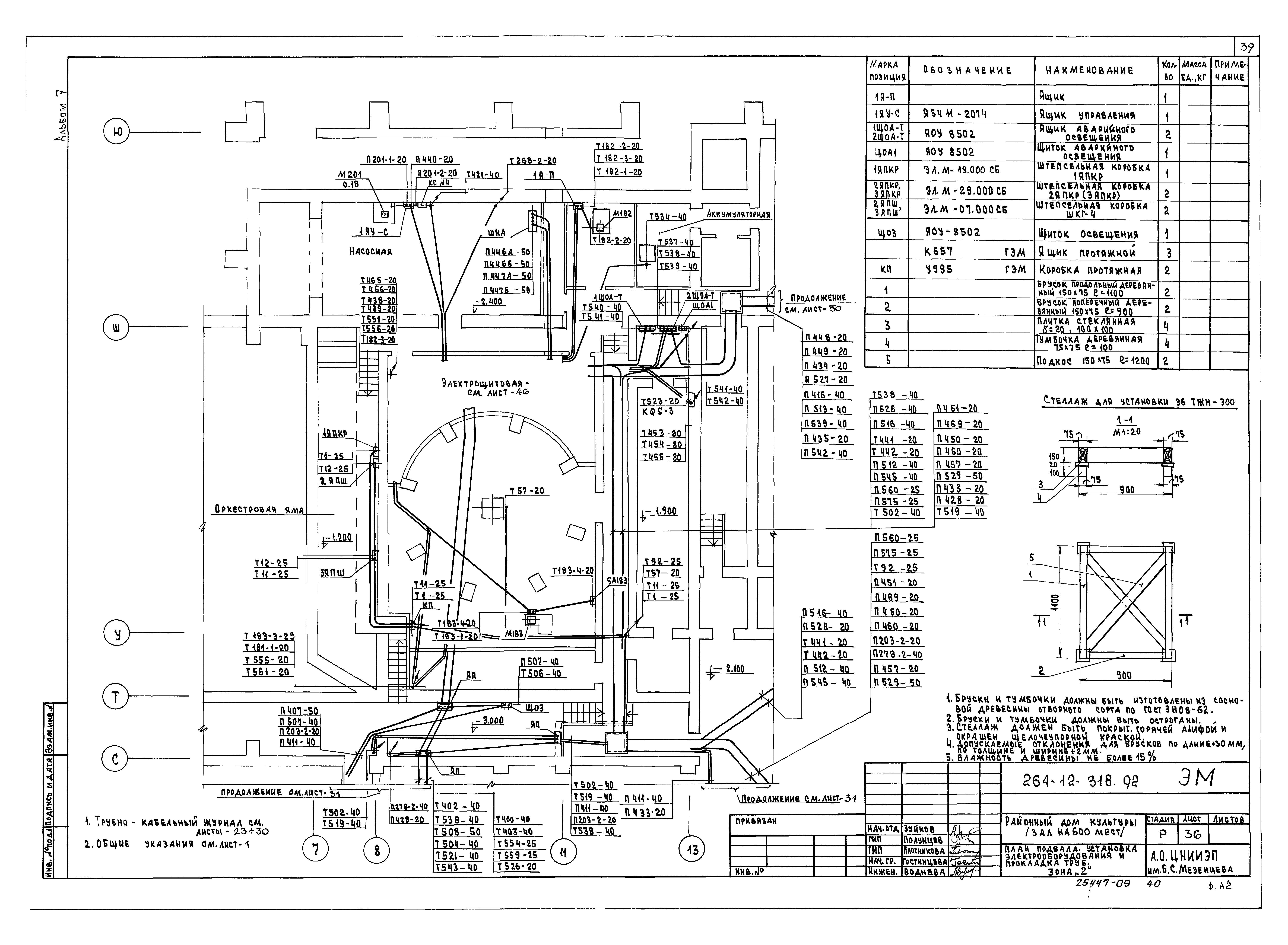
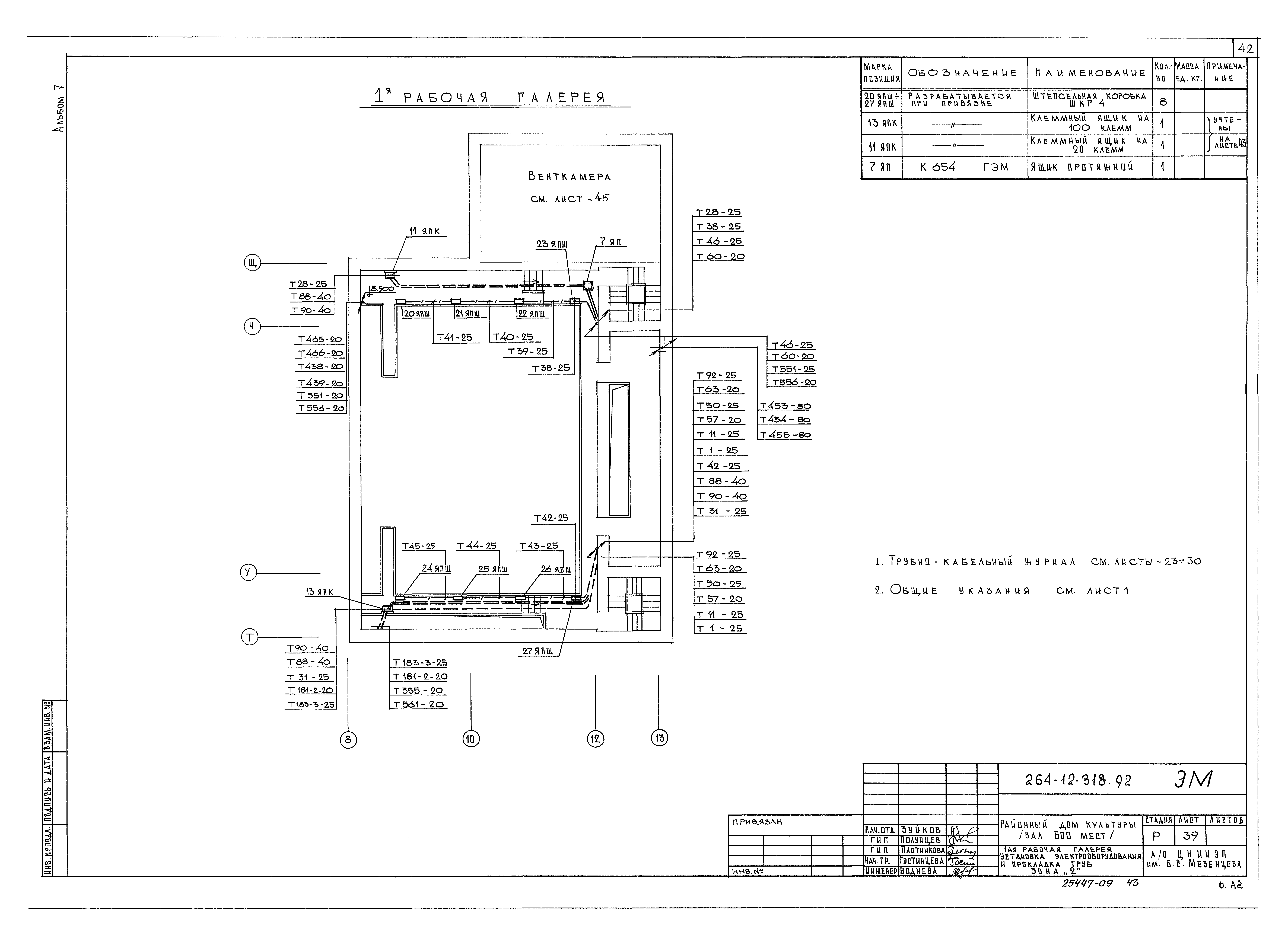
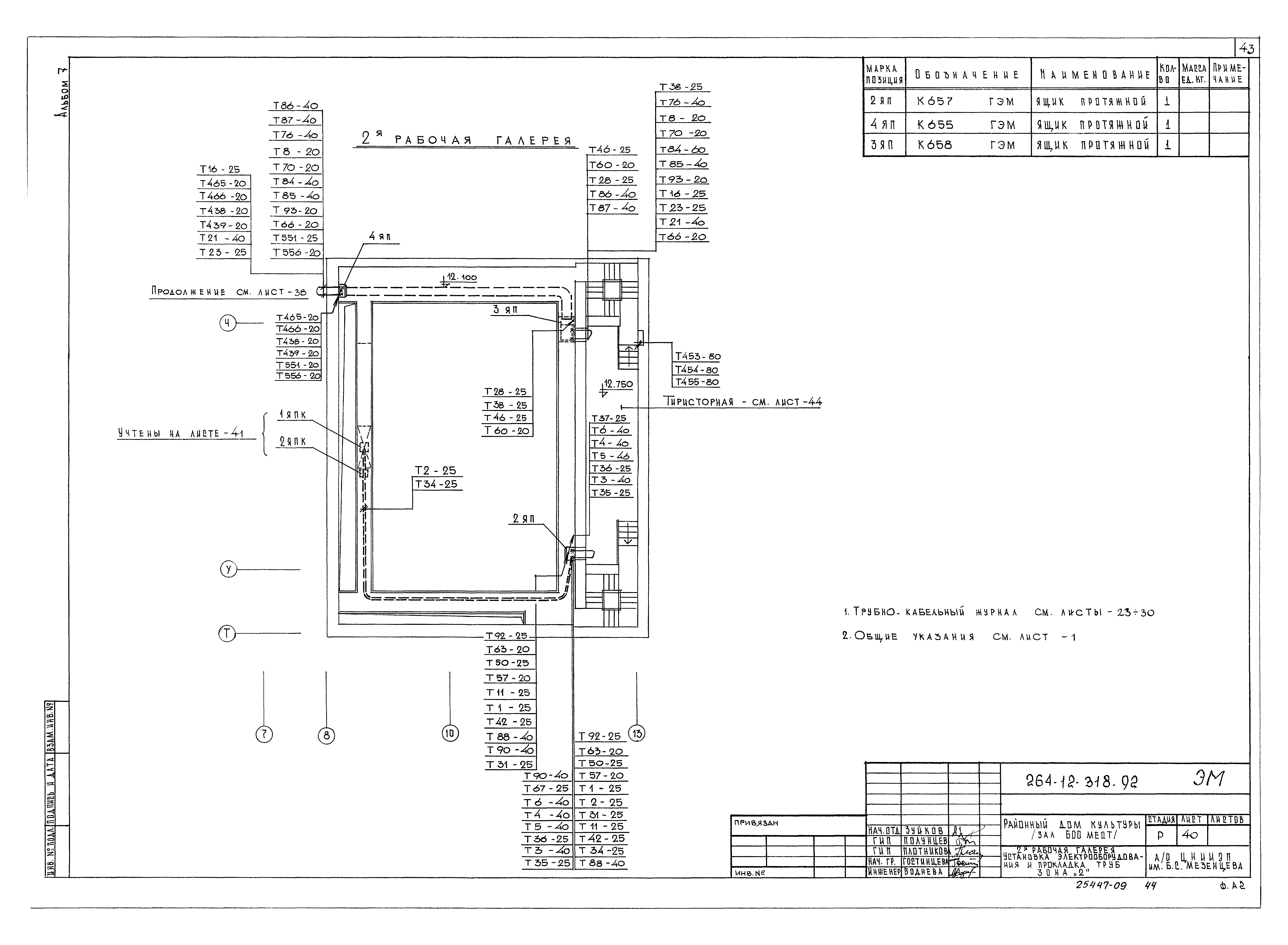
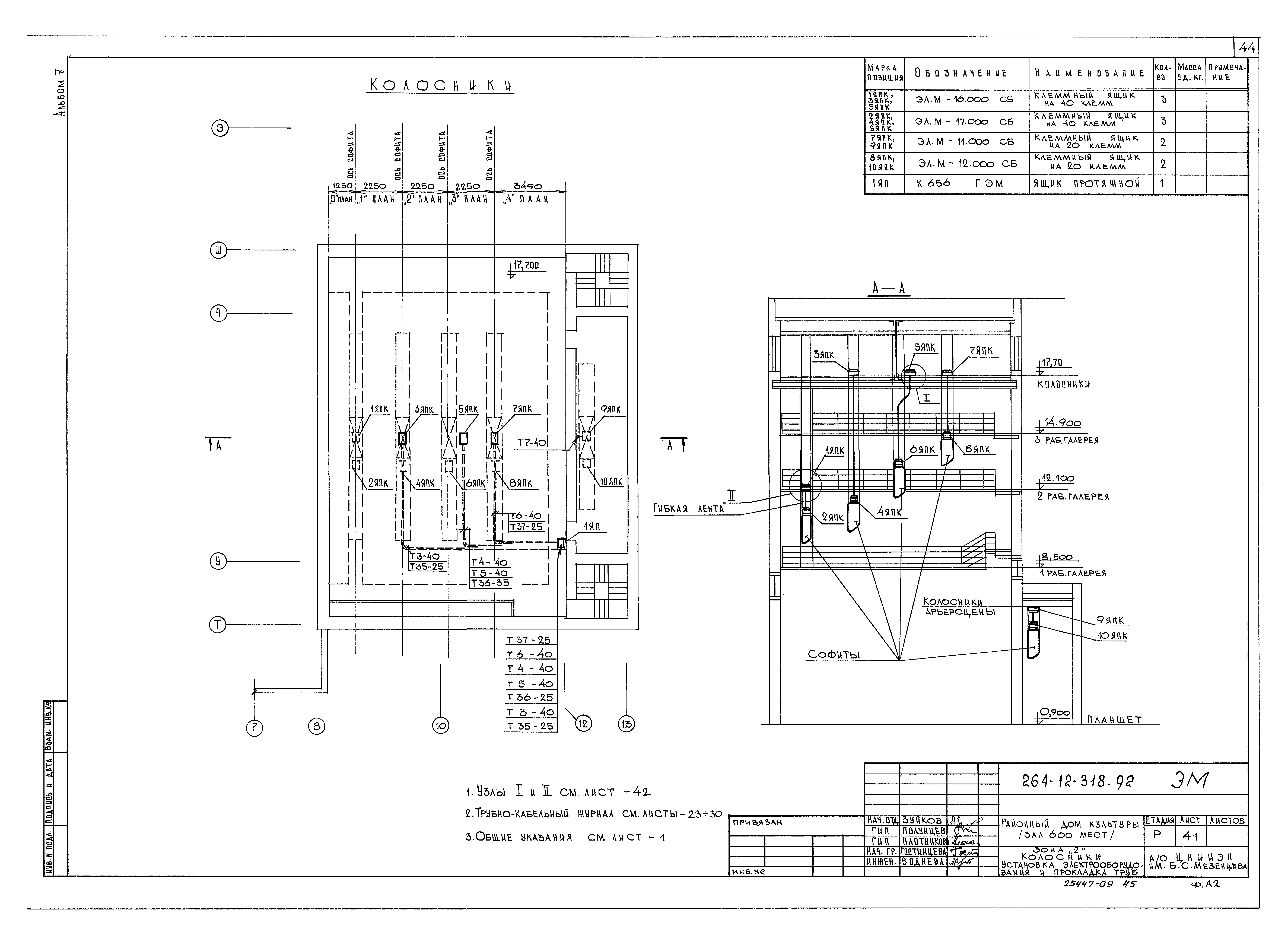
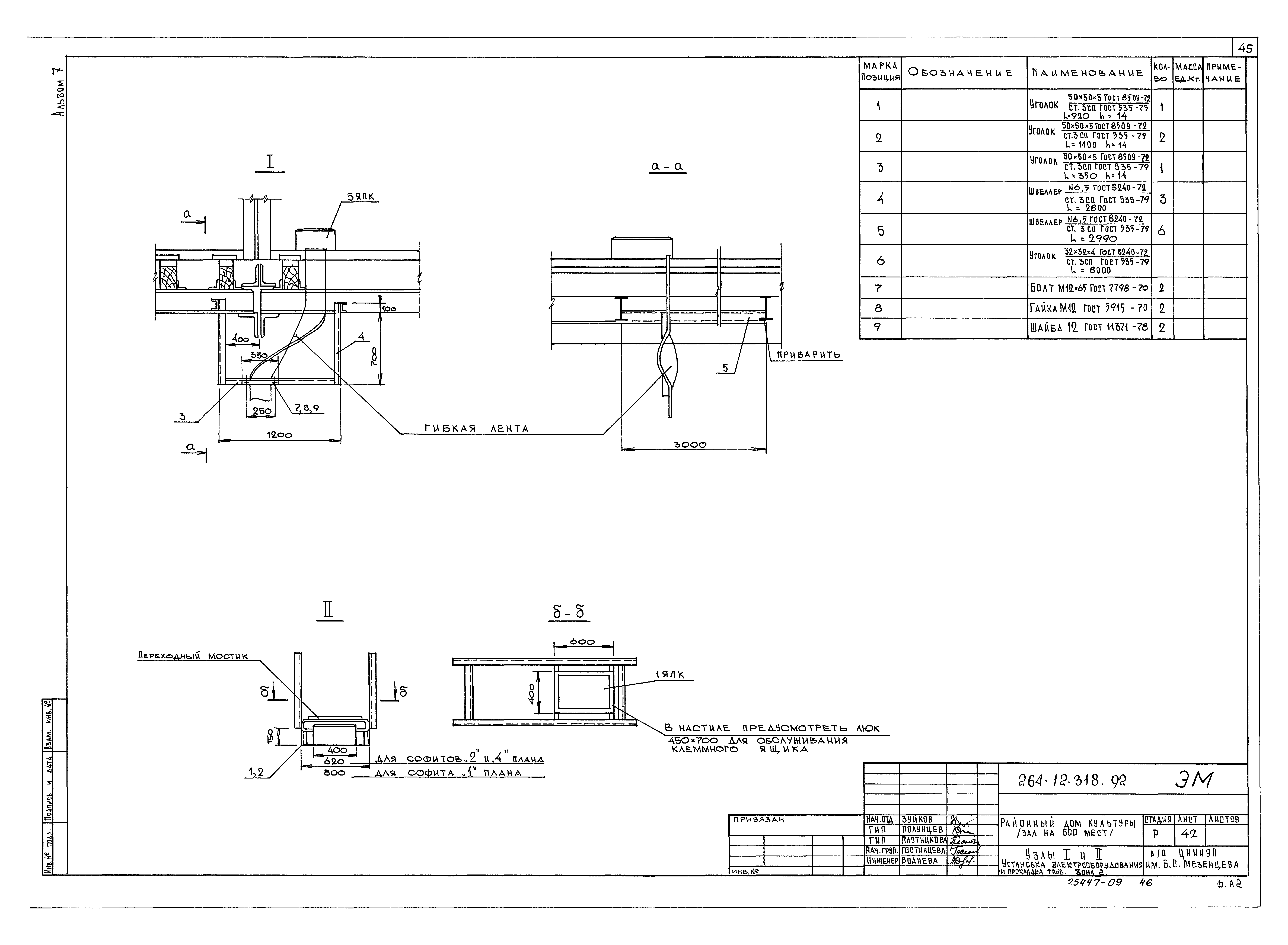
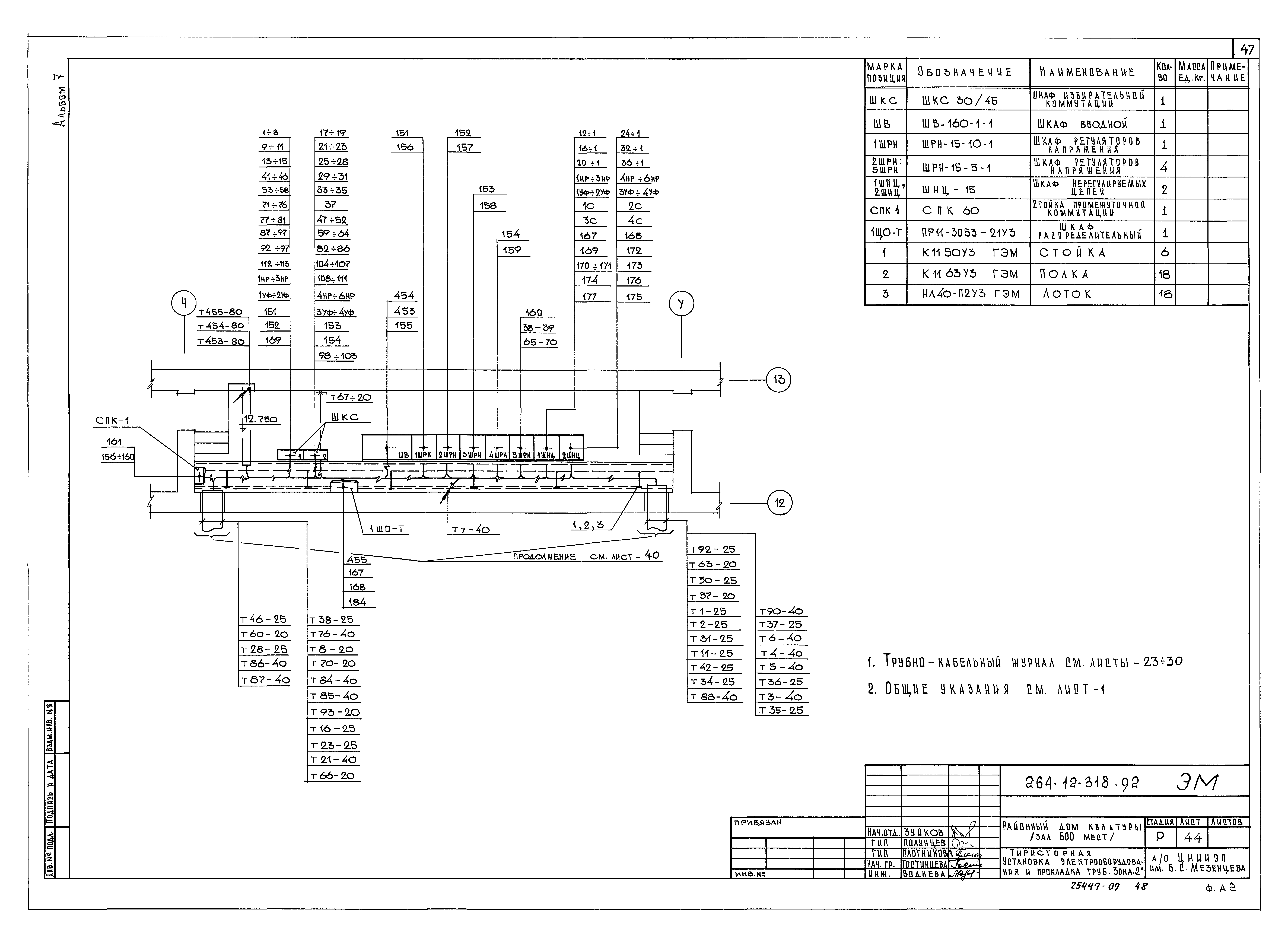
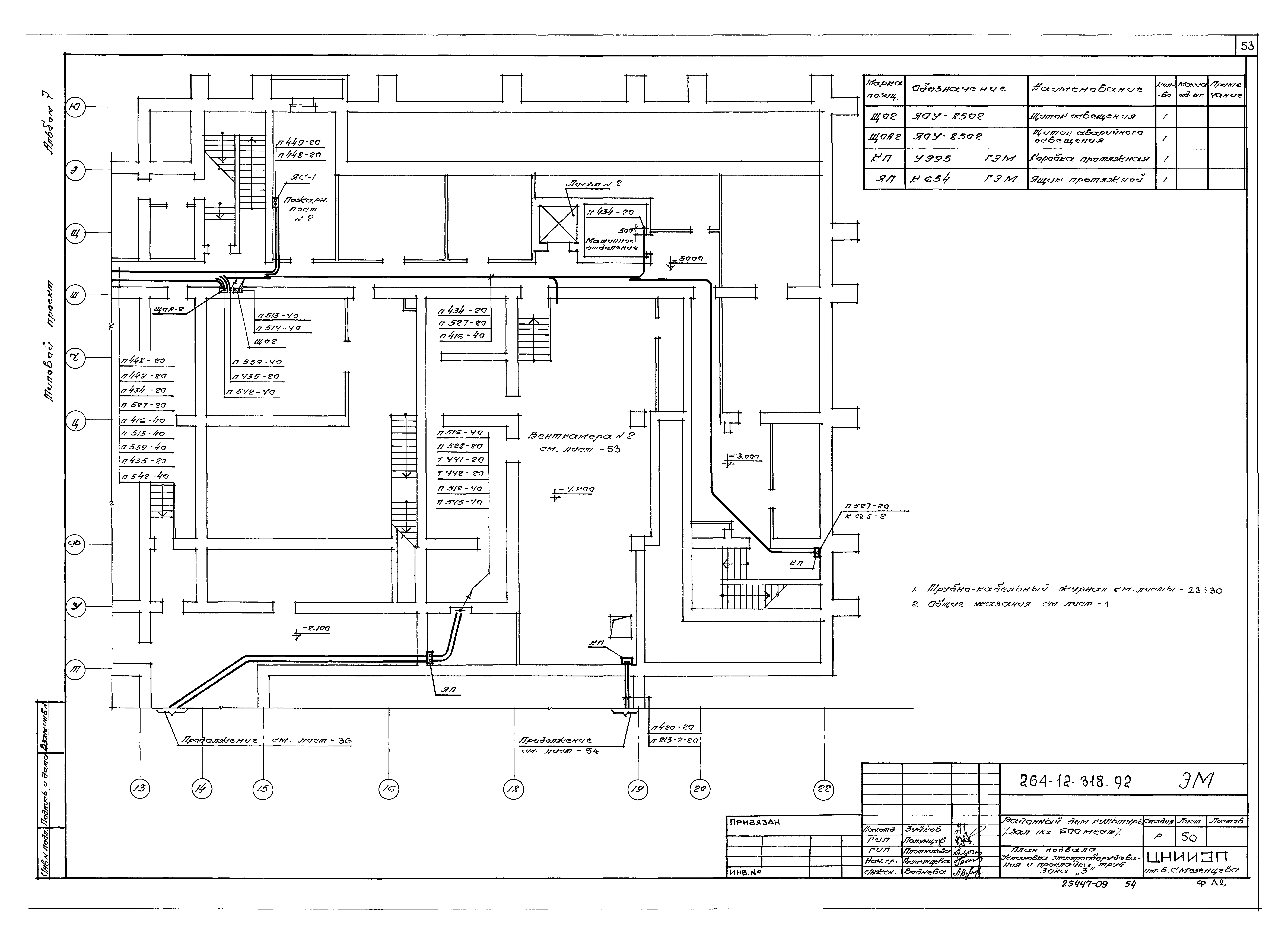
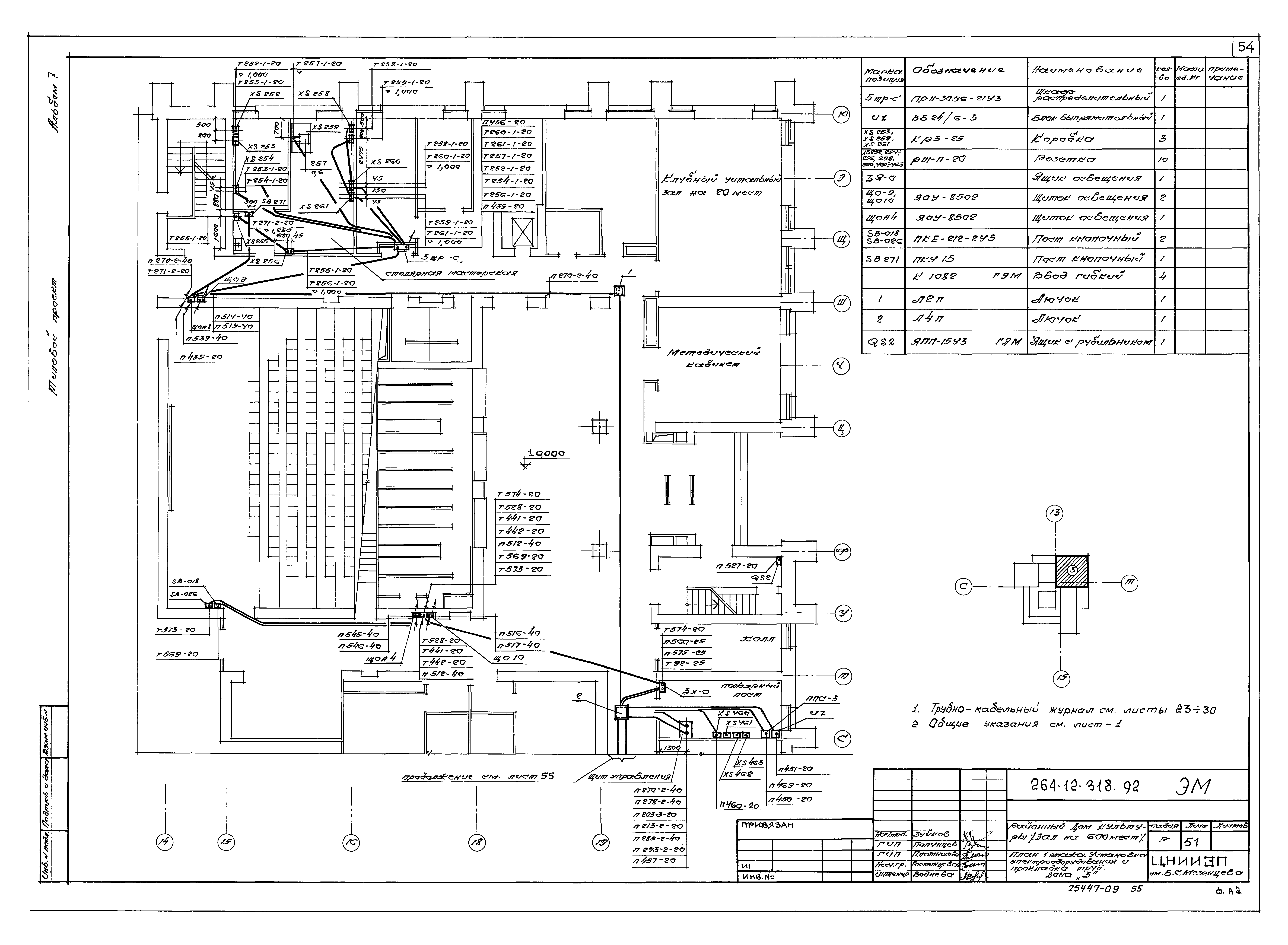
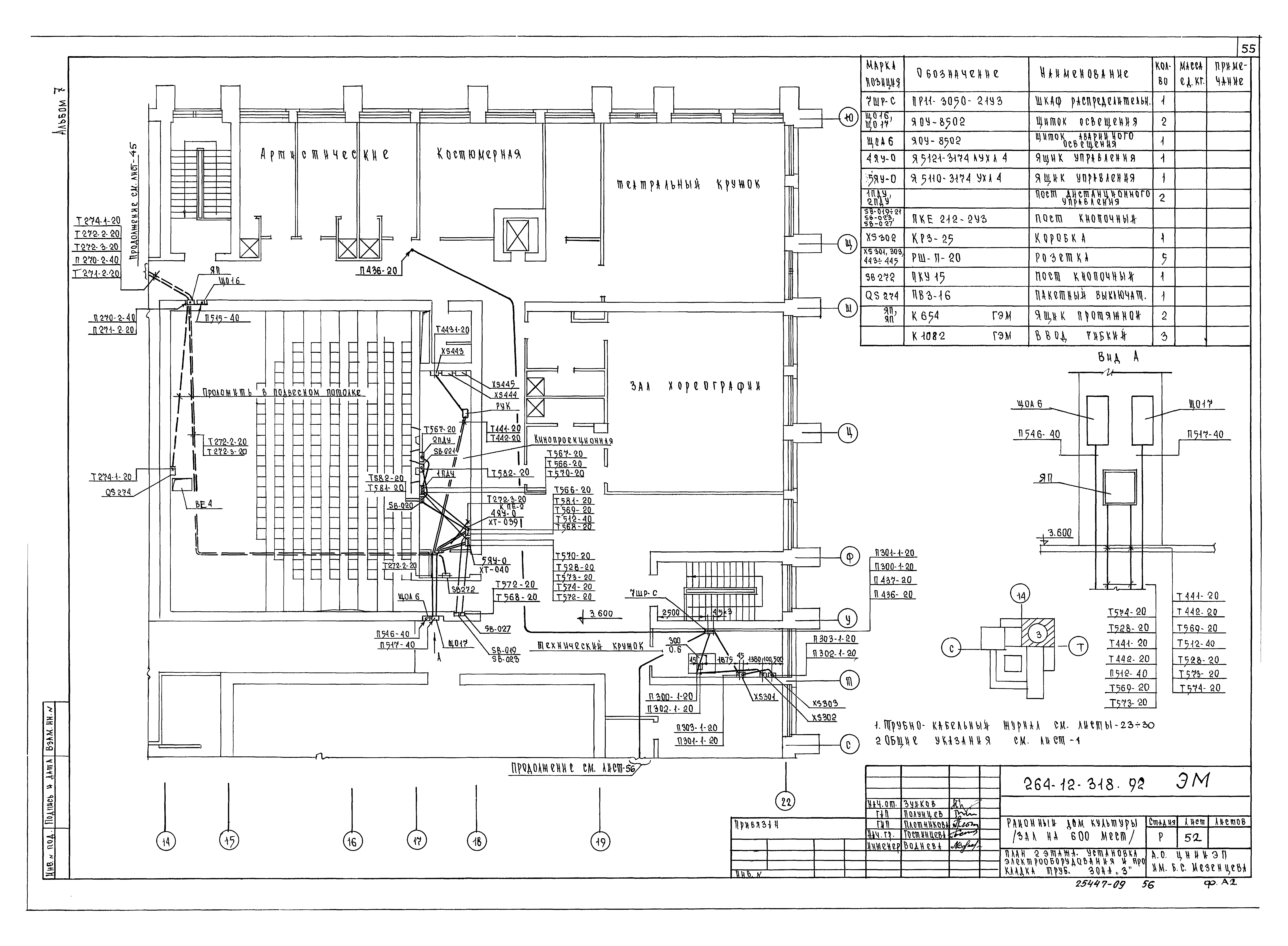
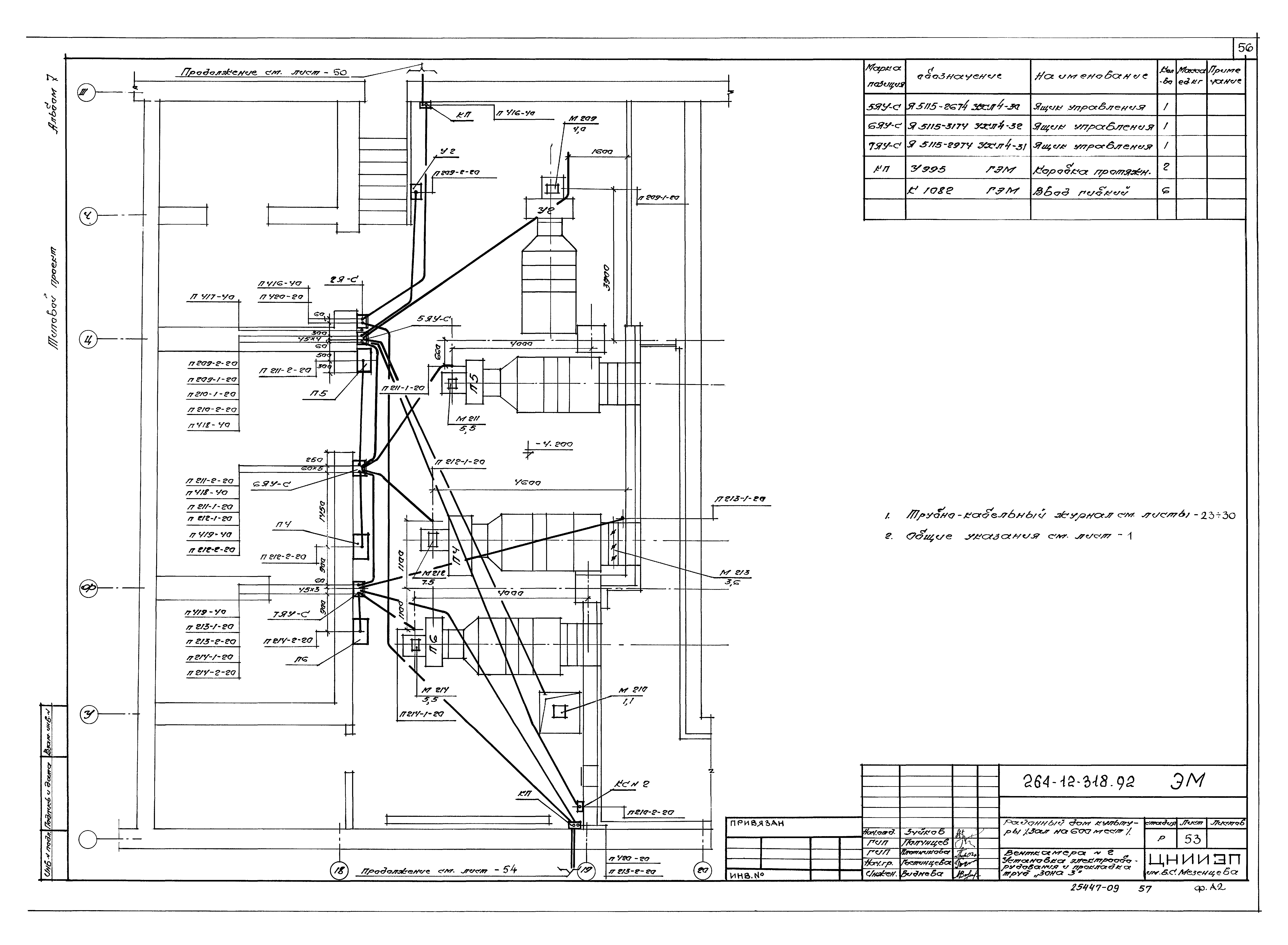
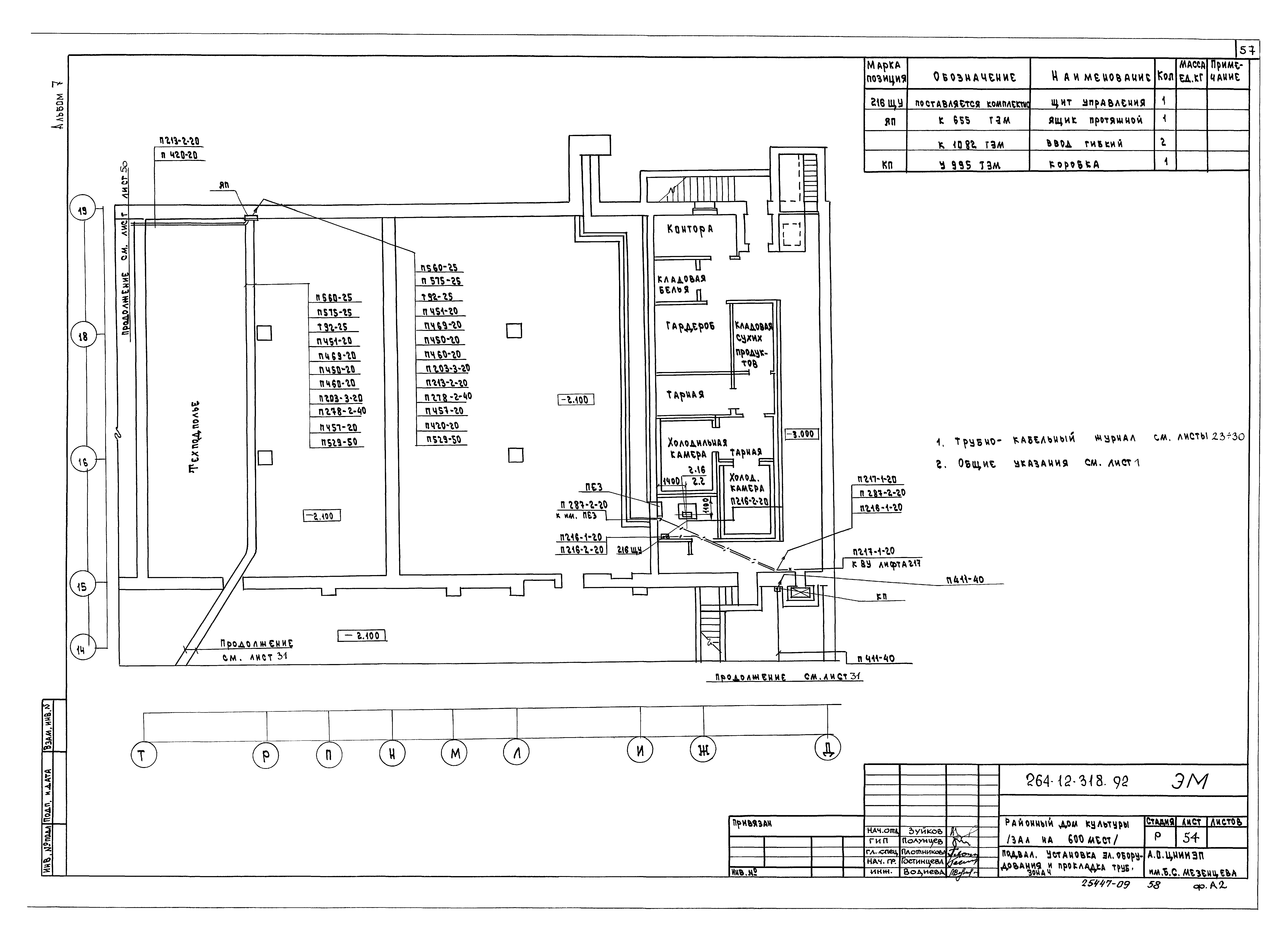
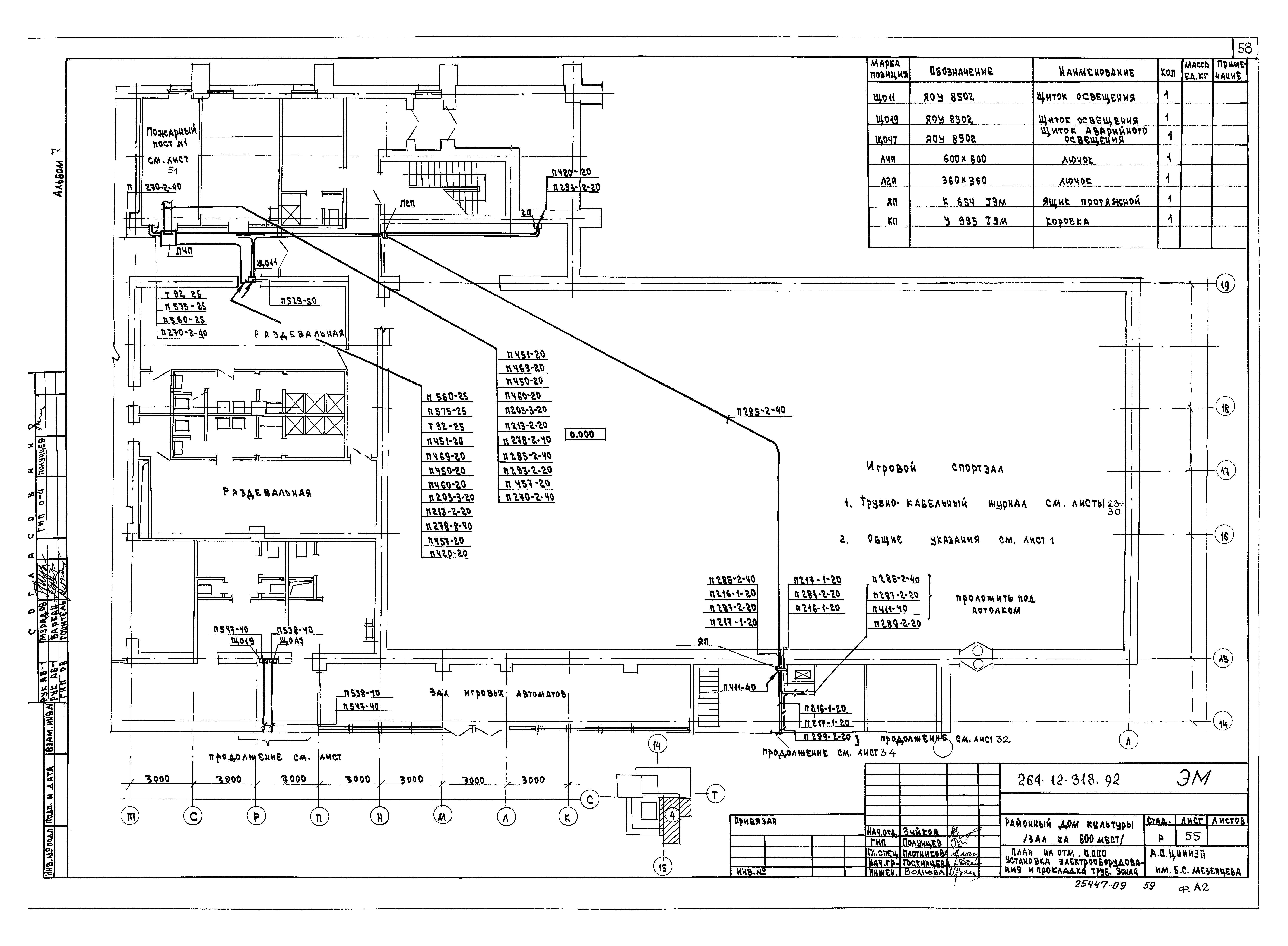
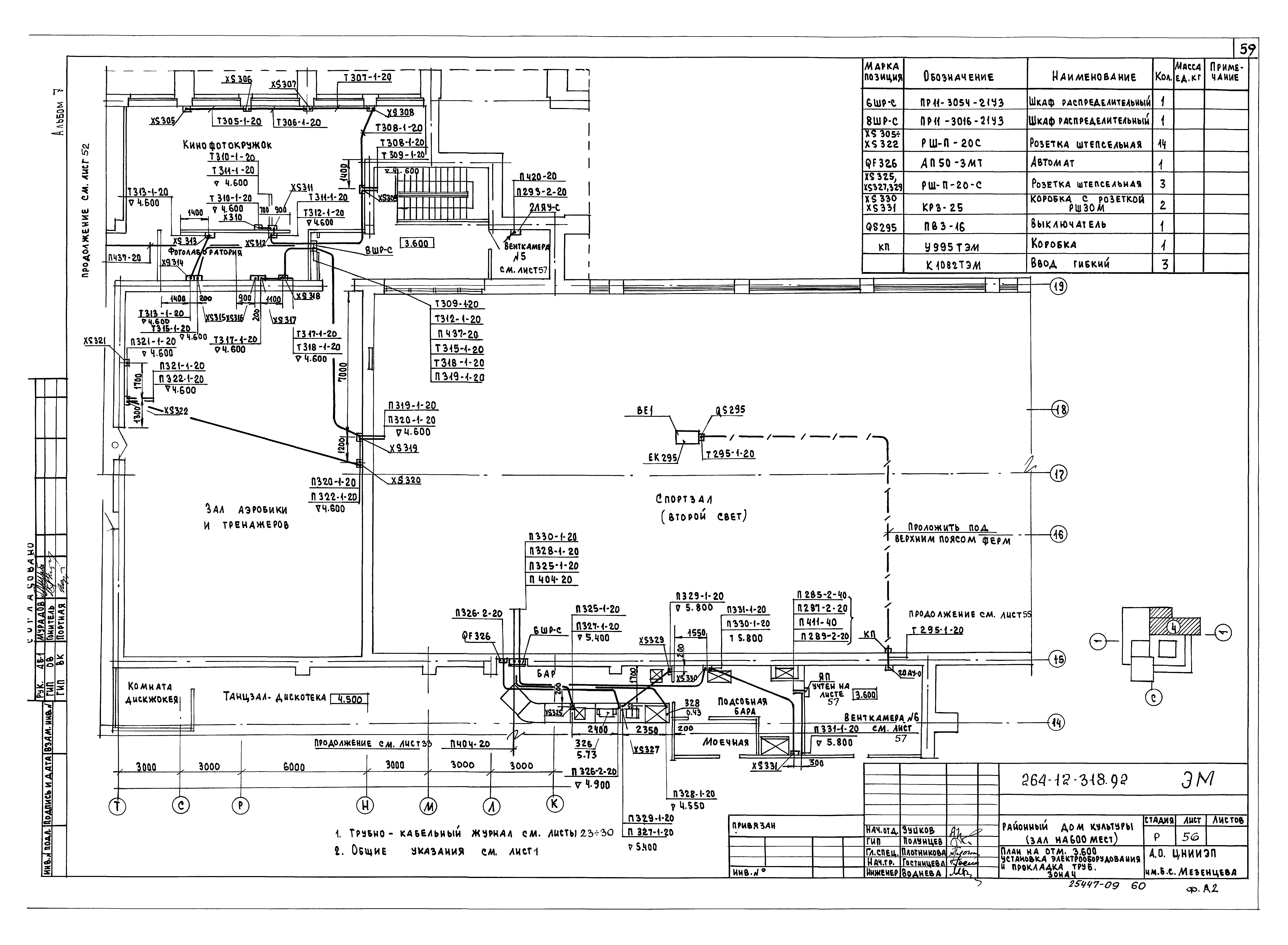
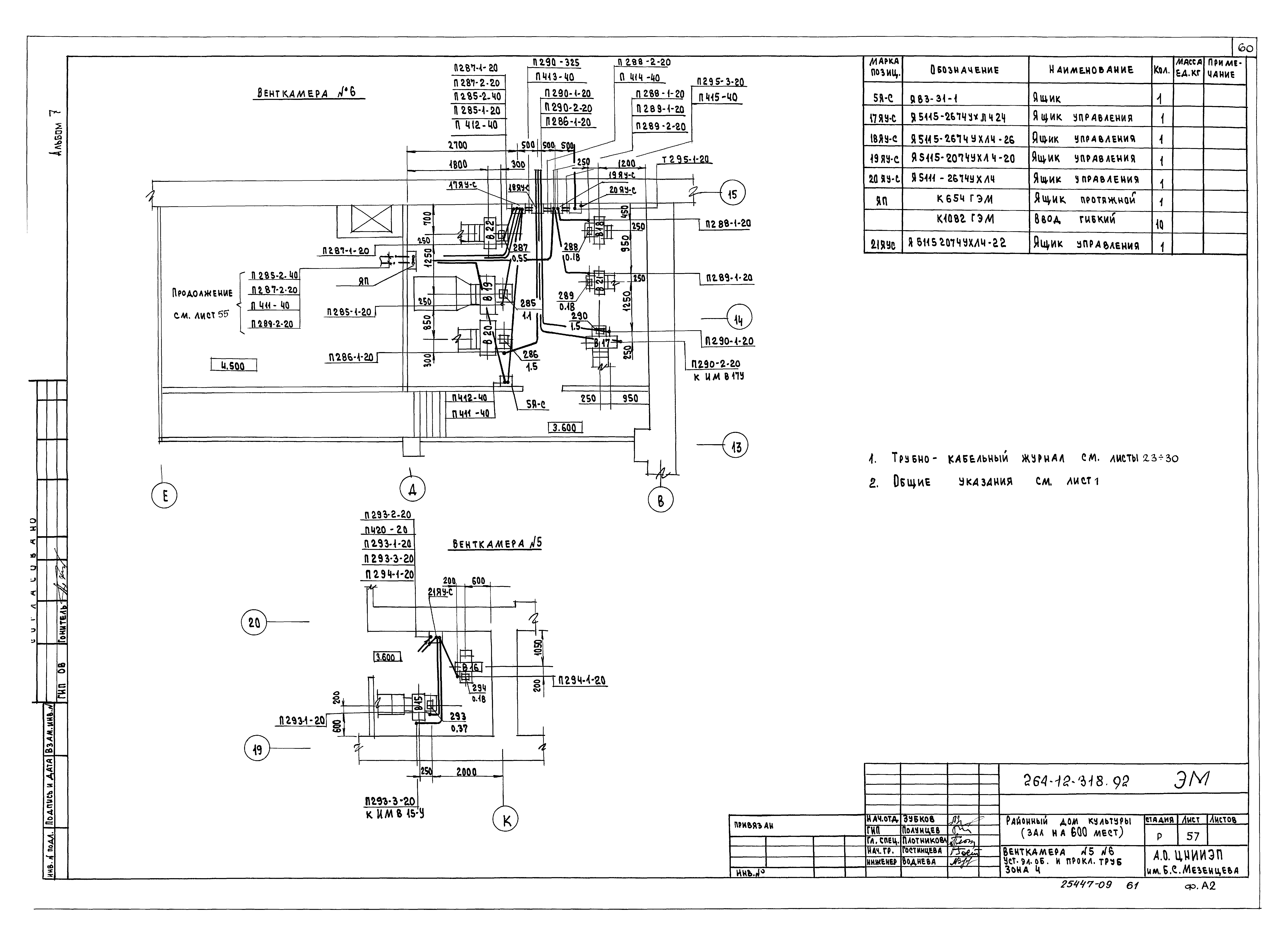
| Оглавление: | Содержание Пояснительная записка Общие данные Главный распределительный щит 380/220 В. Схема принципиальная однолинейная Шкафы распределительные 1ШР-С - 3ШР-С. Схемы принципиальные однолинейные Шкафы распределительные 4ШР-С - 6ШР-С. Схемы принципиальные однолинейные Шкафы распределительные 5ШР-С, 7ШР-С, 9ШР-С. Схемы принципиальные однолинейные Шкаф распределительный 8ШР-С. Схема принципиальная однолинейная Шкафы распределительные 10ШР-С, 11ШР-С. Схемы принципиальные однолинейные Ящики управления 1ЯУ-С - 13ЯУ-С. Схема принципиальная однолинейная Ящики управления 14ЯУ-С - 21ЯУ-С. Схема принципиальная однолинейная Таблица электроприводов шкаф 1Щ-А. Вращающийся круг. Схема подключений Антрактно-раздвижной занавес. Схема принципиальная и подключений Вращающийся круг. Схема принципиальная Дымовые люки. Схема принципиальная и подключений Приводы 201 - 207; 209 - 215; 265 - 271; 279 - 283; 285 - 290; 293 - 295. Схемы принципиальные Ящик управления 1ЯУ-С. Схема подключений Ящики управления 2, 4, 6, 7ЯУ-С. Схема подключений Ящики управления 3, 5, 10, 14ЯУ-С. Схема подключений Ящик управления 8ЯУ-С. Схема подключений Ящики управления 9, 12, 13, 19ЯУ-С. Схема подключений Ящики управления 11, 17, 21ЯУ-С. Схема подключений Ящики управления 15, 16, 18ЯУ-С. Схема подключений Ящик управления 20ЯУ-С. Схема подключений Трубно-кабельный журнал Подвал. Установка электрооборудования и прокладка труб. Зона 1 План на отм. 0.000. Установка электрооборудования и прокладка труб. Зона 1 План на отм. 3.600 и 4.500. Установка электрооборудования и прокладка труб. Зона 1 Кафе на 50 мест. Установка электрооборудования и прокладка труб. Зона 1 Венткамера №1. Установка электрооборудования и прокладка труб. Зона 1 План подвала. Установка электрооборудования и прокладка труб. Зона 2 Планшет на отм. 0.900. Установка электрооборудования и прокладка труб. Зона 2 План 2-го этажа. Установка электрооборудования и прокладка труб. Зона 2 1-ая рабочая галерея. Установка электрооборудования и прокладка труб. Зона 2 2-ая рабочая галерея. Установка электрооборудования и прокладка труб. Зона 2 Колосники. Установка электрооборудования и прокладка труб. Зона 2 Узлы I и III. Установка электрооборудования и прокладка труб. Зона 2 Портальные кулисы. Установка электрооборудования и прокладка труб. Зона 2 Тиристорная. Установка электрооборудования и прокладка труб. Зона 2 Венткамеры №3 и №4. Установка электрооборудования и прокладка труб. Зона 2 Электрощитовая. Установка электрооборудования и прокладка труб. Зона 2 Технические условия на изготовление гибких сценических лент План подвала. Установка электрооборудования и прокладка труб. Зона 3 План 1-го этажа. Установка электрооборудования и прокладка труб. Зона 3 План 2-го этажа. Установка электрооборудования и прокладка труб. Зона 3 Венткамера №2. Установка электрооборудования и прокладка труб. Зона 3 Подвал. Установка электрооборудования и прокладка труб. Зона 4 План на отм. 0.000. Установка электрооборудования и прокладка труб. Зона 4 План на отм. 3.600. Установка электрооборудования и прокладка труб. Зона 4 Венткамеры №5 и №6. Установка электрооборудования и прокладка труб. Зона 4 Главный распределительный щит 380/220 В. Опросный лист |
| Разработан: | ЦНИИЭП им. Б.С. Мезенцева Госкомархитектуры |
| Утверждён: | 29.11.1991 Госкомархитектура (2-129) |






























































