Скачать Типовой проект 901-3-247.88 Альбом 4. Силовое электрооборудование. Автоматизация. Электрическое освещение. Связь и сигнализацияДата актуализации: 01.01.2021
|
| Обозначение: | Типовой проект 901-3-247.88 |
| Обозначение англ: | 901-3-247.88 |
| Статус: | не определен законодательством |
| Название рус.: | Альбом 4. Силовое электрооборудование. Автоматизация. Электрическое освещение. Связь и сигнализация |
| Дата добавления в базу: | 01.10.2014 |
| Дата актуализации: | 01.01.2021 |
| Дата введения: | 18.11.1985 |
| Дата окончания срока действия: | 30.06.2003 |
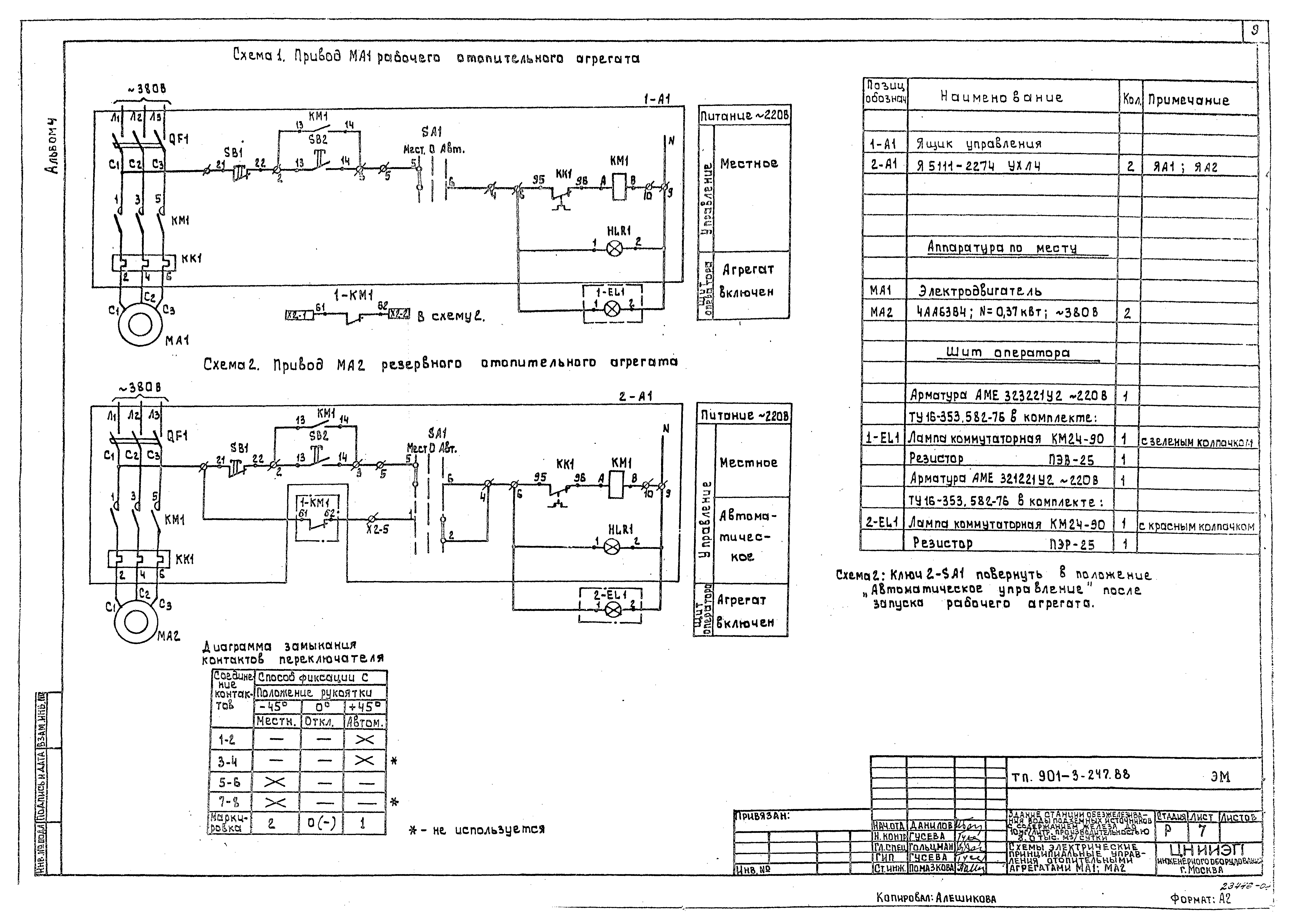
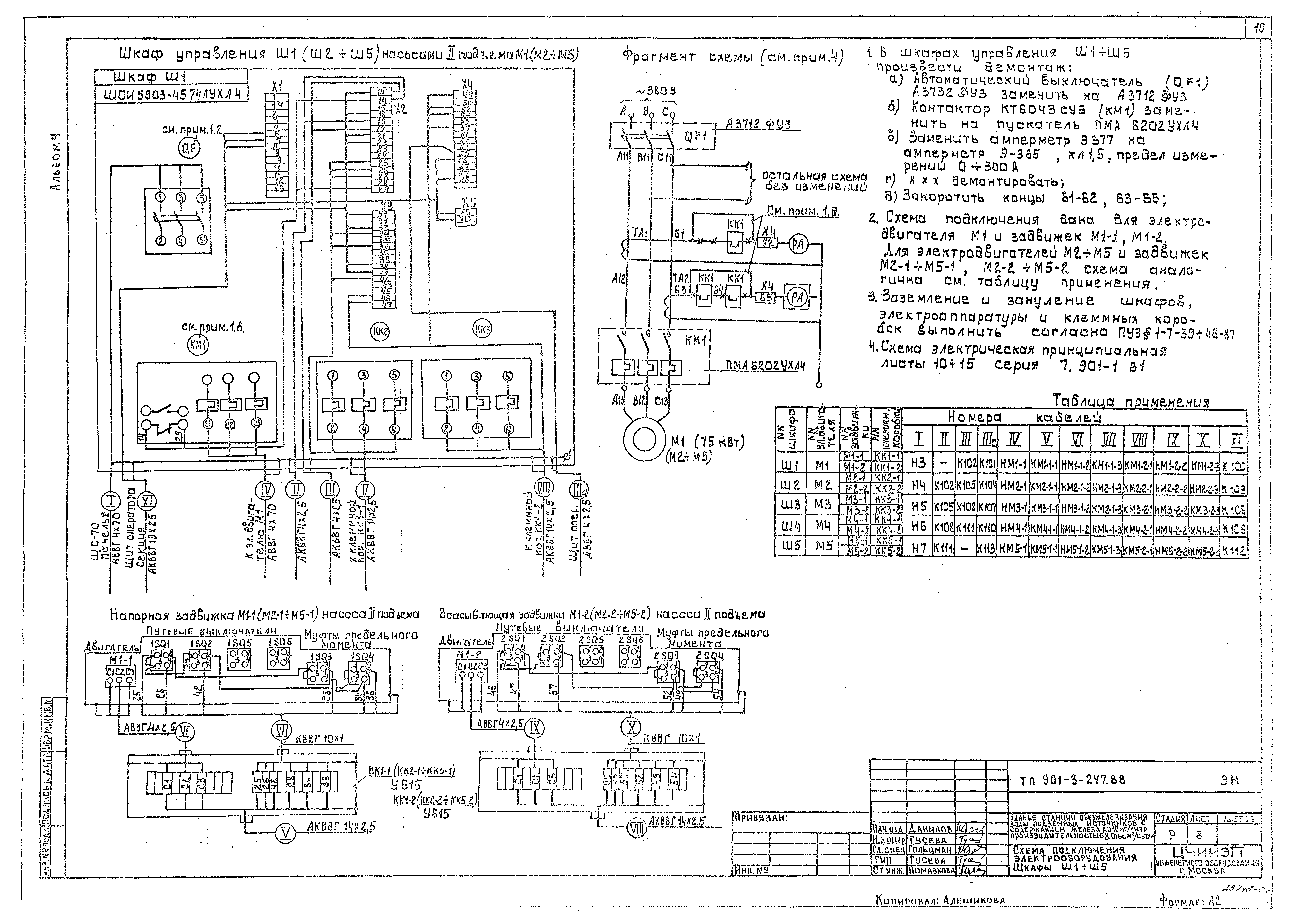
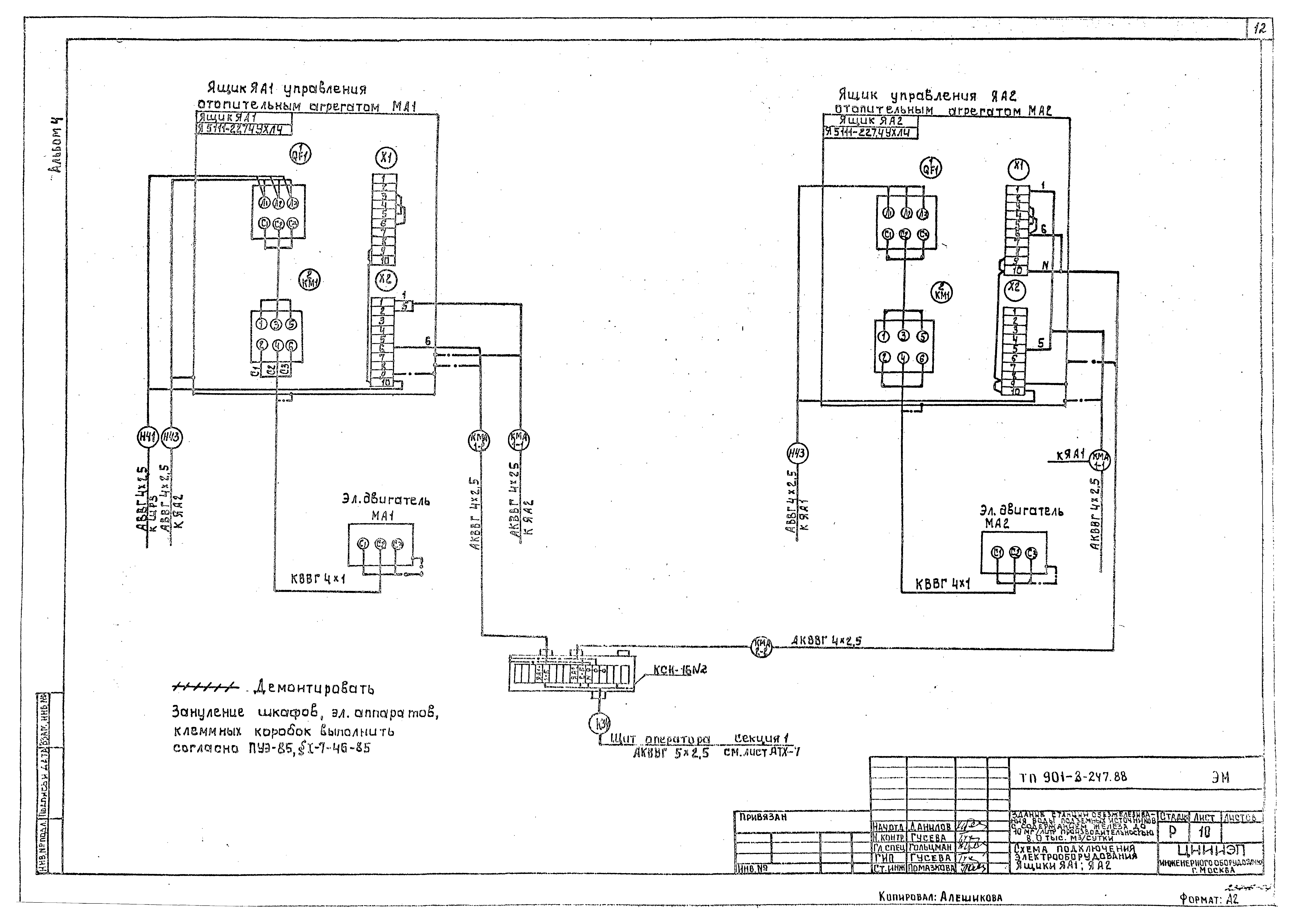
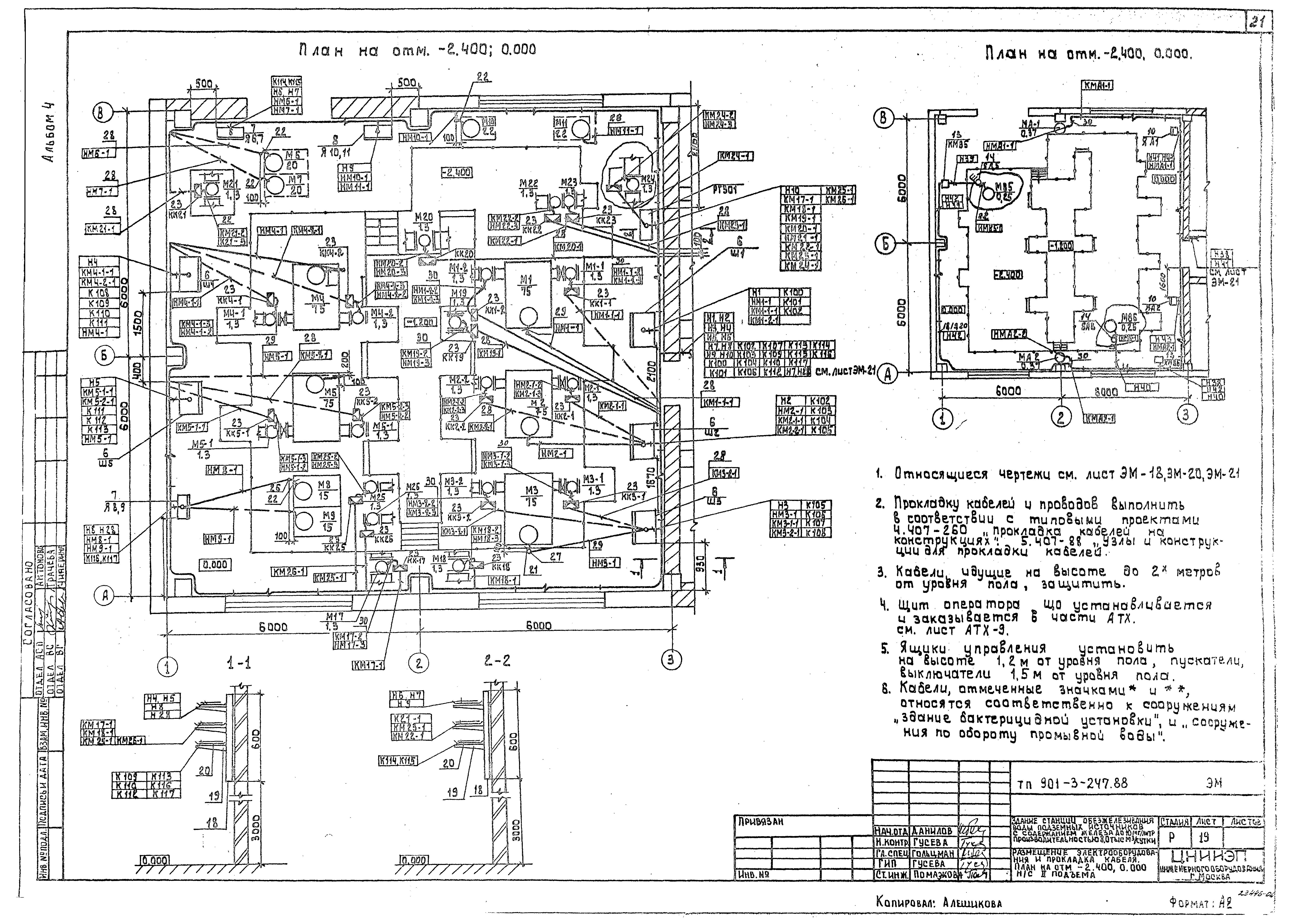
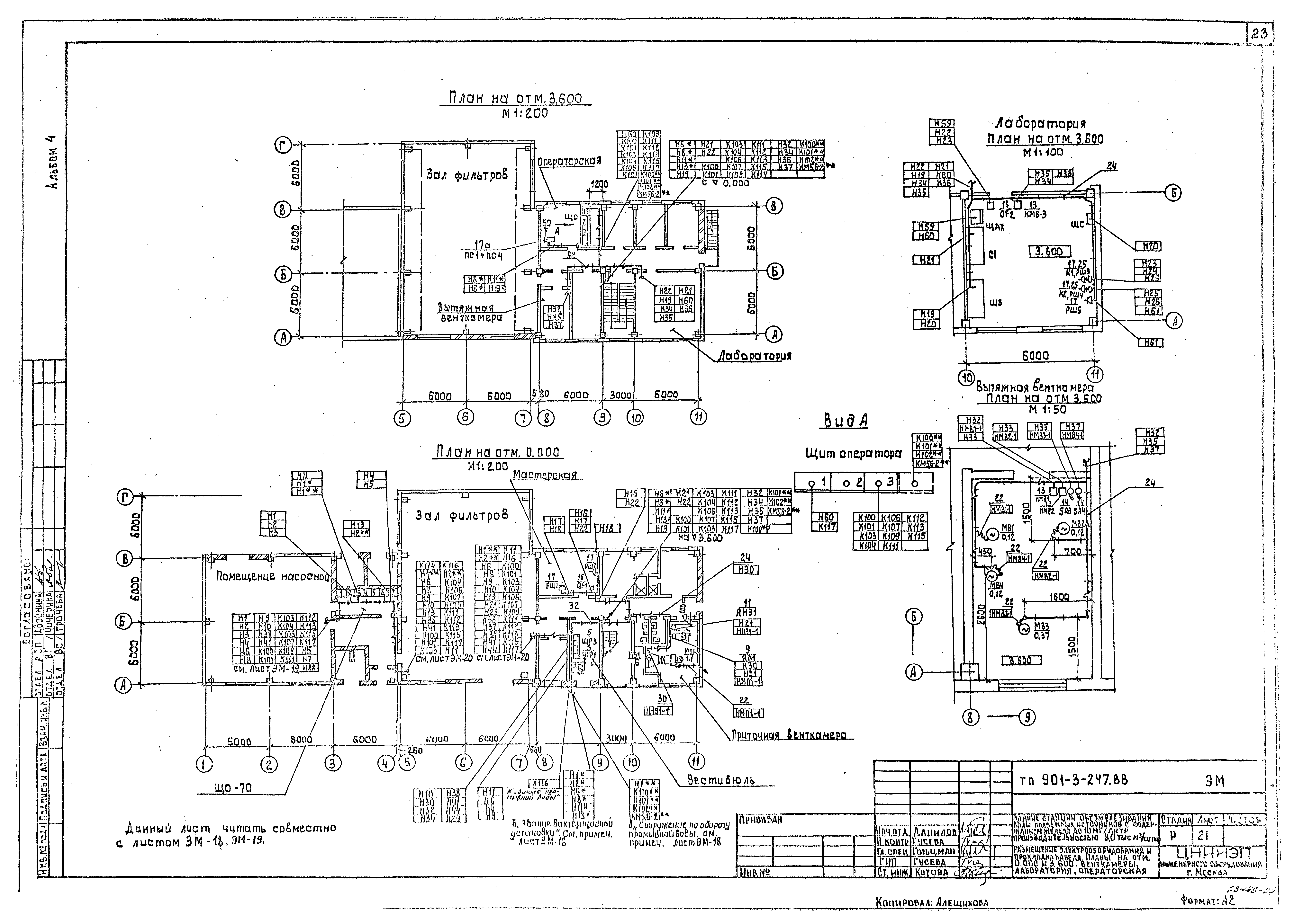
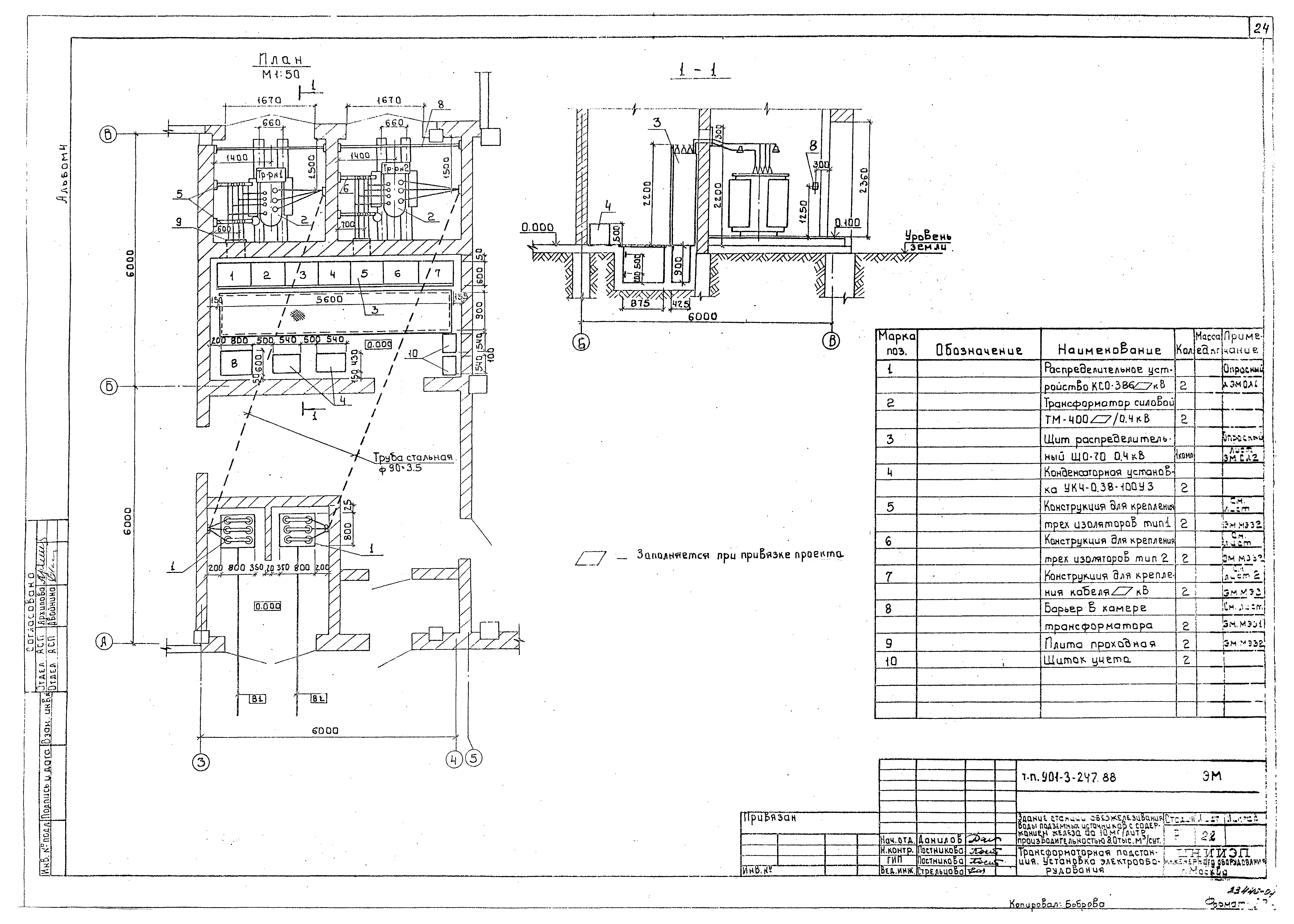
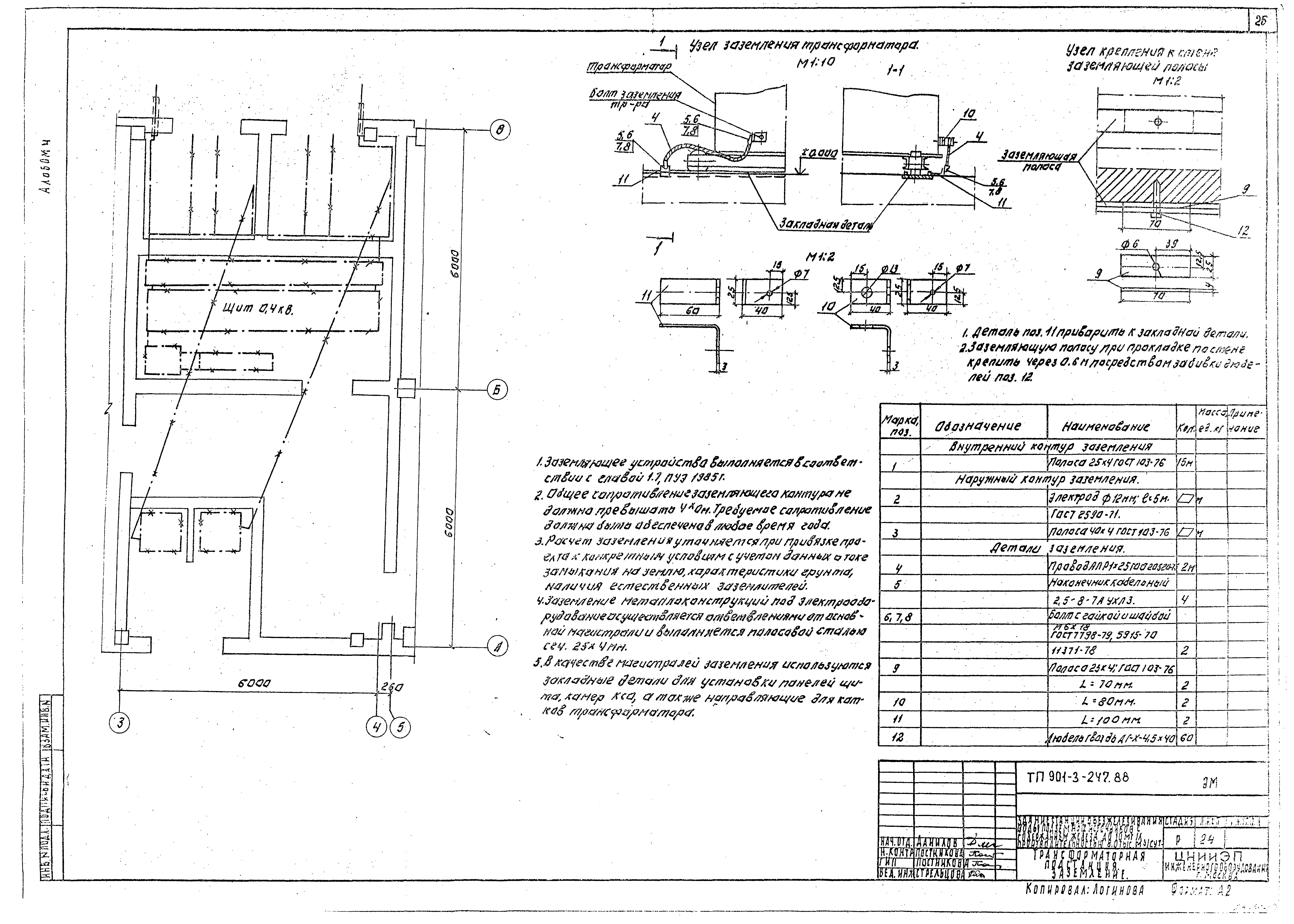
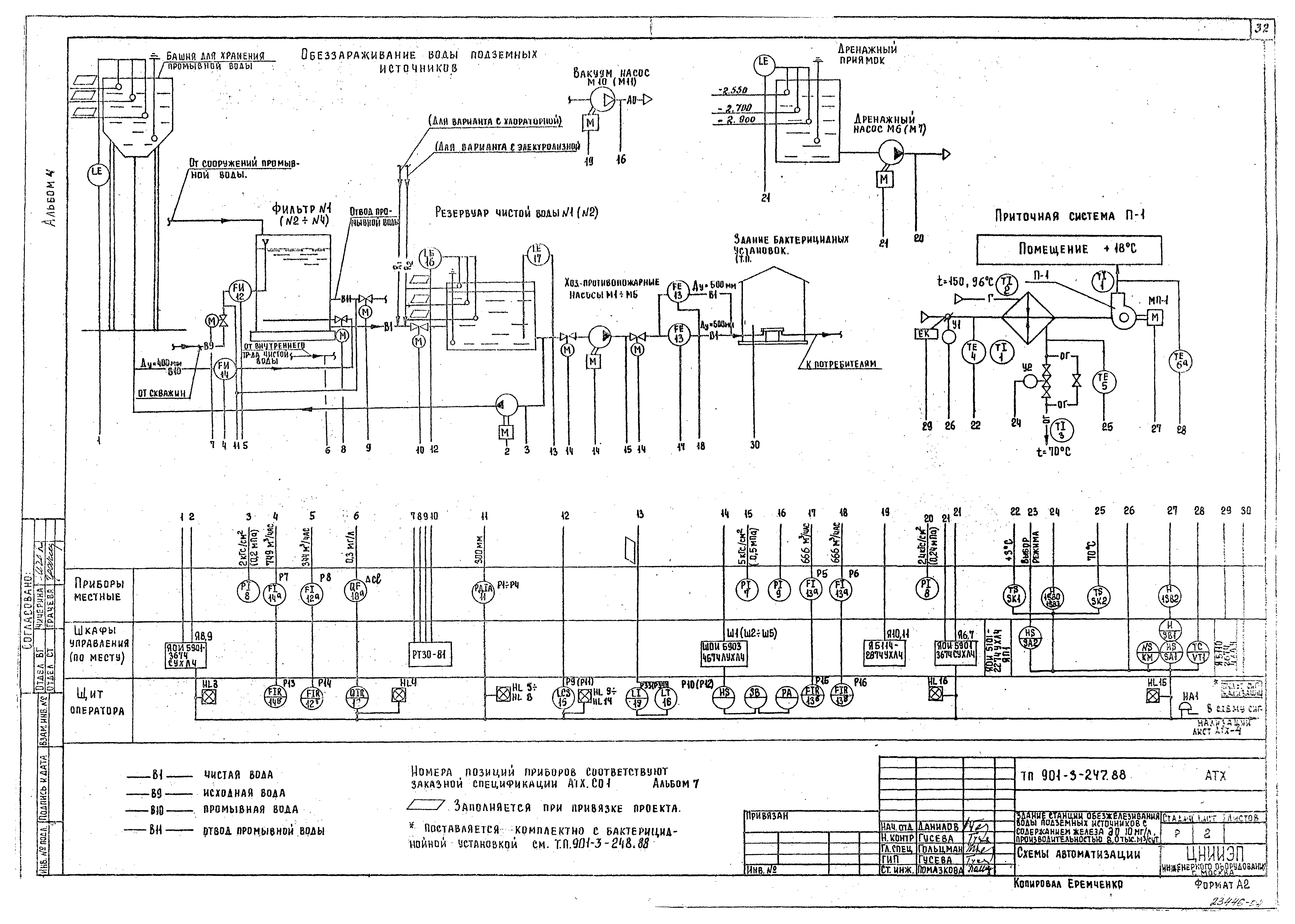
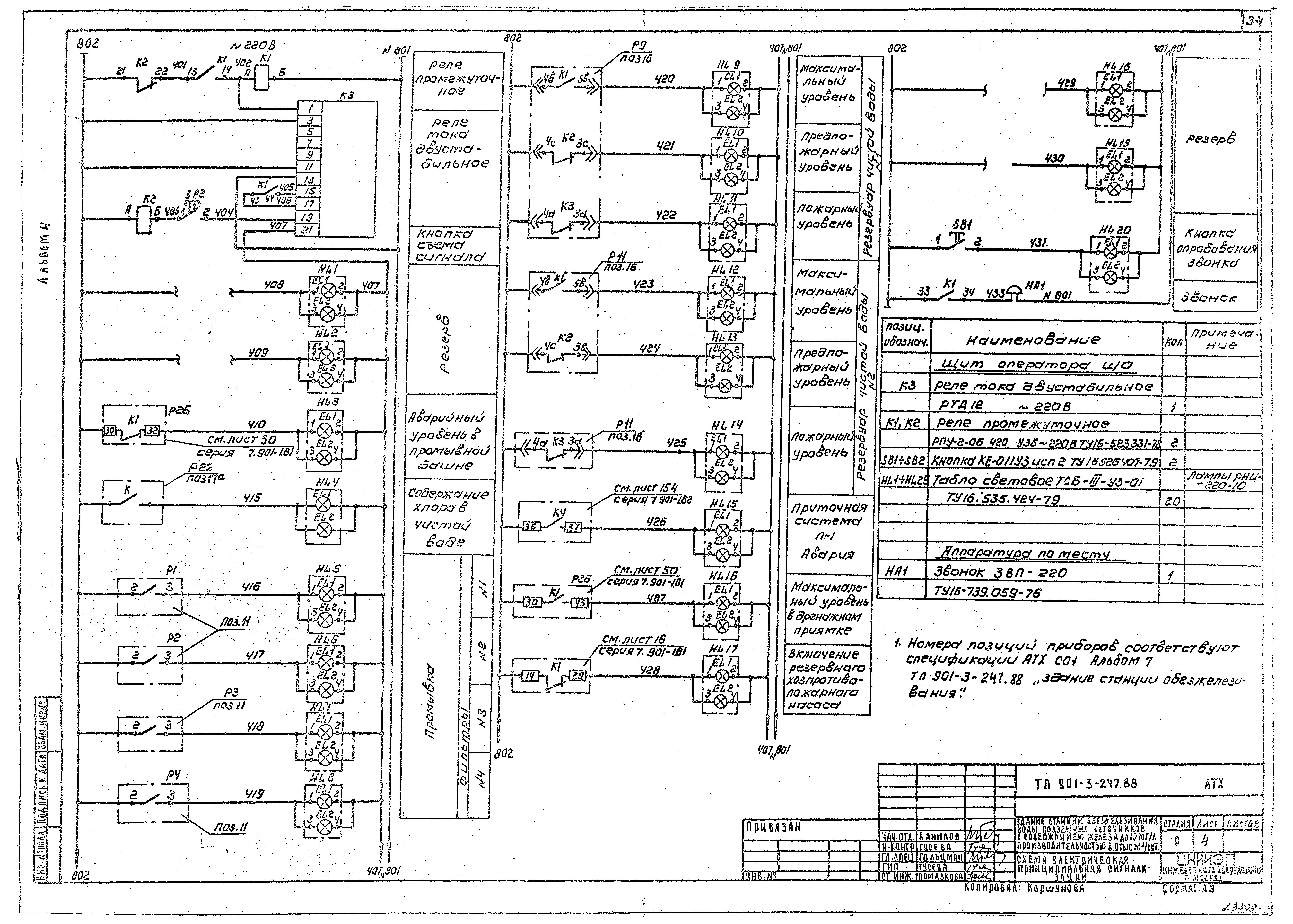
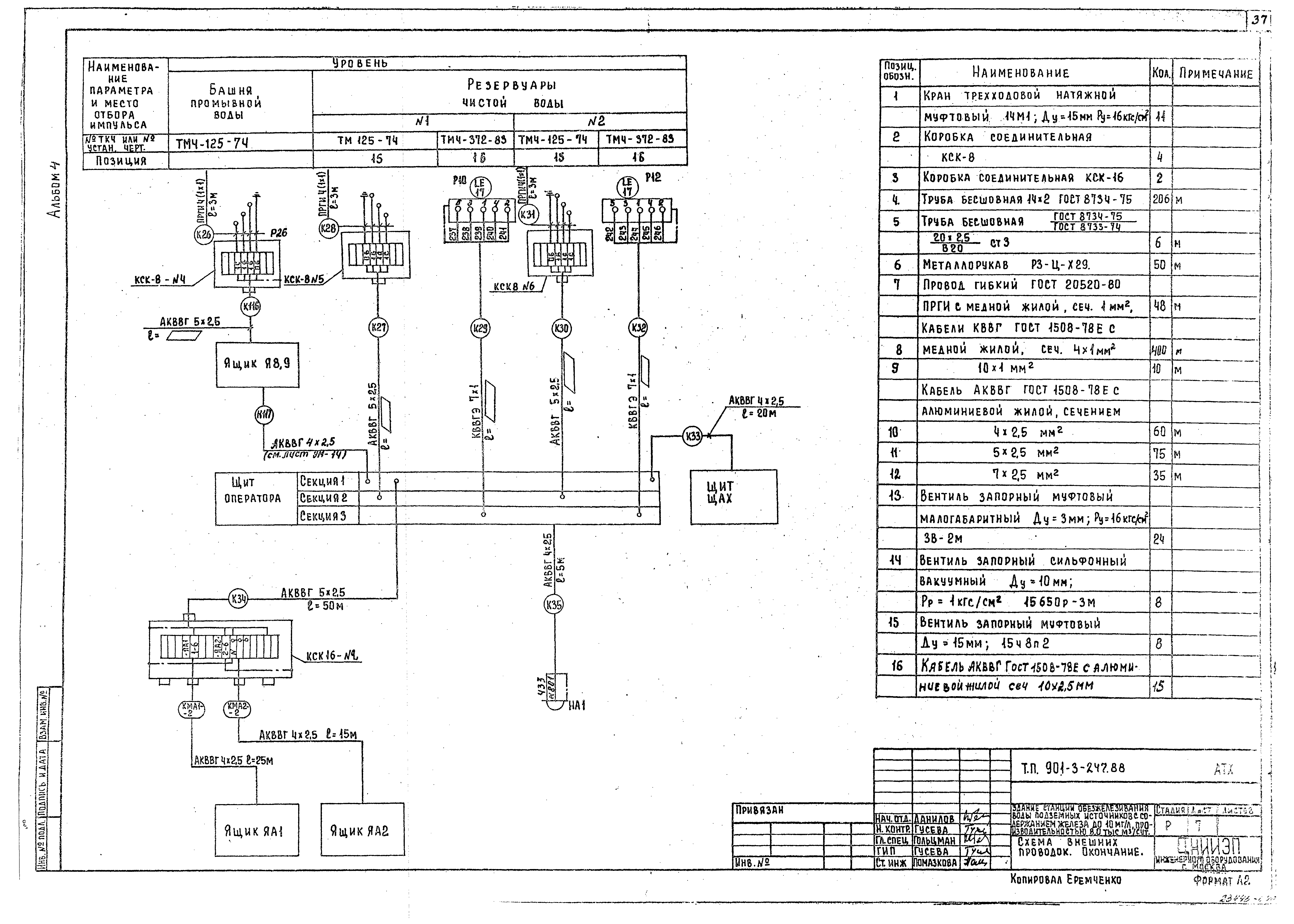
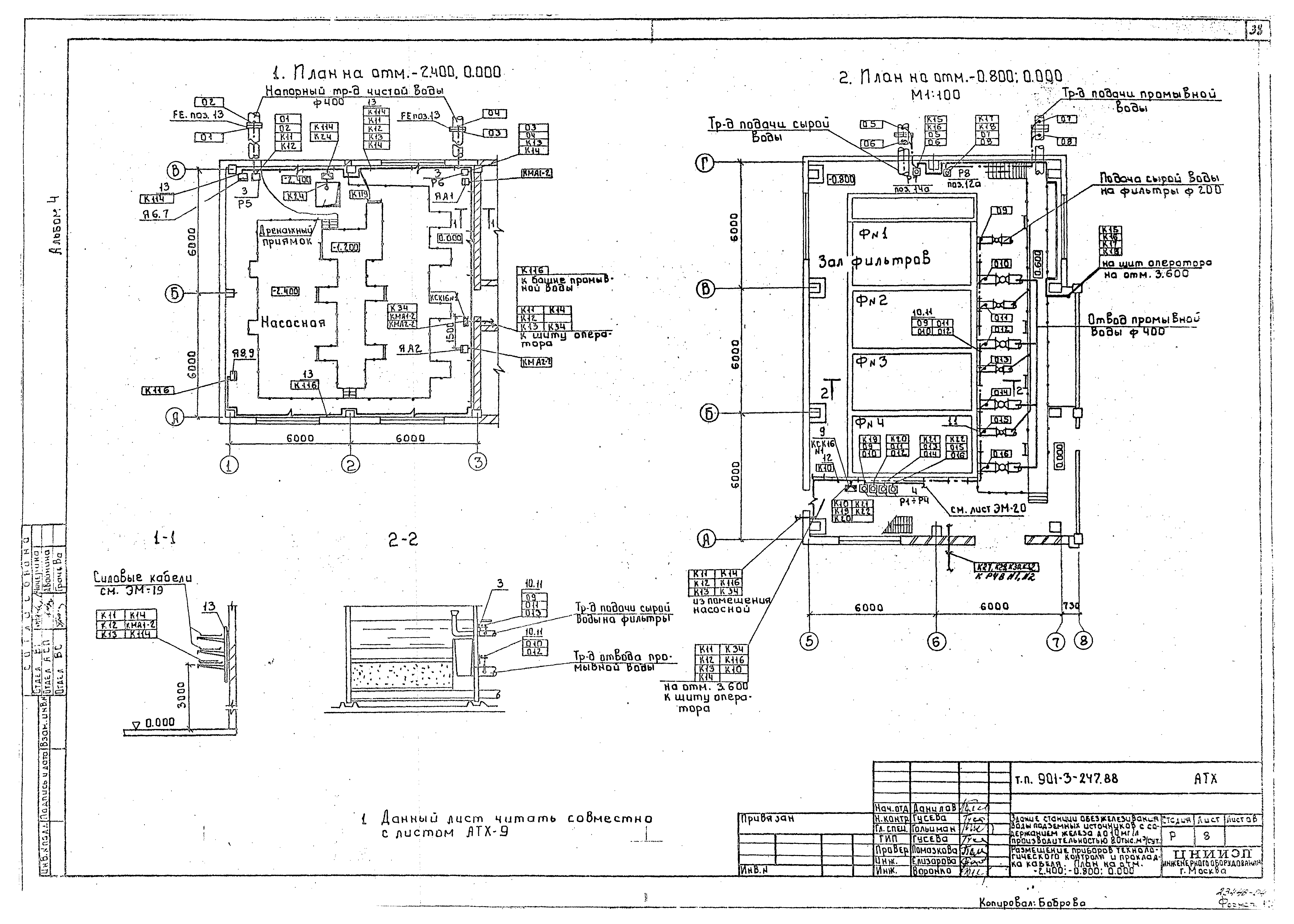
| Оглавление: | Содержание Силовое электрооборудование Общие данные Схема принципиальная электрическая 0,4 кВ Схема электрическая принципиальная распределительной сети 380/220 В Схема электрическая принципиальная управления задвижками, затворами МФ1 - МФ16, М17 - М26 Схемы электрические принципиальные управления отопительными агрегатами МА1, МА2 Схема подключения электрооборудования. Шкафы Ш1 - Ш5 Схема подключения электрооборудования. Ящики Я6,7; Я8,9 Схема подключения электрооборудования. Ящики ЯА1, ЯА2 Схема подключения электрооборудования. Шкаф РТ301-РТ303. Задвижки, затворы МФ1 - МФ16, М17 - М26 Схема подключения электрооборудования. Ящики ЯП-1, ЯНЭ-1. Пускатели КМВ1 - КМВ6 Кабельный журнал Размещение электрооборудования и прокладка кабеля. Спецификация Размещение электрооборудования и прокладка кабеля. План на отм. - 2.400; 0.000. Насосная станция II подъема Размещение электрооборудования и прокладка кабеля. План на отм. 0.000. Фильтровальный зал Размещение электрооборудования и прокладка кабеля. План на отм. 0.000; 3.600. Венткамера, лаборатория, операторская Трансформаторная подстанция. Установка электрооборудования Трансформаторная подстанция. Узлы установки электрооборудования Трансформаторная подстанция. Заземление Опросный лист для заказа камер серии КСО-386 Опросный лист для заказа щита из панелей ЩО70 Изделия МЭЗ. Ведомость потребности в материалах для изделий МЭЗ. Конструкции Изделия МЭЗ. Конструкции Автоматизация Общие данные Схемы автоматизации Схема электрическая принципиальная питания приборов щитов ЩО, ЩАХ Схема электрическая принципиальная сигнализации Схема внешних проводок Размещение приборов технологического контроля и прокладка кабеля. План на отм. - 2.400; - 0.800; 0.000 Размещение приборов технологического контроля и прокладка кабеля. План на отм. 0.000; 3.600 Электрическое освещение Общие данные Электрическое освещение. План на отм. 0.000 Электрическое освещение. План на отм. 3.600; - 2.400 Связь и сигнализация Общие данные. Скелетная схема. Спецификация Планы на отм. 0.000; 2.400; 3.600 |
| Разработан: | ЦНИИЭП |
| Утверждён: | 18.11.1985 Госгражданстрой (Gosgrazhdanstroy 346) |
| Издан: | ЦИТП Госстроя СССР (CITP, Gosstroy (USSR) 1988 г. ) |












































