Скачать Типовые проектные решения 820-04-16.85 Альбом I. Общая частьДата актуализации: 01.01.2021
|
| Обозначение: | Типовые проектные решения 820-04-16.85 |
| Обозначение англ: | 820-04-16.85 |
| Статус: | справочные материалы, мп, тпр |
| Название рус.: | Альбом I. Общая часть |
| Дата добавления в базу: | 01.10.2014 |
| Дата актуализации: | 01.01.2021 |
| Дата введения: | 14.01.1985 |
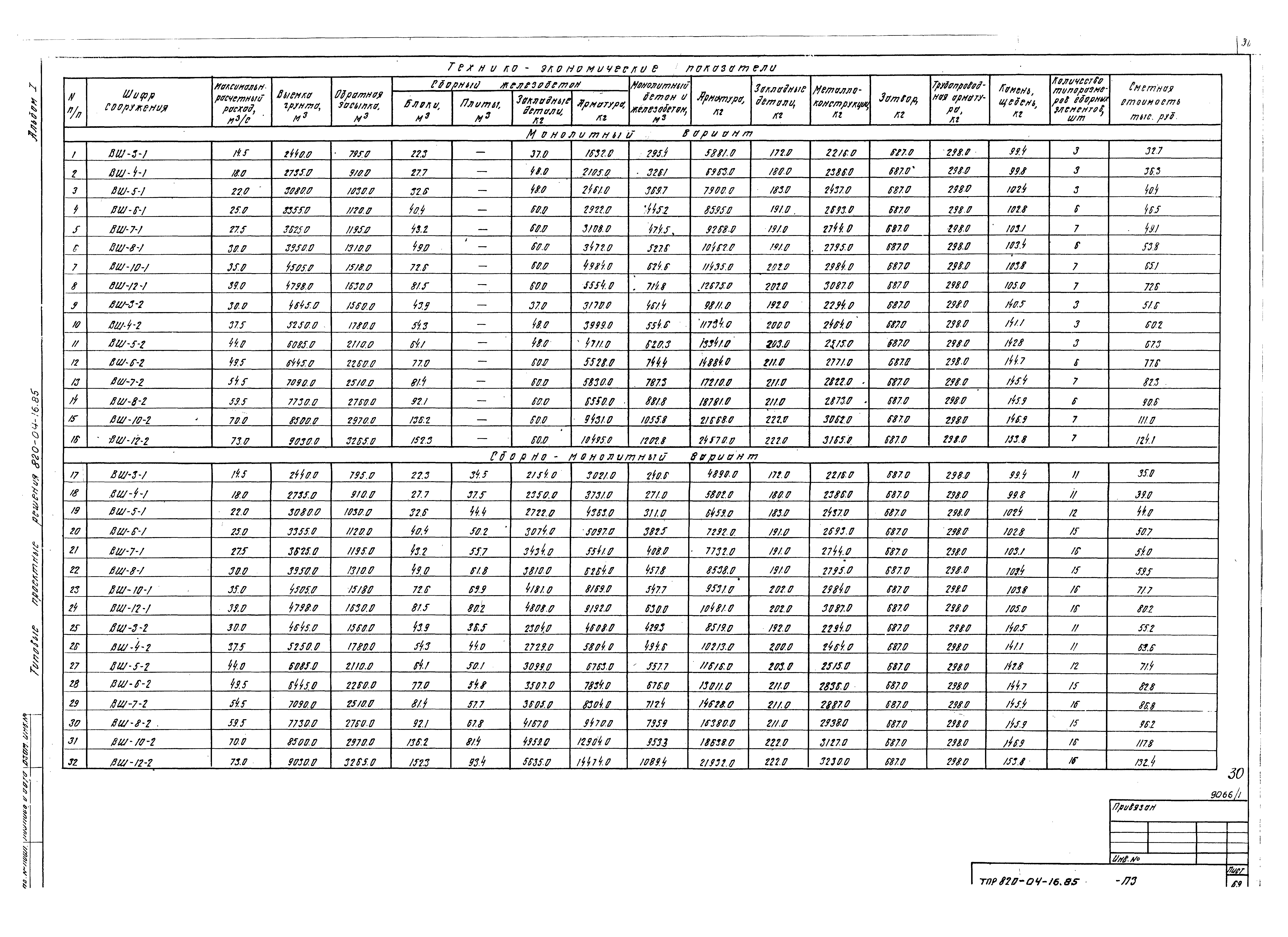
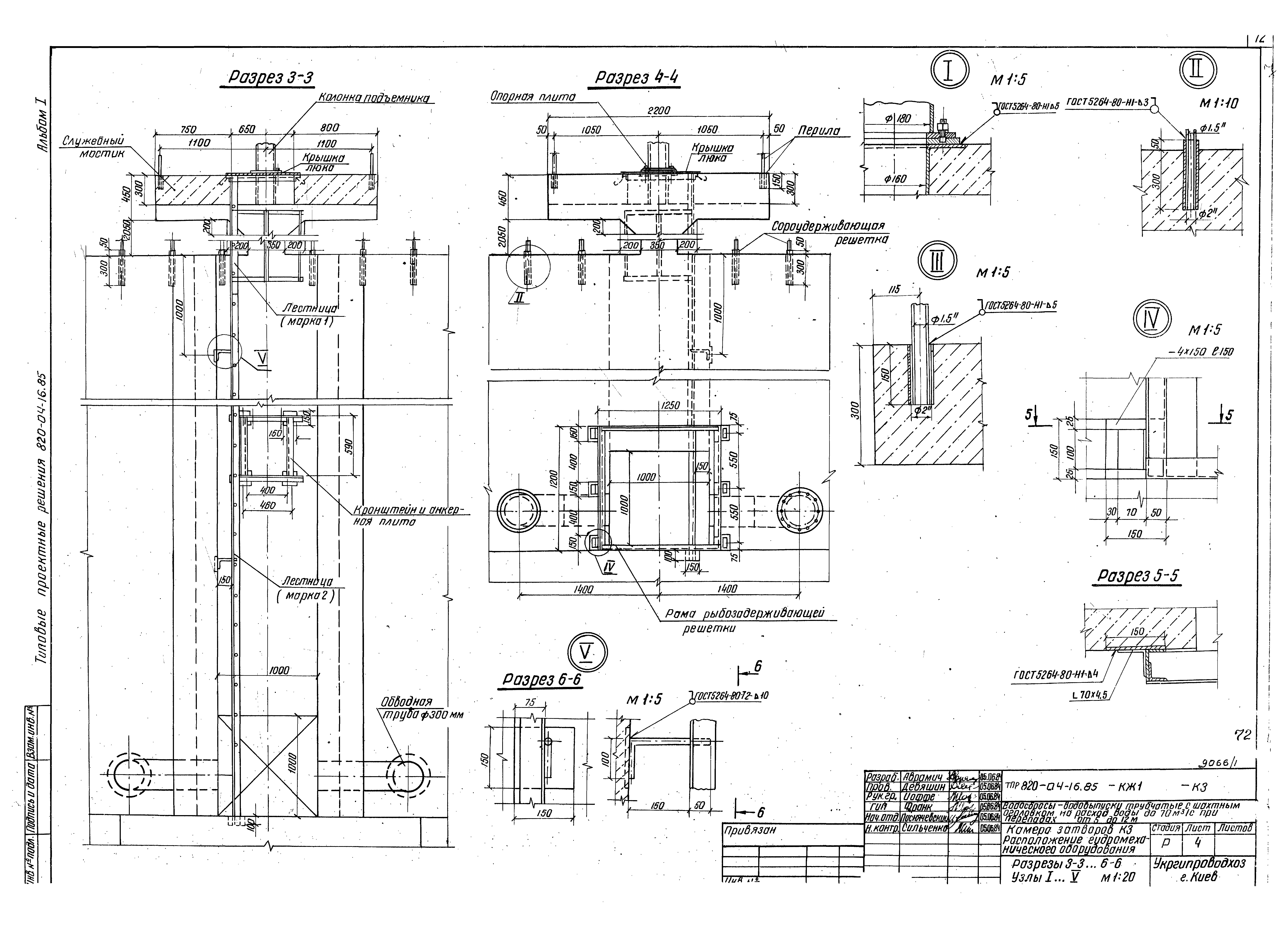
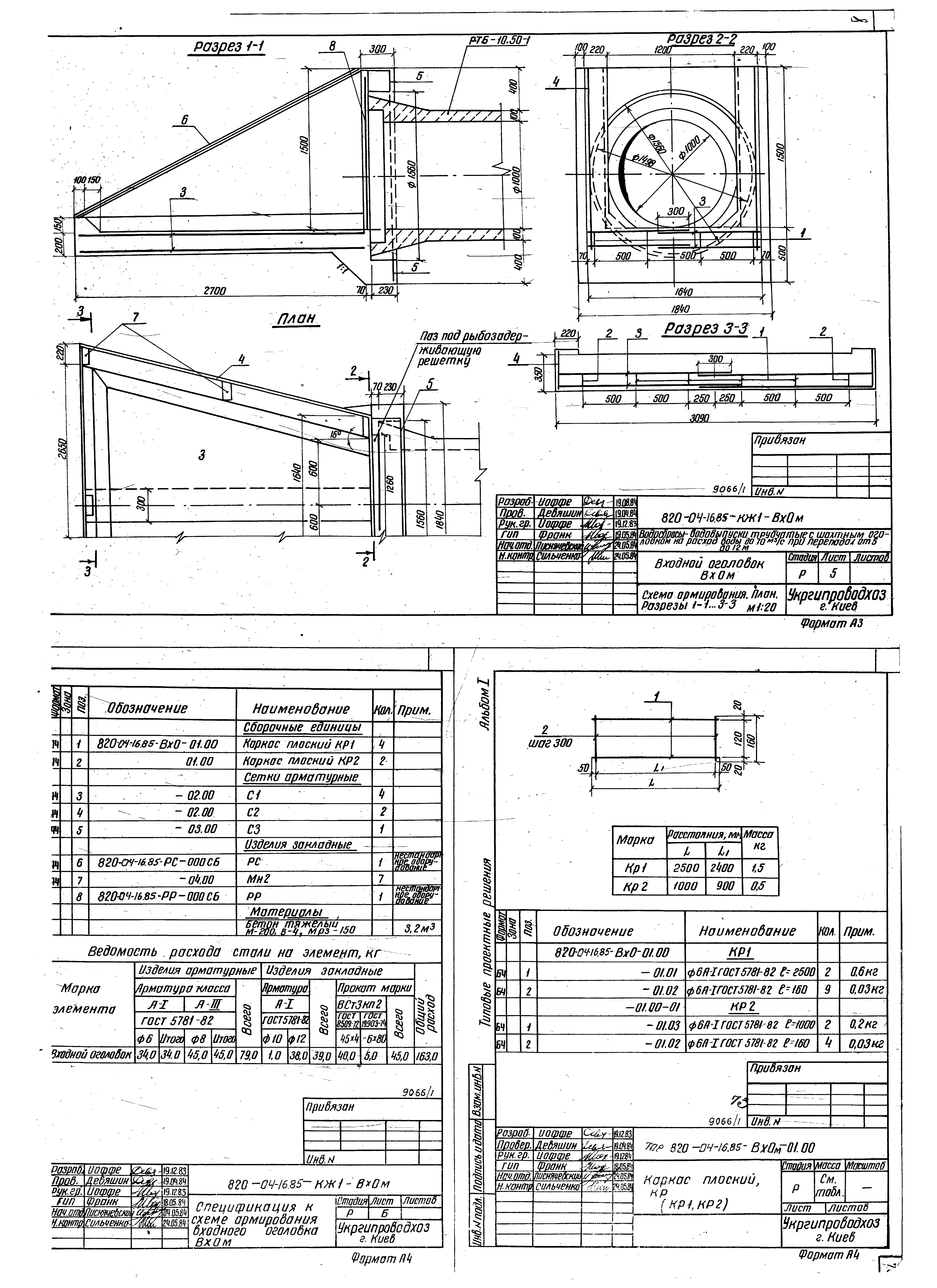
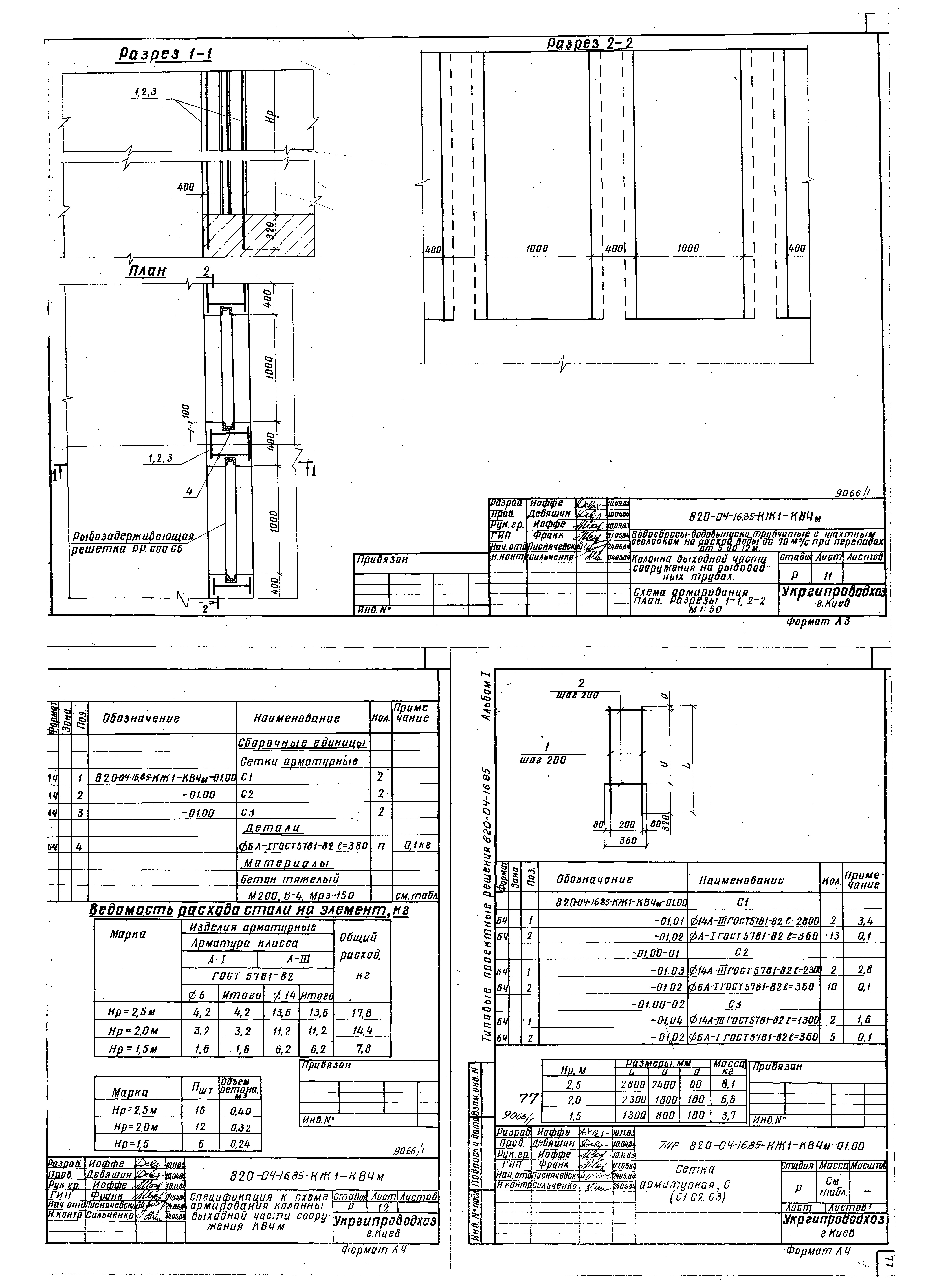
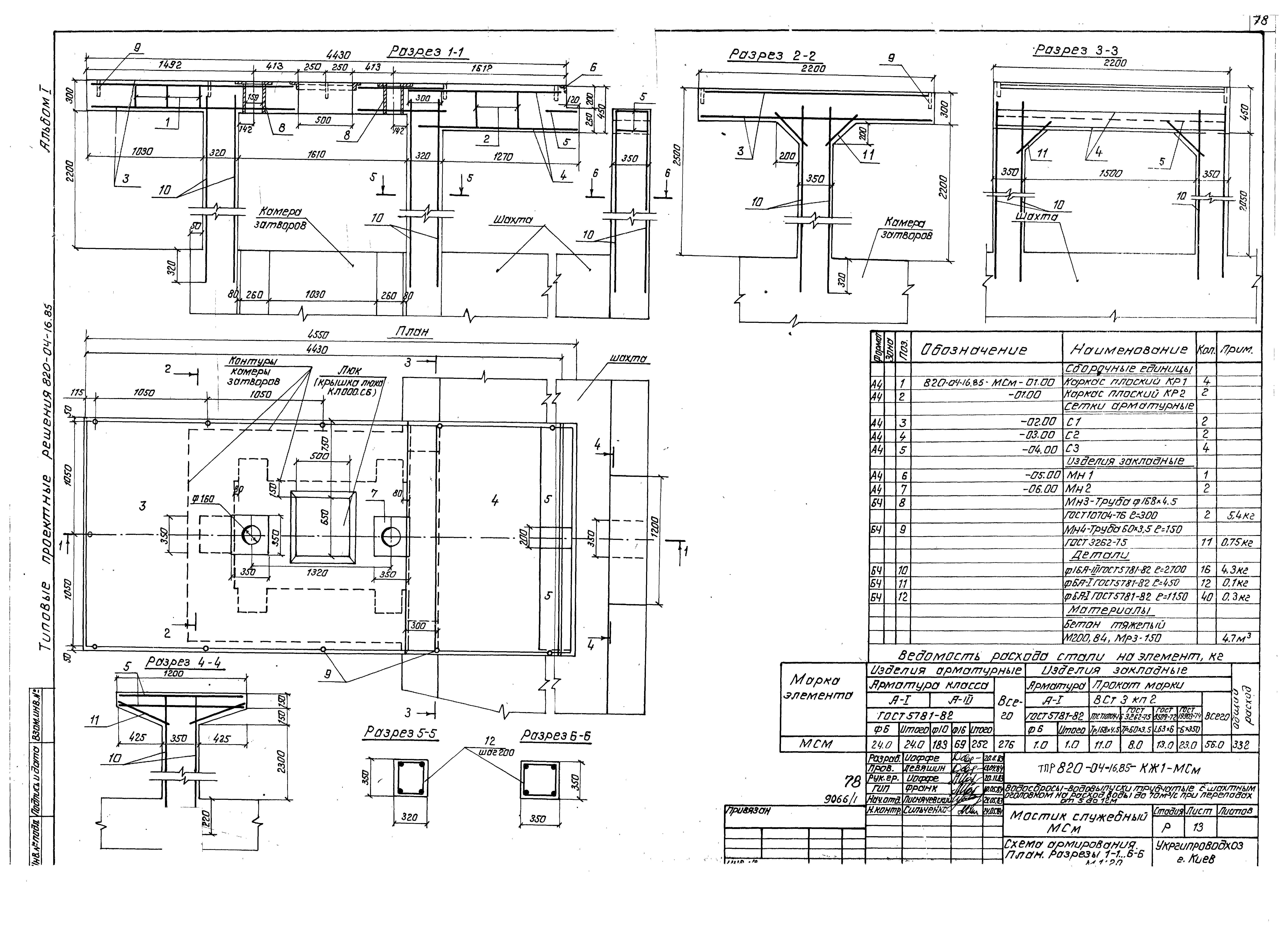
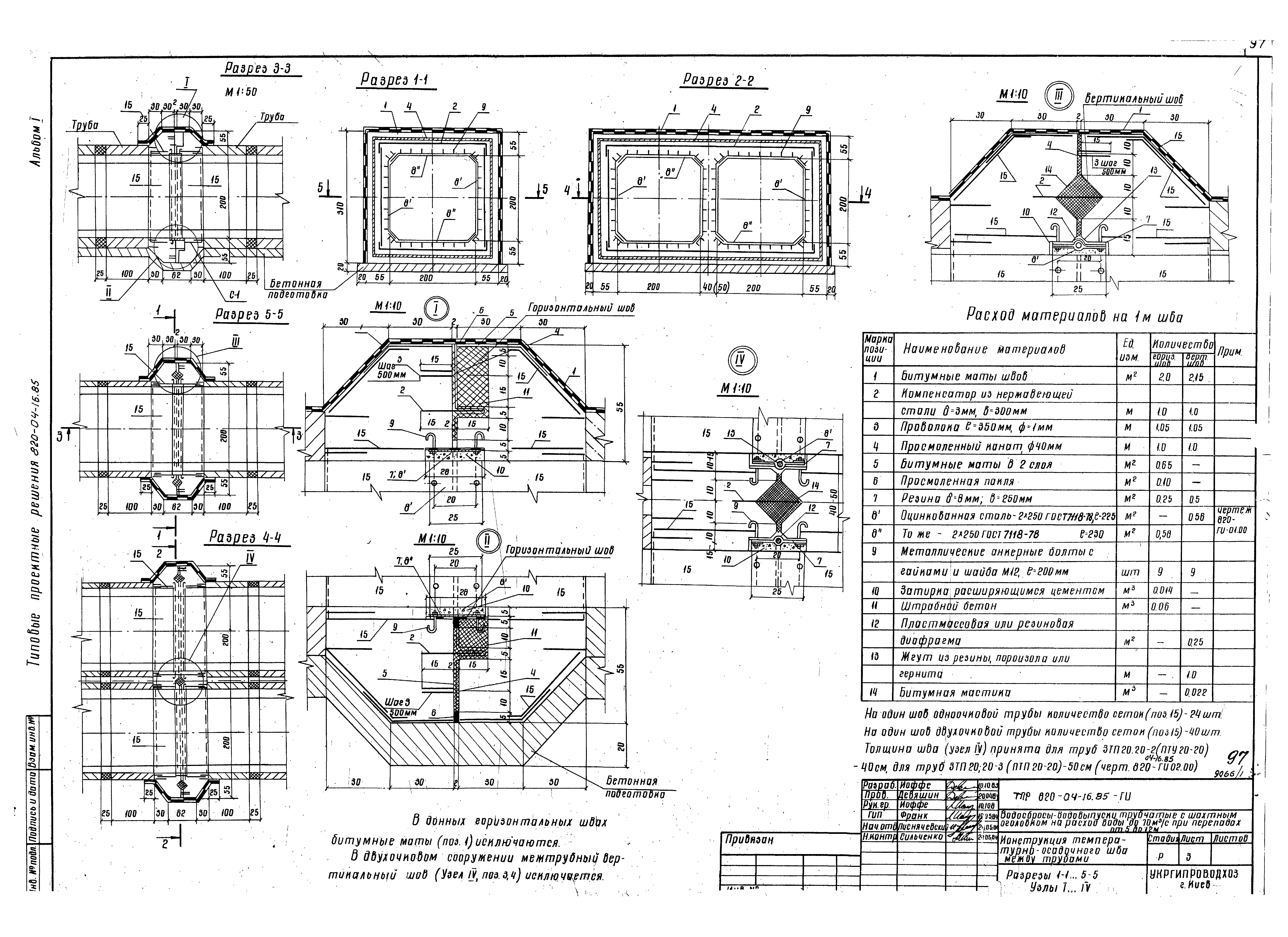
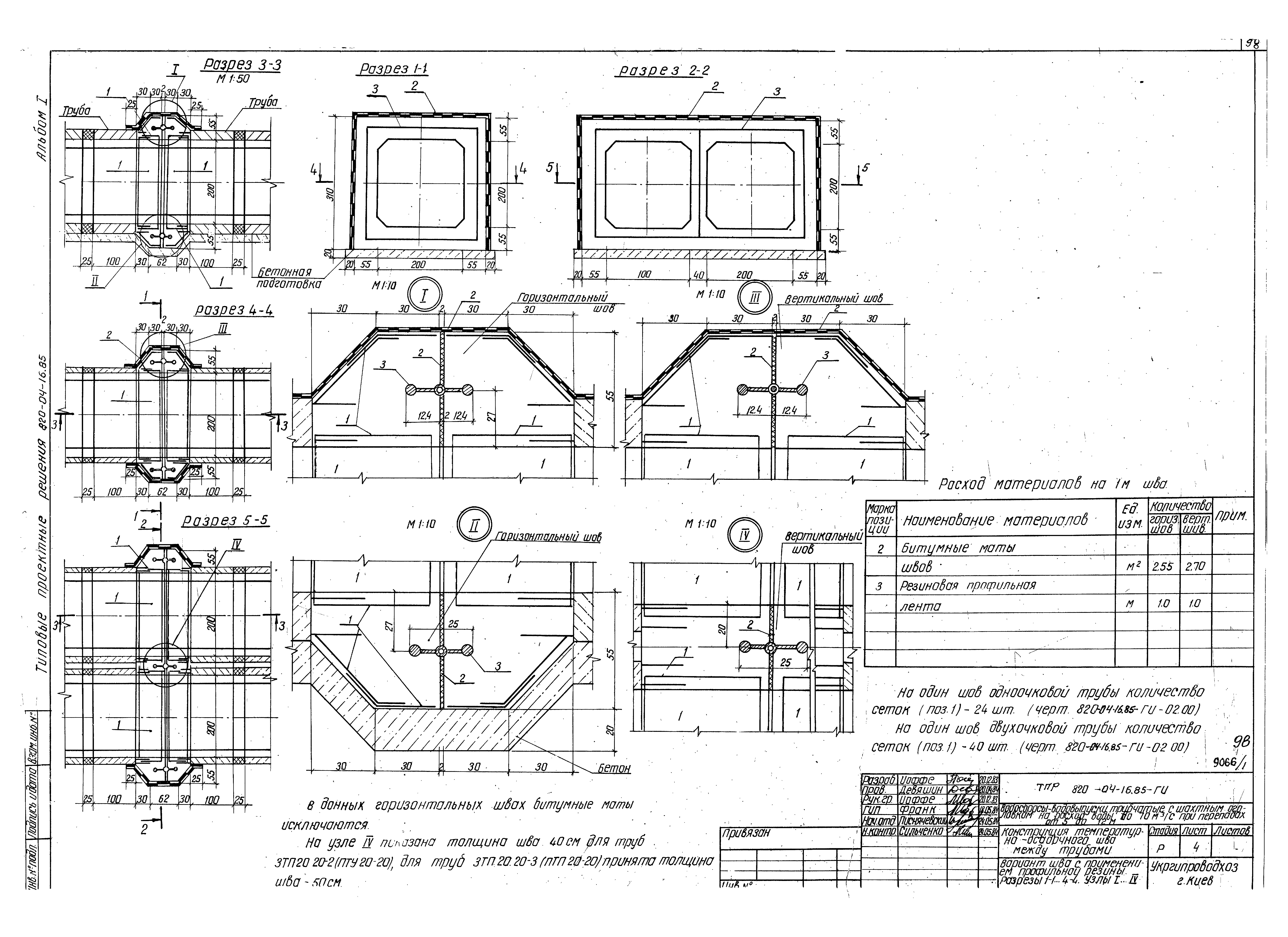
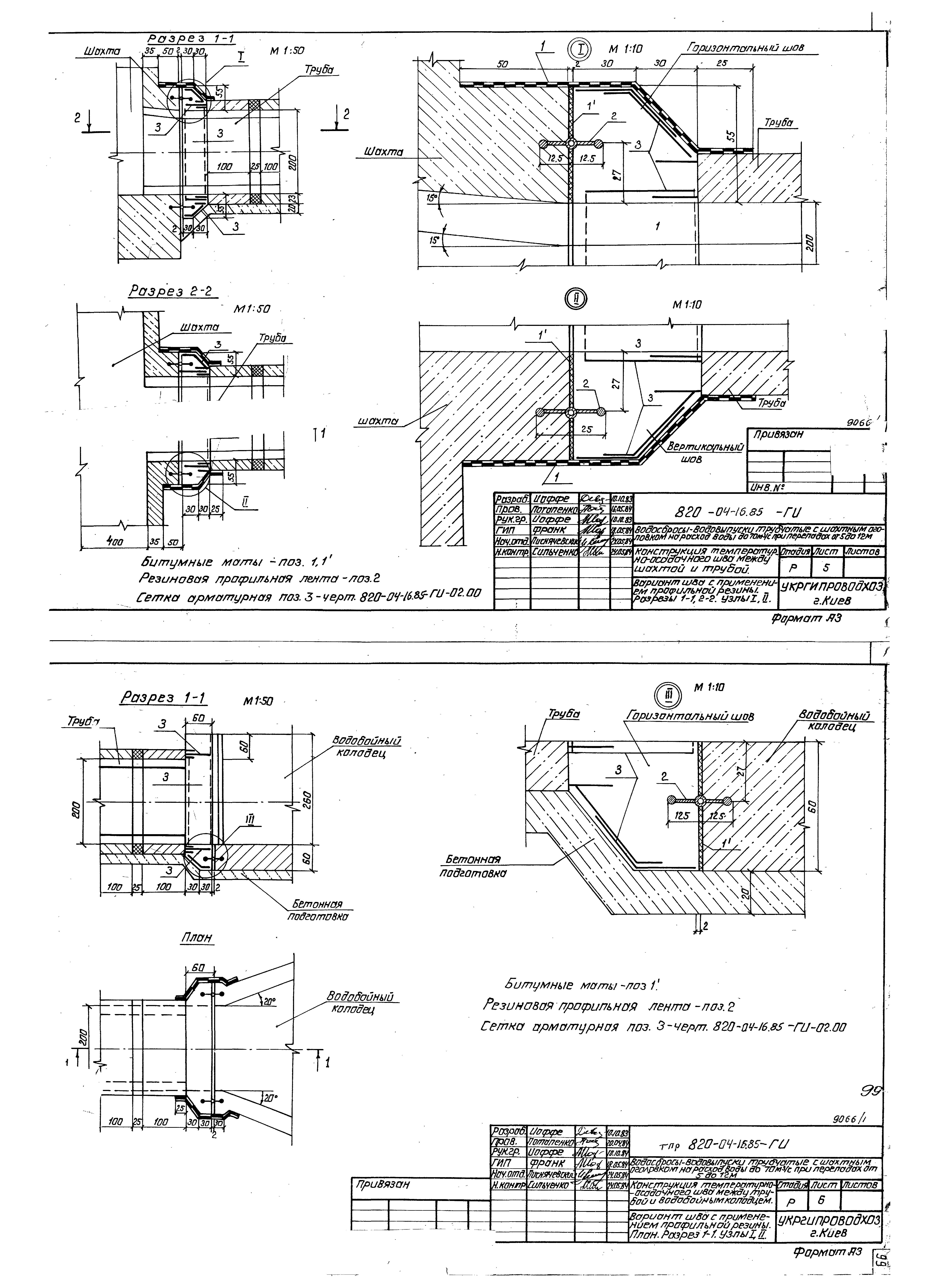
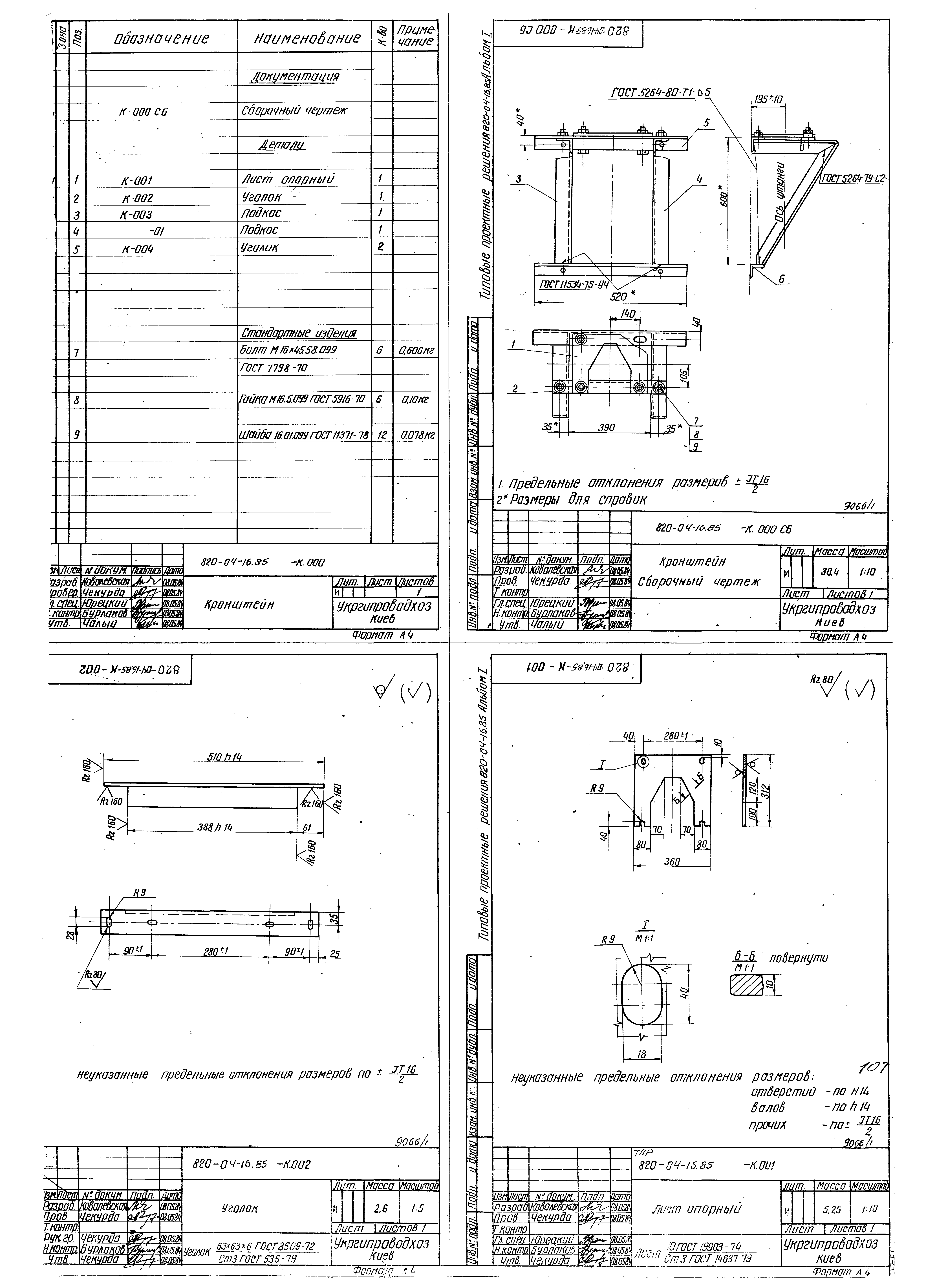
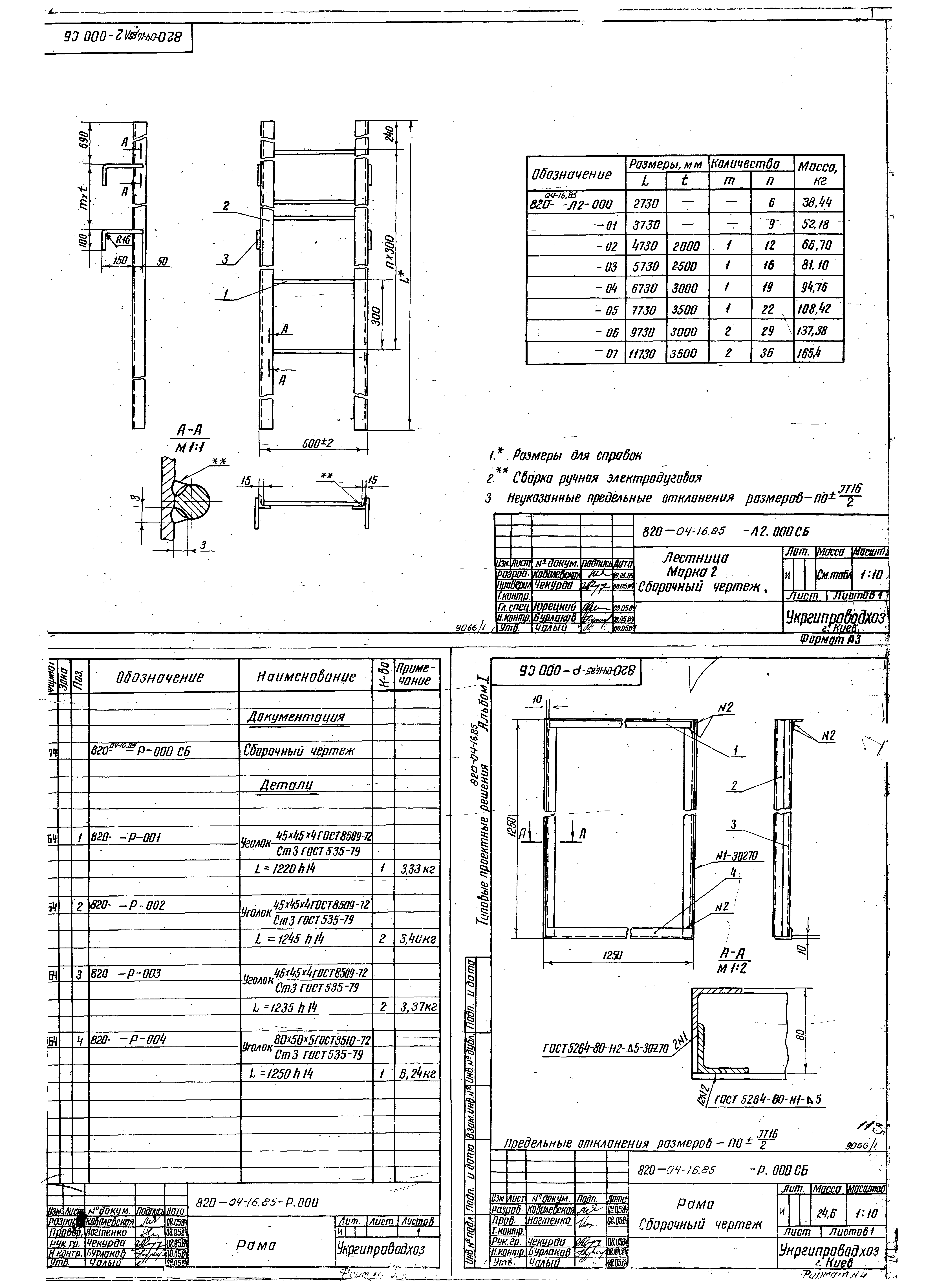
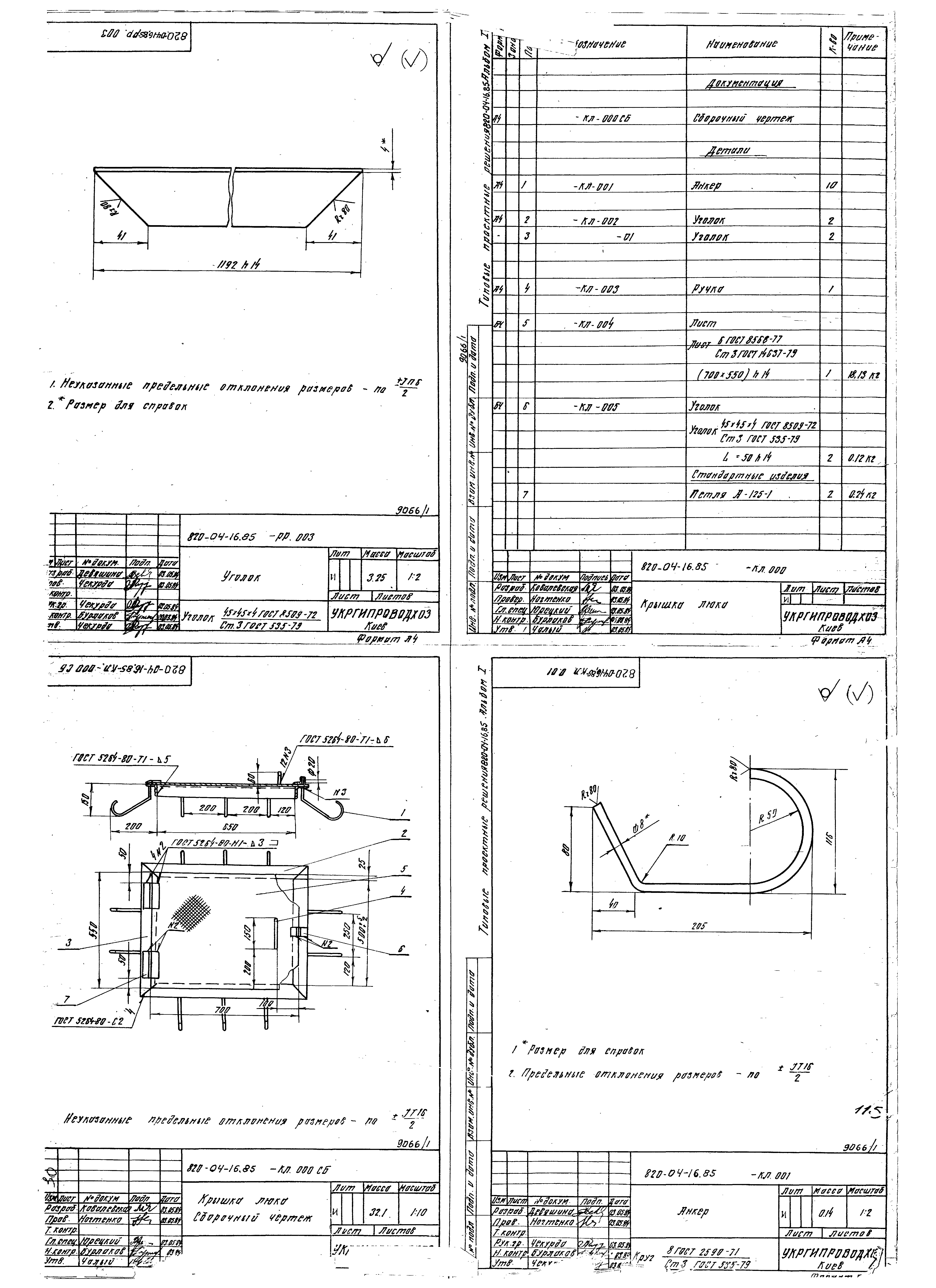
| Оглавление: | Пояснительная записка Архитектурно-строительные решения Общие данные ВШ-3-1. План. Разрезы 1-1…5-5 ВШ-4-1. План. Разрезы 1-1…5-5 ВШ-5-1. План. Разрезы 1-1…5-5 ВШ-6-1. План. Разрезы 1-1…5-5 ВШ-7-1. План. Разрезы 1-1…5-5 ВШ-8-1. План. Разрезы 1-1…5-5 ВШ-10-1. План. Разрезы 1-1…5-5 ВШ-12-1. План. Разрезы 1-1…5-5 ВШ-3-2. План. Разрезы 1-1…5-5 ВШ-4-2. План. Разрезы 1-1…5-5 ВШ-5-2. План. Разрезы 1-1…5-5 ВШ-6-2. План. Разрезы 1-1…5-5 ВШ-7-2. План. Разрезы 1-1…5-5 ВШ-8-2. План. Разрезы 1-1…5-5 ВШ-10-2. План. Разрезы 1-1…5-5 ВШ-12-2. План. Разрезы 1-1…5-5 ВШ-3-1…ВШ-12-2. Объемы работ (монолитный вариант) ВШ-3-1…ВШ-12-2. Объемы работ (сборно-монолитный вариант) Ведомость потребности в материалах Конструкция выходной части сооружения на рыбоводных прудах для отлова рыбы. План. Разрезы 1-1…3-3 Конструктивный чертеж установки служебного мостика. План. Разрезы 1-1…4-4 Узлы соединения круглой трубы водовыпуска, чертеж основания Замена криволинейного профиля ломаным для монолитного варианта Монолитные и сборные железобетонные конструкции Общие данные Камера затворов К3. Расположение гидромеханического оборудования. План. Разрезы 1-1, 2-2 Камера затворов К3. Расположение гидромеханического оборудования. Разрезы 3-3…6-6. Узлы I…V Входной оголовок ВхОм. Схема армирования. План. Разрезы 1-1…3-3 Спецификация к схеме армированного входного оголовка ВхОм Каркас плоский КР (КР1, КР2) Сетка арматурная С (С1, С2) Сетка арматурная С3 Изделие закладное МН2 Диафрагма Дм1. Схема армирования. План. Разрезы 1-1, 2-2 Диафрагма Дм2. Схема армирования. План. Разрезы 1-1, 2-2 Спецификация к схеме армирования Дм1 Спецификация к схеме армирования Дм2 Сетка арматурная С (С1, С3) Сетка арматурная С2 Колонна выходной части сооружения на рыбоводных прудах. Схема армирования. План. Разрезы 1-1, 2-2 Спецификация к схеме армирования колонны выходной части сооружения КВЧм Сетка арматурная С (С1, С2, С3) Мостик служебный МСм. Схема армирования. План. Разрезы 1-1…6-6 Каркас плоский КР (КР1, КР2) Сетка арматурная С1 Сетка арматурная С2 Сетка арматурная С3 Изделие закладное Мн1 Изделие закладное Мн2 Конструктивный чертеж служебных мостиков при заложениях верхового откоса плотины m = 2,0…4,5 Конструктивный чертеж служебных мостиков при заложениях верхового откоса плотины m = 5,0…8,0 Ведомость потребности в материалах Плита-оболочка ПО25-10. План. Разрезы 1-1, 2-2 Плита-оболочка ПО20-10. План. Разрезы 1-1, 2-2 Плита-оболочка ПО25-15. План. Разрезы 1-1, 2-2 Плита-оболочка ПО15-15. План. Разрезы 1-1, 2-2 Плита-оболочка ПО30-15. План. Разрезы 1-1, 2-2 Плита-оболочка ПО30-10. План. Разрезы 1-1, 2-2 Плита-оболочка ПО37-10. План. Разрезы 1-1, 2-2 Плита-оболочка ПО31-10. План. Разрезы 1-1, 2-2 Плита-оболочка ПО42,5-10. План. Разрезы 1-1, 2-2 Плита-оболочка ПО39,5-10. План. Разрезы 1-1, 2-2 Сетка арматурная С (С1, С2) Сетка арматурная С (С3, С4) Сетка арматурная С (С5, С6) Изделие закладное Мн1 Каркас плоский КР1 Каркас плоский КР2 Сетка арматурная С7 Изделие закладное Мн3 Каркас плоский КР4 Сетка арматурная С8 Каркас плоский КР3 Сетка арматурная С9 Каркас плоский КР5 Каркас плоский КР6 Сетка арматурная С10 Изделие закладное Мн2 Труба прямоугольная ПТП20-20 Каркас плоский КР (КР1, КР2) Сетка арматурная С (С1…С5) Конструкции температурно-осадочных швов Общие данные Конструкция температурно-осадочного шва между шахтой и трубой, между трубой и водобойным колодцем. План. Разрезы 1-1…3-3. Узлы I…III Конструкция температурно-осадочного шва между трубами. Разрезы 1-1…5-5. Узлы I…IV Конструкция температурно-осадочного шва между трубами. Вариант шва с применением профильной резины. Разрезы 1-1…4-4. Узлы I…IV Конструкция температурно-осадочного шва между шахтой и трубой. Вариант шва с применением профильной резины. Разрезы 1-1, 2-2. Узлы I, II Конструкция температурно-осадочного шва между трубой и водобойным колодцем. Вариант шва с применением профильной резины. План. Разрез 1-1. Узлы I, II Изделие закладное Мн (Мн1, Мн2) Сетка арматурная С1 Нестандартизированное оборудование Оборудование гидромеханическое в камере затворов. Монтажный чертеж Штанга Штанга. Сборочный чертеж Кронштейн Кронштейн. Сборочный чертеж Уголок Лист опорный Уголок Подкос Плита анкерная Плита анкерная. Сборочный чертеж Плита Шпилька Плита опорная Плита опорная. Сборочный чертеж Плита Шпилька Колонна подъемника Колонна подъемника. Сборочный чертеж Плита Лестница. Марка 1 Лестница. Марка 1. Сборочный чертеж Лестница. Марка 2 Лестница. Марка 2. Сборочный чертеж Рама Рама. Сборочный чертеж Решетка рыбозадерживающая Решетка рыбозадерживающая. Сборочный чертеж Косынка Петля Уголок Крышка люка Крышка люка. Сборочный чертеж Анкер Уголок Ручка Труба обводная Полусектор Сектор Решетка сороудерживающая Решетка сороудерживающая. Сборочный чертеж Уголок Форма плит-оболочек Клин Проушина Форма плит-оболочек. Сборочный чертеж Вкладыш Вкладыш. Сборочный чертеж Проушина Ребро Производство и организация работ Общие данные Котлован Технологическая схема производства монтажных работ |
| Разработан: | Укргипроводхоз Минводхоза СССР |
| Утверждён: | 14.01.1985 Минводхоз СССР (USSR Minvodkhoz 608) |
| Издан: | ЦИТП Госстроя СССР (CITP, Gosstroy (USSR) 1988 г. ) |




























































































































