Скачать Типовой проект Б-111-87 Альбом 1. Генеральный план. Фундаменты башенДата актуализации: 01.01.2021
|
| Обозначение: | Типовой проект Б-111-87 |
| Обозначение англ: | Б-111-87 |
| Статус: | справочные материалы, мп, тпр |
| Название рус.: | Альбом 1. Генеральный план. Фундаменты башен |
| Дата добавления в базу: | 01.10.2014 |
| Дата актуализации: | 01.01.2021 |
| Дата введения: | 01.09.1989 |
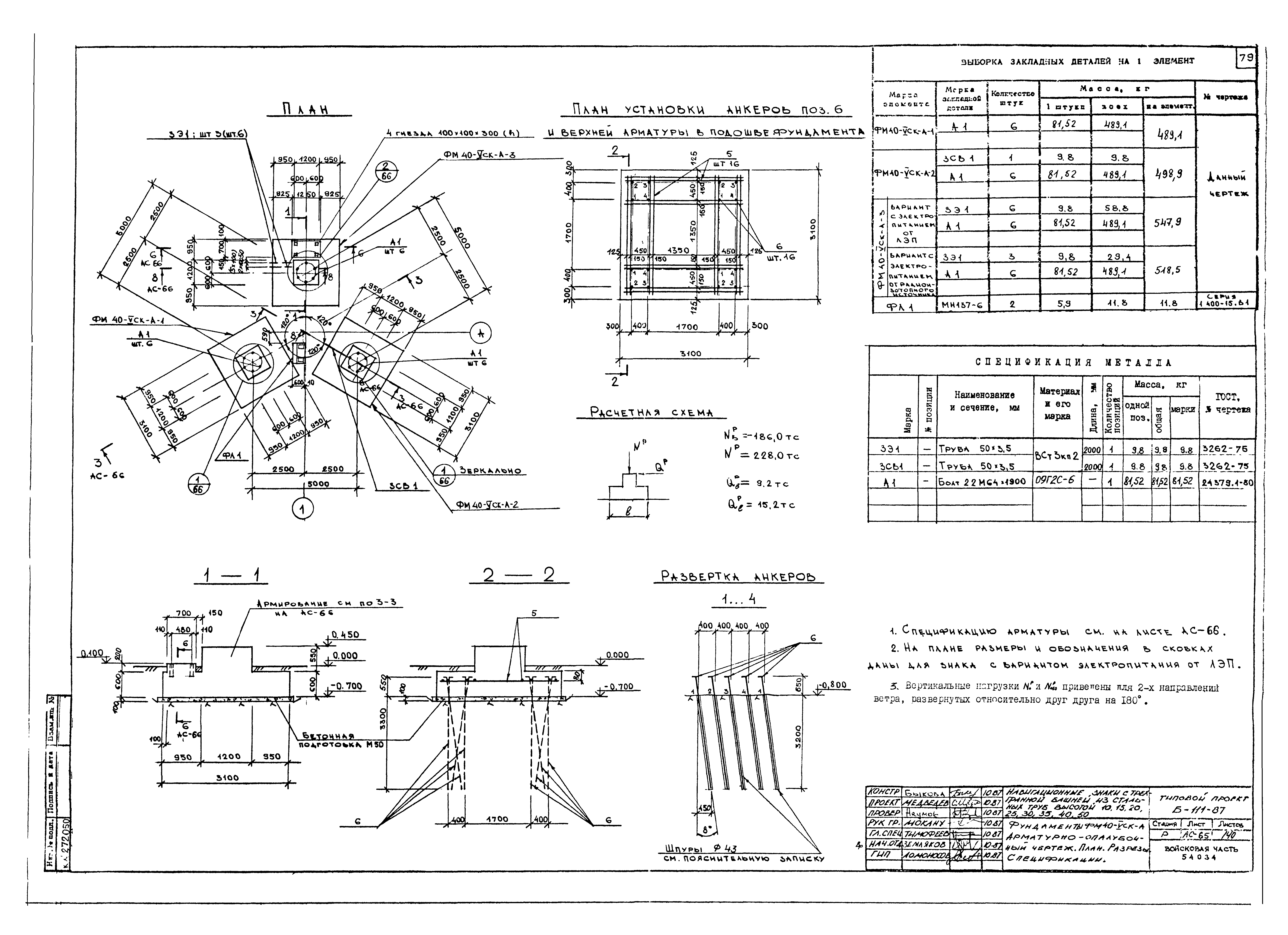
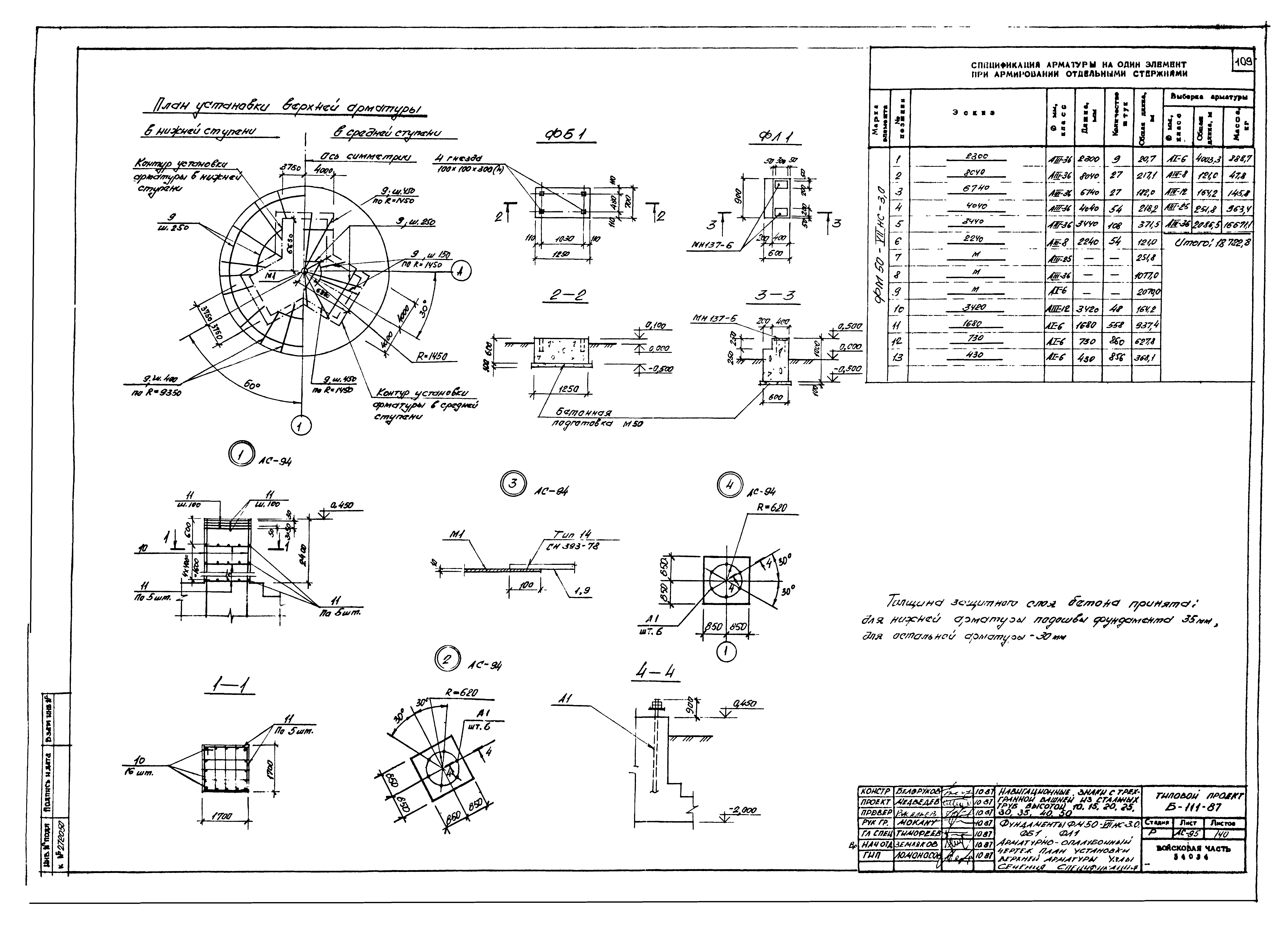
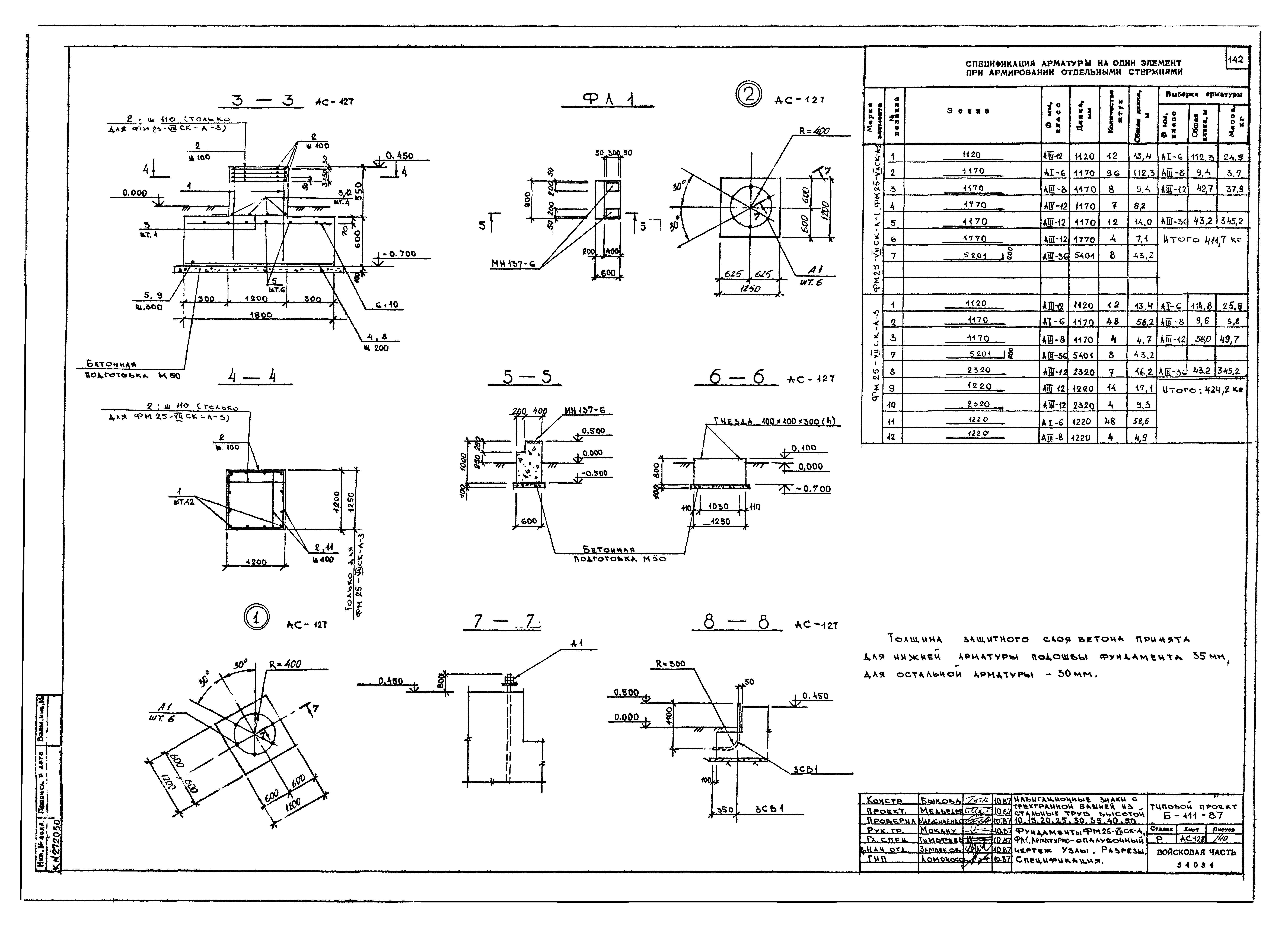
| Оглавление: | Состав проекта Содержание альбома Пояснительная записка Номенклатура вариантов компоновки навигационных знаков Таблица подбора чертежей фундаментов при привязке типового проекта Сводная таблица технико-экономических показателей навигационных знаков Схема генплана опознавательного знака с электропитанием от внешней сети Схема генплана створного знака с электропитанием от внешней сети Схема генплана опознавательного, створного знака с электропитанием от ИЭУ-1м Фундаменты |
| Разработан: | Войсковая часть 54034 |
| Утверждён: | 01.09.1989 Войсковая часть 54034 (307) |














































































































































