Скачать Типовой проект 416-1-141.83 Альбом V. Электротехническая часть. Чертежи монтажной зоны и заготовительного участкаДата актуализации: 01.01.2021
|
| Обозначение: | Типовой проект 416-1-141.83 |
| Обозначение англ: | 416-1-141.83 |
| Статус: | действует |
| Название рус.: | Альбом V. Электротехническая часть. Чертежи монтажной зоны и заготовительного участка |
| Дата добавления в базу: | 01.10.2014 |
| Дата актуализации: | 01.01.2021 |
| Дата введения: | 27.06.1983 |
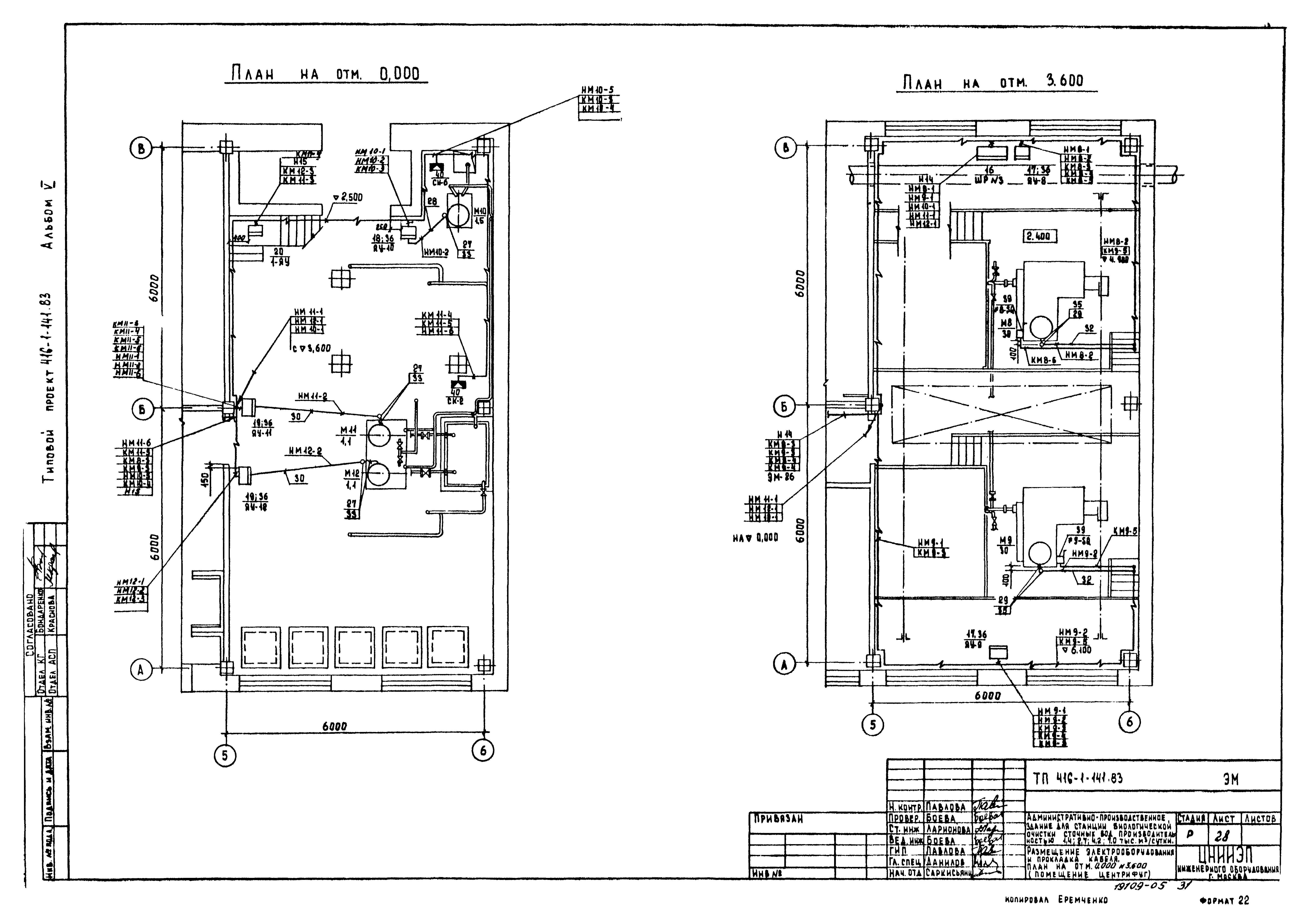
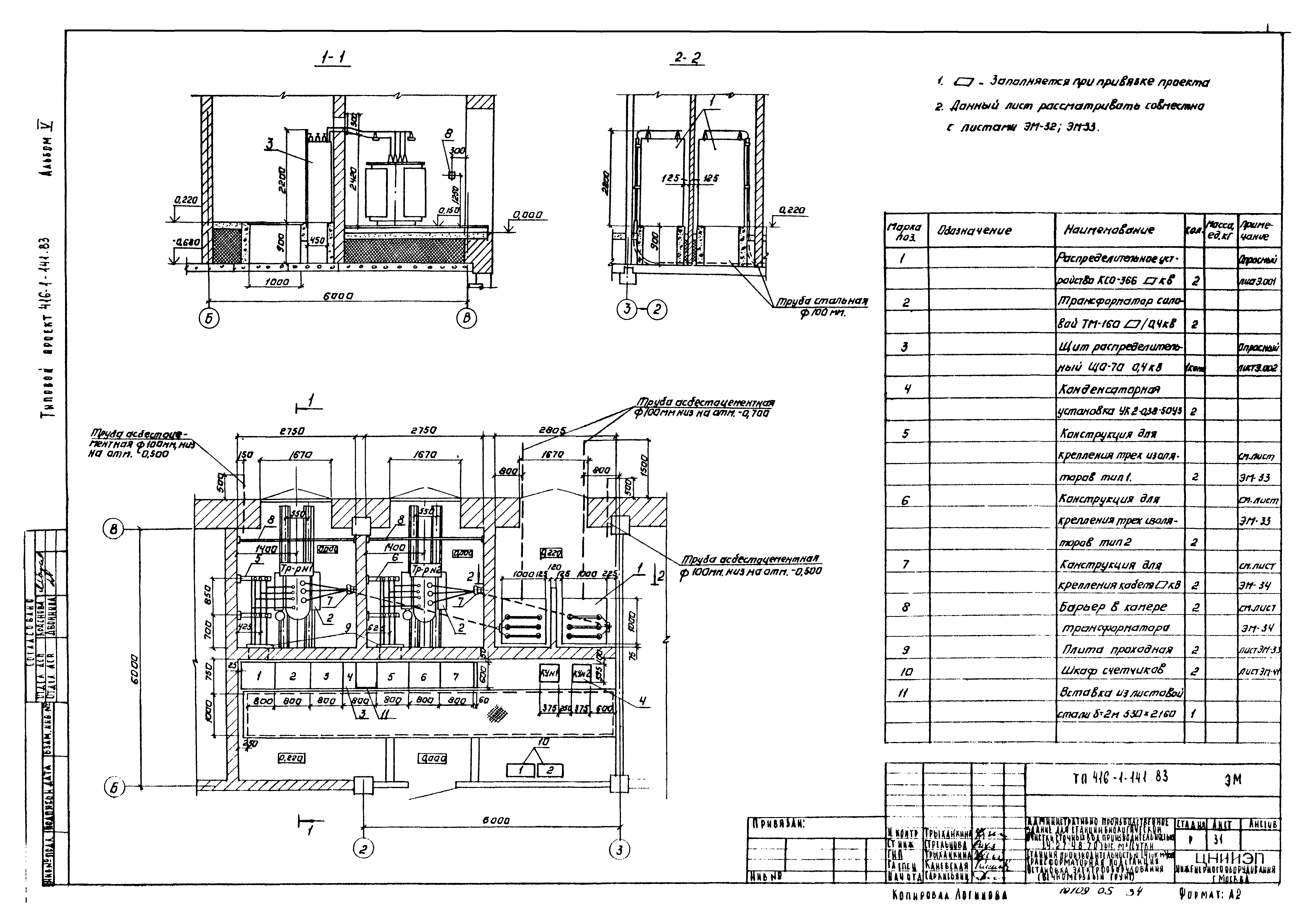
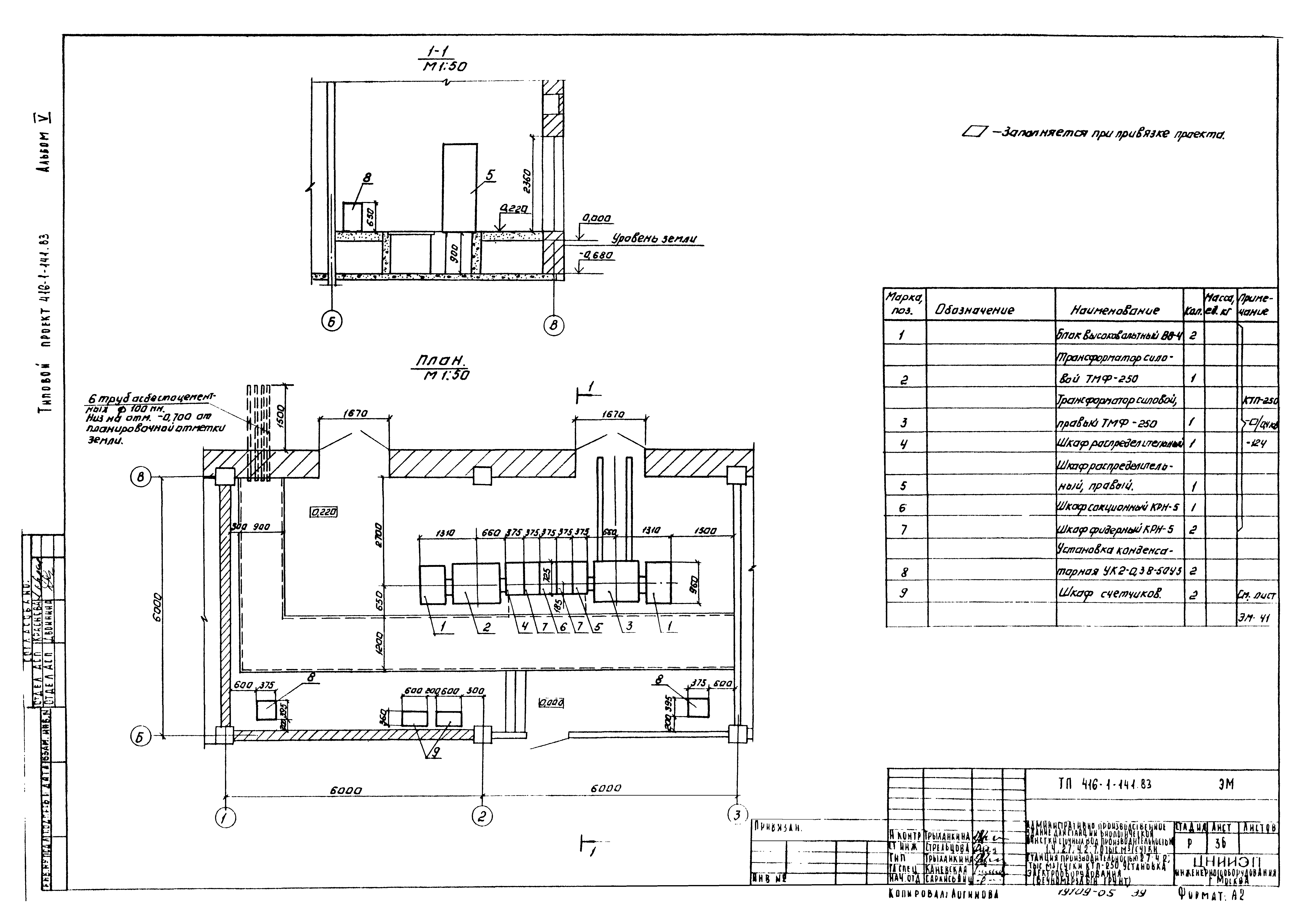
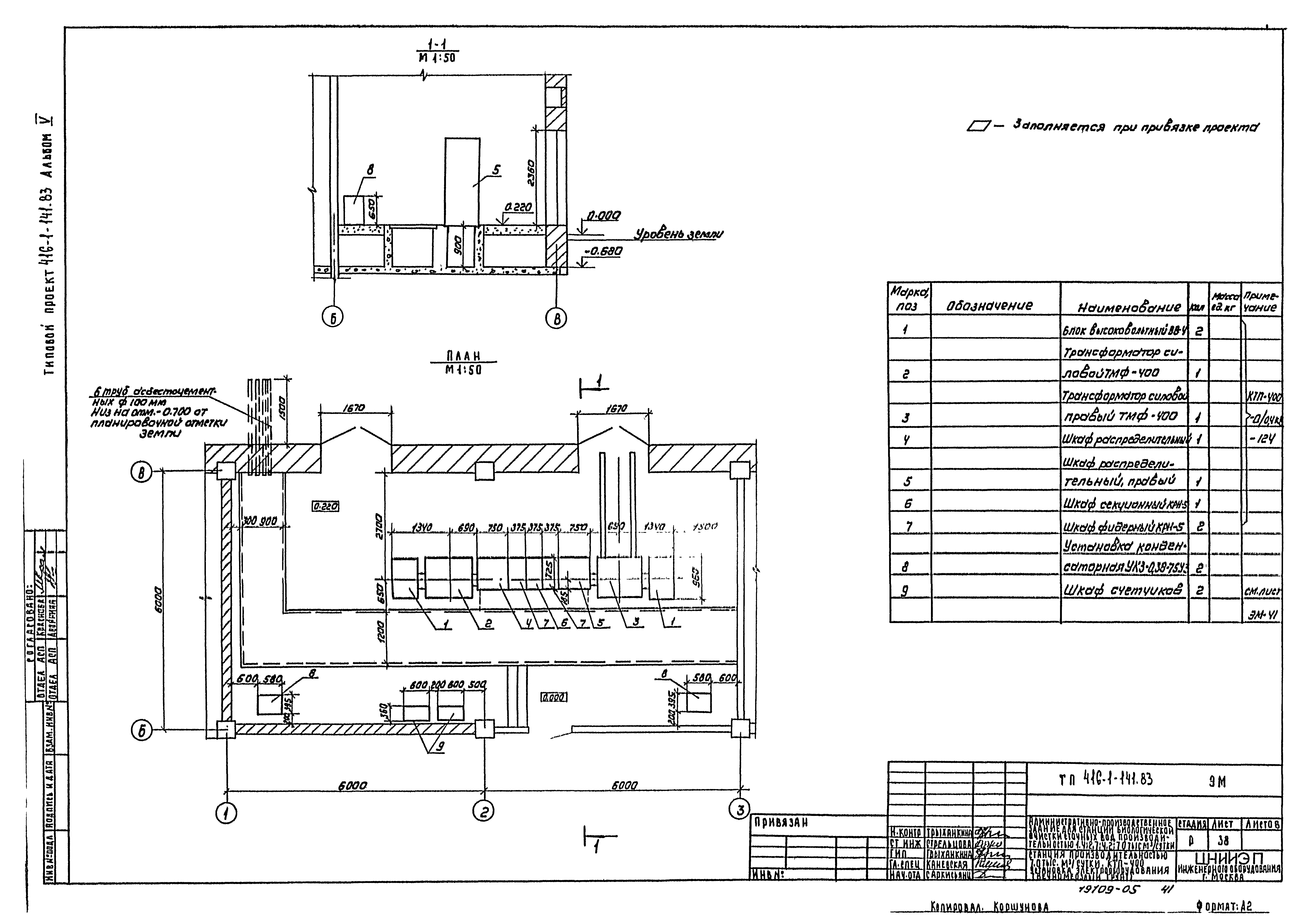
| Оглавление: | Чертежи основного комплекта марки ЭМ Общие данные Станция производительностью 1,4 тыс. куб. м/сутки. Трансформаторная подстанция. Схема принципиальная однолинейная 0,4 кВ Станция производительностью 2,7 тыс. куб. м/сутки. КТП-250. Схема принципиальная однолинейная 0,4 кВ Станция производительностью 4,2 тыс. куб. м/сутки. КТП-250. Схема принципиальная однолинейная 0,4 кВ Станция производительностью 7,0 тыс. куб. м/сутки. КТП-400. Схема принципиальная однолинейная 0,4 кВ Схема питания электрооборудования Схема электрическая принципиальная управления дренажным насосом Схема электрическая принципиальная управления насосом перекачки фугата Схема электрическая принципиальная управления центрифугой Схема электрическая принципиальная управления приточной системой Схема электрическая принципиальная аварийной сигнализации Схема подключения электрооборудования Кабельный журнал Размещение электрооборудования и прокладка кабеля. План на отм. 0.000. Спецификация Размещение электрооборудования и прокладка кабеля. План на отм. 0.000 и 3.600 Размещение электрооборудования и прокладка кабеля. План на отм. 0.000 и 3.600 (помещение электролизной) Размещение электрооборудования и прокладка кабеля. План на отм. 0.000 и 3.600 (помещение центрифуг) Размещение электрооборудования и прокладка кабеля. Спецификация Станция производительностью 1,4 тыс. куб. м/сутки. Трансформаторная подстанция. Установка электрооборудования (обычный грунт) Станция производительностью 1,4 тыс. куб. м/сутки. Трансформаторная подстанция. Установка электрооборудования (вечномерзлый грунт) Станция производительностью 1,4 тыс. куб. м/сутки. Трансформаторная подстанция. Узлы установки электрооборудования Станция производительностью 1,4 тыс. куб. м/сутки. Трансформаторная подстанция. Конструкции Станция производительностью 2,7; 4,2 тыс. куб. м/сутки. КТП-250. Установка электрооборудования (обычный грунт) Станция производительностью 2,7; 4,2 тыс. куб. м/сутки. КТП-250. Установка электрооборудования (вечномерзлый грунт) Станция производительностью 7,0 тыс. куб. м/сутки. КТП-400. Установка электрооборудования (обычный грунт) Станция производительностью 7,0 тыс. куб. м/сутки. КТП-400. Установка электрооборудования (вечномерзлый грунт) Станция производительностью 1,4 тыс. куб. м/сутки. Трансформаторная подстанция. Заземление Станция производительностью 2,7; 4,2; 7,0 тыс. куб. м/сутки. КТП- . Заземление Шкаф счетчиков. Общий вид. Принципиальная схема соединений Опросные листы Чертежи основного комплекта марки ЭО Общие данные Электрическое освещение. План на отм. 0.000 Электрическое освещение. План на отм. 3.600 Электрическое освещение. Спецификация Чертежи основного комплекта марки АТХ Общие данные Схема функциональная Схема подключения приборов технологического контроля Схема подключения и питания приборов технологического контроля Размещение электрооборудования и прокладка кабеля. План на отм. 0.000 Чертежи основного комплекта марки СС Общие данные. План на отм. 0.000 с сетями связи. Экспликация помещений План на отм. 3.600 с сетями связи. Экспликация помещений |
| Разработан: | ЦНИИЭП |
| Утверждён: | 14.02.1983 Госгражданстрой (Gosgrazhdanstroy 49) |




























































