Скачать РС 1251-93 Фундаментные балки каркасных зданийДата актуализации: 01.01.2021
|
| Обозначение: | РС 1251-93 |
| Обозначение англ: | РС 1251-93 |
| Статус: | не определен законодательством |
| Название рус.: | Фундаментные балки каркасных зданий |
| Дата добавления в базу: | 01.10.2014 |
| Дата актуализации: | 01.01.2021 |
| Дата введения: | 04.06.1993 |
| Дата окончания срока действия: | 30.06.2003 |
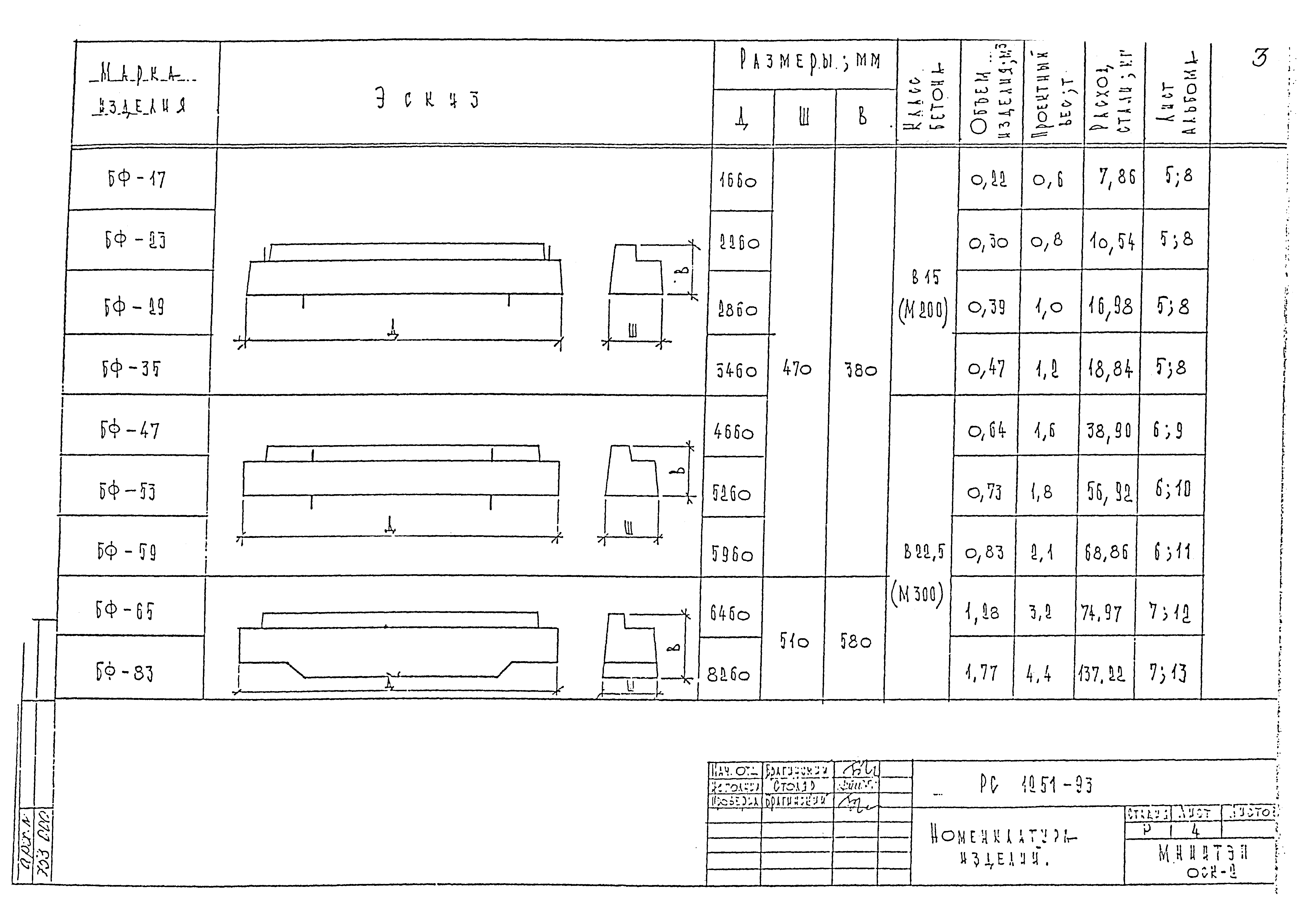
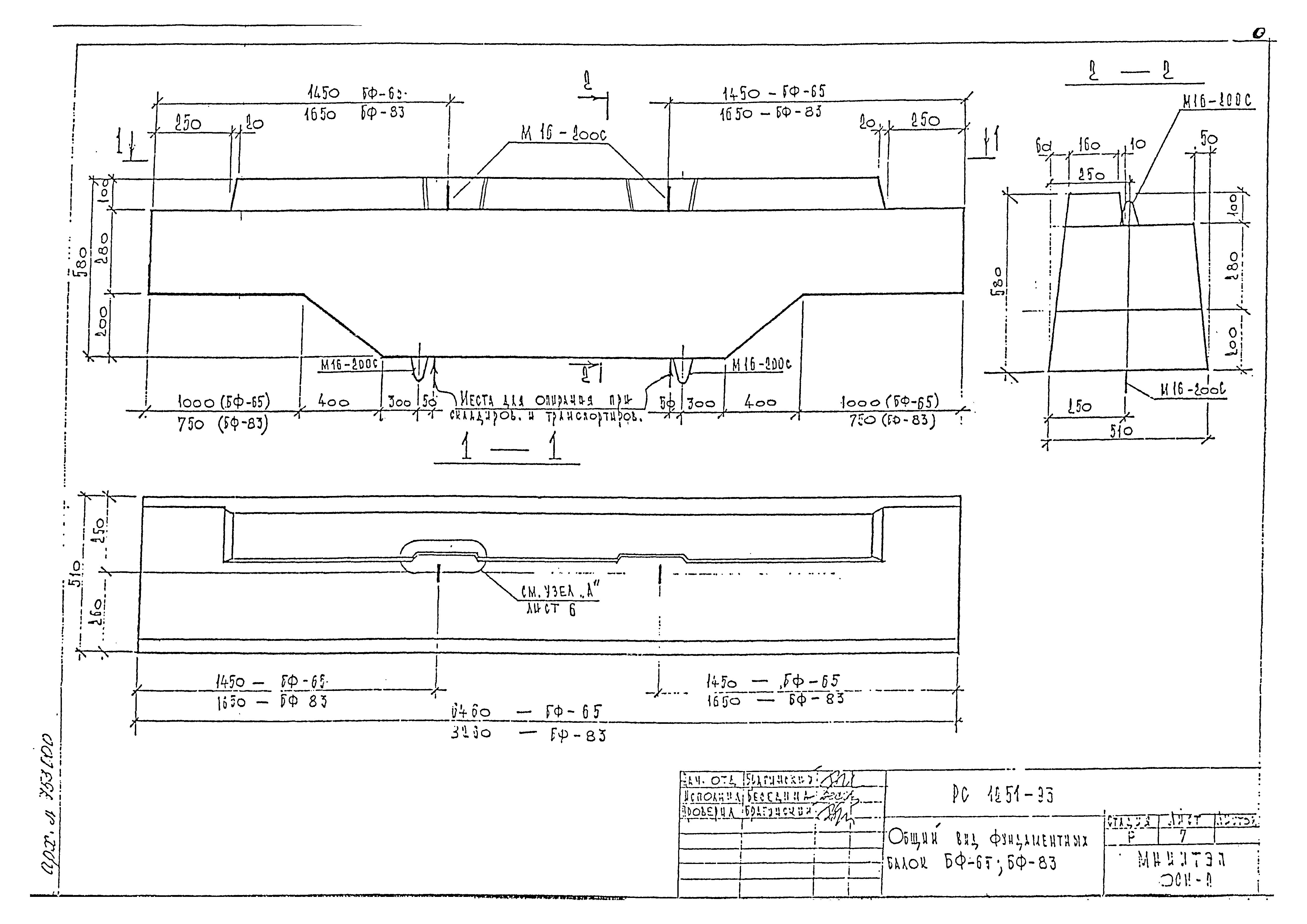
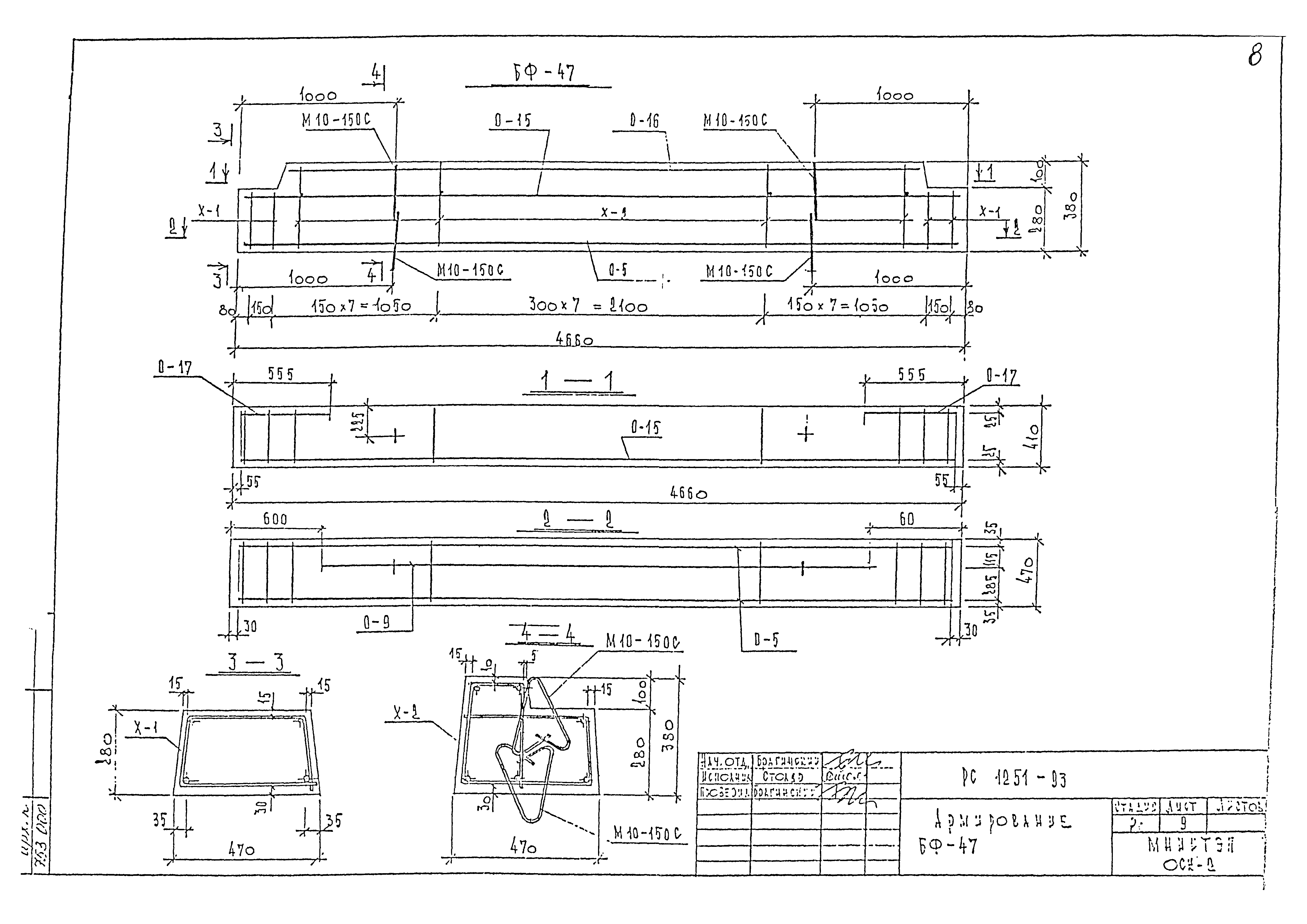
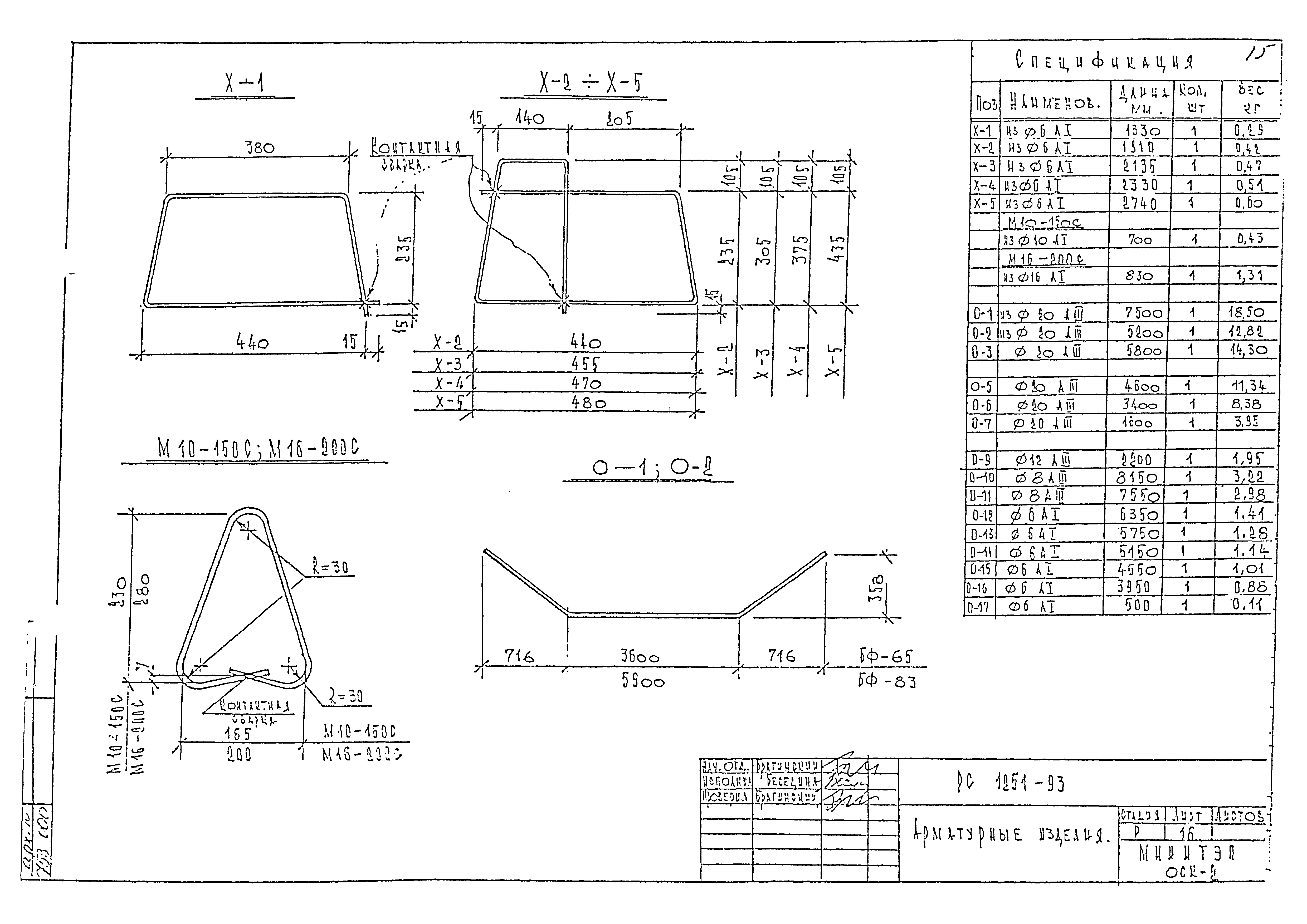
| Оглавление: | Содержание. Расчет экономии стали Пояснительная записка Номенклатура изделий Общий вид фундаментных балок БФ-17, БФ-23, БФ-29, БФ-35 Общий вид фундаментных балок БФ-47, БФ-53, БФ-59 Общий вид фундаментных балок БФ-65, БФ-83 Армирование фундаментных балок БФ-17, БФ-23, БФ-29, БФ-35 Армирование фундаментных балок БФ-47, БФ-53 Армирование фундаментных балок БФ-59 Армирование фундаментных балок БФ-65 Армирование фундаментных балок БФ-83 Армирование. Сечения 3-3 - 8-8 Спецификация Арматурные изделия Ведомость расхода стали Расчетная схема |
| Разработан: | МНИИТЭП |
| Утверждён: | 04.06.1993 МНИИТЭП (MNIITEP 14-ТО) |



















