Скачать Серия ПР-05-50/71 Выпуск 1. Рабочие чертежиДата актуализации: 01.01.2021
|
| Обозначение: | Серия ПР-05-50/71 |
| Обозначение англ: | Series ПР-05-50/71 |
| Статус: | заменен |
| Название рус.: | Выпуск 1. Рабочие чертежи |
| Дата добавления в базу: | 01.10.2014 |
| Дата актуализации: | 01.01.2021 |
| Дата введения: | 01.02.1972 |
| Дата окончания срока действия: | 01.09.1974 |
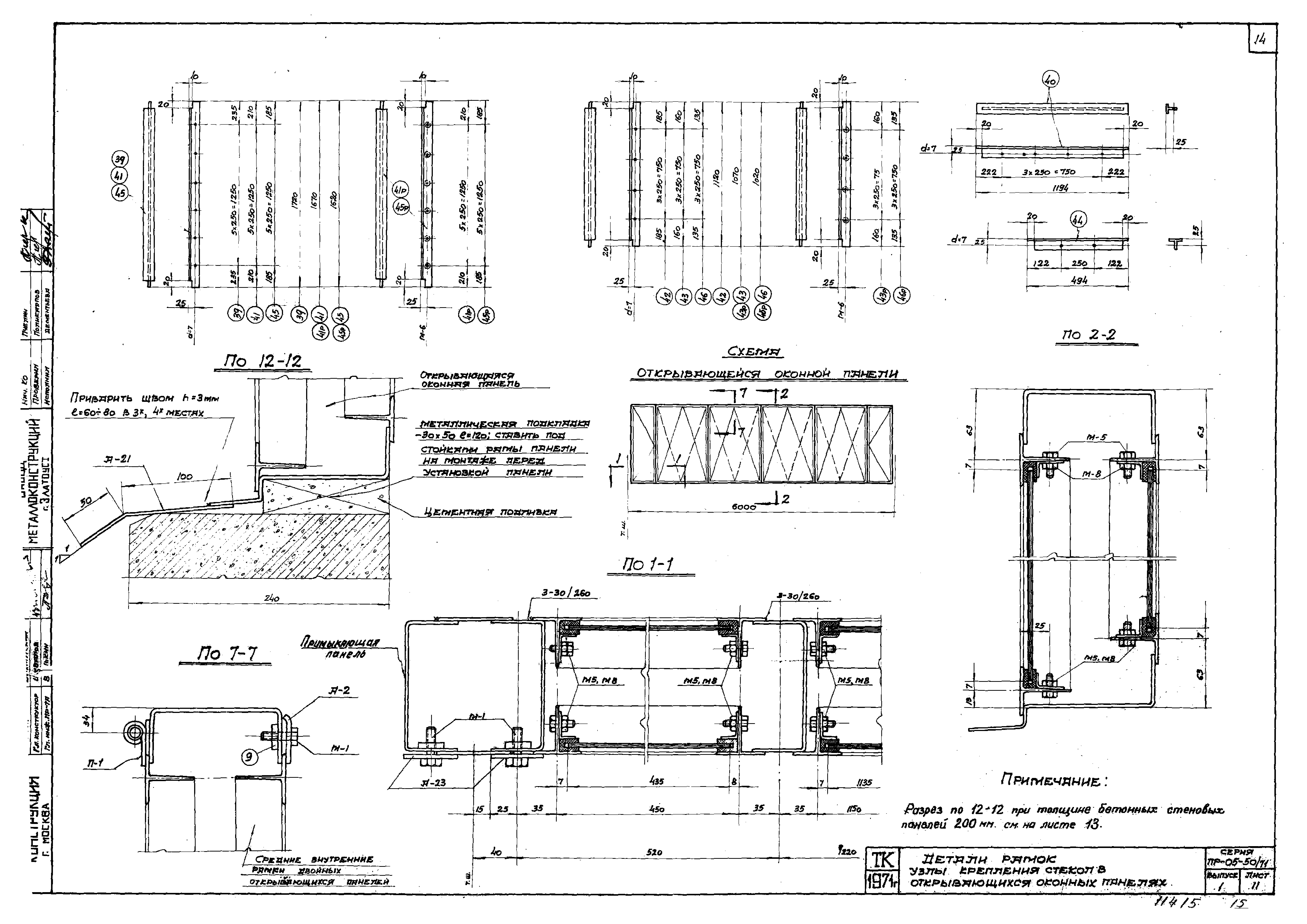
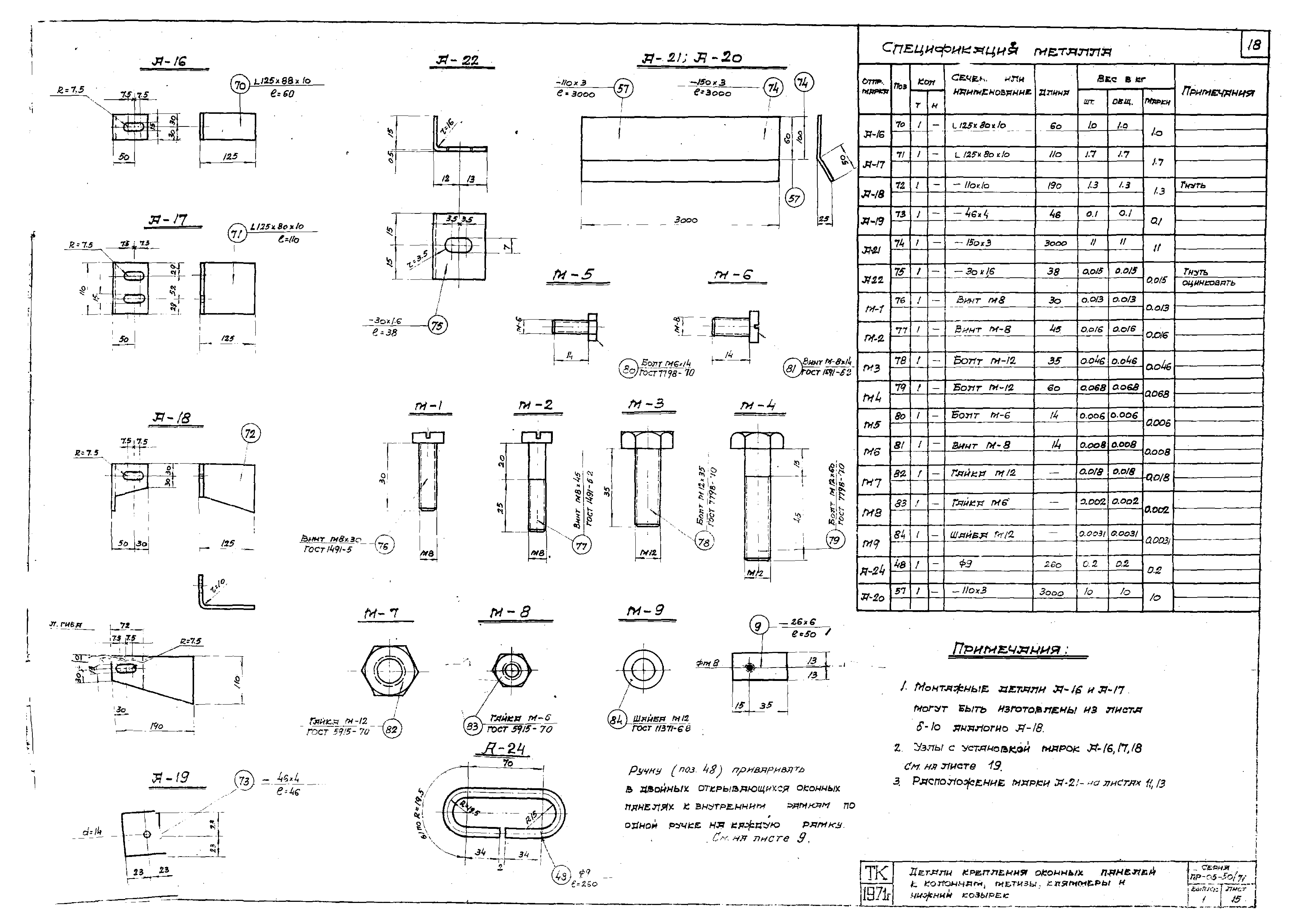
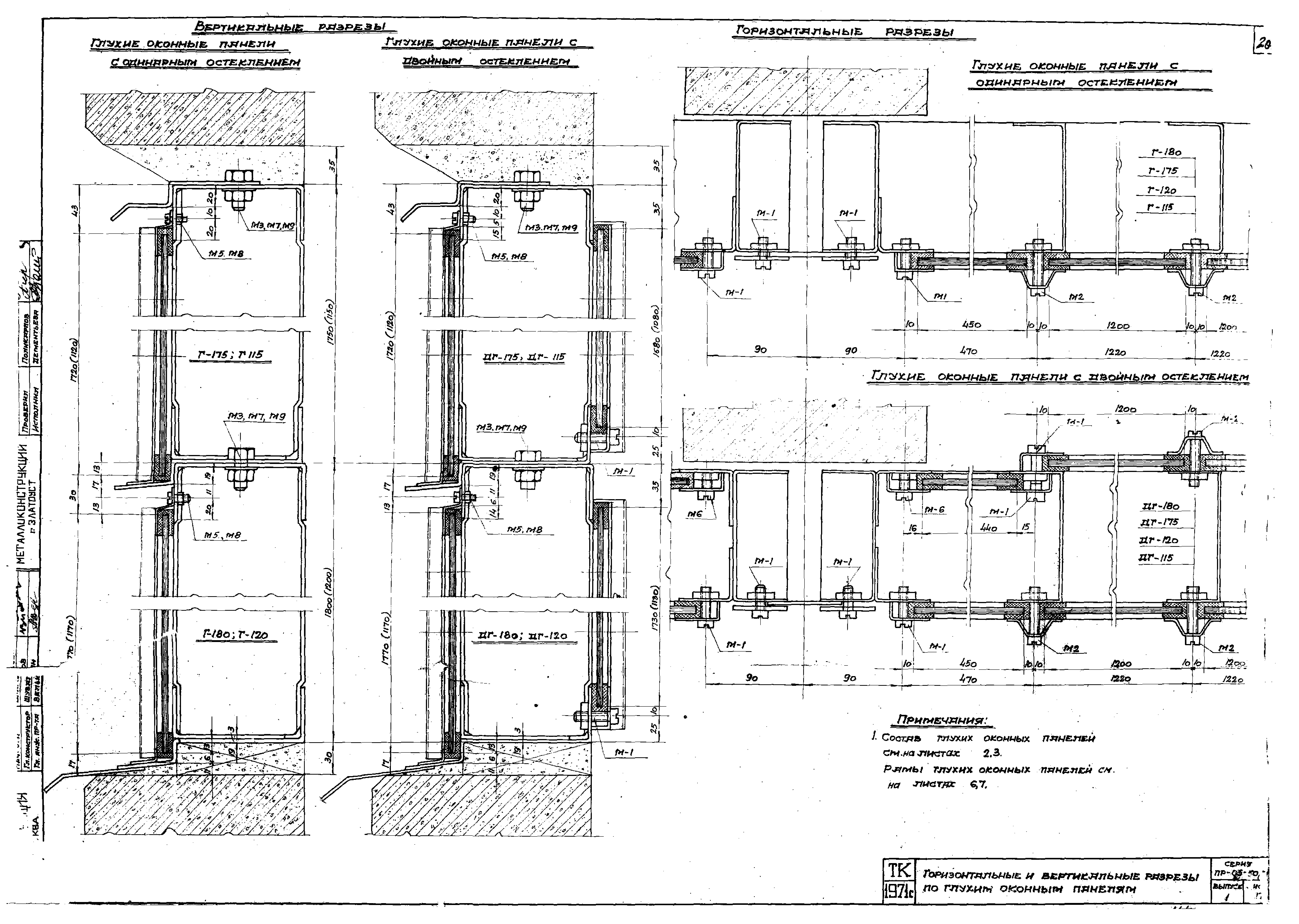
| Оглавление: | Пояснительная записка Схема и маркировка глухих и открывающихся оконных панелей Глухие оконные панели Г-180, Г-175, ДГ-180, ДГ-175 Глухие оконные панели Г-120, Г-115, ДГ-120, ДГ-115 Открывающиеся оконные панели О-180, О-175, ДО-180, ДО-175 Открывающиеся оконные панели О-120, О-115, ДО-120, ДО-115 Рамы оконных панелей Р1, Р2, Р3, Р4 Рамы оконных панелей Р9, Р10, Р11, Р12 Рамы оконных панелей Р5, Р6, Р7, Р8, Р13, Р14, Р15, Р16 Рамки Ф1 - Ф14 Детали рам оконных панелей Детали рамок. Узлы крепления стекол в открывающихся оконных панелях Детали прижимов для крепления стекла в глухих оконных панелях Примеры заполнения оконных проемов оконными панелями. Схемы расположения нащельников и деталей крепления оконных панелей к колоннам Козырек, прижим, петля, нащельник Детали крепления оконных панелей к колоннам, метизы, кляммеры и нижний козырек Узлы рам и рамок Горизонтальные и вертикальные разрезы по глухим оконным панелям Узлы навески рамок на рамы открывающихся оконных панелей Узлы крепления оконных панелей к ж/б колоннам Количество деталей в одной раме или рамке остекления Расход метизов и деталей на оконные панели Техническая спецификация металла. Техническая спецификация стекол и резины |
| Разработан: | ЦНИИпроектстальконструкция Златоустовский завод металлоконструкций |
| Утверждён: | 10.11.1971 Госстрой СССР (Государственный комитет Совета Министров СССР по делам строительства) (USSR Gosstroy 180) |
| Заменяет собой: | |
| Чем заменён: |

























