Скачать Типовой проект 902-2-366.83 Альбом I. Архитектурно-строительные решения. Конструкции железобетонные и металлические. Внутренний водопровод и канализация. Отопление и вентиляция. Электроосвещение и электрооборудование. Связь и радиофикация. Автоматизация санитарно-технических системДата актуализации: 01.01.2021
|
| Обозначение: | Типовой проект 902-2-366.83 |
| Обозначение англ: | 902-2-366.83 |
| Статус: | отменен |
| Название рус.: | Альбом I. Архитектурно-строительные решения. Конструкции железобетонные и металлические. Внутренний водопровод и канализация. Отопление и вентиляция. Электроосвещение и электрооборудование. Связь и радиофикация. Автоматизация санитарно-технических систем |
| Дата добавления в базу: | 01.10.2014 |
| Дата актуализации: | 01.01.2021 |
| Дата введения: | 19.05.1983 |
| Дата окончания срока действия: | 01.01.1988 |
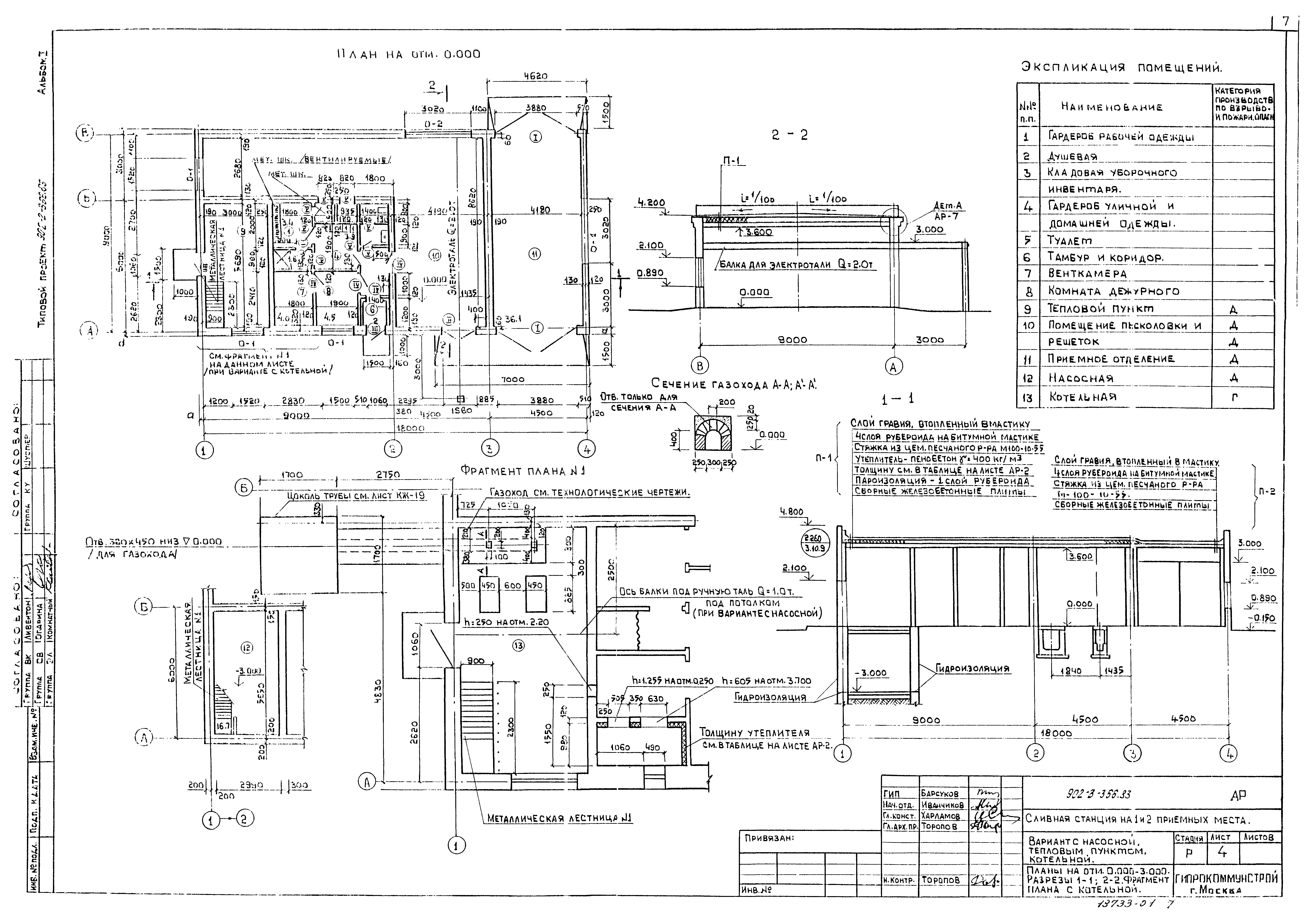
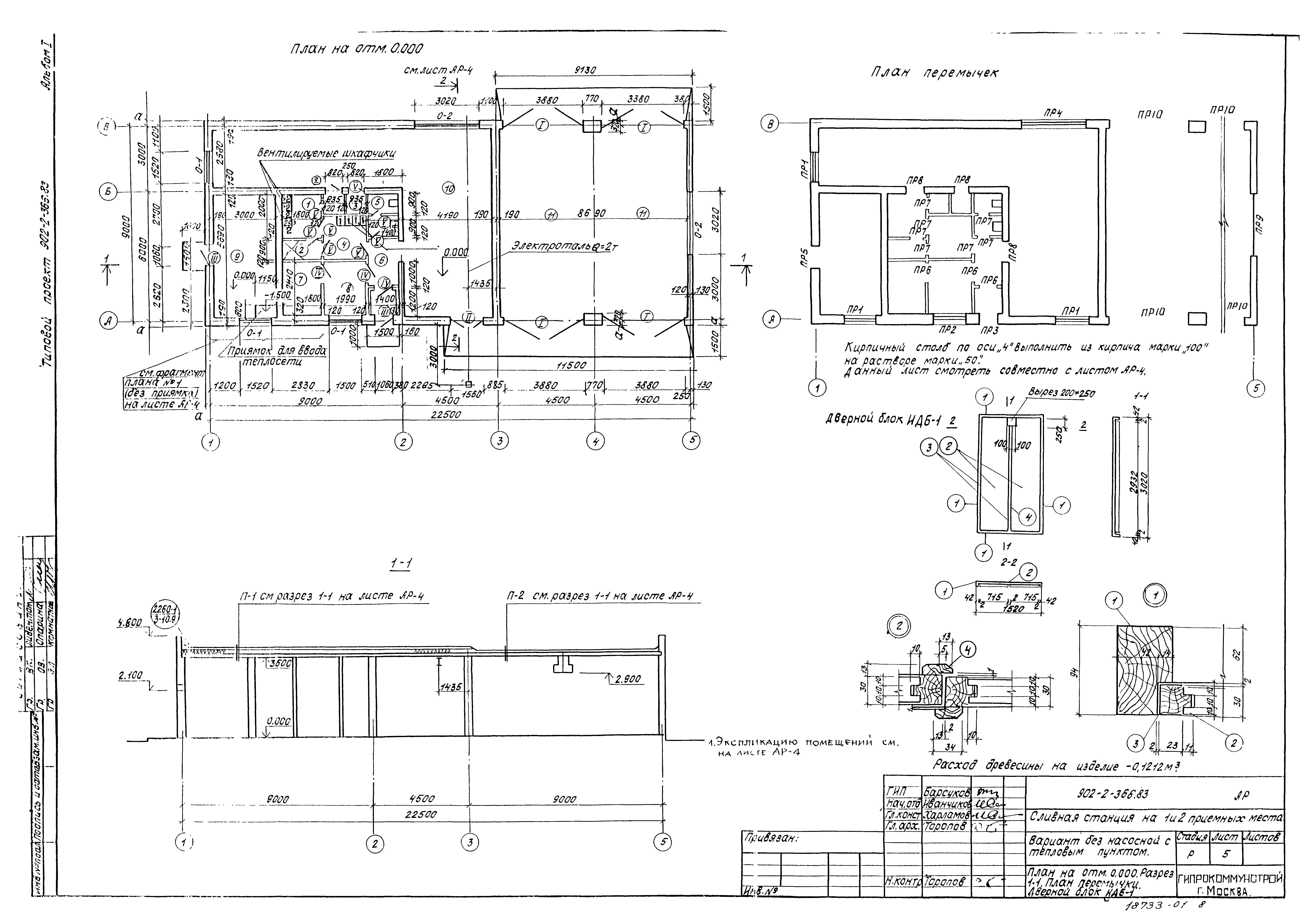
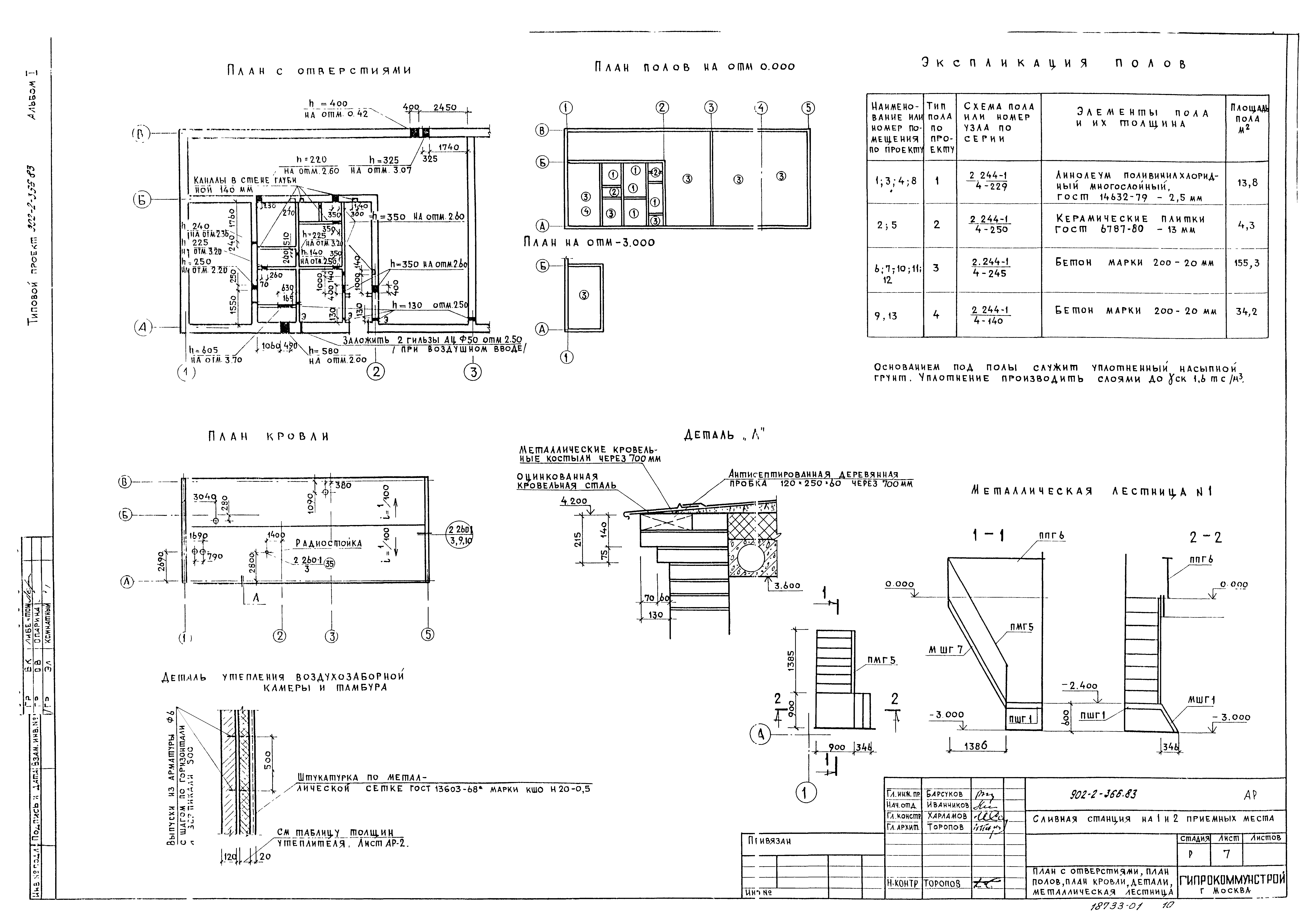
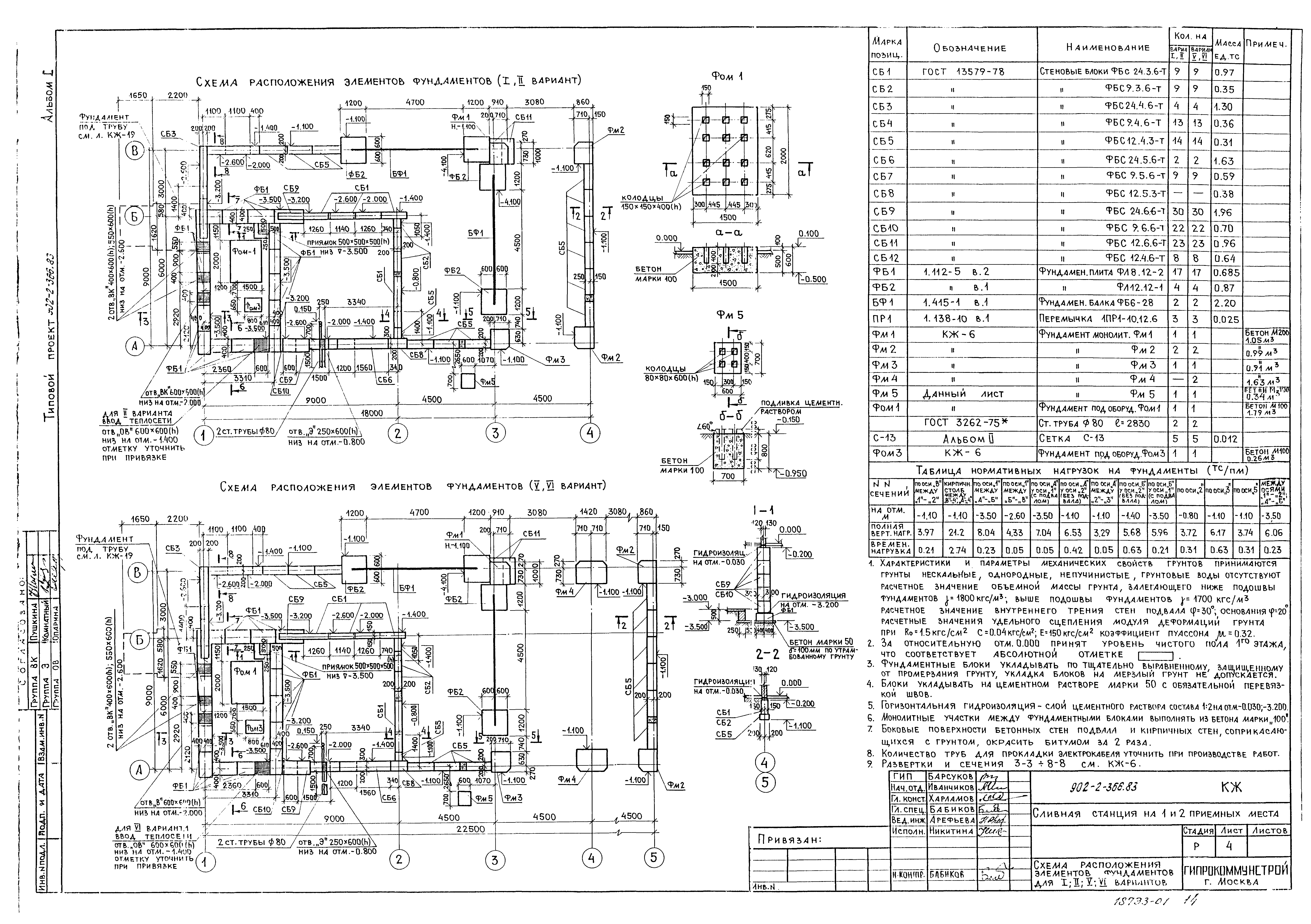
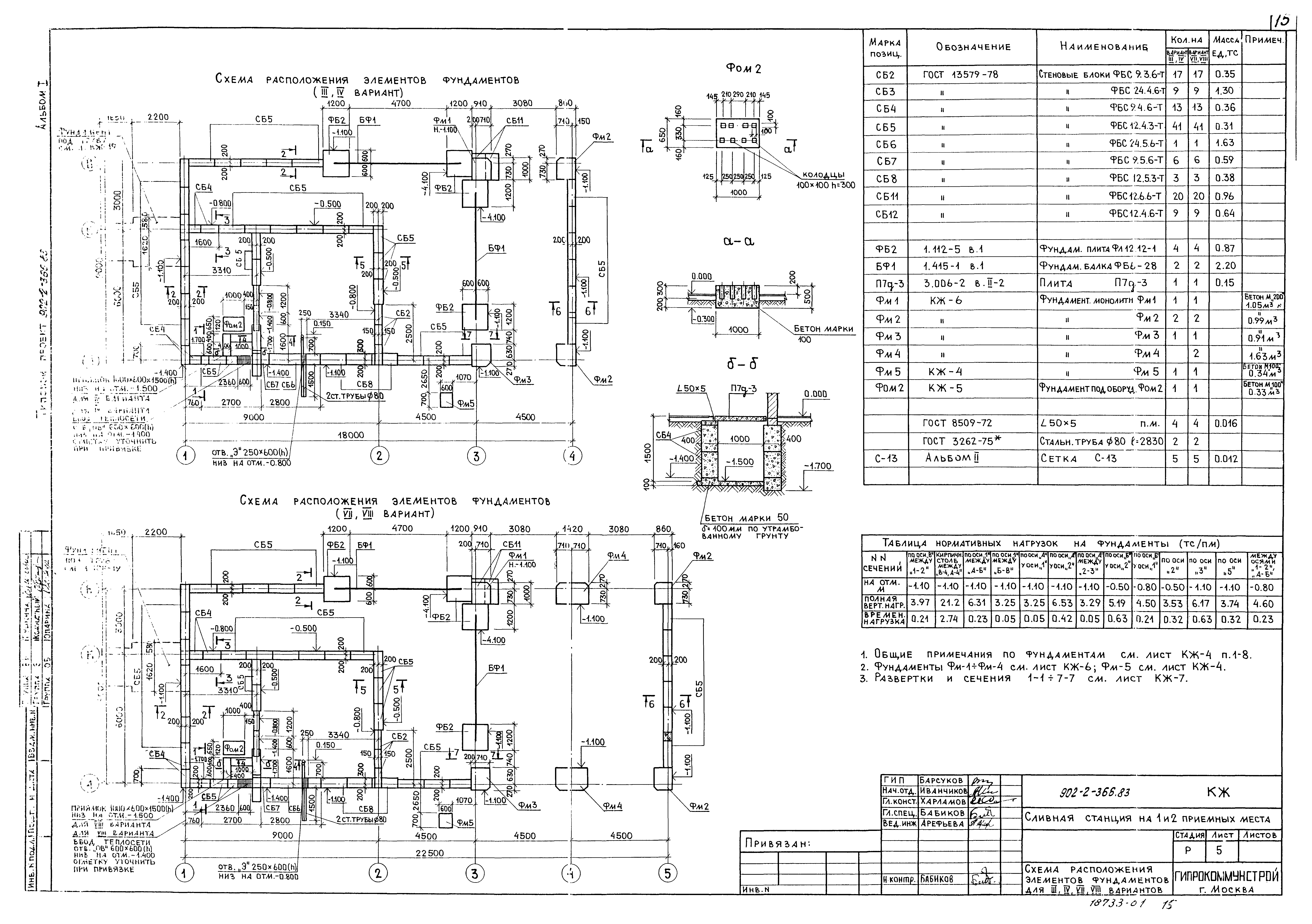
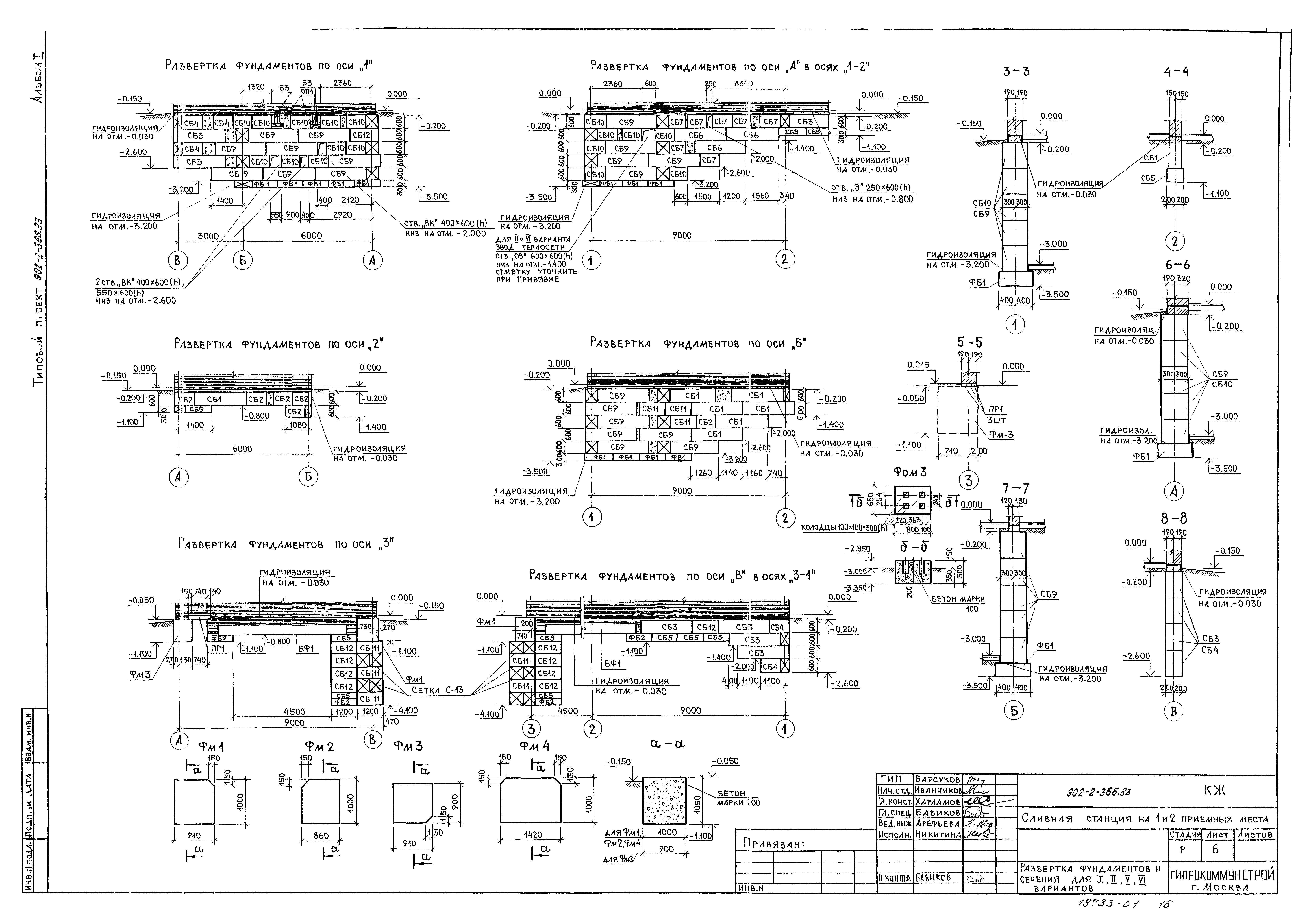
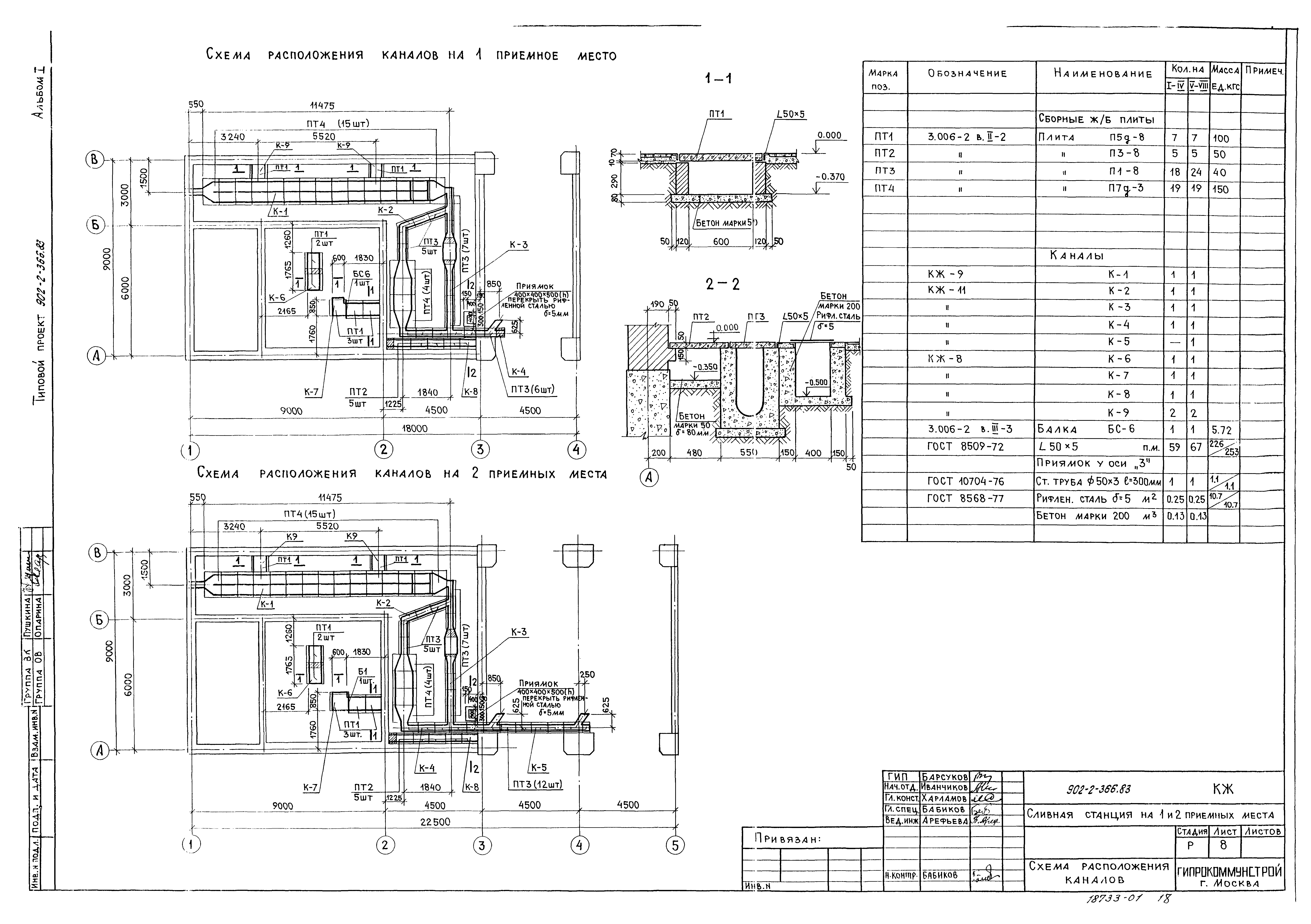
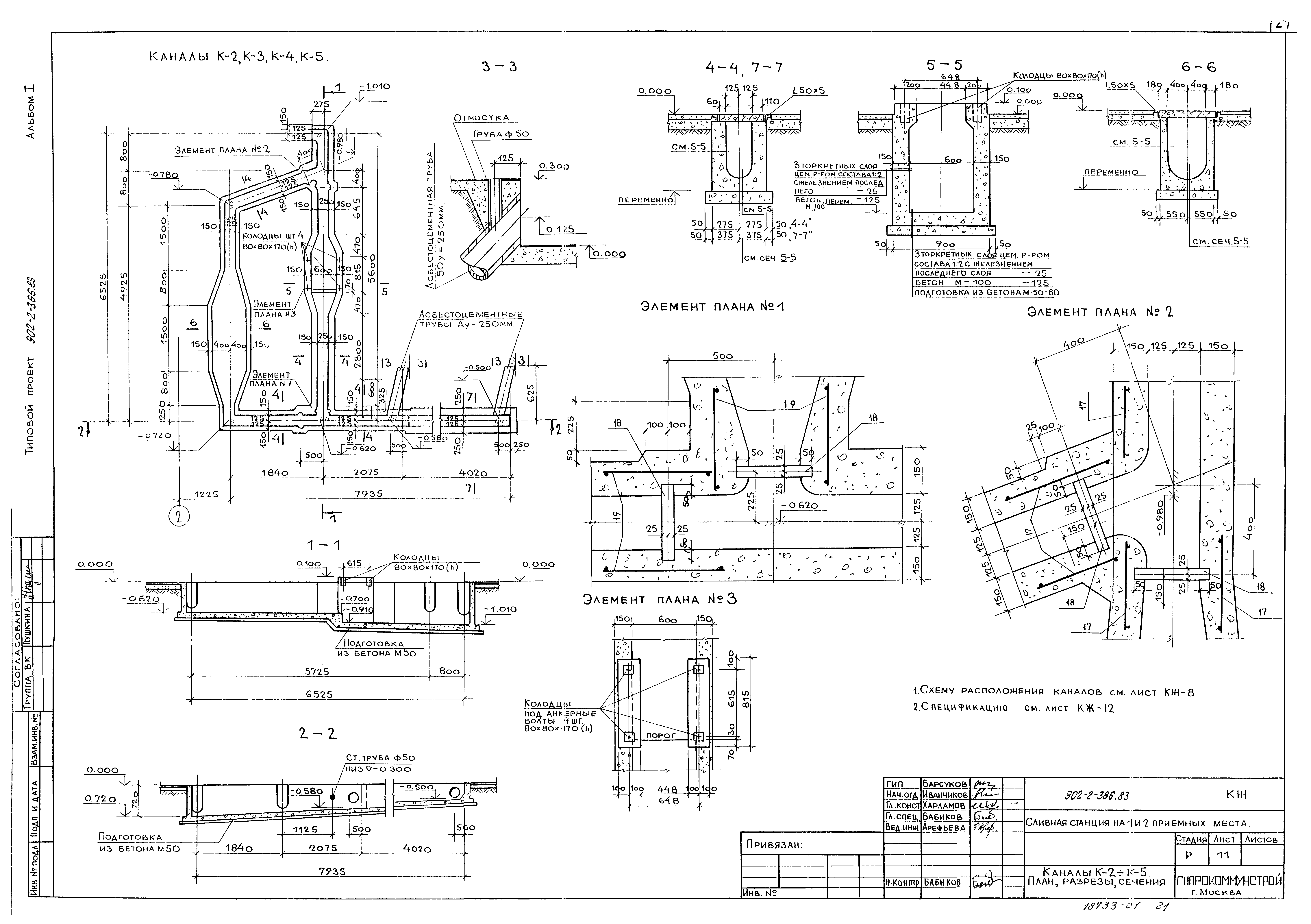
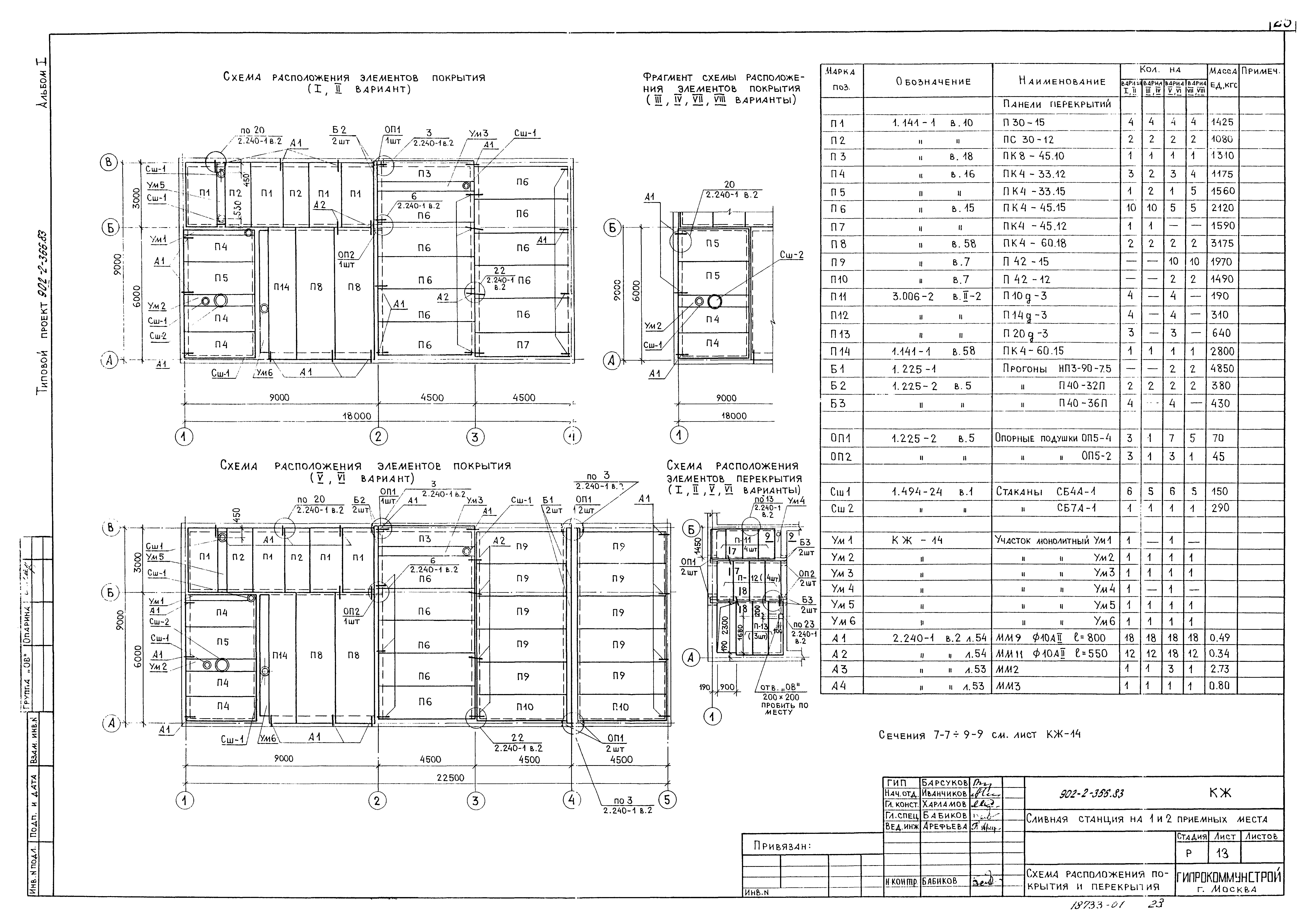
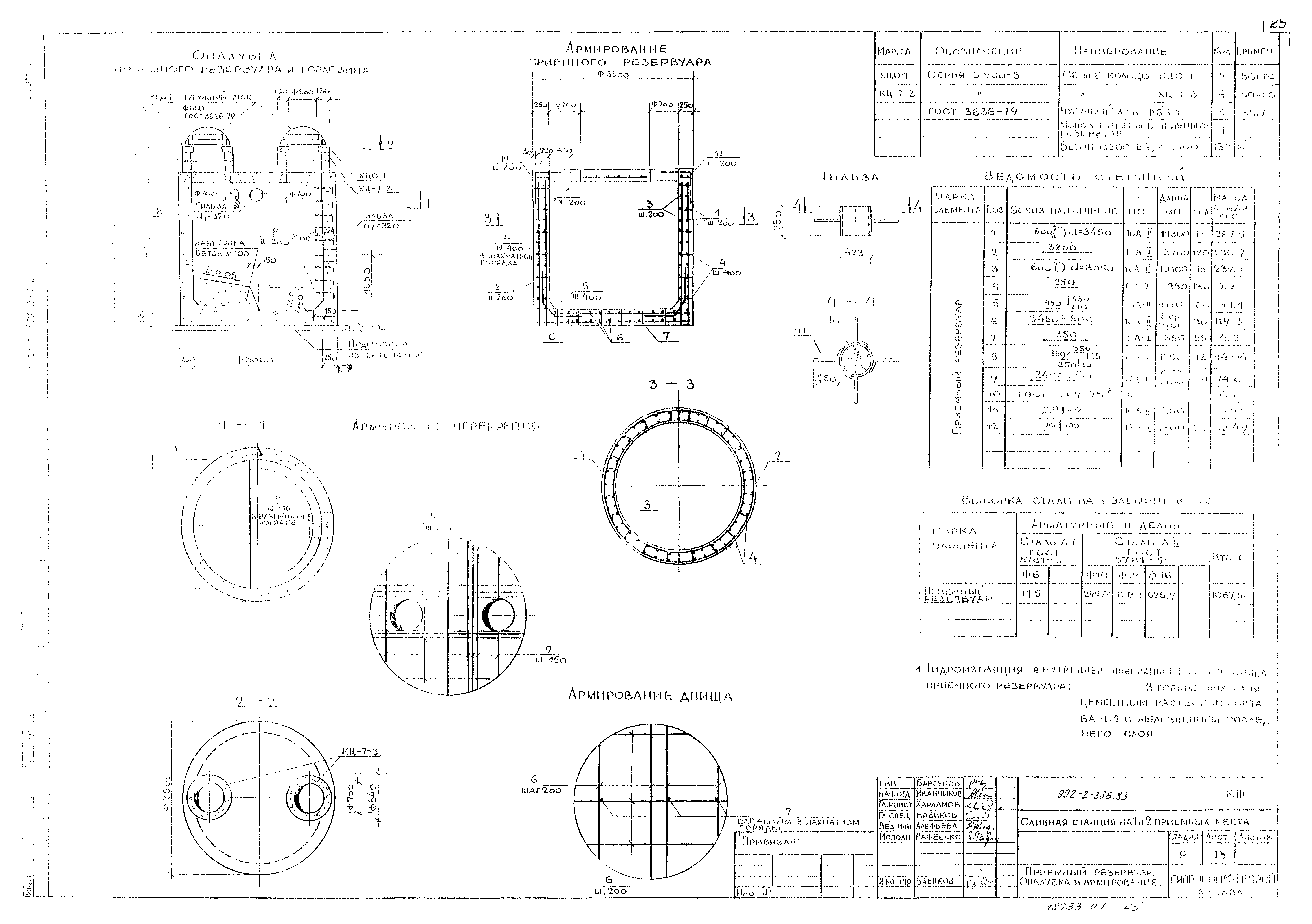
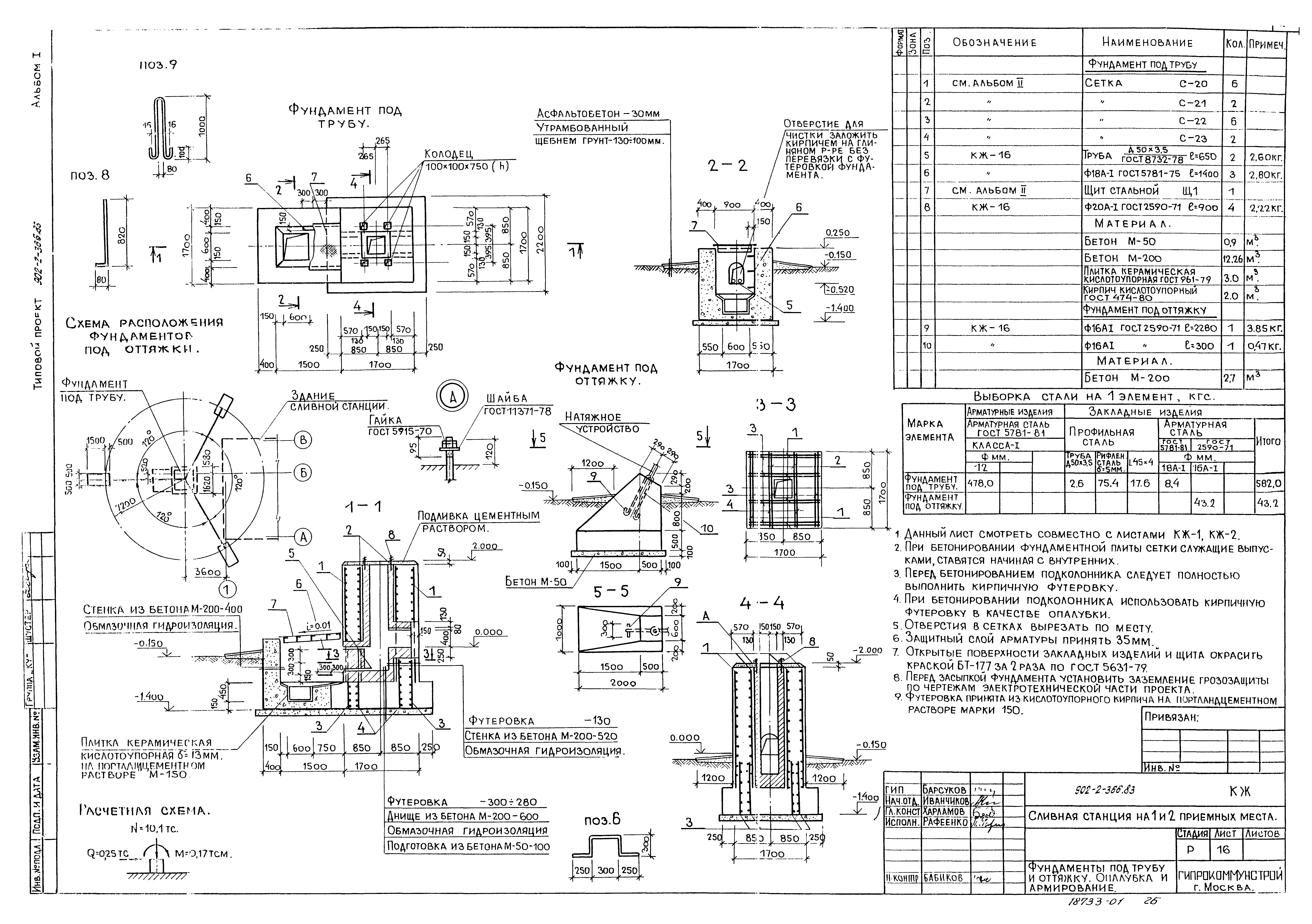
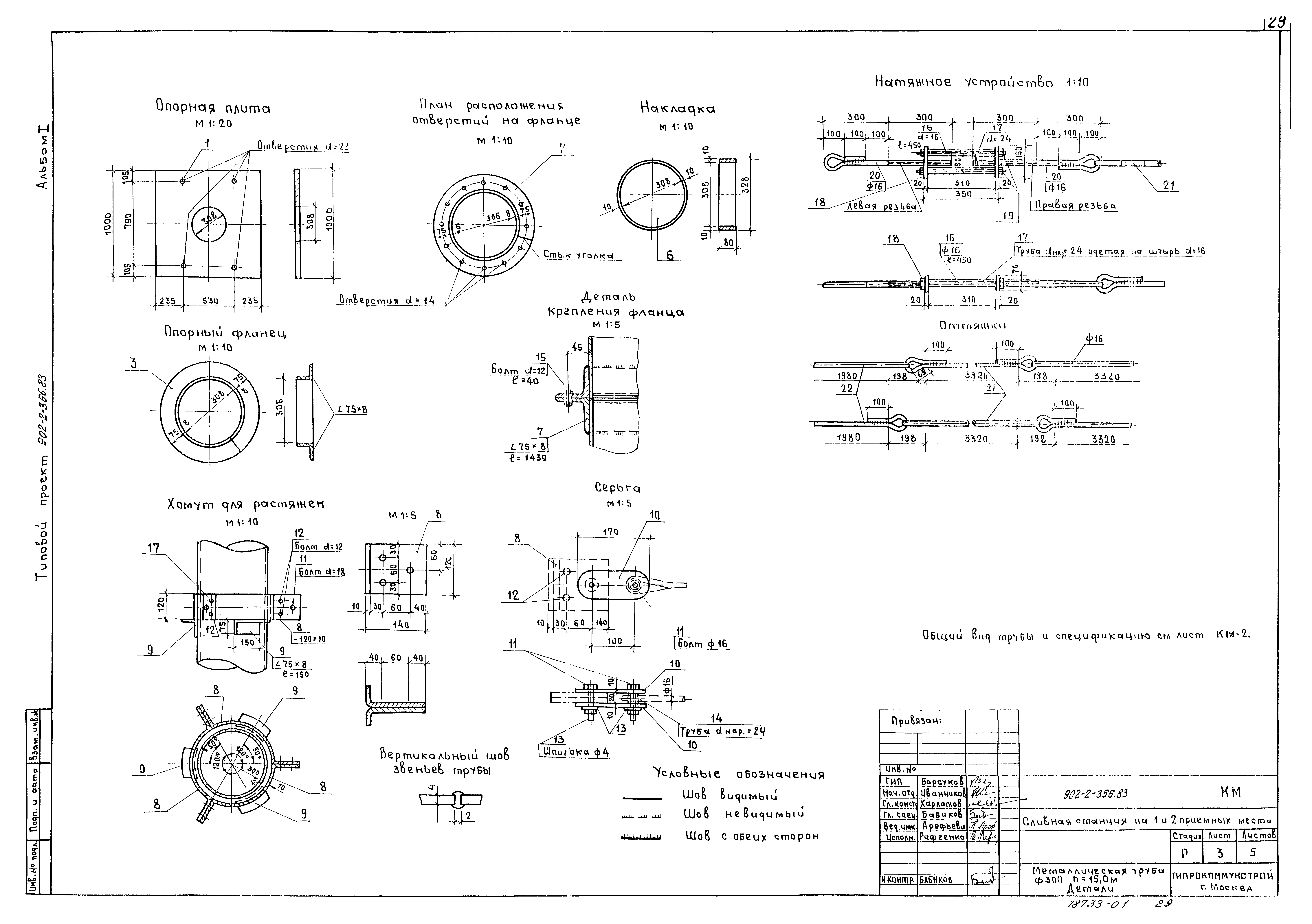
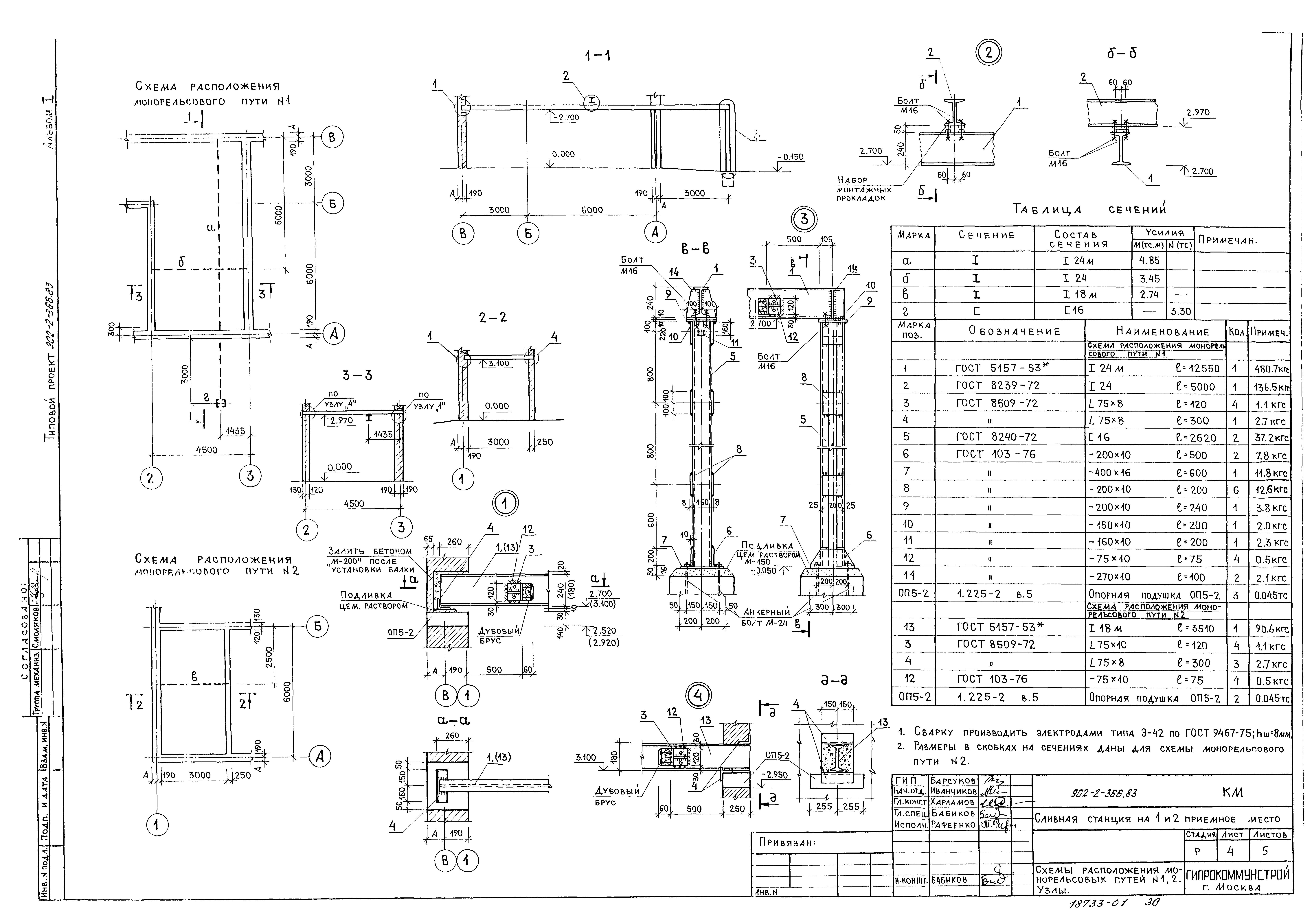
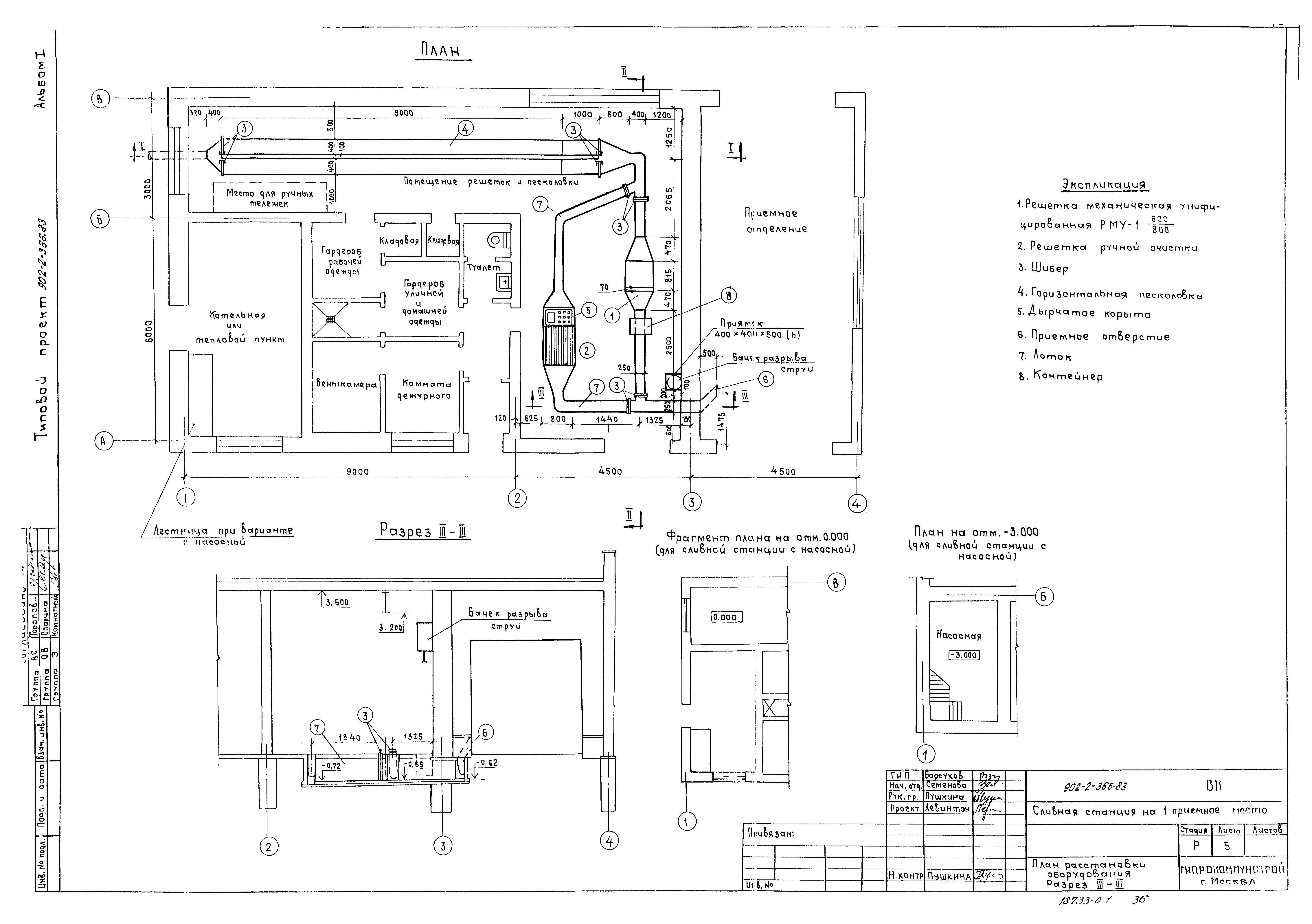
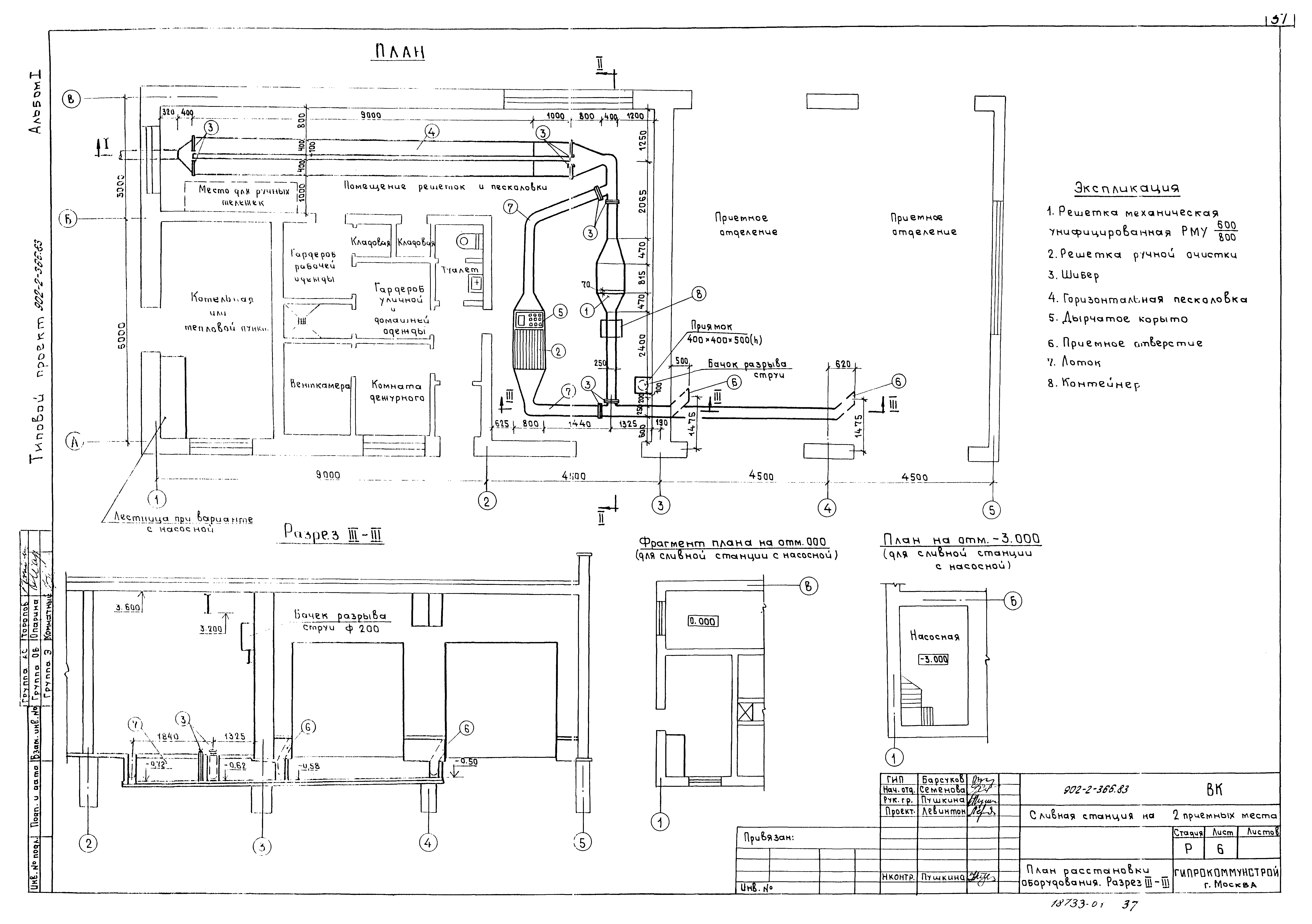
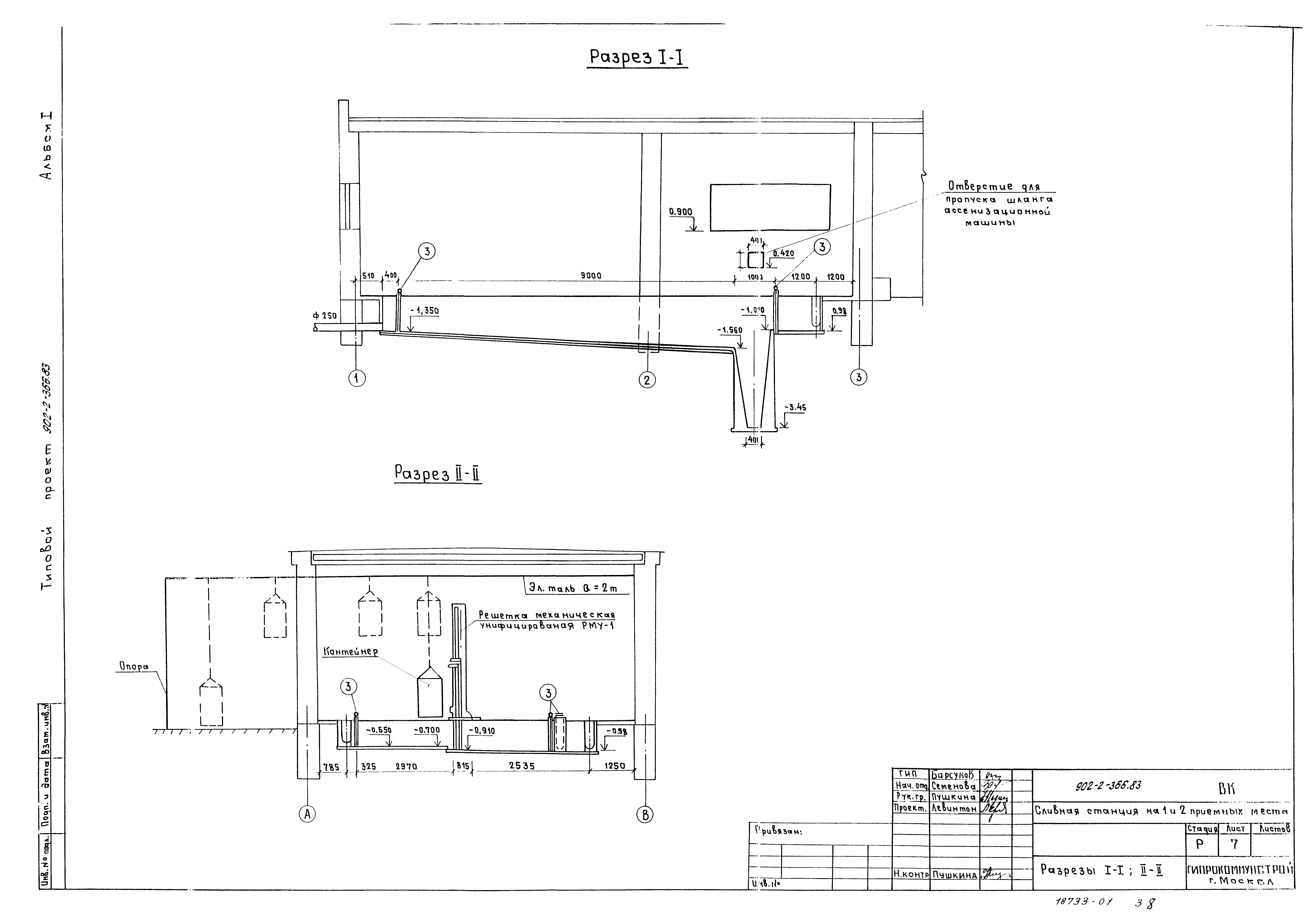
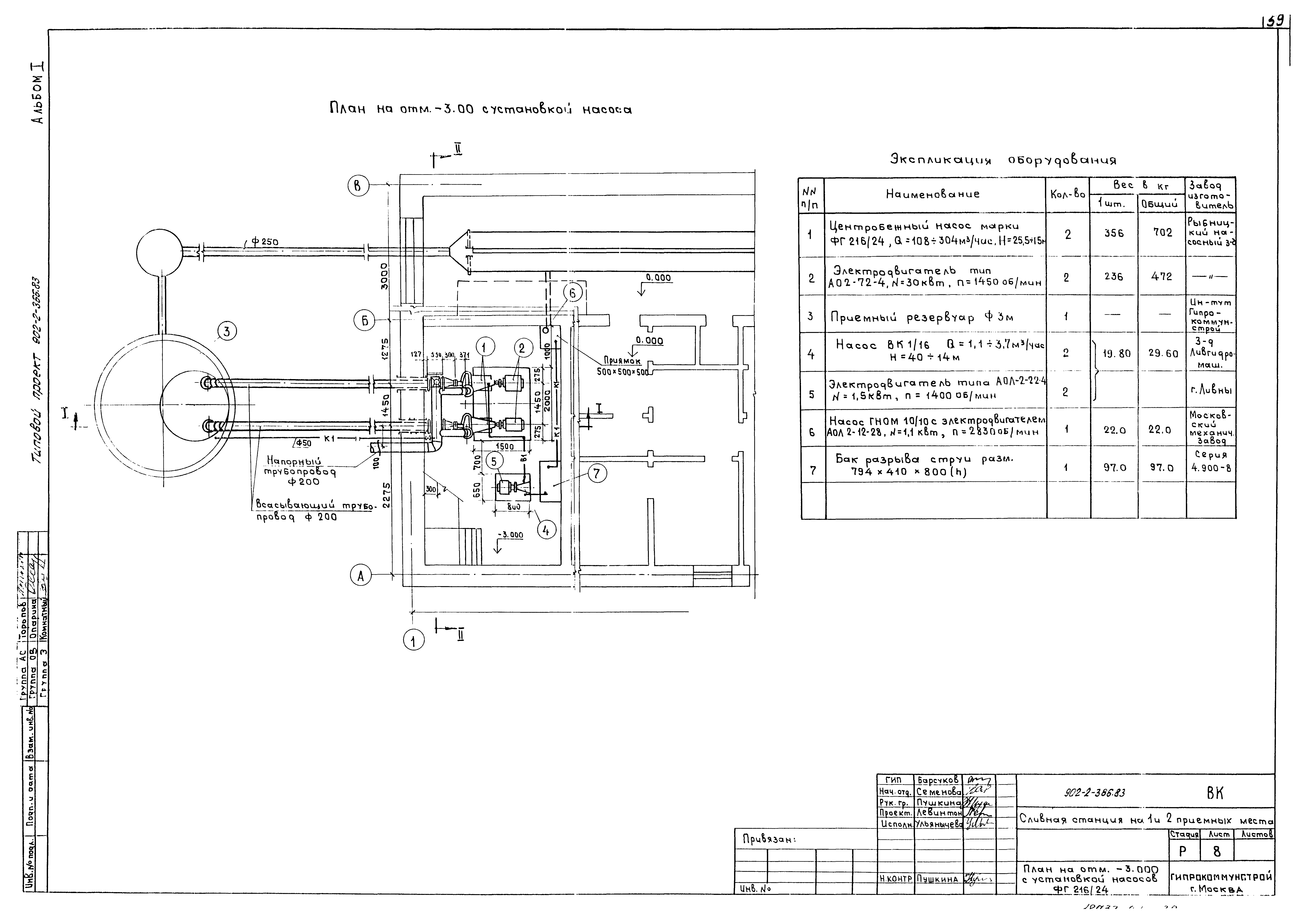
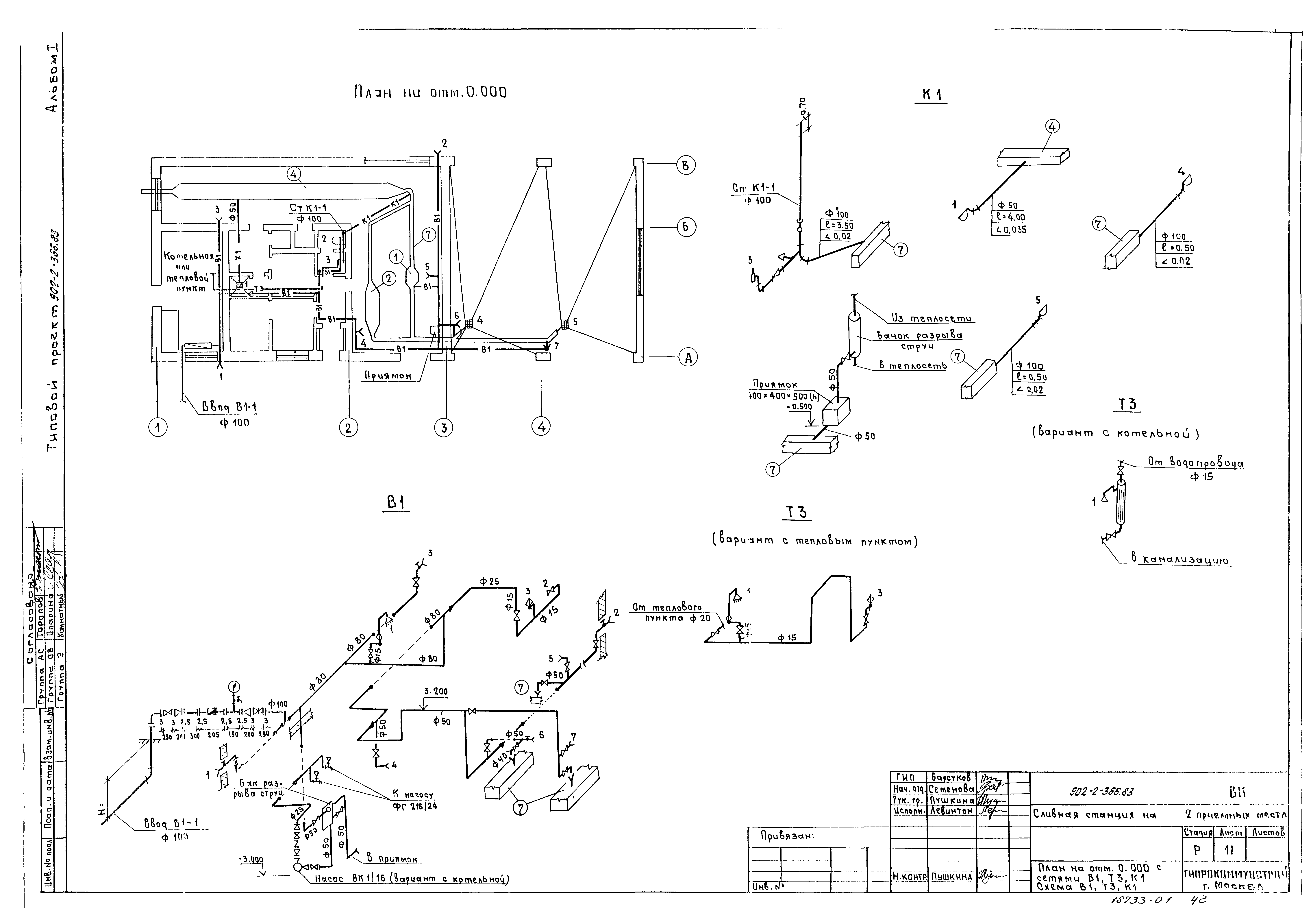
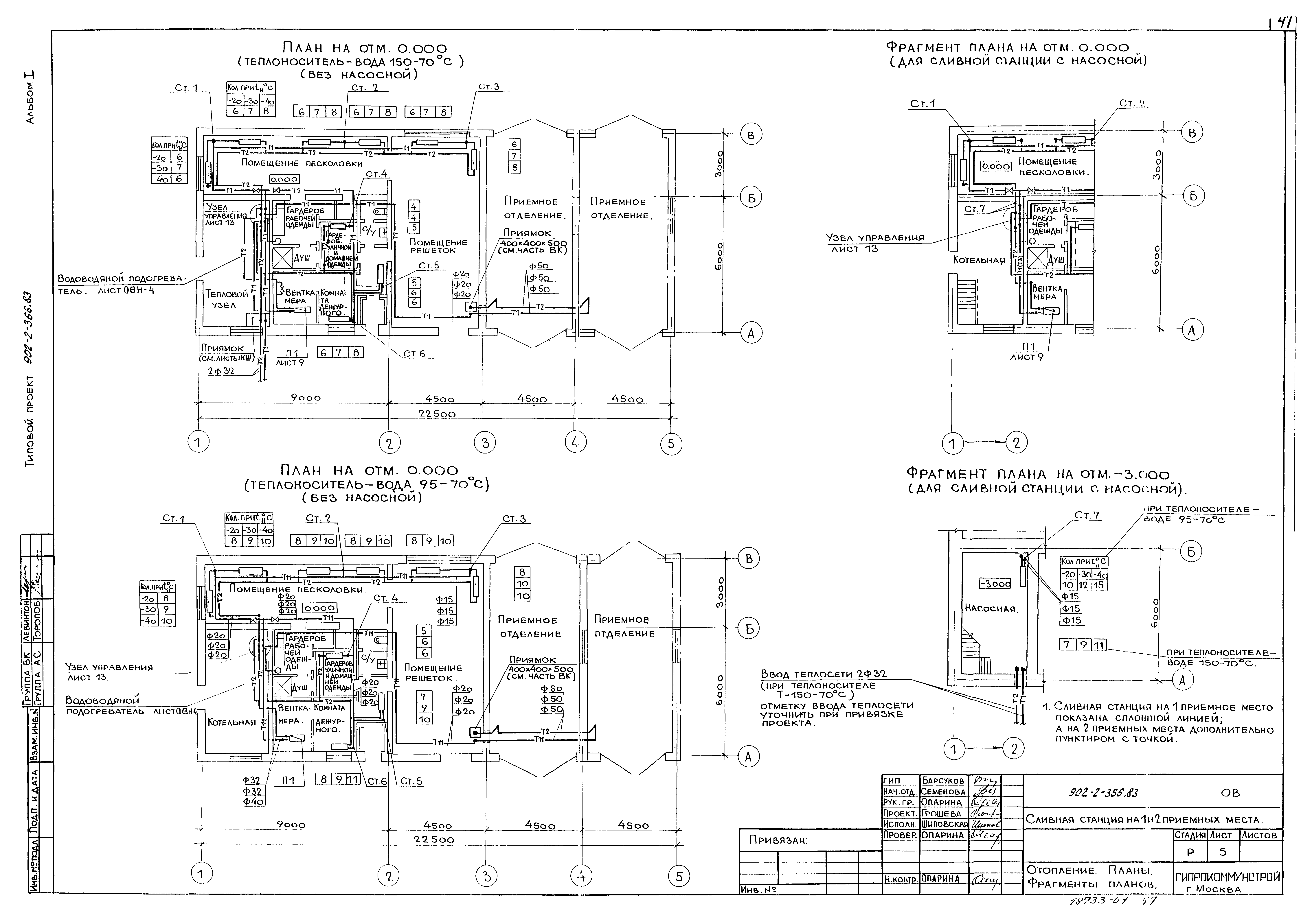
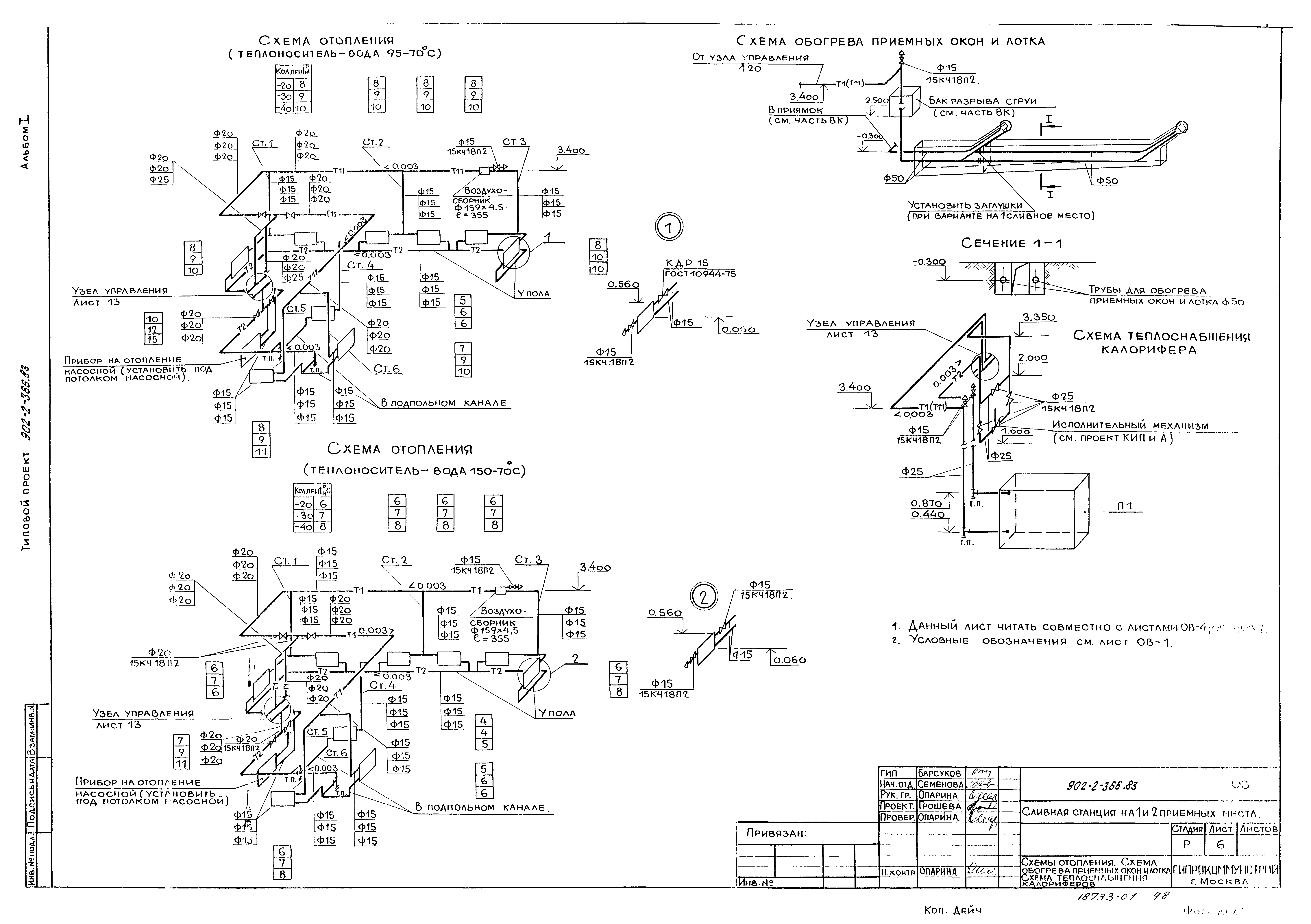
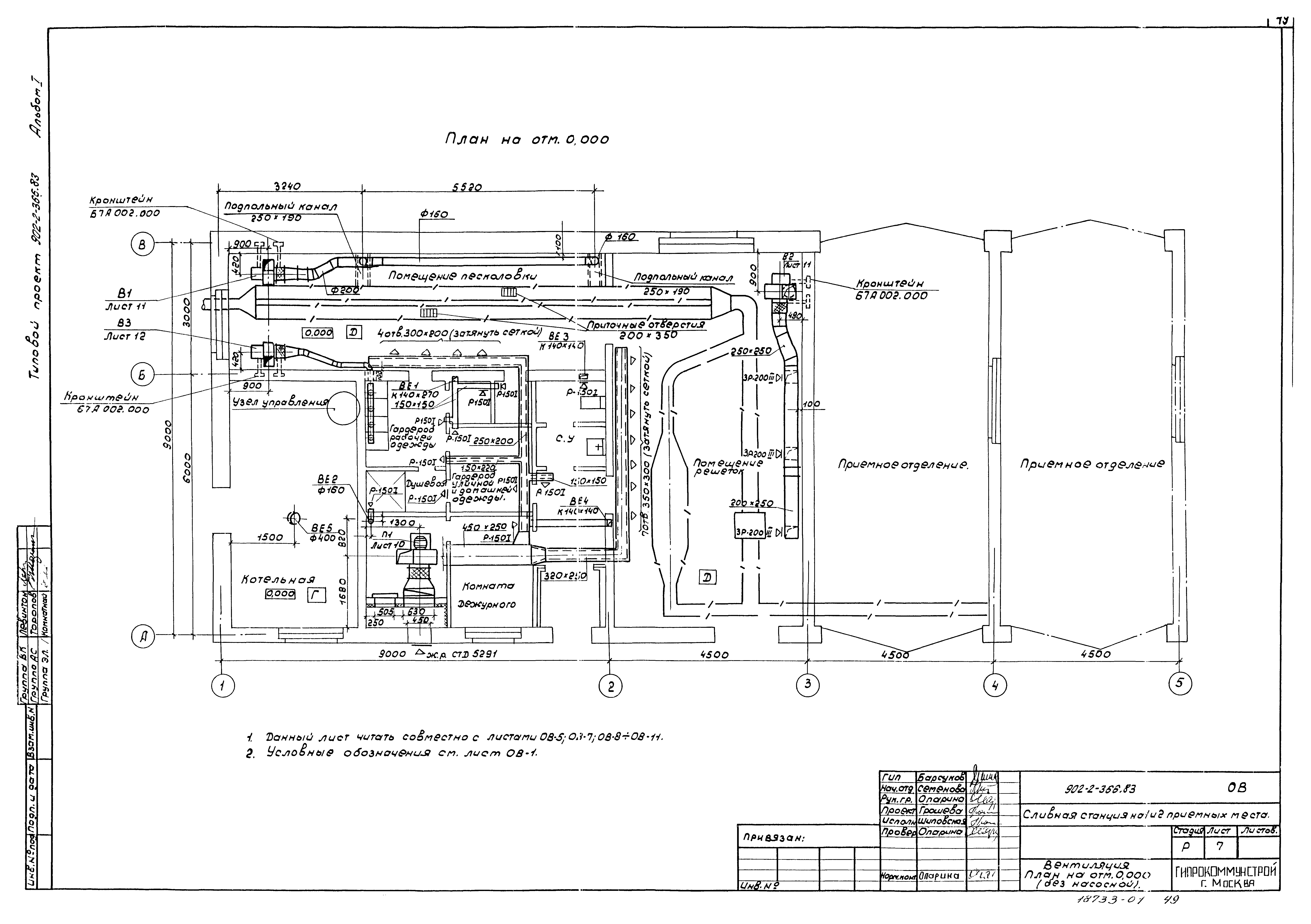
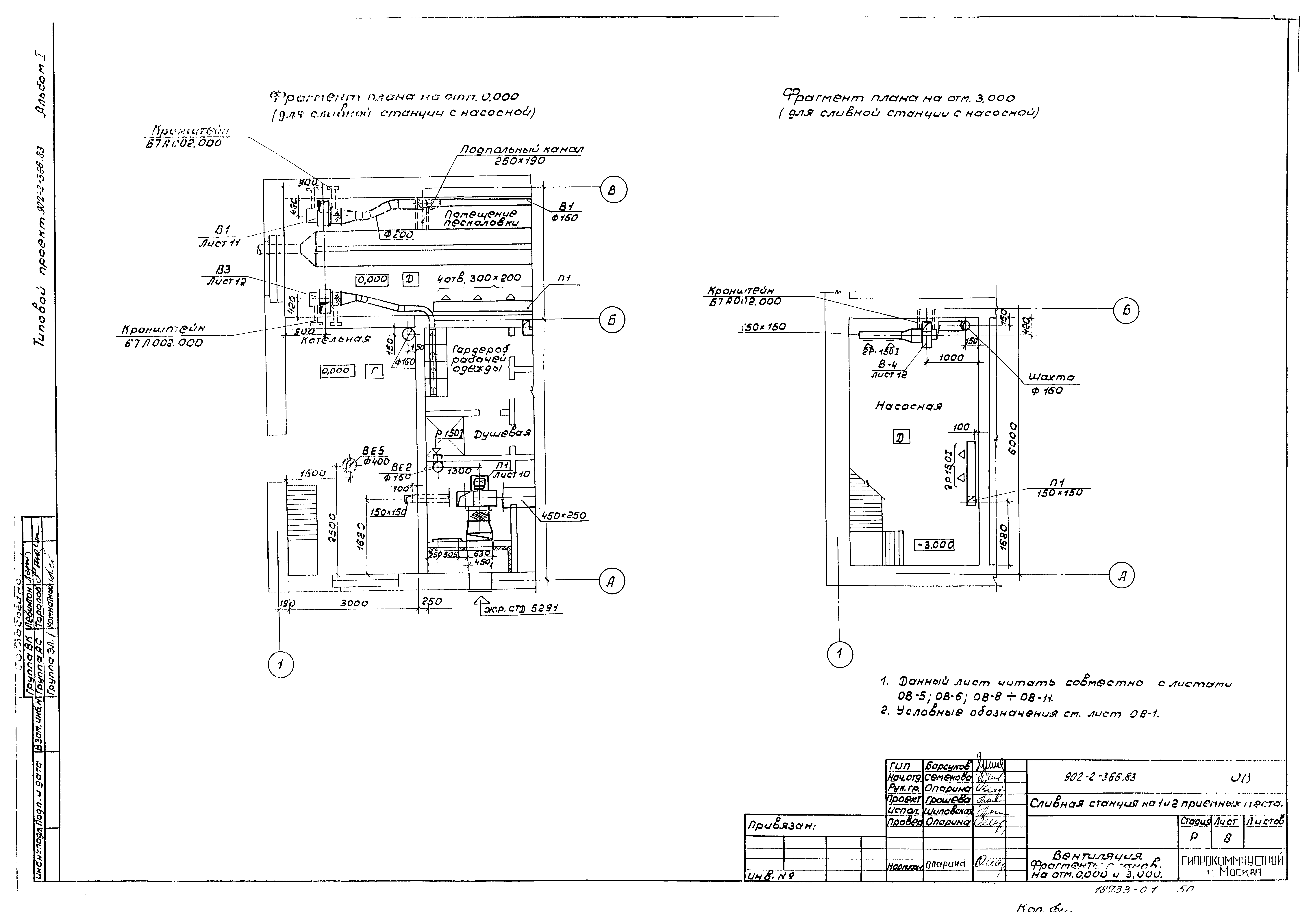
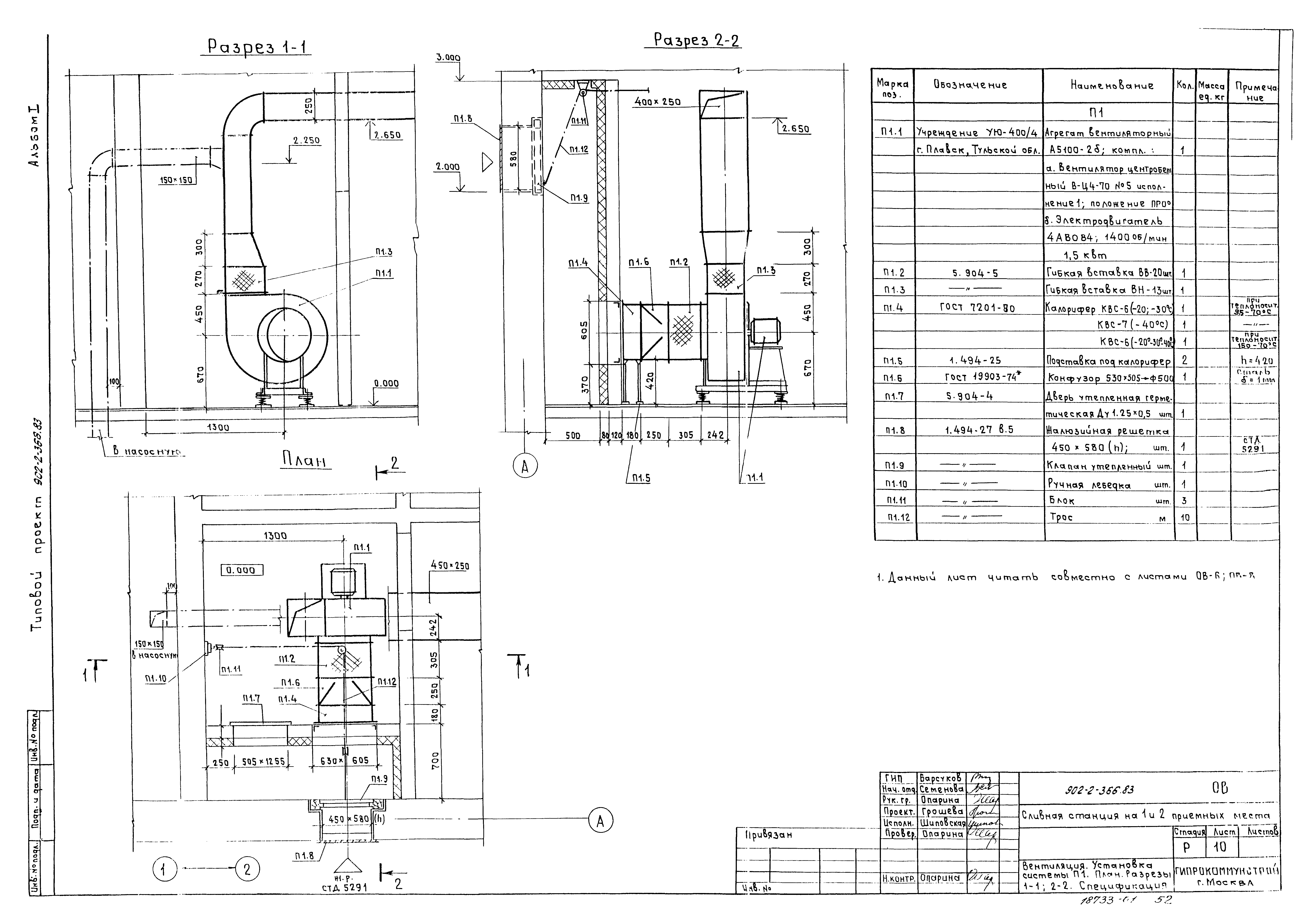
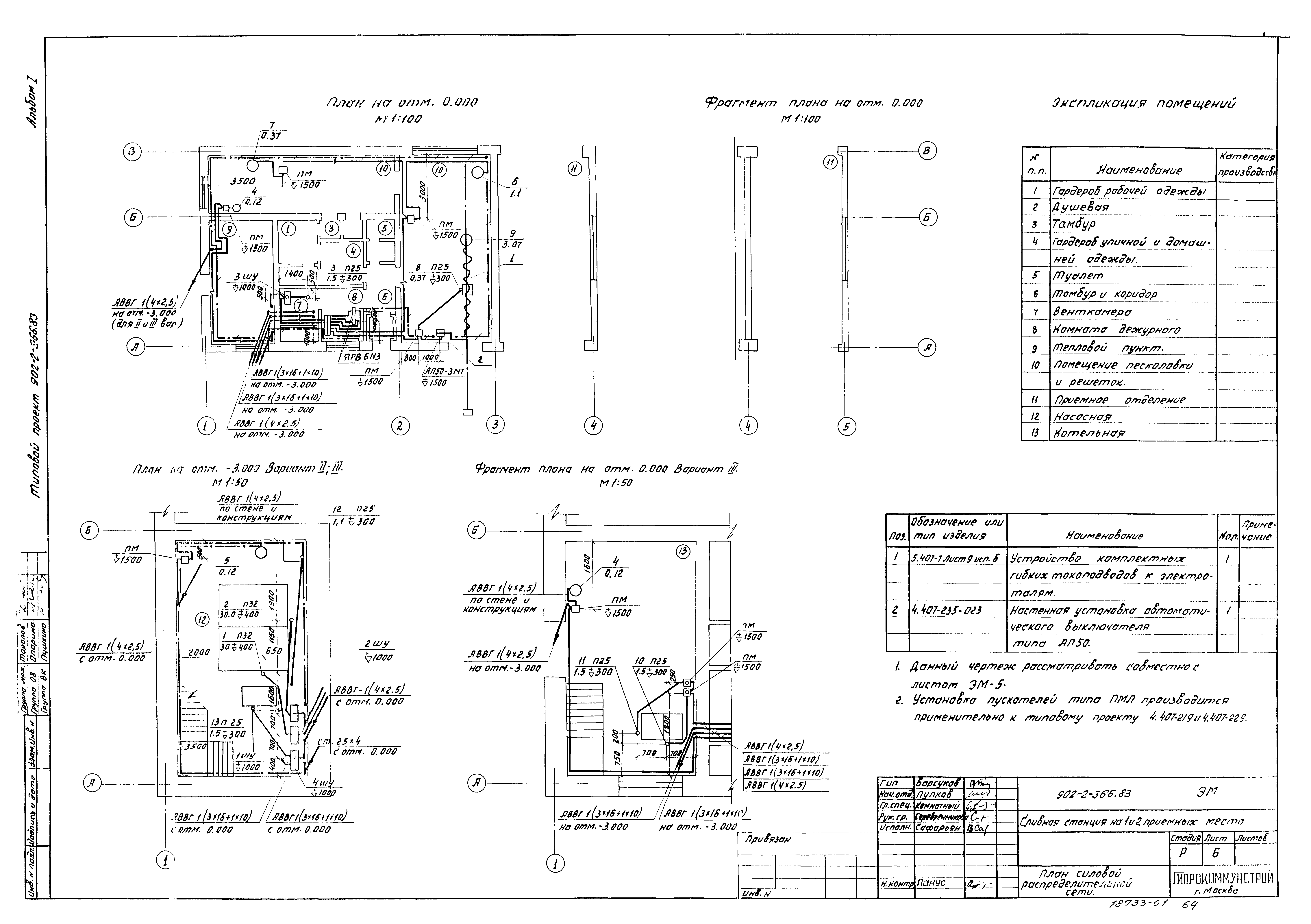
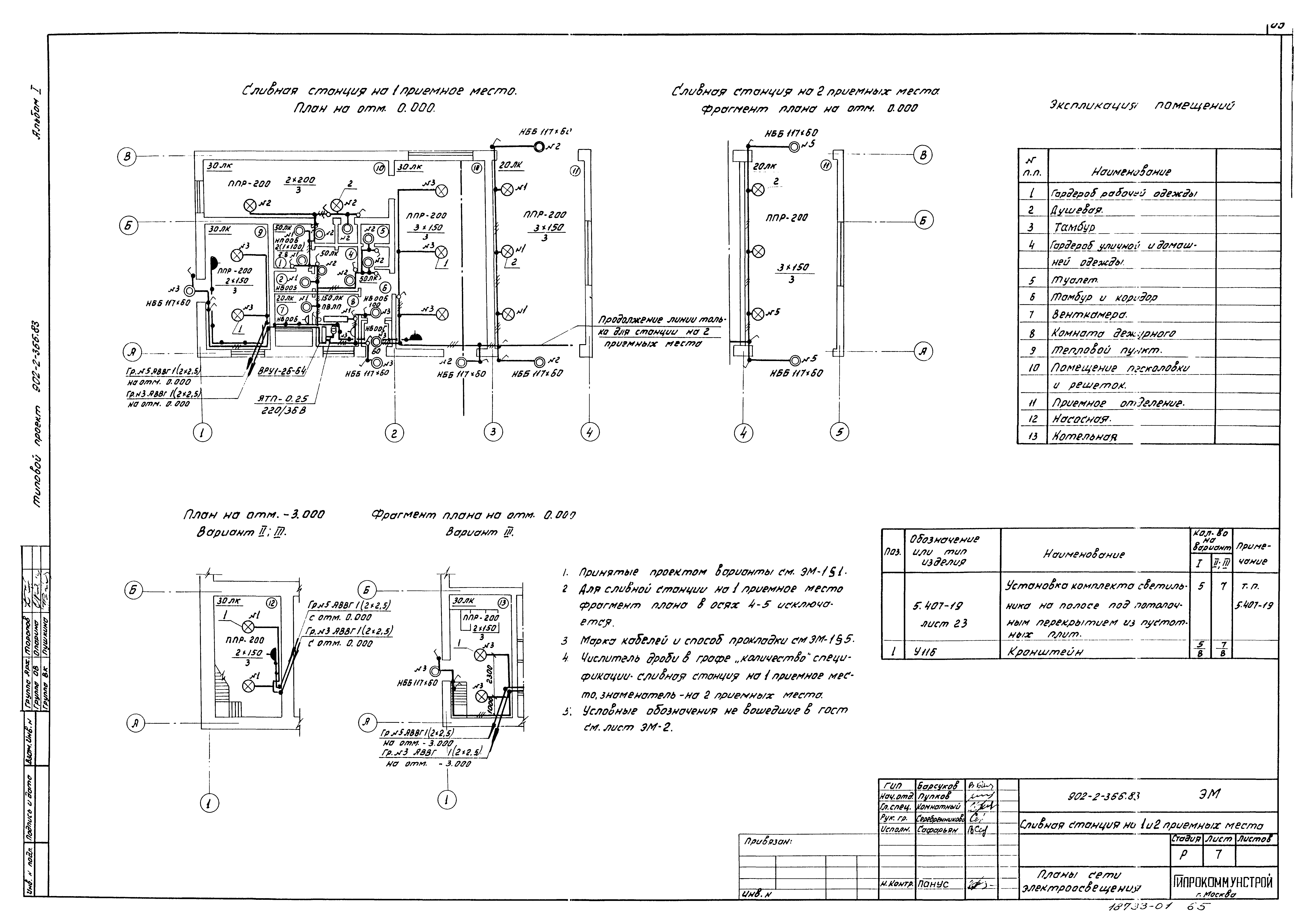
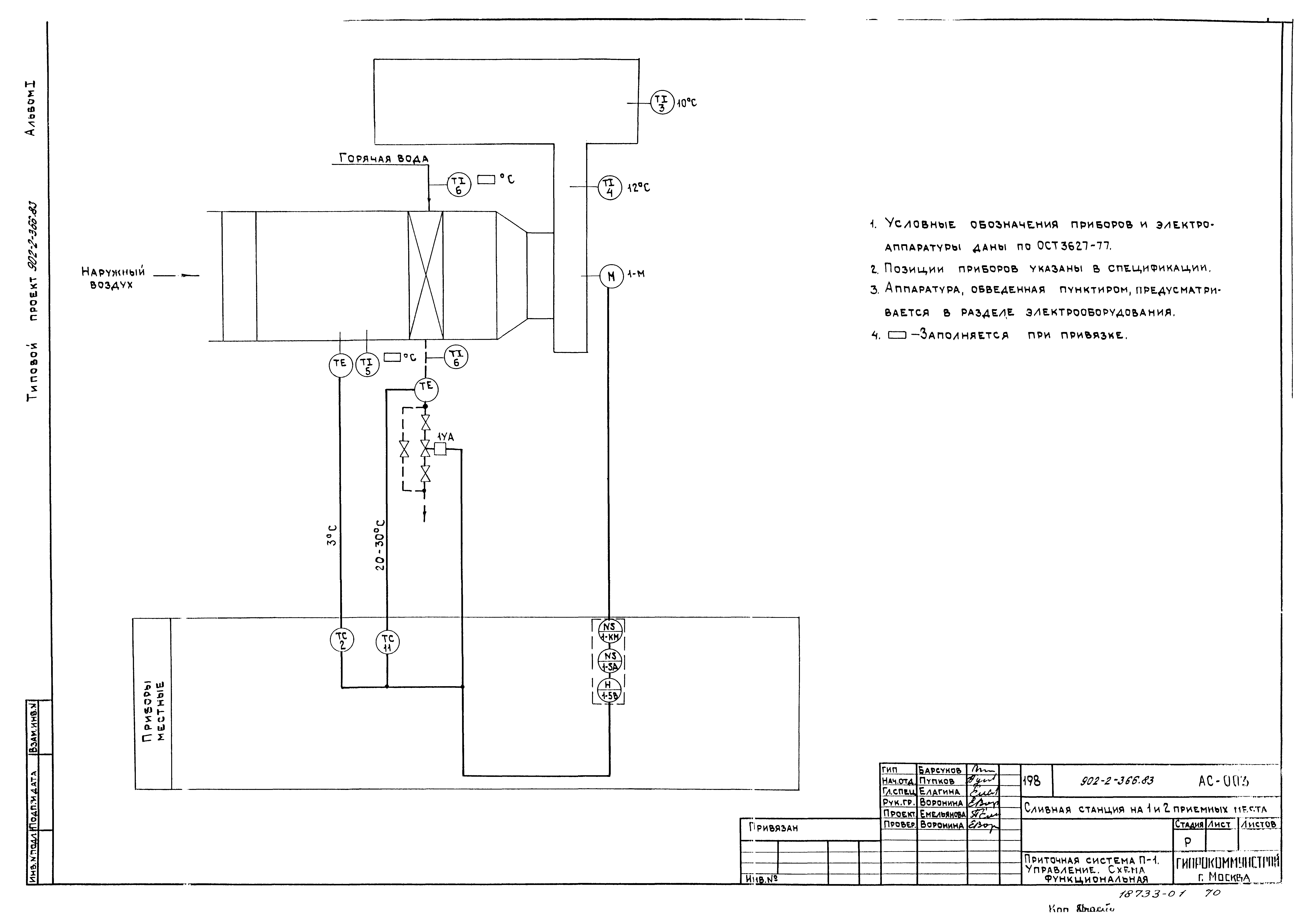
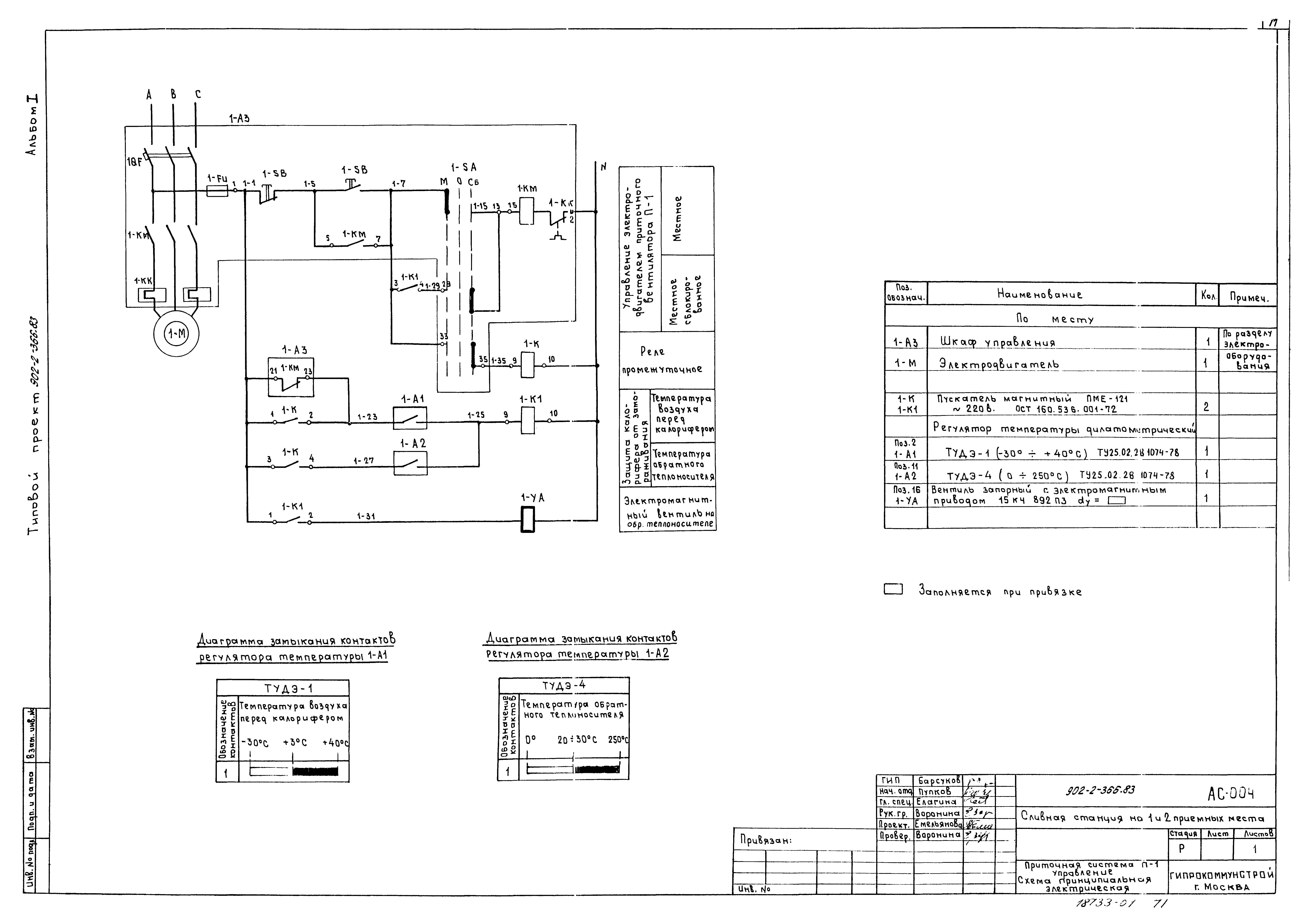
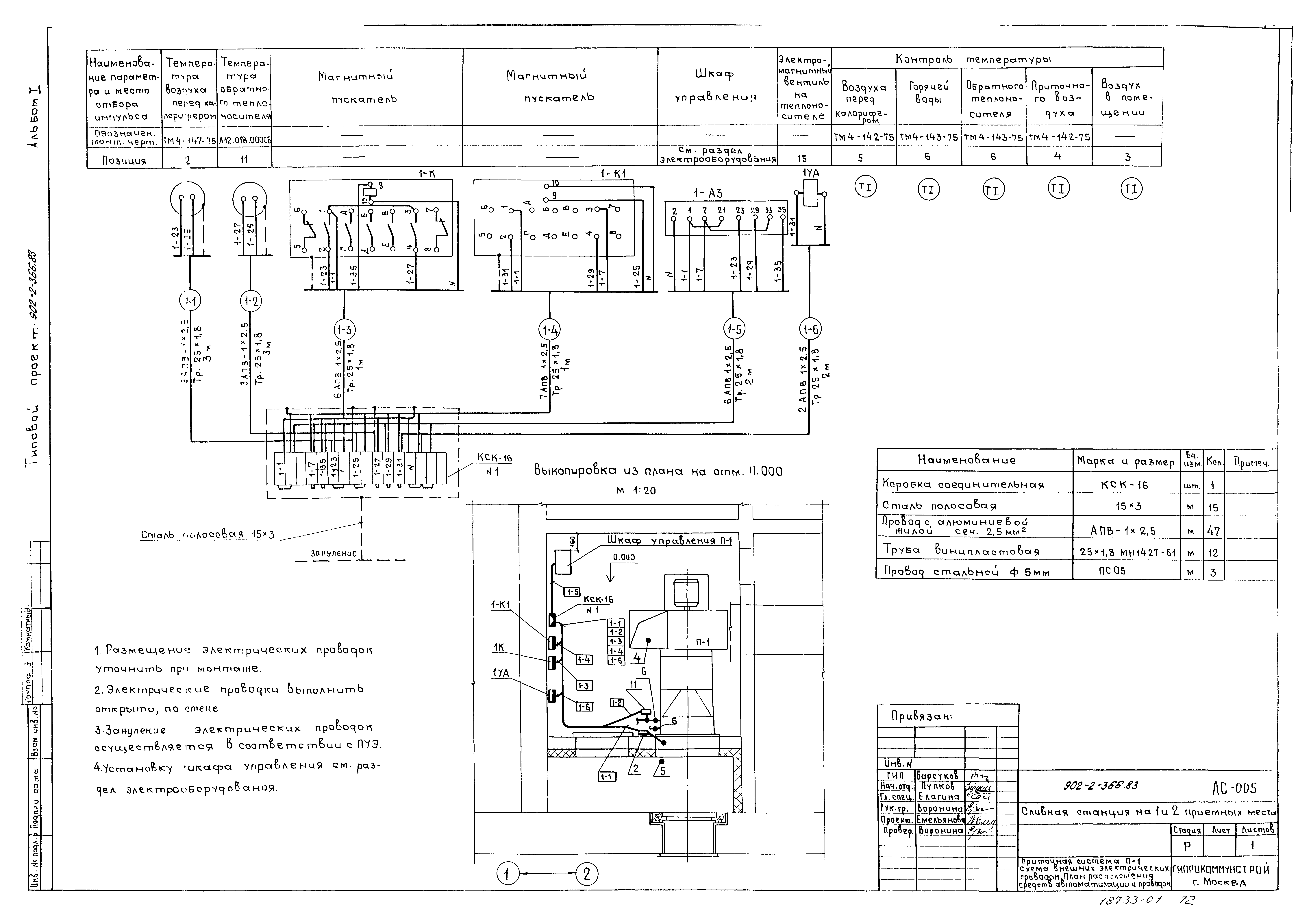
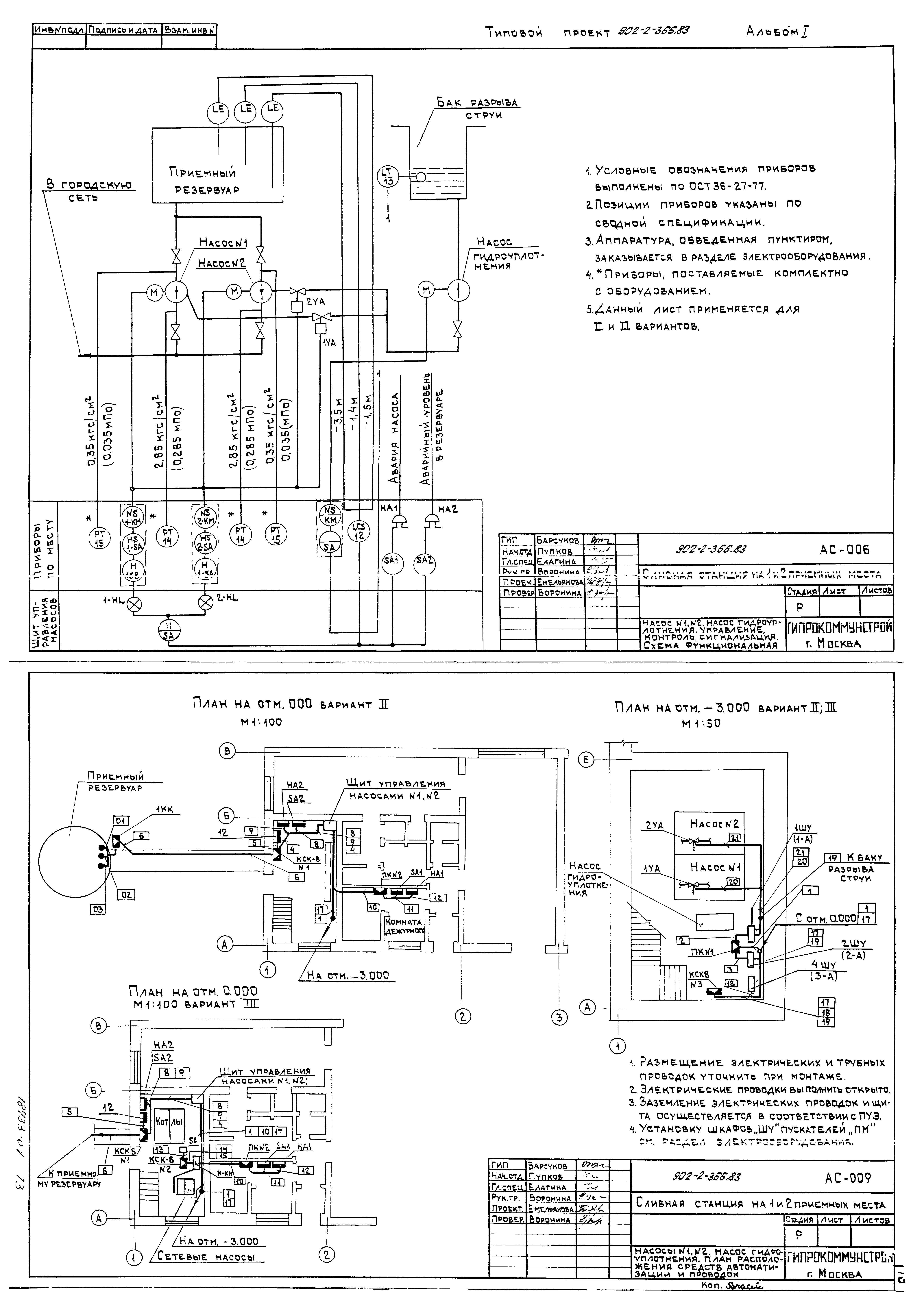
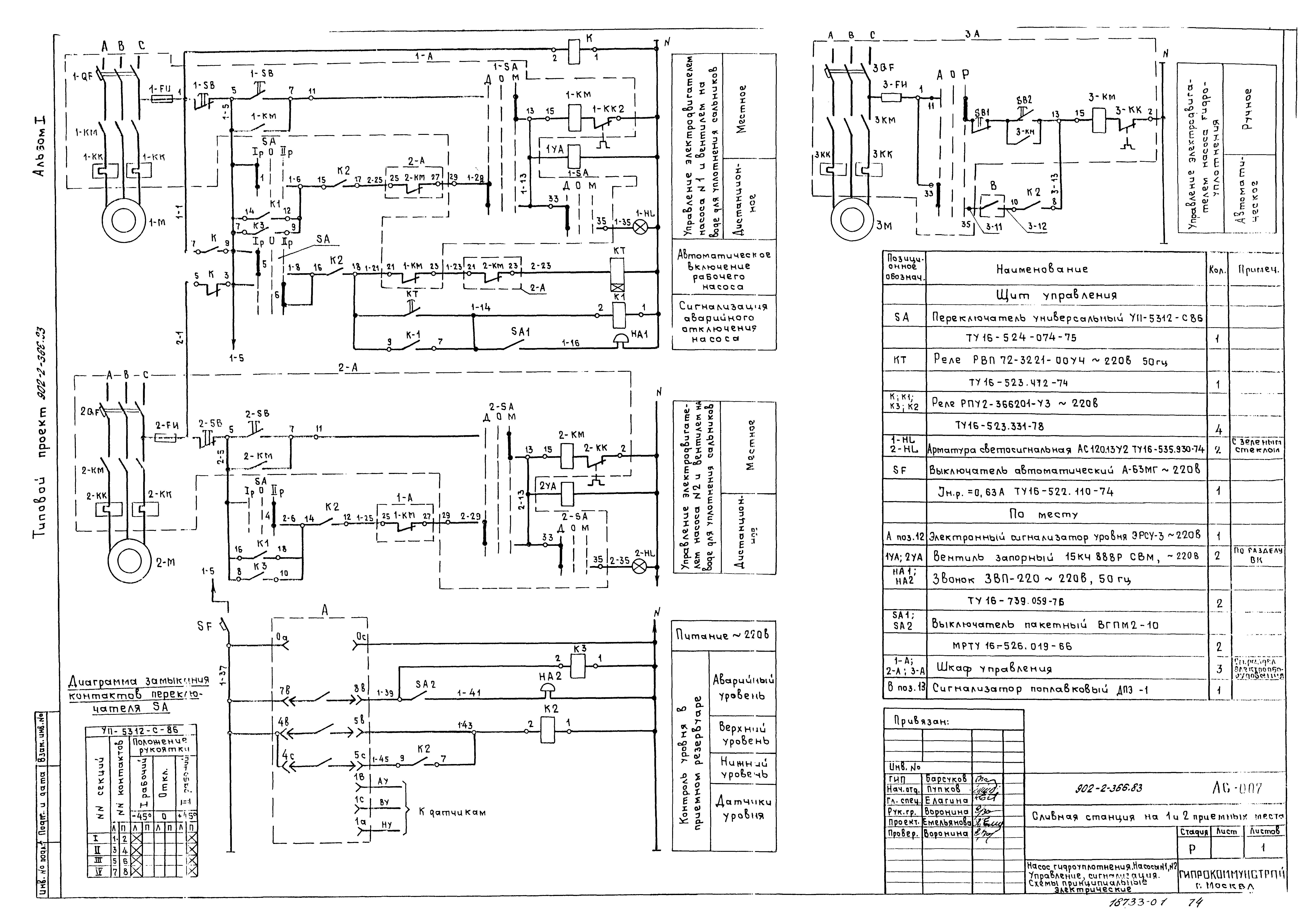
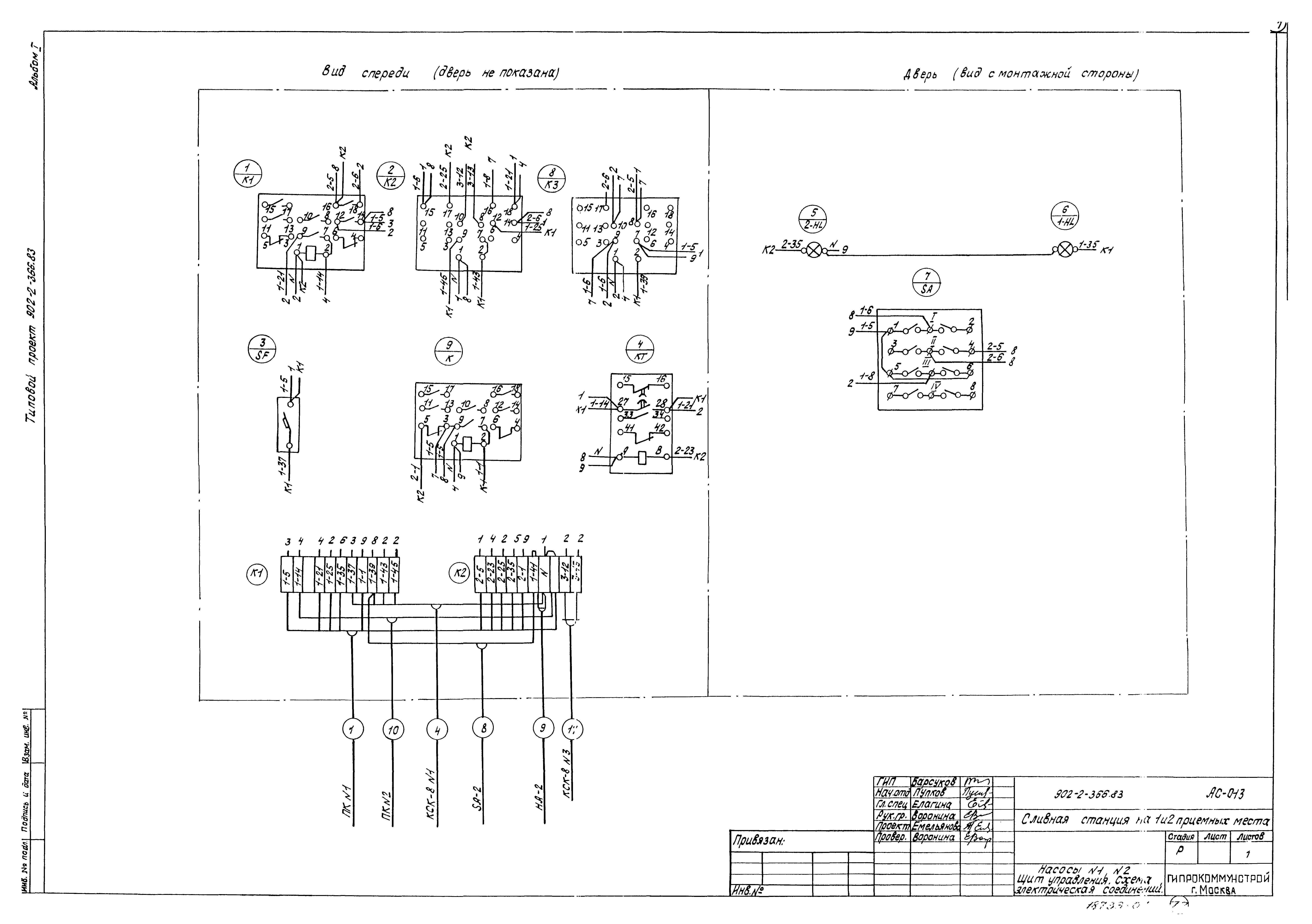
| Оглавление: | Содержание альбома Архитектурные решения Конструкции железобетонные Конструкции металлические Водопровод и канализация Отопление и вентиляция Электроснабжение Связь и сигнализация Автоматизация |
| Разработан: | Гипрокоммунстрой |
| Утверждён: | 14.05.1982 Минжилкомхоз РСФСР (Russian Federation Minzhilkomkhoz 12-ТД) |
| Заменяет собой: |
|











































































