Скачать Типовой проект 902-2-366.83 Альбом III. Металлические изделияДата актуализации: 01.01.2021
|
| Обозначение: | Типовой проект 902-2-366.83 |
| Обозначение англ: | 902-2-366.83 |
| Статус: | отменен |
| Название рус.: | Альбом III. Металлические изделия |
| Дата добавления в базу: | 01.10.2014 |
| Дата актуализации: | 01.01.2021 |
| Дата введения: | 19.05.1983 |
| Дата окончания срока действия: | 01.01.1988 |
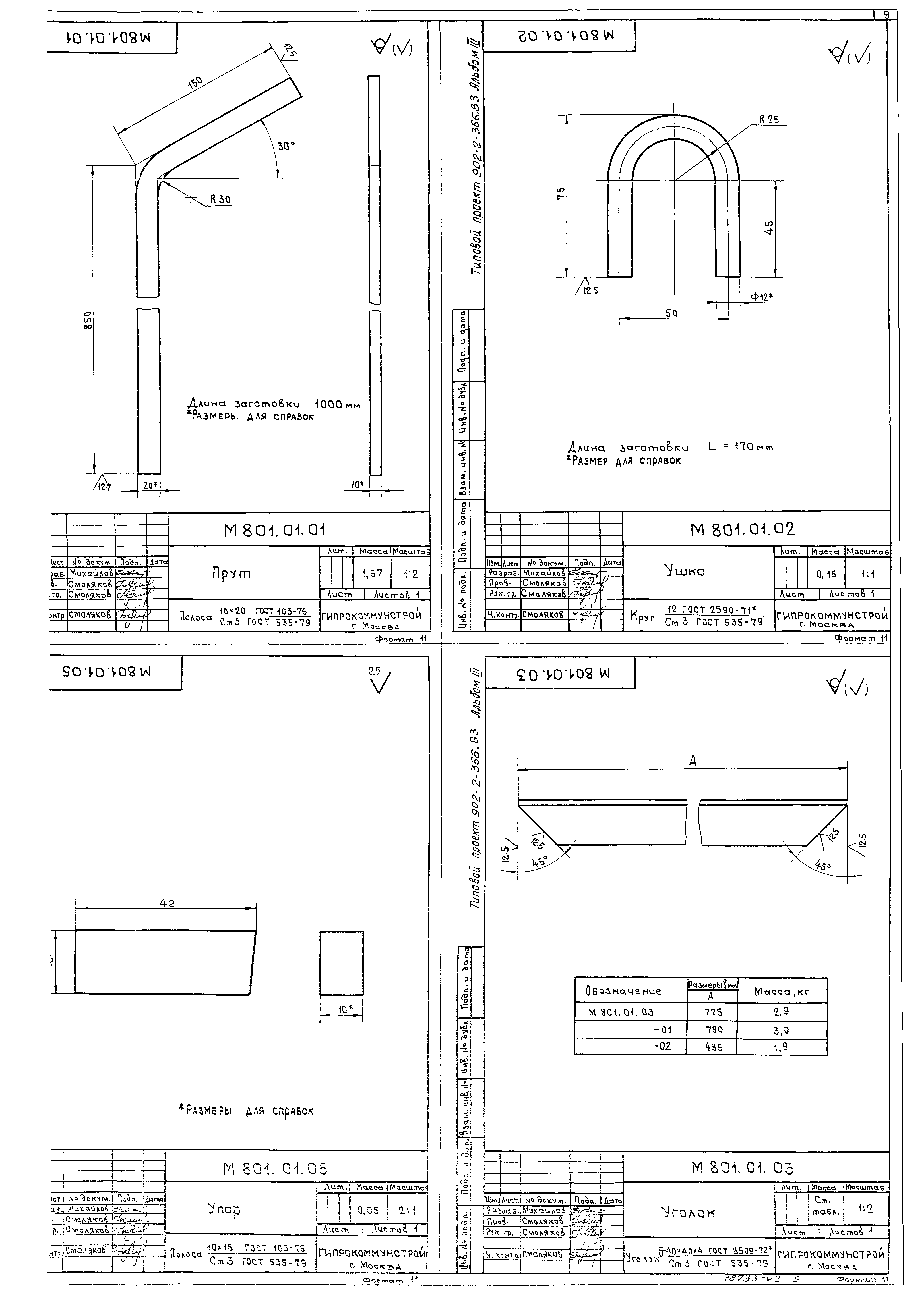
| Оглавление: | Содержание альбома Решетка ручная М801.00.00 Технические требования на изготовление М801.00.00СБ Ручная решетка М801.01.00СБ Решетка М801.00.00 Ручная решетка. Спецификация М801.01.00 Решетка. Спецификация М801.02.00 Направляющая рама. Спецификация М801.03.00 Корыто. Спецификация М801.03.00 Корыто М801.02.00СБ Направляющая рама М801.04.00 Ведро. Спецификация М801.04.00 Ведро М801.04.06 Петля М801.01.01 Прут М801.01.02 Ушко М801.01.03 Уголок М801.01.05 Упор М801.02.01 Уголок М801.03.01 Косынка М801.03.04 Косынка М801.03.05 Решетка М801.04.01 Ручка М801.04.02 Развертка М801.04.03 Накладка М801.04.04 Дно ведра Шибера М802.00.00СБ Шибер тип I М802.01.00СБ Рукоятка М802.00.00 Шибер тип I. Спецификация М802.01.00 Рукоятка. Спецификация М802.01.01 Опора М802.01.02 Косынка М802.00.01 Доска М802.00.02 Доска М802.00.03 Доска М802.00.04 Накладка М803.00.00СБ Шибер тип II М803.00.00 Шибер тип II. Спецификация М803.00.01 Доска М803.00.02 Доска М803.00.03 Доска М803.00.04 Накладка |
| Разработан: | Гипрокоммунстрой |
| Утверждён: | 14.05.1982 Минжилкомхоз РСФСР (Russian Federation Minzhilkomkhoz 12-ТД) |
| Заменяет собой: |
|














