Скачать Типовой проект 903-1-198 Альбом 2.6. Строительно-технологическая блок-секция котлоагрегата ДЕ-25-14ГМ. Тепломеханическая часть. Конструкции железобетонные. АвтоматизацияДата актуализации: 01.01.2021
|
| Обозначение: | Типовой проект 903-1-198 |
| Обозначение англ: | 903-1-198 |
| Статус: | действует |
| Название рус.: | Альбом 2.6. Строительно-технологическая блок-секция котлоагрегата ДЕ-25-14ГМ. Тепломеханическая часть. Конструкции железобетонные. Автоматизация |
| Дата добавления в базу: | 01.10.2014 |
| Дата актуализации: | 01.01.2021 |
| Дата введения: | 01.01.1983 |
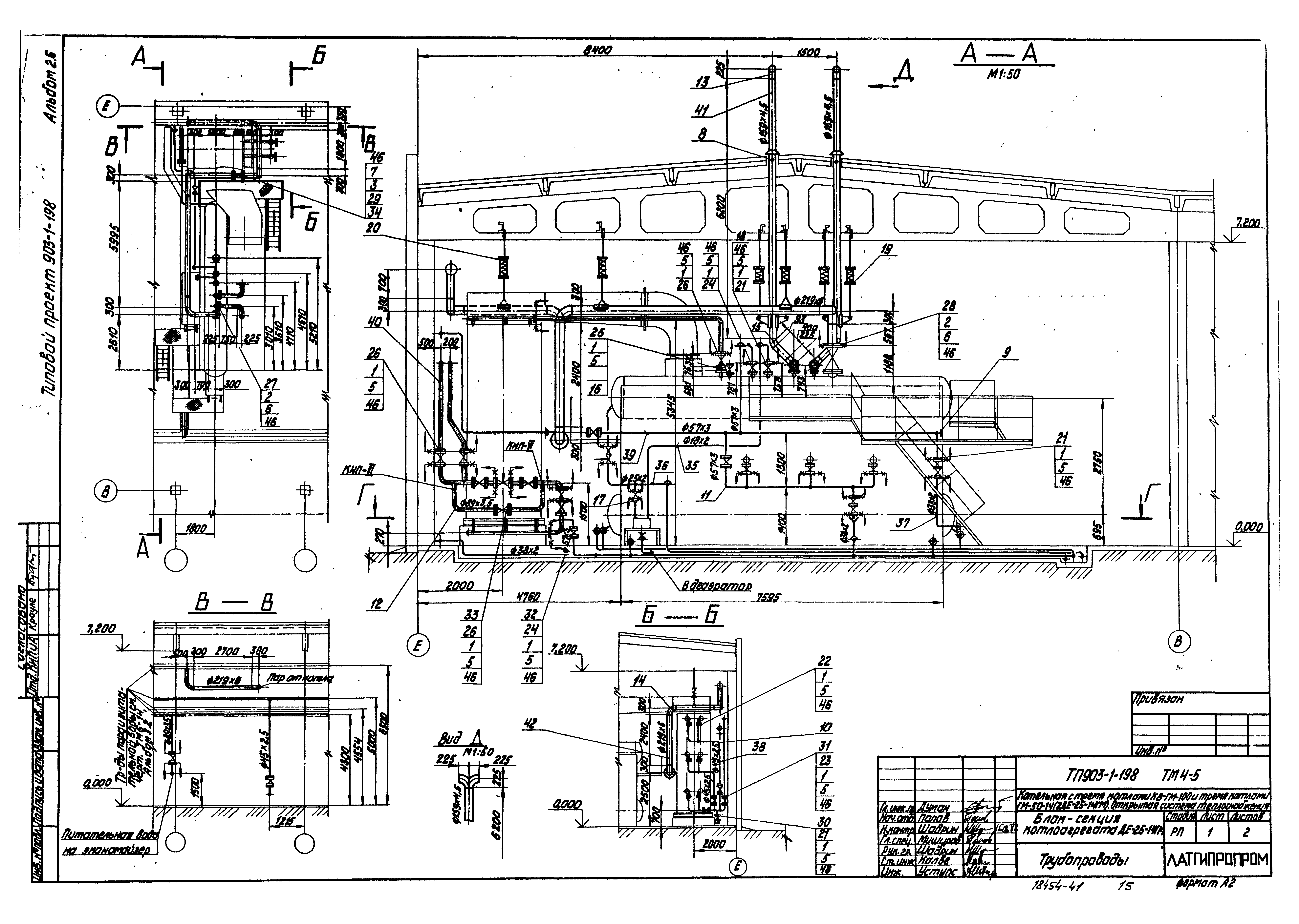
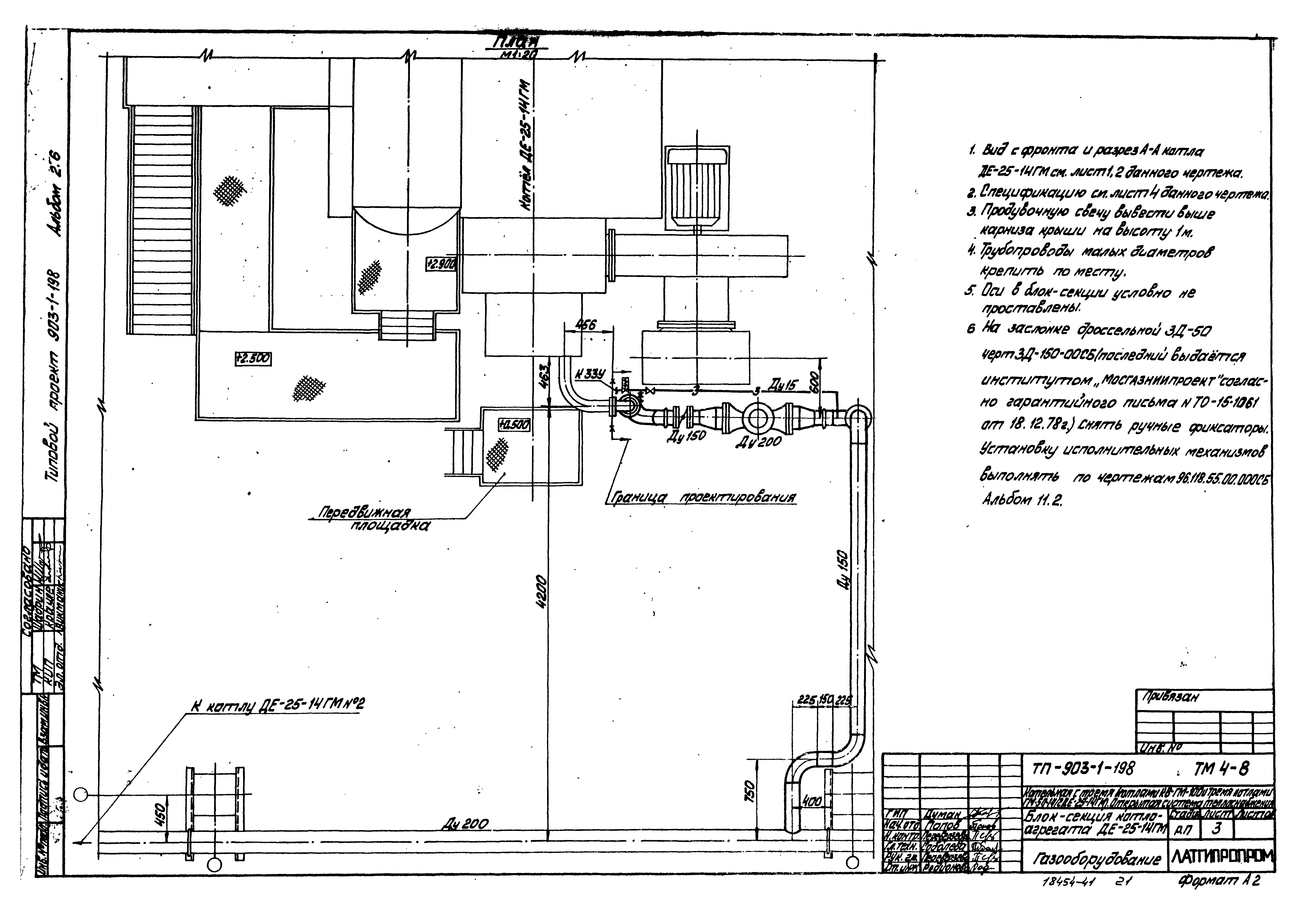
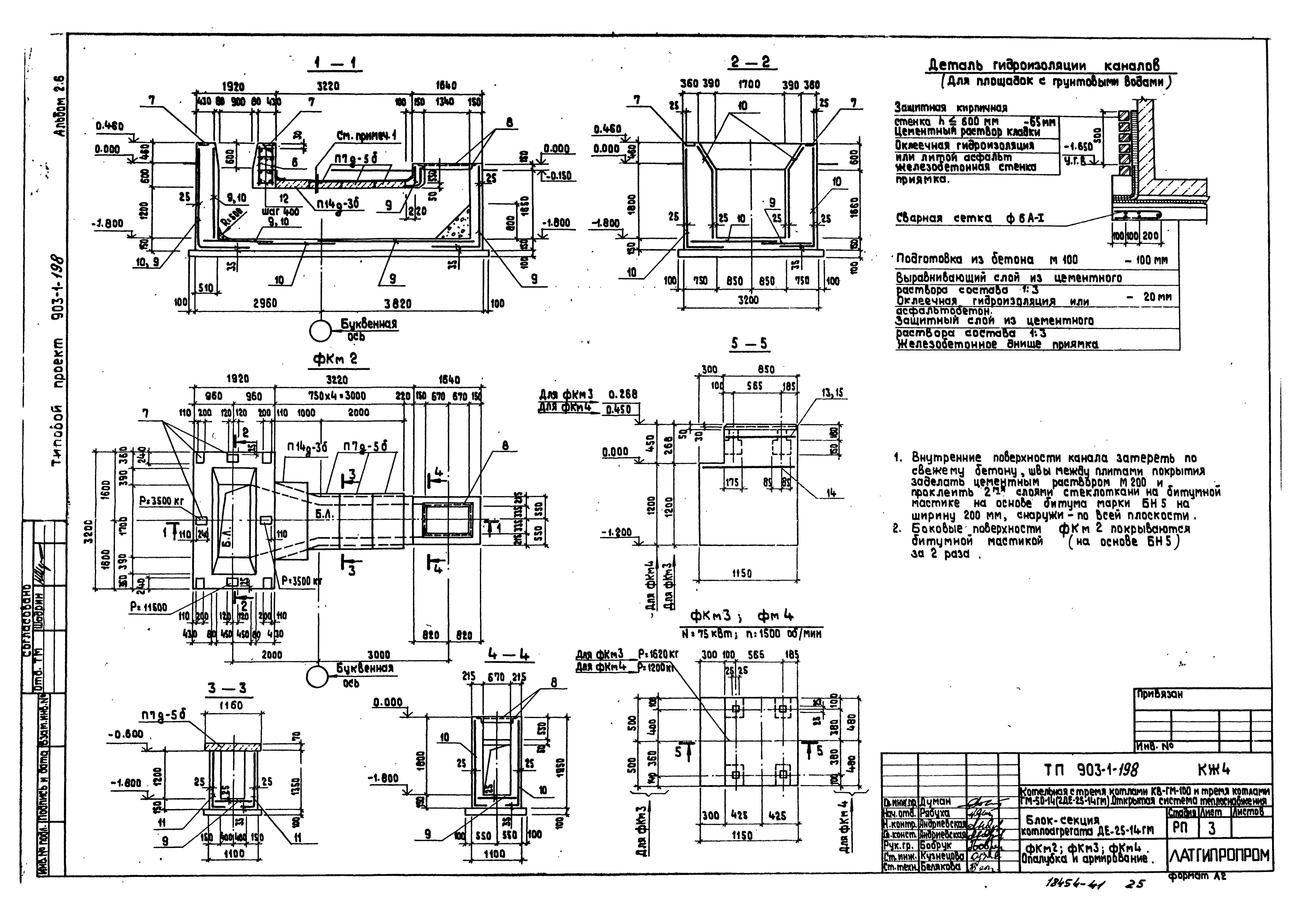
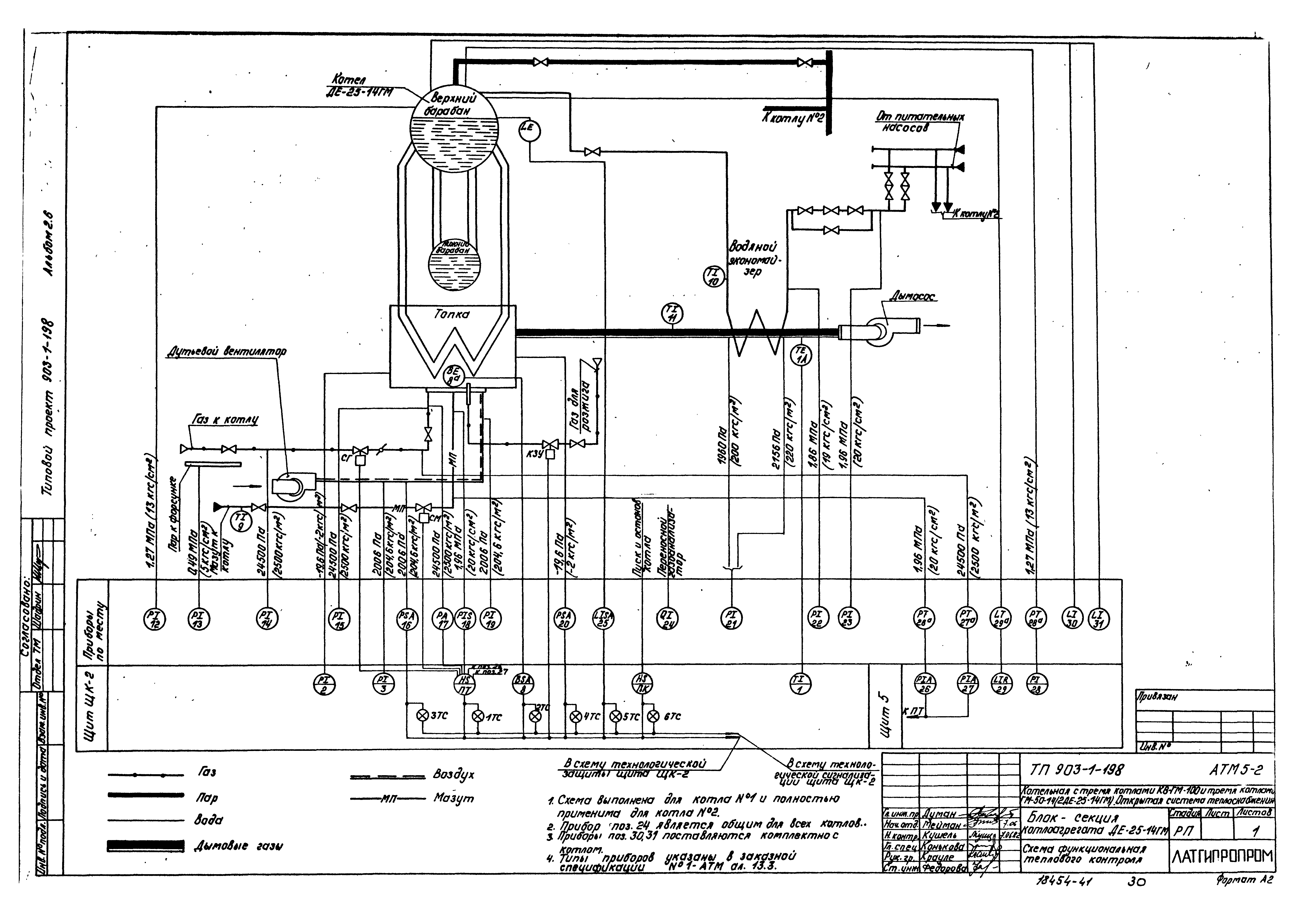
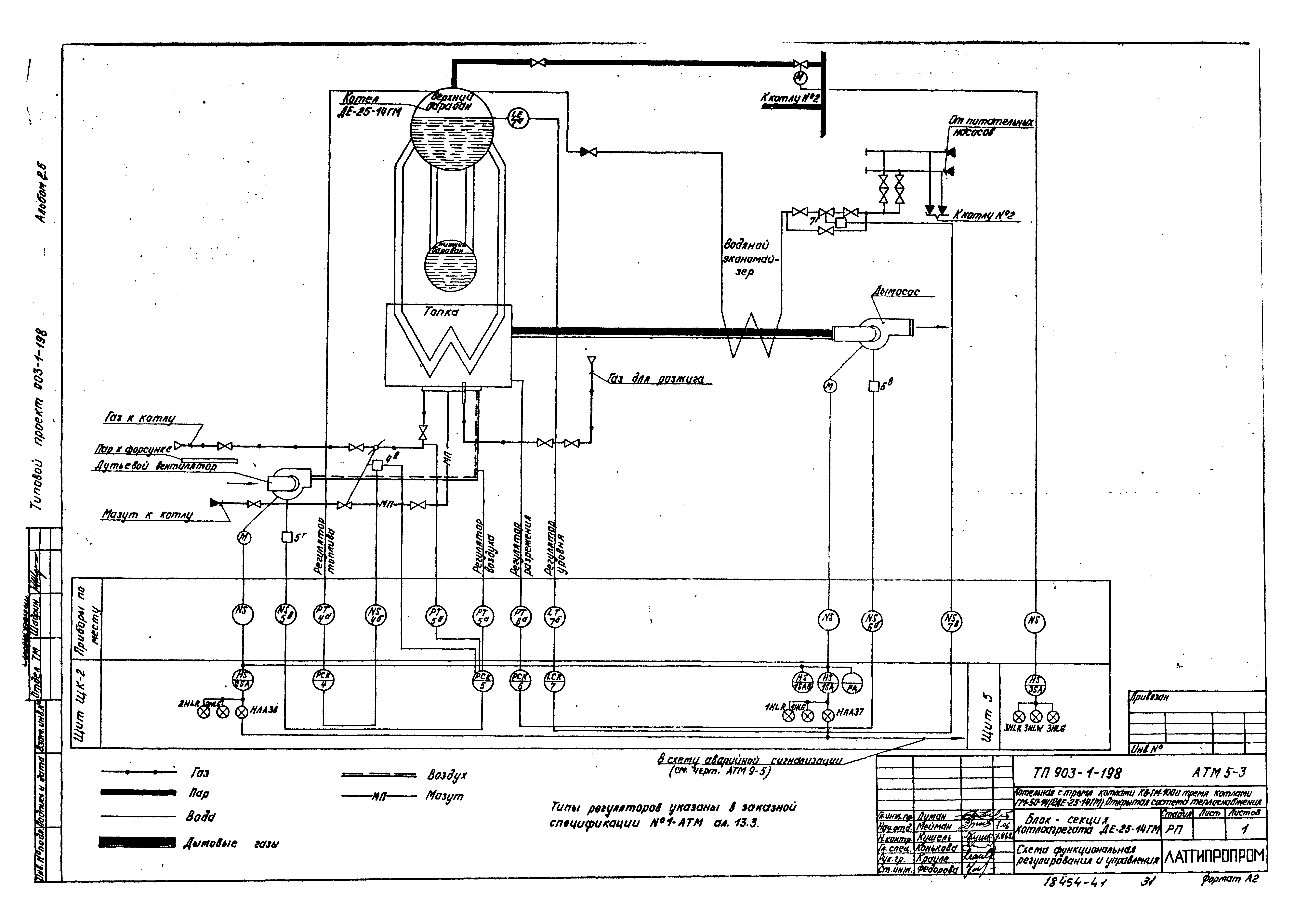
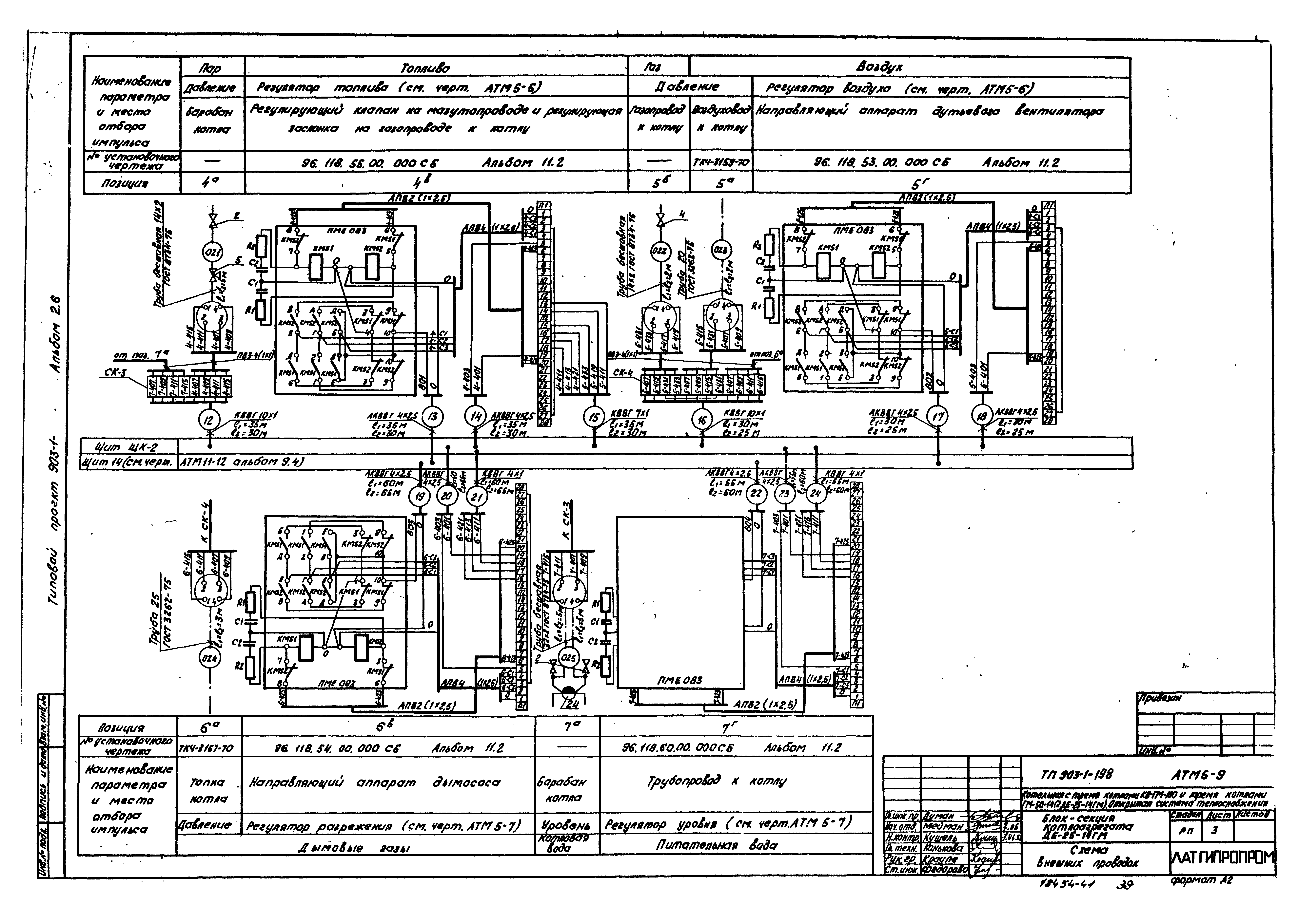
| Оглавление: | Содержание альбома Тепломеханическая часть Общие данные Перечень изолируемых поверхностей Компоновка оборудования Газовоздухопроводы Трубопроводы Схема дренажей и продувки трубопроводов Паромазутопроводы Газооборудование Конструкции железобетонные Общие данные Схема расположения подземного хозяйства котлоагрегата ДЕ-25-14ГМ ФКм2, ФКм3, ФКм4. Опалубка и армирование Спецификации балок БМ1, БМ2 и фундаментов Изделие закладное МН1, МС1. каркас арматурный КР1, КР2 Сетка арматурная С1, С2, С3 Автоматизация Общие данные Схема функциональная теплового контроля Схема функциональная регулирования и управления Схема электрическая принципиальная управления паровой задвижкой Схема электрическая принципиальная регулятора топлива Схема электрическая принципиальная регулятора воздуха Схема электрическая принципиальная регулятора разрежения (уровня) Схема электрическая принципиальная питания Схема внешних проводок План расположения Спецификация основных материалов и изделий |
| Разработан: | Латгипропром |
| Утверждён: | 14.05.1982 Латгипропром (101А) |











































