Скачать Типовой проект 903-1-198 Альбом 6.3. Водоподготовительная установка. Архитектурно-строительная часть. Конструкции нулевого цикла. Тепломеханическая часть (вариант установки котлов КВ-ГМ-100 и ДЕ-25-14ГМ)Дата актуализации: 01.01.2021
|
| Обозначение: | Типовой проект 903-1-198 |
| Обозначение англ: | 903-1-198 |
| Статус: | действует |
| Название рус.: | Альбом 6.3. Водоподготовительная установка. Архитектурно-строительная часть. Конструкции нулевого цикла. Тепломеханическая часть (вариант установки котлов КВ-ГМ-100 и ДЕ-25-14ГМ) |
| Дата добавления в базу: | 01.10.2014 |
| Дата актуализации: | 01.01.2021 |
| Дата введения: | 01.01.1983 |
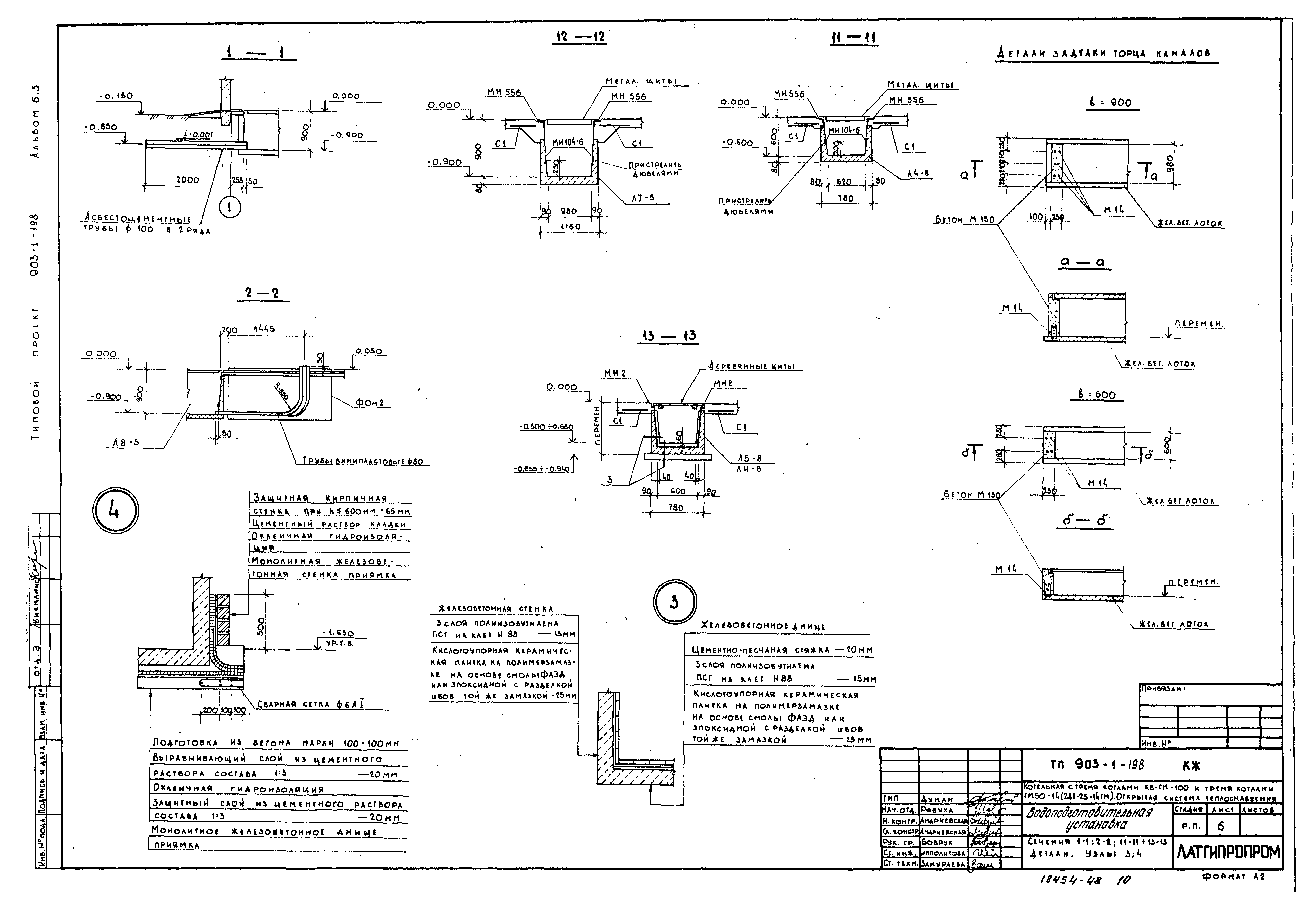
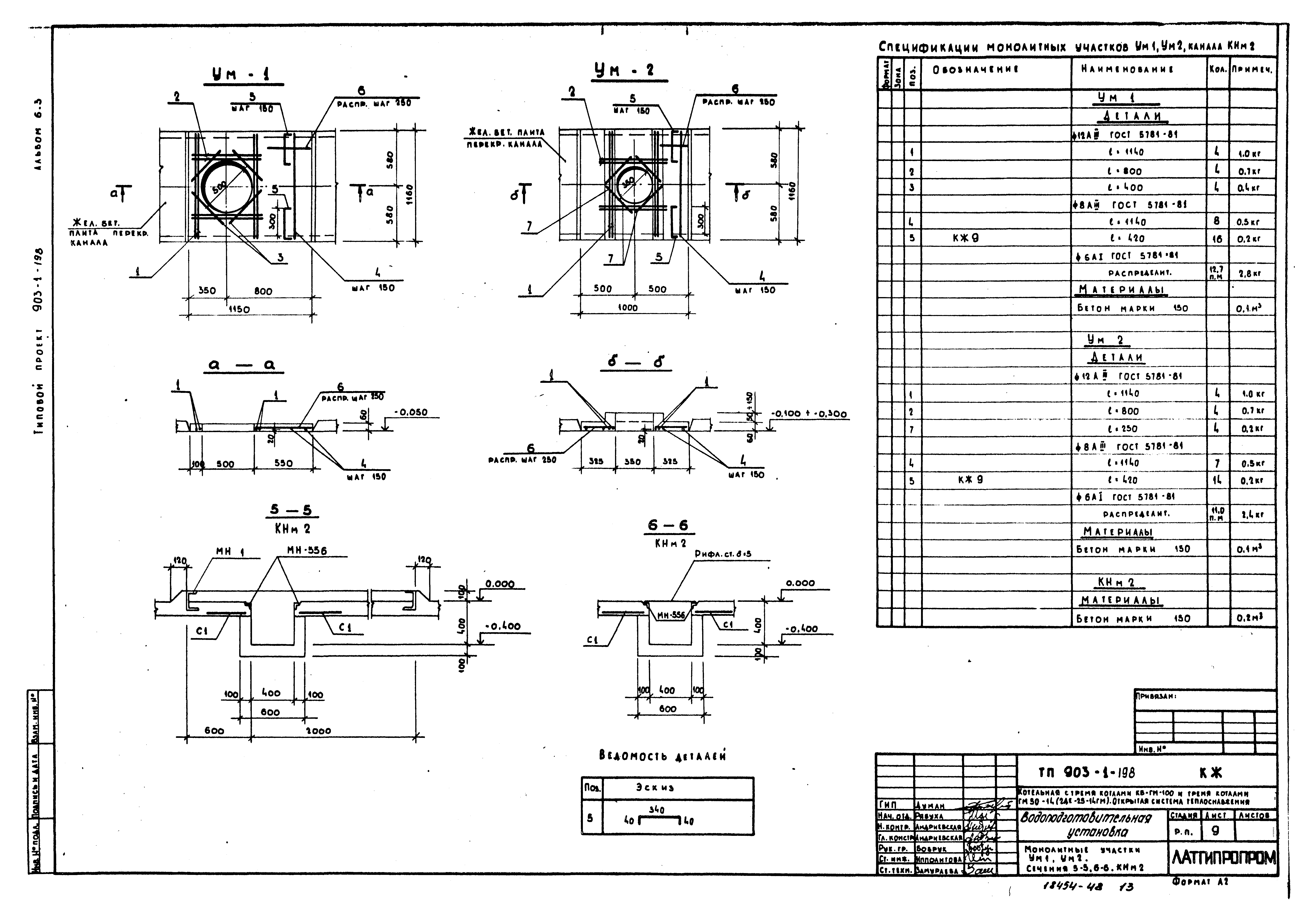
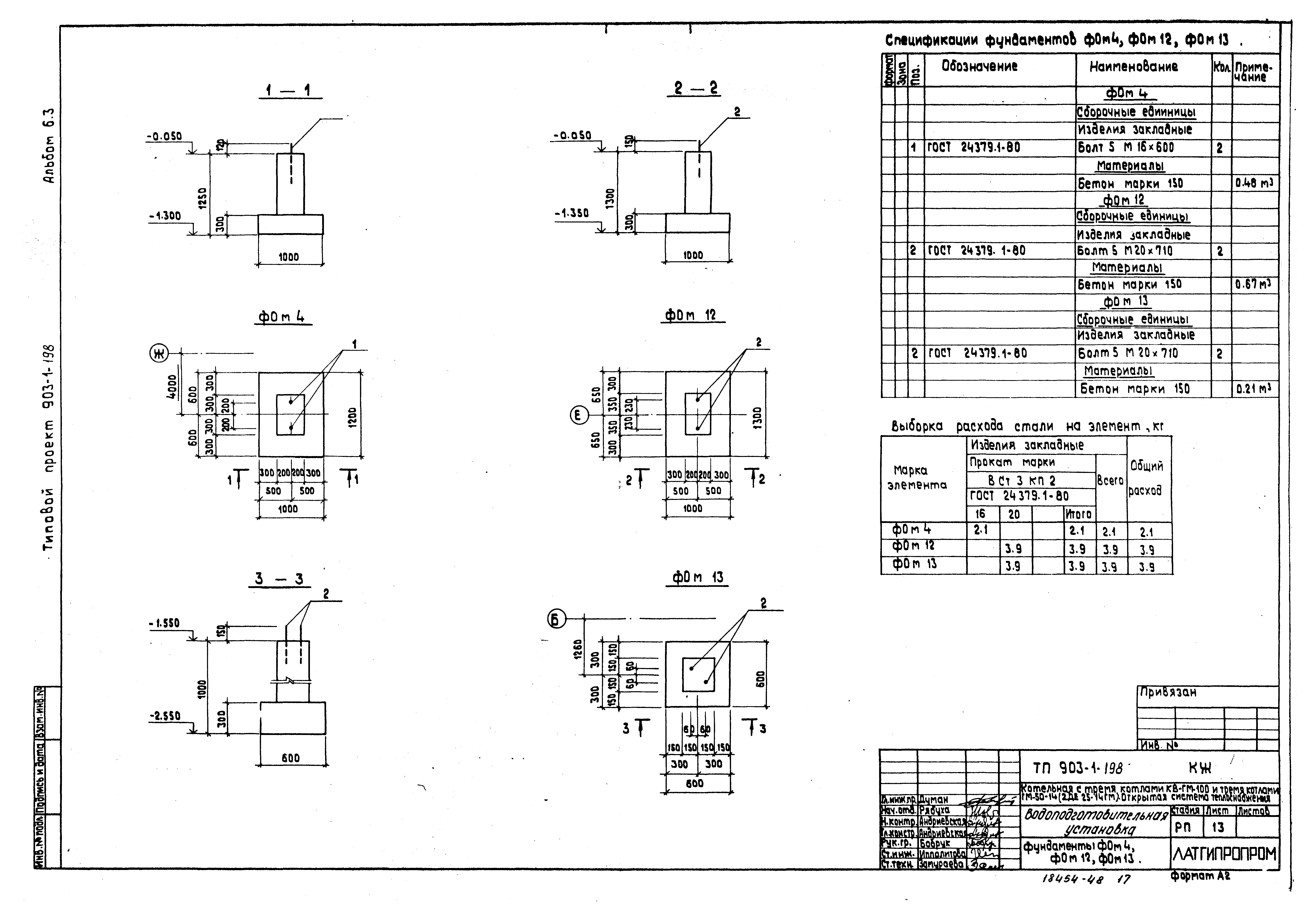
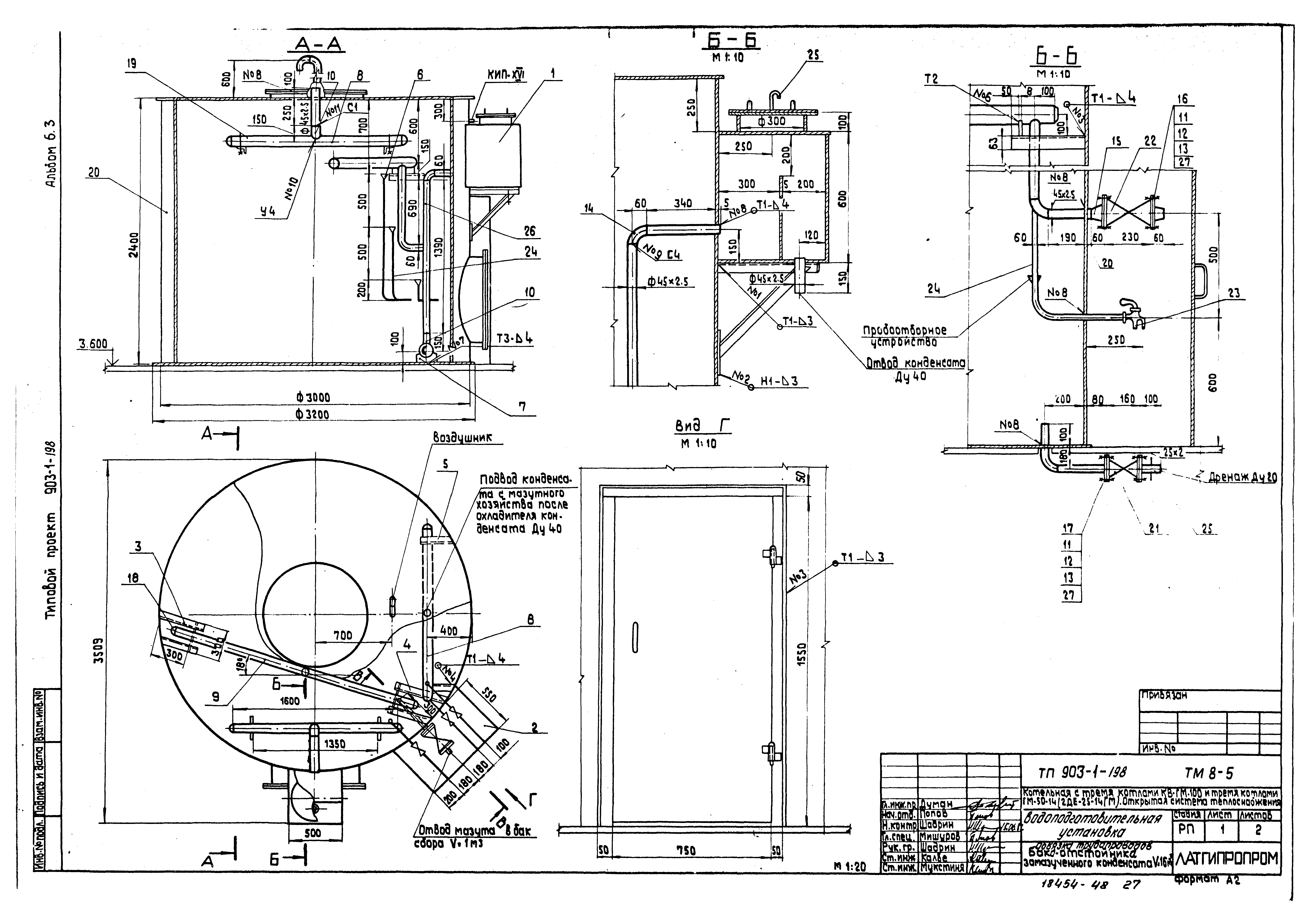
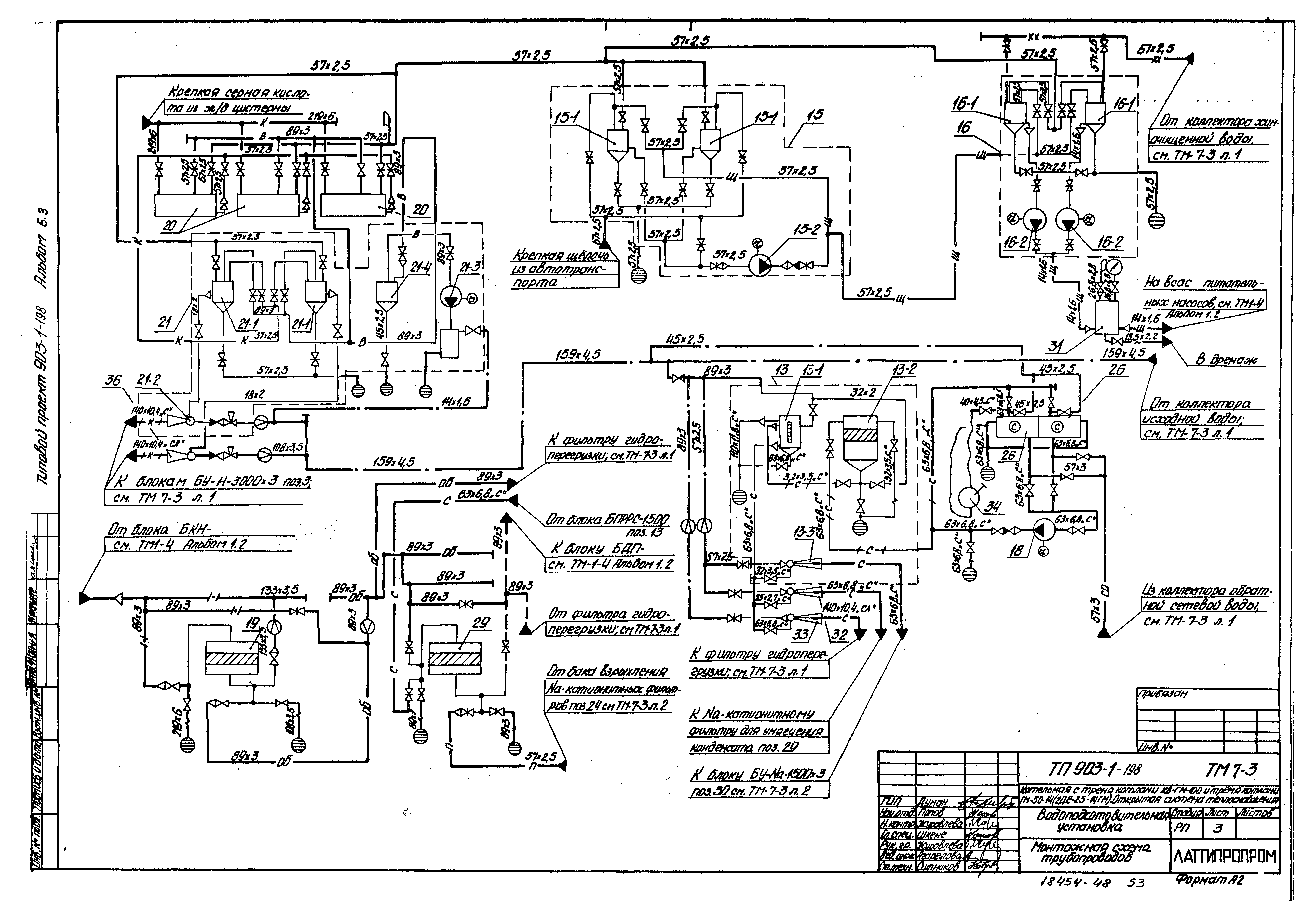
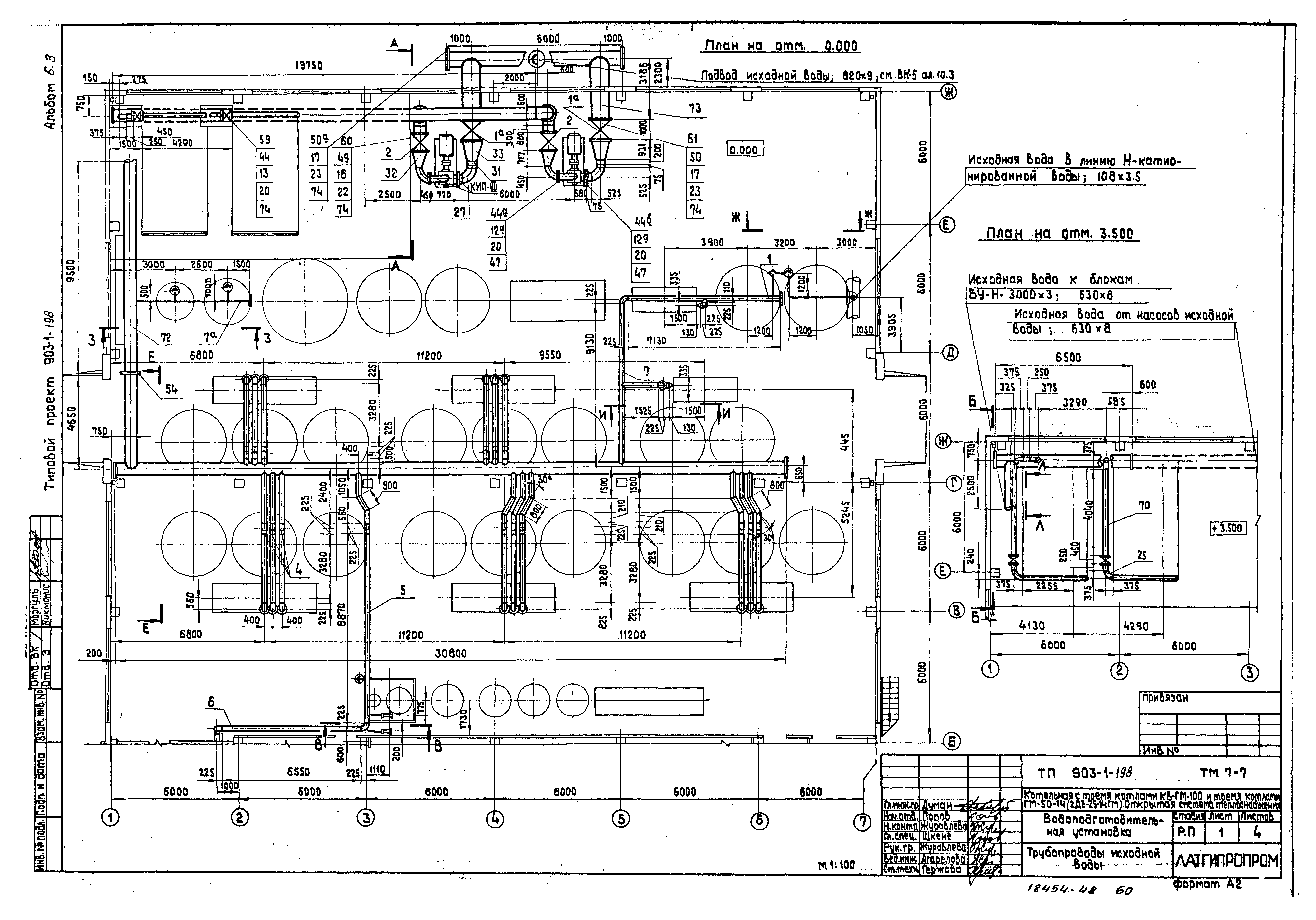
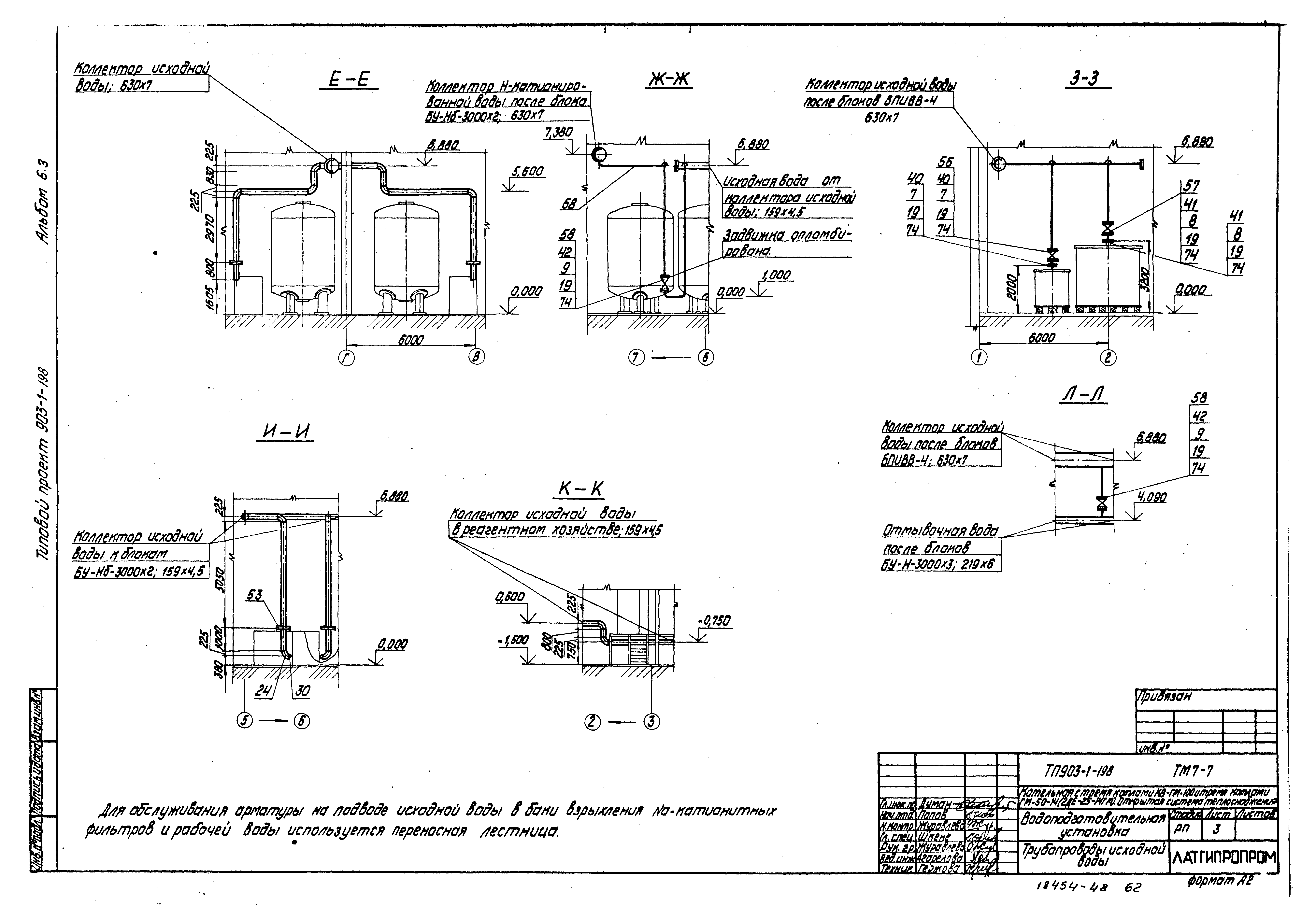
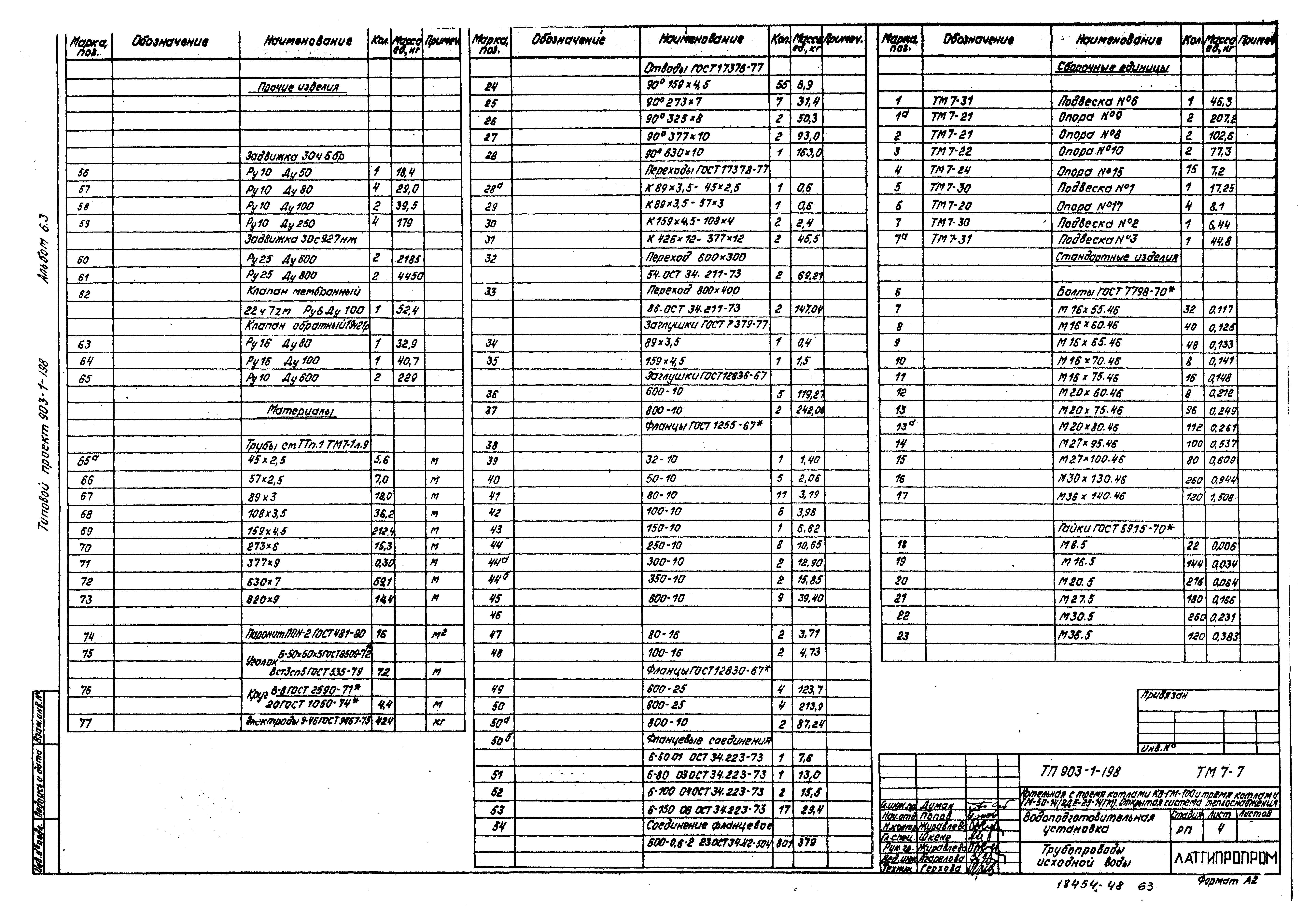
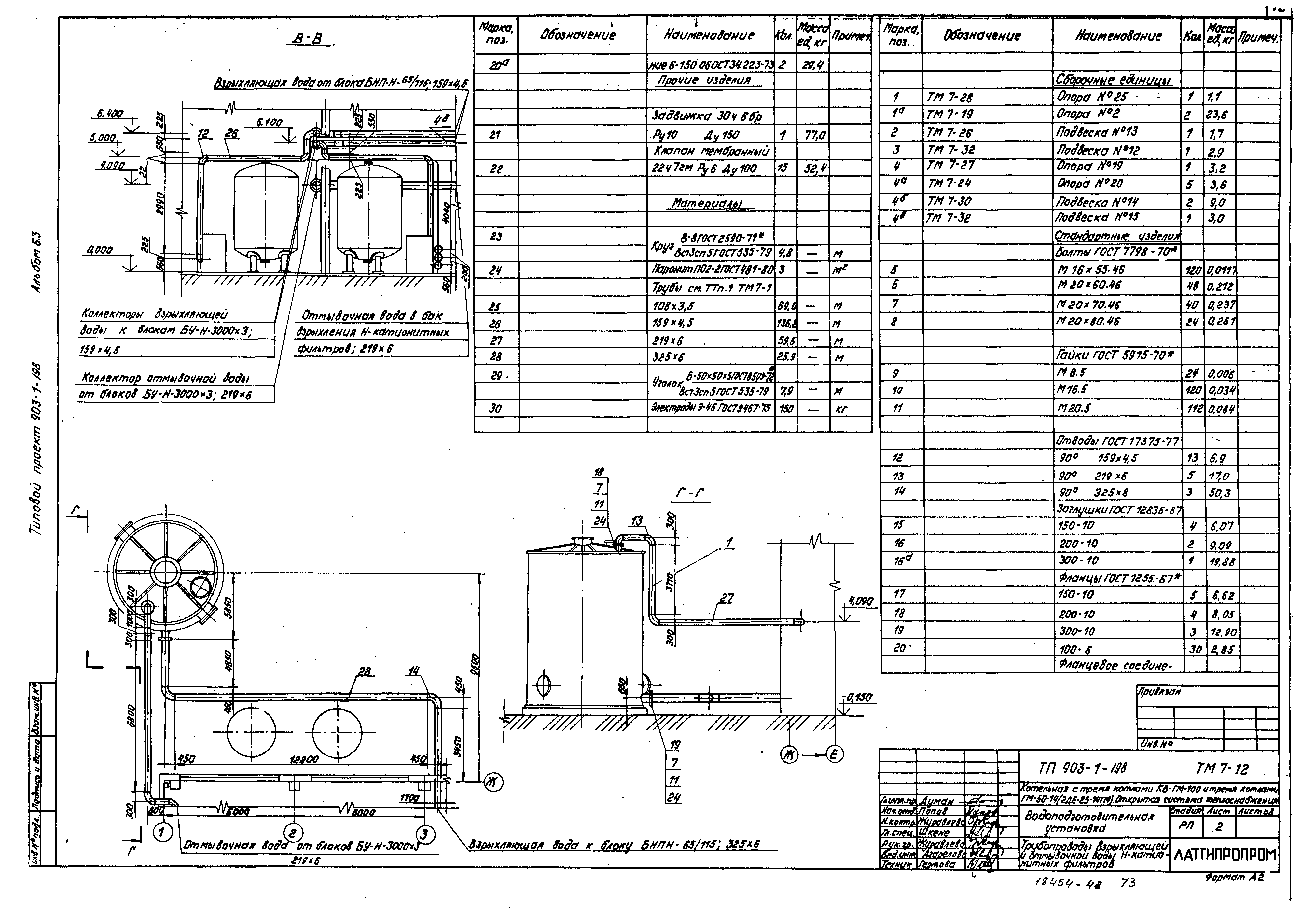
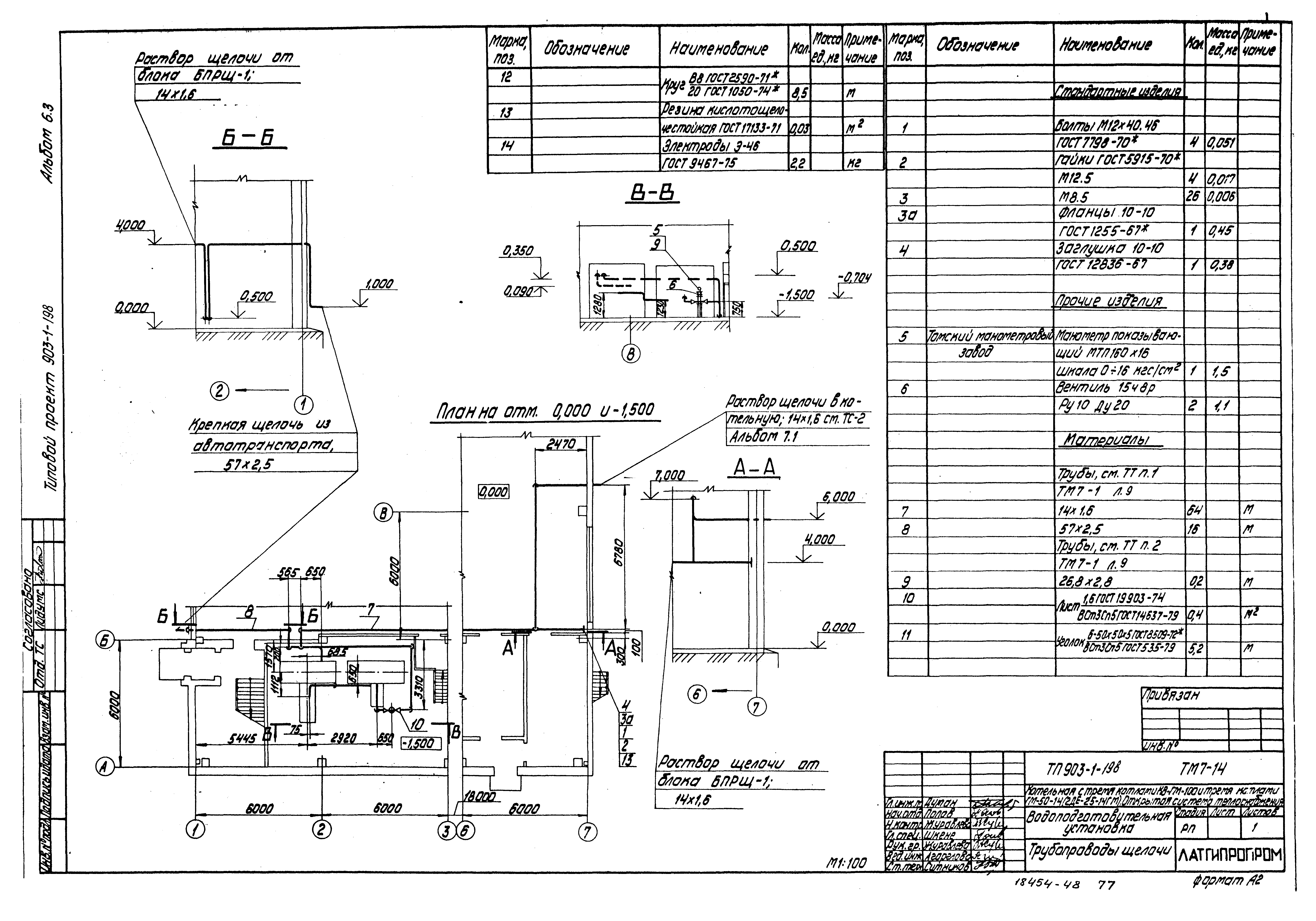
| Оглавление: | Содержание альбома Архитектурно-строительная часть, марка КЖ Общие данные Схема расположения элементов подземного хозяйства в осях Г - Ж Схема расположения элементов подземного хозяйства в осях А - Г Схема расположения элементов наружного подземного хозяйства. Узлы 1, 2 Спецификация элементов к схемам расположения подземного хозяйства Сечения 1-1, 2-2, 11-11 - 13-13. Детали. Узлы 3, 4 Элемент плана №1. КНм1 Приямки ПРм1 - Прм3. Сечения 3-3, 4-4 Монолитные участки Ум1, Ум2. Сечения 5-5, 6-6. КНм2 Сечения 7-7 - 10-10; 14-14; КНм3. Спецификация Фундаменты ФОм1 - ФОм3, ФОм5 Фундаменты ФОм6 - ФОм11 Фундаменты ФОм4, ФОм12, ФОм13 Узел сбора и возврата конденсата Общие данные Перечень изолируемых поверхностей Трубопроводы сбора и возврата конденсата Схема дренажей и отвода воздуха от трубопроводов сбора и возврата конденсата Обвязка трубопроводов бака-отстойника замазученного конденсата V = 16 куб. м Обвязка трубопроводов бака конденсата с производства V = 2,5 куб. м Обвязка трубопроводов промежуточного бака мазута V = 1 куб. м Охладитель конденсата с производства 10-219х4000-3-12 ОСТ34.588-68 Компоновка оборудования сбора и возврата конденсата Блок охладителя конденсата БОК Блок охладителя конденсата БОК. Рама Блок БКН-18/45 Блок БКН-18/45. Рама Водоподготовительная установка Общие данные Ведомость работ по тепловой изоляции и антикоррозийным покрытиям Монтажная схема трубопроводов Монтажная схема трубопроводов гидроперегрузки фильтрующего материала Программа автоматизации процесса регенерации водород-катионитных фильтров ф3,0 Компоновка оборудования Трубопроводы исходной воды Трубопроводы Н-катионированной воды Трубопроводы декарбонизированной воды Трубопроводы химочищенной воды Трубопроводы конденсата Трубопроводы взрыхляющей и отмывочной воды Н-катионитных фильтров Трубопроводы раствора соли и горячей воды Трубопроводы щелочи Трубопроводы кислоты Трубопроводы взрыхления Na-катионитных фильтров Трубопроводы обвязки корпусов фильтров, дренажей, гидроперегрузки и рабочей воды Трубопроводы вакуума и воздуха Опоры трубопроводов №1, 2, 3, 4, 5 Опоры трубопроводов №7, 17 Опоры трубопроводов №8, 9, 26 Опора отвода №10 Опора трубопроводов №11 Опоры трубопроводов №13, 12, 15, 20 Опора трубопроводов №16 Подвеска трубопроводов №13 Опора трубопровода №19 Опоры трубопроводов №21, 22, 23, 24, 25 Опоры трубопроводов №6, 8, 14 Подвески трубопроводов №1, 2, 14 Подвески трубопроводов №3, 4, 5, 6 Подвески трубопроводов №7, 8, 9, 10, 11, 12, 15 Обвязка трубопроводов декарбонизатора Q = 300 т/ч и брызгоотделителей Ф 1000 Обвязка цилиндрического бака V = 2,5 куб. м Обвязка цилиндрического бака V = 25 куб. м Обвязка цилиндрического бака V = 10 куб. м |
| Разработан: | Латгипропром |
| Утверждён: | 14.05.1982 Латгипропром (101А) |
































































































