Скачать Типовой проект 903-1-198 Альбом 10.2. Котельная. Сантехнические устройства (вариант установки котлов КВ-ГМ-100 и ДЕ-25-14ГМ)Дата актуализации: 01.01.2021
|
| Обозначение: | Типовой проект 903-1-198 |
| Обозначение англ: | 903-1-198 |
| Статус: | действует |
| Название рус.: | Альбом 10.2. Котельная. Сантехнические устройства (вариант установки котлов КВ-ГМ-100 и ДЕ-25-14ГМ) |
| Дата добавления в базу: | 01.10.2014 |
| Дата актуализации: | 01.01.2021 |
| Дата введения: | 01.01.1983 |
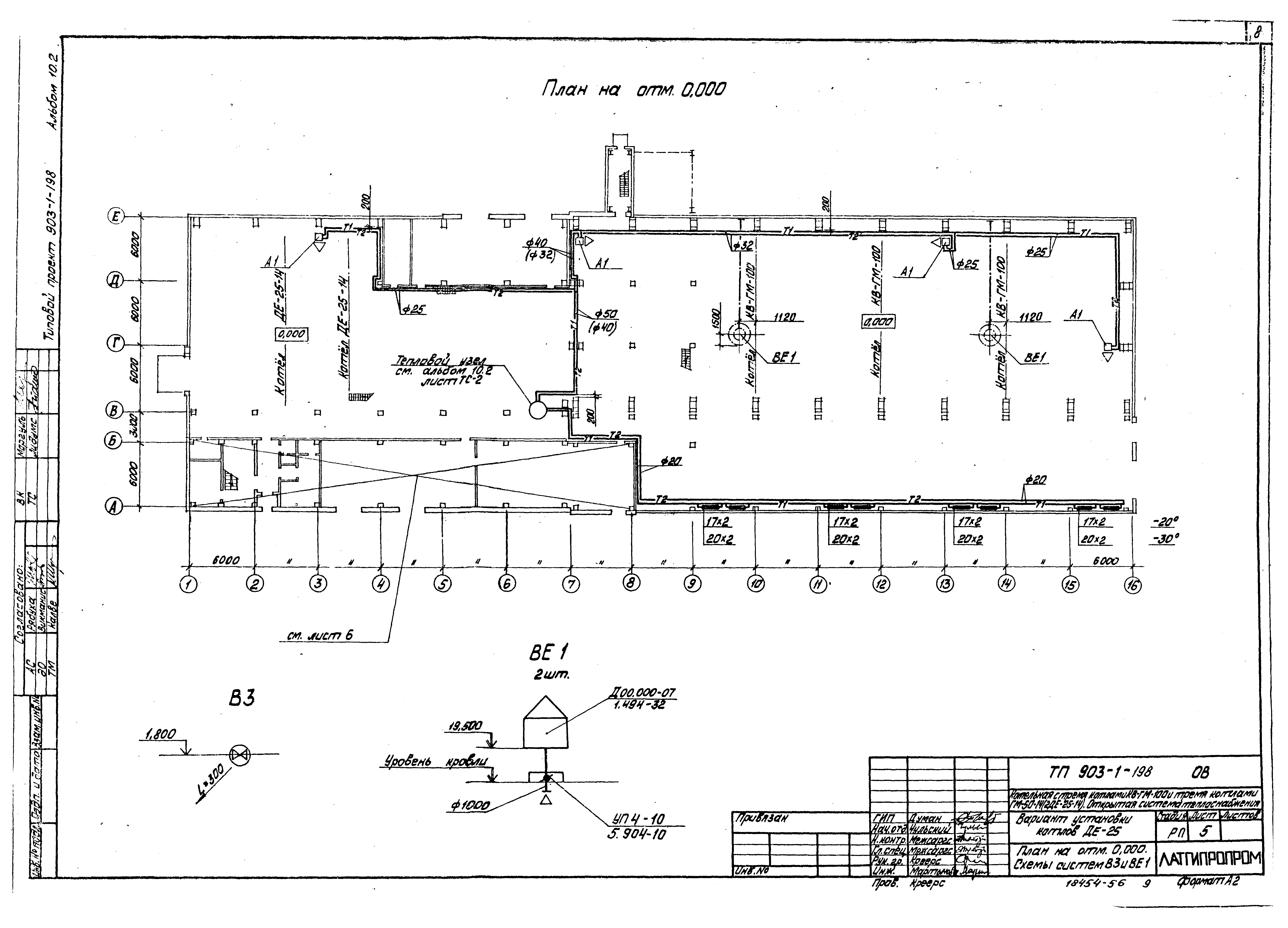
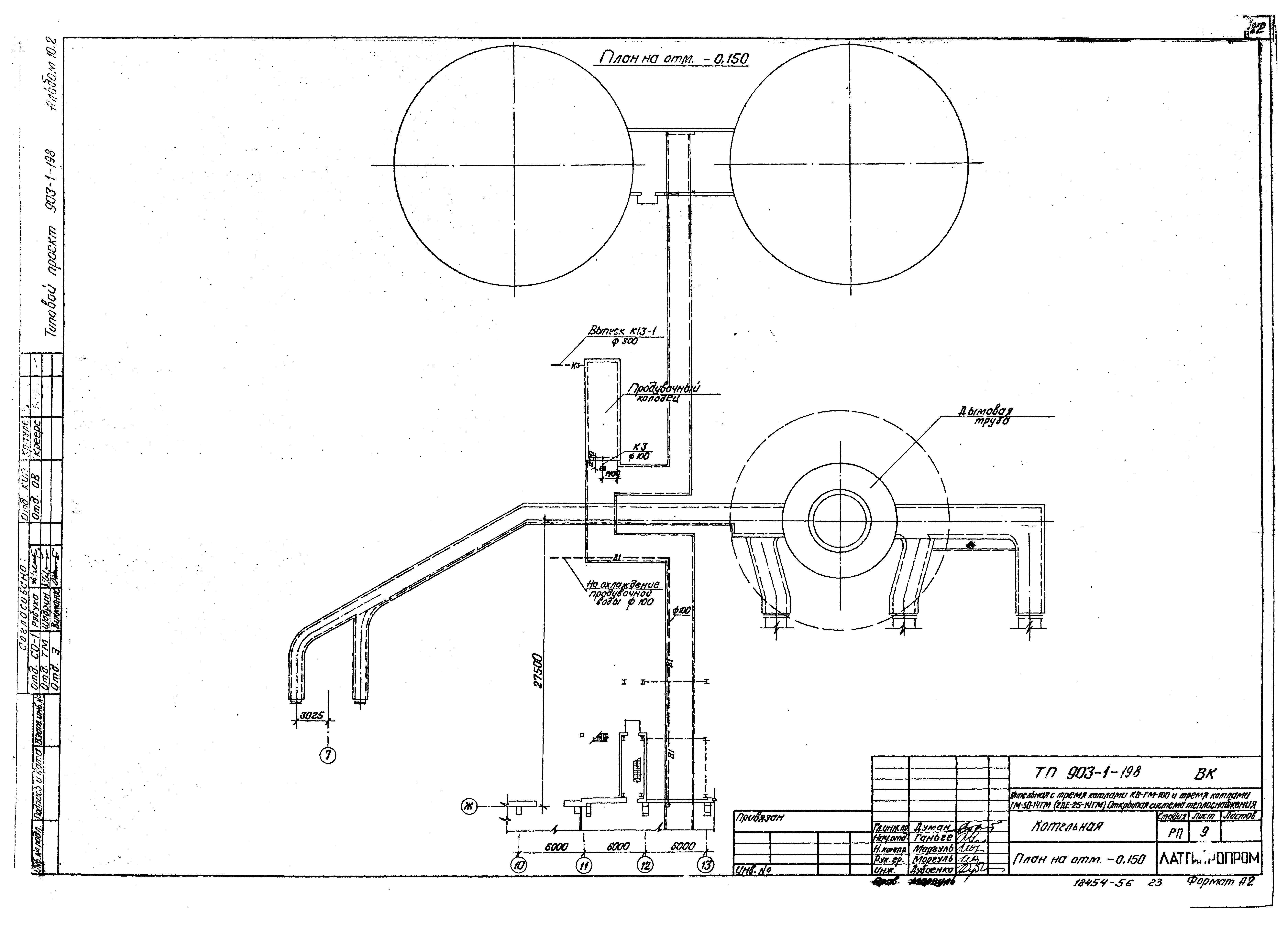
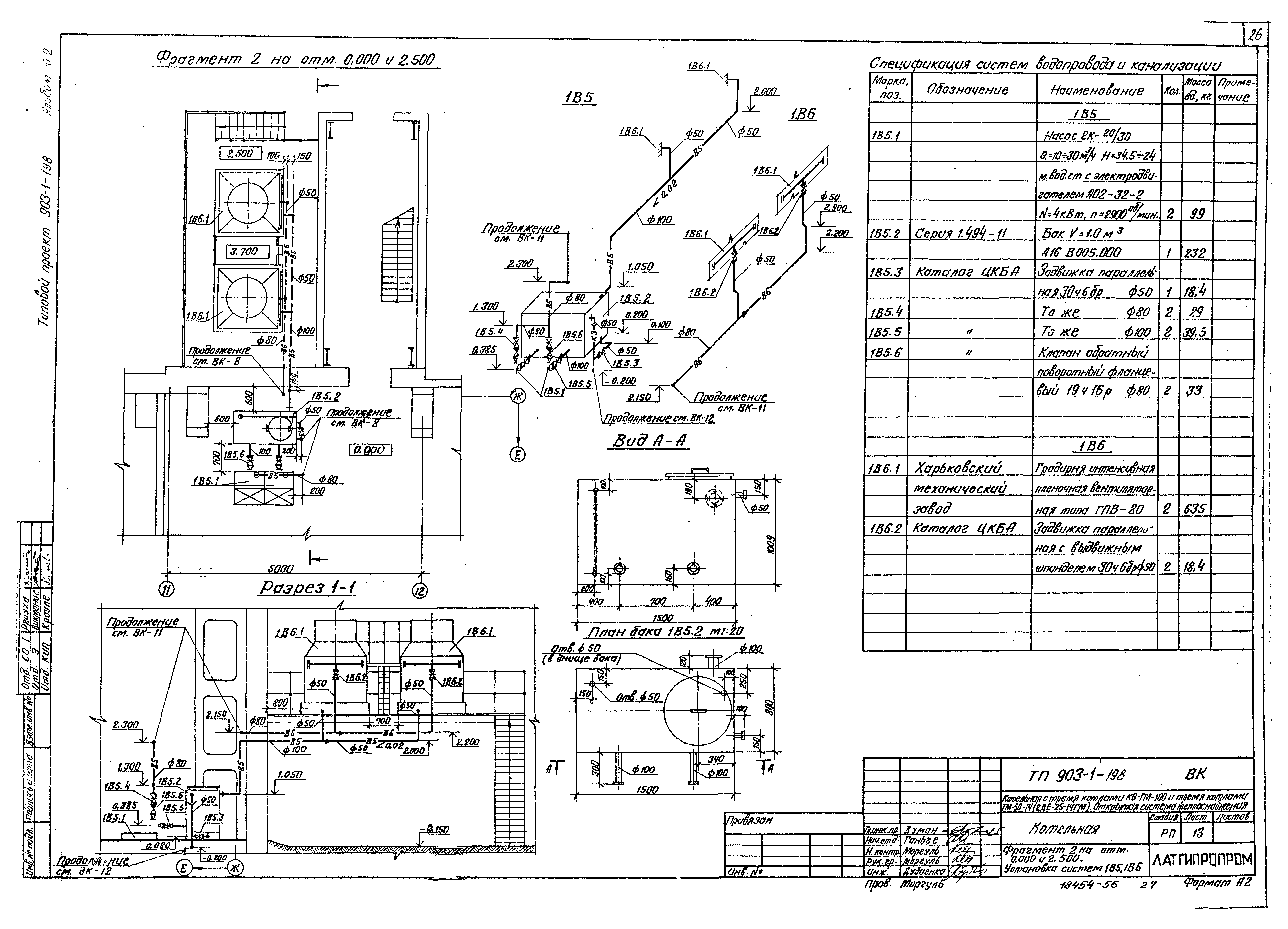
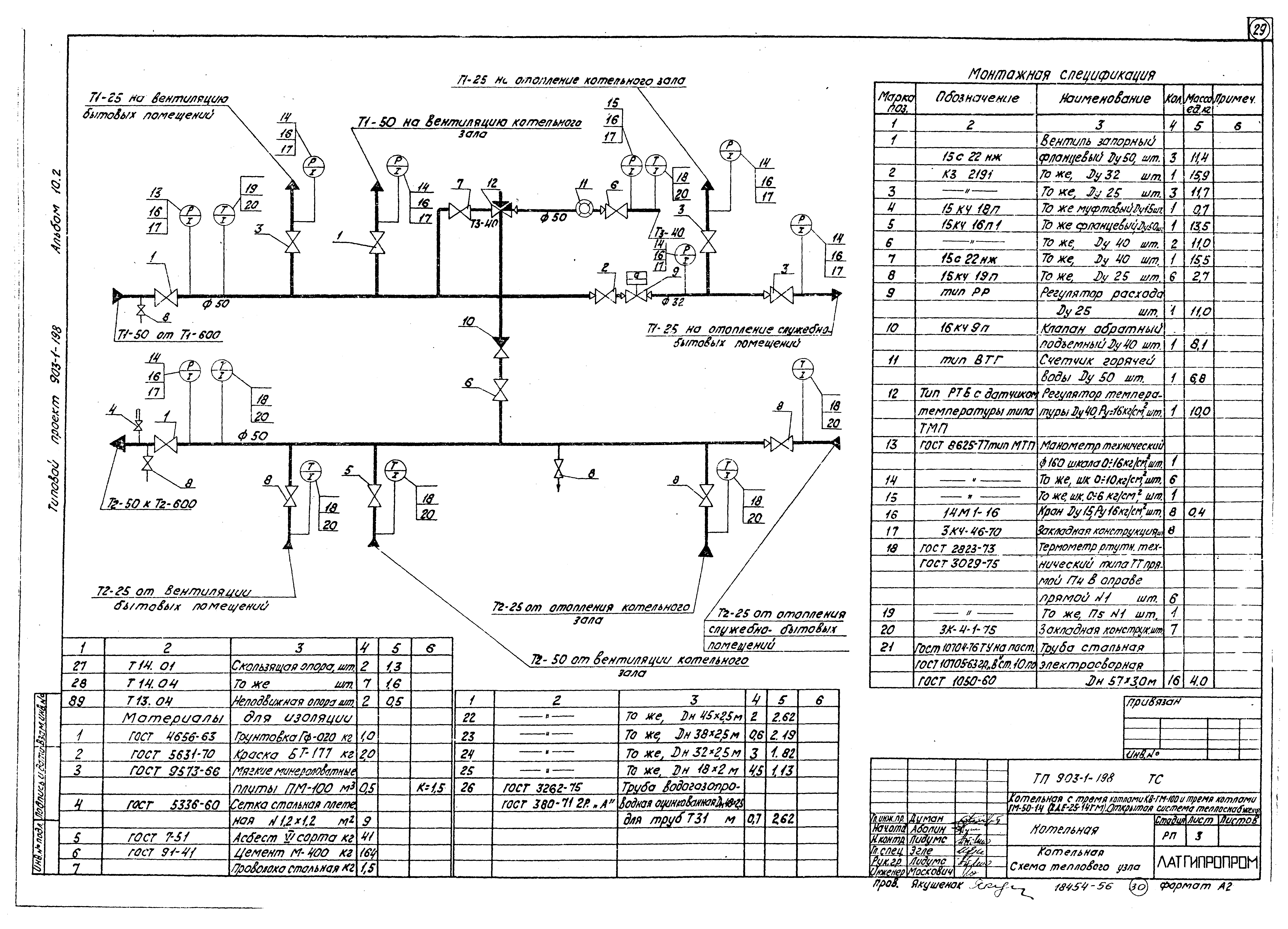
| Оглавление: | Содержание альбома Отопление и вентиляция Общие данные План на отм. 0.000. Схемы систем В3 и ВЕ1 Бытовые помещения. План на отм. 0.000. Схема системы В1 и В2 Бытовые помещения. План на отм. 4.200. Схема системы П1 Схемы отопления Схемы теплоснабжения калориферов Отопительно-вентиляционная установка П1 Внутренние водопровод и канализация Общие данные План на отм. 0.000 и - 0.150 между осями 1 - 7 и А - Е. Фрагмент 1 на отм. 0.000. План на отм. 4.200 между осями 1 - 4 и А - В. План кровли План на отм. 0.000 и - 0.150 между осями 7 - 16 и А/1 - Ж План на отм. - 0.150 Схемы систем В1, Т3 Схемы систем В5, В6 Схемы систем В8, К1, К2, К3, К13 Фрагмент 2 на отм. 0.000 и 2.500. Установки систем 1В5, 1В6 Тепловые сети Общие данные Тепловой узел. План. Разрез 1-1 Котельная. Схема теплового узла |
| Разработан: | Латгипропром |
| Утверждён: | 14.05.1982 Латгипропром (101А) |






























