Скачать Типовой проект 801-2-59.85 Альбом I. Общая пояснительная записка и чертежиДата актуализации: 01.01.2021
|
| Обозначение: | Типовой проект 801-2-59.85 |
| Обозначение англ: | 801-2-59.85 |
| Статус: | действует |
| Название рус.: | Альбом I. Общая пояснительная записка и чертежи |
| Дата добавления в базу: | 01.10.2014 |
| Дата актуализации: | 01.01.2021 |
| Дата введения: | 04.04.1985 |
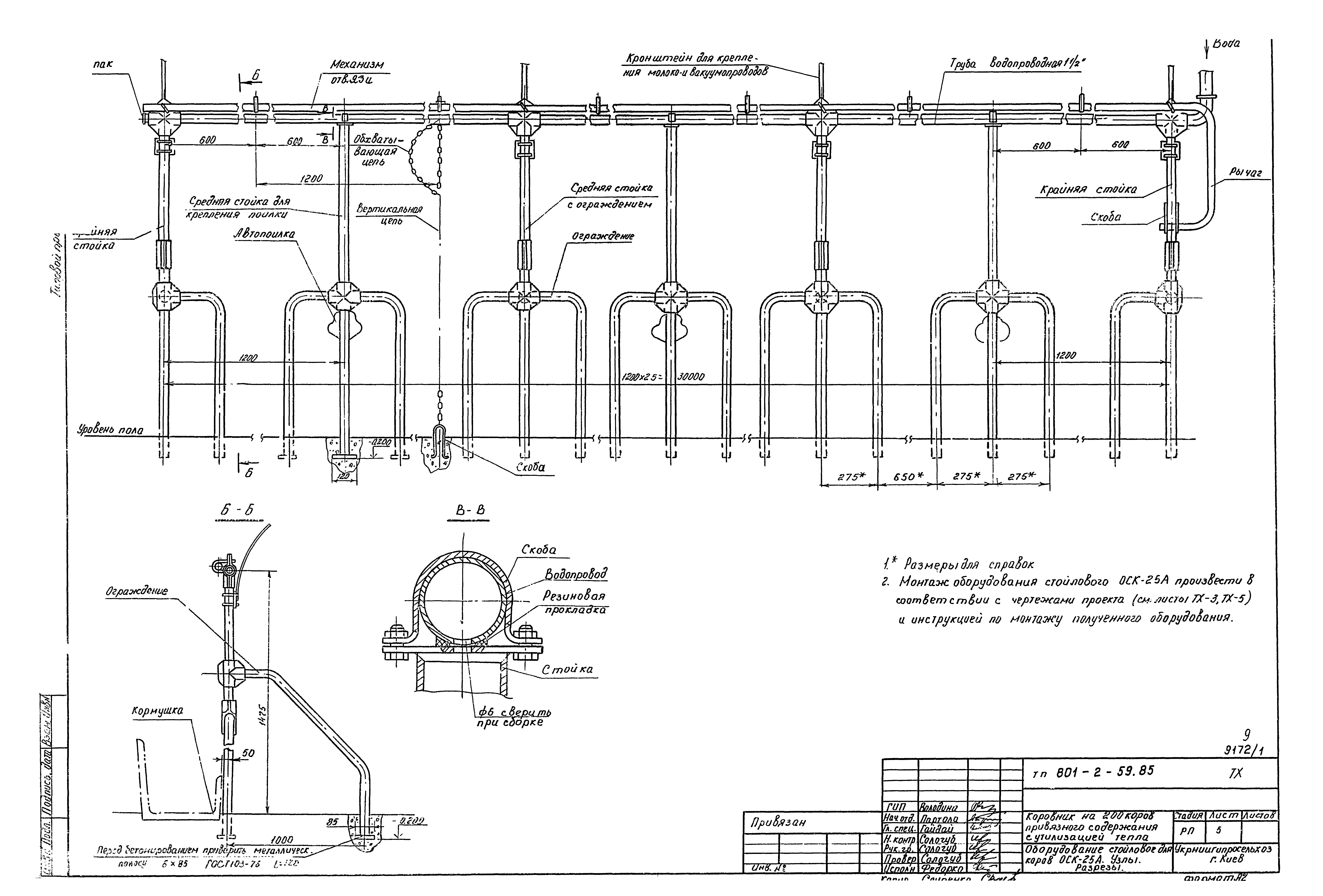
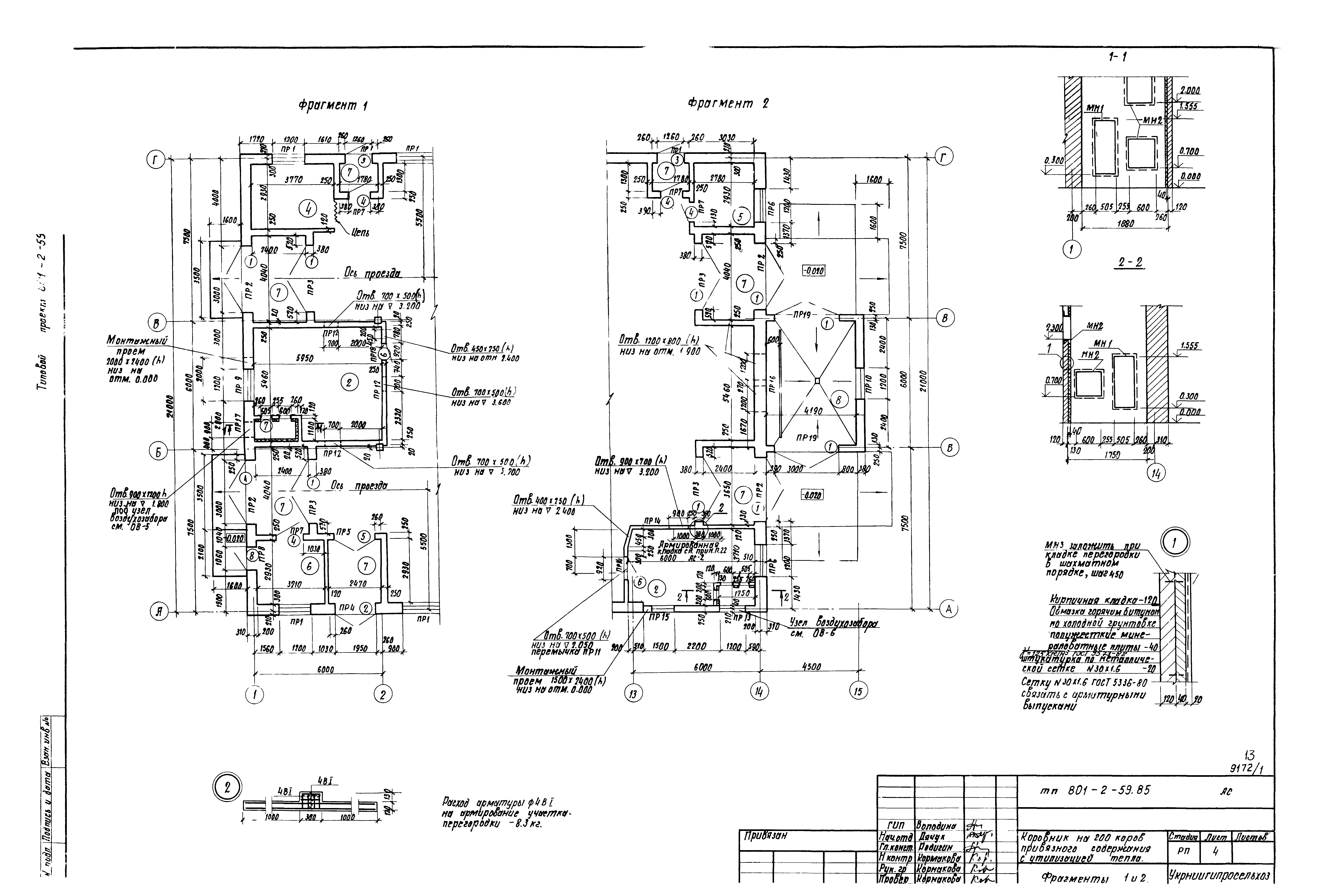
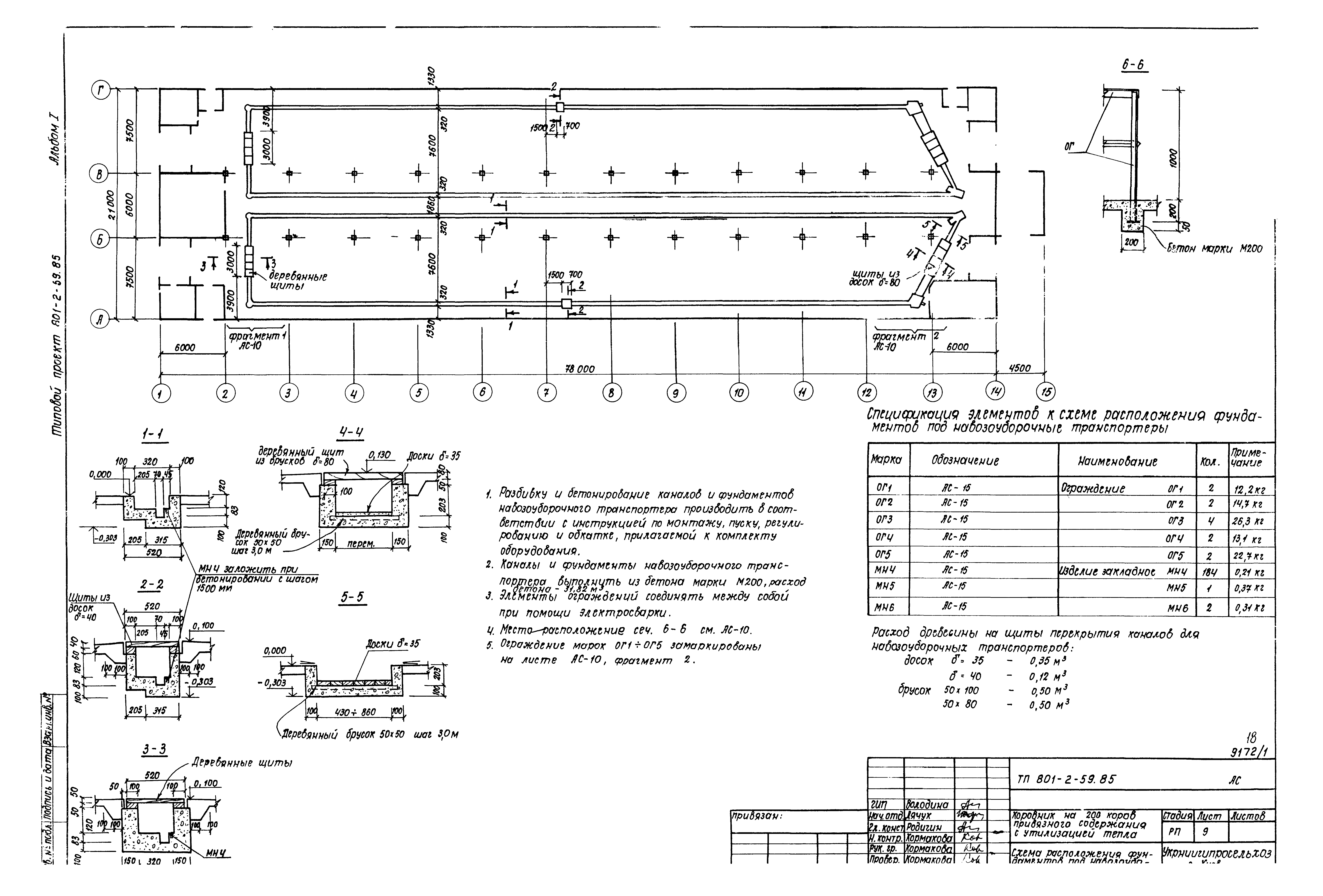
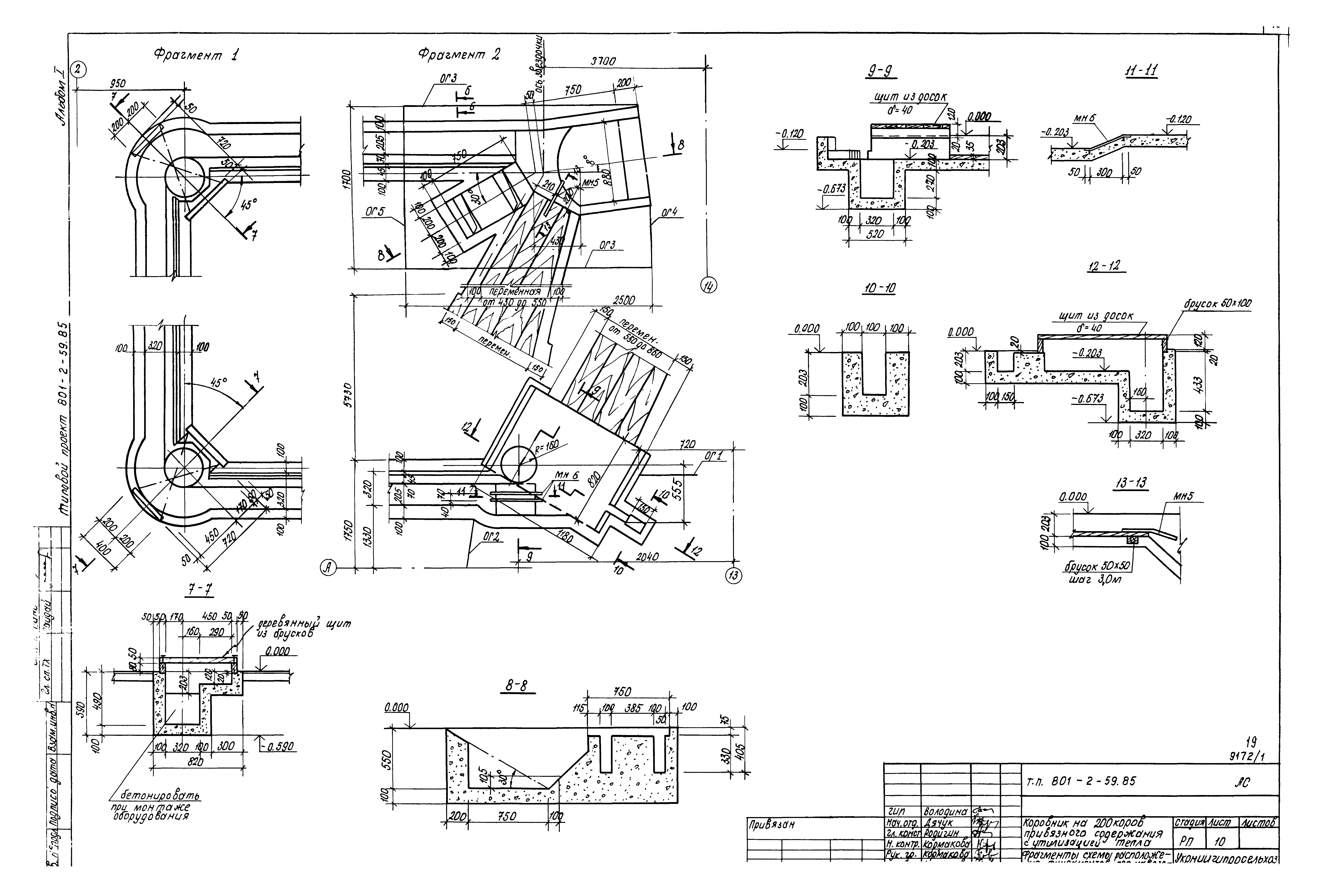
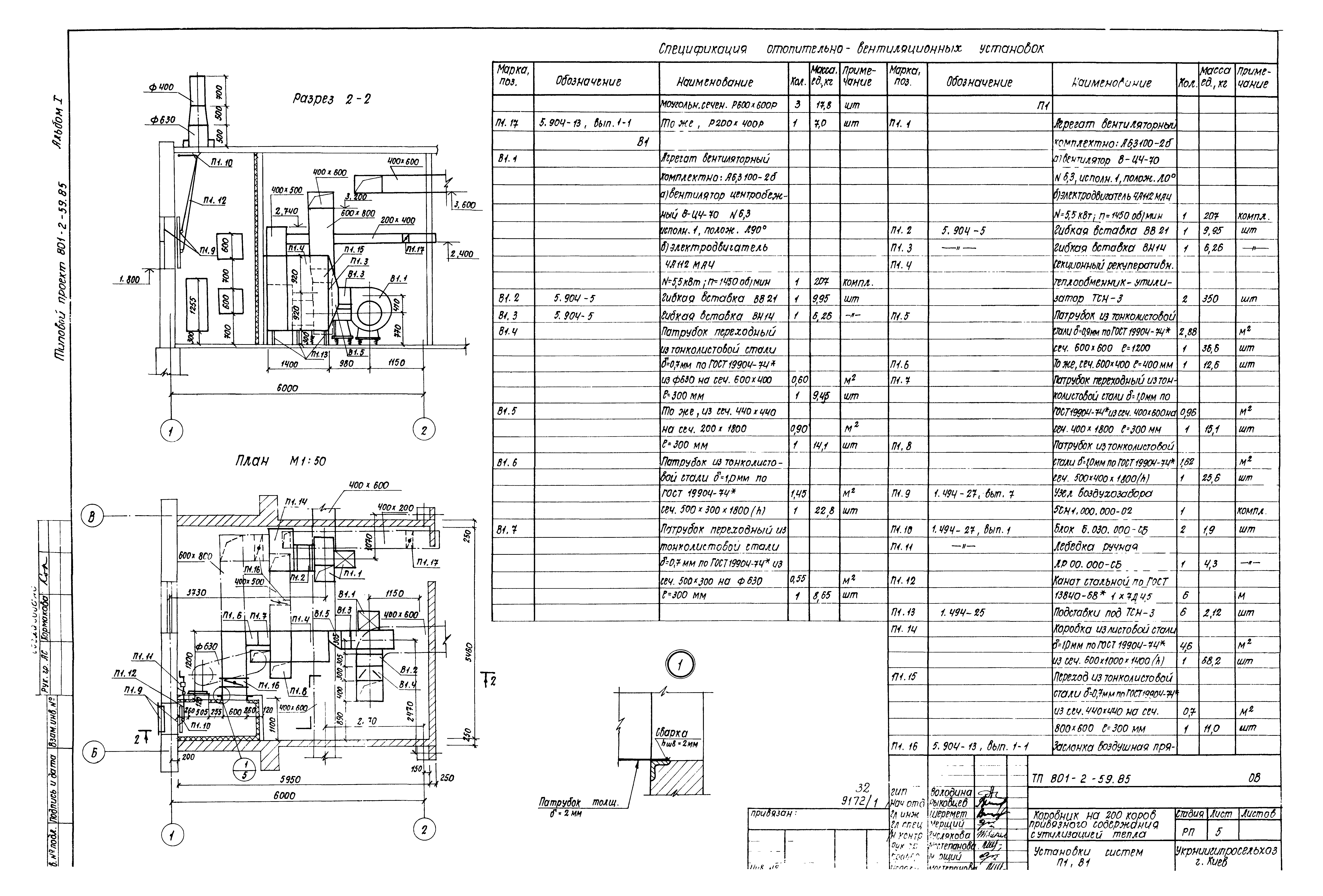
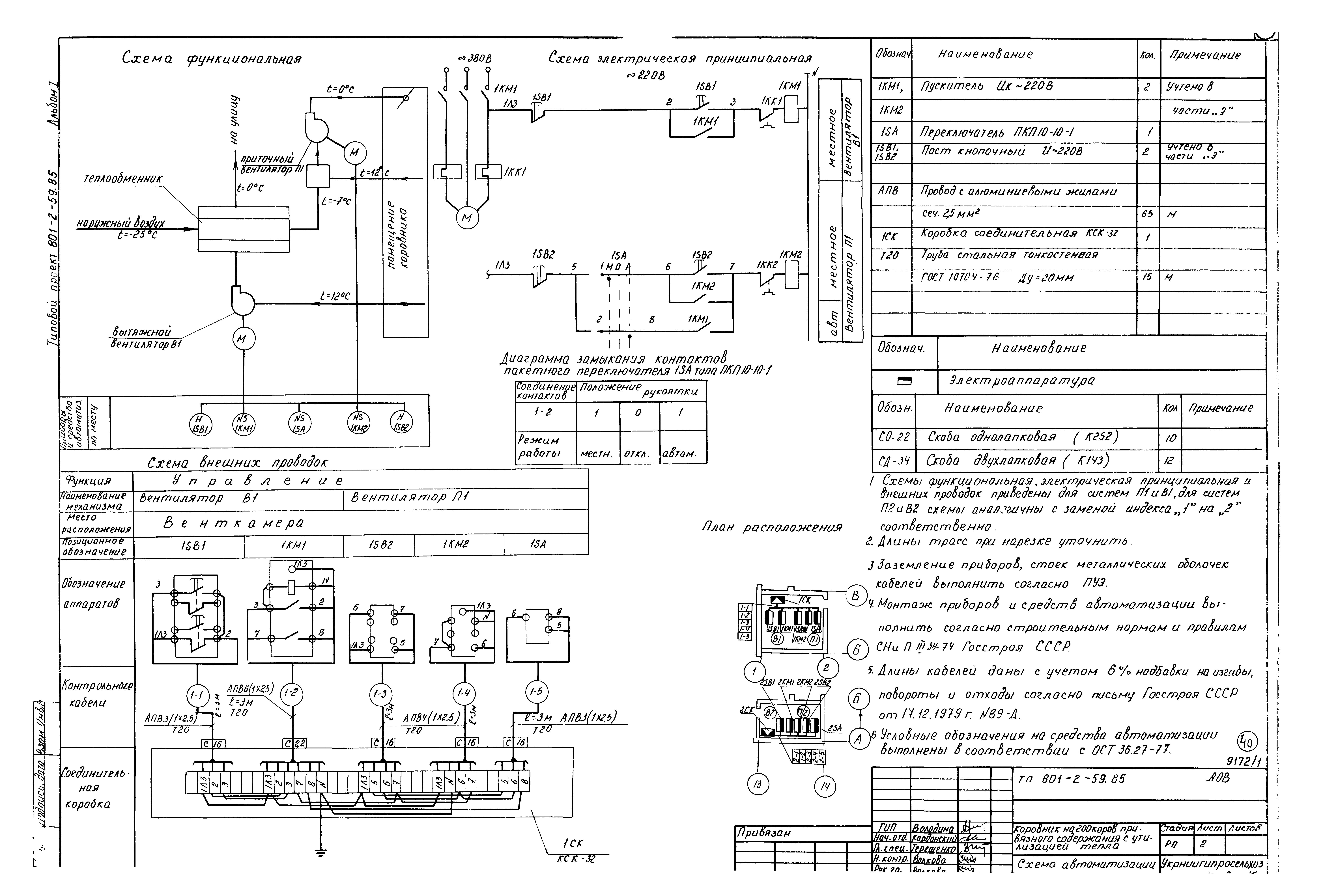
| Оглавление: | Содержание альбома Общая пояснительная записка Чертежи основного комплекта марки ТХ Общие данные Размещение технологического оборудования. План. Разрезы Транспортная линия уборки навоза транспортерами ТСН-160. План. Разрезы Оборудование стойловое для коров ОСК-25А. Узлы. Разрезы Чертежи основного комплекта марки АС Общие данные План на отм. 0.000. Разрезы 1-1, 2-2, 3-3 Фрагменты 1 и 2 Спецификация элементов заполнения проемов, перемычек, элементов на венткамеры Фасады План полов. Схема расположения кормушек, бортовых камней, ограждений Схема расположения фундаментов Схема расположения фундаментов под навозоуборочные транспортеры Фрагменты схемы расположения фундаментов под навозоуборочные транспортеры Схемы расположения колонн, балок, ферм и плит покрытия Схема расположения обрешетки и брусков под обрешетку. План кровли Схема расположения подвесок и изделий крепления обрешетки, схема обрамления проема ворот Плиты покрытия 2ПВ10-2АIVт-Па; 1ПГ-2АIVт-Па; 1ПВ4-4АIVт-Па; 2ПВ7-2АIVт-Пб. Плита ОП-3 Соединительные изделия МС-1 - МС-4, изделия закладные МН1 - МН7, ограждения ОГ-1 - ОГ-5, сетки С1, С2, С3 Чертежи основного комплекта марки ВК Общие данные План на отм. 0.000. Схемы В1, Т3, Т31, К13 Вариант водопровода с применением пластмассовых труб. План на отм. 0.000 между осями 3 - 12 и А - Г. Схемы В1, Т31 Чертежи основного комплекта марки ОВ Общие данные План на отм. 0.000. Разрез 1-1 Схемы систем П1, В1, П2, В2, ВЕ1 - ВЕ10, ВЕ11 Установки систем П1, В1 Установки систем П2, В2 Чертежи основного комплекта марки Э Общие данные Перечень электрооборудования и материалов План электроосвещения План силового оборудования и расчетная схема Устройство выравнивания электрических потенциалов Чертежи основного комплекта марки АОВ Общие данные Схема автоматизации |
| Разработан: | Укрниигипросельхоз |
| Утверждён: | 20.03.1985 МСХ УССР (21-Э) |








































