Скачать Типовой проект 801-2-59.85 Альбом II. Молочный блокДата актуализации: 01.01.2021
|
| Обозначение: | Типовой проект 801-2-59.85 |
| Обозначение англ: | 801-2-59.85 |
| Статус: | действует |
| Название рус.: | Альбом II. Молочный блок |
| Дата добавления в базу: | 01.10.2014 |
| Дата актуализации: | 01.01.2021 |
| Дата введения: | 04.04.1985 |
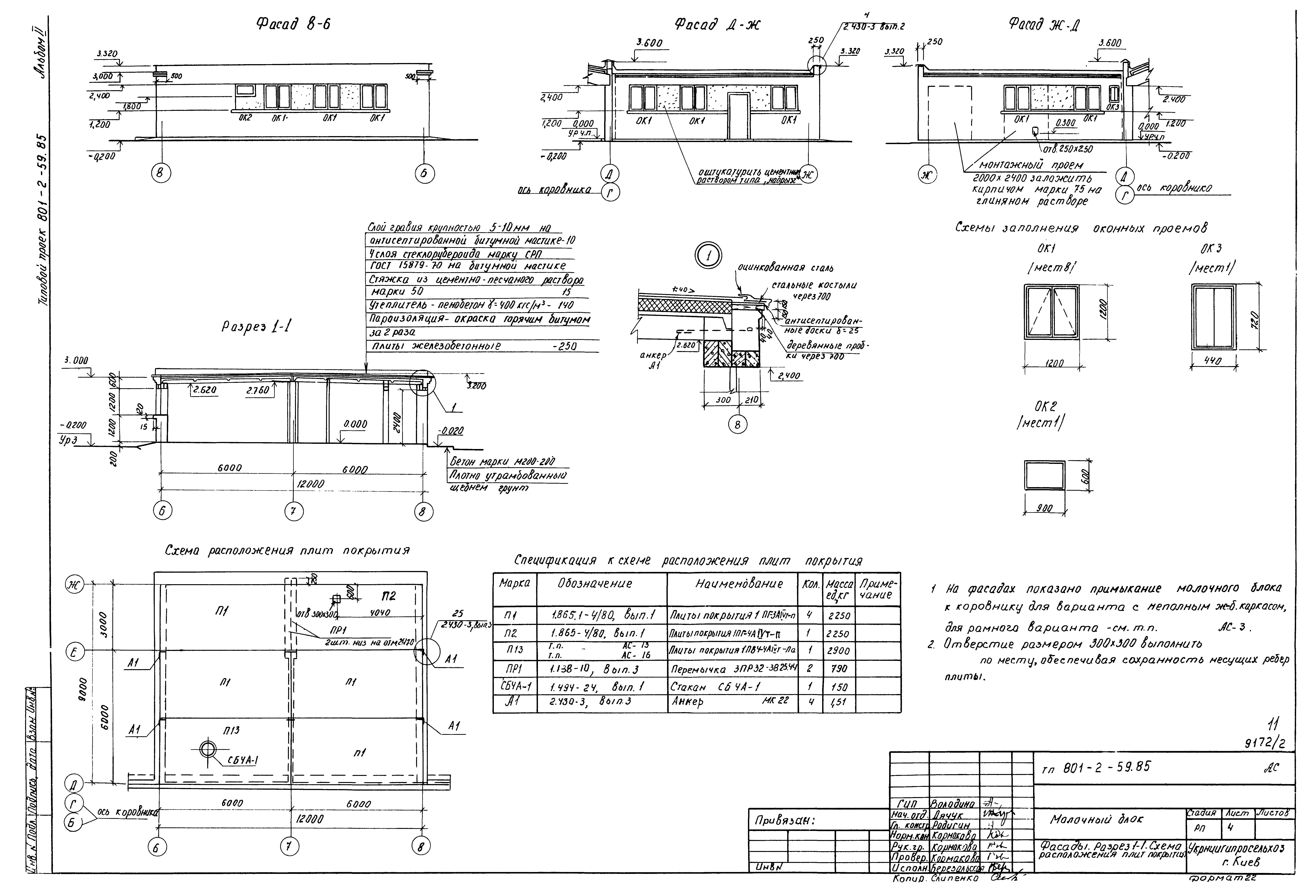
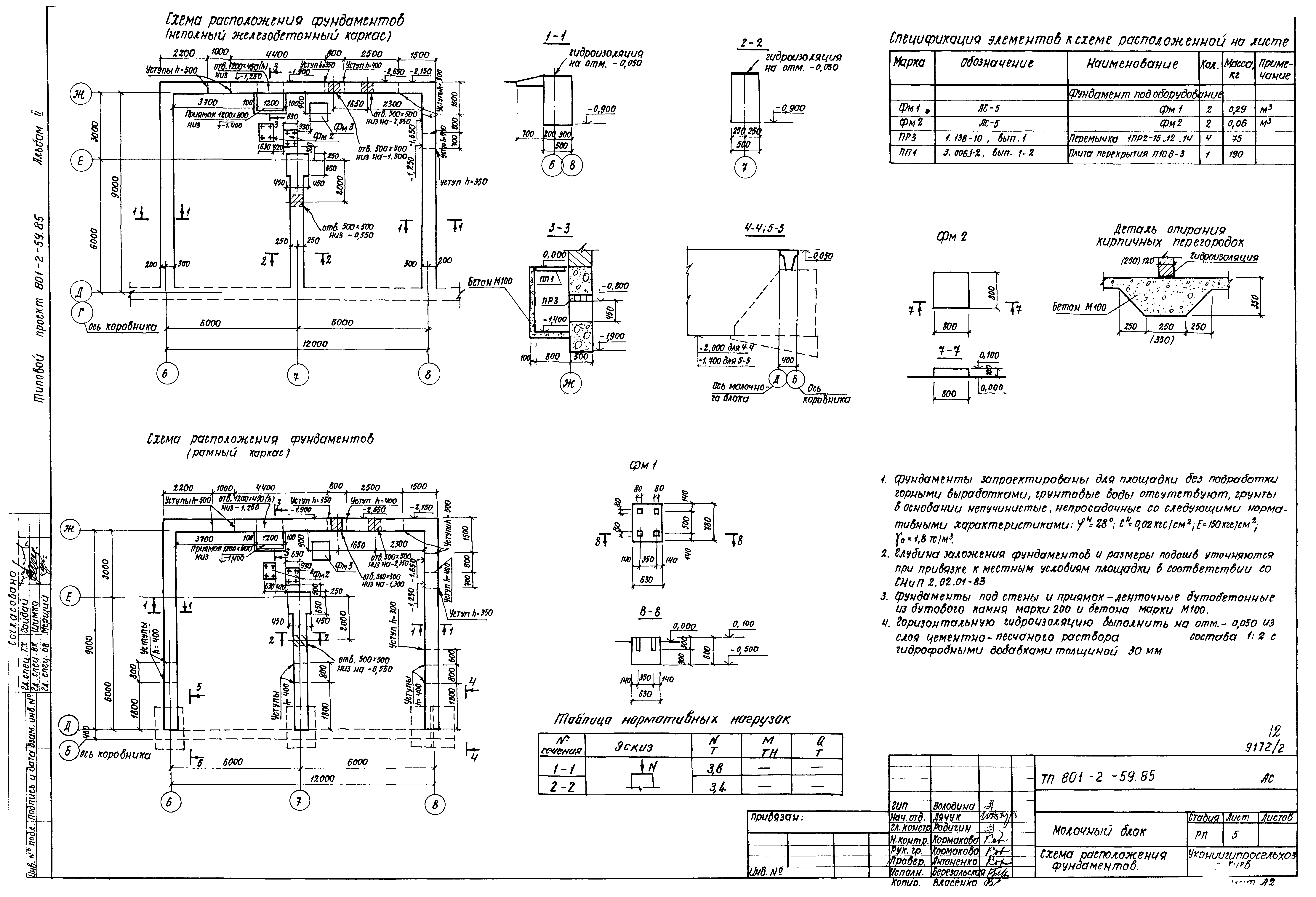
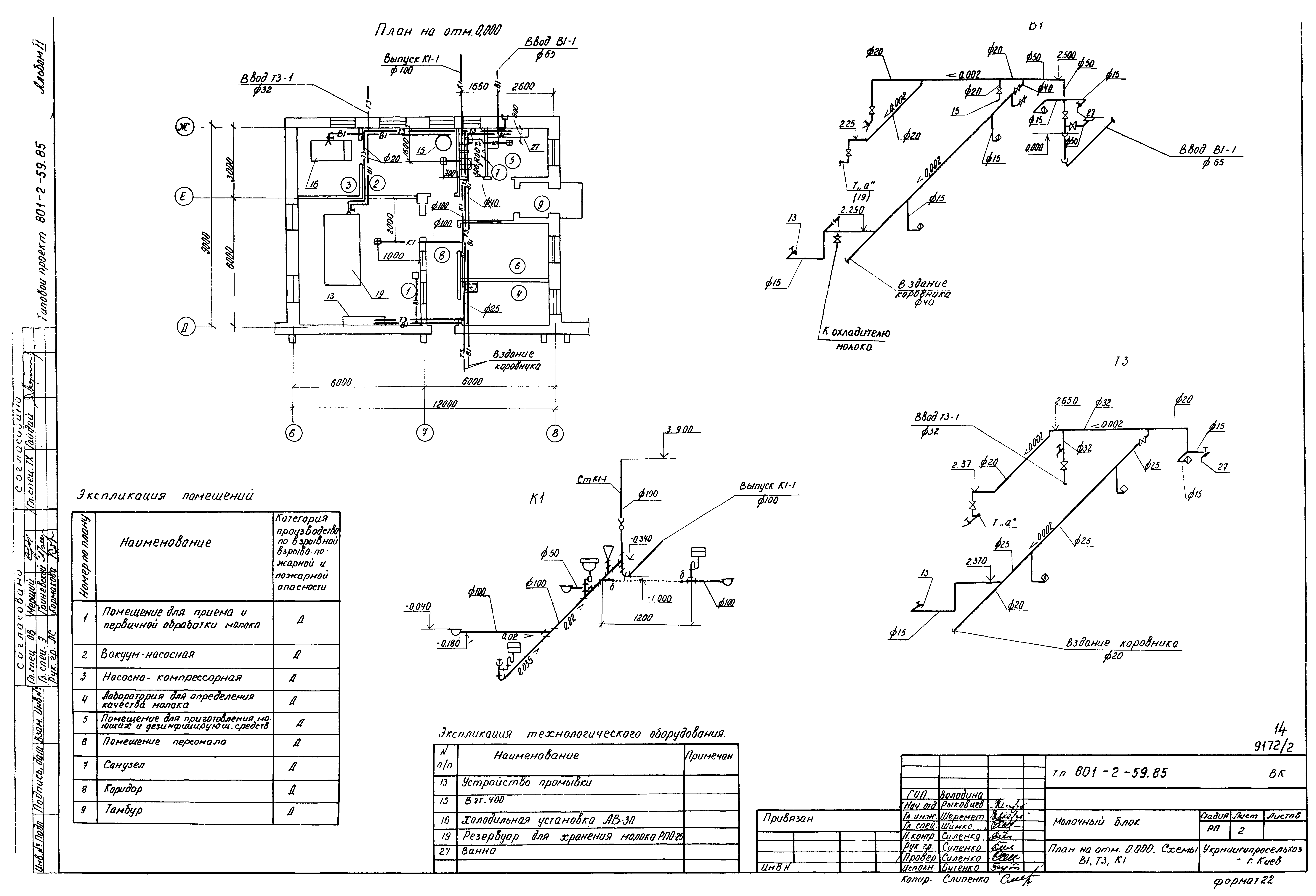
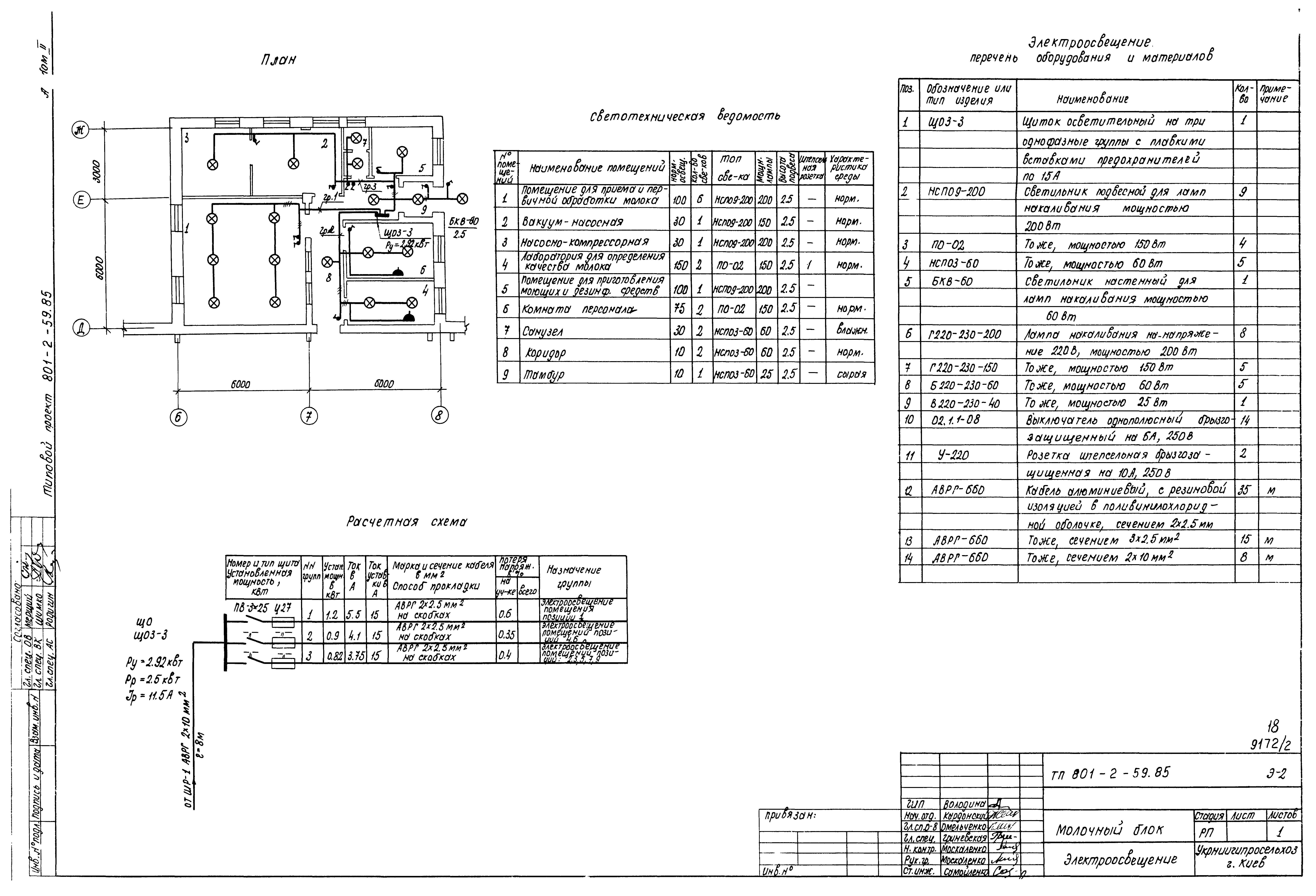
| Оглавление: | Содержание альбома Пояснительная записка Чертежи основного комплекта марки ТХ Общие данные Размещение технологического оборудования. План Размещение технологического оборудования. Разрезы Чертежи основного комплекта марки АС Общие данные План. Фрагмент 1 Фасады. Разрез 1-1. Схема расположения плит покрытия Схема расположения фундаментов Чертежи основного комплекта марки ВК Общие данные План на отм. 0.000. Схемы В1, Т3, К1 План на отм. 0.000. Схема В1. Вариант водопровода с применением пластмассовых труб Чертежи основного комплекта марки ОВ План. Схема системы отопления. Схемы систем ВЕ1, ВЕ2. Узел управления Чертежи основного комплекта марки Э Общие данные Электроосвещение Силовое электрооборудование Чертежи основного комплекта марки АОВ Общие данные. Схема функциональная и внешних проводок. План расположения Чертежи основного комплекта марки СС Связь и сигнализация. Общие данные и план |
| Разработан: | Укрниигипросельхоз |
| Утверждён: | 20.03.1985 МСХ УССР (21-Э) |





















