Скачать Типовой проект 801-2-60.85 Альбом I. Общая пояснительная записка и чертежиДата актуализации: 01.01.2021
|
| Обозначение: | Типовой проект 801-2-60.85 |
| Обозначение англ: | 801-2-60.85 |
| Статус: | действует |
| Название рус.: | Альбом I. Общая пояснительная записка и чертежи |
| Дата добавления в базу: | 01.10.2014 |
| Дата актуализации: | 01.01.2021 |
| Дата введения: | 04.04.1985 |
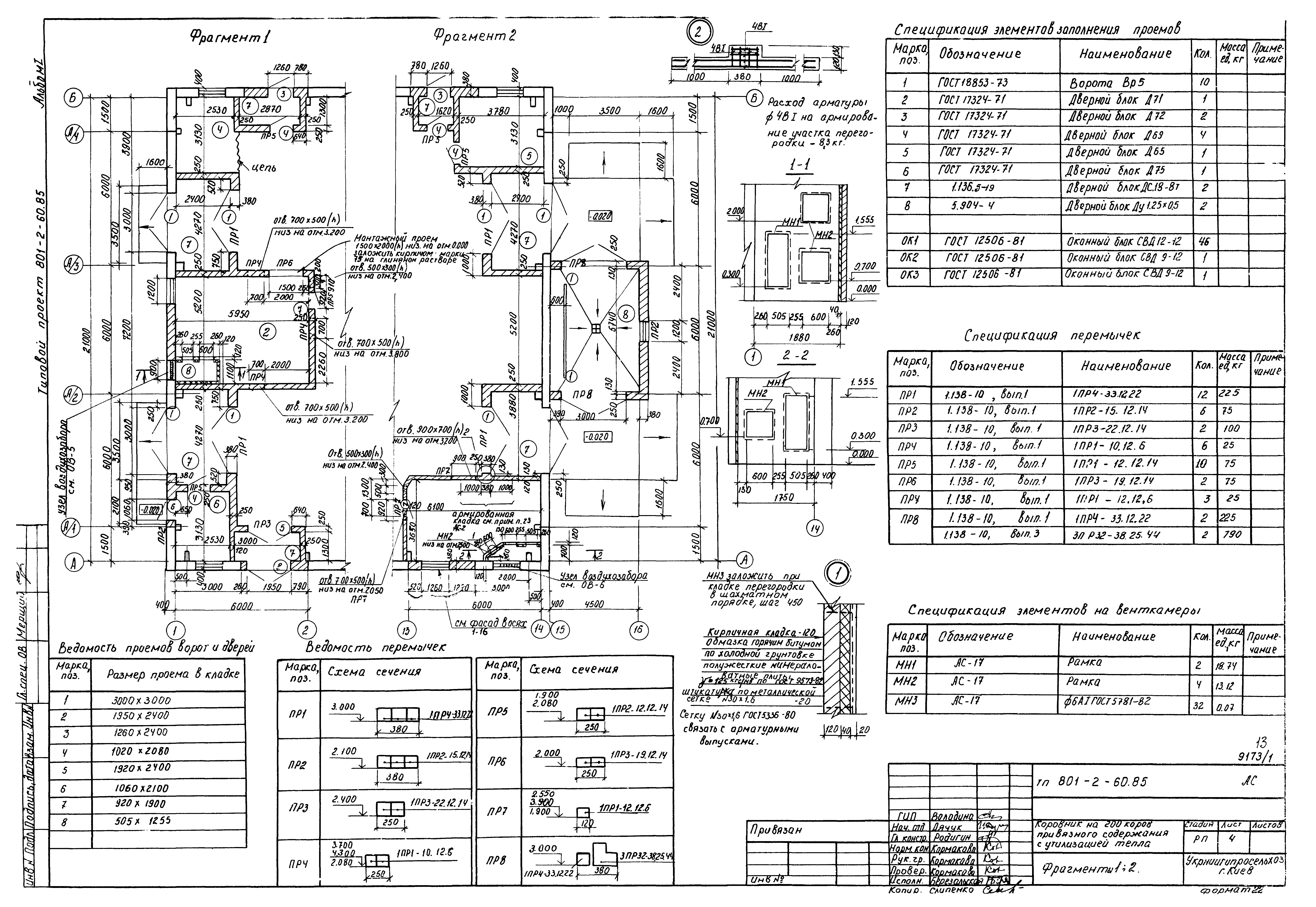
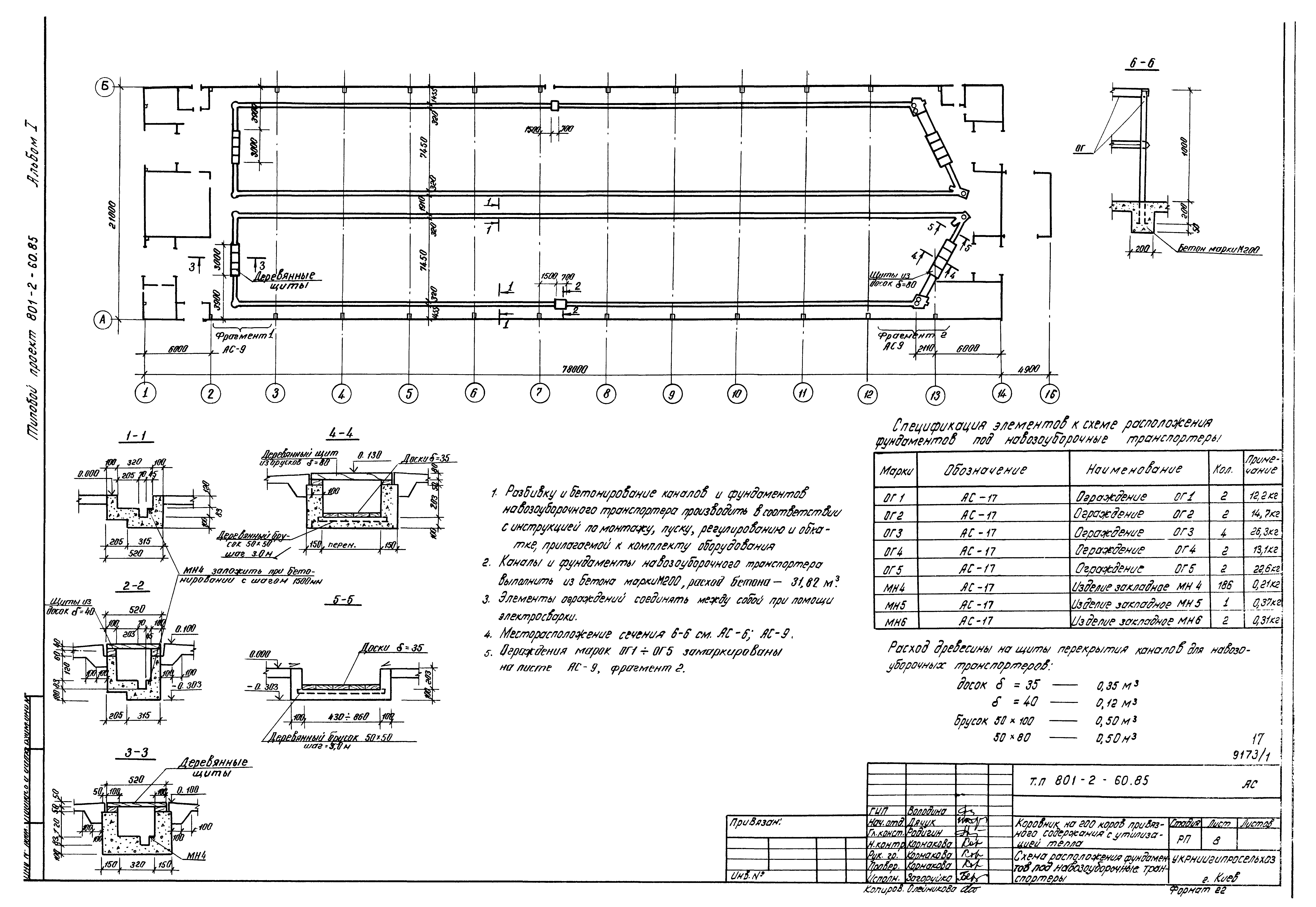
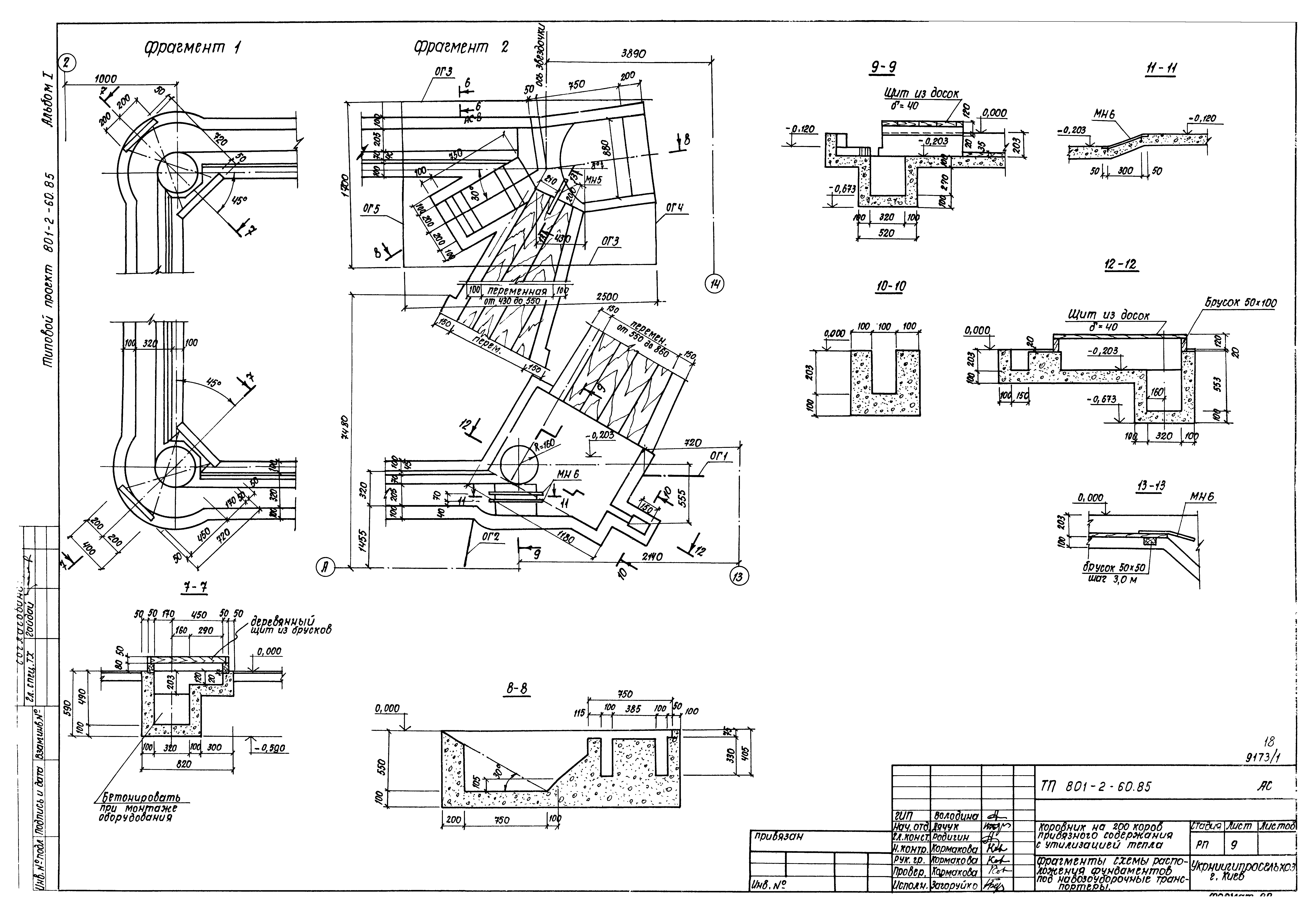
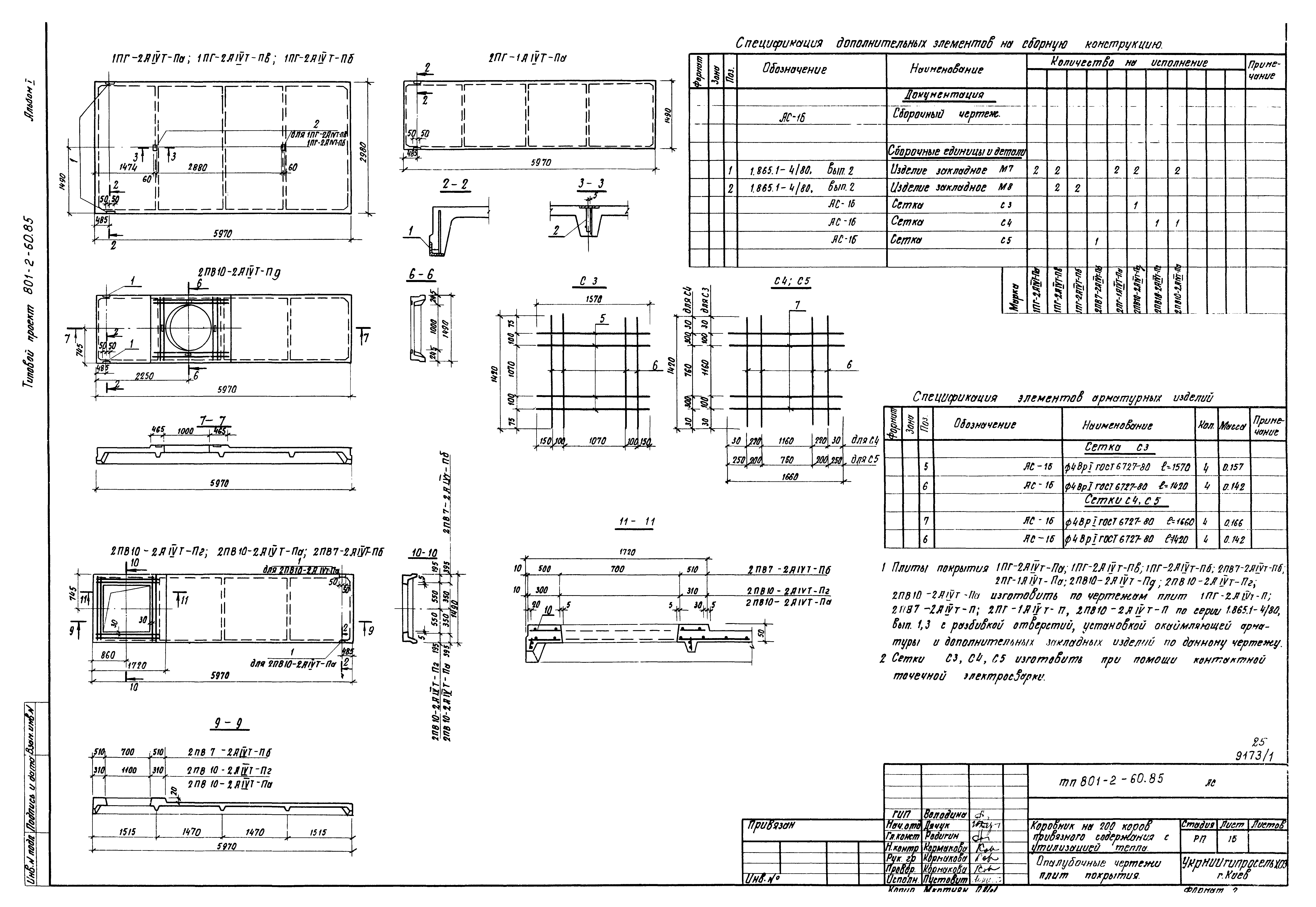
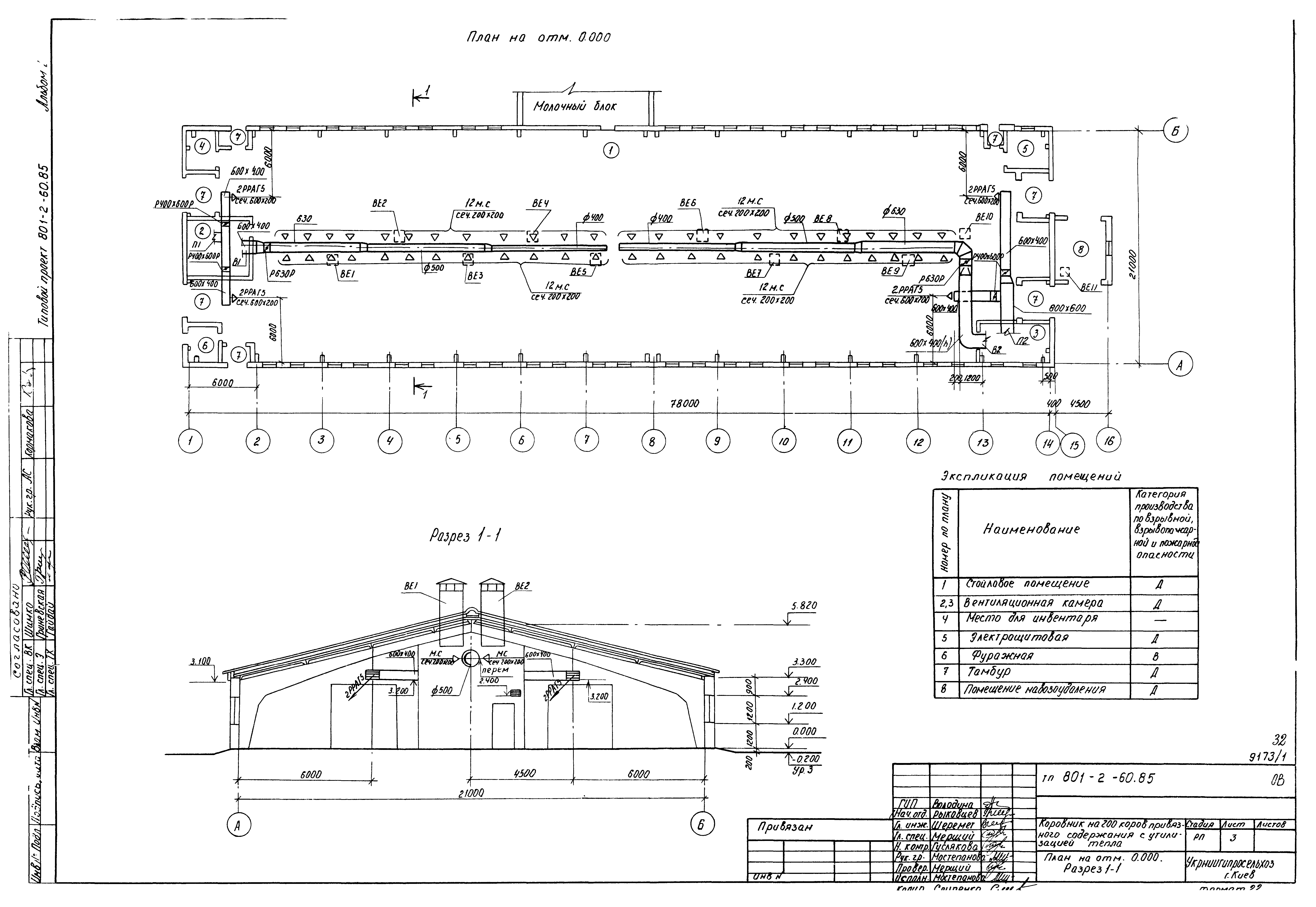
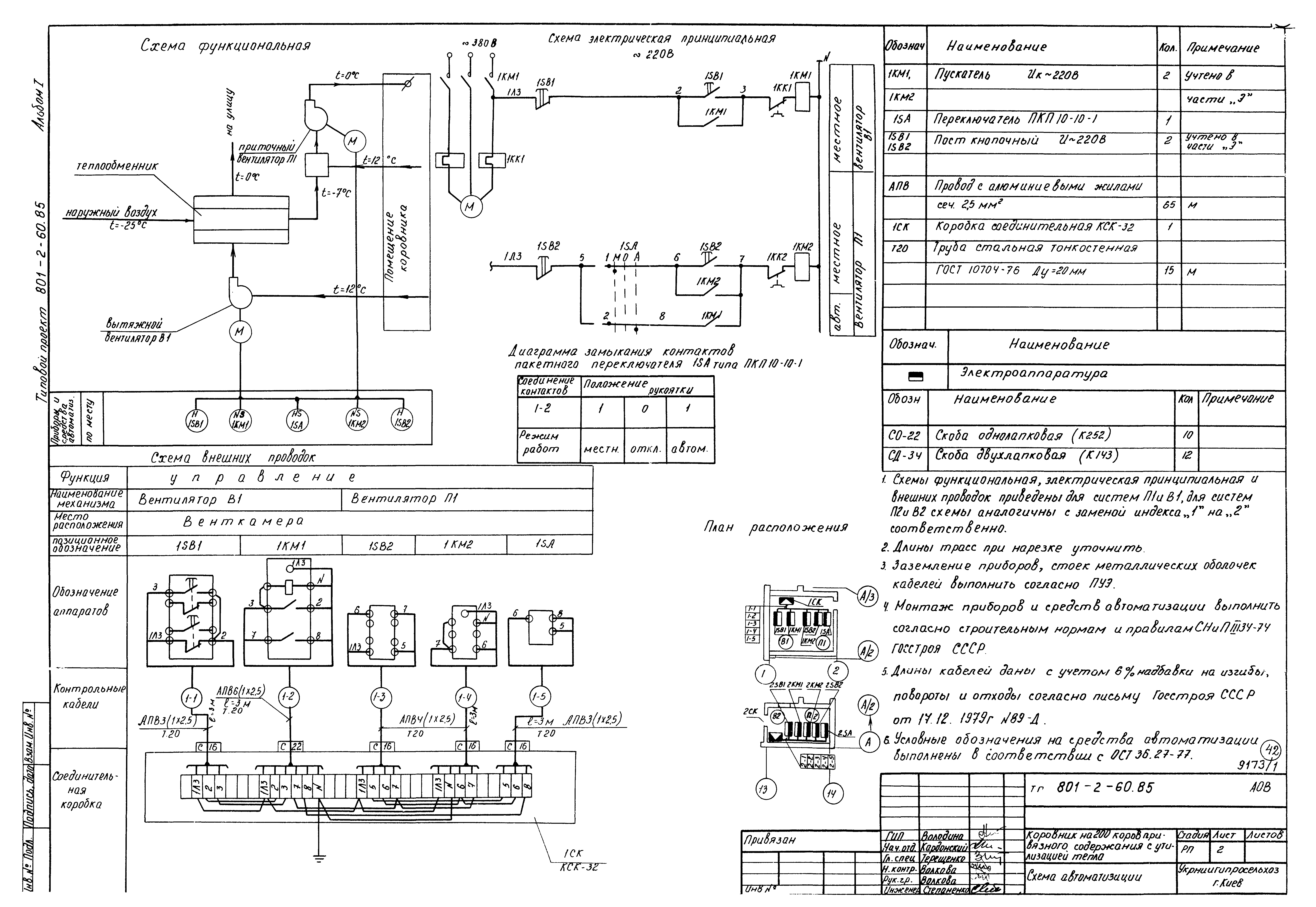
| Оглавление: | Содержание альбома Общая пояснительная записка Чертежи основного комплекта марки ТХ Общие данные Размещение технологического оборудования. План. Разрезы Транспортная линия уборки навоза транспортерами ТСН-160. План. Разрезы Оборудование стойловое для коров ОСК-25А. Узлы. Разрезы Чертежи основного комплекта марки АС Общие данные План на отм. 0.000. Разрезы 1-1, 2-2, 3-3 Фрагменты 1 и 2 Фасады План полов. Схема расположения кормушек, бортовых камней, ограждений Схема расположения элементов фундаментов Схема расположения фундаментов под навозоуборочные транспортеры Фрагменты схемы расположения фундаментов под навозоуборочные транспортеры Схемы расположения элементов каркаса и плит покрытия Схемы расположения стеновых панелей Схема расположения подвесок и изделий крепления обрешетки. Схема обрамления проема ворот Схема расположения обрешетки и брусков обрешетки. План кровли Опалубочные чертежи стеновых панелей и фахверковых колонн Опалубочные чертежи стеновых панелей и рам Опалубочные чертежи плит покрытия Соединительные изделия МС-1 - МС-3. Изделия закладные МН1 - МН7. Ограждения ОГ-1 - ОГ-5. Сетки С1, С2 Чертежи основного комплекта марки ВК Общие данные План на отм. 0.000. Схемы В1, Т3, В31, Т31, К13 Вариант водопровода с применением пластмассовых труб. План на отм. 0.000 между осями 3 - 12 и А - Б. Схемы В1, Т31 Чертежи основного комплекта марки ОВ Общие данные План на отм. 0.000. Разрез 1-1 Схемы систем П1, В1, П2, В2, ВЕ1 - ВЕ10, ВЕ11 Установки систем П1, В1 Установки систем П2, В2 Чертежи основного комплекта марки Э Общие данные Перечень электрооборудования и материалов План электроосвещения План силового оборудования и расчетная схема Устройство выравнивания электрических потенциалов Чертежи основного комплекта марки АОВ Общие данные Схема автоматизации |
| Разработан: | Укрниигипросельхоз |
| Утверждён: | 20.03.1985 МСХ УССР (21-Э) |










































